Materia Decolonial

Para ver las imágenes por cada tema del Glosario de Material Decolonial, presione sobre la barra blanca y escoja entre los temas que le presenta el menú desplegable.

Condado Vanderbilt - San Juan (Condado) - 2013 00184

Condado Vanderbilt - San Juan (Condado) - 2013 00184



Vista desde el interior del Hotel Condado Vanderbilt ubicado en la avenida Ashford del pueblo costero de San Juan. El hotel es de varios niveles con características del estilo resurgimiento español. Los espacios interiores están pintados de color salmón y color blanco. El vestíbulo tiene dos niveles con pisos de mármol en dos colores y patrón ajedrezado. El techo está dividido por vigas horizontales y está decorado con lámparas colgantes, lámparas de pared a juego y en el fondo la pared está revestida por espejos. La nave central se divide de las laterales con arcos semicirculares coronados con pequeños emblemas. Además, los espacios están divididos por balaustradas de hierro ornamental con pasamanos de madera. La nave lateral tiene puertas dobles de cristal cubiertas por cortinas de tela bajo arcos semicirculares. También se distinguen sillas en madera y plantas en macetas decorativas. Por otra parte, el primer nivel tiene una esfinge sobre una base negra y dos escaleras en espiral de mármol negro. El Hotel Condado Vanderbilt fue comisionado en 1917 por Frederick William Vanderbilt. Finalmente el 16 de octubre de 1919 fue inaugurado el primer gran hotel de lujo del Caribe. En el año 1930 fue vendido y pasó a llamarse Hotel Condado, posteriormente en 1940 se convirtió en el primer hotel en la isla en tener un casino. Además, en 1950 volvieron a cambiar su nombre a Condado Beach Hotel y se añadieron habitaciones, salones de actividades y un restaurante. Luego de considerar su demolición fue incluido en el Registro Nacional de Lugares Históricos en el año 1988. Más recientemente fue remodelado entre los años 2008 a 2014 por los arquitectos Thomas S. Marvel y José Marchand Sifre añadiendo dos torres de suites modernas. Además, la planificación y restauración de los espacios estuvo a cargo del Arquitecto Jonathan Parks y la firma SOLSTICE Planning and Architecture. Los diseños interiores estuvieron a cargo del diseñador Jorge Roselló.

Condado Vanderbilt - San Juan (Condado) - 2013 00145

Condado Vanderbilt - San Juan (Condado) - 2013 00145



Vista desde el balcón frontal del Hotel Condado Vanderbilt ubicado en la avenida Ashford del pueblo costero de San Juan. El hotel es de varios niveles y características del estilo resurgimiento español. La fachada frontal del hotel tiene un balcón abierto rodeado por balaustradas. El interior tiene el piso cubierto por losas de cerámica, está decorado con muebles de jardín y plantas en macetas decorativas. Además, desde el balcón se distinguen edificios en los alrededores del hotel en la avenida Ashford como el edificio Condado Astor 1018. El Hotel Condado Vanderbilt fue comisionado en 1917 por Frederick William Vanderbilt. Finalmente el 16 de octubre de 1919 fue inaugurado el primer gran hotel de lujo del Caribe. En el año 1930 fue vendido y pasó a llamarse Hotel Condado, posteriormente en 1940 se convirtió en el primer hotel en la isla en tener un casino. Además, en 1950 volvieron a cambiar su nombre a Condado Beach Hotel y se añadieron habitaciones, salones de actividades y un restaurante. Luego de considerar su demolición fue incluido en el Registro Nacional de Lugares Históricos en el año 1988. Más recientemente fue remodelado entre los años 2008 a 2014 por los arquitectos Thomas S. Marvel y José Marchand Sifre añadiendo dos torres de suites modernas. Además, la planificación y restauración de los espacios estuvo a cargo del Arquitecto Jonathan Parks y la firma SOLSTICE Planning and Architecture. Los diseños interiores estuvieron a cargo del diseñador Jorge Roselló.

Archivo General - Antiguo Hospital Civil - San Juan (Puerta de Tierra) - 2011 00007

Archivo General - Antiguo Hospital Civil - San Juan (Puerta de Tierra) - 2011 00007



Vista frontal del Archivo General y Biblioteca Nacional de Puerto Rico ubicado en la comunidad de Puerta de Tierra del pueblo costero de San Juan. El edificio es de tres niveles en mampostería y ladrillo con características del estilo neoclásicobpintado en tonos de amarillo y color blanco. La fachada frontal es oblicua y en el primer nivel tiene zonas estriadas, la entrada es a través de una puerta doble de cristal bajo un arco de medio punto enmarcado con molduras planas y coronado con un travesaño y espinazo. Flanqueando la entrada hay pilastras pares, una cámara de seguridad y un letrero. Sobre esta hay ventanas dobles de madera color azul con persianas y cristal sobre bases de molduras salientes. La ventana de en medio está flanqueada por columnas pares que se alinean con las pilastras del primer nivel. El antiguo Hospital Civil fue el último edificio erigido por el gobierno Español en la Isla entre los años 1877-1887. A pesar de que fue construido como hospital fue utilizado como Cárcel provincial y posteriormente como destilería. Años más tarde, ante una amenaza de demolición el Instituto de Cultura Puertorriqueña lo adquirió y lo restauró para albergar documentos históricos. A partir del año 1973 trasladaron el Archivo General y la Biblioteca Nacional de Puerto Rico a este espacio. Además, el edificio fue incluido en el Registro Nacional de Lugares Históricos en el año 1976.

Bastión de las Palmas de San José - San Juan (Viejo San Juan) - 2012 00007

Bastión de las Palmas de San José - San Juan (Viejo San Juan) - 2012 00007



Bastión de las Palmas de San José, localizado en la esquina de las calles Tetuán y San José en el Viejo San Juan. Fue construido en el siglo XVII, en 1625 luego del ataque holandés al Viejo San Juan. Se observa una muralla de mampostería de piedra y ladrillos y una baranda color negra. Se aprecian unos escalones con ladrillos, árboles, farolas, varias personas sentadas en banquetas y dos sillas esculpidas con la figura de un gato. Posteriormente el Bastión de las Palmas de San José fue un parque. En el lado derecho de la imagen se encuentra la antigua sede del periódico El Mundo/Puerto Rico Ilustrado en el Viejo San Juan. Fue construido en 1923 por el arquitecto Francisco Roldán Martinó. El edificio tiene elementos del estilo arquitectónico neoárabe. Está pintado de color crema, blanco y gris. Se aprecian que la fachada tiene mosaicos, pilastras, ventanas de cristal y un balcón ornamentado que está sostenido por unas ménsulas. Adyacente a este edificio se ve un edificio pintado de color anaranjado y blanco. Este edificio tiene un pórtico con columnas cuadradas y vanos de puertas con rejas blancas y montantes. En el lado izquierdo de la imagen se ve la parte posterior de la Capilla del Santo Cristo de Salud, también conocida como la Capilla del Cristo. Fue construida en 1753 por el arquitecto e ingeniero militar Juan Francisco Mestre. La capilla tiene rasgos característicos del estilo arquitectónico mudéjar. Está construida en ladrillo y mampostería. También se ve parcialmente la fachada lateral del antiguo Hospital de la Concepción, que posteriormente fue el Convento y Casa de Salud Siervas de María. El edificio está pintado de color crema y blanco. Tiene parapetos, cornisas, ventanas de celosía color marrón y montantes. A lo lejos se aprecia la bahía de San Juan.

Primera Iglesia Metodista Unida de Ponce - 2014 00027

Primera Iglesia Metodista Unida de Ponce - 2014 00027



Vista desde el interior de la primera iglesia metodista de Ponce ubicada en la calle Villa 135 del pueblo costero de Ponce. La iglesia es de un nivel en hormigón armado con características de varios estilos por lo que se considera ecléctica. El techo es a dos aguas con vigas de madera expuestas y lámparas colgantes. Al fondo hay un altar elevado, presidido por una balaustrada de madera y escalones. Está cubierto por una alfombra color rojo y tiene ambones a cada lado, sillas, instrumentos musicales y carteles decorativos. En medio, bajo un arco semicircular enmarcado con molduras de madera está ubicada la mesa del altar. La mesa es de madera, cubierta por un mantel de encaje y acompañada por un libro, candelabros y flanqueada por macetas decorativas sobre pequeñas columnas decorativas. También tiene una cruz de madera en la pared y a ambos lados del altar ventanas bajo arcos semicirculares de madera con vidrieras de colores. También se pueden ver filas de bancos de madera, el piso cubierto por una alfombra y personas de pie. La Iglesia Metodista de la Resurrección de Ponce fue construida en 1907 convirtiéndose en una de las primeras iglesias no católica romana construida después del cambio de soberanía en 1898 siendo un ejemplo de la libertad de culto. Tras el terremoto de 1918 la torre del campanario se tuvo que reconstruir utilizando el diseño de Francisco Porrata Doria, por lo que su diseño y materiales son diferentes al original. Años más tarde, en 1987 fue incluida en el Registro Nacional de Lugares Históricos.

Arecibo Trip - 2014 00003

Arecibo Trip - 2014 00003



Vista del edificio González Marín 101 en el pueblo costero de Arecibo. Es un edificio de estilo neoclásico en mampostería enlucida de dos pisos originalmente construido para fines comerciales y residenciales. La fachada frontal consta de tres tramos y la lateral de cuatro tramos que se conectan mediante una esquina curva. A nivel del suelo, un zócalo continuo sostiene el edificio. Rodeando la fachada frontal y lateral se divisa una hilera de revestimiento de mármol blanco interrumpida por la puerta frontal flanqueada por dos faroles. La puerta es doble de cristal al igual que las ventanas cubiertas por láminas de metal corrugado, enmarcadas con molduras blancas. Dividiendo los dos niveles del edificio color azul se divisa una cornisa blanca que a su vez sostiene el balcón frontal en voladizo sin baranda. El balcón alberga tres puertas dobles con ventanas de madera enmarcadas con molduras y coronadas con un entablamento. La puerta del medio cuenta con tres pilastras que a su vez sostienen un frontón. Por otra parte, en el lateral izquierdo hay cuatro puertas dobles con ventanas de madera coronadas con entablamento. Definiendo las esquinas del edificio se asoman pilastras que sostienen la cornisa superior y un parapeto que corona el edificio a modo de balcón abierto. En los alrededores se divisan más edificios con diferentes características y vehículos. Construido en 1908 es uno de los últimos edificios diseñados con el vocabulario neoclásico español en la isla. Desde sus comienzos el edificio albergó instituciones bancarias hasta 1930, bajo las consecuencias de la gran depresión First National City Bank abrió su sucursal siendo así el primer banco de Estados Unidos en la zona.

Bastión de las Palmas de San José - San Juan (Viejo San Juan) - 2013 00001

Bastión de las Palmas de San José - San Juan (Viejo San Juan) - 2013 00001



Bastión de las Palmas de San José, localizado en la esquina de las calles Tetuán y San José en el Viejo San Juan. Fue construido en 1625 en el siglo XVII, luego del ataque holandés al Viejo San Juan. Se muestra una plaza, en la noche, con barandas, cuatro banquetas, personas, árboles y una muralla de mampostería en piedra. Posteriormente, el Bastión de las Palmas de San José fue un parque. En el lado izquierdo, se encuentra el Paseo de la Princesa. Se observa una torre con cúpula ubicada en la parte superior de la antigua cárcel La Princesa. El edificio tiene parapetos, cornisas, ventanas de celosía y molduras blancas. Se construyó en 1837 y fue utilizado como cárcel hasta el 1976 cuando fue cerrado por problemas estructurales. En el 1992 el gobierno de Puerto Rico la restauró para ser la sede de la Compañía de Turismo de Puerto Rico. Esta restauración estuvo a cargo del arquitecto Miguel Carlo. También se nota una acera con farolas y varias palmas. En el lado derecho, se divisa la parte posterior de la Capilla del Santo Cristo de Salud, también conocida como la Capilla del Cristo. Fue construida en 1753 por el arquitecto e ingeniero militar Juan Francisco Mestre. La capilla tiene rasgos característicos del estilo arquitectónico mudéjar. Está construida en ladrillo y mampostería. Además, se ve la fachada lateral del antiguo Hospital de la Concepción, que posteriormente pasó a ser el Convento y Casa de Salud Siervas de María. El edificio es de varios pisos, tiene parapetos, cornisas y se notan los vanos de las ventanas. A distancia se encuentra la bahía de San Juan y la costa del municipio de Toa Baja.

Casa Frederico Font-Ubides

Casa Frederico Font-Ubides



Dibujo arquitectónico de la casa conocida como casa Font-Ubides o casa Monsanto ubicada en la calle Castillo del pueblo costero de Ponce. Es de dos niveles en mampostería de piedra con características del estilo Art Nouveau. La fachada frontal tiene una entrada presidida por escaleras, tiene una puerta doble bajo un arco semicircular enmarcado con molduras ornamentales, coronado con un sol trunco y molduras ornamentales. Flanqueando la entrada hay dos balcones con forma curvilínea rodeados por barandas ornamentales moduladas por columnas acanaladas de orden corintio sobre pedestales cuadrados. Dentro de los balcones también se distinguen puertas dobles enmarcadas con molduras ornamentales, coronadas con soles truncos y molduras decorativas. Las columnas se alzan y a su vez sostienen un entablamento corrido con cornisas, un friso ornamental y molduras. Además, el segundo nivel está rodeado por una balaustrada a modo de balcón abierto, está modulada por pilares sobre los cuales hay ánforas. También se puede ver que el segundo nivel es de menor tamaño por lo que ocupa el extremo izquierdo y tiene un borde superior curvilíneo acompañado con molduras y remates piramidales. Al extremo derecho hay un portón doble y un logo que dice: PRHBDS”. La casa de la familia Font-Ubides fue diseñada en 1913, perteneció a la familia Font hasta 1934 y pasó a la familia Monsanto. Años más tarde, en 1987 fue incluida en el Registro Nacional de Lugares Históricos.

Colegio San José de San Germán - 2011 00009

Colegio San José de San Germán - 2011 00009



Vista de la Ermita de San Sebastián y los alrededores del colegio San José en el pueblo de San Germán. La Ermita de San Sebastián y el Colegio San José están construidos en mampostería con características del estilo neoclásico. Los edificios están separados de su entorno inmediato mediante una cerca metálica modulada por pilares frente a los cuales se pueden ver vehículos estacionados en la calle. La fachada del edificio está dividida en tramos con pilastras planas, decorada con molduras y un entablamento corrido. En medio se distingue la ermita con una entrada ubicada bajo un arco de medio punto enmarcado con molduras, la puerta es sencilla de madera y está cubierta por una reja metálica. Las ventanas son de madera y persianas, algunas están cubiertas por rejas metálicas. Por otra parte, sobre el edificio se alza un campanario y una cúpula. Flanqueando la ermita hay edificios que pertenecen al Colegio San José con características similares, al extremo izquierdo las ventanas son semicirculares enmarcadas con molduras, pilastras y un entablamento corrido. Las del edificio del extremo derecho son dobles de madera enmarcadas con molduras y las de la fachada lateral son estilo celosía de aluminio. Esta fachada también tiene unas escaleras de entrada y un letrero en la pared. Desde su construcción en 1782 y restauración en 1850 sirvió como iglesia parroquial, convento, seminario y parte del colegio San José como biblioteca. Junto al distrito histórico de San Germán fue incluido en el Registro Nacional de Lugares Históricos en el año 1994.

Ulrichs White One Story Building Porch with Balustrade

Ulrichs White One Story Building Porch with Balustrade



Vista frontal y lateral de la casa Ulrich también conocida como casa Villa Julita ubicada en el pueblo de Aibonito. La casa es de un nivel construida en madera y concreto con techo de láminas de metal corrugado, características de los estilos criollo y Beaux Art. La fachada frontal está presidida por un porche con escaleras de concreto y una balaustrada de concreto modulada por columnas. La balaustrada se extiende hacia el extremo derecho creando un diseño circular abierto. En el interior del porche hay puertas dobles de madera. Por otra parte, la fachada lateral tiene ventanas dobles de madera y cristal, coronadas con travesaños de vidrio pintado. También se distingue un espacio sobresaliente con forma hexagonal y techo a dos aguas. Villa Julita fue diseñada y construida en 1915 por el renombrado arquitecto Ponceño Alfredo Weichers y por Salvador Landó. Utilizando los estilos Criollos y Beaux Arts creó una construcción única para su época en la isla. En el año 1917 la propiedad fue vendida a otra familia quienes posteriormente la vendieron a la Fundación Ulrich en el año 1972. La utilizaron desde 1950 creando un espacio de conciencia sobre las guerras de Corea y Vietnam. Además, la iglesia Menonita utilizó los terrenos con fines de educación agrícola innovadora en la zona de Aibonito. Hasta 1974 cuando la propiedad fue nuevamente vendida y utilizada como centro de desarrollo integral para niños. Fue incluida en el Registro Nacional de Lugares Históricos en el año 1986. Sin embargo hace unos años la casa fue restaurada a su estilo original y abierta al público para recorridos guiados. Más recientemente, en el año 2025 es conocida como Casa Villa Julita, un espacio dedicado a fomentar la creación y el desarrollo de saberes y la práctica social.

Capitolio de Puerto Rico - San Juan (Puerta de Tierra) - 2009 00002

Capitolio de Puerto Rico - San Juan (Puerta de Tierra) - 2009 00002



Vista frontal y lateral del Capitolio de Puerto Rico ubicado en la comunidad de Puerta de Tierra del pueblo costero de San Juan. El edificio es de tres niveles con características del estilo neoclásico en hormigón y acero revestido por mármol blanco. Tiene una forma oblicua que permite ver en primer plano un ala lateral de un nivel con ventanas dobles de cristal, una puerta flanqueada por faroles y presidida por una escalera. Sobre esta se proyecta una azotea con balaustrada de mármol y ánforas decorativas. La fachada frontal está dividida en naves, la nave lateral izquierda tiene ventanas de cristal bajo arcos rectangulares enmarcadas con molduras, puertas dobles de cristal presididas por antepechos y coronadas con entablamentos. También se puede ver un pórtico sostenido por ocho columnas de órden jónico. Además, se alcanza a ver un extremo de la nave central presidida por un pórtico sostenido por columnas de orden corintio que a su vez sostienen un entablamento corrido que tiene cornisas corridas, molduras y dentículos. A su vez, el borde superior está decorado con molduras y una crestería. Coronando el edificio se alcanza a ver una cúpula rematada con una linterna. En los alrededores del edificio hay espacios de estacionamiento y vehículos. El Capitolio de Puerto Rico fue construido entre los años 1925 a 1929 utilizando el diseño del arquitecto Puertorriqueño Rafael Carmoega. Ha permanecido en uso continuo y fue expandido añadiendo dos edificios anexos en la década de 1950 trabajo realizado por la firma Toro y Ferrer, Además, fue incluido al Registro Nacional de Lugares históricos en el año 1977 y añadido a la nominación de Distrito Histórico de Puerta de Tierra en el año 2019.

Casa en la calle Villa - Residencia Toro-Cortada - Antiguo Centro Español - Ponce - 2014 00003

Casa en la calle Villa - Residencia Toro-Cortada - Antiguo Centro Español - Ponce - 2014 00003



Vista frontal de casa en la calle Villa del pueblo costero de Ponce. La casa es de dos niveles en mampostería de ladrillo con características del estilo neoclásico. La fachada frontal tiene un pórtico presidido por escaleras con entrada bajo un arco semicircular enmarcado con molduras planas y flanqueado por columnas que a su vez sostienen un entablamento. Además, a ambos extremos hay balcones con vanos rectangulares coronados con entablamentos, balaustradas sostenidas por columnas cuadradas acanaladas que a su vez sostienen una cornisa corrida y el balcón abierto del segundo nivel. También tiene una balaustrada modulada por pilares cuadrados con remates esféricos. En adición, el segundo nivel tiene ventanas rectangulares coronadas con entablamentos acompañados por molduras ornamentales, dentículos y acróteras. Entre las ventanas hay pilastras de almohadillado que a su vez sostienen un entablamento corrido acompañado por dentículos, un friso ornamental y una cornisa corrida sobre la cual descansa una balaustrada modulada por pilares cuadrados con remates esféricos. El friso está interrumpido en medio por un frontón semicircular. La residencia conocida como Casa Toro Cortada y Antiguo Centro Español fue construida en 1911. Posteriormente en 1961 fue vendida y convertida en centro social permaneciendo en uso continuo hasta 1970 cuando pasó a manos de la Oficina del Fondo de Seguro del Estado hasta 1989.

Capilla Nuestra Señora de Lourdes - San Juan (Miramar) - 2011 00020

Capilla Nuestra Señora de Lourdes - San Juan (Miramar) - 2011 00020



Vista del interior de la nave principal de la Capilla Nuestra Señora de Lourdes, en Miramar, San Juan. El techo es de madera, dispuesto a dos aguas y con cerchas ornamentales desde las que cuelgan lámparas tipo arañas. El piso está cubierto con losa isleña que forma un motivo geométrico en tonalidades de blanco y rojo. El área del altar, del ábside y de la nave secundaria están acompañados de una mesa de altar, un ambón, representaciones de Nuestra Señora de Lourdes y del Sagrado Corazón de Jesús, las estaciones del Viacrucis y un confesionario. Además, resalta un rosetón sobre el altar y las ventanas laterales caracterizadas por tres paneles de vitrales con tracerías. A través de la nave principal se encuentran las sillerías de madera. La construcción de la Capilla Nuestra Señora de Lourdes se inició en 1907 y su inauguración tuvo lugar en 1908. Este edificio es representativo de las iglesias protestantes que se establecieron en Puerto Rico tras el cambio de régimen en 1898. Fue el primer templo de la Iglesia Metodista Episcopal de Puerto Rico, luego, en 1917, pasó a manos de la Iglesia Unida de Puerto Rico y finalmente, a la Iglesia Católica Romana, adscrita a la arquidiócesis de San Juan en 1959. Su diseño y características corresponden al estilo neogótico o resurgimiento gótico. Este diseño, además, imita a un edificio de la Iglesia Episcopal en la calle North Market, en Jacksonville Florida, donde su arquitecto tenía su residencia entonces.

Parque de Bombas - Ponce - 2014 00003

Parque de Bombas - Ponce - 2014 00003



Vista frontal del antiguo Parque de Bombas ubicado en la Plaza Las Delicias del pueblo costero de Ponce. El edificio es de dos niveles en madera con forma rectangular flanqueado por una torre en cada extremo y techo de láminas de metal corrugado. Su diseño tiene características de los estilos morisco y gótico victoriano del cual resalta la policromía creada por franjas negras y rojas. En el primer nivel se distingue un extremo de la marquesina sostenida por ménsulas, acompañada por un lambrequín y al extremo izquierdo un vano trilobulado enmarcado con molduras planas. Además, en el segundo nivel se distinguen ventanas rectangulares enmarcadas con molduras planas y coronadas con soles truncos. La torre está acompañada de un lambrequín que se extiende por todo el voladizo. Se repite de la misma manera en el borde del lucernario donde también se distinguen ventanas estilo celosía de madera. Ya que el Parque de Bombas está adosado a la parte trasera de la Catedral de Nuestra Señora de la Guadalupe se distingue una de las cúpulas y la cerca que la rodea. El antiguo Parque de Bombas fue construido en 1882 como pabellón central para una feria. Fue designado oficialmente como Parque de Bombas del pueblo de Ponce en 1885 albergando a los bomberos voluntarios. Años más tarde, en 1984 fue incluido en el Registro Nacional de Lugares Históricos. A partir de 1990 es utilizado como museo en honor y conmemoración de los bomberos del pueblo de Ponce.

Casa de la Masacre de Ponce - 05001098

Casa de la Masacre de Ponce - 05001098



Vista oblicua del edificio conocido como Casa de la Masacre, en Ponce. Se observa un edificio de dos niveles con base de mampostería y un estilo de arquitectura vernácula criolla. Las paredes combinan mampostería y madera y el techo, de metal galvanizado con una cornisa debajo del parapeto. El nivel superior cuenta con un balcón de madera continuo en forma de “L” que une ambas fachadas principales mediante una curva estilizada. Se observan una balaustrada de madera, columnas reforzadas con ménsulas metálicas que sostienen el techo y cinco puertas dobles de madera con paneles de celosía, rematadas con una cornisa y ménsulas de diseño elaborado. La planta baja presenta entradas comerciales, mientras que el nivel superior está destinado a vivienda y cuenta con acceso independiente mediante una escalera interna, visible en el extremo izquierdo. Las puertas del primer nivel tienen tablones de madera maciza, realzados por un sencillo travesaño abierto con detalles curvos de hierro forjado. A la derecha del edificio, casi oculta por una verja de hierro al otro lado de la calle, se observa una puerta más ancha de madera, utilizada antes como entrada de los antiguos carruajes. El terreno en la parte posterior de la casa está protegido por una verja de tela metálica con alambres de púas. El entorno urbano incluye árboles, un poste de luz con farol y automóviles estacionados en la calle. Los archivos históricos del Municipio de Ponce confirman la existencia de una edificación residencial en esa locación desde 1886; sin embargo, la propiedad existente data de principios del siglo XX. Para 1906, los propietarios contrataron los servicios del ingeniero civil Blas Silva para diseñar su nueva residencia y, aunque el proyecto final nunca se ejecutó, la mayoría de sus ideas se implementaron de forma más austera, dándole a la propiedad la apariencia que tendría en 1910, cuando se completaron las reformas de la residencia del siglo XIX. A partir de 1926, el edificio fue la sede del Club Nacionalista de Ponce y estuvo estrechamente vinculado a los hechos del 21 de marzo de 1937 conocidos como la Masacre de Ponce. Ese día, miembros y simpatizantes del Partido Nacionalista de Puerto Rico que participaban en un desfile conmemorativo de la abolición de la esclavitud y en protesta por el encarcelamiento de su dirigente enfrentaron resistencia por parte de la policía, bajo órdenes del entonces gobernador Blanton Winship, lo que provocó 19 muertos y alrededor de 200 heridos. La Casa de la Masacre fue el punto de concentración de los participantes y quedó marcada en la memoria colectiva como símbolo de este trágico episodio. En 1987, mediante la Resolución Conjunta 2951 de la Legislatura, la esquina donde se ubica la casa fue designada Zona Histórica y la casa pasó a manos del Instituto de Cultura Puertorriqueña, convirtiéndose posteriormente en el Museo de la Masacre.

Casa Alcaldía de Vieques - 2015 00003

Casa Alcaldía de Vieques - 2015 00003



Fachada de la Casa Alcaldía de Vieques, localizada frente a la calle Carlos LeBrun. Esta alcaldía está articulada por varias unidades volumétricas. Uno de los volúmenes es de un nivel y exhibe vanos rectangulares que integran puertas con lumbreras y hojas de vidrio, así como molduras sencillas y planas de ladrillo y estuco. También resalta una cornisa coronada con un parapeto. De manera parcial es visible parte del volumen de dos niveles con características similares al primer volumen y con un arco que acentúa la entrada y un balcón con balaustrada del que se alza una bandera. Entre estos volúmenes sobresale la torre del reloj, que se distingue por vanos emparejados y arqueados con lumbreras y detalles a relieve y almenados. Los relieves y detalles ornamentales de la torre combinan influencias medievales y normandas con algunos elementos del art déco. La superficie del edificio exhibe tonalidades de amarillo y anaranjado que contrastan con detalles de blanco. Frente al edificio se encuentran un par de automóviles y una persona. Este edificio presenta una adaptación vernacular con interpretaciones coloniales combinadas con el impacto de la arquitectura neoclásica que predominó, especialmente, en la transición del siglo XIX al XX. Su construcción inició aproximadamente en el año 1850 y culminó en 1903. En su origen, este edificio se construyó para albergar la residencia de Francisco Sainz, el alcalde de Vieques durante 1843 a 1852, al mismo tiempo que serviría de espacio para las funciones administrativas del municipio. El edificio estuvo a nombre de la familia Sainz hasta 1908, cuando su hija, doña Josefa Sebastián de la Trinidad Sainz, vendió la propiedad al municipio.

Casa Grande - Mayagüez - 2011 00037

Casa Grande - Mayagüez - 2011 00037



Fachada de la Casa Grande, localizada en Mayagüez. La casa tiene una base de mampostería con ojos de buey. También se distingue una escalera en el lateral que da acceso a la casa, un balcón o porche corrido con barandas de hierro, arcos de medio punto divididos por pilastras toscanas, un par de molduras y una cornisa sencilla coronada con parapeto. El edificio del lado es de color verde y tiene una puerta con cristales, una pilastra verde y una cornisa coronada con parapeto. Frente a la casa se ubica un poste de luz, un par de parquímetros y automóviles estacionados. Esta casa fue edificada en el 1890 y sus características son representativas del estilo arquitectónico neoclásico criollo. Su sólida construcción, mayormente de mampostería, resistió el terremoto de San Fermín ocurrido el 11 de octubre de 1918. Esta casa es históricamente importante porque también albergó la Sede de la Audiencia de Mayagüez y, tras el cambio de soberanía en 1898, pasó a manos privadas. Para 1901 fue la propiedad de don Guillermo Santos, quien la heredó a su hija, Isabel Santos Tió, casada con don Benigno Rodríguez Campoamor, el vicecónsul de España en Puerto Rico. En 1998, la administración municipal de Mayagüez adquirió esta casa y la restauró como museo, sala de exhibiciones, centro de presentación de obras literarias y para el desarrollo social y cultural de la ciudad. Desde entonces es conocida como la Casa Grande, Museo y Casa Cultural.

Condado Vanderbilt - San Juan (Condado) - 2013 00028

Condado Vanderbilt - San Juan (Condado) - 2013 00028



Vista del interior del Hotel Condado Vanderbilt ubicado en la avenida Ashford del pueblo costero de San Juan. El hotel es de varios niveles con características del estilo resurgimiento español. Los espacios interiores tienen los pisos de mármol en dos colores, techos abovedados, lámparas colgantes y puertas dobles de cristal bajo arcos semicirculares acompañados por cortinas de tela. El pasillo está decorado con bancos, cuadros decorativos y un espejo con un marco ornamental. El Hotel Condado Vanderbilt fue comisionado en 1917 por Frederick William Vanderbilt. Finalmente el 16 de octubre de 1919 fue inaugurado el primer gran hotel de lujo del Caribe. En el año 1930 fue vendido y pasó a llamarse Hotel Condado, posteriormente en 1940 se convirtió en el primer hotel en la isla en tener un casino. Además, en 1950 volvieron a cambiar su nombre a Condado Beach Hotel y se añadieron habitaciones, salones de actividades y un restaurante. Luego de considerar su demolición fue incluido en el Registro Nacional de Lugares Históricos en el año 1988. Más recientemente fue remodelado entre los años 2008 a 2014 por los arquitectos Thomas S. Marvel y José Marchand Sifre añadiendo dos torres de suites modernas. Además, la planificación y restauración de los espacios estuvo a cargo del Arquitecto Jonathan Parks y la firma SOLSTICE Planning and Architecture. Los diseños interiores estuvieron a cargo del diseñador Jorge Roselló.

Condado Vanderbilt - San Juan (Condado) - 2013 00095

Condado Vanderbilt - San Juan (Condado) - 2013 00095



Vista desde el patio de una de las torres laterales del Hotel Condado Vanderbilt ubicado en la avenida Ashford del pueblo costero de San Juan. El hotel es de varios niveles con características del estilo resurgimiento español. La torre se eleva once niveles, el primer nivel tiene un techo voladizo, amplios ventanales de cristal, puertas dobles de cristal y corredores modulados por columnas cuadradas. El resto de los niveles tiene ventanas dobles de cristal enmarcadas con molduras y balcones con balaustradas de cristal en el interior de los cuales hay puertas dobles de cristal enmarcadas con molduras. Por otra parte, el patio tiene el piso revestido por losas de cerámica y zonas ajardinadas. El Hotel Condado Vanderbilt fue comisionado en 1917 por Frederick William Vanderbilt. Finalmente el 16 de octubre de 1919 fue inaugurado el primer gran hotel de lujo del Caribe. En el año 1930 fue vendido y pasó a llamarse Hotel Condado, posteriormente en 1940 se convirtió en el primer hotel en la isla en tener un casino. Además, en 1950 volvieron a cambiar su nombre a Condado Beach Hotel y se añadieron habitaciones, salones de actividades y un restaurante. Luego de considerar su demolición fue incluido en el Registro Nacional de Lugares Históricos en el año 1988. Más recientemente fue remodelado entre los años 2008 a 2014 por los arquitectos Thomas S. Marvel y José Marchand Sifre añadiendo dos torres de suites modernas. Además, la planificación y restauración de los espacios estuvo a cargo del Arquitecto Jonathan Parks y la firma SOLSTICE Planning and Architecture. Los diseños interiores estuvieron a cargo del diseñador Jorge Roselló.

Residencia Rodríguez Cabrero (Casa Doña Bisa) - San Sebastián - 2007

Residencia Rodríguez Cabrero (Casa Doña Bisa) - San Sebastián - 2007



Residencia Rodríguez Cabrero también conocida como Casa Doña Bisa en San Sebastián. Vista parcial de una de las fachadas de la casa construida con hormigón armado en estilo paladiano. La construcción sobre podio tiene un pórtico accesible a través de una escalera central, cada lado de la escalera hay un óculo. El techo del pórtico tiene un friso ornamental. Sobre el pórtico hay un balcón cuyo techo tiene un frontón triangular. Las barandas y columnas del pórtico y del balcón se extienden en toda la fachada frontal y a los lados formando arcadas en ambos pisos. Las barandas son de hierro y las columnas redondas tienen pedestales cuadrangulares. Los capiteles de las columnas del primer piso son de orden toscano y los del segundo piso, de orden jónico. En el segundo piso hay remates en forma de florero sobre seis de los pedestales. En las paredes frontales hay puertas y ventanas de doble hoja con soles truncos y molduras en los arcos superiores. Las molduras de las dos puertas centrales tienen una clave ornamental cada una. La casa tiene una azotea con parapeto, sobre la parte frontal del parapeto hay otros seis remates en forma de florero. En medio de la azotea hay una habitación octagonal, su techo sobresale de la pared formando un alero. Tiene ventanas de madera con paneles de vidrio. Frente a la casa hay varios automóviles estacionados y cuatro hombres. La casa fue construida en 1914. En el 2008 fue adquirida por el municipio de San Sebastián, posteriormente fue restaurada y convertida en museo.

Casa Alcaldía de Vieques - 2015 00002

Casa Alcaldía de Vieques - 2015 00002



Fachada de la Casa Alcaldía de Vieques, localizada frente a la calle Carlos LeBrun. Esta alcaldía está articulada por varias unidades volumétricas. Uno de los volúmenes es de un nivel y exhibe vanos rectangulares que integran puertas con lumbreras y hojas de vidrio, así como molduras sencillas y planas de ladrillo y estuco. También resalta una cornisa coronada con un parapeto. De manera parcial es visible parte del volumen de dos niveles con características similares al primer volumen. Entre estos volúmenes sobresale la torre del reloj, que se distingue por vanos emparejados y arqueados con lumbreras y detalles a relieve y almenados. Los relieves y detalles ornamentales de la torre combinan influencias medievales y normandas con algunos elementos del art déco. La superficie del edificio exhibe tonalidades de amarillo y anaranjado que contrastan con detalles de blanco. Frente al edificio se encuentra un par de automóviles. Este edificio presenta una adaptación vernacular con interpretaciones coloniales combinadas con el impacto de la arquitectura neoclásica que predominó, especialmente, en la transición del siglo XIX al XX. Su construcción inició aproximadamente en el año 1850 y culminó en 1903. En su origen, este edificio se construyó para albergar la residencia de Francisco Sainz, el alcalde de Vieques durante 1843 a 1852, al mismo tiempo que serviría de espacio para las funciones administrativas del municipio. El edificio estuvo a nombre de la familia Sainz hasta 1908, cuando su hija, doña Josefa Sebastián de la Trinidad Sainz, vendió la propiedad al municipio.

Casa de la Masacre de Ponce - 05001098

Casa de la Masacre de Ponce - 05001098



Vista oblicua del edificio conocido como Casa de la Masacre, en Ponce. Se observa un edificio de dos niveles, con base de mampostería y un estilo de arquitectura vernácula criolla. Las paredes combinan mampostería y madera, y el techo es de metal galvanizado con una cornisa debajo del parapeto. El nivel superior cuenta con un balcón de madera continuo en forma de “L” que une ambas fachadas principales mediante una curva estilizada. Se observan una balaustrada de madera, columnas reforzadas con ménsulas metálicas que sostienen el techo y cinco puertas dobles de madera con paneles de celosía, rematadas con una cornisa y ménsulas de diseño elaborado. La planta baja presenta entradas comerciales, mientras que el nivel superior está destinado a vivienda y cuenta con acceso independiente mediante una escalera interna, visible en el extremo izquierdo. Las puertas del primer nivel tienen tablones de madera maciza, realzados por un sencillo travesaño abierto con detalles curvos de hierro forjado. La esquina posterior del primer nivel tiene una puerta ancha de madera que se utilizaba como entrada para los antiguos carruajes. El entorno es urbano, con árboles y automóviles estacionados en la calle. Los archivos históricos del Municipio de Ponce confirman la existencia de una edificación residencial en esa locación desde 1886; sin embargo, la propiedad existente data de principios del siglo XX. Para 1906, los propietarios contrataron los servicios del ingeniero civil Blas Silva para diseñar su nueva residencia y, aunque el proyecto final nunca se ejecutó, la mayoría de sus ideas se implementaron de forma más austera, dándole a la propiedad la apariencia que tendría en 1910, cuando se completaron las reformas de la residencia del siglo XIX. A partir de 1926, el edificio fue la sede del Club Nacionalista de Ponce y estuvo estrechamente vinculado a los hechos del 21 de marzo de 1937 conocidos como la Masacre de Ponce. Ese día, miembros y simpatizantes del Partido Nacionalista de Puerto Rico que participaban en un desfile conmemorativo de la abolición de la esclavitud y en protesta por el encarcelamiento de su dirigente enfrentaron resistencia por parte de la policía, bajo órdenes del entonces gobernador Blanton Winship, lo que provocó 19 muertos y alrededor de 200 heridos. La Casa de la Masacre fue el punto de concentración de los participantes y quedó marcada en la memoria colectiva como símbolo de este trágico episodio. En 1987, mediante la Resolución Conjunta 2951 de la Legislatura, la esquina donde se ubica la casa fue designada Zona Histórica y la casa pasó a manos del Instituto de Cultura Puertorriqueña, convirtiéndose posteriormente en el Museo de la Masacre.

Edificio Oliver - Arecibo - 2012 00015

Edificio Oliver - Arecibo - 2012 00015



Vista lateral del edificio Oliver en el pueblo costero de Arecibo. En primer plano, se divisa una cerca de concreto con rejas metálicas y vehículos estacionados en la calle. El edificio es de tres niveles con características del estilo neoclásico en concreto armado. La fachada lateral se divide en varios tramos horizontalmente, la planta base y dos plantas superiores. La planta base tiene entradas bajo arcos semicirculares enmarcados con molduras. Además, los arcos están cubiertos por rejas metálicas. El segundo y tercer nivel tienen puertas dobles de madera y ventanas con persianas rectangulares con marcos planos. Las puertas conducen a un balcón con balaustres sostenidos por ménsulas decorativas. Tiene balcones de un tramo con esquinas redondeadas y balcones de dos tramos rectangulares. Flanqueando los balcones hay pilastras acanaladas compuestas sostenidas por una cornisa corrida y bajo las cuales se encuentra una serie de cabezas de leones en relieve. Sobre el edificio se divisa una balaustrada decorada con ánforas romanas. Por otra parte, al extremo derecho hay un edificio adosado con tejas y una abertura presidida por una baranda metálica y una cortina de tela. También se puede ver un extremo de un letrero. El edificio Oliver fue construido en 1914 con fines comerciales y residenciales. Está cimentado en el mismo lugar que en 1765 el gobierno español construyó la Casa del Rey hasta 1913 cuando fue demolida. Este innovador edificio fue el primero en incorporar espacios de vivienda y establecimiento comercial. También fue el primer edificio construido en el pueblo con una entrada achaflanada. Además, su diseño ricamente ornamentado adopta características de la Escuela de Bellas Artes y el estilo tradicional español. A través de los años ha sido utilizado cómo espacio residencial, comercial y sede de varios consulados extranjeros que ocupaban el primer nivel. Fue restaurado en la década de 1980 y todos los espacios asignados para vivienda se convirtieron en espacios comerciales.

Archivo General - Antiguo Hospital Civil - San Juan (Puerta de Tierra) - 2010 00036

Archivo General - Antiguo Hospital Civil - San Juan (Puerta de Tierra) - 2010 00036



Vista desde el interior del del Archivo General y Biblioteca Nacional de Puerto Rico ubicado en la comunidad de Puerta de Tierra del pueblo costero de San Juan. El edificio es de tres niveles con características del estilo neoclásico. Desde el interior se puede ver un dibujo arquitectónico sobre un atril metálico. El dibujo muestra la fachada frontal del edificio, el primer nivel tiene zonas estriadas además, tiene ventanas dobles bajo arcos de medio punto enmarcados con molduras planas. Las del segundo nivel están coronadas con espinazos y al pie tienen molduras salientes a modo de soporte. Modulando las ventanas hay pilastras que sostienen una cornisa corrida que separa los niveles y a su vez se alzan y sostienen el entablamento del segundo nivel sobre el cual se proyecta un parapeto bajo. La fachada frontal tiene la entrada a través de una puerta doble de bajo un arco de medio punto enmarcado con molduras planas. Sobre esta hay una ventana como las demás presidida por un antepecho y flanqueada por columnas pares de órden dórico que a su vez sostienen un frontón triangular. Coronando el edificio hay una cúpula coronada con una linterna y una cruz. También se ve en la parte superior derecha un logo del Instituto de Cultura Puertorriqueña. El antiguo Hospital Civil fue el último edificio erigido por el gobierno Español en la Isla entre los años 1877-1887. A pesar de que fue construido como hospital fue utilizado como Cárcel provincial y posteriormente como destilería. Años más tarde, ante una amenaza de demolición el Instituto de Cultura Puertorriqueña lo adquirió y lo restauró para albergar documentos históricos. A partir del año 1973 trasladaron el Archivo General y la Biblioteca Nacional de Puerto Rico a este espacio. Además, el edificio fue incluido en el Registro Nacional de Lugares Históricos en el año 1976.

Edificios en Miramar - San Juan (Miramar) - 2011 00012

Edificios en Miramar - San Juan (Miramar) - 2011 00012



Detalle del volumen circular y el garaje de de un conjunto arquitectónico compuesto de tres casas en la calle Unión 659, en Miramar, San Juan. Este conjunto de casas fue diseñado en el estilo resurgimiento español. Su composición consiste de paredes de hormigón armado y techo de madera y cinc. El volumen circular se distingue por las pilastras jónicas de fustes acanalados o estriados, las molduras y las ventanas tipo persianas protegidas con rejas ornamentales. El garaje tiene cubierta plana y dentro de ese espacio se encuentran varios objetos como mochilas y bolsos. En un extremo se ubica un muro coronado con reja, el cual funciona como una cerca que separa la casa de su entorno inmediato. La superficie está pintada de tonalidades de azul que contrastan con detalles de blanco. Las tres casas se construyeron como un conjunto arquitectónico único entre los solares que originalmente, en el 1903, eran los números 180 y 182. En 1908, el solar 180 fue adquirido por el obispo William Jones, mientras que en el año 1907 el 182 fue adquirido por Salvador Nicolau. Posteriormente, los solares se agruparon y se construyeron tres casas para las hermanas González Padín. Para el 1920, luego de ser segregadas en tres propiedades, fueron ocupadas por las familias de Manuel Suárez Acevedo, Augusto Ferrer Cotte y Antonio Lema Cuervo. Un elemento distintivo de estas tres casas es que aparenta ser una construcción o gran casona palaciega.

Teatro La Perla

Teatro La Perla



Dibujo arquitectónico del Teatro La Perla ubicado entre las calles Mayor Cantera y Cristina del pueblo costero de Ponce. El edificio es de dos niveles con características del estilo neoclásico italiano. En el primer nivel, la fachada tiene ventanas dobles enmarcadas con molduras planas. Dividiendo los niveles hay una moldura y una cornisa corrida. Por su parte, el segundo nivel tiene puertas dobles de madera enmarcadas con molduras, presididas por antepechos y coronadas con entablamentos que a su vez están sostenidos por ménsulas. En medio se proyecta un pórtico presidido por escaleras y sostenido por seis columnas de orden corintio. En el interior de este se pueden ver puertas y ventanas dobles enmarcadas con molduras. Además, el borde superior del edificio está acompañado por un entablamento corrido con molduras, cornisas, dentículos o mútulos. Sobre este se alza un parapeto bajo en donde hay un frontón escalonado. En adición, en el borde superior derecho hay un logo que dice: “PRHBDS”. El Teatro La Perla data de 1864 convirtiéndose en el segundo teatro más antiguo de Puerto Rico. Tras el terremoto de 1918 y posteriormente un incendio en 1924 el edificio tuvo que ser restaurado con el diseño de Francisco Porrata Doria y Francisco Gardón. A pesar de que el diseño de la fachada exterior permaneció igual, el interior fue modificado y mejorado. Años más tarde, en 1990 volvió a ser restaurado. De igual forma, tras el paso del huracán María en el año 2017 y los terremotos ocurridos en el año 2020 el edificio se vio afectado.

Catedral de Nuestra Señora de la Guadalupe - Ponce - 2014 00002

Catedral de Nuestra Señora de la Guadalupe - Ponce - 2014 00002



Vista lateral y trasera de la Catedral de Nuestra Señora de la Guadalupe ubicada en el pueblo costero de Ponce. La catedral es de dos niveles en mampostería y ladrillo con características del estilo Neoclásico. Justo detrás de la catedral se ve el antiguo Parque de Bombas de Ponce distinguido por su diseño policromado de madera y techo de láminas de metal corrugado. Ahora bien, la fachada lateral de la catedral tiene contrafuertes, ventanas cubiertas por tormenteras y un entablamento corrido sobre el cual descansa un parapeto bajo. Además, hay dos cúpulas esféricas coronadas con linternas. Por otra parte, flanqueando la catedral hay dos torres de campanario divididas en tres tramos. Son de bases cuadradas, el segundo nivel tiene vanos cuadrados enmarcados con molduras salientes, coronados con entablamentos semicirculares y presididos por balaustradas. El tercer tramo muestra ventanas dobles de madera bajo arcos semicirculares que a su vez están enmarcados con molduras, coronados con espinazos y entablamentos. En adición, están flanqueados por pares de columnas acanaladas que sostienen los entablamento. Los siguientes tramos de las torres son hexagonales y están decorados con cornisas, molduras, frisos con guirnaldas y ánforas. De la misma manera, las cúpulas muestran óculos de vidrio pintados enmarcados con molduras. A su vez, las cúpulas están coronadas con linternas de aberturas semicirculares y cruces. En los alrededores también se distinguen vehículos estacionados. Los inicios de la Catedral de Nuestra Señora de la Guadalupe datan de 1670 cuando apenas era una ermita de yagua y palma, fue clausurada en 1820 por las malas condiciones del edificio. El comienzo de la construcción de la iglesia actual data de 1835 y fue inaugurada en 1839. Sin embargo, el terremoto de 1918 destruyó ambas torres por lo que pasó a ser reconstruida con un diseño nuevo entre 1918 y 1937. Años más tarde, en 1984 fue incluida en el Registro Nacional de Lugares Históricos. Posteriormente fue restaurada nuevamente en 1992.

Calle de la Fortaleza 61 - Iglesia Presbiteriana Hugh O’Neill Memorial - San Juan (Viejo San Juan) - 2015 00013

Calle de la Fortaleza 61 - Iglesia Presbiteriana Hugh O’Neill Memorial - San Juan (Viejo San Juan) - 2015 00013



Iglesia Presbiteriana Hugh O’Neill Memorial en el Viejo San Juan. Vista, desde el segundo piso del edificio aledaño, del patio interior de la iglesia de un piso estilo colonial español. A un lado se ve parte de la pared de la nave de la iglesia. La pared tiene una arcada, los dos arcos visibles tienen puertas de dos paneles en cada lado, las puertas tienen ventanillas y están abiertas. Los arcos tienen montantes con paneles de vidrio. A los lados del arco central hay dos lámparas de pared. A través de una de las entradas se ve parte del piso de la nave que tiene losetas con motivo ajedrezado. La otra entrada a la nave tiene una rampa. Se pueden ver las ventanas en la parte superior de la pared, cercanas al techo. Además se ve la cornisa del edificio. El piso del patio tiene losetas color terracota. Al fondo se ve la pared posterior del anexo lateral de la iglesia, ocupado por la oficina. Hay un arco rebajado que tiene una puerta, paneles laterales con ventanas y un montante con paneles de vidrio. Una pequeña rampa facilita el acceso al patio hundido. La puerta está abierta. En una de las esquinas hay un tiesto con una planta ornamental. El piso tiene losetas color terracota. Este anexo es de menor altura que la nave de la iglesia y en su techo se pueden ver equipos de los acondicionadores de aire. Tras los equipos se divisan partes de las fachadas de la Antigua Real Audiencia y del Palacio Rojo.

Molino de viento (1827) - Hacienda Santa Ana - 2011 00012

Molino de viento (1827) - Hacienda Santa Ana - 2011 00012



Hacienda Santa Ana en Bayamón. Vista de la torre del antiguo molino de viento de la Hacienda. Este molino construido con ladrillos, y mejor conocido como trapiche, data de 1827 y es uno de los más antiguos en la isla. Se observa una torre redonda de ladrillos con una escalera de ladrillos y piedras. La escalera tiene dos pasamanos de tubos que conducen a la entrada principal en forma de arco de medio punto en el segundo nivel. Sobre el arco hay un óculo de cemento color blanco incrustado en la pared. La entrada cuenta con una puerta de madera de doble hoja con montante de sol trunco. Además, se puede ver otra escalera de piedras y una segunda puerta de madera en la pared lateral. En el tope de la torre hay un parapeto con diseño almenado desde donde bajan manchas de humedad u hollín, una pequeña antena, un cable eléctrico y una lámpara. También puede observar un equipo de aire acondicionado en el patio posiblemente porque esta torre fue acondicionada para utilizarse como oficina. Detrás de la torre hay un área con árboles. La Casona de la Hacienda Santa Ana reside en terrenos conferidos en 1787 por el rey Carlos III al capitán Fernando Fernández, corsario español que rendía servicios a la corona. A partir de 1804, el capitán comenzó a sembrar caña de azúcar y a destilar ron en la propiedad para su uso personal, pero no fue hasta 1880 cuando su bisnieto Pedro Fernández y su hijo Edmundo desarrollaron la fórmula y el proceso de destilación del conocido Ron del Barrilito. Además de la casona, la Hacienda abarca la tonelería, el trapiche, el área de añejamiento y el área de embotellamiento y empaque. Estas instalaciones, que también sirven como museo, continúan produciendo el popular ron, así como el alcoholado medicinal Santa Ana.

Condado Vanderbilt - San Juan (Condado) - 2013 00146

Condado Vanderbilt - San Juan (Condado) - 2013 00146



Vista de los espacios interiores del Hotel Condado Vanderbilt ubicado en la avenida Ashford del pueblo costero de San Juan. El hotel es de varios niveles y características del estilo resurgimiento español. Por otra parte, el interior del baño está revestido de mármol. La pared del extremo derecho es de madera y cristal en cuadrados. Además, la pared del extremo izquierdo está presidida por puertas de madera formando cubículos. Además, el corredor está acompañado por lámparas colgantes de vidrio pintado. El Hotel Condado Vanderbilt fue comisionado en 1917 por Frederick William Vanderbilt. Finalmente el 16 de octubre de 1919 fue inaugurado el primer gran hotel de lujo del Caribe. En el año 1930 fue vendido y pasó a llamarse Hotel Condado, posteriormente en 1940 se convirtió en el primer hotel en la isla en tener un casino. Además, en 1950 volvieron a cambiar su nombre a Condado Beach Hotel y se añadieron habitaciones, salones de actividades y un restaurante. Luego de considerar su demolición fue incluido en el Registro Nacional de Lugares Históricos en el año 1988. Más recientemente fue remodelado entre los años 2008 a 2014 por los arquitectos Thomas S. Marvel y José Marchand Sifre añadiendo dos torres de suites modernas. Además, la planificación y restauración de los espacios estuvo a cargo del Arquitecto Jonathan Parks y la firma SOLSTICE Planning and Architecture. Los diseños interiores estuvieron a cargo del diseñador Jorge Roselló.

Calle de la Fortaleza 56 - Antigua Real Audiencia - Conservatorio De Artes Del Caribe - San Juan (Viejo San Juan) - 2011

Calle de la Fortaleza 56 - Antigua Real Audiencia - Conservatorio De Artes Del Caribe - San Juan (Viejo San Juan) - 2011



Antigua Real Audiencia, calle de la Fortaleza en el Viejo San Juan. Vista del patio interior de la casa de dos pisos estilo colonial español. Se observa el brocal de un pozo tiene forma poligonal y está construido con ladrillos delgados acomodados verticalmente. En el suelo tiene un borde que sobresale las paredes y otro, más delgado que el primero, en el tope. Además tiene un arcón de metal ornamentado con volutas. Tras el pozo se ven una pared con un arco ciego en su segundo nivel y dos plantas en tiestos. Se observa un segmento de la pared perpendicular a la de fondo que tiene un arco en el primer piso y un arco con balaustrada en el segundo piso. El piso del patio tiene losetas con textura de piedra. Originalmente esta casa fue la residencia del Dr. Francisco Oller y Ferrer, abuelo del pintor Francisco Oller y Cestero. En 1831 fue vendida al Estado y el 1832 pasó a ser la primera sede de la Real Audiencia Territorial. Alrededor del 1898 fue arrendada al Departamento de Agricultura de Estados Unidos y en otro momento se usó como Departamento de Estado. En 1992 la edificación fue dedicada a Don Fernando Chardón. Luego de un periodo de abandono fue restaurada en el año 2000 y asignada a las oficinas de Guías Turísticos y de Programas Federales adscritos a la Oficina del Gobernador. La Torre Meteorológica y de Observación fue diseñada por el ingeniero Manuel Maese, la orden para su construcción fue emitida en 1883.

Casa Grande - Mayagüez - 2011 00007

Casa Grande - Mayagüez - 2011 00007



Perspectiva de la sala de recepción en la Casa Grande, localizada en Mayagüez. Este espacio se distingue por tener el piso y el techo de madera, una lámpara tipo araña y una moldura blanca. Las puertas son de madera con doble hoja e integran paneles, vidrios y rejas. La sala está amueblada con sillas y mesas de estilo isabelino, en madera, ratán con las patas torneadas similares a un balaustre. Sobre las mesas se ubican varios floreros y candelabros. En la pared cuelgan cinco pinturas del género retrato. También son visibles varias personas en la sala. Esta casa fue edificada en el 1890 y sus características son representativas del estilo arquitectónico neoclásico criollo. Su sólida construcción, mayormente de mampostería, resistió el terremoto de San Fermín ocurrido el 11 de octubre de 1918. Esta casa es históricamente importante porque también albergó la Sede de la Audiencia de Mayagüez y, tras el cambio de soberanía en 1898, pasó a manos privadas. En 1901 fue la propiedad de don Guillermo Santos, quien la heredó a su hija, Isabel Santos Tió, casada con don Benigno Rodríguez Campoamor, el vicecónsul de España en Puerto Rico. En 1998, la administración municipal de Mayagüez adquirió esta casa y la restauró como museo, sala de exhibiciones, centro de presentación de obras literarias y para el desarrollo social y cultural de la ciudad. Desde entonces es conocida como la Casa Grande, Museo y Casa Cultural.

Iglesia de San Jorge - San Juan (Condado) - 2014 00045

Iglesia de San Jorge - San Juan (Condado) - 2014 00045



Vista de la fachada frontal de la Parroquia San Jorge ubicada en la comunidad de Condado del pueblo costero de San Juan. La iglesia es de dos niveles en hormigón con características del estilo neogótico pintada de color gris y color blanco. La entrada está bajo un arco ojival en derrame, enmarcado y decorado con esculturas figurativas. El arco ojival tiene arquivoltas de pequeños santos tallados. Además, sobre el arco también se pueden ver más estatuas talladas de mayor tamaño dentro de nichos ornamentados que a su vez están revestidos por una malla de tela. Por otra parte, se ve un extremo de un rosetón enmarcado y un nicho sobre una ménsula ornamentada. Al extremo derecho se alza la torre del campanario, tiene forma piramidal y está coronada con una cruz metálica. Además, tiene ventanas bajo arcos ojivales decorados con cresterías, vierteaguas y parteluces. Sobre las ventanas se ven ornamentación en bajorrelieve, gárgolas y a los lados contrafuertes que se extienden y a su vez sostienen pináculos con detalles ornamentales. La iglesia San Jorge fue inaugurada en el año 1920 siendo oficialmente fundada canónicamente en 1924 tras ser desmembrada de las Parroquias San Mateo y Sagrado Corazón. Su diseño inicial estuvo a cargo de la firma Martínez y Lázaro siendo finalizado en dos años. Seis años después se comienza la construcción de los edificios aledaños a la academia San Jorge. Posteriormente en 1940 la fachada fue remodelada por el arquitecto Rafael Carmoega. Más recientemente en el año 2017 fue restaurada en fases por la firma Astrid Díaz: ADV Architects.

Condado Vanderbilt - San Juan (Condado) - 2013 00026

Condado Vanderbilt - San Juan (Condado) - 2013 00026



Vista del interior del Hotel Condado Vanderbilt ubicado en la avenida Ashford del pueblo costero de San Juan. El hotel es de varios niveles con características del estilo resurgimiento español. El vestíbulo tiene dos niveles con pasillos laterales que tienen los pisos de mármol en dos colores, techos abovedados, lámparas colgantes, lámparas de pared a juego y puertas dobles de cristal bajo arcos semicirculares. Los espacios están divididos por arcos semicirculares con balaustradas de hierro ornamental y pasamanos de madera. Se ven sillas de madera y al fondo una puerta de madera y cristal bajo un arco semicircular. El Hotel Condado Vanderbilt fue comisionado en 1917 por Frederick William Vanderbilt. Finalmente el 16 de octubre de 1919 fue inaugurado el primer gran hotel de lujo del Caribe. En el año 1930 fue vendido y pasó a llamarse Hotel Condado, posteriormente en 1940 se convirtió en el primer hotel en la isla en tener un casino. Además, en 1950 volvieron a cambiar su nombre a Condado Beach Hotel y se añadieron habitaciones, salones de actividades y un restaurante. Luego de considerar su demolición fue incluido en el Registro Nacional de Lugares Históricos en el año 1988. Más recientemente fue remodelado entre los años 2008 a 2014 por los arquitectos Thomas S. Marvel y José Marchand Sifre añadiendo dos torres de suites modernas. Además, la planificación y restauración de los espacios estuvo a cargo del Arquitecto Jonathan Parks y la firma SOLSTICE Planning and Architecture. Los diseños interiores estuvieron a cargo del diseñador Jorge Roselló.

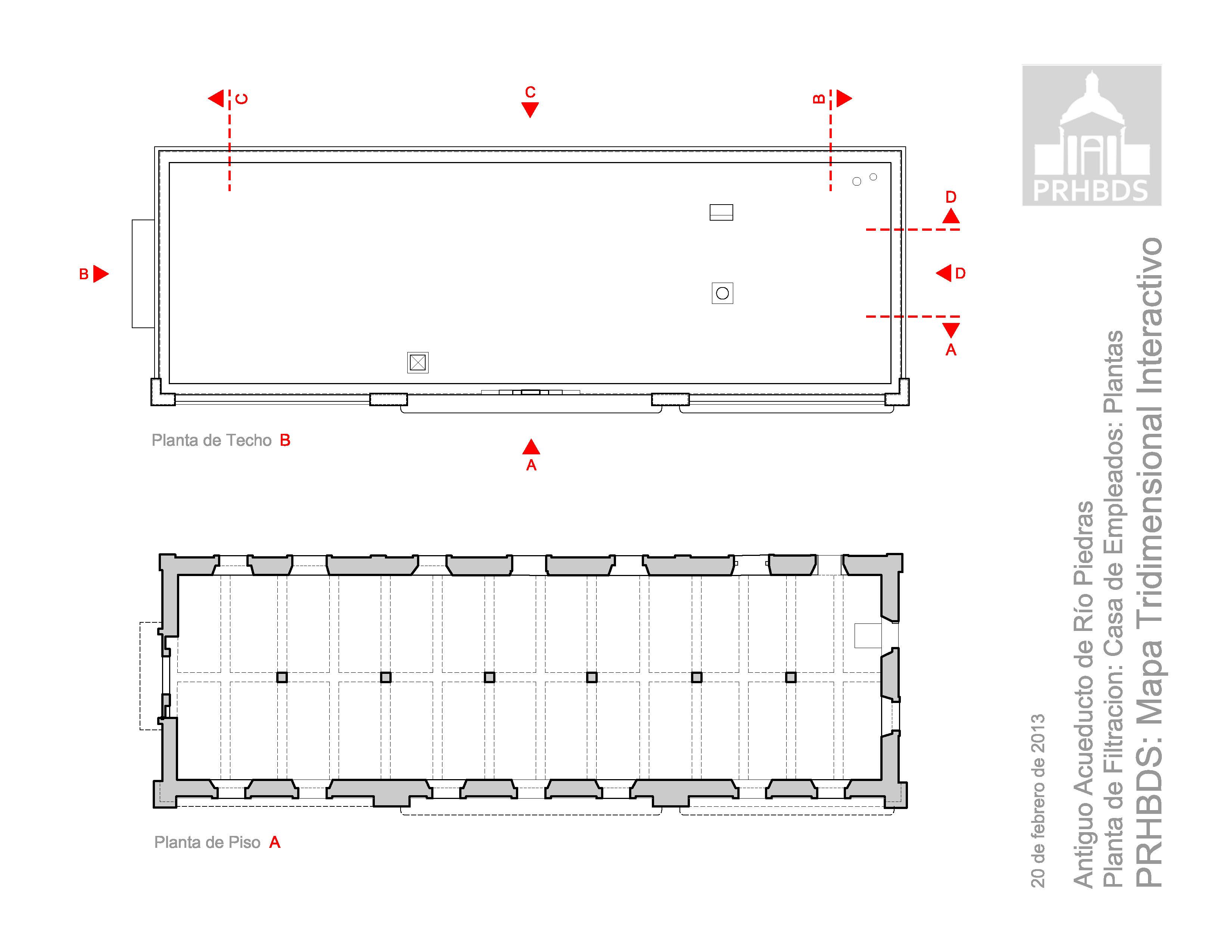
Antiguo Acueducto de Río Piedras - Documentación Aérea - San Juan (Río Piedras) - 2013 00005

Antiguo Acueducto de Río Piedras - Documentación Aérea - San Juan (Río Piedras) - 2013 00005



Vista aérea del sitio del antiguo acueducto de Río Piedras, en San Juan. Este conjunto de edificios refleja los estilos arquitectónicos de la historia del sitio. Por ejemplo, la casa de bombeo presenta características del estilo colonial español, mientras que la casa del superintendente y del servicio doméstico exhiben rasgos del estilo bungaló y art déco respectivamente. La casa de bombeo es un edificio de mampostería de piedra caliza y ladrillo enyesado, de un piso y con cubierta a dos aguas con paneles de metal corrugado o cinc, diseñado en 1892 por Henry Thomas Granger. Este edificio albergaba tres funciones, entre estas, servir como la casa de máquinas, la casa de calderas y el almacenamiento de carbón. Una chimenea de ladrillo con forma cónica octogonal de una altura de 80 pies con elementos neoclásicos se encuentra en la elevación este de la casa de bombeo. Seguidamente, es visible la casa de filtros y bombas que consiste en un edificio de un piso y techo plano con forma de "L", con arcos de medio punto y una entrada rectangular. Esta casa de filtros y bombas fue diseñada por Carlos del Valle Zeno y construida en 1923 en sustitución de un edificio de madera previo. Cada arco señala el lugar donde se encontraban los filtros mecánicos. A su lado, se encuentra la residencia de ingenieros y cuidadores diseñada por Fernando Alameda en 1887. Su construcción tuvo lugar entre 1892 y 1894 y se emplearon materiales como la piedra caliza y mampostería. Este edificio, de estilo colonial español, es de una planta rectangular, de un solo piso y una cubierta plana. Además, exhibe vanos arqueados y rectangulares protegidos con aleros y una cornisa coronada con un parapeto. Después de 1923 el edificio fue alterado para acomodar nuevos usos, entre estos, funcionó como almacén y posteriormente como laboratorio de calidad del agua desde 1923-1980. Detrás de la casa de bombeo se encuentra un conjunto de edificios de dos pisos correspondientes a la casa del superintendente y la casa del personal de servicio doméstico. La casa del superintendente es un edificio de hormigón pintado de azul con cubierta plana y además exhibe un porche, columnas de mampostería, una escalera lateral, ventanas rectangulares y vanos arqueados. El otro edificio del servicio doméstico presenta un color amarillo y también es de dos niveles y exhibe elementos art déco simplificados y notables mediante las líneas rectas, el uso de bloques de vidrio y bloques ornamentales. Estos dos edificios están unidos por un garaje pequeño de un piso con techo plano. Ambos edificios fueron diseñados por el ingeniero Carlos de Valle Zeno. Al fondo son visibles los edificios del Jardín Botánico de Río Piedras, entre estos el edificio de la Administración Central de la Universidad de Puerto Rico. La planificación del histórico Acueducto de Río Piedras inició en 1846 mediante una serie de propuestas y su construcción inició a partir de 1892 con periodos de construcción adicionales que continuaron hacia el temprano siglo XX. La planta operó desde el tardío siglo XIX hasta la década de 1980. El sitio ha estado vacante desde 1980 y es propiedad del Fideicomiso de Conservación de Puerto Rico y está dirigido por la organización local sin fines de lucro "Para La Naturaleza" que utiliza el sitio para actividades de educación ambiental.

Ateneo Puertorriqueño - San Juan (Viejo San Juan) - 2010 00002

Ateneo Puertorriqueño - San Juan (Viejo San Juan) - 2010 00002



El Ateneo Puertorriqueño localizado en el barrio Puerta de Tierra en el Viejo San Juan. Fue fundado en 1876 y construido por el ingeniero Ramón Carbia Burt en 1923. Es la institución cultural más antigua de Puerto Rico, también se le conoce como "la Docta Casa". Su estilo arquitectónico es representativo del neoárabe. Fue nominado para el Registro Nacional de Lugares Históricos en 1984. Está pintado de color blanco y terracota. Se observa que la parte superior de la fachada tiene un alero cubierto con tejas sostenido por ménsulas de madera. También tiene siete arcos polilobulados interrumpidos por ocho pilastras que tienen azulejos en la parte superior. En la parte inferior de la fachada resaltan seis pilastras que sostienen un arco semicircular y entablamento cubierto de azulejos con motivos florales. El vano de la puerta tiene escrito en la parte superior "Ateneo Puertorriqueño". En ambos extremos de las pilastras se aprecian frisos en altos relieves con representaciones de figuras humanas que fueron esculpidos por el artista italiano Arrighini. Frente a la entrada hay unas escalinatas y farolas. El edificio también tiene ventanas de cristal con marcos de madera abisagradas y una ornamentación en forma de antorcha en la esquina superior del lado derecho de la imagen. En los alrededores se ven árboles, arbustos, una palma, una decoración alusiva a los tres Reyes Magos, una asta, grama y un letrero de tránsito. Posteriormente el Ateneo Puertorriqueño se dedicó a fomentar el teatro, música, cine, literatura, historia, ciencias, ciencias morales y políticas y las artes plásticas puertorriqueñas.

Antiguo Acueducto de Río Piedras - Documentación Aérea - San Juan (Río Piedras) - 2013 00006

Antiguo Acueducto de Río Piedras - Documentación Aérea - San Juan (Río Piedras) - 2013 00006



Vista aérea de la casa de filtros y bombas y la residencia de ingenieros y cuidadores que forman parte del sitio del antiguo acueducto de Río Piedras, en San Juan. Este conjunto de edificios refleja los estilos arquitectónicos de la historia del sitio, entre estos el colonial español, renacimiento clásico y neoclásico. La casa de filtros y bombas es un edificio de hormigón armado, de un nivel con forma de "L" y cubierta plana. Además, se distingue por los vanos arqueados y rectangulares, una cornisa y un parapeto. Este edificio fue diseñado por Carlos del Valle Zeno y construido en 1923 en sustitución de un edificio de madera previo. Al lado, se ubica la residencia de ingenieros y cuidadores diseñada por Fernando Alameda en 1887. Su construcción tuvo lugar entre 1892 y 1894 y se emplearon materiales como la piedra caliza y mampostería. Este edificio, de estilo colonial español, es de una planta rectangular, de un solo piso y una cubierta plana. Además, exhibe vanos arqueados y una cornisa coronada con un parapeto. Desde 1923 a 1980, el edificio fue alterado para acomodar nuevos usos, entre estos, funcionó como almacén y posteriormente como laboratorio de calidad del agua. De manera parcial es visible el cuerpo de una chimenea de ladrillo con forma cónica octogonal de una altura de 80 pies con elementos neoclásicos. Esta chimenea se encuentra en la elevación este de la casa de bombeo diseñada en 1892 por Henry Thomas Granger. La planificación del histórico Acueducto de Río Piedras inició en 1846 mediante una serie de propuestas y su construcción inició a partir de 1892 con periodos de construcción adicionales que continuaron hacia el temprano siglo XX. Este acueducto fue el primero de la ciudad de San Juan. La planta operó desde el tardío siglo XIX hasta la década de 1980. El sitio ha estado vacante desde 1980 y es propiedad del Fideicomiso de Conservación de Puerto Rico y está dirigido por la organización local sin fines de lucro "Para La Naturaleza" que utiliza el sitio para actividades de educación ambiental.

Casa Agustín Stahl - 10001216

Casa Agustín Stahl - 10001216



Vista oblicua de la Casa Dr. Agustín Stahl Stamm, también conocida como Casa Agustín Stahl, ubicada en Bayamón. Se observa un edificio de una planta, con fachada de composición simétrica y elementos decorativos tradicionales estilo neoclásico. El volumen principal tiene muros de mampostería color blanco y presenta tres vanos verticales protegidos por rejas metálicas en los laterales y un portón en el centro. Tiene puertas de doble hoja de madera con paneles sólidos en la parte inferior, celosías en la parte central y paneles de vidrio en la parte superior. Cada vano está enmarcado por una moldura rectangular color azul, con cornisas molduradas en la parte superior. A ambos lados del acceso principal tiene faroles de pared sostenidos por brazos de metal forjado. En la parte superior central hay un rótulo pequeño que lee: "Baya, Empresas". La fachada cuenta con una cornisa que se extiende por toda la longitud, justo debajo de un parapeto con líneas rectas y molduras sencillas. La fachada lateral cuenta con vanos rectangulares y molduras sencillas que recorren la parte superior e inferior. A la izquierda, hay un acceso lateral con portón metálico de barras verticales y jardineras integradas. En primer plano está la acera y dos automóviles estacionados, mientras que en la parte posterior y lateral se aprecian árboles y otros edificios adyacentes. La Casa Dr. Agustín Stahl Stamm fue construida en la década de 1840 y sirvió como residencia, consultorio médico y laboratorio del científico Dr. Agustín Stahl Stamm desde 1865 hasta su muerte en 1917. Considerado el científico puertorriqueño más destacado del siglo XIX, realizó aportaciones importantes en las áreas de botánica, zoología, medicina, arqueología, etnología y antropología, siendo reconocido internacionalmente por su estudio de la flora y fauna del Caribe. Sus colecciones fueron adquiridas por instituciones como el Smithsonian, el Jardín Botánico de Berlín y Harvard University. La casa, que permaneció en manos de la familia hasta la década de 1970, conserva una gran integridad arquitectónica. En el año 2000 el edificio pasó a ser propiedad del municipio de Bayamón y, tras una restauración parcial, fue convertido en un museo.

Bastión de las Palmas de San José - San Juan (Viejo San Juan) - 2013 00003

Bastión de las Palmas de San José - San Juan (Viejo San Juan) - 2013 00003



Bastión de las Palmas de San José, localizado en la esquina de las calles Tetuán y San José en el Viejo San Juan. Fue construido en el siglo XVII, en 1625 luego del ataque holandés al Viejo San Juan. La imagen fue tomada en la noche y en ella se aprecia una plaza con barandas, cuatro banquetas, personas, árboles y una muralla de mampostería en piedra. Posteriormente el Bastión de las Palmas de San José fue un parque. De igual forma se observa la parte posterior de la Capilla del Santo Cristo de Salud, también conocida como la Capilla del Cristo. Fue construida en 1753 por el arquitecto e ingeniero militar Juan Francisco Mestre. La capilla tiene rasgos característicos del estilo arquitectónico mudéjar. Está construida en ladrillo y mampostería. En el lado izquierdo se ve parcialmente la fachada lateral del antiguo Hospital de la Concepción, que posteriormente pasó a ser el Convento y Casa de Salud Siervas de María. El edificio está pintado de color crema y blanco. Tiene parapetos, cornisas y vanos de ventanas. También se aprecia el techo de la antigua cárcel La Princesa. El edificio tiene parapetos y molduras blancas. Se construyó en 1837 y fue utilizado como cárcel hasta 1976 cuando fue cerrado por problemas estructurales. En 1992 el gobierno de Puerto Rico la restauró para ser la sede de la Compañía de Turismo de Puerto Rico. Esta restauración estuvo a cargo del arquitecto Miguel Carlo. A distancia se encuentra la bahía de San Juan y la costa del municipio de Toa Baja.

Hacienda Santa Ana - Bayamón - 2011 00009

Hacienda Santa Ana - Bayamón - 2011 00009



Hacienda Santa Ana en Bayamón. Vista de la fachada principal de la casona de la Hacienda. Se observa un edificio de dos niveles construido en mampostería de ladrillos con un estilo arquitectónico ecléctico. En el frente tiene una gran escalera de escalones curvos y parapetos lisos, más ancha abajo que arriba, lo que la hace lucir como un abanico invertido. La escalera conduce al pórtico ubicado en el segundo piso. Este tiene cuatro columnas gruesas con capiteles cuadrangulares y techo curvo. Detrás de la escalera y el pórtico se observan arcadas que se extienden a lo ancho de toda la fachada, en ambos pisos. Los arcos del primer piso tienen pilares cuadrangulares lisos, mientras que los del segundo piso tienen columnas con capiteles cuadrangulares. El pórtico tiene un portón de rejas de hierro. La arcada del segundo piso tiene barandas de hierro y sobre éstas hay una cornisa. La casa está pintada de color crema con las columnas blancas y la escalera color terracota. Se observa que la pintura está deteriorada. El patio muestra un área con grama verde al frente y pavimento a los lados. Se avista un vehículo estacionado a un lado de la escalera. La Casona de la Hacienda Santa Ana reside en terrenos conferidos en 1787 por el rey Carlos III al capitán Fernando Fernández, corsario español que rendía servicios a la corona. A partir de 1804, el capitán comenzó a sembrar caña de azúcar y a destilar ron en la propiedad para su uso personal, pero no fue hasta 1880 cuando su bisnieto Pedro Fernández y su hijo Edmundo desarrollaron la fórmula y el proceso de destilación del conocido Ron del Barrilito. Además de la casona, la Hacienda abarca la tonelería, el trapiche, el área de añejamiento, el área de embotellamiento y empaque. Estas instalaciones, que también sirven como museo, continúan produciendo el popular ron, así como el alcoholado medicinal Santa Ana.

Casa de la Masacre de Ponce - 05001098

Casa de la Masacre de Ponce - 05001098



Vista oblicua del edificio conocido como Casa de la Masacre, en Ponce. Se observa un edificio de dos niveles con base de mampostería y un estilo de arquitectura vernácula criolla. En el segundo piso se observa una galería cerrada con celosías de madera y pequeñas ventanas de vidrio en la parte superior. Un balcón techado, con una baranda de balaustres de madera sostenida por ménsulas metálicas en forma de espiral y por vigas de madera, sobresale del edificio. El balcón tiene dos puertas dobles de madera con paneles de celosía, rematadas con una cornisa y ménsulas de diseño elaborado En la planta baja se aprecian tres vanos de puerta, dos rectangulares con puertas de madera realzados por un sencillo travesaño abierto con detalles curvos de hierro forjado, y uno arqueado con una reja metálica, que sirve de entrada a la escalera interior del edificio. En el muro posterior hay una ventana ovalada con reja decorativa de hierro forjado. La pared inferior combina mampostería con un remate superior de listones horizontales de madera situados bajo la galería. El entorno inmediato incluye árboles altos y vegetación. Los archivos históricos del Municipio de Ponce confirman la existencia de una edificación residencial en esa locación desde 1886; sin embargo, la propiedad existente data de principios del siglo XX. Para 1906, los propietarios contrataron los servicios del ingeniero civil Blas Silva para diseñar su nueva residencia y, aunque el proyecto final nunca se ejecutó, la mayoría de sus ideas se implementaron de forma más austera, dándole a la propiedad la apariencia que tendría en 1910, cuando se completaron las reformas de la residencia del siglo XIX. A partir de 1926, el edificio fue la sede del Club Nacionalista de Ponce y estuvo estrechamente vinculado a los hechos del 21 de marzo de 1937 conocidos como la Masacre de Ponce. Ese día, miembros y simpatizantes del Partido Nacionalista de Puerto Rico que participaban en un desfile conmemorativo de la abolición de la esclavitud y en protesta por el encarcelamiento de su dirigente enfrentaron resistencia por parte de la policía, bajo órdenes del entonces gobernador Blanton Winship, lo que provocó 19 muertos y alrededor de 200 heridos. La Casa de la Masacre fue el punto de concentración de los participantes y quedó marcada en la memoria colectiva como símbolo de este trágico episodio. En 1987, mediante la Resolución Conjunta 2951 de la Legislatura, la esquina donde se ubica la casa fue designada Zona Histórica y la casa pasó a manos del Instituto de Cultura Puertorriqueña, convirtiéndose posteriormente en el Museo de la Masacre.

Condado Vanderbilt - San Juan (Condado) - 2013 00193

Condado Vanderbilt - San Juan (Condado) - 2013 00193



Vista del interior del Hotel Condado Vanderbilt ubicado en la avenida Ashford del pueblo costero de San Juan. El hotel es de varios niveles con características del estilo resurgimiento español. Los espacios interiores están pintados en diferentes tonos de color rosa. El vestíbulo tiene dos niveles con los pisos de mármol en dos colores, techos abovedados con lámparas colgantes y lámparas de pared a juego. La pared del extremo opuesto tiene puertas dobles de madera con ventanas de cristal bajo arcos semicirculares. Además, los espacios están separados con balaustradas de hierro ornamental y pasamanos de madera. También se pueden ver dos columnas decorativas con detalles ornamentales en relieve. El Hotel Condado Vanderbilt fue comisionado en 1917 por Frederick William Vanderbilt. Finalmente el 16 de octubre de 1919 fue inaugurado el primer gran hotel de lujo del Caribe. En el año 1930 fue vendido y pasó a llamarse Hotel Condado, posteriormente en 1940 se convirtió en el primer hotel en la isla en tener un casino. Además, en 1950 volvieron a cambiar su nombre a Condado Beach Hotel y se añadieron habitaciones, salones de actividades y un restaurante. Luego de considerar su demolición fue incluido en el Registro Nacional de Lugares Históricos en el año 1988. Más recientemente fue remodelado entre los años 2008 a 2014 por los arquitectos Thomas S. Marvel y José Marchand Sifre añadiendo dos torres de suites modernas. Además, la planificación y restauración de los espacios estuvo a cargo del Arquitecto Jonathan Parks y la firma SOLSTICE Planning and Architecture. Los diseños interiores estuvieron a cargo del diseñador Jorge Roselló.

Calle de la Luna 277 - San Juan (Viejo San Juan) - 2012 00001

Calle de la Luna 277 - San Juan (Viejo San Juan) - 2012 00001



Calle de la Luna 277 en el Viejo San Juan. Fachada de la casa rosada de dos pisos estilo neoclásico con elementos del estilo colonial español, vista desde la Plaza de la Barandilla. El diseño de la fachada está compuesto por seis arcos rebajados, la curvatura de los arcos es tan leve que casi parecen arcos adintelados. En el primer piso los arcos de los lados tienen molduras con pilastras y frontones ovalados coronados con mascarones. Estos tienen puertas de doble hoja con celosías y paneles de vidrio, y antepechos de hierro. La moldura del arco central, que es la entrada principal, es más simple, no tiene frontón pero sí un ornamento que exhibe el número de la casa. La entrada tiene portón de rejas. El borde superior de la pared del primer piso tiene una moldura horizontal que incluye un friso con motivo floral. En el segundo piso hay un balcón descubierto y con baranda de hierro que se extiende frente a los tres arcos. Los arcos tienen molduras con ménsulas y cornisas individuales. Las puertas también son de doble hoja con celosías, iguales que las del primer piso. Sobre los arcos se observa un friso seguido por la cornisa y el parapeto. El parapeto tiene molduras verticales y remates en forma de vasija. Dos pilastras desnudas enmarcan los extremos laterales de la fachada. Sobre una de las pilastras hay una lámpara de pares tipo farol. Hay un automóvil estacionado frente a la casa. En primer plano se ve parte de la cerca de la plaza.

Condado Vanderbilt - San Juan (Condado) - 2013 00152

Condado Vanderbilt - San Juan (Condado) - 2013 00152



Vista de los espacios interiores del Hotel Condado Vanderbilt ubicado en la avenida Ashford del pueblo costero de San Juan. El hotel es de varios niveles con características del estilo resurgimiento español. El baño tiene una ventana revestida por una cortina de tela. Además, el piso y una de las paredes están revestidas por mármol en varios colores. La pared revestida de mármol también tiene un mosaico floral con pequeños azulejos en color oscuro y color dorado. Además, en medio se distingue un mueble de mármol con varios lavamanos, lámparas decorativas y espejos. Por otra parte, el techo tiene varias profundidades, está enmarcado con molduras, pequeños focos de luz individual y en medio cuelga una lámpara de vidrio pintado en color oscuro con detalles de color dorado. El Hotel Condado Vanderbilt fue comisionado en 1917 por Frederick William Vanderbilt. Finalmente el 16 de octubre de 1919 fue inaugurado el primer gran hotel de lujo del Caribe. En el año 1930 fue vendido y pasó a llamarse Hotel Condado, posteriormente en 1940 se convirtió en el primer hotel en la isla en tener un casino. Además, en 1950 volvieron a cambiar su nombre a Condado Beach Hotel y se añadieron habitaciones, salones de actividades y un restaurante. Luego de considerar su demolición fue incluido en el Registro Nacional de Lugares Históricos en el año 1988. Más recientemente fue remodelado entre los años 2008 a 2014 por los arquitectos Thomas S. Marvel y José Marchand Sifre añadiendo dos torres de suites modernas. Además, la planificación y restauración de los espacios estuvo a cargo del Arquitecto Jonathan Parks y la firma SOLSTICE Planning and Architecture. Los diseños interiores estuvieron a cargo del diseñador Jorge Roselló.

Faro Punta Mulas - Vieques - 2011 00003

Faro Punta Mulas - Vieques - 2011 00003



Detalle del tramo central de la fachada del Faro Punta Mulas, localizado al oeste del puerto de Isabel II, en la isla municipio de Vieques. El faro es de una planta con forma rectangular. Este tramo de la fachada mira hacia el norte y presenta una puerta con paneles, flanqueada por ventanas de doble hoja con lumbreras y enmarcadas con molduras. La parte superior del edificio se distingue por una moldura ornamental con motivos de rectángulos y círculos y una cornisa coronada con un parapeto. La parte inferior de la fachada está realzada con un zócalo. Desde el centro sobresale la torre octogonal con una galería que está delimitada por una baranda de hierro forjado y coronada con una linterna de forma cilíndrica hecha de hierro forjado, cobre y cristal. Frente a esta fachada se extiende una acera flanqueada por jardineras. La superficie del edificio es de color amarillo y blanco. Frente al faro se ubica una acera y una jardinera redonda. El Faro de Punta Mulas fue construido en 1895, como un faro de sexto orden, para guiar la navegación a través del Pasaje de Vieques. Este faro comenzó a operar el 1 de junio de 1896. Sus características arquitectónicas corresponden al estilo neoclásico y colonial español. Durante la década de 1940, la planta física fue modificada y se llevaron a cabo algunos cambios como el reemplazo del techo original de ladrillo por uno de hormigón. En 1949, se instaló un sistema automático de iluminación. Entre el año 1961 y 1981 sirvió de residencia a la señora Gilda Romero. En 1992, el municipio de Vieques compró el edificio y lo restauró. Otra restauración ocurrió en 1998, tras el paso del huracán Georges, y finalmente, fue inaugurado en 2015.

Parroquia San Antonio de Padua - Barranquitas - 2012 00006

Parroquia San Antonio de Padua - Barranquitas - 2012 00006



Vista frontal de la Parroquia San Antonio de Padua en el pueblo de Barranquitas. En primer plano se divisa la plaza pública Bicentenaria Monseñor Miguel Ángel Mendoza decorada con un gazebo de hierro ornamental, zonas ajardinadas, bancos de hierro ornamental, postes de luz, fuentes decorativas y carpas de plástico. Frente a la plaza está la Parroquia San Antonio de Padua. La parroquia es de dos niveles con un diseño ecléctico inspirado en los estilos resurgimiento español, art deco y neoclásico. La fachada frontal está pintada en colores naranjas y vistas en color ladrillo, decorada con un nicho sostenido por una ménsula en donde además hay una baranda y una estatua de San Antonio de Padua. Se encuentra frente a una ventana de cristal con un arco semicircular enmarcado y flanqueado por pilastras. La fachada también tiene ventanas de cristal, un óculo y un frontón curvilíneo coronado con una cruz. Además, del edifico sobresale un campanario decorado con remates, cornisas, molduras y está coronado con tejas y una cruz. La Parroquia San Antonio de Padua fue construida por primera vez en 1792, sin embargo, tuvo que ser reconstruida en cuatro ocasiones tras ser destruida por varios huracanes. En la década de 1930 el edificio también era utilizado como academia, además, contaba con un cine para los estudiantes y posteriormente fue abierto al público en general; permaneciendo en uso hasta la década de 1970. Finalmente, en 1933 fue reconstruida con el diseño actual y restaurado en la década de 1980.

Condado Vanderbilt - San Juan (Condado) - 2013 00041

Condado Vanderbilt - San Juan (Condado) - 2013 00041



Vista desde el interior del Hotel Condado Vanderbilt ubicado en la avenida Ashford del pueblo costero de San Juan. El hotel es de varios niveles con características del estilo resurgimiento español. El salón de actividades tiene el piso cubierto por una alfombra con patrones florales en diferentes colores difusos. En primer plano, hay un corredor lateral con techo abovedado modulado por arcadas semicirculares con lámparas de cristal en las columnas. En el espacio central el techo está dividido por vigas expuestas y decorado con lámparas colgantes de vidrio a juego con las de las paredes. La pared de fondo en el centro tiene un espejo semicircular enmarcado. Además, la pared del extremo izquierdo tiene puertas dobles de madera y cristal bajo arcos semicirculares coronados con entablamentos. El Hotel Condado Vanderbilt fue comisionado en 1917 por Frederick William Vanderbilt. Finalmente el 16 de octubre de 1919 fue inaugurado el primer gran hotel de lujo del Caribe. En el año 1930 fue vendido y pasó a llamarse Hotel Condado, posteriormente en 1940 se convirtió en el primer hotel en la isla en tener un casino. Además, en 1950 volvieron a cambiar su nombre a Condado Beach Hotel y se añadieron habitaciones, salones de actividades y un restaurante. Luego de considerar su demolición fue incluido en el Registro Nacional de Lugares Históricos en el año 1988. Más recientemente fue remodelado entre los años 2008 a 2014 por los arquitectos Thomas S. Marvel y José Marchand Sifre añadiendo dos torres de suites modernas. Además, la planificación y restauración de los espacios estuvo a cargo del Arquitecto Jonathan Parks y la firma SOLSTICE Planning and Architecture. Los diseños interiores estuvieron a cargo del diseñador Jorge Roselló.

Casa en la calle Luna esquina calle Victoria - San Germán - Residencia Rafael Muñoz - 2012 00002

Casa en la calle Luna esquina calle Victoria - San Germán - Residencia Rafael Muñoz - 2012 00002



Vista frontal y lateral de la Residencia Rafael Muñoz ubicada en el pueblo de San Germán. La casa es de un nivel en mampostería encalada y características de los estilos vernáculo y neoclásico. La fachada frontal está presidida por un balcón con balaustrada de hierro ornamental modulada por pilastras sobre pedestales que se extienden y sostienen un entablamento corrido. El entablamento tiene molduras, cornisas, dentículos y un friso ornamental. Además, sobre la cornisa se proyecta un parapeto bajo. Por otra parte, en el interior del balcón hay cuatro puertas dobles de madera enmarcadas con molduras y coronadas con soles truncos de madera. Además, la fachada lateral tiene dos ventanas de aluminio estilo celosía en la base. También se pueden ver tres balconeras abiertas con balaustradas de hierro ornamental. Dos de las balconeras tienen ventanas estilo celosía de aluminio enmarcadas con molduras, están coronadas con travesaños y entablamentos. La balconera de en medio tiene bloques de vidrio formando una cruz, también está enmarcada con molduras y coronada con un entablamento. La fachada lateral también tiene una entrada a través de un portón de reja metálico flanqueado por pilastras y muros. Este edificio ha sido utilizado a través de los años como vivienda familiar y recientemente como espacio de congregación para una iglesia. El distrito histórico de San Germán fue incluido en el Registro Nacional de Lugares Históricos en el año 1994.

Alcaldía de Arecibo - 2014 00002

Alcaldía de Arecibo - 2014 00002



Vista de la Casa Alcaldía del pueblo de Arecibo. El edificio es de dos niveles de mampostería de ladrillo con elementos típicos del estilo neoclásico. Está pintado en tonos salmón y marrón con molduras blancas. La fachada se articula horizontalmente con un basamento rusticado que cubre parte del segundo nivel. En el primer nivel hay tres entradas sobre las cuales se encuentra una inscripción que dice: "Alcaldía". También hay varias ventanas bajo arcos de medio punto y arcos rectangulares. La fachada se divide con cornisas sostenidas por pilastras que se extienden al segundo tramo y sostienen el frontón triangular que corona el edificio. Por otra parte, el nivel superior tiene siete puertas dobles enmarcadas por pilastras esbeltas que flanquean un frontón ciego y curvo. Las puertas de los extremos están encerradas en unos balcones de un tramo y las tres puertas de en medio se conectan con un balcón central de tres tramos sostenidos por ménsulas y encerrados con rejas metálicas ornamentales. Frente al edificio se alzan tres astas con las banderas de Arecibo, Puerto Rico y los Estados Unidos. También se pueden ver vehículos estacionados en la calle. La construcción de la alcaldía de Arecibo data del año 1866 bajo el dominio español en la isla. El primer nivel del edificio era utilizado cómo prisión mientras que en el segundo nivel estaban las oficinas. Tras el terremoto de 1918 la fachada frontal del edificio sufrió derrumbes por lo que fue modificada añadiendo una torre de reloj hasta el año 1978 cuando restauraron el edificio y le devolvieron su diseño original.

Casilla de Camineros - Bayamón - 2011 00021

Casilla de Camineros - Bayamón - 2011 00021



Casilla de Camineros en la Carretera 2, km. 12.7 en Bayamón. Detalle de la fachada principal de un edificio construido en mampostería y ladrillos y de estilo neoclásico colonial. Tiene paredes de roca caliza expuestas y una puerta de madera con un entablamento en el tope con letras color oro que leen: "Baya_ó_". Dos columnas formadas por ladrillos y con enlucido de yeso bordean la puerta de entrada. La casa descansa sobre un borde de hormigón y roca caliza. El techo también es de hormigón y muestra una cornisa con dentículos y un parapeto en estado de deterioro, así como plantas que sobresalen del borde y las paredes. El piso de la entrada es de concreto. Las Casillas de Camineros fueron construidas durante la última parte del siglo XIX a lo largo de las carreteras principales en Puerto Rico. Estas fueron las residencias de los camineros, trabajadores gubernamentales encargados de brindar mantenimiento a la superficie de la carretera. La mayoría de las casillas fueron abandonadas a finales del siglo XX y las que aún permanecen han enfrentado diferentes destinos. Muchas de ellas se han deteriorado o han sido demolidas y otras han sido destinadas a otros usos. Esta casilla es una de tres construidas en 1882 a lo largo de un tramo de la Carretera número 2 entre Bayamón y Mayagüez. Perteneció originalmente al Departamento de Transportación y Obras Públicas, quien luego la cedió al Instituto de Cultura para ser usada como museo y oficinas de la Cámara de Comercio de Bayamón.

Condado Vanderbilt - San Juan (Condado) - 2013 00189

Condado Vanderbilt - San Juan (Condado) - 2013 00189



Vista desde el interior del Hotel Condado Vanderbilt ubicado en la avenida Ashford del pueblo costero de San Juan. El hotel es de varios niveles con características del estilo resurgimiento español. El vestíbulo tiene dos niveles con pisos de mármol en dos colores y patrón ajedrezado. Además, el techo está dividido por vigas horizontales, está decorado con lámparas colgantes, lámparas de pared a juego y en el fondo la pared tiene un espejo que la cubre. La nave central se divide de las laterales con arcos semicirculares coronados con pequeños emblemas. Los espacios están divididos por balaustradas de hierro ornamental y pasamanos de madera. La nave lateral tiene puertas dobles de cristal cubiertas por cortinas de tela bajo arcos semicirculares. Por otra parte, el primer nivel tiene una esfinge sobre una base negra y dos escaleras en espiral de mármol negro. El Hotel Condado Vanderbilt fue comisionado en 1917 por Frederick William Vanderbilt. Finalmente el 16 de octubre de 1919 fue inaugurado el primer gran hotel de lujo del Caribe. En el año 1930 fue vendido y pasó a llamarse Hotel Condado, posteriormente en 1940 se convirtió en el primer hotel en la isla en tener un casino. Además, en 1950 volvieron a cambiar su nombre a Condado Beach Hotel y se añadieron habitaciones, salones de actividades y un restaurante. Luego de considerar su demolición fue incluido en el Registro Nacional de Lugares Históricos en el año 1988. Más recientemente fue remodelado entre los años 2008 a 2014 por los arquitectos Thomas S. Marvel y José Marchand Sifre añadiendo dos torres de suites modernas. Además, la planificación y restauración de los espacios estuvo a cargo del Arquitecto Jonathan Parks y la firma SOLSTICE Planning and Architecture. Los diseños interiores estuvieron a cargo del diseñador Jorge Roselló.

Hacienda Labadie

Hacienda Labadie



Hacienda Irurena en Moca, también conocida como Hacienda Labadie, Palacete Los Moreau y Mansión Labadie. Dibujo arquitectónico de la fachada principal del edificio de dos pisos construido en hormigón armado. Este tiene diseño ecléctico con influencias del estilo château. Es una fachada simétrica con galerías de cinco módulos en el primer nivel y segundo nivel, una escalera da acceso al módulo central. Tiene columnas de orden jónico y barandas con balaustres de hierro muy ornamentados. Las puertas y ventanas son de doble hoja y tienen molduras. En el primer piso hay cinco puertas con molduras lineales, mientras que en el segundo piso se alternan tres ventanas y dos puertas con molduras ornamentadas y en forma de frontones. La ventana central es una ventana fija con vitrales. Dos torres cuadradas de dos niveles, idénticas, flanquean la porción central de la fachada. Sus cubiertas son dos cúpulas de bulbo con evidente influencia francesa. Hay dos cornisas que bordean cada piso. Sobre la cornisa del segundo piso hay un parapeto con friso ornamentado con círculos y rectángulos. En el techo hay tres buhardillas con techo a dos aguas. Tras la buhardillas, una cumbrera a cuatro aguas. Es una construcción sobre un podio que tiene pilastras desnudas y óculos. La Hacienda Irurena o Labadie fue hacienda cafetalera en el siglo XIX y a una central azucarera en el siglo XX, este es el único edificio aún en pie que perteneció a empresas dedicadas a ambos cultivos. Esta hacienda está inmortalizada en la literatura puertorriqueña como la Hacienda Palmeras, residencia de la familia Moreau en la novela La llamarada (1935) de Enrique Laguerre.

Antiguo Banco de Ponce - 2014 00001

Antiguo Banco de Ponce - 2014 00001



Vista del edificio del Antiguo Banco de Ponce ubicado en el pueblo costero de Ponce. En primer plano, al extremo derecho se distingue un edificio de dos niveles con puertas dobles de madera y balcones saledizos sostenidos por ménsulas. Enfrente hay una acera pavimentada con postes de luz y personas de pie. Cruzando la calle transitada se encuentra la plaza pública Federico Degetau decorada con zonas ajardinadas, bancos y postes de luz. Por otra parte, al fondo se alza el edificio del banco de Ponce. El edificio es de tres niveles construido en hormigón con características de los estilos Beaux-Art y neoclásico. La fachada tiene ventanas cubiertas por rejas metálicas y ventanas francesas bajo arcos semicirculares presididos por balaustradas. Además, los arcos están enmarcados con molduras ornamentales, coronadas con espinazos y flanqueadas por pares de pilastras acanaladas de orden corintio. Las pilastras se extienden hasta el tercer nivel y sostienen un entablamento corrido con cornisas, molduras, rosetones, dentículos y más ventanas francesas. En la parte frontal también se distingue una entrada a través de una puerta rectangular enmarcada, coronada con un entablamentos y flanqueada por columnas acanaladas de orden corintio. Sobre esta también se puede ver una inscripción que dice: “Banco Popular”. El Banco de Ponce fue fundado en 1912 pero no fue hasta 1924 y 1925 cuando fue construido e inaugurado el edificio. Posteriormente en la década de 1940 su interior fue remodelado para ampliarlo de acuerdo con las necesidades del establecimiento. Para 1983 el banco contaba con cincuenta sucursales y en 1990 se fusionó con el Banco Popular de Puerto Rico. Además, en 1987 el edificio fue incluido en el Registro Nacional de Lugares Históricos.

Teatro Yagüez - Mayagüez - 2011 00021

Teatro Yagüez - Mayagüez - 2011 00021



Detalle de un par de columnas en el pórtico del Teatro Yagüez, localizado entre las calles McKinley y Basora del municipio de Mayagüez. Las columnas están emparejadas y exhiben molduras de ovas y dardos en sus capiteles. El pórtico también se distingue por molduras de ovas y dardos, una cornisa y bombillas en el sofito. La superficie del edificio es de color amarillo con detalles de blanco. En su origen, en 1909, el teatro fue diseñado y construido de madera, acero y cinc, y se le conoció como la Casa del Arte Sonoro. El dueño original de este teatro fue Francisco Maymón Palmer. En el año 1919 un fuego consumió el edificio. En 1920 se llevó a cabo un nuevo diseño de estilo ecléctico, integrando materiales como el hormigón, la madera, el cristal, el mármol italiano y el yeso para las ornamentaciones. Durante la década de 1950 el teatro mostró signos de deterioro y en el periodo de 1977 a 1984 se llevaron a cabo trabajos de restauración bajo el auspicio del municipio de Mayagüez. Asimismo, durante el periodo de 2002 a 2008 se realizó una tercera restauración al teatro. Este teatro constituye uno de los principales escenarios artísticos y de gran valor histórico en el área oeste de Puerto Rico por acoger a importantes orquestas y compañías de drama y danza. Su arquitectura refleja elementos del neoclásico europeo, el neobarroco y de la arquitectura de principios del siglo XX que se conoció como la Belle Époque.

Hospital Municipal Valentín Tricoche

Hospital Municipal Valentín Tricoche



Dibujo arquitectónico del antiguo Hospital Municipal Valentín Tricoche ubicado en la calle Tricoche del pueblo costero de Ponce. El edificio es de dos niveles con características del estilo neoclásico. En el primer nivel se proyecta un pórtico con tres arcos semicirculares flanqueado por pilastras pares que a su vez sostienen un entablamento corrido. Los arcos laterales tienen puertas dobles y están coronadas con soles truncos, la de enmedio tiene una reja doble ornamental. Además, a ambos lados del pórtico hay ventanas dobles con persianas enmarcadas con molduras y coronadas con entablamentos. Por otra parte, en el segundo nivel se pueden ver ventanas dobles con persianas coronadas con travesaños y espinazos. En adición, bajo las ventanas hay una cornisa corrida al igual que el borde superior. Este tiene un entablamento corrido sobre el cual se proyecta un parapeto bajo creando curvaturas en los extremos. En medio resalta un frontón semicircular decorado con un medallón. También se puede ver un logo con una inscripción al borde superior derecho que dice: “PRHBDS”. Fue fundado en 1878 con el nombre de Albergue Caritativo Tricoche. Sin embargo, la construcción del edificio se inició en 1863. Como muchos otros edificios en la zona sufrió daños significativos tras el terremoto de 1918 por lo que fue remodelado y se le incluyó el segundo nivel en 1928. Años más tarde, en 1987 fue incluido en el Registro Nacional de Lugares Históricos. Permaneció en uso hasta 1999 cuando cesó operaciones.

Antigua Iglesia El Nazareno - Catedral de la Música - San Juan (Miramar) - 2016 00013

Antigua Iglesia El Nazareno - Catedral de la Música - San Juan (Miramar) - 2016 00013



Perspectiva del interior del edificio de la antigua Iglesia El Nazareno, también conocido como la Catedral de la Música Latina y la Casa Viera. Este edificio está localizado en el 909 de la avenida Fernández Juncos, esquina calle Hoare en la zona de Miramar, Santurce, en el municipio de San Juan. El interior consta de una nave con el piso cubierto con un mosaico geométrico. El antiguo altar se proyecta como un pequeño escenario bovedado y acentuado por un arco de medio punto y flanqueado por dos vanos arqueados. El segundo nivel se distingue por una galería delimitada por una balaustrada de madera. Bajo esta balaustrada se extiende una serie de discos de vinilo que se han colocado de manera ornamental. A través de la nave principal se encuentran las estanterías y cajas que exhiben los discos. En las paredes resaltan varios instrumentos musicales, carteles y retratos de artistas del campo musical. Las pinturas murales retratan a Rafael y Richie Viera y también detalles representativos de la arquitectura de San Juan. El techo consta de una moldura, de un par de lámparas y varias imágenes. Este edificio de hormigón, construido en 1947 en el estilo resurgimiento español, originalmente albergó una iglesia episcopal, conocida como El Nazareno en Santurce. Posteriormente, acogió la Casa Viera, la cual constituyó una de las más grandes tiendas de música del Caribe. A partir del año 2015 el edificio fue adquirido por la compañía Puerto Rico Island Holdings mediante una subasta realizada por el banco Scotiabank.

Molino de viento (1827) - Hacienda Santa Ana - 2011 00004

Molino de viento (1827) - Hacienda Santa Ana - 2011 00004



Hacienda Santa Ana en Bayamón. Vista de la torre del antiguo molino de viento de la Hacienda. Este molino construido con ladrillos, y mejor conocido como trapiche, data de 1827 y es uno de los más antiguos en la isla. Se observa una torre redonda con dos escaleras laterales con pasamanos de tubos que conducen a la entrada principal en forma de arco de medio punto. Sobre el arco hay un óculo. La entrada cuenta con una puerta de madera de doble hoja con montante de sol trunco. Los escalones son de ladrillo y piedra. En el tope de la torre hay un parapeto con diseño almenado desde donde bajan manchas de humedad u hollín. Esta torre fue acondicionada para utilizarse como oficina. Detrás de la torre hay un área con árboles. La Casona de la Hacienda Santa Ana reside en terrenos conferidos en 1787 por el rey Carlos III al capitán Fernando Fernández, corsario español que rendía servicios a la corona. A partir de 1804, el capitán comenzó a sembrar caña de azúcar y a destilar ron en la propiedad para su uso personal, pero no fue hasta 1880 cuando su biznieto Pedro Fernández y su hijo Edmundo desarrollaron la fórmula y el proceso de destilación del conocido Ron del Barrilito. Además de la casona, la Hacienda abarca la tonelería, el trapiche, el área de añejamiento y el área de embotellamiento y empaque. Estas instalaciones, que también sirven como museo, continúan produciendo el popular ron, así como el alcoholado medicinal Santa Ana.

Condado Vanderbilt - San Juan (Condado) - 2013 00051

Condado Vanderbilt - San Juan (Condado) - 2013 00051



Vista trasera del Hotel Condado Vanderbilt ubicado en la avenida Ashford del pueblo costero de San Juan. El hotel es de varios niveles con techos a cuatro aguas y características del estilo resurgimiento español. La fachada trasera del hotel tiene ventanas dobles de madera y cristal, el techo cubierto por tejas y sostenido por vigas de madera. El patio trasero tiene un gazebo moderno rodeado con puertas de cristal y aleros con vigas expuestas. También se puede ver una de las torres laterales del hotel. La torre se eleva once pisos, tiene ventanas de cristal enmarcadas con molduras y balcones abiertos con balaustradas de cristal dentro de los cuales hay puertas enmarcadas. Además, el espacio del ascensor es saledizo con una forma triangular. Por otra parte, en los alrededores se pueden ver muebles de patio, zonas ajardinadas y plantas en macetas decorativas. El Hotel Condado Vanderbilt fue comisionado en 1917 por Frederick William Vanderbilt. Finalmente el 16 de octubre de 1919 fue inaugurado el primer gran hotel de lujo del Caribe. En el año 1930 fue vendido y pasó a llamarse Hotel Condado, posteriormente en 1940 se convirtió en el primer hotel en la isla en tener un casino. Además, en 1950 volvieron a cambiar su nombre a Condado Beach Hotel y se añadieron habitaciones, salones de actividades y un restaurante. Luego de considerar su demolición fue incluido en el Registro Nacional de Lugares Históricos en el año 1988. Más recientemente fue remodelado entre los años 2008 a 2014 por los arquitectos Thomas S. Marvel y José Marchand Sifre añadiendo dos torres de suites modernas. Además, la planificación y restauración de los espacios estuvo a cargo del Arquitecto Jonathan Parks y la firma SOLSTICE Planning and Architecture. Los diseños interiores estuvieron a cargo del diseñador Jorge Roselló.

Edificio del Antiguo Correo y Corte Federal José V. Toledo en el Viejo San Juan

Edificio del Antiguo Correo y Corte Federal José V. Toledo en el Viejo San Juan



Vista frontal, desde la calle Comercio, del edificio conocido como el Antiguo Correo y Corte Federal José V. Toledo en el Viejo San Juan. La edificación está compuesta por dos partes. La primera fue construida en el 1914 y tuvo influencia de varios movimientos arquitectónicos como el beaux-arts, el estilo federal y el renacimiento español. Se observa que tiene forma de pabellón y es de color crema y gris claro. Está construida en hormigón y caliza, su techo está cubierto de tejas color terracota y sus puertas y ventanas están formadas por dovelas y cubiertas con rejas de color verde. Frente al edificio se ven escaleras angostas que forman la entrada principal del edificio. La segunda edificación fue construida en 1940 y además muestra influencias del movimiento avant garde y de la escuela veneciana. Tiene aspecto de torre con apéndices de techo en forma de linterna, una parte del techo está cubierto con tejas, y es de color crema con gris claro. Sus ventanas y puertas también están formadas por dovelas. El edificio puede encontrarse interceptando las calles Comercio y Tanca. Se observan otros edificios alrededor como el del Banco Popular de Puerto Rico, el Edificio Ochoa, y lo que era el edificio del American Colonial Bank. Además se ve en sus alrededores autobuses, quioscos, automóviles, aceras, cables de tendido eléctrico, postes de luz, una asta con la bandera de los Estados Unidos, personas, y las calles pavimentadas con adoquines. El lote abierto que se encuentra frente a la edificación se convirtió en el estacionamiento municipal Doña Fela.

Edificio Oliver - Arecibo - 2012 00001

Edificio Oliver - Arecibo - 2012 00001



Vista lateral del edificio Oliver en el pueblo costero de Arecibo. El edificio es de tres niveles con características del estilo neoclásico en concreto. La fachada lateral se divide en seis tramos. Horizontalmente, el edificio se divide en dos partes, la planta base y dos plantas superiores. El segundo y tercer nivel tiene aberturas de puertas y ventanas rectangulares con marcos planos. Las aberturas conducen a un balcón con balaustres sostenidos por ménsulas decorativas. Hay balcones pequeños con esquinas redondeadas y balcones de dos tramos rectangulares. Entre los balcones hay pilastras acanaladas que sostienen un entablamento con friso ornamental, cornisa corrida y dentículos. Coronando el edificio se divisa un parapeto con balaustrada y ánforas romanas. También se puede ver una extensión de la construcción en menor tamaño con puertas de cristal y ventanas estilo celosía de cristal coronado con ánforas. En la esquina biselada se interrumpe el parapeto por un frontispicio curvilíneo. El edificio Oliver fue construido en 1914 con fines comerciales y residenciales. Está cimentado en el mismo lugar que en 1765 el gobierno español construyó la Casa del Rey hasta 1913 cuando fue demolida. Este innovador edificio fue el primero en incorporar espacios de vivienda y establecimiento comercial. También fue el primer edificio construido en el pueblo con una entrada achaflanada. Su diseño ricamente ornamentado adopta características de la Escuela de Bellas Artes y el estilo tradicional español. A través de los años ha sido utilizado cómo espacio residencial, comercial y sede de varios consulados extranjeros que ocupaban el primer nivel. Fue restaurado en la década de 1980 y todos los espacios asignados para vivienda se convirtieron en espacios comerciales.

Condado Vanderbilt - San Juan (Condado) - 2013 00053

Condado Vanderbilt - San Juan (Condado) - 2013 00053



Vista desde el patio trasero del Hotel Condado Vanderbilt ubicado en la avenida Ashford del pueblo costero de San Juan. El hotel es de varios niveles con características del estilo resurgimiento español. El patio trasero del hotel tiene plantas en macetas decorativas y una balaustrada de cristal modulada por pilares cuadrados que preside la costa del océano atlántico. También se puede ver una pérgola con vigas de madera expuestas y puertas de cristal. Además, se distingue un extremo de una de las torres laterales del hotel. La torre se eleva a varios niveles y tiene balcones con balaustradas de cristal. El Hotel Condado Vanderbilt fue comisionado en 1917 por Frederick William Vanderbilt. Finalmente el 16 de octubre de 1919 fue inaugurado el primer gran hotel de lujo del Caribe. En el año 1930 fue vendido y pasó a llamarse Hotel Condado, posteriormente en 1940 se convirtió en el primer hotel en la isla en tener un casino. Además, en 1950 volvieron a cambiar su nombre a Condado Beach Hotel y se añadieron habitaciones, salones de actividades y un restaurante. Luego de considerar su demolición fue incluido en el Registro Nacional de Lugares Históricos en el año 1988. Más recientemente fue remodelado entre los años 2008 a 2014 por los arquitectos Thomas S. Marvel y José Marchand Sifre añadiendo dos torres de suites modernas. Además, la planificación y restauración de los espacios estuvo a cargo del Arquitecto Jonathan Parks y la firma SOLSTICE Planning and Architecture. Los diseños interiores estuvieron a cargo del diseñador Jorge Roselló.

Capilla Nuestra Señora de Lourdes - San Juan (Miramar) - 2009 00011

Capilla Nuestra Señora de Lourdes - San Juan (Miramar) - 2009 00011



Detalle de la torre de la Capilla Nuestra Señora de Lourdes, en Miramar, San Juan. La torre cuadrada del campanario se distingue por tener almenas como coronamiento, gárgolas decorativas que también funcionan como desagües, cornisas, arcos emparejados levemente apuntados y parteluces. En la parte inferior de la torre se encuentra un arco con reja acentuado por una moldura, motivos de frondas o croché, ménsulas ornamentales y flanqueado por contrafuertes. También es visible parcialmente una ventana con tracería y vitrales, acentuada con una moldura y una ménsula ornamental. El edificio es de hormigón con un acabado rusticado en imitación de piedra y sillería. Frente a este tramo de la fachada se extiende una verja de hierro. La construcción de la Capilla Nuestra Señora de Lourdes se inició en 1907 y su inauguración tuvo lugar en 1908. Este edificio es representativo de las iglesias protestantes que se establecieron en Puerto Rico tras el cambio de régimen en 1898. Fue el primer templo de la Iglesia Metodista Episcopal de Puerto Rico, luego, en 1917, pasó a manos de la Iglesia Unida de Puerto Rico y finalmente, a la Iglesia Católica Romana, adscrita a la arquidiócesis de San Juan en 1959. Su diseño y características corresponden al estilo neogótico o resurgimiento gótico. Este diseño además, imita a un edificio de la Iglesia Episcopal en la calle North Market, en Jacksonville Florida, donde su arquitecto tenía su residencia entonces.

Casa en la Calle Cuevillas 607 - San Juan (Miramar) - 2014 00039

Casa en la Calle Cuevillas 607 - San Juan (Miramar) - 2014 00039



Perspectiva de una entrada de la casa en la calle Cuevillas 607, en Miramar, San Juan. Este tramo se distingue por una escalera flanqueada por barandas y muros bajos que funcionan como pequeñas jardineras. A través de la escalera se accede a una de las puertas, la cual está protegida por una reja ornamental que exhibe un patrón geométrico. Las ventanas son de aluminio, tipo persianas y también están protegidas con rejas y paneles de madera. También son notables las pilastras que separan los tramos de la fachada y el alero. La casa es de dos niveles y está compuesta de mampostería, hormigón armado y madera. Su superficie exhibe el color rosado con detalles de blanco. Esta casa se construyó en 1913 siguiendo influencias del estilo resurgimiento del renacimiento francés o resurgimiento neoclásico francés. Sus dueños originales fueron el juez Luis Méndez Baz y su esposa, María Bagur. Tras visitar Francia, la pareja hizo construir su residencia siguiendo el diseño de un prototipo publicado en Nouvelles Maisons de Campagne, Paris et ses Environs, que mostraba fachadas y planos de casas de campo populares en París. Posteriormente la casa funcionó como residencia y taller para artistas como Lorenzo Homar, Juan Ramón Velázquez, Ada Bobonis y Aaron Salabarrías. Además, los herederos de los dueños originales establecieron una fundación para desarrollar un museo en esta residencia. Entre el 2018 y 2019 se llevó a cabo la restauración del edificio que dio lugar al establecimiento del Museo de Arte y Diseño de Miramar, también conocido como la Casa Rosada.

Condado Vanderbilt - San Juan (Condado) - 2013 00202

Condado Vanderbilt - San Juan (Condado) - 2013 00202



Vista desde el interior del Hotel Condado Vanderbilt ubicado en la avenida Ashford del pueblo costero de San Juan. El hotel es de varios niveles con características del estilo resurgimiento español. Los espacios interiores están pintados en varios tonos de color rosa. Además, el vestíbulo tiene dos niveles con pisos de mármol, techos abovedados y lámparas de pared metálicas. La nave lateral derecha tiene una puerta doble de madera con ventanas de cristal bajo arcos semicirculares. Los espacios están separados con vanos semicirculares coronados con pequeños emblemas y balaustradas de hierro ornamental con pasamanos de madera. También se pueden ver unas escaleras es espiral de mármol negro y sillas de madera. El Hotel Condado Vanderbilt fue comisionado en 1917 por Frederick William Vanderbilt. Finalmente el 16 de octubre de 1919 fue inaugurado el primer gran hotel de lujo del Caribe. En el año 1930 fue vendido y pasó a llamarse Hotel Condado, posteriormente en 1940 se convirtió en el primer hotel en la isla en tener un casino. Además, en 1950 volvieron a cambiar su nombre a Condado Beach Hotel y se añadieron habitaciones, salones de actividades y un restaurante. Luego de considerar su demolición fue incluido en el Registro Nacional de Lugares Históricos en el año 1988. Más recientemente fue remodelado entre los años 2008 a 2014 por los arquitectos Thomas S. Marvel y José Marchand Sifre añadiendo dos torres de suites modernas. Además, la planificación y restauración de los espacios estuvo a cargo del Arquitecto Jonathan Parks y la firma SOLSTICE Planning and Architecture. Los diseños interiores estuvieron a cargo del diseñador Jorge Roselló.

Condado Vanderbilt - San Juan (Condado) - 2013 00052

Condado Vanderbilt - San Juan (Condado) - 2013 00052



Vista desde el patio trasero del Hotel Condado Vanderbilt ubicado en la avenida Ashford del pueblo costero de San Juan. El hotel es de varios niveles con techos a cuatro aguas y características del estilo resurgimiento español. El patio trasero del Hotel Vanderbilt tiene zonas ajardinadas, plantas en macetas decorativas y una balaustrada de cristal modulada por pilares cuadrados. En los alrededores también se puede ver una pérgola con vigas de madera expuestas y puertas de cristal. Además, se distingue la costa del océano atlántico y un extremo de una de las torres laterales del hotel. La torre se eleva varios niveles, tiene ventanas dobles de madera y cristal enmarcadas con molduras balcones con balaustradas de cristal dentro de los cuales hay puertas enmarcadas. El Hotel Condado Vanderbilt fue comisionado en 1917 por Frederick William Vanderbilt. Finalmente el 16 de octubre de 1919 fue inaugurado el primer gran hotel de lujo del Caribe. En el año 1930 fue vendido y pasó a llamarse Hotel Condado, posteriormente en 1940 se convirtió en el primer hotel en la isla en tener un casino. Además, en 1950 volvieron a cambiar su nombre a Condado Beach Hotel y se añadieron habitaciones, salones de actividades y un restaurante. Luego de considerar su demolición fue incluido en el Registro Nacional de Lugares Históricos en el año 1988. Más recientemente fue remodelado entre los años 2008 a 2014 por los arquitectos Thomas S. Marvel y José Marchand Sifre añadiendo dos torres de suites modernas. Además, la planificación y restauración de los espacios estuvo a cargo del Arquitecto Jonathan Parks y la firma SOLSTICE Planning and Architecture. Los diseños interiores estuvieron a cargo del diseñador Jorge Roselló.

Teatro Yagüez - Mayagüez - 2011 00053

Teatro Yagüez - Mayagüez - 2011 00053



Lámpara del Teatro Yagüez, localizado entre las calles McKinley y Basora del municipio de Mayagüez. La lámpara es de cristal tipo araña y cuelga desde un cable rojo coronando el centro de la sala del teatro. La roseta ornamental exhibe molduras y dentículos, y está rodeada por los focos de luz. El techo también presenta yeserías ornamentales, molduras, plafones y motivos geométricos. Los parapetos que delimitan los palcos están decorados con yesería y motivos de guirnaldas. Al fondo, en el tercer nivel, es visible parcialmente la cabina de control de iluminación. En su origen, en 1909, el teatro fue diseñado y construido de madera, acero y cinc, y se le conoció como la Casa del Arte Sonoro. El dueño original de este teatro fue Francisco Maymón Palmer. En el año 1919 un fuego consumió el edificio. En 1920 se llevó a cabo un nuevo diseño de estilo ecléctico, integrando materiales como el hormigón, la madera, el cristal, el mármol italiano y el yeso para las ornamentaciones. Durante la década de 1950 el teatro mostró signos de deterioro y en el periodo de 1977 a 1984 se llevaron a cabo trabajos de restauración bajo el auspicio del municipio de Mayagüez. Asimismo, durante el periodo de 2002 a 2008 se realizó una tercera restauración al teatro. Este teatro constituye uno de los principales escenarios artísticos y de gran valor histórico en el área oeste de Puerto Rico por acoger a importantes orquestas y compañías de drama y danza. Su arquitectura refleja elementos del neoclásico europeo, el neobarroco y de la arquitectura de principios del siglo XX que se conoció como la Belle Époque.

Casa Dr. Bailey K. Ashford - San Juan (Condado) - 2011 00002

Casa Dr. Bailey K. Ashford - San Juan (Condado) - 2011 00002



Vista frontal y lateral de la antigua residencia del Dr. Bailey K. Ashford ubicada en el sector de Condado del pueblo costero de San Juan. La casa es de un nivel en madera y concreto con características de los estilos victoriano y renacimiento neoclásico. La fachada frontal está presidida por un balcón rodeado por una balaustrada de madera modulada por columnas acanaladas de orden corintio. La entrada al balcón es a través de unas escaleras. Por otra parte, en el interior del balcón se puede ver el piso cubierto por losas criollas y tres puertas dobles de madera y paneles de vidrio pintado enmarcadas con molduras planas. Además, la fachada lateral tiene ventanas de madera con vidrio pintado y modillones de madera expuestos. El techo está revestido por tejas y en la fachada frontal tiene una buhardilla con ventana doble de madera y celosía presidida por un antepecho. Por otra parte, los alrededores de la casa tienen zonas ajardinadas y aceras de mampostería. La antigua residencia del Dr. Bailey K. Ashford quien dejó un legado significativo por su contribución a la salud pública por medio de sus innovadoras investigaciones, protocolos y políticas de salud pública fue construida en el año 1914. Fue utilizada como residencia hasta 1934, en el año 1996 el Fideicomiso de Conservación se planteó la restauración y ampliación de la casa manteniendo su diseño original. A partir del año 2015 es un museo llamado “Casa Cultural Dr. Bailey K. Ashford. Además, fue incluida en el Registro Nacional de Lugares Históricos en el año 2022.

Condado Vanderbilt - San Juan (Condado) - 2013 00015

Condado Vanderbilt - San Juan (Condado) - 2013 00015



Vista del interior del Hotel Condado Vanderbilt ubicado en la avenida Ashford del pueblo costero de San Juan. El hotel es de varios niveles con características del estilo resurgimiento español. El vestíbulo tiene dos niveles con los pisos de mármol en dos colores, techos abovedados con lámparas colgantes y lámparas de pared a juego. La pared de fondo tiene puertas dobles de madera con ventanas de cristal bajo arcos semicirculares. Además, los espacios están separados con balaustradas de hierro ornamental con pasamanos de madera. El Hotel Condado Vanderbilt fue comisionado en 1917 por Frederick William Vanderbilt. Finalmente el 16 de octubre de 1919 fue inaugurado el primer gran hotel de lujo del Caribe. En el año 1930 fue vendido y pasó a llamarse Hotel Condado, posteriormente en 1940 se convirtió en el primer hotel en la isla en tener un casino. Además, en 1950 volvieron a cambiar su nombre a Condado Beach Hotel y se añadieron habitaciones, salones de actividades y un restaurante. Luego de considerar su demolición fue incluido en el Registro Nacional de Lugares Históricos en el año 1988. Más recientemente fue remodelado entre los años 2008 a 2014 por los arquitectos Thomas S. Marvel y José Marchand Sifre añadiendo dos torres de suites modernas. Además, la planificación y restauración de los espacios estuvo a cargo del Arquitecto Jonathan Parks y la firma SOLSTICE Planning and Architecture. Los diseños interiores estuvieron a cargo del diseñador Jorge Roselló.

Edificio Moscoso Hermanos & Co - Edificio Municipal - Ponce - 2013 00004

Edificio Moscoso Hermanos & Co - Edificio Municipal - Ponce - 2013 00004



Vista lateral del edificio Moscoso Hermano & Co., está ubicado en el pueblo costero de Ponce. Es de dos niveles con un diseño achaflanado y características de los estilos neoclásico y de la arquitectura colonial española. Desde la plaza pavimentada y decorada con bancos y postes de luz se ve que en el primer nivel hay puertas dobles de madera bajo arcos semicirculares enmarcados con molduras, flanqueados con pilastras y coronados con travesaños de vidrio pintado y espinazos. Además, hay ventanas dobles de madera bajo arcos rectangulares enmarcadas con molduras. El segundo nivel tiene puertas dobles de madera coronadas con travesaños de madera presididas por balconeras y un balcón saledizo sostenido por ménsulas decorativas. Tanto el balcón como las balconeras tienen barandas de hierro ornamental y están coronados con un entablamento corrido sostenido por ménsulas decorativas. En adición, modulando la fachada hay pilastras acanaladas que se alzan hasta el segundo nivel y sostienen un entablamento corrido con molduras, cornisas, un friso decorativo y sobre el entablamento descansa una balaustrada que rodea el techo a modo de balcón abierto. Por otra parte, al extremo izquierdo hay un edificio adosado. El edificio Moscoso Hermano & Co. fue construido a principios del siglo XX. Originalmente fue utilizado como establecimiento comercial hasta hace unos años cuando fue restaurado y habilitado para albergar oficinas municipales del pueblo de Ponce.

Condado Vanderbilt - San Juan (Condado) - 2013 00070

Condado Vanderbilt - San Juan (Condado) - 2013 00070



Vista del patio trasero del Hotel Condado Vanderbilt ubicado en la avenida Ashford del pueblo costero de San Juan. El hotel es de varios niveles con techo a cuatro aguas revestido por tejas y características del estilo resurgimiento español. El patio trasero tiene el piso cubierto por baldosas de cerámica. Además, está rodeado por una balaustrada de cristal modulada por pilares cuadrados que dan paso a la costa del océano atlántico. Hay plantas en macetas decorativas, muebles de jardín, mesas con sombrillas a juego, remates decorativos con formas cónicas y un gazebo rodeado por puertas de cristal y aleros saledizos. Por otra parte, la fachada trasera del edificio tiene ventanas dobles de madera en dos tamaños y una extensión moderna de un nivel con amplios ventanales de cristal interrumpidos por columnas cuadradas. También se puede ver una de las torres laterales del hotel con techo a cuatro aguas, ventanas dobles enmarcadas con molduras y balcones con balaustradas de cristal. Además, el ascensor está dentro de una cabina que sobresale con forma triangular. El Hotel Condado Vanderbilt fue comisionado en 1917 por Frederick William Vanderbilt. Finalmente el 16 de octubre de 1919 fue inaugurado el primer gran hotel de lujo del Caribe. En el año 1930 fue vendido y pasó a llamarse Hotel Condado, posteriormente en 1940 se convirtió en el primer hotel en la isla en tener un casino. Además, en 1950 volvieron a cambiar su nombre a Condado Beach Hotel y se añadieron habitaciones, salones de actividades y un restaurante. Luego de considerar su demolición fue incluido en el Registro Nacional de Lugares Históricos en el año 1988. Más recientemente fue remodelado entre los años 2008 a 2014 por los arquitectos Thomas S. Marvel y José Marchand Sifre añadiendo dos torres de suites modernas. Además, la planificación y restauración de los espacios estuvo a cargo del Arquitecto Jonathan Parks y la firma SOLSTICE Planning and Architecture. Los diseños interiores estuvieron a cargo del diseñador Jorge Roselló.

Calle de la Fortaleza 56 - Antigua Real Audiencia - Conservatorio De Artes Del Caribe - San Juan (Viejo San Juan) - 2012 00011

Calle de la Fortaleza 56 - Antigua Real Audiencia - Conservatorio De Artes Del Caribe - San Juan (Viejo San Juan) - 2012 00011



Antigua Real Audiencia, calle de la Fortaleza en el Viejo San Juan. Vista, al atardecer, de la Torre Meteorológica y de Observación ubicada en el techo de la casa de dos pisos estilo colonial español. Se puede ver la torre desde el techo de uno de los edificios aledaños. La torre octagonal fue construida en mampostería, acero y madera. La sección de mampostería tiene un óculo en una de las paredes y una cornisa con ménsulas. Sobre ésta se encuentra el área de observación, que es de madera y consiste de una puerta y ventanas con celosías, tiene una cúpula de metal con un remate esférico y está protegida por una baranda. Se pueden ver segmentos de los techos de algunos edificios aledaños. Al fondo se divisa parte del techo de La Fortaleza y la cúpula de la torre de la capilla del antiguo Convento de la Sierva de María y tras estos, la bahía de San Juan. Originalmente esta casa fue la residencia del Dr. Francisco Oller y Ferrer, abuelo del pintor Francisco Oller y Cestero. En 1831 fue vendida al Estado y el 1832 pasó a ser la primera sede de la Real Audiencia Territorial. Alrededor del 1898 fue arrendado al Departamento de Agricultura de Estados Unidos y en otro momento se usó como Departamento de Estado. En 1992 la edificación fue dedicada a Don Fernando Chardón. Luego de un periodo de abandono fue restaurada en el año 2000 y asignada a las oficinas de Guías Turísticos y de Programas Federales adscritos a la Oficina del Gobernador. La Torre Meteorológica y de Observación fue diseñada por el ingeniero Manuel Maese, la orden para su construcción fue emitida en 1883.

Condado Vanderbilt - San Juan (Condado) - 2013 00034

Condado Vanderbilt - San Juan (Condado) - 2013 00034



Vista del interior del Hotel Condado Vanderbilt ubicado en la avenida Ashford del pueblo costero de San Juan. El hotel es de varios niveles con características del estilo resurgimiento español. El salón de actividades tiene el piso cubierto por una alfombra con patrones florales y colores difusos. El techo está dividido por vigas expuestas y decorado con lámparas colgantes de vidrio. La pared de fondo tiene un espejo semicircular enmarcado y las paredes laterales tienen arcos semicirculares coronados con espinazos, entablamentos y flanqueados por lámparas de pared a ajuego con las del techo. Además, en ambos extremos hay puertas dobles de cristal, las del extremo derecho cubiertas por cortinas de tela bajo arcos semicirculares y presididas por arcadas formando un corredor con techo abovedado. El Hotel Condado Vanderbilt fue comisionado en 1917 por Frederick William Vanderbilt. Finalmente el 16 de octubre de 1919 fue inaugurado el primer gran hotel de lujo del Caribe. En el año 1930 fue vendido y pasó a llamarse Hotel Condado, posteriormente en 1940 se convirtió en el primer hotel en la isla en tener un casino. Además, en 1950 volvieron a cambiar su nombre a Condado Beach Hotel y se añadieron habitaciones, salones de actividades y un restaurante. Luego de considerar su demolición fue incluido en el Registro Nacional de Lugares Históricos en el año 1988. Más recientemente fue remodelado entre los años 2008 a 2014 por los arquitectos Thomas S. Marvel y José Marchand Sifre añadiendo dos torres de suites modernas. Además, la planificación y restauración de los espacios estuvo a cargo del Arquitecto Jonathan Parks y la firma SOLSTICE Planning and Architecture. Los diseños interiores estuvieron a cargo del diseñador Jorge Roselló.

Archivo General - Antiguo Hospital Civil - San Juan (Puerta de Tierra) - 2010 00011

Archivo General - Antiguo Hospital Civil - San Juan (Puerta de Tierra) - 2010 00011



Vista frontal del Archivo General y Biblioteca Nacional de Puerto Rico ubicado en la comunidad de Puerta de Tierra del pueblo costero de San Juan. El edificio es de tres niveles en mampostería y ladrillo con características del estilo neoclásico. Está pintado en tonos de amarillo y color blanco. El primer nivel tiene zonas estriadas además, tiene ventanas de madera color azul y cristal con persianas coronadas con soles truncos bajo arcos de medio punto enmarcados con molduras planas. La ventana del segundo nivel está coronada con espinazo y al pie tienen molduras salientes a modo de base. Modulando las ventanas hay pilastras en pares de dos que se alzan y sostienen una cornisa corrida del segundo nivel sobre el cual se proyecta un parapeto bajo. Además, al extremo derecho del edificio hay un edificio continuo pintado de color amarillo y color blanco con ventanas de cristal. El antiguo Hospital Civil fue el último edificio erigido por el gobierno Español en la Isla entre los años 1877-1887. A pesar de que fue construido como hospital fue utilizado como Cárcel provincial y posteriormente como destilería. Años más tarde, ante una amenaza de demolición el Instituto de Cultura Puertorriqueña lo adquirió y lo restauró para albergar documentos históricos. A partir del año 1973 trasladaron el Archivo General y la Biblioteca Nacional de Puerto Rico a este espacio. Además, el edificio fue incluido en el Registro Nacional de Lugares Históricos en el año 1976.

Hacienda Santa Ana - Bayamón

Hacienda Santa Ana - Bayamón



Hacienda Santa Ana en Bayamón. Dibujo arquitectónico de la casona de la Hacienda. El edificio es de dos niveles con un estilo arquitectónico ecléctico. Exhibe una gran escalera central con escalones curvos, más ancha abajo que arriba, lo que la hace lucir como un abanico invertido. La escalera conduce al pórtico ubicado en el segundo piso donde se observan cuatro puertas dobles. Este tiene arcadas con columnas gruesas y capiteles cuadrangulares que se extienden a lo ancho de toda la fachada, en ambos pisos. Los arcos del primer piso tienen pilares lisos y dan acceso a varias puertas de la casa. La arcada del segundo piso tiene barandas con ornamentos en el centro. Se puede apreciar un techo a cuatro aguas y un pequeño balcón sobresaliendo en la fachada izquierda. La Casona de la Hacienda Santa Ana reside en terrenos conferidos en 1787 por el rey Carlos III al capitán Fernando Fernández, corsario español que rendía servicios a la corona. A partir de 1804, el capitán comenzó a sembrar caña de azúcar y a destilar ron en la propiedad para su uso personal, pero no fue hasta 1880 cuando su bisnieto Pedro Fernández y su hijo Edmundo desarrollaron la fórmula y el proceso de destilación del conocido Ron del Barrilito. Además de la casona, la Hacienda abarca la tonelería, el trapiche, el área de añejamiento y el área de embotellamiento y empaque. Estas instalaciones, que también sirven como museo, continúan produciendo el popular ron, así como el alcoholado medicinal Santa Ana.

Catedral de Nuestra Señora de la Guadalupe - Ponce - 2014 00019

Catedral de Nuestra Señora de la Guadalupe - Ponce - 2014 00019



Vista desde el interior de la Catedral de Nuestra Señora de la Guadalupe ubicada en el pueblo costero de Ponce. La catedral es de dos niveles en mampostería y ladrillo con características del estilo Neoclásico. El interior de la catedral está dividido en tres naves, la nave central tiene bancos de madera. Además, el techo es abovedado de crucería de cuatro plementos resaltados con lámparas colgantes de vidrio. En una de las naves laterales se pueden distinguir una arcada de arcos semicirculares sostenida por columnas dóricas triples. También se pueden ver ventanas de vidrio pintado, lámparas de pared, una estatua religiosa, una puerta doble de madera y un confesionario también de madera. Al fondo, se distingue un altar presidido por una balaustrada y más bancos de madera. Decorando el altar hay una mesa revestida con un mantel de tela y en la pared de fondo un retablo. Los inicios de la Catedral de Nuestra Señora de la Guadalupe datan de 1670 cuando apenas era una ermita de yagua y palma, fue clausurada en 1820 por las malas condiciones del edificio. El comienzo de la construcción de la iglesia actual data de 1835 y fue inaugurada en 1839. Sin embargo, el terremoto de 1918 destruyó ambas torres por lo que pasó a ser reconstruida con un diseño nuevo entre 1918 y 1937. Años más tarde, en 1984 fue incluida en el Registro Nacional de Lugares Históricos. Posteriormente fue restaurada nuevamente en 1992.

Hacienda Santa Ana - Bayamón - 2011 00021

Hacienda Santa Ana - Bayamón - 2011 00021



Hacienda Santa Ana en Bayamón. Perspectiva de la fachada lateral de la casona de la Hacienda. El edificio es de dos niveles construido en mampostería de ladrillos con un estilo arquitectónico ecléctico. Se observa un balcón en voladizo con ménsulas, barandas y rejas de hierro ornamental. En el centro de la pared hay dos ventanas de madera debajo de un pequeño tejado y otra en el primer nivel con una cornisa de cemento. Una base color terracota rodea el edificio. Se observan también dos pórticos con arcos en ambos niveles; el del segundo nivel tiene una baranda de hierro ornamental y cornisas a los lados. El patio se compone de un pasillo de cemento que bordea la casona y la grama. Al fondo se puede ver el antiguo molino o trapiche de la Hacienda que data de 1825 y servía para la maceración de la caña. La Casona de la Hacienda Santa Ana reside en terrenos conferidos en 1787 por el rey Carlos III al capitán Fernando Fernández, corsario español que rendía servicios a la corona. A partir de 1804, el capitán comenzó a sembrar caña de azúcar y a destilar ron en la propiedad para su uso personal, pero no fue hasta 1880 cuando su bisnieto Pedro Fernández y su hijo Edmundo desarrollaron la fórmula y el proceso de destilación del conocido Ron del Barrilito. Además de la casona, la Hacienda abarca la tonelería, el trapiche, el área de añejamiento y el área de embotellamiento y empaque. Estas instalaciones, que también sirven como museo, continúan produciendo el popular ron, así como el alcoholado medicinal Santa Ana.

Condado Vanderbilt - San Juan (Condado) - 2013 00209

Condado Vanderbilt - San Juan (Condado) - 2013 00209



Vista desde el interior del Hotel Condado Vanderbilt ubicado en la avenida Ashford del pueblo costero de San Juan. El hotel es de varios niveles con características del estilo resurgimiento español. Los espacios interiores están pintados en varios tonos de color rosa. El vestíbulo tiene dos niveles con pisos de mármol y lámparas de pared metálicas. El interior está dividido en naves con techos abovedados. La nave lateral tiene un corredor en donde hay una puerta doble de madera y cristal bajo un arco semicircular. Además, las naves están separadas por arcos semicirculares coronados con pequeños emblemas metálicos y una balaustrada de hierro ornamental con pasamano de madera. El Hotel Condado Vanderbilt fue comisionado en 1917 por Frederick William Vanderbilt. Finalmente el 16 de octubre de 1919 fue inaugurado el primer gran hotel de lujo del Caribe. En el año 1930 fue vendido y pasó a llamarse Hotel Condado, posteriormente en 1940 se convirtió en el primer hotel en la isla en tener un casino. Además, en 1950 volvieron a cambiar su nombre a Condado Beach Hotel y se añadieron habitaciones, salones de actividades y un restaurante. Luego de considerar su demolición fue incluido en el Registro Nacional de Lugares Históricos en el año 1988. Más recientemente fue remodelado entre los años 2008 a 2014 por los arquitectos Thomas S. Marvel y José Marchand Sifre añadiendo dos torres de suites modernas. Además, la planificación y restauración de los espacios estuvo a cargo del Arquitecto Jonathan Parks y la firma SOLSTICE Planning and Architecture. Los diseños interiores estuvieron a cargo del diseñador Jorge Roselló.

Bastión de las Palmas de San José - San Juan (Viejo San Juan) - 2013 00007

Bastión de las Palmas de San José - San Juan (Viejo San Juan) - 2013 00007



Bastión de las Palmas de San José, localizado en la esquina de las calles Tetuán y San José en el Viejo San Juan. Fue construido en el siglo XVII, en 1625 luego del ataque holandés al Viejo San Juan. Posteriormente, el Bastión de las Palmas de San José fue un parque. Perspectiva nocturna desde la parte posterior del antiguo edificio de la Cámara de Comercio de Puerto Rico. El edificio fue diseñado en 1926 por el arquitecto Antonín Nechodoma para ser la sede del Federal Land Bank of Baltimore en Puerto Rico. Anteriormente, se le conocía como la Lonja de Valores y Víveres de San Juan. En 1937 fue adquirido por la Cámara de Comercio de Puerto Rico y en 2019 fue vendido a un privado. El edificio está pintado de color anaranjado y blanco. Tiene ventanas suspendidas, ventanas con bisagras y un pórtico. Se observa una muralla de mampostería en piedra, una baranda y macetas con arbustos. Al lado de este edificio, se encuentra otro edificio pintado de color gris y blanco. Tiene molduras blancas, parapetos, cornisas, ventanas de celosía y de cristal. Detrás de este edificio, se divisa el Banco Popular de Puerto Rico. El edificio está pintado de color crema y es representativo del estilo art déco. Fue diseñado por el arquitecto Chauncey W. Riley y construido por los ingenieros Juan M. Beltrán Carrasquillo, Manuel Miró y Saurí y José Benítez Gautier. Se puede observar una torre que tiene un reloj y un letrero que dice: "Banco Popular". En el lado derecho del panorama se ubica el Paseo de la Princesa. Se contemplan varios árboles, palmas y farolas. También se puede ver el techo en forma de arco semicircular del muelle 1 en la bahía de San Juan. De igual forma, se divisa el edificio del Antiguo Correo y Corte Federal José V. Toledo, el cual tiene una combinación de estilos arquitectónicos, como el beaux arts, federal y renacimiento español. El edificio fue diseñado por Oscar Wenderoth y está pintado de color crema y terracota. Tiene dos torres coronadas por linternas con pináculos y tejas árabes. Se notan las ventanas rectangulares de cristal y los parapetos. El edificio fue incluido en el Registro Nacional de Lugares Históricos en 1986. Además, se ven varios edificios altos al otro lado de la bahía.

Antiguo Acueducto de Río Piedras - Documentación Aérea - San Juan (Río Piedras) - 2013 00008

Antiguo Acueducto de Río Piedras - Documentación Aérea - San Juan (Río Piedras) - 2013 00008



Vista aérea de la casa de bombeo, la casa de filtros y bombas y la residencia de ingenieros y cuidadores que forman parte del sitio del antiguo acueducto de Río Piedras, en San Juan. Este conjunto de edificios refleja los estilos arquitectónicos de la historia del sitio, entre estos el colonial español, renacimiento clásico y neoclásico. La casa de bombeo es un edificio de mampostería de piedra caliza y ladrillo enyesado, de un piso y con cubierta a dos aguas con paneles de metal corrugado o cinc, diseñado en 1892 por Henry Thomas Granger. Una chimenea de ladrillo con forma cónica octogonal de una altura de 80 pies con elementos neoclásicos se encuentra en la elevación este de la casa de bombeo. La casa de filtros y bombas es un edificio de hormigón armado, de un nivel con forma de "L" y cubierta plana. Este edificio fue diseñado por Carlos del Valle Zeno y construido en 1923 en sustitución de un edificio de madera previo. Al lado, se ubica la residencia de ingenieros y cuidadores diseñada por Fernando Alameda en 1887. Su construcción tuvo lugar entre 1892 y 1894 y se emplearon materiales como la piedra caliza y mampostería. Después de 1923 el edificio fue alterado para acomodar nuevos usos, entre estos, funcionó como almacén y posteriormente como laboratorio de calidad del agua desde 1923-1980. La planificación del histórico Acueducto de Río Piedras inició en 1846 mediante una serie de propuestas y su construcción inició a partir de 1892 con periodos de construcción adicionales que continuaron hacia el temprano siglo XX. Este acueducto fue el primero de la ciudad de San Juan. La planta operó desde el tardío siglo XIX hasta la década de 1980. El sitio ha estado vacante desde 1980 y es propiedad del Fideicomiso de Conservación de Puerto Rico y está dirigido por la organización local sin fines de lucro "Para La Naturaleza" que utiliza el sitio para actividades de educación ambiental.

Banco Popular de Puerto Rico - San Juan (Viejo San Juan) - 2012 00010

Banco Popular de Puerto Rico - San Juan (Viejo San Juan) - 2012 00010



Banco Popular de Puerto Rico localizado en el Viejo San Juan. Fue inaugurado en 1939 y diseñado por el arquitecto Chauncey W. Riley y construido por los ingenieros José Benítez y Gautier, Manuel Miró y Saudí y Juan M. Beltrán Carrasquillo. El banco fue construido donde originalmente se ubicaba el Banco Territorial y Agrícola de Puerto Rico a finales del siglo XIX. Su estilo arquitectónico es representativo del art déco. La imagen es una vista de lejos tomada en la noche del Banco Popular de Puerto Rico desde la calle Tetuán. Se observa que en la parte superior del edificio hay un letrero con luces blancas que lee: "Banco Popular" y debajo se ve un reloj. En el lado izquierdo de la imagen se aprecia un edificio con balcón, balaustradas, cornisas, pilastras, arcos semicirculares con claves y faroles de pared. En el centro de la imagen se ven automóviles y la calle adoquinada. En el lado derecho de la imagen se ubica el antiguo edificio de la Cámara de Comercio de Puerto Rico. Fue diseñado en 1926 por el arquitecto Antonín Nechodoma para ser la sede del Federal Land Bank of Baltimore en Puerto Rico. Anteriormente se le conocía como la Lonja de Valores y Víveres de San Juan. En 1937 fue adquirido por la Cámara de Comercio de Puerto Rico y en el 2019 fue vendido a un privado. El edificio está pintado de color anaranjado y blanco. Posee unas escalinatas con barandas, dos columnas que sostienen un letrero que dice: "Cámara de Comercio" y ventanas rectangulares. Al lado de este edificio se encuentra un edificio de color azul y blanco que tiene parapetos, cornisas y balconeras con ventanas dobles de madera.

Archivo General - Antiguo Hospital Civil - San Juan (Puerta de Tierra) - 2011 00014

Archivo General - Antiguo Hospital Civil - San Juan (Puerta de Tierra) - 2011 00014



Vista frontal y lateral del Archivo General y Biblioteca Nacional de Puerto Rico ubicado en la comunidad de Puerta de Tierra del pueblo costero de San Juan. El edificio es de tres niveles en mampostería y ladrillo con características del estilo neoclásico. Está pintado en tonos de amarillo y color blanco. Desde el Parque Luis Muñoz Rivera se puede ver la calle pavimentada, vehículos estacionados enfrente y el edificio. El primer nivel tiene zonas estriadas además, tiene ventanas de madera pintadas de color azul y cristal con persianas y soles truncos bajo arcos de medio punto enmarcados con molduras planas. Las del segundo nivel están coronadas con espinazos y al pie tienen molduras salientes a modo de bases. Modulando las ventanas hay pilastras en pares de dos que sostienen una cornisa corrida y a su vez se alzan y sostienen el entablamento del segundo nivel sobre el cual se proyecta un parapeto bajo. La fachada frontal es oblicua y en medio tiene la entrada a bajo un arco de medio punto enmarcado con molduras planas. Sobre esta hay una ventana como las demás flanqueada por columnas pares que a su vez sostienen un frontón triangular. El antiguo Hospital Civil fue el último edificio erigido por el gobierno Español en la Isla entre los años 1877-1887. A pesar de que fue construido como hospital fue utilizado como Cárcel provincial y posteriormente como destilería. Años más tarde, ante una amenaza de demolición el Instituto de Cultura Puertorriqueña lo adquirió y lo restauró para albergar documentos históricos. A partir del año 1973 trasladaron el Archivo General y la Biblioteca Nacional de Puerto Rico a este espacio. Además, el edificio fue incluido en el Registro Nacional de Lugares Históricos en el año 1976.

Condado Vanderbilt - San Juan (Condado) - 2013 00144

Condado Vanderbilt - San Juan (Condado) - 2013 00144



Vista desde el balcón frontal del Hotel Condado Vanderbilt ubicado en la avenida Ashford del pueblo costero de San Juan. El hotel es de varios niveles y características del estilo resurgimiento español. La fachada frontal del hotel tiene una entrada vehicular acompañada por zonas ajardinadas. Además, en los alrededores se distinguen varios edificios en la avenida Ashford como el Condominio Bristol. El condominio Bristol data de 2006 diseñado por el arquitecto Gonzalo M. Ferrer y el diseño interior de Jean Pierre Santoni. El Hotel Condado Vanderbilt fue comisionado en 1917 por Frederick William Vanderbilt. Finalmente el 16 de octubre de 1919 fue inaugurado el primer gran hotel de lujo del Caribe. En el año 1930 fue vendido y pasó a llamarse Hotel Condado, posteriormente en 1940 se convirtió en el primer hotel en la isla en tener un casino. Además, en 1950 volvieron a cambiar su nombre a Condado Beach Hotel y se añadieron habitaciones, salones de actividades y un restaurante. Luego de considerar su demolición fue incluido en el Registro Nacional de Lugares Históricos en el año 1988. Más recientemente fue remodelado entre los años 2008 a 2014 por los arquitectos Thomas S. Marvel y José Marchand Sifre añadiendo dos torres de suites modernas. Además, la planificación y restauración de los espacios estuvo a cargo del Arquitecto Jonathan Parks y la firma SOLSTICE Planning and Architecture. Los diseños interiores estuvieron a cargo del diseñador Jorge Roselló.

Logia Adelphia - Mayagüez - 2012 00011

Logia Adelphia - Mayagüez - 2012 00011



Fachada de la Logia Adelphia, localizada en el municipio de Mayagüez. El edificio es de hormigón y se compone de dos niveles. El tramo central se caracteriza por una puerta de entrada arqueada y ornamentada con una moldura denticulada. La puerta, además, exhibe el símbolo masónico compuesto por la letra G, una escuadra y un compás. Sobre la puerta principal se proyecta un antepecho o barandilla de metal y tres ventanas arqueadas de madera con lumbreras las cuales están ornamentadas con molduras blancas. La puerta, la barandilla y las tres ventanas arqueadas están flanqueadas por dos columnas corintias y estriadas que descansan sobre pedestales. Sobre las columnas se proyecta un friso con el nombre de la logia, seguido por una moldura, dentículos y un frontón triangular que también exhibe un símbolo masónico en bajo relieve. Las ventanas del primer nivel son de madera con lumbreras y están enmarcadas en arcos adintelados y, decoradas con molduras, paneles y medallones. Las ventanas del segundo nivel también son de madera con lumbreras y exhiben antepechos o barandillas de metal y molduras blancas. La transición del primer al segundo nivel está acentuada por una moldura denticulada. La parte superior del edificio se distingue por un parapeto con balaustrada. En la primera planta también es visible una balaustrada interrumpida por un portón que da acceso al edificio. La superficie de la logia es de color amarillo y gris con detalles de blanco. La Logia Adelphia fue la primera logia masónica que existió en Puerto Rico y se fundó en 1871. En el 1912 se diseñó y construyó el edificio que alberga la Logia Adelphia en Mayagüez. El edificio combina elementos arquitectónicos de diferentes periodos de tiempo y culturas, creando un diseño con influencias del vocabulario clásico español y morisco. La Logia Adelphia constituye un importante ejemplo de la arquitectura de principios de siglo XX en Puerto Rico.

Edificios en Miramar - San Juan (Miramar) - 2011 00015

Edificios en Miramar - San Juan (Miramar) - 2011 00015



Vista de una de las entradas de un conjunto arquitectónico compuesto de tres casas en la calle Unión 659, en Miramar, San Juan. Este conjunto de casas fue diseñado en el estilo resurgimiento español. Su composición consiste de paredes de hormigón armado y techo de madera y cinc. La entrada está acentuada por una escalera con los escalones cubiertos con losetas de color terracota flanqueado por una baranda de metal. Esta escalera conduce hacia un balcón caracterizado por una balaustrada, arcos de medio punto, molduras, columnas de fuste acanalado y rejas ornamentales. Además, es visible un volumen circular que se caracteriza por exhibir pilastras de fuste acanalado, molduras y ventanas apersianadas. En un extremo se encuentra un muro bajo coronado con reja que funciona como cerca separando el conjunto de residencias de su entorno inmediato. La superficie está pintada de tonalidades de azul que contrastan con detalles de blanco. Las tres casas se construyeron como un conjunto arquitectónico único entre los solares que originalmente, en el 1903, eran los números 180 y 182. En 1908, el solar 180 fue adquirido por el obispo William Jones, mientras que en el año 1907 el 182 fue adquirido por Salvador Nicolau. Posteriormente, los solares se agruparon y se construyeron tres casas para las hermanas González Padín. Para el 1920, luego de ser segregadas en tres propiedades, fueron ocupadas por las familias de Manuel Suárez Acevedo, Augusto Ferrer Cotte y Antonio Lema Cuervo. Un elemento distintivo de estas tres casas es que aparenta ser una construcción o gran casona palaciega.

Teatro Yagüez - Mayagüez - 2011 00038

Teatro Yagüez - Mayagüez - 2011 00038



Detalle de las butacas de la sala principal y los palcos del Teatro Yagüez, localizado en las calles McKinley y Basora del municipio de Mayagüez. Las butacas son de color rojo y contrastan con las yeserías ornamentales blancas en los parapetos que delimitan los palcos. Entre los pilares de los palcos se ubican cortinas de color rojo y lámparas de pared. También es notable parcialmente la lámpara de cristal que corona el centro del teatro. En su origen, en 1909, el teatro fue diseñado y construido de madera, acero y cinc, y se le conoció como la Casa del Arte Sonoro. El dueño original de este teatro fue Francisco Maymón Palmer. En el año 1919 un fuego consumió el edificio. En 1920 se llevó a cabo un nuevo diseño de estilo ecléctico, integrando materiales como el hormigón, la madera, el cristal, el mármol italiano y el yeso para las ornamentaciones. Durante la década de 1950 el teatro mostró signos de deterioro y en el periodo de 1977 a 1984 se llevaron a cabo trabajos de restauración bajo el auspicio del municipio de Mayagüez. Asimismo, durante el periodo de 2002 a 2008 se realizó una tercera restauración al teatro. Este teatro constituye uno de los principales escenarios artísticos y de gran valor histórico en el área oeste de Puerto Rico por acoger a importantes orquestas y compañías de drama y danza. Su arquitectura refleja elementos del neoclásico europeo, el neobarroco y de la arquitectura de principios del siglo XX que se conoció como la Belle Époque.

Banco Crédito y Ahorro Ponceño - 2014 00003

Banco Crédito y Ahorro Ponceño - 2014 00003



Vista del Banco de Crédito y Ahorro Ponceño ubicado frente a la plaza pública en el pueblo costero de Ponce. En primer plano, se divisa un extremo del Antiguo Banco de Ponce de dos niveles y características del estilo Beaux Arts. Al otro extremo se distingue el edificio del Banco de Ahorro Ponceño, el cual es achaflanado, de dos niveles en mampostería y concreto con características del estilo Beaux Arts. Sin embargo, la fachada exterior está dividida en tres niveles. En el primer nivel tiene ventanas bajo arcos semicirculares cubiertas por rejas de hierro, coronadas con espinazos y una puerta bajo un arco semicircular enmarcado con molduras y coronada con un travesaño de cristal. El segundo nivel tiene puertas dobles estilo francés enmarcadas con molduras ornamentales y presididas por balaustradas. Además, están articuladas por pilastras acanaladas de orden corintio que se extienden hasta el nivel adicional sosteniendo un entablamento corrido decorado con guirnaldas, dentículos, una cornisa superior saliente con ménsulas y una inscripción que dice: "Crédito y Ahorro Ponceño". El tercer nivel tiene una barandilla con balaustres entre frontones con medallones con vidrieras, el de en medio con un reloj, todos tienen molduras ornamentales y detalles en relieve. A su vez, el techo es en forma de mansarda. El Banco de Crédito y Ahorro Ponceño se fundó en 1895, sin embargo no es hasta 1924 y 1925 cuando se construye este emblemático edificio. Permaneció en uso continuo hasta 1978 cuando el Banco Popular de Puerto Rico y el Banco Santander compraron las acciones de este. A pesar de eso en 1987 el edificio fue incluido en el Registro Nacional de Lugares Históricos. En adición, desde el 2022 es la sede del medio noticioso La Perla del Sur.

Archivo General - Antiguo Hospital Civil - San Juan (Puerta de Tierra) - 2011 00011

Archivo General - Antiguo Hospital Civil - San Juan (Puerta de Tierra) - 2011 00011



Vista frontal del Archivo General y Biblioteca Nacional de Puerto Rico ubicado en la comunidad de Puerta de Tierra del pueblo costero de San Juan. El edificio es de tres niveles en mampostería y ladrillo con características del estilo neoclásico. Está pintado en tonos de amarillo y color blanco. El primer nivel tiene ventanas de madera y cristal con persianas y soles truncos bajo arcos de medio punto enmarcados con molduras planas pintadas de color azul. Las del segundo nivel están coronadas con espinazos y al pie tienen molduras salientes a modo de bases. Por otra poarte, modulando las ventanas hay pilastras en pares de dos que sostienen una cornisa corrida, a su vez se alzan y sostienen el entablamento del segundo nivel sobre el cual se proyecta un parapeto bajo. El entablamento tiene cornisas, molduras y triglifos. El antiguo Hospital Civil fue el último edificio erigido por el gobierno Español en la Isla entre los años 1877-1887. A pesar de que fue construido como hospital fue utilizado como Cárcel provincial y posteriormente como destilería. Años más tarde, ante una amenaza de demolición el Instituto de Cultura Puertorriqueña lo adquirió y lo restauró para albergar documentos históricos. A partir del año 1973 trasladaron el Archivo General y la Biblioteca Nacional de Puerto Rico a este espacio. Además, el edificio fue incluido en el Registro Nacional de Lugares Históricos en el año 1976.

Oficina de Telégrafo y Teléfono - 12000396

Oficina de Telégrafo y Teléfono - 12000396



Vista de fachada principal de la Oficina de Telégrafo y Teléfono, ubicada en Guaynabo. Se observa un edificio de un solo nivel con diseño simétrico estilo Art Deco. Los muros están hechos de hormigón armado con acabado liso y molduras verticales. Tiene un volumen central saliente, con una entra da principal ligeramente elevada sobre una plataforma de tres escalones, enmarcada por pilastras con relieves geométricos. La puerta principal está protegida por un portón de metal y está flanqueada por dos ventanas con bloques de cristal y rejas metálicas. Sobre la puerta y ventanas se aprecian aleros curvos con molduras lineales horizontales. Sobre la entrada, tiene un monograma con las letras "AC" (Autoridad de Comunicaciones) y cuatro medallones decorativos en relieve con motivos simbólicos de telecomunicaciones. A ambos lados del acceso, tiene la inscripción en relieve de las palabras "Teléfono" a la izquierda y "Telégrafo" a la derecha. Al frente, una verja ornamental de hierro delimita el jardín, con plantas decorativas frente a la fachada. La Oficina de Telégrafo y Teléfono, también conocida como "Telegraph and Telephone Station", fue construida en 1948 como parte de un prototipo arquitectónico diseñado por la Autoridad de Comunicaciones de Puerto Rico para unificar los servicios de teléfono y telégrafo en una misma instalación. Hubo una ampliación posterior en 1958, agregando un volumen en la esquina noreste del edificio. El edificio fue uno de solo tres construidos en este estilo en la isla, y es el único que permanece en pie. El edificio operó hasta 1964, cuando fue reemplazado por una nueva central telefónica con mayor capacidad. Posteriormente, fue reutilizado por el municipio para fines comunitarios y culturales.

Parque de Bombas - Ponce - 2014 00005

Parque de Bombas - Ponce - 2014 00005



Vista frontal del antiguo Parque de Bombas ubicado en la Plaza Las Delicias del pueblo costero de Ponce. El edificio es de dos niveles en madera con forma rectangular flanqueado por una torre en cada extremo y techo de láminas de metal corrugado. Su diseño tiene características de los estilos morisco y gótico victoriano del cual resalta la policromía creada por franjas negras y rojas. En el primer nivel se distingue la marquesina sostenida por columnas en donde hay vehículos antiguos y el borde decorado con un lambrequín. A cada extremo se pueden ver vanos trilobulados enmarcados con molduras planas. Además, en el segundo nivel se distinguen ventanas rectangulares enmarcadas con molduras planas y coronadas con soles truncos. También hay soles truncos de diferentes tamaños y una inscripción que dice: “Parque de Bombas 1883”. Las torres están acompañadas de un lambrequín que se extiende por todo el voladizo. Se repite de la misma manera en el borde de las torres. Por otra parte, en los alrededores se distingue la Plaza de Las Delicias decorada con postes de luz, bancos y zonas ajardinadas. En adición, se puede ver la calle pavimentada ser transitada por vehículos y los edificios que la rodean. El antiguo Parque de Bombas fue construido en 1882 como pabellón central para una feria. Fue designado oficialmente como Parque de Bombas del pueblo de Ponce en 1885 albergando a los bomberos voluntarios. Años más tarde, en 1984 fue incluido en el Registro Nacional de Lugares Históricos. A partir de 1990 es utilizado como museo en honor y conmemoración de los bomberos del pueblo de Ponce.

Calle de la Luna 277 - San Juan (Viejo San Juan) - 2014 00006

Calle de la Luna 277 - San Juan (Viejo San Juan) - 2014 00006



Calle de la Luna 277 en el Viejo San Juan. Vista parcial de la fachada de la casa rosada de dos pisos estilo neoclásico con elementos del estilo colonial español. Se observa parte del balcón en el segundo piso de la casa. Tiene una baranda de hierro con un diseño que presenta elementos geométricos intercalados con pilares formados por volutas. Tras la baranda se ve una puerta de doble hoja con celosías. Bajo el piso del balcón se divisa un segmento del friso con motivo floral que cubre el borde superior de la pared del primer nivel. También se observa un mascarón perteneciente a la moldura de uno de losa arcos del primer piso. También se puede ver un tramo de una pilastra desnuda y sobre esta, una lámpara de pared tipo farol. Calle de la Luna 277 en el Viejo San Juan. Vista parcial de la fachada de la casa rosada de dos pisos estilo neoclásico con elementos del estilo colonial español. Se observa el segundo nivel desde el el friso del primer piso hasta el friso del segundo piso. Hay un balcón descubierto con baranda de hierro que se extiende frente a tres arcos rebajados. El diseño de la baranda presenta elementos geométricos intercalados con pilares formados por volutas. Los arcos tienen molduras con ménsulas y cornisas individuales. Las puertas son de doble hoja con celosías y paneles de vidrio. Sobre los arcos se observa un friso ornamentado con pilastras estriadas cortas y con capiteles. Bajo el piso del balcón hay un soporte de madera con vigas que salen de la pared. El friso en el borde superior del primer piso tiene flores en relieve.

Hospital Civil

Hospital Civil



Dibujo arquitectónico del Archivo General y Biblioteca Nacional de Puerto Rico ubicado en la comunidad de Puerta de Tierra del pueblo costero de San Juan. El edificio es de tres niveles en mampostería y ladrillo con características del estilo neoclásico. El primer nivel tiene zonas estriadas además, tiene ventanas dobles bajo arcos de medio punto enmarcados con molduras planas. Las del segundo nivel están coronadas con espinazos y al pie tienen molduras salientes a modo de soporte. Modulando las ventanas hay pilastras en pares de dos que sostienen una cornisa corrida y a su vez se alzan y sostienen el entablamento del segundo nivel sobre el cual se proyecta un parapeto bajo. La fachada frontal tiene la entrada a través de una puerta doble de bajo un arco de medio punto enmarcado con molduras planas. Sobre esta hay una ventana como las demás, flanqueada por columnas pares de órden dórico que a su vez sostienen un frontón triangular. Coronando el edificio hay una cúpula rematada con una linterna y una cruz. También se ve en la parte superior derecha un logo que dice: “PRHBDS”. El antiguo Hospital Civil fue el último edificio erigido por el gobierno Español en la Isla entre los años 1877-1887. A pesar de que fue construido como hospital fue utilizado como Cárcel provincial y posteriormente como destilería. Años más tarde, ante una amenaza de demolición el Instituto de Cultura Puertorriqueña lo adquirió y lo restauró para albergar documentos históricos. A partir del año 1973 trasladaron el Archivo General y la Biblioteca Nacional de Puerto Rico a este espacio. Además, el edificio fue incluido en el Registro Nacional de Lugares Históricos en el año 1976.

Gran Logia Espiritual Número 1 - 06000507

Gran Logia Espiritual Número 1 - 06000507



Vista oblicua de fachada de la Gran Logia Espiritual Número 1, también conocida como la Gran Logia de Puerto Rico, o Casa de las Almas, ubicada en Santurce, un sector del Municipio de San Juan. El edificio de tres niveles en hormigón fue diseñado por Luis F. Delgado y Juan Rivera París, y se construyó en 1928 utilizando mano de obra voluntaria de seguidores del pensamiento filosófico espiritista en Puerto Rico. La primera piedra angular del edificio se colocó el 29 de noviembre de 1926. La fachada principal utiliza elementos abstractos de origen Clásico. Cada nivel se diferencia del otro por una transición de vanos —desde un balcón abierto en el primer nivel hasta solo tres ventanas en el segundo y tercer nivel— y columnas de sección cuadrada en el primer piso que se transforman en pilastras en el segundo nivel y en el muro de fachada en el tercero. La fachada está coronada por un sencillo frontón con un relieve que forma el nombre y fecha de construcción que lee: "Logia Espiritual Número 1, Casa de las Almas, 1928". También se observa un mástil con una bandera. Debajo del frontón hay hileras de ventanas de lamas horizontales de metal, con paneles en relieve de hormigón texturizado justo debajo de cada una. Las ventanas del segundo nivel están coronadas con tres molduras de hormigón que se repiten en el primer nivel. Originalmente, las ventanas eran de madera, abatibles y con cristales, siendo luego sustituidas por las actuales. Los tres grandes arcos planos en el primer nivel están protegidos por rejas metálicas verticales y columnas con molduras sencillas. El arco central es la única puerta de acceso al edificio. La fachada lateral exhibe ventanas de estilo similar en los tres niveles con aleros pequeños de diseño escalonado. El entorno urbano incluye una calle estrecha con varios automóviles frente al edificio, así como cables eléctricos colgando de postes. El edificio está ubicado en el mismo terreno donde el Sr. Balbino Vázquez y su esposa María Cruz Carpintero fundaron el Centro Espiritista en 1910. Ambos eran médiums y utilizaban su residencia para celebrar reuniones. En 1922, añadieron una sala de reuniones de madera con capacidad para trescientas personas y la denominaron Casa de las Almas. El espiritismo, un movimiento filosófico que se extendió por Europa, Estados Unidos y Latinoamérica en el siglo XIX, tiene sus orígenes en el pensamiento de Allan Kardec y sus principios fundamentales combinan filosofía y ciencia. Tuvo especial atractivo entre los profesionales de clase media, quienes lo consideraban progresista. Los primeros centros espiritistas en Puerto Rico surgieron en la década de 1870. El Sr. Vázquez, carpintero de profesión y responsable de las obras de construcción del Centro, falleció en 1937. Su testamento y documento público especificó que el edificio y el terreno serían administrados por la Junta Directiva de la Gran Logia y que el edificio no se utilizaría para ningún otro propósito que no fuera el original. En caso de que la Gran Logia cesase sus funciones, el edificio pasaría a manos del gobierno de Puerto Rico, que solo podría utilizarlo con fines benéficos o educativos. Afortunadamente, nunca ha sido necesario aplicar ninguna de estas estipulaciones, ya que la Gran Logia, organización sin fines de lucro, ha seguido funcionando como centro de estudio comunitario y promotor de las posturas filosóficas de la Doctrina Espírita desde su fundación hasta la actualidad. El edificio se ha conservado con integridad estructural, siendo un símbolo duradero de la historia social y cultural de Puerto Rico en el siglo XX.

Ateneo Puertorriqueño - San Juan (Viejo San Juan) - 2011 00025

Ateneo Puertorriqueño - San Juan (Viejo San Juan) - 2011 00025



El Ateneo Puertorriqueño localizado en el barrio Puerta de Tierra en el Viejo San Juan. Fue fundado en 1876 y construido por el ingeniero Ramón Carbia Burt en 1923. Es la institución cultural más antigua de Puerto Rico, también se le conoce como "la Docta Casa". Su estilo arquitectónico es representativo del neoárabe. Fue nominado para el Registro Nacional de Lugares Históricos en 1984. Está pintado de color blanco y terracota. Se observa parcialmente la fachada principal. En la parte superior de la fachada tiene un alero cubierto con tejas sostenido por ménsulas de madera. También posee cuatro arcos polilobulados interrumpidos por cuatro pilastras que tienen azulejos en la parte superior. En la parte inferior de la fachada resaltan seis pilastras que sostienen un arco semicircular y entablamento cubierto de azulejos con motivos florales. La entrada del edificio posee puertas dobles de madera y en la parte superior tiene escrito "Ateneo Puertorriqueño". En el lado derecho de la imagen se ve parte de los frisos en altos relieves con representaciones de figuras humanas y una inscripción que dice: "Animi cultus humanitatis cibus". Se le conoce como el "Friso de la cultura" y fueron esculpidos por el artista italiano Arrighini. Posteriormente el Ateneo Puertorriqueño se dedicó a fomentar el teatro, música, cine, literatura, historia, ciencias, ciencias morales y políticas y las artes plásticas puertorriqueñas.

Bastión de las Palmas de San José - San Juan (Viejo San Juan) - 2013 00002

Bastión de las Palmas de San José - San Juan (Viejo San Juan) - 2013 00002



Bastión de las Palmas de San José, localizado en la esquina de las calles Tetuán y San José en el Viejo San Juan. Fue construido en el siglo XVII, en 1625 luego del ataque holandés al Viejo San Juan. El momento fue capturado en la noche y en ella se contempla una plaza con barandas, tres banquetas, personas, árboles y una muralla de mampostería en piedra. Posteriormente, el Bastión de las Palmas de San José fue convertido en un parque. En el lado izquierdo, se encuentra el Paseo de la Princesa. Se observa una torre con cúpula ubicada en la parte superior de la antigua cárcel La Princesa. El edificio tiene parapetos, cornisas, ventanas de celosía y molduras blancas. Se construyó en 1837 y fue utilizado como cárcel hasta 1976 cuando fue cerrado por problemas estructurales. En 1992 el gobierno de Puerto Rico la restauró para ser la sede de la Compañía de Turismo de Puerto Rico. Esta restauración estuvo a cargo del arquitecto Miguel Carlo. También, se nota una acera con farolas y varias palmas. En el lado derecho, se divisa la parte posterior de la Capilla del Santo Cristo de Salud, también conocida como la Capilla del Cristo. Fue construida en 1753 por el arquitecto e ingeniero militar Juan Francisco Mestre. La capilla tiene rasgos característicos del estilo arquitectónico mudéjar. Está construida en ladrillo y mampostería. De igual forma, se ve la fachada lateral del antiguo Hospital de la Concepción, que posteriormente pasó a ser el Convento y Casa de Salud Siervas de María. El edificio es de varios pisos, tiene parapetos, cornisas y se notan los vanos de las ventanas. A distancia, se encuentra la bahía de San Juan y la costa del municipio de Toa Baja.

Condado Vanderbilt - San Juan (Condado) - 2013 00182

Condado Vanderbilt - San Juan (Condado) - 2013 00182



Vista desde el interior de un salón de actividades del Hotel Condado Vanderbilt ubicado en la avenida Ashford del pueblo costero de San Juan. El hotel es de varios niveles con características del estilo resurgimiento español. El salón de actividades tiene dos columnas cilíndricas con una molduras doradas. También se pueden ver pequeños focos de luz individual en el techo y una lámpara colgante de vidrio pintado en varios colores. La lámpara tiene seis brazos y flequillos de pequeñas piezas de vidrio creando un diseño escalonado. El Hotel Condado Vanderbilt fue comisionado en 1917 por Frederick William Vanderbilt. Finalmente el 16 de octubre de 1919 fue inaugurado el primer gran hotel de lujo del Caribe. En el año 1930 fue vendido y pasó a llamarse Hotel Condado, posteriormente en 1940 se convirtió en el primer hotel en la isla en tener un casino. Además, en 1950 volvieron a cambiar su nombre a Condado Beach Hotel y se añadieron habitaciones, salones de actividades y un restaurante. Luego de considerar su demolición fue incluido en el Registro Nacional de Lugares Históricos en el año 1988. Más recientemente fue remodelado entre los años 2008 a 2014 por los arquitectos Thomas S. Marvel y José Marchand Sifre añadiendo dos torres de suites modernas. Además, la planificación y restauración de los espacios estuvo a cargo del Arquitecto Jonathan Parks y la firma SOLSTICE Planning and Architecture. Los diseños interiores estuvieron a cargo del diseñador Jorge Roselló.

Logia Adelphia - Mayagüez - 2012 00015

Logia Adelphia - Mayagüez - 2012 00015



Perspectiva de la fachada de la Logia Adelphia, localizada en el municipio de Mayagüez. El edificio es de hormigón y se compone de dos niveles. El tramo central se caracteriza por una puerta de entrada arqueada la cual está ornamentada con una moldura denticulada. Sobre la puerta principal se proyecta un antepecho o barandilla de metal y ventanas arqueadas de madera con lumbreras las cuales están ornamentadas con molduras blancas. La puerta, la barandilla y las ventanas arqueadas están flanqueadas por dos columnas corintias y estriadas que descansan sobre pedestales. Sobre las columnas se proyecta un friso con el nombre de la logia, seguido por una moldura, dentículos y un frontón triangular que exhibe un símbolo masónico en bajo relieve. Las ventanas del primer nivel son de madera con lumbreras, enmarcadas en arcos adintelados y decoradas con molduras, paneles y medallones. Las ventanas del segundo nivel también son de madera con lumbreras y exhiben antepechos o barandillas de metal y molduras blancas. La transición del primer al segundo nivel está acentuada por una moldura denticulada. La parte superior del edificio se distingue por un parapeto con balaustrada. En la primera planta también es visible una balaustrada interrumpida por un portón que da acceso al edificio. La superficie de la logia es de color amarillo y gris con detalles de blanco. A ambos lados de la logia se ubican edificios con características como arcos, rejas, pilastras, molduras, cornisas y parapetos decorados con motivos geométricos. La Logia Adelphia fue la primera logia masónica que existió en Puerto Rico y se fundó en 1871. En el 1912 se diseñó y construyó el edificio que alberga la Logia Adelphia en Mayagüez. El edificio combina elementos arquitectónicos de diferentes periodos de tiempo y culturas, creando un diseño con influencias del vocabulario clásico español y morisco. La Logia Adelphia constituye un importante ejemplo de la arquitectura de principios de siglo XX en Puerto Rico.

Teatro La Perla - Ponce - 2011 00001

Teatro La Perla - Ponce - 2011 00001



Vista frontal del Teatro La Perla ubicado entre las calles Mayor Cantera y Cristina del pueblo costero de Ponce. El edificio es de dos niveles en mampostería encalada con características del estilo neoclásico italiano. En el primer nivel, la fachada tiene ventanas dobles de madera y cristal enmarcadas con molduras planas. Dividiendo los niveles hay una moldura y una cornisa corrida. Por su parte, el segundo nivel tiene puertas dobles de madera enmarcadas con molduras, presididas por antepechos y coronadas con entablamentos que a su vez están sostenidos por ménsulas. En medio se proyecta un pórtico presidido por escaleras y sostenido por seis columnas de orden corintio. En el interior de este se pueden ver puertas y ventanas dobles de madera y cristal enmarcadas con molduras. Además, el borde superior del edificio está acompañado por un entablamento corrido con molduras, cornisas, dentículos o mútulos. Sobre este se alza un parapeto bajo. En adición, en los alrededores del edificio se distingue una escultura vertical, aceras pavimentadas y un vehículo estacionado en la calle. El Teatro La Perla data de 1864 convirtiéndose en el segundo teatro más antiguo de Puerto Rico. Tras el terremoto de 1918 y posteriormente un incendio en 1924 el edificio tuvo que ser restaurado con el diseño de Francisco Porrata Doria y Francisco Gardón. A pesar de que el diseño de la fachada exterior permaneció igual, el interior fue modificado y mejorado. Años más tarde, en 1990 volvió a ser restaurado. De igual forma, tras el paso del huracán María en el año 2017 y los terremotos ocurridos en el año 2020 el edificio se vio afectado.

Ateneo Puertorriqueño - San Juan (Viejo San Juan) - 2012 00001

Ateneo Puertorriqueño - San Juan (Viejo San Juan) - 2012 00001



El Ateneo Puertorriqueño localizado en el barrio Puerta de Tierra en el Viejo San Juan. Fue fundado en 1876 y construido por el ingeniero Ramón Carbia Burt en 1923. Es la institución cultural más antigua de Puerto Rico, también se le conoce como "la Docta Casa". Su estilo arquitectónico es representativo del neoárabe. Fue nominado para el Registro Nacional de Lugares Históricos en 1984. Está pintado de color blanco y terracota. Se observa en perspectiva parte de la fachada principal del edificio. La parte superior de la fachada tiene un alero cubierto con tejas sostenido por ménsulas de madera. También posee dos lámparas de techo, cinco arcos polilobulados interrumpidos por cinco pilastras que tienen azulejos en la parte superior. En la parte inferior de la fachada resaltan seis pilastras que sostienen un arco semicircular y entablamento cubierto de azulejos con motivos florales. El vano de la puerta tiene escrito en la parte superior "Ateneo Puertorriqueño". En ambos extremos de las pilastras se aprecian frisos en altos relieves con representaciones de figuras humanas que fueron esculpidos por el artista italiano Arrighini. Frente a la entrada hay unas escalinatas, una farola y una decoración alusiva a los tres Reyes Magos. Posteriormente el Ateneo Puertorriqueño se dedicó a fomentar el teatro, música, cine, literatura, historia, ciencias, ciencias morales y políticas y las artes plásticas puertorriqueñas.

Calle de la Fortaleza 56 - Antigua Real Audiencia - Conservatorio De Artes Del Caribe - San Juan (Viejo San Juan) - 2011 00021

Calle de la Fortaleza 56 - Antigua Real Audiencia - Conservatorio De Artes Del Caribe - San Juan (Viejo San Juan) - 2011 00021



Antigua Real Audiencia, calle de la Fortaleza en el Viejo San Juan. Vista del patio interior de la casa de dos pisos estilo colonial español. Se observa un arco rebajado en una pared del segundo piso. Tiene cinco ventanas de madera con celosías dispuestas de la siguiente forma: dos ventanas de doble hoja intercaladas por tres ventanas de hoja sencilla. Tiene también un montante compuesto por cuatro paneles con celosías. Las ventanas están sobre una balaustrada de madera instalada sobre un borde de ladrillos delgados. Bajo el borde de ladrillos se ve una cornisa que divide el segundo piso del primero. Hay otra cornisa sobre el arco. Aun lado se ve parte de una pilastra que tiene una moldura en forma de cornisa. Originalmente esta casa fue la residencia del Dr. Francisco Oller y Ferrer, abuelo del pintor Francisco Oller y Cestero. En 1831 fue vendida al Estado y el 1832 pasó a ser la primera sede de la Real Audiencia Territorial. Alrededor del 1898 fue arrendada al Departamento de Agricultura de Estados Unidos y en otro momento se usó como Departamento de Estado. En 1992 la edificación fue dedicada a Don Fernando Chardón. Luego de un periodo de abandono fue restaurada en el año 2000 y asignada a las oficinas de Guías Turísticos y de Programas Federales adscritos a la Oficina del Gobernador. La Torre Meteorológica y de Observación fue diseñada por el ingeniero Manuel Maese, la orden para su construcción fue emitida en 1883.

Casa en la calle Méndez Vigo 60 - Casa Gómez - Mayagüez - 2012 00019

Casa en la calle Méndez Vigo 60 - Casa Gómez - Mayagüez - 2012 00019



Perspectiva de la torre en el tramo central de la casa Gómez localizada en la calle Méndez Vigo 60 en Mayagüez. La torre presenta varios tipos de ventanas. Una de estas es de doble hoja con lumbreras, montante y tejadillo con tejas. Otra de las ventanas está compuesta por un vitral y una reja ornamentada con anillos, barras verticales y volutas. Los vanos emparejados de la parte superior de la torre presentan un tipo de celosía compuesta por un patrón de escamas. Sobre estos vanos se extiende un par de frisos ornamentados con azulejos que exhiben patrones curvos y florales tipo volutas y arabescos. Estos frisos, a su vez, están coronados con molduras blancas y tejas de color terracota. La esquina de la torre está ornamentada con un "cartouche" de color blanco. A un lado de la torre se encuentra otra ventana con hojas de vidrio, reja, tejadillo y tejas. En el extremo opuesto se ubica el porche acentuado por un arco de medio punto elevado sobre columnas corintias. A través del arco es visible una puerta blanca con paneles. Sobre el arco se distingue un panel horizontal formado por azulejos de motivos florales tipo volutas y arabescos, así como una moldura rematada por un detalle de voluta. La casa está delimitada por una baranda interrumpida por pedestales con rejas que combinan motivos de volutas, barras y anillos. La superficie de la casa presenta tonalidades de anaranjado que alternan con detalles de blanco. Esta residencia presenta elementos arquitectónicos que corresponden al estilo resurgimiento español.

Edificios en Miramar - San Juan (Miramar) - 2011 00014

Edificios en Miramar - San Juan (Miramar) - 2011 00014



Detalle de un tramo de un conjunto arquitectónico compuesto de tres casas en la calle Unión 659, en Miramar, San Juan. Este conjunto de casas fue diseñado en el estilo resurgimiento español. Su composición consiste de paredes de hormigón armado y techo de madera y cinc. Uno de los tramos visibles resalta por un volumen circular que presenta una ventana de aluminio tipo persiana protegida con reja ornamental. La ventana está flanqueada por pilastras jónicas de fuste estriado o acanalado. También es notable la moldura arqueada que se extiende sobre la ventana. El otro tramo es un balcón al que se accede mediante una escalera cubierta con losetas de color terracota. Este balcón está protegido con rejas ornamentales, tiene una puerta de madera con un cristal ovalado y está flanqueada por ventanas de doble hoja. Estos tres vanos presentan montantes que también integran vidrios. Entre estos vanos también destacan las molduras y pilastras jónicas. La superficie está pintada de tonalidades de azul que contrastan con detalles de blanco. Las tres casas se construyeron como un conjunto arquitectónico único entre los solares que originalmente, en el 1903, eran los números 180 y 182. En 1908, el solar 180 fue adquirido por el obispo William Jones, mientras que en el año 1907 el 182 fue adquirido por Salvador Nicolau. Posteriormente, los solares se agruparon y se construyeron tres casas para las hermanas González Padín. Para el 1920, luego de ser segregadas en tres propiedades, fueron ocupadas por las familias de Manuel Suárez Acevedo, Augusto Ferrer Cotte y Antonio Lema Cuervo. Un elemento distintivo de estas tres casas es que aparenta ser una construcción o gran casona palaciega.

Molino de viento (1827) - Hacienda Santa Ana - 2011 00015

Molino de viento (1827) - Hacienda Santa Ana - 2011 00015



Hacienda Santa Ana en Bayamón. Vista de la torre del antiguo molino de viento de la Hacienda. Este molino construido con ladrillos, y mejor conocido como trapiche, data de 1827 y es uno de los más antiguos en la isla. Se observa una torre redonda de ladrillos con una escalera de ladrillos y piedras. La escalera tiene dos pasamanos de tubos que conducen a la entrada principal en forma de arco de medio punto en el segundo nivel. Sobre el arco hay un óculo de cemento color blanco incrustado en la pared. La entrada cuenta con una puerta de madera de doble hoja con montante de sol trunco de hierro. Además, se puede ver otra escalera de piedras y una segunda puerta de madera en la pared lateral. En el tope de la torre hay un parapeto con diseño almenado desde donde bajan manchas de humedad u hollín, una pequeña antena, un cable eléctrico y una lámpara. También puede observar un equipo de aire acondicionado en el patio posiblemente porque esta torre fue acondicionada para utilizarse como oficina. Detrás de la torre hay un área con árboles. La Casona de la Hacienda Santa Ana reside en terrenos conferidos en 1787 por el rey Carlos III al capitán Fernando Fernández, corsario español que rendía servicios a la corona. A partir de 1804, el capitán comenzó a sembrar caña de azúcar y a destilar ron en la propiedad para su uso personal, pero no fue hasta 1880 cuando su bisnieto Pedro Fernández y su hijo Edmundo desarrollaron la fórmula y el proceso de destilación del conocido Ron del Barrilito. Además de la casona, la Hacienda abarca la tonelería, el trapiche, el área de añejamiento y el área de embotellamiento y empaque. Estas instalaciones, que también sirven como museo, continúan produciendo el popular ron, así como el alcoholado medicinal Santa Ana.

Faro Punta Mulas - Vieques - 2011 00001

Faro Punta Mulas - Vieques - 2011 00001



Fachada del Faro Punta Mulas, localizado al oeste del puerto de Isabel II, en la isla municipio de Vieques. El faro es de una planta con forma rectangular. Su fachada presenta una puerta flanqueada por ventanas de doble hoja con lumbreras y enmarcadas con molduras. Entre la puerta y las ventanas resaltan pequeños óculos acentuados por molduras. La parte superior del edificio se distingue por una moldura ornamental con motivos de rectángulos y círculos y una cornisa coronada con un parapeto. La parte inferior de la fachada está realzada con un zócalo. Desde el centro sobresale la torre octogonal con una galería que está delimitada por una baranda de hierro forjado y coronada con una linterna de forma cilíndrica hecha de hierro forjado, cobre y cristal. La superficie del edificio es de color amarillo y blanco. Frente al faro se ubica una acera y una jardinera redonda. El Faro de Punta Mulas fue construido en 1895, como un faro de sexto orden, para guiar la navegación a través del Pasaje de Vieques. Este faro comenzó a operar el 1 de junio de 1896. Sus características arquitectónicas corresponden al estilo neoclásico y colonial español. Durante la década de 1940, la planta física fue modificada y se llevaron a cabo algunos cambios como el reemplazo del techo original de ladrillo por uno de hormigón. En 1949, se instaló un sistema automático de iluminación. Entre el año 1961 y 1981 sirvió de residencia a la señora Gilda Romero. En 1992, el municipio de Vieques compró el edificio y lo restauró. Otra restauración ocurrió en 1998, tras el paso del huracán Georges, y finalmente, fue inaugurado en 2015.

Casa de Ramón Emeterio Betances - Mayagüez - 2011 00001

Casa de Ramón Emeterio Betances - Mayagüez - 2011 00001



Fachada de la casa de Ramón Emeterio Betances en Mayagüez, también conocida como la casa de los cinco arcos. Esta casa, de mampostería y madera, está elevada sobre un podio. La fachada consiste en una galería delimitada por una serie de arcos mixtilíneos elevados sobre columnas emparejadas. Estas columnas se elevan sobre pedestales y estos, a su vez, separan la baranda de metal ornamental con motivos de hojas y flores. Sobre los arcos y en los paneles del podio sobresale el signo de una estrella dentro de una esfera. Las puertas son de doble hoja con paneles de lumbreras y montantes que permiten la ventilación, y las ventanas del lateral guardan características similares. El techo es de cuatro aguas cubierto con planchas de cinc y también se distingue por un apéndice con cubierta a dos aguas y lumbreras que permiten la ventilación. En uno de los laterales se ubica un portón flanqueado por dos pilares. En el portón cuelgan letreros que indican: "No estacione". La superficie de la residencia está pintada de amarillo y blanco. Frente a la casa se encuentran varios automóviles estacionados cerca de la acera. En el 1865, Ramón Emeterio Betances solicitó el permiso para fabricar esta casa de mampostería en la cual solo vivió dos años. A su muerte, su hermana, Inés, la heredó. La casa fue afectada por el terremoto de 1918. En el 2006, el alcalde de la ciudad restituyó el nombre de Betances a la calle y colocó frente a la residencia una tarja en reconocimiento del amor de Betances por Mayagüez.

Archivo General - Antiguo Hospital Civil - San Juan (Puerta de Tierra) - 2010 00001

Archivo General - Antiguo Hospital Civil - San Juan (Puerta de Tierra) - 2010 00001



Vista frontal del Archivo General y Biblioteca Nacional de Puerto Rico ubicado en la comunidad de Puerta de Tierra del pueblo costero de San Juan. El edificio es de tres niveles en mampostería y ladrillo con características del estilo neoclásico. Está pintado en tonos de amarillo y color blanco. El primer nivel tiene zonas estriadas además, tiene ventanas de madera color azul y cristal con persianas y soles truncos bajo arcos de medio punto enmarcados con molduras planas. Las del segundo nivel están coronadas con espinazos y al pie tienen molduras salientes a modo de soporte. Modulando las ventanas hay pilastras en pares de dos que sostienen un entablamento corrido y a su vez se alzan y sostienen el entablamento del segundo nivel sobre el cual se proyecta un parapeto bajo. La fachada frontal es oblicua y en medio tiene la entrada a través de una puerta doble de cristal bajo un arco de medio punto enmarcado con molduras planas y flanqueada por faroles de luz y carteles. Sobre esta hay una ventana como las demás flanqueada por columnas pares que a su vez sostienen un frontón triangular. El antiguo Hospital Civil fue el último edificio erigido por el gobierno Español en la Isla entre los años 1877-1887. A pesar de que fue construido como hospital fue utilizado como Cárcel provincial y posteriormente como destilería. Años más tarde, ante una amenaza de demolición el Instituto de Cultura Puertorriqueña lo adquirió y lo restauró para albergar documentos históricos. A partir del año 1973 trasladaron el Archivo General y la Biblioteca Nacional de Puerto Rico a este espacio. Además, el edificio fue incluido en el Registro Nacional de Lugares Históricos en el año 1976.

Iglesia de San Jorge - San Juan (Condado) - 2014 00115

Iglesia de San Jorge - San Juan (Condado) - 2014 00115



Vista desde el interior de la Parroquia San Jorge ubicada en la comunidad de Condado del pueblo costero de San Juan. La iglesia es de dos niveles en hormigón con características del estilo neogótico pintada de color gris y color blanco. El interior está dividido en tres naves, al fondo de la nave central, bajo un ábside semicircular se encuentra el altar presidido por unas escaleras y balaustrada de mármol. Las paredes tienen pilastras que se alzan, sostienen una cornisa corrida y conectan con las molduras que enmarcan el techo abovedado. Está decorado con un ambón metálico, ánforas decorativas y una mesa revestida por un mantel de tela color blanco. En medio la mesa del altar es de mármol con detalles en color dorado revestida por un mantel de tela color blanco sobre el cual se pueden ver candelabros. Por otra parte, la pared tiene un retablo, la parte del banco tiene en medio el sagrario y a ambos lados de este pequeñas representaciones de santos tallados dentro de nichos. El cuerpo del retablo tiene mosaicos con representaciones de ángeles, molduras de color dorado y otras de color blanco. En medio dentro de un óvalo hay una estatua del Sagrado corazón sobre una ménsula. Además, coronando el retablo hay un dosel de mármol con diseños ornamentales de arcos de tres centros, remates decorativos, agujas y una cruz. Al extremo izquierdo del retablo hay una estatua de un santo sobre una ménsula acompañada por un retablo decorativo en mármol coronado con un dosel ornamentado que a su vez está coronado con una cruz. La iglesia San Jorge fue inaugurada en el año 1920 siendo oficialmente fundada canónicamente en 1924 tras ser desmembrada de las Parroquias San Mateo y Sagrado Corazón. Su diseño inicial estuvo a cargo de la firma Martínez y Lázaro siendo finalizado en dos años. Seis años después se comienza la construcción de los edificios aledaños a la academia San Jorge. Posteriormente en 1940 la fachada fue remodelada por el arquitecto Rafael Carmoega. Más recientemente en el año 2017 fue restaurada en fases por la firma Astrid Díaz: ADV Architects.

Condado Vanderbilt - San Juan (Condado) - 2013 00056

Condado Vanderbilt - San Juan (Condado) - 2013 00056



Vista del patio trasero del Hotel Condado Vanderbilt ubicado en la avenida Ashford del pueblo costero de San Juan. El hotel es de varios niveles y características del estilo resurgimiento español. El patio trasero tiene el piso cubierto por baldosas de cerámica. Además, hay escaleras con pasamanos metálicos, plantas en macetas decorativas y remates decorativos con formas cónicas. Además, la fachada trasera del edificio tiene una extensión moderna con amplios ventanales de cristal interrumpidos por columnas cuadradas. También se pueden ver mesas con sombrillas, muebles a juego y una balaustrada de cristal modulada por pilares cuadrados que preside la costa del océano atlántico. El Hotel Condado Vanderbilt fue comisionado en 1917 por Frederick William Vanderbilt. Finalmente el 16 de octubre de 1919 fue inaugurado el primer gran hotel de lujo del Caribe. En el año 1930 fue vendido y pasó a llamarse Hotel Condado, posteriormente en 1940 se convirtió en el primer hotel en la isla en tener un casino. Además, en 1950 volvieron a cambiar su nombre a Condado Beach Hotel y se añadieron habitaciones, salones de actividades y un restaurante. Luego de considerar su demolición fue incluido en el Registro Nacional de Lugares Históricos en el año 1988. Más recientemente fue remodelado entre los años 2008 a 2014 por los arquitectos Thomas S. Marvel y José Marchand Sifre añadiendo dos torres de suites modernas. Además, la planificación y restauración de los espacios estuvo a cargo del Arquitecto Jonathan Parks y la firma SOLSTICE Planning and Architecture. Los diseños interiores estuvieron a cargo del diseñador Jorge Roselló.

Condado Vanderbilt - San Juan (Condado) - 2013 00195

Condado Vanderbilt - San Juan (Condado) - 2013 00195



Vista del interior del Hotel Condado Vanderbilt ubicado en la avenida Ashford del pueblo costero de San Juan. El hotel es de varios niveles con características del estilo resurgimiento español. Los espacios interiores están pintados en diferentes tonos de color rojo. El vestíbulo tiene dos niveles con los pisos de mármol en dos colores, techos abovedados, lámparas de pared metálicas y puertas dobles de cristal bajo arcos semicirculares acompañados por cortinas de tela. Los espacios están divididos por arcos semicirculares con balaustradas de hierro ornamental y pasamanos de madera. Hay sillas de madera y al fondo una puerta sencilla de madera y cristal. El Hotel Condado Vanderbilt fue comisionado en 1917 por Frederick William Vanderbilt. Finalmente el 16 de octubre de 1919 fue inaugurado el primer gran hotel de lujo del Caribe. En el año 1930 fue vendido y pasó a llamarse Hotel Condado, posteriormente en 1940 se convirtió en el primer hotel en la isla en tener un casino. Además, en 1950 volvieron a cambiar su nombre a Condado Beach Hotel y se añadieron habitaciones, salones de actividades y un restaurante. Luego de considerar su demolición fue incluido en el Registro Nacional de Lugares Históricos en el año 1988. Más recientemente fue remodelado entre los años 2008 a 2014 por los arquitectos Thomas S. Marvel y José Marchand Sifre añadiendo dos torres de suites modernas. Además, la planificación y restauración de los espacios estuvo a cargo del Arquitecto Jonathan Parks y la firma SOLSTICE Planning and Architecture. Los diseños interiores estuvieron a cargo del diseñador Jorge Roselló.

Condado Vanderbilt - San Juan (Condado) - 2013 00050

Condado Vanderbilt - San Juan (Condado) - 2013 00050



Vista del patio trasero del Hotel Condado Vanderbilt ubicado en la avenida Ashford del pueblo costero de San Juan. El hotel es de varios niveles con características del estilo resurgimiento español. El patio trasero tiene el piso cubierto por baldosas de cerámica. Además, hay escaleras con pasamanos metálicos, plantas en macetas decorativas y un remate decorativo con forma cónica. También se distingue una balaustrada de cristal que preside la costa del océano atlántico. El Hotel Condado Vanderbilt fue comisionado en 1917 por Frederick William Vanderbilt. Finalmente el 16 de octubre de 1919 fue inaugurado el primer gran hotel de lujo del Caribe. En el año 1930 fue vendido y pasó a llamarse Hotel Condado, posteriormente en 1940 se convirtió en el primer hotel en la isla en tener un casino. Además, en 1950 volvieron a cambiar su nombre a Condado Beach Hotel y se añadieron habitaciones, salones de actividades y un restaurante. Luego de considerar su demolición fue incluido en el Registro Nacional de Lugares Históricos en el año 1988. Más recientemente fue remodelado entre los años 2008 a 2014 por los arquitectos Thomas S. Marvel y José Marchand Sifre añadiendo dos torres de suites modernas. Además, la planificación y restauración de los espacios estuvo a cargo del Arquitecto Jonathan Parks y la firma SOLSTICE Planning and Architecture. Los diseños interiores estuvieron a cargo del diseñador Jorge Roselló.

Iglesia de San Jorge - San Juan (Condado) - 2014 00108

Iglesia de San Jorge - San Juan (Condado) - 2014 00108



Vista desde el interior de la Parroquia San Jorge ubicada en la comunidad de Condado del pueblo costero de San Juan. La iglesia es de dos niveles en hormigón con características del estilo neogótico pintada de color blanco y color gris. Desde los espacios interiores se puede ver en primer plano una cancela de reja metálica ornamental en color dorado y color plateado. A través de la cancela se ve la nave central con el piso cubierto por terrazo. En la nave central hay bancos de madera y pequeñas mesas también de madera. Separando la nave central de la nave lateral se ve una arcada de arcos ojivales enmarcados con molduras y sostenidos por pilastras en pares de tres. Además, la pared del extremo contrario está decorada con un friso ornamental con arcos de tres centros, emblemas, estaciones del vía crucis, una puerta doble de madera y una ventana de madera y cristal. Están coronadas con travesaños de vidrio pintado bajo arcos ojivales enmarcados con vierteaguas pintados de color dorado. La iglesia San Jorge fue inaugurada en el año 1920 siendo oficialmente fundada canónicamente en 1924 tras ser desmembrada de las Parroquias San Mateo y Sagrado Corazón. Su diseño inicial estuvo a cargo de la firma Martínez y Lázaro siendo finalizado en dos años. Seis años después se comienza la construcción de los edificios aledaños a la academia San Jorge. Posteriormente en 1940 la fachada fue remodelada por el arquitecto Rafael Carmoega. Más recientemente en el año 2017 fue restaurada en fases por la firma Astrid Díaz: ADV Architects.

Calle de la Fortaleza 56 - Antigua Real Audiencia - Conservatorio De Artes Del Caribe - San Juan (Viejo San Juan) - 2011 000

Calle de la Fortaleza 56 - Antigua Real Audiencia - Conservatorio De Artes Del Caribe - San Juan (Viejo San Juan) - 2011 000



Antigua Real Audiencia, calle de la Fortaleza en el Viejo San Juan. Vista parcial del techo de la casa de dos pisos estilo colonial español. Se observa la Torre Meteorológica y de Observación, la torre octagonal fue construida en mampostería, acero y madera. La sección de mampostería tiene pequeños óculos en las paredes y una cornisa con ménsulas. Sobre ésta se encuentra el área de observación, que es de madera y consiste de una puerta y ventanas con celosías, está protegida por una baranda y tiene una cúpula de metal con un remate esférico. Tiene paredes amarillas, la cornisa es blanca, el área de observación es verde al igual que la baranda y la cúpula tiene color marrón. Detrás se pueden ver partes de dos edificios cercanos. Originalmente esta casa fue la residencia del Dr. Francisco Oller y Ferrer, abuelo del pintor Francisco Oller y Cestero. En 1831 fue vendida al Estado y el 1832 pasó a ser la primera sede de la Real Audiencia Territorial. Alrededor del 1898 fue arrendado al Departamento de Agricultura de Estados Unidos y en otro momento se usó como Departamento de Estado. En 1992 la edificación fue dedicada a Don Fernando Chardón. Luego de un periodo de abandono fue restaurada en el año 2000 y asignada a las oficinas de Guías Turísticos y de Programas Federales adscritos a la Oficina del Gobernador. La Torre Meteorológica y de Observación fue diseñada por el ingeniero Manuel Maese, la orden para su construcción fue emitida en 1883.

Condado Vanderbilt - San Juan (Condado) - 2013 00136

Condado Vanderbilt - San Juan (Condado) - 2013 00136



Vista desde el balcón frontal del Hotel Condado Vanderbilt ubicado en la avenida Ashford del pueblo costero de San Juan. El hotel es de varios niveles y características del estilo resurgimiento español. La fachada frontal del hotel tiene una puerta doble de cristal bajo un arco semicircular presidida por un antepecho. Sobre esta se distingue una moldura corrida y pequeñas lámparas de pared a cada lado. La fachada frontal también tiene un balcón abierto del cual se distingue un extremo de la balaustrada. El Hotel Condado Vanderbilt fue comisionado en 1917 por Frederick William Vanderbilt. Finalmente el 16 de octubre de 1919 fue inaugurado el primer gran hotel de lujo del Caribe. En el año 1930 fue vendido y pasó a llamarse Hotel Condado, posteriormente en 1940 se convirtió en el primer hotel en la isla en tener un casino. Además, en 1950 volvieron a cambiar su nombre a Condado Beach Hotel y se añadieron habitaciones, salones de actividades y un restaurante. Luego de considerar su demolición fue incluido en el Registro Nacional de Lugares Históricos en el año 1988. Más recientemente fue remodelado entre los años 2008 a 2014 por los arquitectos Thomas S. Marvel y José Marchand Sifre añadiendo dos torres de suites modernas. Además, la planificación y restauración de los espacios estuvo a cargo del Arquitecto Jonathan Parks y la firma SOLSTICE Planning and Architecture. Los diseños interiores estuvieron a cargo del diseñador Jorge Roselló.

Casa en la calle Villa - Residencia Toro-Cortada - Antiguo Centro Español - Ponce - 2014 00007

Casa en la calle Villa - Residencia Toro-Cortada - Antiguo Centro Español - Ponce - 2014 00007



Vista frontal y lateral de casa en la calle Villa del pueblo costero de Ponce. En los alrededores se pueden ver vehículos estacionados en la calle pavimentada. La casa es de dos niveles en mampostería de ladrillo con características del estilo neoclásico. La fachada frontal tiene un pórtico presidido por escaleras con entrada bajo un arco semicircular enmarcado con molduras planas. Además, a ambos lados hay balcones con vanos rectangulares coronados con entablamentos, tienen balaustradas sostenidas por columnas cuadradas acanaladas que a su vez sostienen una cornisa corrida y el balcón abierto del segundo nivel. También tiene una balaustrada modulada por pilares cuadrados con remates esféricos. En adición, el segundo nivel tiene ventanas rectangulares coronadas con entablamentos acompañados por molduras ornamentales, dentículos y acróteras. Entre las ventanas hay pilastras de almohadillado que a su vez sostienen un entablamento corrido acompañado por dentículos, un friso ornamental y una cornisa corrida sobre la cual descansa una balaustrada modulada por pilares cuadrados con remates esféricos. El friso está interrumpido en medio por un frontón semicircular. Por otra parte, la fachada lateral también tiene una ventana rectangular clausurada por un panel de madera. La residencia conocida como Casa Toro Cortada y Antiguo Centro Español fue construida en 1911. Posteriormente en 1961 fue vendida y convertida en centro social permaneciendo en uso continuo hasta 1970 cuando pasó a manos de la Oficina del Fondo de Seguro del Estado hasta 1989.

Parroquia San Antonio de Padua - Barranquitas - 2007

Parroquia San Antonio de Padua - Barranquitas - 2007



Vista frontal de la Parroquia San Antonio de Padua en el pueblo de Barranquitas. En primer plano se divisa la plaza pública Bicentenaria Monseñor Miguel Ángel Mendoza decorada con bancos de hierro, zonas ajardinadas y postes de luz. Cruzando la calle, donde hay varios vehículos, está la cerca de la parroquia en mampostería con balaustrada interrumpida por una reja metálica y escaleras. La parroquia es de dos niveles con un diseño ecléctico inspirado en los estilos resurgimiento español, art deco y neoclásico. La fachada frontal está pintada de color blanco con detalles en verde claro, decorada con una puerta doble de madera enmarcada y flanqueada por pilastras. Sobre la puerta hay un nicho sostenido por una ménsula con una estatua de San Antonio de Padua que se encuentra bajo una ventana de cristal con un arco semicircular enmarcado y flanqueado por pilastras. La fachada también tiene ventanas de cristal, un óculo enmarcado y un frontón curvilíneo coronado con una cruz. Además, del edifico sobresale un campanario decorado con remates, cornisas, molduras coronado con tejas y una cruz. La Parroquia San Antonio de Padua fue construida por primera vez en 1792, sin embargo, tuvo que ser reconstruida en cuatro ocasiones tras ser destruida por varios huracanes. En la década de 1930 el edificio también era utilizado como academia, además, contaba con un cine para los estudiantes y posteriormente fue abierto al público en general permaneciendo en uso hasta la década de 1970. Finalmente, en 1933 fue reconstruida con el diseño actual y restaurada en la década de 1980.

Condado Vanderbilt - San Juan (Condado) - 2013 00101

Condado Vanderbilt - San Juan (Condado) - 2013 00101



Vista del patio trasero del Hotel Condado Vanderbilt ubicado en la avenida Ashford del pueblo costero de San Juan. El hotel es de varios niveles y características del estilo resurgimiento español. El patio trasero tiene el piso cubierto por baldosas de cerámica. Además, las escaleras tienen pasamanos metálicos, plantas en macetas decorativas y remates decorativos con formas cónicas. También se distingue la parte trasera del hotel, es una extensión moderna del edificio con amplios ventanales de madera modulada por columnas cuadradas. Además, se ve una de las torres laterales del hotel que se eleva once niveles, tiene ventanas de cristal enmarcadas con molduras y balcones con balaustradas de cristal. El Hotel Condado Vanderbilt fue comisionado en 1917 por Frederick William Vanderbilt. Finalmente el 16 de octubre de 1919 fue inaugurado el primer gran hotel de lujo del Caribe. En el año 1930 fue vendido y pasó a llamarse Hotel Condado, posteriormente en 1940 se convirtió en el primer hotel en la isla en tener un casino. Además, en 1950 volvieron a cambiar su nombre a Condado Beach Hotel y se añadieron habitaciones, salones de actividades y un restaurante. Luego de considerar su demolición fue incluido en el Registro Nacional de Lugares Históricos en el año 1988. Más recientemente fue remodelado entre los años 2008 a 2014 por los arquitectos Thomas S. Marvel y José Marchand Sifre añadiendo dos torres de suites modernas. Además, la planificación y restauración de los espacios estuvo a cargo del Arquitecto Jonathan Parks y la firma SOLSTICE Planning and Architecture. Los diseños interiores estuvieron a cargo del diseñador Jorge Roselló.

Banco Popular de Puerto Rico - San Juan (Viejo San Juan) - 2011 00001

Banco Popular de Puerto Rico - San Juan (Viejo San Juan) - 2011 00001



Banco Popular de Puerto Rico localizado en el Viejo San Juan. Fue inaugurado en 1939 y diseñado por el arquitecto Chauncey W. Riley y construido por los ingenieros José Benítez y Gautier, Manuel Miró y Saudí y Juan M. Beltrán Carrasquillo. El banco fue construido donde originalmente se ubicaba el Banco Territorial y Agrícola de Puerto Rico a finales del siglo XIX. Su estilo arquitectónico es representativo del art déco. Está pintado de color crema, blanco y verde. Tiene una fachada curva con ventanas rectangulares de cristal con marcos de metal y voladizos en la parte superior. También tiene una hilera de ventanas cuadradas con marcos de metal. La entrada principal tiene doce bajos relieves, ubicados a cada lado de un vitral y tiene cuatro imágenes de figuras humanas que se intercalan repitiéndose cada una tres veces. En el centro hay una inscripción que lee "Dedicado al servicio de Puerto Rico. Banco Popular de Puerto Rico". En la entrada también se divisan altos relieves con dos figuras de un águila. En uno de los extremos del edificio posteriormente se encontró el restaurante Carli‘s Fine Bistro and Piano. Tiene puertas dobles de cristal con marcos de metal, al frente hay mesas y sillas blancas. Frente al edificio se observan automóviles y arbustos. En el lado izquierdo de la imagen se ve parcialmente el edificio Finlay, que estuvo localizado donde fue el antiguo edificio del banco Citibank y que luego fue sede de la cervecería Old Harbor Brewery. Este edificio está pintado de color crema y blanco. Tiene molduras, parapetos, cornisas, dentículos, vanos de ventanas y pilastras.

Calle de la Fortaleza 56 - Antigua Real Audiencia - Conservatorio De Artes Del Caribe - San Juan (Viejo San Juan) - 2011 00

Calle de la Fortaleza 56 - Antigua Real Audiencia - Conservatorio De Artes Del Caribe - San Juan (Viejo San Juan) - 2011 00



Antigua Real Audiencia, calle de la Fortaleza en el Viejo San Juan. Vista parcial del techo de la casa de dos pisos estilo colonial español. Se observa la Torre Meteorológica y de Observación, esta torre octagonal fue construida en mampostería, acero y madera. La sección de mampostería tiene pequeños óculos en las paredes y una cornisa con ménsulas. Sobre ésta se encuentra el área de observación, que es de madera y consiste de una puerta y ventanas con celosías, está protegida por una baranda y tiene una cúpula de metal con un remate esférico. Tiene paredes amarillas, la cornisa es blanca, el área de observación es verde al igual que la baranda y la cúpula tiene color marrón. Detrás se pueden ver partes de dos edificios cercanos. Originalmente esta casa fue la residencia del Dr. Francisco Oller y Ferrer, abuelo del pintor Francisco Oller y Cestero. En 1831 fue vendida al Estado y el 1832 pasó a ser la primera sede de la Real Audiencia Territorial. Alrededor del 1898 fue arrendado al Departamento de Agricultura de Estados Unidos y en otro momento se usó como Departamento de Estado. En 1992 la edificación fue dedicada a Don Fernando Chardón. Luego de un periodo de abandono fue restaurada en el año 2000 y asignada a las oficinas de Guías Turísticos y de Programas Federales adscritos a la Oficina del Gobernador. La Torre Meteorológica y de Observación fue diseñada por el ingeniero Manuel Maese, la orden para su construcción fue emitida en 1883.

Casa Dr. Bailey K. Ashford - San Juan (Condado) - 2011 00005

Casa Dr. Bailey K. Ashford - San Juan (Condado) - 2011 00005



Vista frontal de la antigua residencia del Dr. Bailey K. Ashford ubicada en el sector de Condado del pueblo costero de San Juan. La casa es de un nivel en madera y concreto con características de los estilos victoriano y renacimiento neoclásico. La fachada frontal está presidida por un balcón rodeado por una balaustrada de madera modulada por columnas acanaladas de orden corintio. La entrada al balcón es a través de unas escaleras. Por otra parte, en el interior del balcón se puede ver el piso cubierto por losas criollas y tres puertas dobles de madera y paneles de vidrio pintado enmarcadas con molduras planas. El techo está revestido por tejas y en la fachada frontal tiene una buhardilla. La buhardilla tiene una ventana doble de madera con celosía presidida por un antepecho de madera.Por otra parte, los alrededores de la casa tienen zonas ajardinadas. La antigua residencia del Dr. Bailey K. Ashford quien dejó un legado significativo por su contribución a la salud pública por medio de sus innovadoras investigaciones, protocolos y políticas de salud pública fue construida en el año 1914. Fue utilizada como residencia hasta 1934, en el año 1996 el Fideicomiso de Conservación se planteó la restauración y ampliación de la casa manteniendo su diseño original. A partir del año 2015 es un museo llamado “Casa Cultural Dr. Bailey K. Ashford. Además, fue incluida en el Registro Nacional de Lugares Históricos en el año 2022.

Calle de la Fortaleza 56 - Antigua Real Audiencia - Conservatorio De Artes Del Caribe - San Juan (Viejo San Juan) - 2011 00028

Calle de la Fortaleza 56 - Antigua Real Audiencia - Conservatorio De Artes Del Caribe - San Juan (Viejo San Juan) - 2011 00028



Antigua Real Audiencia, calle de la Fortaleza en el Viejo San Juan. Vista del interior de la casa de dos pisos estilo colonial español. Se observa un tramo del corredor alrededor del patio interior, en el segundo piso. Este tramo tiene techo de madera y balaustrada con pilares de madera torneada. La pared tiene dos arcos adintelados con puertas y tres lámparas modernas de forma ovalada. La pared de fondo tiene una arcada de arcos rebajados. El arco que conecta con el corredor tiene una puerta y ventanas de madera con celosías. El otro arco está completamente cubierto por ventanas con celosías. Estos dos arcos tienen balaustradas bajo las ventanas, a modo de antepecho. Entre los dos arcos hay una pilastra que se extiende desde el primer piso hasta una moldura horizontal que marca el inicio del parapeto. El piso del corredor tiene losetas color terracota. Originalmente esta casa fue la residencia del Dr. Francisco Oller y Ferrer, abuelo del pintor Francisco Oller y Cestero. En 1831 fue vendida al Estado y el 1832 pasó a ser la primera sede de la Real Audiencia Territorial. Alrededor del 1898 fue arrendada al Departamento de Agricultura de Estados Unidos y en otro momento se usó como Departamento de Estado. En 1992 la edificación fue dedicada a Don Fernando Chardón. Luego de un periodo de abandono fue restaurada en el año 2000 y asignada a las oficinas de Guías Turísticos y de Programas Federales adscritos a la Oficina del Gobernador. La Torre Meteorológica y de Observación fue diseñada por el ingeniero Manuel Maese, la orden para su construcción fue emitida en 1883.

Calle de la Fortaleza 56 - Antigua Real Audiencia - Conservatorio De Artes Del Caribe - San Juan (Viejo San Juan) - 2011 00055

Calle de la Fortaleza 56 - Antigua Real Audiencia - Conservatorio De Artes Del Caribe - San Juan (Viejo San Juan) - 2011 00055



Antigua Real Audiencia, calle de la Fortaleza en el Viejo San Juan. Vista, en plano picado, de la fachada de la casa de dos pisos estilo colonial español. En el primer nivel se observan cinco arcos adintelados: la entrada principal en el centro, una puerta y una ventana a un lado y dos ventanas al otro lado. La puerta del extremo y las ventanas tienen antepechos de balaustres de madera. Una moldura continua se extiende sobre la base del edificio y alrededor de la entrada, esta solo es interrumpida en la puerta del extremo. A los lados de la entrada hay dos lámparas de techo tipo farol y bajo una de la lámparas hay una placa conmemorativa. Un extenso balcón abierto con balaustrada de madera une los cinco vanos del segundo nivel. Cada vano tiene una puerta de doble hoja con celosías y paneles de vidrio en la parte superior. La casa tiene una hilada seguida por una cornisa delgada y un parapeto liso con moldura en el borde. En el techo se distinguen partes de un sistema de acondicionamiento de aire, específicamente, conductos. La casa está pintada de amarillo con las molduras blancas, los balaustres son verdes. Son visibles un tramo de la acera pavimentada con losetas, varias balizas de metal y un pequeño segmento de la calle, pavimentada con adoquines. A un lado se ve parte de la fachada del Palacio Rojo. Hay un hombre caminado por la acera. Originalmente esta casa fue la residencia del Dr. Francisco Oller y Ferrer, abuelo del pintor Francisco Oller y Cestero. En 1831 fue vendida al Estado y el 1832 pasó a ser la primera sede de la Real Audiencia Territorial. Alrededor del 1898 fue arrendada al Departamento de Agricultura de Estados Unidos y en otro momento se usó como Departamento de Estado. En 1992 la edificación fue dedicada a Don Fernando Chardón. Luego de un periodo de abandono fue restaurada en el año 2000 y asignada a las oficinas de Guías Turísticos y de Programas Federales adscritos a la Oficina del Gobernador. La Torre Meteorológica y de Observación fue diseñada por el ingeniero Manuel Maese, la orden para su construcción fue emitida en 1883.

Casa en la calle Villa - Residencia Toro-Cortada - Antiguo Centro Español - Ponce - 2014 00006

Casa en la calle Villa - Residencia Toro-Cortada - Antiguo Centro Español - Ponce - 2014 00006



Vista frontal y lateral de casa en la calle Villa del pueblo costero de Ponce. En los alrededores se pueden ver vehículos estacionados en la calle y en un estacionamiento continuo. La casa es de dos niveles en mampostería de ladrillo con características del estilo neoclásico. La fachada frontal tiene un pórtico presidido por escaleras con entrada bajo un arco semicircular enmarcado con molduras planas. Además, a ambos lados hay balcones con vanos rectangulares coronados con entablamentos, tienen balaustradas sostenidas por columnas cuadradas acanaladas que a su vez sostienen una cornisa corrida y el balcón abierto del segundo nivel. También tiene una balaustrada modulada por pilares cuadrados con remates esféricos. En adición, el segundo nivel tiene ventanas rectangulares coronadas con entablamentos acompañados por molduras ornamentales, dentículos y acróteras. Entre las ventanas hay pilastras de almohadillado que a su vez sostienen un entablamento corrido acompañado por dentículos, un friso ornamental y una cornisa corrida sobre la cual descansa una balaustrada modulada por pilares cuadrados con remates esféricos. El friso está interrumpido en medio por un frontón semicircular. Por otra parte, la fachada lateral también tiene ventanas rectangulares clausuradas por paneles de madera. La residencia conocida como Casa Toro Cortada y Antiguo Centro Español fue construida en 1911. Posteriormente en 1961 fue vendida y convertida en centro social permaneciendo en uso continuo hasta 1970 cuando pasó a manos de la oficina del Fondo de Seguro del Estado hasta 1989.

La Giralda - 08000786

La Giralda - 08000786



Vista de la fachada sur de La Giralda, ubicada en el sector Miramar del barrio Santurce, en el Municipio de San Juan. Esta residencia ecléctica construida alrededor del 1910 combina elementos del estilo Neoclásico y el Victoriano, y fue diseñada por el arquitecto Francisco Valinés Cofresí. Su planta cuadrada e irregular cuenta con cuatro niveles de hormigón armado que incluye un ático, un sótano, y un tejado a dos aguas. La fachada se organiza en tres secciones y presenta un diseño simétrico con proporciones equilibradas. La sección central del primer nivel tiene una puerta de entrada doble de madera de caoba con paneles fijos de vidrio. El pórtico de entrada, que forma parte del balcón, muestra columnas corintias parcialmente estriadas sobre una base de la misma altura de la balaustrada de concreto que rodea el balcón y una serie de escalones que dan acceso al interior. Aunque parcialmente ocultas debido a las cortinas colgantes del balcón, las otras dos secciones de la fachada, ubicadas a los lados de la puerta principal, tienen ventanas enmarcadas por un borde de hormigón, una cornisa inferior y dinteles de hormigón. Las paredes están cubiertas de yeso liso. La fachada del segundo nivel cuenta con otro balcón que sobresale ligeramente hacia el frente del edificio. Se observa una puerta doble cerrada, coronada por dinteles de hormigón con clave, y enmarcada por pilastras de almohadilladas a cada lado, creando un efecto de altorrelieve. A cada lado de la puerta hay una ventana rectangular de cristal con diseños geométricos. La tercera planta corresponde al ático y se caracteriza por un pequeño balcón coronado por un frontón de madera, una puerta doble y estrechas ventanas de una sola hoja con vidrio a cada lado de la puerta. Desde ese balcón se puede observar el techo del segundo nivel, de poca altura y recubierta con una membrana de cartón bituminoso resistente a la intemperie que simula tejas de madera. Una veleta o adorno remata la parte superior del ático. Los techos a dos aguas de estilo Victoriano de La Giralda combinan el elemento del frontón de estilo Clásico, presente en muchos edificios Neoclásicos. El techo original estuvo compuesto de armazones de madera cubiertos por paneles de zinc pero fue reconstruido. Debido a la altura de los pisos, la disposición de sus elementos arquitectónicos, el efecto de la torre, y el balcón volumétrico, La Giralda aún conserva la escala de las propiedades de su época. Un muro bajo con pilares de concreto frente a la casa divide el área del jardín y la calle. Al fondo, se pueden ver varios edificios, árboles y palmares. La Giralda es una casa histórica que refleja la majestuosidad y la dignidad del diseño de su lugar y época. Este vecindario surgió como un suburbio residencial planificado para la clase alta local, en respuesta al crecimiento poblacional de San Juan en el siglo XIX. La arquitectura de Miramar se consolidó en un entorno residencial exclusivo que contrastaba con otras áreas, acentuado por la llegada de medios de transporte que conectan el área con el centro urbano. La casa sobresale por su tamaño y materiales de construcción permanentes, ya que la mayoría de las casas de la época eran de madera. Aunque sufrió cambios y deterioro, fue restaurada en la década de 1990, manteniendo su integridad exterior, y se convirtió en un ícono de la historia arquitectónica y social de Miramar.

Calle de la Fortaleza 56 - Antigua Real Audiencia - Conservatorio De Artes Del Caribe - San Juan (Viejo San Juan) - 2012 00008

Calle de la Fortaleza 56 - Antigua Real Audiencia - Conservatorio De Artes Del Caribe - San Juan (Viejo San Juan) - 2012 00008



Antigua Real Audiencia, calle de la Fortaleza en el Viejo San Juan. Vista parcial de la Torre Meteorológica y de Observación ubicada en el techo de la casa de dos pisos estilo colonial español. Se observa la parte superior de la torre octagonal construida en mampostería, acero y madera. La sección de mampostería tiene una cornisa con ménsulas. Sobre ésta se encuentra el área de observación, que es de madera y consiste de una puerta y ventanas con celosías, está protegida por una baranda y tiene una cúpula de metal con un remate esférico. Tres de las ventanas visibles están rotas, les faltan las celosías. La torre tiene paredes amarillas, la cornisa es blanca, el área de observación es verde al igual que la baranda y la cúpula tiene color marrón. Tras la torre se pueden ver casas y edificios de la ciudad antigua, entre ellos, Casa Blanca. También se divisan un tramo de la muralla defensiva que rodea parte de la ciudad y y parte de la bahía de San Juan. Originalmente esta casa fue la residencia del Dr. Francisco Oller y Ferrer, abuelo del pintor Francisco Oller y Cestero. En 1831 fue vendida al Estado y el 1832 pasó a ser la primera sede de la Real Audiencia Territorial. Alrededor del 1898 fue arrendada al Departamento de Agricultura de Estados Unidos y en otro momento se usó como Departamento de Estado. En 1992 la edificación fue dedicada a Don Fernando Chardón. Luego de un periodo de abandono fue restaurada en el año 2000 y asignada a las oficinas de Guías Turísticos y de Programas Federales adscritos a la Oficina del Gobernador. La Torre Meteorológica y de Observación fue diseñada por el ingeniero Manuel Maese, la orden para su construcción fue emitida en 1883.

Calle de la Fortaleza 56 - Antigua Real Audiencia - Conservatorio De Artes Del Caribe - San Juan (Viejo San Juan) - 2011 00005

Calle de la Fortaleza 56 - Antigua Real Audiencia - Conservatorio De Artes Del Caribe - San Juan (Viejo San Juan) - 2011 00005



Antigua Real Audiencia, calle de la Fortaleza en el Viejo San Juan. Vista de la fachada de la casa de dos pisos estilo colonial español. En el primer nivel se observan cinco arcos adintelados: la entrada principal en el centro, una puerta y una ventana a un lado y dos ventanas al otro lado. La entrada tiene tres escalones. Las ventanas tienen antepechos de balaustres de madera y sobre cada una hay un óculo ovalado. Una moldura continua se extiende sobre la base del edificio y alrededor de la entrada, esta solo es interrumpida en la puerta del extremo. A los lados de la entrada hay dos lámparas de techo tipo farol y bajo una de la lámparas hay una placa conmemorativa. Un extenso balcón abierto con balaustrada de madera une los cinco vanos del segundo nivel. Cada vano tiene una puerta de doble hoja con celosías y paneles de vidrio en la parte superior. La casa tiene una hilada seguida por una cornisa delgada y un parapeto liso con moldura en el borde. En el techo se ve la Torre Meteorológica y de Observación, la torre octagonal fue construida en mampostería, acero y madera. La parte de mampostería tiene pequeños óculos en las paredes y una cornisa con ménsulas. Sobre ésta se encuentra el área de observación, que es de madera y consiste de una puerta y ventanas con celosías, está protegida por una baranda y tiene una cúpula de metal con un remate esférico. La casa está pintada de amarillo con las molduras blancas, los balaustres son verdes. La torre también tiene paredes amarillas, la cornisa es blanca y el área de observación es verde al igual que la baranda. Tras la torre se pueden ver partes de edificios cercanos. Son visibles un tramo de la acera pavimentada con losetas, varias balizas de metal y un pequeño segmento de la calle, pavimentada con adoquines. Los dos edificios contiguos son parcialmente visibles. A un lado el Palacio Rojo y al otro lado el edificio localizado en la esquina con la calle del Cristo. La vista es desde el techo del edificio número 59. Originalmente esta casa fue la residencia del Dr. Francisco Oller y Ferrer, abuelo del pintor Francisco Oller y Cestero. En 1831 fue vendida al Estado y el 1832 pasó a ser la primera sede de la Real Audiencia Territorial. Alrededor del 1898 fue arrendada al Departamento de Agricultura de Estados Unidos y en otro momento se usó como Departamento de Estado. En 1992 la edificación fue dedicada a Don Fernando Chardón. Luego de un periodo de abandono fue restaurada en el año 2000 y asignada a las oficinas de Guías Turísticos y de Programas Federales adscritos a la Oficina del Gobernador. La Torre Meteorológica y de Observación fue diseñada por el ingeniero Manuel Maese, la orden para su construcción fue emitida en 1883.

Antiguo Banco de Ponce - 2013 00001

Antiguo Banco de Ponce - 2013 00001



Vista lateral del edificio del Antiguo Banco de Ponce ubicado en el pueblo costero de Ponce. El edificio es de tres niveles construido en hormigón con características de los estilos Beaux-Art y neoclásico. La fachada lateral muestra ventanas cubiertas por rejas metálicas y ventanas francesas bajo arcos semicirculares presididos por balaustradas. Además, los arcos están enmarcados con molduras ornamentales, coronadas con espinazos y flanqueadas por pares de pilastras acanaladas de orden corintio. Las pilastras se extienden hasta el tercer nivel y sostienen un entablamento corrido con cornisas, molduras, rosetones y dentículos. En la parte frontal también se distingue una columna acanalada de orden corintio. Por otra parte, al extremo izquierdo separado por el conocido callejón del Amor o Paseo Antonio S. Arias se distingue un extremo del edificio del Banco de Crédito y Ahorro Ponceño caracterizado por su entrada a través de una esquina achaflanada y sus características del estilo Beaux-Arts. El Banco de Ponce fue fundado en 1912 pero no fue hasta 1924 y 1925 cuando fue construido e inaugurado el edificio. Posteriormente en la década de 1940 su interior fue remodelado para ampliarlo de acuerdo con las necesidades del establecimiento. Para 1983 el banco contaba con cincuenta sucursales y en 1990 se fusionó con el Banco Popular de Puerto Rico. En adición, en 1987 el edificio fue incluido en el Registro Nacional de Lugares Históricos.

Teatro Yagüez - Mayagüez - 2011 00048

Teatro Yagüez - Mayagüez - 2011 00048



Detalle de las butacas del tercer nivel del Teatro Yagüez, localizado entre las calles McKinley y Basora del municipio de Mayagüez. Las butacas son de color rojo y entre estas son visibles algunas barandas. La pared posterior es también de color rojo y exhibe una cornisa, seguida de un techo moldurado con motivos de bajorrelieve. El parapeto que delimita el área del palco tiene forma curvada. En su origen, en 1909, el teatro fue diseñado y construido de madera, acero y cinc, y se le conoció como la Casa del Arte Sonoro. El dueño original de este teatro fue Francisco Maymón Palmer. En el año 1919 un fuego consumió el edificio. En 1920 se llevó a cabo un nuevo diseño de estilo ecléctico, integrando materiales como el hormigón, la madera, el cristal, el mármol italiano y el yeso para las ornamentaciones. Durante la década de 1950 el teatro mostró signos de deterioro y en el periodo de 1977 a 1984 se llevaron a cabo trabajos de restauración bajo el auspicio del municipio de Mayagüez. Asimismo, durante el periodo de 2002 a 2008 se realizó una tercera restauración al teatro. Este teatro constituye uno de los principales escenarios artísticos y de gran valor histórico en el área oeste de Puerto Rico por acoger a importantes orquestas y compañías de drama y danza. Su arquitectura refleja elementos del neoclásico europeo, el neobarroco y de la arquitectura de principios del siglo XX que se conoció como la Belle Époque.

Condado Vanderbilt - San Juan (Condado) - 2013 00093

Condado Vanderbilt - San Juan (Condado) - 2013 00093



Vista desde el patio trasero del Hotel Condado Vanderbilt ubicado en la avenida Ashford del pueblo costero de San Juan. El hotel es de varios niveles con características del estilo resurgimiento español. En el patio trasero del hotel hay una pérgola que se extiende de manera horizontal. Tiene el techo con vigas de madera expuestas, el piso de madera y puertas dobles de cristal. El extremo de la pérgola que tiene las puertas da paso a una balaustrada metálica que anticipa la costa del océano atlántico. El Hotel Condado Vanderbilt fue comisionado en 1917 por Frederick William Vanderbilt. Finalmente el 16 de octubre de 1919 fue inaugurado el primer gran hotel de lujo del Caribe. En el año 1930 fue vendido y pasó a llamarse Hotel Condado, posteriormente en 1940 se convirtió en el primer hotel en la isla en tener un casino. Además, en 1950 volvieron a cambiar su nombre a Condado Beach Hotel y se añadieron habitaciones, salones de actividades y un restaurante. Luego de considerar su demolición fue incluido en el Registro Nacional de Lugares Históricos en el año 1988. Más recientemente fue remodelado entre los años 2008 a 2014 por los arquitectos Thomas S. Marvel y José Marchand Sifre añadiendo dos torres de suites modernas. Además, la planificación y restauración de los espacios estuvo a cargo del Arquitecto Jonathan Parks y la firma SOLSTICE Planning and Architecture. Los diseños interiores estuvieron a cargo del diseñador Jorge Roselló.

Casa Grande - Mayagüez - 2011 00039

Casa Grande - Mayagüez - 2011 00039



Patio central de la Casa Grande, localizada en Mayagüez. La circulación principal de esta casa gira en torno al patio central con galería. El piso de esta área está cubierto con losas nativas, criollas o baldosas hidráulicas con motivos geométricos. En el centro resalta una fuente circular delimitada con bloques y plantas. También son notables un par de banquetas, una puerta con reja, un toldo, un conjunto de ventanas tipo persianas con lamas horizontales de vidrio y, una ventana con reja de motivo geométrico y una consola de aire acondicionado. La superficie de la casa exhibe colores como el amarillo, el verde y el blanco. Esta casa fue edificada en el 1890 y sus características son representativas del estilo arquitectónico neoclásico criollo. Su sólida construcción, mayormente de mampostería, resistió el terremoto de San Fermín ocurrido el 11 de octubre de 1918. Esta casa es históricamente importante porque también albergó la Sede de la Audiencia de Mayagüez y, tras el cambio de soberanía en 1898, pasó a manos privadas. Para 1901 fue la propiedad de don Guillermo Santos, quien la heredó a su hija, Isabel Santos Tió, casada con don Benigno Rodríguez Campoamor, el vicecónsul de España en Puerto Rico. En 1998, la administración municipal de Mayagüez adquirió esta casa y la restauró como museo, sala de exhibiciones, centro de presentación de obras literarias y para el desarrollo social y cultural de la ciudad. Desde entonces es conocida como la Casa Grande, Museo y Casa Cultural.

Casa en la Calle Cuevillas 607 - San Juan (Miramar) - 2014 00035

Casa en la Calle Cuevillas 607 - San Juan (Miramar) - 2014 00035



Fachada lateral de la casa en la calle Cuevillas 607, en Miramar, San Juan. Este tramo de la fachada se distingue por los balcones con barandas compuestas de bloques ornamentales. Las ventanas son tipo persianas, de las cuales algunas están protegidas con rejas. Estas ventanas, así como las puertas están acentuadas con una moldura blanca que contrasta con el color rosado de la superficie del edificio. La parte superior de la fachada se caracteriza por un friso ornamental con rosetas seguido de dentículos, una cornisa y modillones. Además, se proyecta un tipo de frontón triangular. Esta casa se construyó en 1913 siguiendo influencias del estilo resurgimiento del renacimiento francés o resurgimiento neoclásico francés. Sus dueños originales fueron el juez Luis Méndez Baz y su esposa, María Bagur. Tras visitar Francia, la pareja hizo construir su residencia siguiendo el diseño de un prototipo publicado en Nouvelles Maisons de Campagne, Paris et ses Environs, que mostraba fachadas y planos de casas de campo populares en París. Posteriormente la casa funcionó como residencia y taller para artistas como Lorenzo Homar, Juan Ramón Velázquez, Ada Bobonis y Aaron Salabarrías. Además, los herederos de los dueños originales establecieron una fundación para desarrollar un museo en esta residencia. Entre el 2018 y 2019 se llevó a cabo la restauración del edificio que dio lugar al establecimiento del Museo de Arte y Diseño de Miramar, también conocido como la Casa Rosada.

Edificio calle en la calle Isabel y calle Atocha - Ponce - 2014

Edificio calle en la calle Isabel y calle Atocha - Ponce - 2014



Vista a distancia del edificio conocido como Casa Casals entre las calles Isabel y Atocha del pueblo costero de Ponce. El edificio es de tres niveles en mampostería de ladrillo encalado con características de los estilos Neoclásico y Art Nouveau. Tiene un diseño achaflanado; el primer y segundo nivel están decorados con almohadillados, el primer nivel tiene una gran ventana de cristal sobre la cual hay un letrero. Además, el segundo nivel tiene ventanas francesas de cristal enmarcadas con molduras y coronadas con entablamentos triangulares decoradas con bajorrelieves. Los del segundo nivel tienen acróteras y guirnaldas y los del tercer nivel detalles ornamentales. Entre las ventanas del tercer nivel hay pilastras acanaladas que se alzan hasta sostener un entablamento corrido. El entablamento tiene cornisas, molduras, dentículos, un friso con diseños florales y sobre estos un parapeto bajo. Por otra parte, en los alrededores se distinguen postes de luz. De la misma manera, al extremo izquierdo hay un edificio adosado de menor tamaño. También se pueden ver personas caminando en la acera y vehículos en la calle. La conocida casa Casals data de 1894. A través de los años ha sido utilizada como vivienda y como establecimiento comercial. En adición, es considerada como el primer rascacielos de Puerto Rico. Ha sido restaurada en varias ocasiones por lo que ha tenido varios cambios significativos a su diseño original, siendo su más reciente remodelación en el año 2021.

Casa Dr. Agustín Stahl Stamm - Bayamón - 2011 00007

Casa Dr. Agustín Stahl Stamm - Bayamón - 2011 00007



Casa Dr. Agustín Stahl Stamm en Bayamón. Vista de la fachada principal de la casa. Tiene paredes de mampostería de ladrillo recubiertas con estuco y está orientada hacia la calle José Martí. Presenta una disposición simétrica con tres puertas dobles de madera, cada una protegida por rejas de hierro y rematada con una cornisa decorativa. Las tres muestran paneles de vidrio idénticos para permitir la entrada de luz natural. Las puertas en los extremos izquierdo y derecho de la puerta central tienen celosías de madera. El techo tiene un parapeto y una cornisa que recorre toda la fachada. Sobre la cornisa de la puerta hay un letrero que dice: "Baya Empresas". También se observan dos lámparas de pared a los lados de la puerta y edificios de cemento a los lados. En la calle hay cables eléctricos colgando y automóviles estacionados. La casa, construida en la década de 1840, exhibe características arquitectónicas neoclásicas y no solo fue la residencia del internacionalmente reconocido científico puertorriqueño Agustín Stahl (1842-1917), sino que también sirvió de consultorio médico, laboratorio y almacén para sus colecciones de historia natural y antropología. Fue adquirida y parcialmente restaurada por la Alcaldía de Bayamón en el año 2000, quien posteriormente la convirtió en museo. Aunque no existen planos históricos de la planta de la casa, durante el proceso de restauración no se realizó ninguna modificación y se conservó así su integridad en los materiales, la distribución espacial, ubicación y su ambiente.

Parroquia San Antonio de Padua - Barranquitas - 2011

Parroquia San Antonio de Padua - Barranquitas - 2011



Vista a distancia de la Parroquia San Antonio de Padua en el pueblo de Barranquitas. La parroquia es de dos niveles con un diseño ecléctico inspirado en los estilos resurgimiento español, art deco y neoclásico. En primer plano se divisa la plaza pública Bicentenaria Monseñor Miguel Ángel Mendoza decorada con un gazebo de hierro ornamental, zonas ajardinadas, postes de luz y carpas de plástico. Frente a la plaza está la Parroquia San Antonio de Padua. La fachada frontal está está pintada en tonos naranjas, decorada con una puerta doble de madera enmarcada y flanqueada por pilastras. Sobre la puerta hay un nicho con una estatua de San Antonio de Padua y sostenido por una ménsula. Se encuentra bajo una ventana de cristal con un arco semicircular enmarcado y flanqueado por pilastras. La fachada también tiene ventanas de cristal, un óculo y un frontón curvilíneo coronado con una cruz. Además, del edifico sobresale un campanario decorado con remates, cornisas, molduras coronado con tejas y una cruz. La Parroquia San Antonio de Padua fue construida por primera vez en 1792, sin embargo, tuvo que ser reconstruida en cuatro ocasiones tras ser destruida por varios huracanes. En la década de 1930 el edificio también era utilizado como academia que además contaba con un cine para los estudiantes que posteriormente fue abierto al público en general; permaneciendo en uso hasta la década de 1970. Finalmente, en 1933 fue reconstruida con el diseño actual y restaurado en la década de 1980.

Condado Vanderbilt - San Juan (Condado) - 2013 00106

Condado Vanderbilt - San Juan (Condado) - 2013 00106



Vista del patio trasero del Hotel Condado Vanderbilt ubicado en la avenida Ashford del pueblo costero de San Juan. El hotel es de varios niveles y características del estilo resurgimiento español. La parte trasera del hotel tiene una extensión moderna con amplios ventanales de cristal modulados por columnas. Además, el patio trasero tiene el piso cubierto por baldosas de cerámica, zonas ajardinadas, figuras decorativas y macetas decorativas. También hay sombrillas de patio y muebles a juego. El Hotel Condado Vanderbilt fue comisionado en 1917 por Frederick William Vanderbilt. Finalmente el 16 de octubre de 1919 fue inaugurado el primer gran hotel de lujo del Caribe. En el año 1930 fue vendido y pasó a llamarse Hotel Condado, posteriormente en 1940 se convirtió en el primer hotel en la isla en tener un casino. Además, en 1950 volvieron a cambiar su nombre a Condado Beach Hotel y se añadieron habitaciones, salones de actividades y un restaurante. Luego de considerar su demolición fue incluido en el Registro Nacional de Lugares Históricos en el año 1988. Más recientemente fue remodelado entre los años 2008 a 2014 por los arquitectos Thomas S. Marvel y José Marchand Sifre añadiendo dos torres de suites modernas. Además, la planificación y restauración de los espacios estuvo a cargo del Arquitecto Jonathan Parks y la firma SOLSTICE Planning and Architecture. Los diseños interiores estuvieron a cargo del diseñador Jorge Roselló.

Condado Vanderbilt - San Juan (Condado) - 2013 00205

Condado Vanderbilt - San Juan (Condado) - 2013 00205



Vista del interior del Hotel Condado Vanderbilt ubicado en la avenida Ashford del pueblo costero de San Juan. El hotel es de varios niveles con características del estilo resurgimiento español. El vestíbulo tiene dos niveles con pisos de mármol en dos colores con motivo ajedrezado. Tiene unas escaleras en espiral de mármol negro con balaustradas de hierro oramental y pasamanos de madera. La pared también tiene un pasamanos metálico que se alinea con el de la escalera y una lámpara metálica de pared. El Hotel Condado Vanderbilt fue comisionado en 1917 por Frederick William Vanderbilt. Finalmente el 16 de octubre de 1919 fue inaugurado el primer gran hotel de lujo del Caribe. En el año 1930 fue vendido y pasó a llamarse Hotel Condado, posteriormente en 1940 se convirtió en el primer hotel en la isla en tener un casino. Además, en 1950 volvieron a cambiar su nombre a Condado Beach Hotel y se añadieron habitaciones, salones de actividades y un restaurante. Luego de considerar su demolición fue incluido en el Registro Nacional de Lugares Históricos en el año 1988. Más recientemente fue remodelado entre los años 2008 a 2014 por los arquitectos Thomas S. Marvel y José Marchand Sifre añadiendo dos torres de suites modernas. Además, la planificación y restauración de los espacios estuvo a cargo del Arquitecto Jonathan Parks y la firma SOLSTICE Planning and Architecture. Los diseños interiores estuvieron a cargo del diseñador Jorge Roselló.

Antigua Iglesia El Nazareno - Catedral de la Música - San Juan (Miramar) - 2016 00057

Antigua Iglesia El Nazareno - Catedral de la Música - San Juan (Miramar) - 2016 00057



Fachada del edificio de la antigua Iglesia El Nazareno, también conocido como la Catedral de la Música Latina y la Casa Viera. Este edificio está localizado en el 909 de la avenida Fernández Juncos, esquina calle Hoare en la zona de Miramar, Santurce, en el municipio de San Juan. La fachada consiste de dos torres coronadas con tejas de barro. Las ventanas son arqueadas e integran rejas, vidrios y persianas. También se proyectan varios óculos acentuados por molduras blancas. La entrada principal consiste de puertas de aluminio con hojas de vidrio y un tejadillo con tejas de barro. Sobre la entrada resalta un tipo de frontón, una representación caricaturesca de una vitrola y un perro aullando, así como el nombre del edificio: "Viera Discos", "La Casa del Coleccionista" y "...L de la Música Latina". En un extremo sobresale la representación de la carátula del disco de Ismael Rivera con sus Cachimbos, titulado "Esto fue lo que trajo el barco". Frente al edificio se extiende una cerca articulada por un muro interrumpido por pilares con remates. Sobre un tramo del muro de la cerca cuelga un cartel que anuncia el ofrecimiento de Viera Discos y las alternativas de contacto. La superficie del edificio es de color amarillo con detalles anaranjados. Este edificio de hormigón, construido en 1947 en el estilo resurgimiento español, originalmente albergó una iglesia episcopal, conocida como El Nazareno en Santurce. Posteriormente, acogió la Casa Viera, la cual constituyó una de las más grandes tiendas de música del Caribe. A partir del año 2015 el edificio fue adquirido por la compañía Puerto Rico Island Holdings mediante una subasta realizada por el banco Scotiabank.

Ateneo Puertorriqueño - San Juan (Viejo San Juan) - 2009 00001

Ateneo Puertorriqueño - San Juan (Viejo San Juan) - 2009 00001



El Ateneo Puertorriqueño localizado en el barrio Puerta de Tierra en el Viejo San Juan. Fue fundado en 1876 y construido por el ingeniero Ramón Carbia Burt en 1923. Es la institución cultural más antigua de Puerto Rico, también se le conoce como "la Docta Casa". Su estilo arquitectónico es representativo del neoárabe. Fue nominado para el Registro Nacional de Lugares Históricos en 1984. Está pintado de color blanco y terracota. Se observa que la parte superior de la fachada tiene un alero cubierto con tejas sostenido por ménsulas de madera. También tiene siete arcos polilobulados interrumpidos por ocho pilastras que poseen azulejos en la parte superior. En la parte inferior de la fachada resaltan seis pilastras que sostienen un arco semicircular y un entablamento cubierto de azulejos con motivos florales. En ambos extremos de las pilastras se aprecian frisos en altos relieves con representaciones de figuras humanas que fueron esculpidos por el artista italiano Arrighini. Frente a la entrada hay unas escalinatas y farolas. El edificio también tiene ventanas de cristal con marcos de madera abisagradas y una ornamentación en forma de antorcha en la esquina superior del lado derecho de la imagen. En los alrededores se ven árboles, un automóvil, una decoración alusiva a los tres Reyes Magos, grama y una asta. Posteriormente el Ateneo Puertorriqueño se dedicó a fomentar el teatro, música, cine, literatura, historia, ciencias, ciencias morales y políticas y las artes plásticas puertorriqueñas.

Antigua Iglesia El Nazareno - Catedral de la Música - San Juan (Miramar) - 2016 00040

Antigua Iglesia El Nazareno - Catedral de la Música - San Juan (Miramar) - 2016 00040



Perspectiva de las estanterías con discos compactos en el interior del edificio de la antigua Iglesia El Nazareno, también conocido como la Catedral de la Música Latina y la Casa Viera. Este edificio está localizado en el 909 de la avenida Fernández Juncos, esquina calle Hoare en la zona de Miramar, Santurce, en el municipio de San Juan. En la nave principal se ubican las estanterías con discos compactos y discos de vinilo. Al fondo, en un área abovedada, resalta una pintura mural con la representación de Richie Viera, uno de los dueños de la tienda de música conocida como la Casa Viera. Esta pintura también incluye una representación de la Capilla del Cristo y de edificios característicos de la arquitectura del Viejo San Juan. También son notables una lámpara colgante, imágenes pegadas en el techo, retratos de cantantes colgados en la pared, parte de la balaustrada de la galería del segundo nivel decorada con discos de vinilo, una puerta con montante de abanico y el mosaico de motivo geométrico que cubre el piso. Este edificio de hormigón, construido en 1947 en el estilo resurgimiento español, originalmente albergó una iglesia episcopal, conocida como El Nazareno en Santurce. Posteriormente, acogió la Casa Viera, la cual constituyó una de las más grandes tiendas de música del Caribe. A partir del año 2015 el edificio fue adquirido por la compañía Puerto Rico Island Holdings mediante una subasta realizada por el banco Scotiabank.

Capitolio de Puerto Rico - San Juan (Puerta de Tierra) - 2009 00004

Capitolio de Puerto Rico - San Juan (Puerta de Tierra) - 2009 00004



Vista frontal del Capitolio de Puerto Rico ubicado en la comunidad de Puerta de Tierra del pueblo costero de San Juan. El edificio es de tres niveles con características del estilo neoclásico en hormigón y acero revestido por mármol blanco. Tiene una forma oblicua dividida en naves, la nave lateral izquierda tiene ventanas de cristal bajo arcos rectangulares enmarcadas con molduras, puertas dobles de cristal presididas por antepechos y coronadas con entablamentos. También se puede ver un pórtico sostenido por ocho columnas de órden jónico que a su vez sostienen un entablamento corrido con cornisas, molduras y dentículos. Además, el borde superior del edificio está decorado con una crestería. En el interior del pórtico se pueden ver puertas dobles de madera y cristal coronadas con detalles decorativos en bajo relieve sobre las cuales hay ventanas de cristal. Modulando las puertas y ventanas se ven pilastras y el techo decorado con artesonado. En los alrededores del edificio hay espacios de estacionamiento y un vehículo. El Capitolio de Puerto Rico fue construido entre los años 1925 a 1929 utilizando el diseño del arquitecto Puertorriqueño Rafael Carmoega. Ha permanecido en uso continuo y fue expandido añadiendo dos edificios anexos en la década de 1950 trabajo realizado por la firma Toro y Ferrer, Además, fue incluido al Registro Nacional de Lugares históricos en el año 1977 y añadido a la nominación de Distrito Histórico de Puerta de Tierra en el año 2019.

Edificio Moscoso Hermanos & Co - Edificio Municipal - Ponce - 2014 00001

Edificio Moscoso Hermanos & Co - Edificio Municipal - Ponce - 2014 00001



Vista frontal del edificio Moscoso Hermano & Co., está ubicado en el pueblo costero de Ponce. Es de dos niveles con un diseño achaflanado y características de los estilos neoclásico y de la arquitectura colonial española. En el primer nivel hay puertas dobles de madera bajo arcos semicirculares enmarcados con molduras, flanqueados con pilastras y coronados con travesaños de vidrio pintado y espinazos. El segundo nivel tiene puertas dobles de madera coronadas con travesaños de madera presididas por balconeras y un balcón saledizo sostenido por ménsulas decorativas. Tanto el balcón como las balconeras tienen barandas de hierro ornamental coronadas con entablamento corrido y sostenido por ménsulas. Además, modulando la fachada hay pilastras acanaladas que se alzan hasta el segundo nivel y sostienen un entablamento corrido con molduras, cornisas, un friso decorativo y una inscripción que dice: “Moscoso Hermano & Co. Inc.”, “Edificio Municipal”. Sobre el entablamento descansa una balaustrada que rodea el techo a modo de balcón abierto. Por otra parte, en los alrededores se pueden ver calles pavimentadas en donde hay personas y vehículos estacionados y la plaza decorada con zonas ajardinadas, postes de luz y bancos. El edificio Moscoso Hermano & Co. fue construido a principios del siglo XX. Originalmente fue utilizado como establecimiento comercial hasta hace unos años cuando fue restaurado y habilitado para albergar oficinas municipales del pueblo de Ponce.

Condado Vanderbilt - San Juan (Condado) - 2013 00204

Condado Vanderbilt - San Juan (Condado) - 2013 00204



Vista del interior del Hotel Condado Vanderbilt ubicado en la avenida Ashford del pueblo costero de San Juan. El hotel es de varios niveles con características del estilo resurgimiento español. El vestíbulo tiene dos niveles con pisos de mármol en dos colores con motivo ajedrezado. Tiene unas escaleras en espiral de mármol negro con balaustradas de hierro oramental y pasamanos de madera. La pared también tiene un pasamanos metálico que se alinea con el de la escalera y una lámpara metálica de pared. El Hotel Condado Vanderbilt fue comisionado en 1917 por Frederick William Vanderbilt. Finalmente el 16 de octubre de 1919 fue inaugurado el primer gran hotel de lujo del Caribe. En el año 1930 fue vendido y pasó a llamarse Hotel Condado, posteriormente en 1940 se convirtió en el primer hotel en la isla en tener un casino. Además, en 1950 volvieron a cambiar su nombre a Condado Beach Hotel y se añadieron habitaciones, salones de actividades y un restaurante. Luego de considerar su demolición fue incluido en el Registro Nacional de Lugares Históricos en el año 1988. Más recientemente fue remodelado entre los años 2008 a 2014 por los arquitectos Thomas S. Marvel y José Marchand Sifre añadiendo dos torres de suites modernas. Además, la planificación y restauración de los espacios estuvo a cargo del Arquitecto Jonathan Parks y la firma SOLSTICE Planning and Architecture. Los diseños interiores estuvieron a cargo del diseñador Jorge Roselló.

Condado Vanderbilt - San Juan (Condado) - 2013 00143

Condado Vanderbilt - San Juan (Condado) - 2013 00143



Vista desde el balcón frontal del Hotel Condado Vanderbilt ubicado en la avenida Ashford del pueblo costero de San Juan. El hotel es de varios niveles y características del estilo resurgimiento español. La fachada frontal del hotel tiene ventanas dobles de cristal bajo arcos rectangulares, puertas dobles bajo arcos semicirculares presididas por antepechos y un entablamento corrido. También se distingue una de las ventanas coronada con un entablamento triangular y en el primer nivel una puerta rectangular. Además, la fachada frontal está presidida por una entrada vehicular y zonas ajardinadas. Por otra parte, al extremo izquierdo se distingue una de las torres laterales del hotel con ventanas dobles de cristal enmarcadas con molduras y balcones con balaustradas de cristal dentro de los cuales hay más ventanas y puertas enmarcadas con molduras. El Hotel Condado Vanderbilt fue comisionado en 1917 por Frederick William Vanderbilt. Finalmente el 16 de octubre de 1919 fue inaugurado el primer gran hotel de lujo del Caribe. En el año 1930 fue vendido y pasó a llamarse Hotel Condado, posteriormente en 1940 se convirtió en el primer hotel en la isla en tener un casino. Además, en 1950 volvieron a cambiar su nombre a Condado Beach Hotel y se añadieron habitaciones, salones de actividades y un restaurante. Luego de considerar su demolición fue incluido en el Registro Nacional de Lugares Históricos en el año 1988. Más recientemente fue remodelado entre los años 2008 a 2014 por los arquitectos Thomas S. Marvel y José Marchand Sifre añadiendo dos torres de suites modernas. Además, la planificación y restauración de los espacios estuvo a cargo del Arquitecto Jonathan Parks y la firma SOLSTICE Planning and Architecture. Los diseños interiores estuvieron a cargo del diseñador Jorge Roselló.

Iglesia de San Jorge - San Juan (Condado) - 2014 00097

Iglesia de San Jorge - San Juan (Condado) - 2014 00097



Vista desde el interior de la Parroquia San Jorge ubicada en la comunidad de Condado del pueblo costero de San Juan. La iglesia es de dos niveles en hormigón con características del estilo neogótico pintada de color blanco y color gris. El interior está dividido en tres naves, la nave central se eleva un nivel adicional con techos abovedados. Además, hay lámparas colgantes y ventanas de cleristerio, la ventana es de cristal bajo un arco ojival coronada con vierteaguas y tracerías lobuladas. En la nave central también se ve un extremo del altar, en la pared se puede ver una estatua sobre una ménsula y un retablo decorativo. Dividiendo la nave central de la lateral hay arcadas de arcos ojivales enmarcadas con molduras y flanqueadas por pilastras pares que a su vez conectan con las vigas en el techo y con las pilastras en la pared contraria. A diferencia de la nave central, la nave lateral es de un nivel. Hay filas de bancos de madera y lámparas colgantes de cristal. También se pueden ver estaciones de via crucis, en el borde superior un friso ornamental, puertas dobles de madera coronadas con travesaños de vidrio pintado y enmarcado con un vierteaguas pintado de color dorado. Por otra parte, en la pared de la nave izquierda también se puede ver un confesionario de madera empotrado en la pared con cortinas de tela color rojo. La iglesia San Jorge fue inaugurada en el año 1920 siendo oficialmente fundada canónicamente en 1924 tras ser desmembrada de las Parroquias San Mateo y Sagrado Corazón. Su diseño inicial estuvo a cargo de la firma Martínez y Lázaro siendo finalizado en dos años. Seis años después se comienza la construcción de los edificios aledaños a la academia San Jorge. Posteriormente en 1940 la fachada fue remodelada por el arquitecto Rafael Carmoega. Más recientemente en el año 2017 fue restaurada en fases por la firma Astrid Díaz: ADV Architects.

Casa Alcaldía de Vieques - 2015 00001

Casa Alcaldía de Vieques - 2015 00001



Fachada de la Casa Alcaldía de Vieques, localizada frente a la calle Carlos LeBrun. Esta alcaldía está articulada por tres unidades volumétricas. Uno de los volúmenes tiene dos niveles y se caracteriza por un arco elíptico, vanos rectangulares y un balcón suspendido sobre ménsulas y con balaustrada de concreto del que se elevan las banderas. El otro volumen es de un nivel y presenta tres vanos rectangulares con molduras sencillas y planas de ladrillo y estuco. Entre estos volúmenes sobresale la torre del reloj, que se distingue por vanos emparejados y arqueados con lumbreras, óculos y detalles a relieve y almenados. Los relieves y detalles ornamentales de la torre combinan influencias medievales y normandas con algunos elementos del art déco. Además, entre los volúmenes son visibles las cornisas coronadas con parapetos. La superficie del edificio exhibe tonalidades de anaranjado claro y anaranjado oscuro que contrastan con detalles de blanco. Frente al edificio se encuentran varios automóviles. Este edificio presenta una adaptación vernacular con interpretaciones coloniales combinadas con el impacto de la arquitectura neoclásica que predominó, especialmente, en la transición del siglo XIX al XX. Su construcción inició aproximadamente en el año 1850 y culminó en 1903. En su origen, este edificio se construyó para albergar la residencia de Francisco Sainz, el alcalde de Vieques durante 1843 a 1852, al mismo tiempo que serviría de espacio para las funciones administrativas del municipio. El edificio estuvo a nombre de la familia Sainz hasta 1908, cuando su hija, doña Josefa Sebastián de la Trinidad Sainz, vendió la propiedad al municipio.

Antiguo Banco de Ponce - 2014 00006

Antiguo Banco de Ponce - 2014 00006



Vista del edificio del Antiguo Banco de Ponce ubicado en el pueblo costero de Ponce. En primer plano, hay personas caminando en la calle y vehículos transitando. Por otra parte, al extremo derecho se alza el edificio del Banco de Ponce. El edificio es de tres niveles construido en hormigón con características de los estilos Beaux-Art y neoclásico. La fachada tiene ventanas cubiertas por rejas metálicas y ventanas francesas bajo arcos semicirculares presididos por balaustradas. Además, los arcos están enmarcados con molduras ornamentales, coronadas con espinazos y flanqueadas por pares de pilastras acanaladas de orden corintio. Las pilastras se extienden hasta el tercer nivel y sostienen un entablamento corrido con cornisas, molduras, dentículos, rosetones y más ventanas francesas. En la parte frontal también se distingue una entrada a través de una puerta rectangular enmarcada, coronada con un entablamento y flanqueada por columnas acanaladas de orden corintio. También, sobre la entrada se distingue una inscripción que dice: “Banco Popular”. Por otra parte, al extremo izquierdo separado por el conocido Callejón del Amor o Paseo Antonio S. Arias se distingue el edificio del Banco de Crédito y Ahorro Ponceño caracterizado por su entrada a través de una esquina achaflanada y características del estilo Beaux-Arts. El Banco de Ponce fue fundado en 1912 pero no fue hasta 1924 y 1925 cuando fue construido e inaugurado el edificio. Posteriormente en la década de 1940 su interior fue remodelado para ampliarlo de acuerdo con las necesidades del establecimiento. Para 1983 el banco contaba con cincuenta sucursales y en 1990 se fusionó con el Banco Popular de Puerto Rico. En adición, en 1987 el edificio fue incluido en el Registro Nacional de Lugares Históricos.

Casa en la Calle Cuevillas 607

Casa en la Calle Cuevillas 607



Dibujo arquitectónico de la fachada de la casa en la calle Cuevillas 607, en Miramar, San Juan. El dibujo fue realizado por el proyecto Puerto Rico Historic Building Drawing Society. La casa es de dos niveles y su fachada está dividida en tres tramos acentuados por pilastras. El primer nivel presenta puertas de doble hoja con paneles y lumbreras, así como balconeras con barandas ornamentales. Estas puertas están acentuadas por molduras y claves. Sobre la puerta del centro se proyecta un ornamento tipo "cartouche". También son notables ornamentos tipo rosetas en algunas de las pilastras. El segundo nivel también presenta balconeras con rejas ornamentales, puertas arqueadas de doble hoja, lumbreras, molduras y claves. Sobre estas puertas resalta un friso ornamentado con guirnaldas. La transición hacia la cubierta está acentuada por una cornisa y modillones. El tramo central tiene una cubierta a dos aguas tipo frontón triangular con una ventana de lamas horizontales o persiana y una moldura que se extiende de manera escalonada. En uno de los laterales se encuentran dos balcones con barandas de rejas ornamentales, mientras que en el lado opuesto se distingue por una escalera. Esta casa se construyó en 1913 siguiendo influencias del estilo resurgimiento del renacimiento francés o resurgimiento neoclásico francés. Sus dueños originales fueron el juez Luis Méndez Baz y su esposa, María Bagur. Tras visitar Francia, la pareja hizo construir su residencia siguiendo el diseño de un prototipo publicado en Nouvelles Maisons de Campagne, Paris et ses Environs, que mostraba fachadas y planos de casas de campo populares en París. Posteriormente la casa funcionó como residencia y taller para artistas como Lorenzo Homar, Juan Ramón Velázquez, Ada Bobonis y Aaron Salabarrías. Además, los herederos de los dueños originales establecieron una fundación para desarrollar un museo en esta residencia. Entre el 2018 y 2019 se llevó a cabo la restauración del edificio que dio lugar al establecimiento del Museo de Arte y Diseño de Miramar, también conocido como la Casa Rosada.

U.S. Customs House - Mayagüez - 2012 00001

U.S. Customs House - Mayagüez - 2012 00001



Fachada posterior y lateral del edificio U.S. Custom House, también conocido como la Aduana de Mayagüez. Este edificio es de una planta rectangular y se distingue por un pórtico con columnas toscanas, cornisas de modillones sobre un entablamento coronado con balaustrada y un panel central elevado. El entablamento tiene una inscripción de hormigón que indica: "United States Custom House". El panel superior también presenta el texto: "By the authority of the Congress of the United States this building was erected AD MCMXXXII for the use of the Custom Service in the island of Porto Rico". La fachada posterior tiene siete vanos, de los cuales, tres son las puertas arqueadas en el centro, flanqueadas por dos pares de ventanas arqueadas. La fachada lateral también presenta cinco vanos arqueados con rejas flanqueados por pilastras toscanas. Frente al edificio se extiende una cerca compuesta por un muro bajo coronado con rejas. En el patio se ubica un generador eléctrico. La superficie del edificio es de color rosado o salmón combinado con detalles ornamentales de blanco. Este edificio fue diseñado con elementos del estilo Beaux Arts y su construcción tuvo lugar en 1924. Este fue el primer edificio de aduana construido durante el periodo del régimen militar estadounidense en Puerto Rico. Durante la década de 1960 se le realizaron algunos cambios mínimos como parte de una remodelación. El 30 de septiembre de 1981 fue declarado Edificio Histórico y en 1996 fue restaurado totalmente.

Condado Vanderbilt - San Juan (Condado) - 2013 00191

Condado Vanderbilt - San Juan (Condado) - 2013 00191



Vista desde el interior del Hotel Condado Vanderbilt ubicado en la avenida Ashford del pueblo costero de San Juan. El hotel es de varios niveles con características del estilo resurgimiento español. Los espacios interiores están pintados en varios tonos de color rosa. El vestíbulo tiene dos niveles con pisos de mármol en dos colores y patrón ajedrezado. En el primer nivel la nave central se divide de las laterales con arcos rectangulares acompañados con lámparas de pared. En medio hay una escalera es espiral de mármol negro con balaustrada metálica y pasamano de madera. Además, el segundo nivel tiene una nave lateral dividida por balaustradas, puertas dobles de madera y cristal. El Hotel Condado Vanderbilt fue comisionado en 1917 por Frederick William Vanderbilt. Finalmente el 16 de octubre de 1919 fue inaugurado el primer gran hotel de lujo del Caribe. En el año 1930 fue vendido y pasó a llamarse Hotel Condado, posteriormente en 1940 se convirtió en el primer hotel en la isla en tener un casino. Además, en 1950 volvieron a cambiar su nombre a Condado Beach Hotel y se añadieron habitaciones, salones de actividades y un restaurante. Luego de considerar su demolición fue incluido en el Registro Nacional de Lugares Históricos en el año 1988. Más recientemente fue remodelado entre los años 2008 a 2014 por los arquitectos Thomas S. Marvel y José Marchand Sifre añadiendo dos torres de suites modernas. Además, la planificación y restauración de los espacios estuvo a cargo del Arquitecto Jonathan Parks y la firma SOLSTICE Planning and Architecture. Los diseños interiores estuvieron a cargo del diseñador Jorge Roselló.

Casa en la Calle Padre Aguilera, esquina calle Kofresí - Mayagüez - 2012 00007

Casa en la Calle Padre Aguilera, esquina calle Kofresí - Mayagüez - 2012 00007



Fachada principal y lateral de una casa en la calle Padre Aguilera, esquina calle Kofresí, localizada en el municipio de Mayagüez. Esta casa es de madera y está elevada sobre un podio. La fachada principal se caracteriza por un porche delimitado por una balaustrada flanqueada por pedestales de los cuales se elevan columnas emparejadas. Estas columnas están decoradas con franjas blancas verticales y dan soporte a un tipo de entablamento. Las puertas del porche presentan lumbreras y al menos una de estas tiene pequeños paneles de vidrio. Además, en esta fachada resalta una ventana que también es de lumbreras o tipo persiana de aluminio. La fachada lateral se distingue por un tipo de terraza techada con una balaustrada y columnas elevadas en pedestales. A este lado de la casa se accede por un pequeño portón que conduce a una escalera. El extremo de la casa que se encuentra hacia la calle Kofresí está delimitado por una cerca constituida por un muro con rejas interrumpidas por pilares. La superficie de esta casa es de color amarillo, anaranjado y blanco. La casa exhibe elementos característicos de la arquitectura vernácula. En los alrededores de la casa se ubica un automóvil, una persona, y son notables los postes con cableado eléctrico, un letrero con los nombres de las calles y otro letrero con el aviso: "Prohibido tirar basura, escombros o cualquier tipo de desperdicios. Violadores serán procesados. $1000 multa máxima". A ambos lados también se distinguen otras casas con características similares, de colores azul, blanco y rosa.

Antiguo Acueducto de Río Piedras - Documentación Aérea - San Juan (Río Piedras) - 2013 00030

Antiguo Acueducto de Río Piedras - Documentación Aérea - San Juan (Río Piedras) - 2013 00030



Vista aérea del río Piedras y el sitio del antiguo acueducto de Río Piedras en San Juan. Desde esta perspectiva es visible un muro que conforma un tipo de represa. Además, es notable la casa de llaves y esclusas cuyo edificio es de una planta rectangular, constituido de mampostería de piedra y ladrillos y de estilo colonial español. En un tramo de su fachada exhibe tres aberturas arqueadas. Este edificio de 1894-1896, fue diseñado por Arturo Guerra, basado en el esquema original de Fernando Alameda en 1887 y funcionó como punto de distribución del agua cruda de la presa hasta los estanques de sedimentación. De manera parcial, también es visible el techo plano de la residencia de ingenieros y cuidadores diseñada por Fernando Alameda en 1887. Su construcción tuvo lugar entre 1892 y 1894 y se emplearon materiales como la piedra caliza y mampostería. Este edificio, de estilo colonial español, es de una planta rectangular, de un solo piso y una cubierta plana. Después de 1923 el edificio fue alterado para acomodar nuevos usos, entre estos, funcionó como almacén y posteriormente como laboratorio de calidad del agua desde 1923-1980. Al lado, se encuentra la casa de filtros y bombas y se distingue por ser un edificio de hormigón armado, de un nivel con forma de "L" y cubierta plana. Este edificio fue diseñado por Carlos del Valle Zeno y construido en 1923 en sustitución de un edificio de madera previo. Al fondo se encuentra un estacionamiento con varios automóviles. La planificación del histórico Acueducto de Río Piedras inició en 1846 mediante una serie de propuestas y su construcción inició a partir de 1892 con periodos de construcción adicionales que continuaron hacia el temprano siglo XX. La planta operó desde el tardío siglo XIX hasta la década de 1980. El sitio ha estado vacante desde 1980 y es propiedad del Fideicomiso de Conservación de Puerto Rico y está dirigido por la organización local sin fines de lucro "Para La Naturaleza" que utiliza el sitio para actividades de educación ambiental.

Original Drawings - Antiguo Hospital Civil - Archivo General 2010 00026

Original Drawings - Antiguo Hospital Civil - Archivo General 2010 00026



Dibujo arquitectónico del Archivo General y Biblioteca Nacional de Puerto Rico ubicado en la comunidad de Puerta de Tierra del pueblo costero de San Juan. El edificio es de tres niveles con características del estilo neoclásico. El plano muestra la fachada lateral del edificio que tiene tres pisos con características del estilo neoclásico. La fachada lateral tiene ventanas dobles bajo arcos de medio punto enmarcados con molduras. Las ventanas del segundo nivel están coronadas con espinazos y están sobre bases de molduras salientes una de las cuales tienen balaustres. Además, modulando las ventanas hay pilastras que se conectan y se alzan hasta sostener un entablamento con molduras, cornisa y triglifos. Sobre este se proyecta un parapeto bajo con ánforas ubicadas a la par con las pilastras y los triglifos. El antiguo Hospital Civil fue el último edificio erigido por el gobierno Español en la Isla entre los años 1877-1887. A pesar de que fue construido como hospital fue utilizado como Cárcel provincial y posteriormente como destilería. Años más tarde, ante una amenaza de demolición el Instituto de Cultura Puertorriqueña lo adquirió y lo restauró para albergar documentos históricos. A partir del año 1973 trasladaron el Archivo General y la Biblioteca Nacional de Puerto Rico a este espacio. Además, el edificio fue incluido en el Registro Nacional de Lugares Históricos en el año 1976.

Antigua Iglesia El Nazareno - Catedral de la Música - San Juan (Miramar) - 2016 00001

Antigua Iglesia El Nazareno - Catedral de la Música - San Juan (Miramar) - 2016 00001



Perspectiva del interior del edificio de la antigua Iglesia El Nazareno, también conocido como la Catedral de la Música Latina y la Casa Viera. Este edificio está localizado en el 909 de la avenida Fernández Juncos, esquina calle Hoare en la zona de Miramar, Santurce, en el municipio de San Juan. El interior consta de una nave con el piso cubierto con un mosaico geométrico. El antiguo altar, se proyecta como un pequeño escenario acentuado por un arco de medio punto y flanqueado por dos vanos arqueados. El segundo nivel se distingue por una galería delimitada por una balaustrada de madera. Bajo esta balaustrada se extiende una serie de discos que se han colocado de manera ornamental. A través de la nave principal se encuentran las estanterías y cajas que exhiben los discos. En las paredes resaltan varios carteles y retratos de artistas del campo musical y también pinturas representativas de la arquitectura de San Juan. El techo consta de una moldura, de un par de lámparas y varias imágenes. Este edificio de hormigón, construido en 1947 en el estilo resurgimiento español, originalmente albergó una iglesia episcopal, conocida como El Nazareno en Santurce. Posteriormente, acogió la Casa Viera, la cual constituyó una de las más grandes tiendas de música del Caribe. A partir del año 2015 el edificio fue adquirido por la compañía Puerto Rico Island Holdings mediante una subasta realizada por el banco Scotiabank.

Archivo General - Antiguo Hospital Civil - San Juan (Puerta de Tierra) - 2011 00003

Archivo General - Antiguo Hospital Civil - San Juan (Puerta de Tierra) - 2011 00003



Vista frontal del Archivo General y Biblioteca Nacional de Puerto Rico ubicado en la comunidad de Puerta de Tierra del pueblo costero de San Juan. El edificio es de tres niveles en mampostería y ladrillo con características del estilo neoclásico. Está pintado en tonos de amarillo y color blanco. Presidiendo el edificio hay espacios de estacionamiento en donde se pueden ver vehículos estacionados. El primer nivel tiene zonas estriadas además, tiene ventanas de madera y cristal con persianas y soles truncos bajo arcos de medio punto enmarcados con molduras planas. Las del segundo nivel están coronadas con espinazos y al pie tienen molduras salientes. Modulando las ventanas hay pilastras en pares de dos que sostienen una cornisa corrida y a su vez se alzan y sostienen el entablamento del segundo nivel sobre el cual se proyecta un parapeto bajo. La fachada frontal es oblicua y en medio tiene la entrada a través de una puerta doble de cristal bajo un arco de medio punto enmarcado con molduras planas y coronado con un espinazo. Sobre esta hay una ventana como las demás flanqueada por columnas pares de órden dórico que a su vez sostienen un frontón triangular. El antiguo Hospital Civil fue el último edificio erigido por el gobierno Español en la Isla entre los años 1877-1887. A pesar de que fue construido como hospital fue utilizado como Cárcel provincial y posteriormente como destilería. Años más tarde, ante una amenaza de demolición el Instituto de Cultura Puertorriqueña lo adquirió y lo restauró para albergar documentos históricos. A partir del año 1973 trasladaron el Archivo General y la Biblioteca Nacional de Puerto Rico a este espacio. Además, el edificio fue incluido en el Registro Nacional de Lugares Históricos en el año 1976.

Escuela Julián E. Blanco - San Juan (Condado) - 2011 00003

Escuela Julián E. Blanco - San Juan (Condado) - 2011 00003



Vista frontal de la Escuela Julián E. Blanco ubicada en la comunidad de Condado del pueblo costero de San Juan. La escuela es de dos niveles en concreto pintado de color amarillo y color verde con características del estilo art deco. El edificio está presidido por una cerca de balaustres interrumpida por portones de reja metálica. La fachada frontal tiene la nave central superpuesta de las laterales. Además, la nave central tiene ventanas estilo celosía de aluminio acompañadas por una moldura en la parte de abajo, bloques de vidrio y las del primer nivel están cubiertas por rejas metálicas. En medio está la puerta doble de madera enmarcada con molduras creando cuadrados sobre la cual se proyecta un entablamento con dentículos, molduras, cornisas, en medio un medallón decorado con guirnaldas y en las esquinas volutas. Por otra parte, el extremo superior tiene una cornisa corrida sobre la cual hay una inscripción que dice: “Escuela Julián E. Blanco”. A cada lado de la inscripción hay detalles decorativos y en medio un medallón decorado con follaje y en el tope del frontón volutas a cada lado. La escuela Julián E. Blanco fue fundada en el año 1956. Años más tarde, en el 1983 tomando en cuenta la iniciativa del bailarín profesional Pascual Guzmán de crear una escuela de ballet clásico para jóvenes de bajos recursos, la escuela Julián E. Blanco se convirtió en la primera escuela especializada del Departamento de Educación de Puerto Rico.

Condado Vanderbilt - San Juan (Condado) - 2013 00196

Condado Vanderbilt - San Juan (Condado) - 2013 00196



Vista desde el interior del Hotel Condado Vanderbilt ubicado en la avenida Ashford del pueblo costero de San Juan. El hotel es de varios niveles con características del estilo resurgimiento español. Los espacios interiores están pintados en diferentes tonos de color rojo. El vestíbulo tiene dos niveles con los pisos de mármol en dos colores, techos abovedados, lámparas de pared metálicas y tres puertas dobles de cristal bajo arcos semicirculares acompañados por cortinas de tela. Los espacios están divididos por arcos semicirculares con balaustradas de hierro ornamental y pasamanos de madera. Hay sillas de madera y al fondo una puerta sencilla de madera y cristal. El Hotel Condado Vanderbilt fue comisionado en 1917 por Frederick William Vanderbilt. Finalmente el 16 de octubre de 1919 fue inaugurado el primer gran hotel de lujo del Caribe. En el año 1930 fue vendido y pasó a llamarse Hotel Condado, posteriormente en 1940 se convirtió en el primer hotel en la isla en tener un casino. Además, en 1950 volvieron a cambiar su nombre a Condado Beach Hotel y se añadieron habitaciones, salones de actividades y un restaurante. Luego de considerar su demolición fue incluido en el Registro Nacional de Lugares Históricos en el año 1988. Más recientemente fue remodelado entre los años 2008 a 2014 por los arquitectos Thomas S. Marvel y José Marchand Sifre añadiendo dos torres de suites modernas. Además, la planificación y restauración de los espacios estuvo a cargo del Arquitecto Jonathan Parks y la firma SOLSTICE Planning and Architecture. Los diseños interiores estuvieron a cargo del diseñador Jorge Roselló.

Condado Vanderbilt - San Juan (Condado) - 2013 00043

Condado Vanderbilt - San Juan (Condado) - 2013 00043



Vista desde el patio trasero del Hotel Condado Vanderbilt ubicado en la avenida Ashford del pueblo costero de San Juan. El hotel es de varios niveles con características del estilo resurgimiento español. El patio trasero tiene el piso cubierto por baldosas y un gazebo moderno con puertas de cristal y aleros saledizos de vigas de madera. Además, los alrededores están decorados con zonas ajardinadas, plantas en macetas decorativas y muebles de patio. También se distinguen unas escaleras con pasamano metálico y una pérgola con puertas dobles de cristal y vigas expuestas. Rodeando el patio hay una balaustrada de cristal modulada por pilares cuadrados que preside la costa del océano atlántico. El Hotel Condado Vanderbilt fue comisionado en 1917 por Frederick William Vanderbilt. Finalmente el 16 de octubre de 1919 fue inaugurado el primer gran hotel de lujo del Caribe. En el año 1930 fue vendido y pasó a llamarse Hotel Condado, posteriormente en 1940 se convirtió en el primer hotel en la isla en tener un casino. Además, en 1950 volvieron a cambiar su nombre a Condado Beach Hotel y se añadieron habitaciones, salones de actividades y un restaurante. Luego de considerar su demolición fue incluido en el Registro Nacional de Lugares Históricos en el año 1988. Más recientemente fue remodelado entre los años 2008 a 2014 por los arquitectos Thomas S. Marvel y José Marchand Sifre añadiendo dos torres de suites modernas. Además, la planificación y restauración de los espacios estuvo a cargo del Arquitecto Jonathan Parks y la firma SOLSTICE Planning and Architecture. Los diseños interiores estuvieron a cargo del diseñador Jorge Roselló.

Edificios en Miramar - San Juan (Miramar) - 2011 00013

Edificios en Miramar - San Juan (Miramar) - 2011 00013



Detalle de un tramo de un conjunto arquitectónico compuesto de tres casas en la calle Unión 659, en Miramar, San Juan. Este conjunto de casas fue diseñado en el estilo resurgimiento español. Su composición consiste de paredes de hormigón armado y techo de madera y cinc. Uno de los tramos visibles consiste de un volumen circular que presenta ventanas de aluminio tipo persianas protegidas con rejas ornamentales. Entre las ventanas resaltan las pilastras jónicas de fuste estriado o acanalado. También son notables las molduras arqueadas que se extienden sobre las ventanas. El otro tramo es un balcón protegido con rejas ornamentales. Este balcón tiene una puerta de madera con un cristal ovalado y está flanqueada por ventanas de doble hoja. Estos tres vanos presentan montantes que también integran vidrios. Entre estos vanos también destacan las molduras y pilastras jónicas. La superficie está pintada de tonalidades de azul que contrastan con detalles de blanco. Las tres casas se construyeron como un conjunto arquitectónico único entre los solares que originalmente, en el 1903, eran los números 180 y 182. En 1908, el solar 180 fue adquirido por el obispo William Jones, mientras que en el año 1907 el 182 fue adquirido por Salvador Nicolau. Posteriormente, los solares se agruparon y se construyeron tres casas para las hermanas González Padín. Para el 1920, luego de ser segregadas en tres propiedades, fueron ocupadas por las familias de Manuel Suárez Acevedo, Augusto Ferrer Cotte y Antonio Lema Cuervo. Un elemento distintivo de estas tres casas es que aparenta ser una construcción o gran casona palaciega.

Edificio Oliver - Arecibo - 2012 00019

Edificio Oliver - Arecibo - 2012 00019



Vista frontal del edificio Oliver en el pueblo costero de Arecibo. El edificio es de tres niveles con una esquina biselada que sirve como entrada principal. Es de concreto armado inspirado por el estilo neoclásico. La fachada se divide en varios tramos. Horizontalmente tiene dos partes, la planta base y dos plantas superiores. En la base, a través de la esquina achaflanada hay una entrada bajo un arco semicircular enmarcado por molduras continúas. Por otra parte, el segundo nivel tiene aberturas de puertas rectangulares con marcos planos. Las aberturas conducen a un balcón semicircular con balaustres sostenidos por ménsulas decorativas. Flanqueando el balcón se encuentran pilastras acanaladas sostenidas por cornisas corridas bajo las cuales hay una serie de cabezas de leones en relieve. En los alrededores se divisan más edificios en tonos amarillo y naranja con diferentes características. El edificio Oliver fue construido en 1914 con fines comerciales y residenciales. Está cimentado en el mismo lugar que en 1765 el gobierno español construyó la Casa del Rey hasta 1913 cuando fue demolida. Este innovador edificio fue el primero en incorporar espacios de vivienda y establecimiento comercial. También fue el primer edificio construido en el pueblo con una entrada achaflanada. Además, su diseño ricamente ornamentado adopta características de la Escuela de Bellas Artes y el estilo tradicional español. A través de los años ha sido utilizado cómo espacio residencial, comercial y sede de varios consulados extranjeros que ocupaban el primer nivel. Fue restaurado en la década de 1980 y todos los espacios asignados para vivienda se convirtieron en espacios comerciales.

Condado Vanderbilt - San Juan (Condado) - 2013 00105

Condado Vanderbilt - San Juan (Condado) - 2013 00105



Vista desde el patio trasero del Hotel Condado Vanderbilt ubicado en la avenida Ashford del pueblo costero de San Juan. El hotel es de varios niveles con características del estilo resurgimiento español. La fachada trasera del hotel tiene una extensión moderna con amplios ventanales de cristal. Sobre esta extensión de construcción hay una balaustrada de cristal modulada por pilares cuadrados a modo de balcón abierto, un gazebo con puertas de cristal y aleros de vigas expuestas. Además, desde el patio se puede ver el piso cubierto por losas de cerámica, plantas en macetas decorativas y una de las torres laterales del hotel. La torre se eleva varios niveles y tiene ventanas dobles de cristal enmarcadas con molduras y balcones con balaustradas de cristal dentro de los cuales se distinguen puertas también enmarcadas con molduras. El Hotel Condado Vanderbilt fue comisionado en 1917 por Frederick William Vanderbilt. Finalmente el 16 de octubre de 1919 fue inaugurado el primer gran hotel de lujo del Caribe. En el año 1930 fue vendido y pasó a llamarse Hotel Condado, posteriormente en 1940 se convirtió en el primer hotel en la isla en tener un casino. Además, en 1950 volvieron a cambiar su nombre a Condado Beach Hotel y se añadieron habitaciones, salones de actividades y un restaurante. Luego de considerar su demolición fue incluido en el Registro Nacional de Lugares Históricos en el año 1988. Más recientemente fue remodelado entre los años 2008 a 2014 por los arquitectos Thomas S. Marvel y José Marchand Sifre añadiendo dos torres de suites modernas. Además, la planificación y restauración de los espacios estuvo a cargo del Arquitecto Jonathan Parks y la firma SOLSTICE Planning and Architecture. Los diseños interiores estuvieron a cargo del diseñador Jorge Roselló.

Antiguo Acueducto de Río Piedras - Documentación Aérea - San Juan (Río Piedras) - 2013 00021

Antiguo Acueducto de Río Piedras - Documentación Aérea - San Juan (Río Piedras) - 2013 00021



Vista aérea de la casa de filtros y bombas y la residencia de ingenieros y cuidadores del sitio del antiguo acueducto de Río Piedras, en San Juan. Estos edificios presentan elementos característicos del estilo colonial español. La casa de filtros y bombas se distingue por tener una planta con forma de "L" y una cubierta plana. En una de sus caras presenta vanos cuadrados de los cuales se extienden cilindros de metal los cuales presentan signos de oxidación. Este edificio fue diseñado por Carlos del Valle Zeno y construido en 1923 en sustitución de un edificio de madera previo. Al lado, se ubica la residencia de ingenieros y cuidadores diseñada por Fernando Alameda en 1887. Su construcción tuvo lugar entre 1892 y 1894 y se emplearon materiales como la piedra caliza y mampostería. Este edificio, de estilo colonial español, es de una planta rectangular, de un solo piso y una cubierta plana. Después de 1923 el edificio fue alterado para acomodar nuevos usos, entre estos, funcionó como almacén y posteriormente como laboratorio de calidad del agua desde 1923-1980. La planificación del histórico Acueducto de Río Piedras inició en 1846 mediante una serie de propuestas y su construcción inició a partir de 1892 con periodos de construcción adicionales que continuaron hacia el temprano siglo XX. La planta operó desde el tardío siglo XIX hasta la década de 1980. El sitio ha estado vacante desde 1980 y es propiedad del Fideicomiso de Conservación de Puerto Rico y está dirigido por la organización local sin fines de lucro "Para La Naturaleza" que utiliza el sitio para actividades de educación ambiental.

Casa en la Calle Cuevillas 607 - San Juan (Miramar) - 2014 00014

Casa en la Calle Cuevillas 607 - San Juan (Miramar) - 2014 00014



Perspectiva de la fachada lateral de la casa en la calle Cuevillas 607, en Miramar, San Juan. Este tramo de la fachada se distingue por vanos para ventanas protegidos con rejas. Algunas de las ventanas tienen lamas horizontales tipo persianas y otras están acentuadas con molduras de color blanco que contrasta con el rosado de la superficie de la residencia. También es visible una cerca compuesta por un muro coronado con rejas y alambre de púas. En el lateral sobresale un edificio de estilo moderno con un estacionamiento amplio, ventanas de vidrio y persianas. Esta casa se construyó en 1913 siguiendo influencias del estilo resurgimiento del renacimiento francés o resurgimiento neoclásico francés. Sus dueños originales fueron el juez Luis Méndez Baz y su esposa, María Bagur. Tras visitar Francia, la pareja hizo construir su residencia siguiendo el diseño de un prototipo publicado en Nouvelles Maisons de Campagne, Paris et ses Environs, que mostraba fachadas y planos de casas de campo populares en París. Posteriormente la casa funcionó como residencia y taller para artistas como Lorenzo Homar, Juan Ramón Velázquez, Ada Bobonis y Aaron Salabarrías. Además, los herederos de los dueños originales establecieron una fundación para desarrollar un museo en esta residencia. Entre el 2018 y 2019 se llevó a cabo la restauración del edificio que dio lugar al establecimiento del Museo de Arte y Diseño de Miramar, también conocido como la Casa Rosada.

Arecibo Trip - 2014 00006

Arecibo Trip - 2014 00006



Vista desde la catedral San Felipe Apóstol en el pueblo costero de Arecibo. En primer plano, se divisa un pedestal coronado con un remate ornamental. Al extremo derecho se divisa un extremo del edificio Oliver es de tres niveles con características del estilo neoclásico en concreto armado. La fachada lateral se divide en varios tramos. Horizontalmente, el edificio se divide en dos partes, la planta base y dos plantas superiores. El segundo y tercer nivel tienen aberturas de puertas y ventanas rectangulares con marcos planos. Las aberturas conducen a un balcón con balaustres sostenidos por ménsulas decorativas. Hay balcones pequeños con esquinas redondeadas y balcones de dos tramos rectangulares. Entre los balcones hay pilastras acanaladas que sostienen un entablamento con friso ornamental, cornisa corrida y dentículos. Coronando el edificio se divisa un parapeto con balaustrada y ánforas romanas. También se puede ver una extensión de la construcción en menor tamaño con puertas de cristal coronado con ánforas. En la esquina biselada se interrumpe el parapeto por un frontispicio curvilíneo. El edificio Oliver fue construido en 1914 con fines comerciales y residenciales. Está cimentado en el mismo lugar que en 1765 el gobierno español construyó la Casa del Rey hasta 1913 cuando fue demolida. Este innovador edificio fue el primero en incorporar espacios de vivienda y establecimiento comercial. También fue el primer edificio construido en el pueblo con una entrada achaflanada. Además, su diseño ricamente ornamentado adopta características de la Escuela de Bellas Artes y el estilo tradicional español. A través de los años ha sido utilizado cómo espacio residencial, comercial y sede de varios consulados extranjeros que ocupaban el primer nivel. Fue restaurado en la década de 1980 y todos los espacios asignados para vivienda se convirtieron en espacios comerciales. Por otra parte, al extremo izquierdo se divisa la Casa Alcaldía. El edificio es de dos niveles de ladrillo y mampostería con elementos típicos del estilo neoclásico. La fachada se articula horizontalmente con un basamento rusticado que cubre parte del segundo nivel. En el primer nivel hay tres entradas y dos ventanas bajo arcos de medio punto. La fachada se divide con cornisas sostenidas por pilastras. El nivel superior tiene cinco puertas dobles enmarcadas por pilastras esbeltas que flanquean un frontón ciego y curvo. Las puertas de los extremos están encerradas en unos balcones de un tramo y las tres puertas de en medio se conectan con un balcón central de tres tramos sostenidos por ménsulas y encerrados con rejas metálicas ornamentales. Frente al edificio se alzan tres astas con las banderas de Arecibo, Puerto Rico y los Estados Unidos. La construcción de la alcaldía de Arecibo data del año 1866 bajo el dominio español en la isla. El primer nivel del edificio era utilizado cómo prisión mientras que en el segundo nivel estaban las oficinas. Tras el terremoto de 1918 la fachada frontal del edificio sufrió derrumbes por lo que fue modificada añadiendo una torre de reloj hasta el año 1978 cuando restauraron el edificio y le devolvieron su diseño original.

Edificio Oliver - Arecibo - 2012 00003

Edificio Oliver - Arecibo - 2012 00003



Vista lateral del edificio Oliver en el pueblo costero de Arecibo. El edificio es de tres niveles con características del estilo neoclásico en concreto. La fachada lateral se divide en varios tramos. Horizontalmente, se divide en dos partes, la planta base y dos plantas superiores. El segundo y tercer nivel tiene aberturas de puertas y ventanas rectangulares con marcos planos. Flanqueando las puertas hay pilastras acanaladas compuestas que sostienen un entablamento con friso ornamental, cornisa corrida y dentículos. Coronando el edificio se divisa un parapeto con balaustrada y ánforas romanas. A través de la balaustrada se puede ver una extensión de la construcción en menor tamaño con puertas de cristal y ventanas estilo celosía de cristal. El edificio Oliver fue construido en 1914 con fines comerciales y residenciales. Está cimentado en el mismo lugar que en 1765 el gobierno español construyó la Casa del Rey hasta 1913 cuando fue demolida. Este innovador edificio fue el primero en incorporar espacios de vivienda y establecimiento comercial. También fue el primer edificio construido en el pueblo con una entrada achaflanada. Su diseño ricamente ornamentado adopta características de la Escuela de Bellas Artes y el estilo tradicional español. A través de los años ha sido utilizado cómo espacio residencial, comercial y sede de varios consulados extranjeros que ocupaban el primer nivel. Fue restaurado en la década de 1980 y todos los espacios asignados para vivienda se convirtieron en espacios comerciales.

Condado Vanderbilt - San Juan (Condado) - 2013 00206

Condado Vanderbilt - San Juan (Condado) - 2013 00206



Vista desde el interior del Hotel Condado Vanderbilt ubicado en la avenida Ashford del pueblo costero de San Juan. El hotel es de varios niveles con características del estilo resurgimiento español. Los espacios interiores están pintados en varios tonos de color rosa. El vestíbulo tiene dos niveles con pisos de mármol, techos abovedados y lámparas de pared metálicas a juego con las del techo. La nave lateral derecha tiene corredores. Los espacios están separados con vanos semicirculares en el segundo nivel y balaustradas de hierro ornamental con pasamanos de madera. El del primer nivel tiene vanos rectangulares. También se pueden ver unas escaleras es espiral de mármol negro y una esfinge sore una alfombra al pie de la escalera. La escalera tiene una balaustrada de hierro ornamental con pasamano de madera alineada con un pasamano metálico en la pared. El Hotel Condado Vanderbilt fue comisionado en 1917 por Frederick William Vanderbilt. Finalmente el 16 de octubre de 1919 fue inaugurado el primer gran hotel de lujo del Caribe. En el año 1930 fue vendido y pasó a llamarse Hotel Condado, posteriormente en 1940 se convirtió en el primer hotel en la isla en tener un casino. Además, en 1950 volvieron a cambiar su nombre a Condado Beach Hotel y se añadieron habitaciones, salones de actividades y un restaurante. Luego de considerar su demolición fue incluido en el Registro Nacional de Lugares Históricos en el año 1988. Más recientemente fue remodelado entre los años 2008 a 2014 por los arquitectos Thomas S. Marvel y José Marchand Sifre añadiendo dos torres de suites modernas. Además, la planificación y restauración de los espacios estuvo a cargo del Arquitecto Jonathan Parks y la firma SOLSTICE Planning and Architecture. Los diseños interiores estuvieron a cargo del diseñador Jorge Roselló.

Condado Vanderbilt - San Juan (Condado) - 2013 00116

Condado Vanderbilt - San Juan (Condado) - 2013 00116



Vista del patio trasero del Hotel Condado Vanderbilt ubicado en la avenida Ashford del pueblo costero de San Juan. El hotel es de varios niveles con características del estilo resurgimiento español. La fachada trasera del hotel tiene una extensión moderna, el techo a cuatro aguas revestido por tejas y sostenido por vigas de madera. Al extremo izquierdo se distingue una de las torres laterales del hotel. La torre se eleva once niveles y tiene balcones con balaustradas de cristal y ventanas dobles de cristal enmarcadas con molduras. También se distingue un corredor moderno que conecta ambos edificios en el primer nivel con amplios ventanales de cristal. Además, en la parte trasera se eleva el edificio Bristol Condominium con ventanales de aluminio y cristal. El condominio Bristol fue construido en el año 2006 siguiendo el diseño del Arquitecto Gonzalo M. Ferrer. El Hotel Condado Vanderbilt fue comisionado en 1917 por Frederick William Vanderbilt. Finalmente el 16 de octubre de 1919 fue inaugurado el primer gran hotel de lujo del Caribe. En el año 1930 fue vendido y pasó a llamarse Hotel Condado, posteriormente en 1940 se convirtió en el primer hotel en la isla en tener un casino. Además, en 1950 volvieron a cambiar su nombre a Condado Beach Hotel y se añadieron habitaciones, salones de actividades y un restaurante. Luego de considerar su demolición fue incluido en el Registro Nacional de Lugares Históricos en el año 1988. Más recientemente fue remodelado entre los años 2008 a 2014 por los arquitectos Thomas S. Marvel y José Marchand Sifre añadiendo dos torres de suites modernas. Además, la planificación y restauración de los espacios estuvo a cargo del Arquitecto Jonathan Parks y la firma SOLSTICE Planning and Architecture. Los diseños interiores estuvieron a cargo del diseñador Jorge Roselló.

Condado Vanderbilt - San Juan (Condado) - 2013 00029

Condado Vanderbilt - San Juan (Condado) - 2013 00029



Vista del interior del Hotel Condado Vanderbilt ubicado en la avenida Ashford del pueblo costero de San Juan. El hotel es de varios niveles con características del estilo resurgimiento español. Los espacios interiores tienen los pisos de mármol en dos colores, techos abovedados, lámparas colgantes y puertas dobles de cristal bajo arcos semicirculares acompañados por cortinas de tela. El pasillo está decorado con un espejo con marco ornamental colocado sobre una consola. El Hotel Condado Vanderbilt fue comisionado en 1917 por Frederick William Vanderbilt. Finalmente el 16 de octubre de 1919 fue inaugurado el primer gran hotel de lujo del Caribe. En el año 1930 fue vendido y pasó a llamarse Hotel Condado, posteriormente en 1940 se convirtió en el primer hotel en la isla en tener un casino. Además, en 1950 volvieron a cambiar su nombre a Condado Beach Hotel y se añadieron habitaciones, salones de actividades y un restaurante. Luego de considerar su demolición fue incluido en el Registro Nacional de Lugares Históricos en el año 1988. Más recientemente fue remodelado entre los años 2008 a 2014 por los arquitectos Thomas S. Marvel y José Marchand Sifre añadiendo dos torres de suites modernas. Además, la planificación y restauración de los espacios estuvo a cargo del Arquitecto Jonathan Parks y la firma SOLSTICE Planning and Architecture. Los diseños interiores estuvieron a cargo del diseñador Jorge Roselló.

Condado Vanderbilt - San Juan (Condado) - 2013 00166

Condado Vanderbilt - San Juan (Condado) - 2013 00166



Vista de los espacios interiores del Hotel Condado Vanderbilt ubicado en la avenida Ashford del pueblo costero de San Juan. El hotel es de varios niveles con características del estilo resurgimiento español. En el interior se distingue un salón de actividades con el techo decorado con una gran lámpara colgante de vidrio pintado en varios colores y pequeños focos de lámparas individuales rodeándola. La lámpara tiene forma esférica y está rodeada por brazos de color salmón y detalles en color negro. En medio cuelgan pequeños elementos escalonados de color dorado. El Hotel Condado Vanderbilt fue comisionado en 1917 por Frederick William Vanderbilt. Finalmente el 16 de octubre de 1919 fue inaugurado el primer gran hotel de lujo del Caribe. En el año 1930 fue vendido y pasó a llamarse Hotel Condado, posteriormente en 1940 se convirtió en el primer hotel en la isla en tener un casino. Además, en 1950 volvieron a cambiar su nombre a Condado Beach Hotel y se añadieron habitaciones, salones de actividades y un restaurante. Luego de considerar su demolición fue incluido en el Registro Nacional de Lugares Históricos en el año 1988. Más recientemente fue remodelado entre los años 2008 a 2014 por los arquitectos Thomas S. Marvel y José Marchand Sifre añadiendo dos torres de suites modernas. Además, la planificación y restauración de los espacios estuvo a cargo del Arquitecto Jonathan Parks y la firma SOLSTICE Planning and Architecture. Los diseños interiores estuvieron a cargo del diseñador Jorge Roselló.

Calle de la Fortaleza 56 - Antigua Real Audiencia - Conservatorio De Artes Del Caribe - San Juan (Viejo San Juan) - 2011 00085

Calle de la Fortaleza 56 - Antigua Real Audiencia - Conservatorio De Artes Del Caribe - San Juan (Viejo San Juan) - 2011 00085



Antigua Real Audiencia, calle de la Fortaleza en el Viejo San Juan. Vista de la fachada de la casa de dos pisos estilo colonial español. En el primer nivel se observan cinco arcos adintelados: la entrada principal en el centro, una puerta y una ventana a un lado y dos ventanas al otro lado. La puerta del extremo y las ventanas tienen antepechos de balaustres de madera. Una moldura continua se extiende sobre la base del edificio y alrededor de la entrada, esta solo es interrumpida en la puerta del extremo. A los lados de la entrada hay dos lámparas de techo tipo farol y bajo una de la lámparas hay una placa conmemorativa. Un extenso balcón abierto con balaustrada de madera une los cinco vanos del segundo nivel. Cada vano tiene una puerta de doble hoja con celosías y paneles de vidrio en la parte superior. La casa tiene una hilada seguida por una cornisa delgada y un parapeto liso con moldura en el borde. Está pintada de amarillo con las molduras blancas, los balaustres son verdes. Son visibles un tramo de la acera pavimentada con losetas, varias balizas de metal y un pequeño segmento de la calle, pavimentada con adoquines. A un lado se ve la fachada del Palacio Rojo. Originalmente esta casa fue la residencia del Dr. Francisco Oller y Ferrer, abuelo del pintor Francisco Oller y Cestero. En 1831 fue vendida al Estado y el 1832 pasó a ser la primera sede de la Real Audiencia Territorial. Alrededor del 1898 fue arrendada al Departamento de Agricultura de Estados Unidos y en otro momento se usó como Departamento de Estado. En 1992 la edificación fue dedicada a Don Fernando Chardón. Luego de un periodo de abandono fue restaurada en el año 2000 y asignada a las oficinas de Guías Turísticos y de Programas Federales adscritos a la Oficina del Gobernador. La Torre Meteorológica y de Observación fue diseñada por el ingeniero Manuel Maese, la orden para su construcción fue emitida en 1883.

Parque de Bombas - Ponce - 2014 00002

Parque de Bombas - Ponce - 2014 00002



Vista frontal del antiguo Parque de Bombas ubicado en la Plaza Las Delicias del pueblo costero de Ponce. El edificio es de dos niveles en madera con forma rectangular flanqueado por una torre en cada extremo y techo de láminas de metal corrugado. Su diseño tiene características de los estilos morisco y gótico victoriano del cual resalta la policromía creada por franjas negras y rojas. En el primer nivel se distingue la marquesina sostenida por columnas y el borde decorado con un lambrequín. También se puede ver un vano trilobulado enmarcado con molduras planas. Además, en el segundo nivel se distinguen ventanas rectangulares enmarcadas con molduras planas y coronadas con soles truncos. También hay soles truncos de diferentes tamaños y una inscripción que dice: “Parque de Bombas 1883”. Las torres están acompañadas de un lambrequín que se extiende por todo el voladizo. Se repite de la misma manera en el borde de los lucernarios donde también se distinguen ventanas estilo celosía de madera. Ya que el Parque de Bombas está adosado a la parte trasera de la Catedral de Nuestra Señora de la Guadalupe se distinguen sus cúpulas coronadas con linternas, las torres de campanarios y la cerca que la rodea. El antiguo Parque de Bombas fue construido en 1882 como pabellón central para una feria. Fue designado oficialmente como Parque de Bombas del pueblo de Ponce en 1885 albergando a los bomberos voluntarios. Años más tarde, en 1984 fue incluido en el Registro Nacional de Lugares Históricos. A partir de 1990 es utilizado como museo en honor y conmemoración de los bomberos del pueblo de Ponce.

Teatro Yagüez - Mayagüez - 2011 00034

Teatro Yagüez - Mayagüez - 2011 00034



Detalle de las butacas de la sala principal y los palcos del Teatro Yagüez, localizado en las calles McKinley y Basora del municipio de Mayagüez. Las butacas son de color rojo y contrastan con las yeserías ornamentales blancas en el techo y en los parapetos que delimitan los palcos. Bajo uno de los palcos se exhiben paneles con textura de mármol. También es visible parte del escenario en el que se ubican varios objetos. En el centro del techo es notable la lámpara de cristal tipo araña que corona la sala del teatro. En su origen, en 1909, el teatro fue diseñado y construido de madera, acero y cinc, y se le conoció como la Casa del Arte Sonoro. El dueño original de este teatro fue Francisco Maymón Palmer. En el año 1919 un fuego consumió el edificio. En 1920 se llevó a cabo un nuevo diseño de estilo ecléctico, integrando materiales como el hormigón, la madera, el cristal, el mármol italiano y el yeso para las ornamentaciones. Durante la década de 1950 el teatro mostró signos de deterioro y en el periodo de 1977 a 1984 se llevaron a cabo trabajos de restauración bajo el auspicio del municipio de Mayagüez. Asimismo, durante el periodo de 2002 a 2008 se realizó una tercera restauración al teatro. Este teatro constituye uno de los principales escenarios artísticos y de gran valor histórico en el área oeste de Puerto Rico por acoger a importantes orquestas y compañías de drama y danza. Su arquitectura refleja elementos del neoclásico europeo, el neobarroco y de la arquitectura de principios del siglo XX que se conoció como la Belle Époque.

Calle de la Fortaleza 61 - Iglesia Presbiteriana Hugh O’Neill Memorial - San Juan (Viejo San Juan) - 2015 00012

Calle de la Fortaleza 61 - Iglesia Presbiteriana Hugh O’Neill Memorial - San Juan (Viejo San Juan) - 2015 00012



Iglesia Presbiteriana Hugh O’Neill Memorial en el Viejo San Juan. Vista, desde el segundo piso del edificio aledaño, del patio interior de la iglesia de un piso estilo colonial español. A un lado se ve parte de la pared de la nave de la iglesia. La pared tiene una arcada, el primer arco tiene ventanas de celosías, los dos arcos subsiguientes tienen puertas de dos paneles en cada lado, las puertas tienen ventanillas y están abiertas. Los tres arcos tienen montantes con paneles de vidrio. A los lados del arco central hay dos lámparas de pared. A través de una de las entradas se ve parte del piso dela nave que tiene losetas con motivo ajedrezado. La otra entrada a la nave tiene una rampa. Se pueden ver las ventanas en la parte superior de la pared, cercanas al techo. Al otro lado se ve parte de la escalera que conduce al segundo piso del edificio aledaño, ocupado por dependencias de la iglesia. El piso del patio tiene losetas color terracota. Al fondo se ve la pared posterior del anexo lateral de la iglesia, ocupado por la oficina. Hay un arco rebajado que tiene una puerta, paneles laterales con ventanas y un montante con paneles de vidrio. Una pequeña rampa que facilita el acceso al patio hundido. La puerta está abierta. En una de las esquinas hay un tiesto con una planta ornamental. Este anexo es de menor altura que la nave de la iglesia y en su techo se pueden ver equipos de los acondicionadores de aire. Hay dos cables que cuelgan desde arriba hasta el piso del patio.

Antiguo Acueducto de Río Piedras - Documentación Aérea - San Juan (Río Piedras) - 2013 00023

Antiguo Acueducto de Río Piedras - Documentación Aérea - San Juan (Río Piedras) - 2013 00023



Vista aérea de la casa de bombeo, la casa de filtros y bombas y la residencia de ingenieros y cuidadores que forman parte del sitio del antiguo acueducto de Río Piedras, en San Juan. Este conjunto de edificios refleja los estilos arquitectónicos de la historia del sitio, entre estos el colonial español, renacimiento clásico y neoclásico. La casa de bombeo es un edificio de mampostería de piedra caliza y ladrillo enyesado, de un piso y con cubierta a dos aguas con paneles de metal corrugado o cinc, diseñado en 1892 por Henry Thomas Granger. Una chimenea de ladrillo con forma cónica octogonal de una altura de 80 pies con elementos neoclásicos se encuentra en la elevación este de la casa de bombeo. La casa de filtros y bombas es un edificio de hormigón armado, de un nivel con forma de "L" y cubierta plana. Este edificio fue diseñado por Carlos del Valle Zeno y construido en 1923 en sustitución de un edificio de madera previo. Al lado, se ubica la residencia de ingenieros y cuidadores diseñada por Fernando Alameda en 1887. Su construcción tuvo lugar entre 1892 y 1894 y se emplearon materiales como la piedra caliza y mampostería. Este edificio, de estilo colonial español, es de una planta rectangular, de un solo piso y una cubierta plana. Además, exhibe vanos arqueados y una cornisa coronada con un parapeto. Después de 1923 el edificio fue alterado para acomodar nuevos usos, entre estos, funcionó como almacén y posteriormente como laboratorio de calidad del agua desde 1923-1980. En un extremo es visible parcialmente la casa de llaves y esclusas de una planta rectangular, constituida de mampostería de piedra y ladrillos y de estilo colonial español. Este edificio de 1894-1896, fue diseñado por Arturo Guerra, basado en el esquema original de Fernando Alameda en 1887 y funcionó como punto de distribución del agua cruda de la presa hasta los estanques de sedimentación. La planificación del histórico Acueducto de Río Piedras inició en 1846 mediante una serie de propuestas y su construcción inició a partir de 1892 con periodos de construcción adicionales que continuaron hacia el temprano siglo XX. La planta operó desde el tardío siglo XIX hasta la década de 1980. El sitio ha estado vacante desde 1980 y es propiedad del Fideicomiso de Conservación de Puerto Rico y está dirigido por la organización local sin fines de lucro "Para La Naturaleza" que utiliza el sitio para actividades de educación ambiental.

Hacienda Santa Ana - Bayamón - 2011 00018

Hacienda Santa Ana - Bayamón - 2011 00018



Hacienda Santa Ana en Bayamón. Vista de la fachada principal de la casona de la Hacienda. Se observa un edificio de dos niveles construido en mampostería de ladrillos con un estilo arquitectónico ecléctico. En el frente tiene una gran escalera color terracota de escalones curvos, más ancha abajo que arriba, lo que la hace lucir como un abanico invertido. La escalera conduce al pórtico del segundo piso mediante una entrada con arco, dos columnas redondas a los lados y un portón ornamental de hierro. El pórtico exhibe columnas redondas gruesas con capiteles cuadrangulares y arcadas que se extienden a lo ancho de toda la fachada. Los arcos del primer piso tienen pilares lisos. La arcada del segundo piso tiene barandas ornamentales de hierro y sobre esta hay una cornisa. Se puede atisbar un techo de láminas de metal a cuatro aguas. El techo del salón principal es mucho más elevado que el resto, técnica de la época para mantener la casa más fresca. La pintura luce deteriorada. El patio está cubierto de grama y se observa una camioneta estacionada. La Casona de la Hacienda Santa Ana reside en terrenos conferidos en 1787 por el rey Carlos III al capitán Fernando Fernández, corsario español que rendía servicios a la corona. A partir de 1804, el capitán comenzó a sembrar caña de azúcar y a destilar ron en la propiedad para su uso personal, pero no fue hasta 1880 cuando su bisnieto Pedro Fernández y su hijo Edmundo desarrollaron la fórmula y el proceso de destilación del conocido Ron del Barrilito. Además de la casona, la Hacienda abarca la tonelería, el trapiche, el área de añejamiento y el área de embotellamiento y empaque. Estas instalaciones, que también sirven como museo, continúan produciendo el popular ron, así como el alcoholado medicinal Santa Ana.

Archivo General - Antiguo Hospital Civil - San Juan (Puerta de Tierra) - 2011 00013

Archivo General - Antiguo Hospital Civil - San Juan (Puerta de Tierra) - 2011 00013



Vista frontal del Archivo General y Biblioteca Nacional de Puerto Rico ubicado en la comunidad de Puerta de Tierra del pueblo costero de San Juan. El edificio es de tres niveles en mampostería y ladrillo con características del estilo neoclásico. Está pintado en tonos de amarillo y color blanco. El primer nivel tiene zonas estriadas además, tiene ventanas de madera color azul y cristal con persianas coronadas con soles truncos bajo arcos de medio punto enmarcados con molduras planas. Las ventanas del segundo nivel están coronadas con espinazos y al pie tienen molduras salientes a modo de bases. Modulando las ventanas hay pilastras en pares de dos que se alzan y sostienen una cornisa corrida con molduras, cornisas y triglifos sobre el cual se proyecta un parapeto bajo. También se pueden ver vehículos estacionados frente al edificio. El antiguo Hospital Civil fue el último edificio erigido por el gobierno Español en la Isla entre los años 1877-1887. A pesar de que fue construido como hospital fue utilizado como Cárcel provincial y posteriormente como destilería. Años más tarde, ante una amenaza de demolición el Instituto de Cultura Puertorriqueña lo adquirió y lo restauró para albergar documentos históricos. A partir del año 1973 trasladaron el Archivo General y la Biblioteca Nacional de Puerto Rico a este espacio. Además, el edificio fue incluido en el Registro Nacional de Lugares Históricos en el año 1976.

Residencia Rodríguez Cabrero (Casa Doña Bisa) - San Sebastián - 2011 00025

Residencia Rodríguez Cabrero (Casa Doña Bisa) - San Sebastián - 2011 00025



Residencia Rodríguez Cabrero también conocida como Casa Doña Bisa en San Sebastián. Vista de la fachada principla de la casa construida con hormigón armado en estilo paladiano. La construcción sobre podio tiene un pórtico accesible a través de una escalera central, cada lado de la escalera hay un óculo. El techo del pórtico tiene un friso ornamental. Sobre el pórtico hay un balcón cuyo techo tiene un frontón triangular. Las barandas y columnas del pórtico y del balcón se extienden en toda la fachada frontal y a los lados formando arcadas en ambos pisos. Las barandas son de hierro y las columnas redondas tienen pedestales cuadrangulares. Los capiteles de las columnas del primer piso son de orden toscano y los del segundo piso, de orden jónico. En el segundo piso hay remates en forma de florero sobre seis de los pedestales. En las paredes frontales hay puertas y ventanas de doble hoja con soles truncos y molduras en los arcos superiores. Las molduras de las dos puertas tienen una clave ornamental cada una. La casa tiene una azotea con parapeto, sobre la parte frontal del parapeto hay otros seis remates en forma de florero. En medio de la azotea hay una habitación octagonal, su techo es una cúpula. Tiene ventanas de madera con celosías y soles truncos. Frente a la casa hay dos automóviles estacionados. Junto a la casa hay un edificio de cuatro niveles. La casa fue construida en 1914. En el 2008 fue adquirida por el municipio de San Sebastián, posteriormente fue restaurada y convertida en museo.

Condado Vanderbilt - San Juan (Condado) - 2013 00111

Condado Vanderbilt - San Juan (Condado) - 2013 00111



Vista del patio trasero del Hotel Condado Vanderbilt ubicado en la avenida Ashford del pueblo costero de San Juan. El hotel es de varios niveles con características del estilo resurgimiento español. El patio trasero tiene el piso cubierto por baldosas de cerámica, está rodeado por una balaustrada de cristal modulada por pilares cuadrados presidiendo la costa del océano atlántico. Hay plantas en macetas decorativas, muebles de jardín, mesas con sombrillas a juego, remates decorativos con formas cónicas y escaleras con pasamanos metálicos. La fachada trasera del hotel tiene una extensión moderna con amplios ventanales de cristal interrumpidos por columnas cuadradas. También se puede ver una pérgola con techos de vigas de madera expuestas. Junto a esta también se distingue una de las torres laterales del hotel con techo a cuatro aguas, ventanas dobles enmarcadas con molduras y balcones con balaustradas de cristal. Además, el ascensor está dentro de una cabina salediza con forma triangular. El Hotel Condado Vanderbilt fue comisionado en 1917 por Frederick William Vanderbilt. Finalmente el 16 de octubre de 1919 fue inaugurado el primer gran hotel de lujo del Caribe. En el año 1930 fue vendido y pasó a llamarse Hotel Condado, posteriormente en 1940 se convirtió en el primer hotel en la isla en tener un casino. Además, en 1950 volvieron a cambiar su nombre a Condado Beach Hotel y se añadieron habitaciones, salones de actividades y un restaurante. Luego de considerar su demolición fue incluido en el Registro Nacional de Lugares Históricos en el año 1988. Más recientemente fue remodelado entre los años 2008 a 2014 por los arquitectos Thomas S. Marvel y José Marchand Sifre añadiendo dos torres de suites modernas. Además, la planificación y restauración de los espacios estuvo a cargo del Arquitecto Jonathan Parks y la firma SOLSTICE Planning and Architecture. Los diseños interiores estuvieron a cargo del diseñador Jorge Roselló.

Condado Vanderbilt - San Juan (Condado) - 2013 00168

Condado Vanderbilt - San Juan (Condado) - 2013 00168



Vista de los espacios interiores del Hotel Condado Vanderbilt ubicado en la avenida Ashford del pueblo costero de San Juan. El hotel es de varios niveles con características del estilo resurgimiento español. En el interior se distingue un salón de actividades con el techo decorado con una gran lámpara colgante de vidrio pintado en dos colores y pequeños focos de lámparas individuales rodeándola. La lámpara tiene una forma esférica y está rodeada por brazos de color salmón y detalles de color negro. De la parte de abajo cuelgan pequeñas piedras de color dorado ubicadas de froma escalonada. El Hotel Condado Vanderbilt fue comisionado en 1917 por Frederick William Vanderbilt. Finalmente el 16 de octubre de 1919 fue inaugurado el primer gran hotel de lujo del Caribe. En el año 1930 fue vendido y pasó a llamarse Hotel Condado, posteriormente en 1940 se convirtió en el primer hotel en la isla en tener un casino. Además, en 1950 volvieron a cambiar su nombre a Condado Beach Hotel y se añadieron habitaciones, salones de actividades y un restaurante. Luego de considerar su demolición fue incluido en el Registro Nacional de Lugares Históricos en el año 1988. Más recientemente fue remodelado entre los años 2008 a 2014 por los arquitectos Thomas S. Marvel y José Marchand Sifre añadiendo dos torres de suites modernas. Además, la planificación y restauración de los espacios estuvo a cargo del Arquitecto Jonathan Parks y la firma SOLSTICE Planning and Architecture. Los diseños interiores estuvieron a cargo del diseñador Jorge Roselló.

Casa Armstrong Poventud

Casa Armstrong Poventud



Dibujo arquitectónico de la Casa Armstrong Poventud ubicada en la calle Unión del pueblo costero de Ponce. La casa es de dos niveles sobre una base de piedra expuesta. En el primer nivel la casa tiene una entrada a través de una puerta doble ornamentada bajo un arco semicircular enmarcado con molduras y coronado con un sol trunco y un espinazo. Flanqueando la entrada principal hay dos cariátides sobre ménsulas decoradas y ventanas bajo arcos dobles enmarcados con molduras, sostenidos por pilastras compuestas y presididos por balaustradas. Cada extremo tiene pilastras con capiteles compuestos que se alzan hasta el segundo nivel sosteniendo un entablamento corrido. De la misma manera, el segundo nivel tiene tres arcos semicirculares con puertas dobles enmarcados con molduras, coronados con soles truncos y espinazos. Los tres arcos están presididos por balconeras, las de los extremos con barandas de hierro ornamental y la de en medio con una balaustrada de mampostería. Además, los balcones están flanqueados por pilastras compuestas que a su vez sostienen un entablamento corrido con ménsulas, un friso ornamental, una cornisa corrida y un parapeto con ánforas. Por otra parte, al extremo derecho la casa tiene una cochera presidida por un portón de reja ornamental. Esta cochera se eleva un nivel abriendo paso a una azotea abierta en el segundo nivel rodeada por reja ornamental. También se distingue un logo con una inscripción que dice: “PRHBDS”. La conocida Casa de las Cariátides fue construida en 1899 para la familia del señor Carlos Armstrong Toro, el fundador del Banco de Ponce y Banco de Crédito y Ahorro Ponceño. Tras el terremoto de 1918 fue restaurada y se le añadió el espacio de la cochera. Años más tarde, en 1986 fue vendida al gobierno y restaurada por lo que en 1987 fue incluida en el Registro nacional de Lugares Históricos.

Hacienda Santa Ana - Bayamón - 2011 00005

Hacienda Santa Ana - Bayamón - 2011 00005



Hacienda Santa Ana en Bayamón. Vista de la parte posterior de la casona de la Hacienda. Se observa un edificio de dos niveles construido en mampostería de ladrillos con un estilo arquitectónico ecléctico. Una escalera con entrada de arco provee acceso a una terraza con techo plano de zinc, un portón y rejas de hierro en el segundo nivel. Debajo de la escalera hay dos entradas con formas geométricas. El resto de la casona exhibe un techo a cuatro aguas de metal y un alero con ménsulas. En la pared se observan ventanas, un acondicionador de aire y tuberías deslizándose por la pared. En el extremo izquierdo hay otra ventana con tejadillo de cemento y ménsulas. La casona está pintada de color crema con un borde en la base de color terracota. La superficie del patio es de cemento. La Casona de la Hacienda Santa Ana reside en terrenos conferidos en 1787 por el rey Carlos III al capitán Fernando Fernández, corsario español que rendía servicios a la corona. A partir de 1804, el capitán comenzó a sembrar caña de azúcar y a destilar ron en la propiedad para su uso personal, pero no fue hasta 1880 cuando su bisnieto Pedro Fernández y su hijo Edmundo desarrollaron la fórmula y el proceso de destilación del conocido Ron del Barrilito. Además de la casona, la Hacienda abarca la tonelería, el trapiche, el área de añejamiento y el área de embotellamiento y empaque. Estas instalaciones, que también sirven como museo, continúan produciendo el popular ron, así como el alcoholado medicinal Santa Ana.

Antiguo Acueducto de Río Piedras - Documentación Aérea - San Juan (Río Piedras) - 2013 00018

Antiguo Acueducto de Río Piedras - Documentación Aérea - San Juan (Río Piedras) - 2013 00018



Vista aérea del sitio del antiguo acueducto de Río Piedras, en San Juan. Este conjunto de edificios refleja los estilos arquitectónicos de la historia del sitio. Por ejemplo, la casa de bombeo presenta características del estilo colonial español, mientras que la casa del superintendente y del servicio doméstico exhiben rasgos del estilo bungaló y art déco respectivamente. La casa de bombeo es un edificio de mampostería de piedra caliza y ladrillo enyesado, de un piso y con cubierta a dos aguas con paneles de metal corrugado o cinc, diseñado en 1892 por Henry Thomas Granger. Este edificio albergaba tres funciones, entre estas, servir como la casa de máquinas, la casa de calderas y el almacenamiento de carbón. Una chimenea de ladrillo con forma cónica octogonal de una altura de 80 pies con elementos neoclásicos se encuentra en la elevación este de la casa de bombeo. Seguidamente, es visible la casa de filtros y bombas que consiste en un edificio de un piso y techo plano con forma de "L", con arcos de medio punto y una entrada rectangular. Esta casa de filtros y bombas fue diseñada por Carlos del Valle Zeno y construida en 1923 en sustitución de un edificio de madera previo. Cada arco señala el lugar donde se encontraban los filtros mecánicos. A su lado, se encuentra la residencia de ingenieros y cuidadores diseñada por Fernando Alameda en 1887. Su construcción tuvo lugar entre 1892 y 1894 y se emplearon materiales como la piedra caliza y mampostería. Este edificio, de estilo colonial español, es de una planta rectangular, de un solo piso y una cubierta plana. Después de 1923 el edificio fue alterado para acomodar nuevos usos, entre estos, funcionó como almacén y posteriormente como laboratorio de calidad del agua desde 1923-1980. En otro extremo cerca de la casa de bombeo se encuentra un conjunto de edificios de dos pisos correspondientes a la casa del superintendente y la casa del personal de servicio doméstico. La casa del superintendente es un edificio de hormigón pintado de azul con cubierta plana y además exhibe una escalera lateral, ventanas rectangulares y vanos arqueados. El otro edificio del servicio doméstico, parcialmente visible, presenta elementos art déco simplificados. Ambos edificios fueron diseñados por el ingeniero Carlos de Valle Zeno. Al fondo son visibles los edificios del Jardín Botánico de Río Piedras, entre estos el edificio de la Administración Central de la Universidad de Puerto Rico. La planificación del histórico Acueducto de Río Piedras inició en 1846 mediante una serie de propuestas y su construcción inició a partir de 1892 con periodos de construcción adicionales que continuaron hacia el temprano siglo XX. La planta operó desde el tardío siglo XIX hasta la década de 1980. El sitio ha estado vacante desde 1980 y es propiedad del Fideicomiso de Conservación de Puerto Rico y está dirigido por la organización local sin fines de lucro "Para La Naturaleza" que utiliza el sitio para actividades de educación ambiental.

Capilla Nuestra Señora de Lourdes - San Juan (Miramar) - 2009 00010

Capilla Nuestra Señora de Lourdes - San Juan (Miramar) - 2009 00010



Vista de una escultura y de las ventanas de un tramo de la Capilla Nuestra Señora de Lourdes, en Miramar, San Juan. La escultura se sitúa en un jardín y se levanta sobre un pedestal y representa la imagen de Nuestra Señora de Lourdes. El tramo visible de la fachada se distingue por un ventanal con tracería y vitrales con representaciones de la iconografía cristiana. Este ventanal está acentuado por una moldura arqueada, un par de ménsulas ornamentales y un umbral. Sobre el ventanal se exhibe un rosetón decorado con un vitral de la representación del espíritu santo. Además, son notables los contrafuertes, una cornisa y las almenas que coronan la torre. La capilla es de hormigón con un acabado rusticado que imita la piedra y la sillería. La construcción de la Capilla Nuestra Señora de Lourdes se inició en 1907 y su inauguración tuvo lugar en 1908. Este edificio es representativo de las iglesias protestantes que se establecieron en Puerto Rico tras el cambio de régimen en 1898. Fue el primer templo de la Iglesia Metodista Episcopal de Puerto Rico, luego, en 1917, pasó a manos de la Iglesia Unida de Puerto Rico y finalmente, a la Iglesia Católica Romana, adscrita a la arquidiócesis de San Juan en 1959. Su diseño y características corresponden al estilo neogótico o resurgimiento gótico. Este diseño además, imita a un edificio de la Iglesia Episcopal en la calle North Market, en Jacksonville Florida, donde su arquitecto tenía su residencia entonces.

Residencia 1 de Pedro Tomás Vivoni - San Germán - 2012 00008

Residencia 1 de Pedro Tomás Vivoni - San Germán - 2012 00008



Vista frontal de la residencia de Tomás Vivoni ubicada enfrente a la Plaza Santo Domingo del pueblo de San Germán. La casa es de dos niveles en hormigón y yeso con características del estilo vernáculo y alta influencia del estilo gótico victoriano. En primer plano, se distingue la Plaza Santo Domingo decorada con postes de luz y zonas ajardinadas. El primer nivel de la casa está presidido por un balcón enmarcado con una balaustrada de bloques ornamentales que a su vez está modulado por columnas de orden corintio con detalles florales en relieve. La entrada al balcón es a través de un escalón y un pequeño portón de reja metálico. Por otra parte, en el interior del balcón hay ventanas y puertas dobles de madera y cristal, flanqueadas por pilastras acanaladas, algunas coronadas con soles truncos y entablamentos sostenidos por ménsulas. Por otra parte, el segundo nivel muestra un balcón abierto rodeado por una balaustrada de bloques ornamentales acompañada por remates y decoración navideña. También se distinguen ventanas dobles de madera con celosía, algunas bajo arcos semicirculares y otras bajo arcos rectangulares. Están acompañadas con guirnaldas y cornadas con entablamentos sostenidos por ménsulas. Además, la fachada está decorada con pilastras acanaladas, molduras, un friso ornamental y una torre cónica coronada con una aguja. La casa fue diseñada por el arquitecto Pedro Tomás Vivoni como residencia para Tomás Vivoni en el año 1913.

Antiguo Acueducto de Río Piedras - Documentación Aérea - San Juan (Río Piedras) - 2013 00034

Antiguo Acueducto de Río Piedras - Documentación Aérea - San Juan (Río Piedras) - 2013 00034



Vista aérea del río Piedras y el sitio del antiguo acueducto de Río Piedras en San Juan. Desde esta perspectiva es visible un muro en el río que conforma un tipo de represa. También es visible el techo plano de la residencia de ingenieros y cuidadores diseñada por Fernando Alameda en 1887. Su construcción tuvo lugar entre 1892 y 1894 y se emplearon materiales como la piedra caliza y mampostería. Este edificio, de estilo colonial español, es de una planta rectangular, de un solo piso, una cubierta plana y vanos arqueados. Después de 1923 el edificio fue alterado para acomodar nuevos usos, entre estos, funcionó como almacén y posteriormente como laboratorio de calidad del agua desde 1923-1980. Al lado, se encuentra la casa de filtros y bombas y se distingue por ser un edificio de hormigón armado, de un nivel con forma de "L" y cubierta plana. Este edificio fue diseñado por Carlos del Valle Zeno y construido en 1923 en sustitución de un edificio de madera previo. De manera parcial, también es notable la casa de bombeo, cuyo edificio es de mampostería de piedra caliza y ladrillo enyesado, de un piso y con cubierta a dos aguas con paneles de metal corrugado o cinc. Este edificio, diseñado en 1892 por Henry Thomas Granger, albergaba tres funciones, entre estas, servir como la casa de máquinas, la casa de calderas y el almacenamiento de carbón. Al lado del río Piedras se encuentra un estacionamiento con varios automóviles. La planificación del histórico Acueducto de Río Piedras inició en 1846 mediante una serie de propuestas y su construcción inició a partir de 1892 con periodos de construcción adicionales que continuaron hacia el temprano siglo XX. La planta operó desde el tardío siglo XIX hasta la década de 1980. El sitio ha estado vacante desde 1980 y es propiedad del Fideicomiso de Conservación de Puerto Rico y está dirigido por la organización local sin fines de lucro "Para La Naturaleza" que utiliza el sitio para actividades de educación ambiental.

Condado Vanderbilt - San Juan (Condado) - 2013 00060

Condado Vanderbilt - San Juan (Condado) - 2013 00060



Vista desde el patio trasero del Hotel Condado Vanderbilt ubicado en la avenida Ashford del pueblo costero de San Juan. El hotel es de varios niveles con techos a cuatro aguas y características del estilo resurgimiento español. La fachada trasera del hotel tiene ventanas dobles de madera y cristal en varios tamaños, el techo revestido por tejas y sostenido por vigas de madera. También se distingue una extensión moderna de un solo nivel con grandes ventanales de cristal modulados por columnas cuadradas. Junto a este se alza una de las torres laterales del hotel con techo a cuatro aguas, ventanas dobles de cristal enmarcadas con molduras y balcones con balaustradas de cristal dentro de los cuales hay puertas también enmarcadas con molduras. Además, la fachada lateral también tiene la cabina del ascensor salediza en forma triangular. Por otra parte, el patio trasero tiene el piso cubierto por baldosas, está decorado con muebles de patio, macetas decorativas y zonas ajardinadas. También tiene unas escaleras con barandales metálicos y un gazebo moderno rodeado con puertas de cristal y aleros saledizos con vigas expuestas. El Hotel Condado Vanderbilt fue comisionado en 1917 por Frederick William Vanderbilt. Finalmente el 16 de octubre de 1919 fue inaugurado el primer gran hotel de lujo del Caribe. En el año 1930 fue vendido y pasó a llamarse Hotel Condado, posteriormente en 1940 se convirtió en el primer hotel en la isla en tener un casino. Además, en 1950 volvieron a cambiar su nombre a Condado Beach Hotel y se añadieron habitaciones, salones de actividades y un restaurante. Luego de considerar su demolición fue incluido en el Registro Nacional de Lugares Históricos en el año 1988. Más recientemente fue remodelado entre los años 2008 a 2014 por los arquitectos Thomas S. Marvel y José Marchand Sifre añadiendo dos torres de suites modernas. Además, la planificación y restauración de los espacios estuvo a cargo del Arquitecto Jonathan Parks y la firma SOLSTICE Planning and Architecture. Los diseños interiores estuvieron a cargo del diseñador Jorge Roselló.

Iglesia de San Jorge - San Juan (Condado) - 2014 00098

Iglesia de San Jorge - San Juan (Condado) - 2014 00098



Vista desde el interior de la Parroquia San Jorge ubicada en la comunidad de Condado del pueblo costero de San Juan. La iglesia es de dos niveles en hormigón con características del estilo neogótico pintada de color blanco y color gris. El interior está dividido en tres naves, la nave central se eleva un nivel adicional con techos abovedados. Además, hay lámparas colgantes de cristal y ventanas de cleristerio, las ventanas son de cristal bajo un arcos ojivales coronadas con vierteaguas y tracerías lobuladas. En la nave central también se ve un extremo del altar. Dividiendo la nave central de las naves laterales hay arcadas de arcos ojivales enmarcadas con molduras y flanqueadas por pilastras pares que a su vez conectan con las vigas en el techo. A diferencia de la nave central, las naves laterales son de un nivel. Hay filas de bancos de madera y lámparas colgantes de cristal. También se pueden ver pilas de agua bendita, en el borde superior un friso ornamental, puertas dobles de madera coronadas con travesaños de vidrio pintado y enmarcado con un vierteaguas pintado de color dorado. La iglesia San Jorge fue inaugurada en el año 1920 siendo oficialmente fundada canónicamente en 1924 tras ser desmembrada de las Parroquias San Mateo y Sagrado Corazón. Su diseño inicial estuvo a cargo de la firma Martínez y Lázaro siendo finalizado en dos años. Seis años después se comienza la construcción de los edificios aledaños a la academia San Jorge. Posteriormente en 1940 la fachada fue remodelada por el arquitecto Rafael Carmoega. Más recientemente en el año 2017 fue restaurada en fases por la firma Astrid Díaz: ADV Architects.

Antiguo Banco de Ponce - 2014 00003

Antiguo Banco de Ponce - 2014 00003



Vista del edificio del Antiguo Banco de Ponce ubicado en el pueblo costero de Ponce. En primer plano, al extremo derecho se distingue un edificio de dos niveles decorado con molduras ornamentales y balcones saledizos con balaustradas metálicas sostenidos por ménsulas. Enfrente hay una acera pavimentada con postes de luz, cruzando la calle transitada se encuentra la plaza pública Federico Degetau decorada con zonas ajardinadas, bancos y postes de luz. Por otra parte, al fondo se alza el edificio del Banco de Ponce. El edificio es de tres niveles construido en hormigón con características de los estilos Beaux-Art y neoclásico. La fachada tiene ventanas cubiertas por rejas metálicas y ventanas francesas bajo arcos semicirculares presididos por balaustradas. Además, los arcos están enmarcados con molduras ornamentales, coronadas con espinazos y flanqueadas por pares de pilastras acanaladas de orden corintio. Las pilastras se extienden hasta el tercer nivel y sostienen un entablamento corrido con cornisas, molduras, dentículos, rosetones y más ventanas francesas. En la parte frontal también se distingue una entrada a través de una puerta rectangular enmarcada, coronada con un entablamento y flanqueada por columnas acanaladas de orden corintio. Además, sobre la entrada se distingue una inscripción que dice: “Banco Popular”. El Banco de Ponce fue fundado en 1912 pero no fue hasta 1924 y 1925 cuando fue construido e inaugurado el edificio. Posteriormente en la década de 1940 su interior fue remodelado para ampliarlo de acuerdo con las necesidades del establecimiento. Para 1983 el banco contaba con cincuenta sucursales y en 1990 se fusionó con el Banco Popular de Puerto Rico. En adición, en 1987 el edificio fue incluido en el Registro Nacional de Lugares Históricos.

Condado Vanderbilt - San Juan (Condado) - 2013 00133

Condado Vanderbilt - San Juan (Condado) - 2013 00133



Vista desde el balcón frontal del Hotel Condado Vanderbilt ubicado en la avenida Ashford del pueblo costero de San Juan. El hotel es de varios niveles y características del estilo resurgimiento español. La fachada frontal del hotel tiene un balcón abierto rodeado por balaustradas. Además, el interior tiene el piso cubierto por losas de cerámica, está decorado con muebles de jardín y plantas en macetas decorativas. Desde el balcón se distinguen edificios en los alrededores de la avenida Ashford. El Hotel Condado Vanderbilt fue comisionado en 1917 por Frederick William Vanderbilt. Finalmente el 16 de octubre de 1919 fue inaugurado el primer gran hotel de lujo del Caribe. En el año 1930 fue vendido y pasó a llamarse Hotel Condado, posteriormente en 1940 se convirtió en el primer hotel en la isla en tener un casino. Además, en 1950 volvieron a cambiar su nombre a Condado Beach Hotel y se añadieron habitaciones, salones de actividades y un restaurante. Luego de considerar su demolición fue incluido en el Registro Nacional de Lugares Históricos en el año 1988. Más recientemente fue remodelado entre los años 2008 a 2014 por los arquitectos Thomas S. Marvel y José Marchand Sifre añadiendo dos torres de suites modernas. Además, la planificación y restauración de los espacios estuvo a cargo del Arquitecto Jonathan Parks y la firma SOLSTICE Planning and Architecture. Los diseños interiores estuvieron a cargo del diseñador Jorge Roselló.

Condado Vanderbilt - San Juan (Condado) - 2013 00094

Condado Vanderbilt - San Juan (Condado) - 2013 00094



Vista desde el patio de una de las torres laterales del Hotel Condado Vanderbilt ubicado en la avenida Ashford del pueblo costero de San Juan. El hotel es de varios niveles con características del estilo resurgimiento español. La torre se eleva once niveles, el primer nivel tiene un techo voladizo, amplios ventanales de cristal, puertas dobles de cristal y corredores modulados por columnas cuadradas. Además, el resto de los niveles tiene ventanas dobles de cristal enmarcadas con molduras y balcones con balaustradas de cristal dentro de los cuales hay puertas dobles de cristal enmarcadas con molduras. Por otra parte, el patio tiene el piso revestido por losas de cerámica y una pérgola que se extiende de madera horizontal. Tiene techos con vigas expuestas y puertas dobles de cristal que presiden una balaustrada y la costa del océano atlántico. El Hotel Condado Vanderbilt fue comisionado en 1917 por Frederick William Vanderbilt. Finalmente el 16 de octubre de 1919 fue inaugurado el primer gran hotel de lujo del Caribe. En el año 1930 fue vendido y pasó a llamarse Hotel Condado, posteriormente en 1940 se convirtió en el primer hotel en la isla en tener un casino. Además, en 1950 volvieron a cambiar su nombre a Condado Beach Hotel y se añadieron habitaciones, salones de actividades y un restaurante. Luego de considerar su demolición fue incluido en el Registro Nacional de Lugares Históricos en el año 1988. Más recientemente fue remodelado entre los años 2008 a 2014 por los arquitectos Thomas S. Marvel y José Marchand Sifre añadiendo dos torres de suites modernas. Además, la planificación y restauración de los espacios estuvo a cargo del Arquitecto Jonathan Parks y la firma SOLSTICE Planning and Architecture. Los diseños interiores estuvieron a cargo del diseñador Jorge Roselló.

Teatro Yagüez - Mayagüez - 2011 00049

Teatro Yagüez - Mayagüez - 2011 00049



Vista desde el tercer nivel hacia el escenario, la sala principal y los palcos del Teatro Yagüez, localizado entre las calles McKinley y Basora del municipio de Mayagüez. Sobre el escenario es visible una persona y también se ubican varios objetos, principalmente tablas de madera, cajones, envases y tubos. Seguidamente, resaltan las butacas rojas de la sala principal y los palcos. Además, es visible una escalera que conduce hacia el área de los palcos, los cuales presentan parapetos ornamentados con yesería, paneles de mármol, columnas, butacas y cortinas rojas. En su origen, en 1909, el teatro fue diseñado y construido de madera, acero y cinc, y se le conoció como la Casa del Arte Sonoro. El dueño original de este teatro fue Francisco Maymón Palmer. En el año 1919 un fuego consumió el edificio. En 1920 se llevó a cabo un nuevo diseño de estilo ecléctico, integrando materiales como el hormigón, la madera, el cristal, el mármol italiano y el yeso para las ornamentaciones. Durante la década de 1950 el teatro mostró signos de deterioro y en el periodo de 1977 a 1984 se llevaron a cabo trabajos de restauración bajo el auspicio del municipio de Mayagüez. Asimismo, durante el periodo de 2002 a 2008 se realizó una tercera restauración al teatro. Este teatro constituye uno de los principales escenarios artísticos y de gran valor histórico en el área oeste de Puerto Rico por acoger a importantes orquestas y compañías de drama y danza. Su arquitectura refleja elementos del neoclásico europeo, el neobarroco y de la arquitectura de principios del siglo XX que se conoció como la Belle Époque.

Iglesia de San Jorge - San Juan (Condado) - 2014 00136

Iglesia de San Jorge - San Juan (Condado) - 2014 00136



Vista desde el interior de la Parroquia San Jorge ubicada en la comunidad de Condado del pueblo costero de San Juan. La iglesia es de dos niveles en hormigón con características del estilo neogótico pintada de color blanco y color gris. El interior está dividido en tres naves, la nave central se eleva un nivel adicional con techos abovedados. Además, hay lámparas colgantes de cristal y ventanas de cleristerio, las ventanas son de cristal bajo arcos ojivales coronadas con vierteaguas y tracerías lobuladas. Dividiendo la nave central de las naves laterales hay arcadas de arcos ojivales enmarcadas con molduras y flanqueadas por pilastras pares que a su vez conectan con las vigas en el techo. A diferencia de la nave central, las naves laterales son de un nivel. Hay filas de bancos de madera y lámparas colgantes de cristal. También se pueden ver un extremo de un lampadario metálico con reclinatorio, en el borde superior un friso ornamental, puertas dobles de madera coronadas con travesaños de vidrio pintado y enmarcado con un vierteaguas pintado de color dorado. La iglesia San Jorge fue inaugurada en el año 1920 siendo oficialmente fundada canónicamente en 1924 tras ser desmembrada de las Parroquias San Mateo y Sagrado Corazón. Su diseño inicial estuvo a cargo de la firma Martínez y Lázaro siendo finalizado en dos años. Seis años después se comienza la construcción de los edificios aledaños a la academia San Jorge. Posteriormente en 1940 la fachada fue remodelada por el arquitecto Rafael Carmoega. Más recientemente en el año 2017 fue restaurada en fases por la firma Astrid Díaz: ADV Architects.

Condado Vanderbilt - San Juan (Condado) - 2013 00092

Condado Vanderbilt - San Juan (Condado) - 2013 00092



Vista de una de las torres laterales del Hotel Condado Vanderbilt ubicado en la avenida Ashford del pueblo costero de San Juan. El hotel es de varios niveles con características del estilo resurgimiento español. La torre se eleva once niveles, el primer nivel tiene un techo saledizos, amplios ventanales de cristal, puertas dobles de cristal y corredores modulados por columnas cuadradas. Además, el resto de los niveles tiene ventanas dobles de cristal enmarcadas con molduras y balcones con balaustradas de cristal y puertas dobles de cristal enmarcadas con molduras. El Hotel Condado Vanderbilt fue comisionado en 1917 por Frederick William Vanderbilt. Finalmente el 16 de octubre de 1919 fue inaugurado el primer gran hotel de lujo del Caribe. En el año 1930 fue vendido y pasó a llamarse Hotel Condado, posteriormente en 1940 se convirtió en el primer hotel en la isla en tener un casino. Además, en 1950 volvieron a cambiar su nombre a Condado Beach Hotel y se añadieron habitaciones, salones de actividades y un restaurante. Luego de considerar su demolición fue incluido en el Registro Nacional de Lugares Históricos en el año 1988. Más recientemente fue remodelado entre los años 2008 a 2014 por los arquitectos Thomas S. Marvel y José Marchand Sifre añadiendo dos torres de suites modernas. Además, la planificación y restauración de los espacios estuvo a cargo del Arquitecto Jonathan Parks y la firma SOLSTICE Planning and Architecture. Los diseños interiores estuvieron a cargo del diseñador Jorge Roselló.

Condado Vanderbilt - San Juan (Condado) - 2013 00165

Condado Vanderbilt - San Juan (Condado) - 2013 00165



Vista de los espacios interiores del Hotel Condado Vanderbilt ubicado en la avenida Ashford del pueblo costero de San Juan. El hotel es de varios niveles con características del estilo resurgimiento español. En el interior se distingue un salón de actividades con el techo artesonado dividido en tramos con profundidad, decorados con una lámpara colgante de vidrio pintado y pequeños focos de lámparas individuales. La lámpara tiene detalles color salmón, color negro y elementos dorados. El Hotel Condado Vanderbilt fue comisionado en 1917 por Frederick William Vanderbilt. Finalmente el 16 de octubre de 1919 fue inaugurado el primer gran hotel de lujo del Caribe. En el año 1930 fue vendido y pasó a llamarse Hotel Condado, posteriormente en 1940 se convirtió en el primer hotel en la isla en tener un casino. Además, en 1950 volvieron a cambiar su nombre a Condado Beach Hotel y se añadieron habitaciones, salones de actividades y un restaurante. Luego de considerar su demolición fue incluido en el Registro Nacional de Lugares Históricos en el año 1988. Más recientemente fue remodelado entre los años 2008 a 2014 por los arquitectos Thomas S. Marvel y José Marchand Sifre añadiendo dos torres de suites modernas. Además, la planificación y restauración de los espacios estuvo a cargo del Arquitecto Jonathan Parks y la firma SOLSTICE Planning and Architecture. Los diseños interiores estuvieron a cargo del diseñador Jorge Roselló.

Casa en la Calle Cuevillas 607 - San Juan (Miramar) - 2014 00050

Casa en la Calle Cuevillas 607 - San Juan (Miramar) - 2014 00050



Perspectiva de la fachada lateral de la casa en la calle Cuevillas 607, en Miramar, San Juan. Este tramo de la fachada se distingue por un balcón con una baranda compuesta de bloques ornamentales. Las ventanas son tipo persianas, de las cuales algunas están protegidas con rejas. Estas ventanas, así como las puertas están acentuadas con una moldura blanca que contrasta con el color rosado de la superficie del edificio. La parte superior de la fachada se caracteriza por un friso ornamental con rosetas seguido de dentículos, una cornisa y modillones. Además, se proyecta un tipo de cubierta a dos aguas o frontón triangular. Esta casa se construyó en 1913 siguiendo influencias del estilo resurgimiento del renacimiento francés o resurgimiento neoclásico francés. Sus dueños originales fueron el juez Luis Méndez Baz y su esposa, María Bagur. Tras visitar Francia, la pareja hizo construir su residencia siguiendo el diseño de un prototipo publicado en Nouvelles Maisons de Campagne, Paris et ses Environs, que mostraba fachadas y planos de casas de campo populares en París. Posteriormente la casa funcionó como residencia y taller para artistas como Lorenzo Homar, Juan Ramón Velázquez, Ada Bobonis y Aaron Salabarrías. Además, los herederos de los dueños originales establecieron una fundación para desarrollar un museo en esta residencia. Entre el 2018 y 2019 se llevó a cabo la restauración del edificio que dio lugar al establecimiento del Museo de Arte y Diseño de Miramar, también conocido como la Casa Rosada.

Exploring the Condado Lagoon Site - San Juan (Condado) - 2011 00009

Exploring the Condado Lagoon Site - San Juan (Condado) - 2011 00009



Vista de la laguna del Condado y sus alrededores ubicado entre los barrios de Condado y Miramar del pueblo de San Juan. En primer plano se puede ver la Laguna del Condado y la rodean espacios de vegetación. A la distancia se pueden ver varios edificios. Entre estos hay edificios residenciales, comerciales, educativos como el Conservatorio de música de Puerto Rico y hoteles. El edificio del Conservatorio de Música antiguamente se conocía como Colegio de las Madres del Sagrado Corazón entre los años 1880 a 1882. Posteriormente, en 1899 se convierte en asilo para niñas huérfanas. Entre 1940 a 1958 fue utilizado como Centro de rehabilitación para niñas delincuentes y entre 1970 a 1985 el Departamento de Servicios Sociales lo utilizó como Centro de rehabilitación de drogas. En ese mismo año fue incluido en el Registro Nacional de Lugares Históricos. Finalmente a partir del año 1999 este edificio es la sede del Conservatorio de Música de Puerto Rico fundado en 1957. La laguna de la bahía del Condado es un Parque Nacional con una Reserva Natural Estuarina desde su designación en el año 1992 por el Programa Nacional de Estuarios (NEP) administrada por la Agencia de Protección Ambiental de Estados Unidos (USEPA). Convirtiéndose así en el único estuario tropical y el único fuera de Estados Unidos en recibir esta designación. A partir del año 2005 se estableció lo que hoy se conoce como la Corporación para la Conservación del Estuario de la bahía de San Juan como una entidad sin fines de lucro.

Casilla de Camineros - Bayamón - 2011 00007

Casilla de Camineros - Bayamón - 2011 00007



Casilla de Camineros en la Carretera 2, km. 12.7 en Bayamón. Vista lateral de la fachada principal del edificio construido en mampostería y ladrillos, de estilo neoclásico colonial. Se observan paredes de roca caliza expuestas, dos huecos adintelados con moldura rústica que funcionan como ventanas, una puerta y una columna blanca en la esquina exponiendo ladrillos. Se puede notar humedad y abandono de la casa. El techo de hormigón muestra una cornisa con dentículos y un parapeto también en estado de deterioro y algunas plantas creciendo en el borde. Se puede ver un segmento del patio y un área con árboles. Las Casillas de Camineros fueron construidas durante la última parte del siglo XIX a lo largo de las carreteras principales en Puerto Rico. Estas fueron las residencias de los camineros, trabajadores gubernamentales encargados de brindar mantenimiento a la superficie de la carretera. La mayoría de las casillas fueron abandonadas a finales del siglo XX y las que aún permanecen han enfrentado diferentes destinos. Muchas de ellas se han deteriorado o han sido demolidas y otras han sido destinadas a otros usos. Esta casilla es una de tres construidas en 1882 a lo largo de un tramo de la Carretera número 2 entre Bayamón y Mayagüez. Perteneció originalmente al Departamento de Transportación y Obras Públicas, quien luego la cedió al Instituto de Cultura para ser usada como museo y oficinas de la Cámara de Comercio de Bayamón.

Calle de la Fortaleza 56 - Antigua Real Audiencia - Conservatorio De Artes Del Caribe - San Juan (Viejo San Juan) - 2011 00063

Calle de la Fortaleza 56 - Antigua Real Audiencia - Conservatorio De Artes Del Caribe - San Juan (Viejo San Juan) - 2011 00063



Antigua Real Audiencia, calle de la Fortaleza en el Viejo San Juan. Vista del interior de la Torre Meteorológica y de Observación ubicada en el techo de la casa de dos pisos estilo colonial español. Se observa un segmento del techo de la torre donde se puede identificar el armazón de metal que da soporte a la cúpula. Se trata de una pieza de metal redonda con un tornillo en el centro y varias barras atornilladas, también de metal, en su borde. Se puede notar el recubrimiento interior de la cúpula, que muestra señales de deterioro, al igual que los tornillos que están oxidados. Originalmente esta casa fue la residencia del Dr. Francisco Oller y Ferrer, abuelo del pintor Francisco Oller y Cestero. En 1831 fue vendida al Estado y el 1832 pasó a ser la primera sede de la Real Audiencia Territorial. Alrededor del 1898 fue arrendada al Departamento de Agricultura de Estados Unidos y en otro momento se usó como Departamento de Estado. En 1992 la edificación fue dedicada a Don Fernando Chardón. Luego de un periodo de abandono fue restaurada en el año 2000 y asignada a las oficinas de Guías Turísticos y de Programas Federales adscritos a la Oficina del Gobernador. La Torre Meteorológica y de Observación, construida en mampostería acero y madera, fue diseñada por el ingeniero Manuel Maese, la orden para su construcción fue emitida en 1883.

Original Drawings - Antiguo Hospital Civil - Archivo General 2010 00025

Original Drawings - Antiguo Hospital Civil - Archivo General 2010 00025



Dibujo arquitectónico del Archivo General y Biblioteca Nacional de Puerto Rico ubicado en la comunidad de Puerta de Tierra del pueblo costero de San Juan. El edificio es de tres niveles en mampostería y ladrillo con características del estilo neoclásico. El primer nivel tiene zonas estriadas además, tiene ventanas dobles bajo arcos de medio punto enmarcados con molduras planas. Las del segundo nivel están coronadas con espinazos y al pie tienen molduras salientes a modo de soporte. Modulando las ventanas hay pilastras en pares de dos que sostienen un entablamento corrido y a su vez se alzan y sostienen el entablamento del segundo nivel sobre el cual se proyecta un parapeto bajo con ánforas. La fachada frontal tiene la entrada a través de una puerta doble de bajo un arco de medio punto enmarcado con molduras planas. Sobre esta hay una ventana como las demás flanqueada por columnas estriadas pares de órden dórico que a su vez sostienen un frontón triangular. Coronando el edificio hay una cúpula coronada con una linterna y una cruz. También se ve en la parte superior derecha un logo que dice: “PRHBDS”. El antiguo Hospital Civil fue el último edificio erigido por el gobierno Español en la Isla entre los años 1877-1887. A pesar de que fue construido como hospital fue utilizado como Cárcel provincial y posteriormente como destilería. Años más tarde, ante una amenaza de demolición el Instituto de Cultura Puertorriqueña lo adquirió y lo restauró para albergar documentos históricos. A partir del año 1973 trasladaron el Archivo General y la Biblioteca Nacional de Puerto Rico a este espacio. Además, el edificio fue incluido en el Registro Nacional de Lugares Históricos en el año 1976.

alle de la Fortaleza 56 - Antigua Real Audiencia - Conservatorio De Artes Del Caribe - San Juan (Viejo San Juan) - 2011 00006

alle de la Fortaleza 56 - Antigua Real Audiencia - Conservatorio De Artes Del Caribe - San Juan (Viejo San Juan) - 2011 00006



Antigua Real Audiencia, calle de la Fortaleza en el Viejo San Juan. Vista de la fachada de la casa de dos pisos estilo colonial español. En el primer nivel se observan cinco arcos adintelados: la entrada principal en el centro, una puerta y una ventana a un lado y dos ventanas al otro lado. La puerta del extremo y las ventanas tienen antepechos de balaustres de madera y sobre cada una hay un óculo ovalado. Una moldura continua se extiende sobre la base del edificio y alrededor de la entrada, esta solo es interrumpida en la puerta del extremo. A los lados de la entrada hay dos lámparas de techo tipo farol y bajo una de la lámparas hay una placa conmemorativa. Un extenso balcón abierto con balaustrada de madera une los cinco vanos del segundo nivel. Cada vano tiene una puerta de doble hoja con celosías y paneles de vidrio en la parte superior. La casa tiene una hilada seguida por una cornisa delgada y un parapeto liso con moldura en el borde. En el techo se divisa parte de la Torre Meteorológica y de Observación. La casa está pintada de amarillo con las molduras blancas, los balaustres son verdes. Son visibles un tramo de la acera pavimentada con losetas, varias balizas de metal y un pequeño segmento de la calle, pavimentada con adoquines. A un lado se ve parte de la fachada del Palacio Rojo. Hay un hombre caminado por la acera. Originalmente esta casa fue la residencia del Dr. Francisco Oller y Ferrer, abuelo del pintor Francisco Oller y Cestero. En 1831 fue vendida al Estado y el 1832 pasó a ser la primera sede de la Real Audiencia Territorial. Alrededor del 1898 fue arrendada al Departamento de Agricultura de Estados Unidos y en otro momento se usó como Departamento de Estado. En 1992 la edificación fue dedicada a Don Fernando Chardón. Luego de un periodo de abandono fue restaurada en el año 2000 y asignada a las oficinas de Guías Turísticos y de Programas Federales adscritos a la Oficina del Gobernador. La Torre Meteorológica y de Observación fue diseñada por el ingeniero Manuel Maese, la orden para su construcción fue emitida en 1883.

Edificio Oliver - Arecibo - 2012 00021

Edificio Oliver - Arecibo - 2012 00021



Vista lateral del edificio Oliver en el pueblo costero de Arecibo. En primer plano, se divisan vehículos estacionados en la calle pavimentada. El edificio es de tres niveles con características del estilo neoclásico de concreto armado. La fachada se divide en varios tramos horizontalmente, la planta base y dos plantas superiores. La planta base tiene entradas bajo arcos semicirculares enmarcados con molduras. Además, los arcos están cubiertos por rejas metálicas. El segundo nivel tiene balcones con balaustres sostenidos por ménsulas decorativas. Flanqueando los balcones se encuentran pilastras acanaladas compuestas sostenidas por una cornisa corrida y bajo las cuales hay una serie de cabezas de leones en relieve. El edificio Oliver fue construido en 1914 con fines comerciales y residenciales. Está cimentado en el mismo lugar que en 1765 el gobierno español construyó la Casa del Rey hasta 1913 cuando fue demolida. Este innovador edificio fue el primero en incorporar espacios de vivienda y establecimiento comercial. También fue el primer edificio construido en el pueblo con una entrada achaflanada. Además, su diseño ricamente ornamentado adopta características de la Escuela de Bellas Artes y el estilo tradicional español. A través de los años ha sido utilizado cómo espacio residencial, comercial y sede de varios consulados extranjeros que ocupaban el primer nivel. Fue restaurado en la década de 1980 y todos los espacios asignados para vivienda se convirtieron en espacios comerciales.

Teatro Yagüez - Mayagüez - 2011 00014

Teatro Yagüez - Mayagüez - 2011 00014



Vista hacia la sala principal y el escenario del Teatro Yagüez, localizado entre las calles McKinley y Basora del municipio de Mayagüez. Las butacas de la sala principal son del color rojo y contrastan con el color blanco de la yesería ornamental del parapeto de los palcos y las paredes de mármol. La boca del escenario tiene una cortina dispuesta hasta la mitad de la altura y a través de esta son visibles varios objetos como sillas, mesas, tablas y paneles. En el centro del techo, es notable parcialmente la lámpara de cristal tipo araña que corona la sala. Además, la sala principal del teatro tiene tres niveles y una forma de herradura o forma de "U". En su origen, en 1909, el teatro fue diseñado y construido de madera, acero y cinc, y se le conoció como la Casa del Arte Sonoro. El dueño original de este teatro fue Francisco Maymón Palmer. En el año 1919 un fuego consumió el edificio. En 1920 se llevó a cabo un nuevo diseño de estilo ecléctico, integrando materiales como el hormigón, la madera, el cristal, el mármol italiano y el yeso para las ornamentaciones. Durante la década de 1950 el teatro mostró signos de deterioro y en el periodo de 1977 a 1984 se llevaron a cabo trabajos de restauración bajo el auspicio del municipio de Mayagüez. Asimismo, durante el periodo de 2002 a 2008 se realizó una tercera restauración al teatro. Este teatro constituye uno de los principales escenarios artísticos y de gran valor histórico en el área oeste de Puerto Rico por acoger a importantes orquestas y compañías de drama y danza. Su arquitectura refleja elementos del neoclásico europeo, el neobarroco y de la arquitectura de principios del siglo XX que se conoció como la Belle Époque.

Catedral de Ponce - Foto Histórica

Catedral de Ponce - Foto Histórica



Vista frontal de la Catedral de Nuestra Señora de la Guadalupe ubicada en el pueblo costero de Ponce. La catedral es de dos niveles en mampostería y ladrillo con características del estilo Neoclásico. La fachada frontal está dividida en dos tramos. En el primer nivel se ven ventanas dobles de madera y una puerta doble de madera bajo arcos rectangulares enmarcadas con molduras y coronadas con entablamentos semicirculares. También está articulada con columnas de órden dórico que a su vez sostienen el entablamento corrido rematado con ánforas. El segundo nivel tiene ventanas enmarcadas con molduras y coronadas con entablamentos, unas son semicirculares presididas por balaustradas y otras son triangulares. También tiene cornisas corridas donde descansan ánforas y pares de pilastras que a su vez sostienen el entablamento. Por otra parte, en medio sobresale un frontón triangular coronado con una cruz. Flanqueando la catedral hay dos torres de campanario divididas en tres tramos. Son de bases cuadradas, el segundo nivel tiene ventanas cuadradas enmarcadas con molduras salientes, coronadas con entablamentos semicirculares y presididos por balaustradas. El tercer tramo muestra ventanas dobles de madera bajo arcos semicirculares que a su vez están enmarcados con molduras, coronados con espinazos y entablamentos. Además, están flanqueados por pares de columnas acanaladas. El siguiente tramo de la torre es hexagonal y está decorado con cornisas, molduras, un friso con guirnaldas y ánforas. De la misma manera, las cúpulas muestran óculos de vidrio pintado enmarcados con molduras. A su vez, las cúpulas están coronadas con una linterna de aberturas semicirculares y cruces. En los alrededores se puede ver una cerca modulada con pilares cuadrados. También hay bancos y vehículos estacionados. Los inicios de la Catedral de Nuestra Señora de la Guadalupe datan de 1670 cuando apenas era una ermita de yagua y palma, fue clausurada en 1820 por las malas condiciones del edificio. El comienzo de la construcción de la iglesia actual data de 1835 y fue inaugurada en 1839. Sin embargo, el terremoto de 1918 destruyó ambas torres por lo que pasó a ser reconstruida con un diseño nuevo entre 1918 y 1937. Años más tarde, en 1984 fue incluida en el Registro Nacional de Lugares Históricos. Posteriormente fue restaurada nuevamente en 1992.

Capilla Nuestra Señora de Lourdes

Capilla Nuestra Señora de Lourdes



Dibujo arquitectónico de la fachada de la Capilla Nuestra Señora de Lourdes, en Miramar, San Juan. El dibujo fue realizado por el proyecto Puerto Rico Historic Building Drawing Society. Uno de los tramos de la fachada se distingue por una entrada porticada acentuada por un arco levemente apuntado y acentuado por una moldura y un par de ménsulas ornamentales. Sobre esta entrada resalta un gablete con tracerías y frondas. El tramo central presenta un ventanal acentuado por un arco levemente apuntado con vitrales, tracerías, molduras y ménsulas ornamentales. También resalta un rosetón de tres puntas. Una cruz céltica corona el pináculo del hastial. El tramo de la torre del campanario se caracteriza por una entrada porticada con rejas, molduras, ménsulas y frondas. Seguidamente, en el cuerpo de la torre también son visibles los arcos apuntados emparejados y separados por un parteluz, una moldura, una cornisa, gárgolas que decoran las esquinas superiores y almenas como coronamiento. La separación entre los tramos de la fachada están acentuados por contrafuertes. El edificio es de hormigón con un acabado rusticado que imita la piedra y la sillería, mientras que el techo es de madera y está dispuesto a dos aguas. La construcción de la Capilla Nuestra Señora de Lourdes se inició en 1907 y su inauguración tuvo lugar en 1908. Este edificio es representativo de las iglesias protestantes que se establecieron en Puerto Rico tras el cambio de régimen en 1898. Fue el primer templo de la Iglesia Metodista Episcopal de Puerto Rico, luego, en 1917, pasó a manos de la Iglesia Unida de Puerto Rico y finalmente, a la Iglesia Católica Romana, adscrita a la arquidiócesis de San Juan en 1959. Su diseño y características corresponden al estilo neogótico o resurgimiento gótico. Este diseño además, imita a un edificio de la Iglesia Episcopal en la calle North Market, en Jacksonville Florida, donde su arquitecto tenía su residencia entonces.

Condado Vanderbilt - San Juan (Condado) - 2013 00173

Condado Vanderbilt - San Juan (Condado) - 2013 00173



Vista del interior del Hotel Condado Vanderbilt ubicado en la avenida Ashford del pueblo costero de San Juan. El hotel es de varios niveles con características del estilo resurgimiento español. En el interior se distingue un salón de actividades con el techo artesonado dividido en espacios cúbicos decorado con una lámpara colgante de vidrio pintado en varios colores. La lámpara es esférica, está rodeada por brazos de color salmón y detalles de color negro. También se puede ver en la parte de abajo como cuelgan pequeñas piezas de color dorado ubicadas de forma escalonada. El Hotel Condado Vanderbilt fue comisionado en 1917 por Frederick William Vanderbilt. Finalmente el 16 de octubre de 1919 fue inaugurado el primer gran hotel de lujo del Caribe. En el año 1930 fue vendido y pasó a llamarse Hotel Condado, posteriormente en 1940 se convirtió en el primer hotel en la isla en tener un casino. Además, en 1950 volvieron a cambiar su nombre a Condado Beach Hotel y se añadieron habitaciones, salones de actividades y un restaurante. Luego de considerar su demolición fue incluido en el Registro Nacional de Lugares Históricos en el año 1988. Más recientemente fue remodelado entre los años 2008 a 2014 por los arquitectos Thomas S. Marvel y José Marchand Sifre añadiendo dos torres de suites modernas. Además, la planificación y restauración de los espacios estuvo a cargo del Arquitecto Jonathan Parks y la firma SOLSTICE Planning and Architecture. Los diseños interiores estuvieron a cargo del diseñador Jorge Roselló.

Teatro Yagüez - Mayagüez - 2011 00012

Teatro Yagüez - Mayagüez - 2011 00012



Sala de tres niveles con forma de herradura del Teatro Yagüez, localizado entre las calles McKinley y Basora del municipio de Mayagüez. El centro del techo está coronado con una lámpara de cristal tipo araña. La roseta de la lámpara está rodeada de un conjunto de focos. El techo y los parapetos de los parcos y balcones están ornamentados con yesería de color blanco que contrasta con el rojo de las sillas y muros. En su origen, en 1909, el teatro fue diseñado y construido de madera, acero y cinc, y se le conoció como la Casa del Arte Sonoro. El dueño original de este teatro fue Francisco Maymón Palmer. En el año 1919 un fuego consumió el edificio. En 1920 se llevó a cabo un nuevo diseño de estilo ecléctico, integrando materiales como el hormigón, la madera, el cristal, el mármol italiano y el yeso para las ornamentaciones. Durante la década de 1950 el teatro mostró signos de deterioro y en el periodo de 1977 a 1984 se llevaron a cabo trabajos de restauración bajo el auspicio del municipio de Mayagüez. Asimismo, durante el periodo de 2002 a 2008 se realizó una tercera restauración al teatro. Este teatro constituye uno de los principales escenarios artísticos y de gran valor histórico en el área oeste de Puerto Rico por acoger a importantes orquestas y compañías de drama y danza. Su arquitectura refleja elementos del neoclásico europeo, el neobarroco y de la arquitectura de principios del siglo XX que se conoció como la Belle Époque.

Condado Vanderbilt - San Juan (Condado) - 2013 00141

Condado Vanderbilt - San Juan (Condado) - 2013 00141



Vista de los detalles del Hotel Condado Vanderbilt ubicado en la avenida Ashford del pueblo costero de San Juan. El hotel es de varios niveles y características del estilo resurgimiento español. La fachada frontal tiene un emblema decorativo en bajorrelieve. El medallón tiene elementos ornamentales, florales y representaciones de cuerpos humanos. Además, en medio hay una letra V superpuesta sobre una letra C. También se pueden ver ventanas de cristal en las cuatro esquinas de este. El Hotel Condado Vanderbilt fue comisionado en 1917 por Frederick William Vanderbilt. Finalmente el 16 de octubre de 1919 fue inaugurado el primer gran hotel de lujo del Caribe. En el año 1930 fue vendido y pasó a llamarse Hotel Condado, posteriormente en 1940 se convirtió en el primer hotel en la isla en tener un casino. Además, en 1950 volvieron a cambiar su nombre a Condado Beach Hotel y se añadieron habitaciones, salones de actividades y un restaurante. Luego de considerar su demolición fue incluido en el Registro Nacional de Lugares Históricos en el año 1988. Más recientemente fue remodelado entre los años 2008 a 2014 por los arquitectos Thomas S. Marvel y José Marchand Sifre añadiendo dos torres de suites modernas. Además, la planificación y restauración de los espacios estuvo a cargo del Arquitecto Jonathan Parks y la firma SOLSTICE Planning and Architecture. Los diseños interiores estuvieron a cargo del diseñador Jorge Roselló.

Edificio Oliver - Arecibo - 2012 00020

Edificio Oliver - Arecibo - 2012 00020



Vista de cerca del edificio Oliver en el pueblo costero de Arecibo. El edificio es de tres niveles con características del estilo neoclásico de concreto armado. La fachada se divide en tramos y el tercer nivel tiene aberturas de puertas dobles y ventanas rectangulares de madera y persianas con marcos planos. La abertura conduce a un balcón con balaustres sostenidos por ménsulas decorativas. El balcón en la esquina biselada es curvo y está sostenido por ménsulas decorativas. Entre el balcón se encuentran pilastras acanaladas compuestas que sostienen un entablamento con friso ornamental, cornisa corrida y dentículos. Por otra parte, coronando el edificio se divisa un parapeto con balaustrada y ánforas romanas. En la esquina biselada se interrumpe el parapeto por un frontispicio curvilíneo decorado con detalles en relieve. El edificio Oliver fue construido en 1914 con fines comerciales y residenciales. Está cimentado en el mismo lugar que en 1765 el gobierno español construyó la Casa del Rey hasta 1913 cuando fue demolida. Este innovador edificio fue el primero en incorporar espacios de vivienda y establecimiento comercial. También fue el primer edificio construido en el pueblo con una entrada achaflanada. Además, su diseño ricamente ornamentado adopta características de la Escuela de Bellas Artes y el estilo tradicional español. A través de los años ha sido utilizado cómo espacio residencial, comercial y sede de varios consulados extranjeros que ocupaban el primer nivel. Fue restaurado en la década de 1980 y todos los espacios asignados para vivienda se convirtieron en espacios comerciales.

Casilla de Camineros - Bayamón - 2011 00033

Casilla de Camineros - Bayamón - 2011 00033



Casilla de Camineros en la Carretera 2, km. 12.7 en Bayamón. Vista parcial de la fachada lateral de un edificio construido en mampostería y ladrillos y de estilo neoclásico colonial. Tiene paredes de roca caliza expuestas, cubiertas de humedad y dos huecos adintelados con moldura rústica que funcionan como ventana y puerta. En las esquinas del edificio se observan columnas de ladrillos con enlucido de yeso que descansan sobre un borde de hormigón y roca caliza. El enlucido se ha desprendido en algunos sitios exponiendo los ladrillos. El techo tiene una cornisa con dentículos y un parapeto también en estado de deterioro y plantas que sobresalen del borde. Se puede ver un segmento del patio con piso de cemento y un árbol seco caído. Las Casillas de Camineros fueron construidas durante la última parte del siglo XIX a lo largo de las carreteras principales en Puerto Rico. Estas fueron las residencias de los camineros, trabajadores gubernamentales encargados de brindar mantenimiento a la superficie de la carretera. La mayoría de las casillas fueron abandonadas a finales del siglo XX y las que aún permanecen han enfrentado diferentes destinos. Muchas de ellas se han deteriorado o han sido demolidas y otras han sido destinadas a otros usos. Esta casilla es una de tres construidas en 1882 a lo largo de un tramo de la Carretera número 2 entre Bayamón y Mayagüez. Perteneció originalmente al Departamento de Transportación y Obras Públicas, quien luego la cedió al Instituto de Cultura para ser usada como museo y oficinas de la Cámara de Comercio de Bayamón.

Condado Vanderbilt - San Juan (Condado) - 2013 00164

Condado Vanderbilt - San Juan (Condado) - 2013 00164



Vista de los espacios interiores del Hotel Condado Vanderbilt ubicado en la avenida Ashford del pueblo costero de San Juan. El hotel es de varios niveles con características del estilo resurgimiento español. En el interior se distingue un salón de actividades con el piso parcialmente revestido por una alfombra con motivos ornamentales en varios tonos de color rojo y morado. Las paredes están revestidas de mármol en dos colores y tienen lámparas de vidrio pintado. Algunas tienen puertas de madera, amplios espejos frente a los cuales hay mesas de madera. Además, hay paredes con amplios ventanales de cristal y puertas dobles cubiertas por cortinas de tela. También se distinguen sillas apiladas en una esquina. Por otra parte, el techo es artesonado y está dividido en espacios cúbicos con profundidad decorados con lámparas colgantes de vidrio pintado a juego con las de las paredes y pequeños focos de luz individual. El Hotel Condado Vanderbilt fue comisionado en 1917 por Frederick William Vanderbilt. Finalmente el 16 de octubre de 1919 fue inaugurado el primer gran hotel de lujo del Caribe. En el año 1930 fue vendido y pasó a llamarse Hotel Condado, posteriormente en 1940 se convirtió en el primer hotel en la isla en tener un casino. Además, en 1950 volvieron a cambiar su nombre a Condado Beach Hotel y se añadieron habitaciones, salones de actividades y un restaurante. Luego de considerar su demolición fue incluido en el Registro Nacional de Lugares Históricos en el año 1988. Más recientemente fue remodelado entre los años 2008 a 2014 por los arquitectos Thomas S. Marvel y José Marchand Sifre añadiendo dos torres de suites modernas. Además, la planificación y restauración de los espacios estuvo a cargo del Arquitecto Jonathan Parks y la firma SOLSTICE Planning and Architecture. Los diseños interiores estuvieron a cargo del diseñador Jorge Roselló.

Antiguo Acueducto de Río Piedras - Documentación Aérea - San Juan (Río Piedras) - 2013 00003

Antiguo Acueducto de Río Piedras - Documentación Aérea - San Juan (Río Piedras) - 2013 00003



Vista aérea del conjunto de edificios del antiguo acueducto de Río Piedras, en San Juan. Este conjunto de edificios refleja los estilos arquitectónicos de la historia del sitio. Por ejemplo, la casa de bombeo presenta características del estilo colonial español, mientras que la casa del superintendente y del servicio doméstico exhiben rasgos del estilo bungaló y art déco respectivamente. La casa de bombeo se distingue por un edificio de mampostería de piedra caliza y ladrillo enyesado, de un piso y con cubierta a dos aguas con paneles de metal corrugado o cinc, diseñado en 1892 por Henry Thomas Granger. La casa de bombeo albergaba tres funciones, entre estas, servir como la casa de máquinas, la casa de calderas y el almacenamiento de carbón. Una chimenea de ladrillo con forma cónica octogonal de una altura de 80 pies con elementos neoclásicos se encuentra en la elevación este de la casa de bombeo. Al fondo resalta un conjunto de edificios de dos pisos correspondientes a la casa del superintendente, el garaje y la casa del personal de servicio doméstico. La casa del superintendente es un edificio de hormigón pintado de azul con cubierta plana y además exhibe un porche, columnas de mampostería, una escalera lateral, ventanas rectangulares y vanos arqueados. El otro edificio del servicio doméstico presenta un color amarillo y también es de dos niveles, con techo plano, un balcón, columnas y ventanas tipo persianas protegidas con rejas. Su fachada presenta elementos art déco simplificados y notables mediante las líneas rectas, el uso de bloques de vidrio y bloques ornamentales. Estos dos edificios están unidos por un garaje pequeño de un piso con techo plano. Ambos fueron diseñados por el ingeniero Carlos de Valle Zeno. La planificación del histórico Acueducto de Río Piedras inició en 1846 mediante una serie de propuestas y su construcción inició a partir de 1892 con periodos de construcción adicionales que continuaron hacia el temprano siglo XX. La planta operó desde el tardío siglo XIX hasta la década de 1980. El sitio ha estado vacante desde 1980 y es propiedad del Fideicomiso de Conservación de Puerto Rico y está dirigido por la organización local sin fines de lucro "Para La Naturaleza" que utiliza el sitio para actividades de educación ambiental.

Condado Vanderbilt - San Juan (Condado) - 2013 00169

Condado Vanderbilt - San Juan (Condado) - 2013 00169



Vista del interior del Hotel Condado Vanderbilt ubicado en la avenida Ashford del pueblo costero de San Juan. El hotel es de varios niveles con características del estilo resurgimiento español. En el interior se distingue un salón de actividades con el techo decorado con una gran lámpara colgante de vidrio pintado en varios colores y pequeños focos de lámparas individuales rodeándola. La lámpara tiene una forma esférica y está rodeada por brazos de color salmón y detalles de color negro. Además, la parte de abajo, tiene pequeñas piedras colgantes de color dorado ubicadas de manera escalonada. El Hotel Condado Vanderbilt fue comisionado en 1917 por Frederick William Vanderbilt. Finalmente el 16 de octubre de 1919 fue inaugurado el primer gran hotel de lujo del Caribe. En el año 1930 fue vendido y pasó a llamarse Hotel Condado, posteriormente en 1940 se convirtió en el primer hotel en la isla en tener un casino. Además, en 1950 volvieron a cambiar su nombre a Condado Beach Hotel y se añadieron habitaciones, salones de actividades y un restaurante. Luego de considerar su demolición fue incluido en el Registro Nacional de Lugares Históricos en el año 1988. Más recientemente fue remodelado entre los años 2008 a 2014 por los arquitectos Thomas S. Marvel y José Marchand Sifre añadiendo dos torres de suites modernas. Además, la planificación y restauración de los espacios estuvo a cargo del Arquitecto Jonathan Parks y la firma SOLSTICE Planning and Architecture. Los diseños interiores estuvieron a cargo del diseñador Jorge Roselló.

Faro Punta Mulas - Vieques - 2011 00004

Faro Punta Mulas - Vieques - 2011 00004



Fachada del Faro Punta Mulas, localizado al oeste del puerto de Isabel II, en la isla municipio de Vieques. El faro es de una planta con forma rectangular. Su fachada presenta una puerta flanqueada por ventanas de doble hoja con lumbreras y enmarcadas con molduras. Entre la puerta y las ventanas resaltan pequeños óculos acentuados por molduras. La parte superior del edificio se distingue por una moldura ornamental con motivos de rectángulos y círculos y una cornisa coronada con un parapeto. La parte inferior de la fachada está realzada con un zócalo. Desde el centro sobresale la torre octogonal con una galería que está delimitada por una baranda de hierro forjado y coronada con una linterna de forma cilíndrica hecha de hierro forjado, cobre y cristal. La superficie del edificio es de color amarillo y blanco. Frente al faro se ubica una acera y una jardinera redonda. El Faro de Punta Mulas fue construido en 1895, como un faro de sexto orden, para guiar la navegación a través del Pasaje de Vieques. Este faro comenzó a operar el 1 de junio de 1896. Sus características arquitectónicas corresponden al estilo neoclásico y colonial español. Durante la década de 1940, la planta física fue modificada y se llevaron a cabo algunos cambios como el reemplazo del techo original de ladrillo por uno de hormigón. En 1949, se instaló un sistema automático de iluminación. Entre el año 1961 y 1981 sirvió de residencia a la señora Gilda Romero. En 1992, el municipio de Vieques compró el edificio y lo restauró. Otra restauración ocurrió en 1998, tras el paso del huracán Georges, y finalmente, fue inaugurado en 2015.

Casa Armstrong Poventud - 2014 00001

Casa Armstrong Poventud - 2014 00001



Vista frontal de la Casa Armstrong Poventud ubicada en la calle Unión del pueblo costero de Ponce. La casa es de dos niveles en mampostería sobre una base de piedra expuesta. En primer plano, se distinguen los previos de la Catedral Nuestra Señora de la Guadalupe, la acera pavimentada y vehículos estacionados en la calle. Por otra parte, en el primer nivel la casa tiene una entrada a través de una puerta doble de madera bajo un arco semicircular enmarcado con molduras y coronado con un sol trunco y un espinazo. Flanqueando la entrada principal hay dos cariátides sobre ménsulas decoradas y ventanas de madera bajo arcos dobles enmarcados con molduras, sostenidos por pilastras compuestas y presididos por balaustradas. Cada extremo tiene pilastras con capiteles compuestos que se alzan hasta el segundo nivel sosteniendo un entablamento corrido. De la misma manera, el segundo nivel tiene tres arcos semicirculares con puertas dobles de madera enmarcados con molduras, coronados con soles truncos y espinazos. Los tres arcos están presididos por balconeras, las de los extremos con barandas de hierro ornamental y la de en medio con una balaustrada de mampostería. Además, los balcones están flanqueados por pilastras compuestas que a su vez sostienen un entablamento corrido con ménsulas, un friso ornamental, una cornisa corrida y un parapeto con ánforas. A su vez, al extremo derecho la casa tiene una cochera presidida por un portón de reja metálico enmarcado con molduras. Esta cochera se eleva un nivel abriendo paso a una azotea en el segundo nivel rodeada por rejas de hierro ornamental. También se pueden ver casas y edificios adosados con diferentes características. La conocida Casa de las Cariátides fue construida en 1899 para la familia del señor Carlos Armstrong Toro, el fundador del Banco de Ponce y Banco de Crédito y Ahorro Ponceño. Tras el terremoto de 1918 fue restaurada y se le añadió el espacio de la cochera. Años más tarde, en 1986 fue vendida al gobierno y restaurada por lo que en 1987 fue incluida en el Registro nacional de Lugares Históricos.

Parroquia San Miguel Arcángel - Cabo Rojo - 2011 00001

Parroquia San Miguel Arcángel - Cabo Rojo - 2011 00001



Fachada principal y lateral de la Parroquia San Miguel Arcángel, ubicada en Cabo Rojo. Esta parroquia presenta distintas tonalidades de amarillo que alternan con detalles castaño claro y blancos. La entrada está compuesta por un arco de tres centros flanqueado por pilastras que sostienen un frontón triangular que integra dentículos. La transición hacia el segundo nivel está acentuada por una hilada volada y un par de cornisas elevadas por pilastras. También son notables los óculos y las ventanas con hojas de cristal y con forma de arco de medio punto. En un extremo del segundo nivel de la fachada destaca un frontón triangular con dentículos coronado con una cruz, mientras que en el lado opuesto sobresale la torre de la iglesia, en cuyo campanario se exhiben arcos, relojes, molduras y una cúpula. La parroquia está rodeada por una cerca articulada por una balaustrada interrumpida por pilares con remates. La Parroquia San Miguel Arcángel fue designada monumento histórico bajo la Ley Número 150 del 18 de junio de 2004. Su historia está vinculada a la fundación del pueblo de Cabo Rojo mediante Orden Real del rey Carlos III del 17 de diciembre de 1771. A partir del 29 de septiembre de 1783 esta iglesia se dedica al patrono de San Miguel Arcángel y dos años más tarde inició la construcción del templo. En esta iglesia, además, se encuentran las actas de nacimiento de Ramón Emeterio Betances, Salvador Brau Asencio y el legendario pirata Cofresí.

Parroquia San Miguel Arcángel - Cabo Rojo - 2011 00015

Parroquia San Miguel Arcángel - Cabo Rojo - 2011 00015



Fachada de la Parroquia San Miguel Arcángel, ubicada en Cabo Rojo. Esta parroquia presenta distintas tonalidades de amarillo que alternan con detalles anaranjados. La entrada está compuesta por un arco de tres centros flanqueado por pilastras que sostienen un frontón triangular que integra dentículos. La transición hacia el segundo nivel está acentuada por una hilada volada y un par de cornisas elevadas por pilastras. También son notables los óculos y las ventanas con hojas de cristal y con forma de arco de medio punto. En un extremo del segundo nivel de la fachada destaca un frontón triangular con dentículos coronado con una cruz, mientras que en el lado opuesto sobresale la torre de la iglesia, en cuyo campanario se exhiben arcos, relojes, molduras y una cúpula. La parroquia está rodeada por una cerca articulada por una balaustrada interrumpida por pilares con remates y un portón de rejas con motivos de volutas. En la parte del frente se ubica un monumento con la estatua que conmemora al escritor, político e historiador puertorriqueño Salvador Brau Asencio. La Parroquia San Miguel Arcángel fue designada monumento histórico bajo la Ley Número 150 del 18 de junio de 2004. Su historia está vinculada a la fundación del pueblo de Cabo Rojo mediante Orden Real del rey Carlos III del 17 de diciembre de 1771. A partir del 29 de septiembre de 1783 esta iglesia se dedica al patrono de San Miguel Arcángel y dos años más tarde inició la construcción del templo. En esta iglesia, además, se encuentran las actas de nacimiento de Ramón Emeterio Betances, Salvador Brau Asencio y el legendario pirata Cofresí. En su bicentenario se sembró un árbol de guayacán al costado de la Plaza de Recreo.

Cabildo - San Juan (Viejo San Juan) - 2012 00033

Cabildo - San Juan (Viejo San Juan) - 2012 00033



Casa Cabildo ubicada en la esquina de la calle del Cristo y la calle Caleta en el Viejo San Juan. Este edificio fue sede de la primera alcaldía del municipio de San Juan y en el sótano se ubicaba la primera cárcel del municipio. Fue construido en 1523 y está pintado de color anaranjado y blanco. Posteriormente la Casa Cabildo fue la Galería Éxodo. Es una vista desde la parte superior del edificio Casa Cabildo hacia la calle del Cristo. En el lado derecho de la imagen se observan tres balcones con balaustradas de madera sostenidos por pilares y techos con faldón. Se aprecian vanos de puertas con molduras blancas y faroles de pared. El piso tiene losetas con motivos ajedrezados. En el lado izquierdo de la imagen se ve un edificio color blanco que tiene parapetos, cornisas, dentículos, dos pilastras con capiteles ornamentados, antepechos con balaustradas y puertas dobles de madera. La entrada tiene una reja con balaustres de madera y en la parte superior se notan tres decoraciones ovaladas. Al lado de este edificio se encuentra otro que está pintado de color salmón y blanco. Tiene varios antepechos en la parte superior e inferior con molduras blancas, balaustres, puertas dobles de celosía de madera, parapetos, pilastras y dos faroles sostenidos por ménsulas. A distancia se ve un edificio color azul y blanco que tiene un balcón con balaustradas, pilares y techo con faldón. También se divisa el parapeto y varios arbustos.

Calle de la Fortaleza 56 - Antigua Real Audiencia - Conservatorio De Artes Del Caribe - San Juan (Viejo San Juan) - 2011 00080

Calle de la Fortaleza 56 - Antigua Real Audiencia - Conservatorio De Artes Del Caribe - San Juan (Viejo San Juan) - 2011 00080



Antigua Real Audiencia, calle de la Fortaleza en el Viejo San Juan. Vista desde la Torre Meteorológica y de Observación ubicada en el techo de la casa de dos pisos estilo colonial español. Se observan la Iglesia Presbiteriana Hugh O'Neill Memorial y dos edificios contiguos. Ambos edificios tienen tres pisos de construcción original y ambos tienen edificaciones adicionales en la azotea. Se pueden ver otros edificios y casas de la cuidad antigua entre los que se pueden distinguir varios edificios históricos como: la Catedral Basílica Menor de San Juan Bautista y Parroquia Nuestra Señora de los Remedios, Iglesia San José, Iglesia San José, Hotel El Convento, Seminario Conciliar de San Idelfonso y el Cuartel de Ballajá. Originalmente esta casa fue la residencia del Dr. Francisco Oller y Ferrer, abuelo del pintor Francisco Oller y Cestero. En 1831 fue vendida al Estado y el 1832 pasó a ser la primera sede de la Real Audiencia Territorial. Alrededor del 1898 fue arrendada al Departamento de Agricultura de Estados Unidos y en otro momento se usó como Departamento de Estado. En 1992 la edificación fue dedicada a Don Fernando Chardón. Luego de un periodo de abandono fue restaurada en el año 2000 y asignada a las oficinas de Guías Turísticos y de Programas Federales adscritos a la Oficina del Gobernador. La Torre Meteorológica y de Observación fue diseñada por el ingeniero Manuel Maese, la orden para su construcción fue emitida en 1883.

Condado Vanderbilt - San Juan (Condado) - 2013 00063

Condado Vanderbilt - San Juan (Condado) - 2013 00063



Vista desde el patio trasero del Hotel Condado Vanderbilt ubicado en la avenida Ashford del pueblo costero de San Juan. El hotel es de varios niveles con características del estilo resurgimiento español. El patio trasero tiene el piso cubierto por baldosas de cerámica y una pérgola que se extiende con el piso del interior en madera y puertas de cristal que dan paso a la balaustrada que a su vez preside la costa del océano atlántico. Por otra parte, desde el interior de la pérgola se ven los primeros niveles de una de las torres laterales del hotel. Tiene ventanas de cristal y un balcón con balaustrada de cristal. El Hotel Condado Vanderbilt fue comisionado en 1917 por Frederick William Vanderbilt. Finalmente el 16 de octubre de 1919 fue inaugurado el primer gran hotel de lujo del Caribe. En el año 1930 fue vendido y pasó a llamarse Hotel Condado, posteriormente en 1940 se convirtió en el primer hotel en la isla en tener un casino. Además, en 1950 volvieron a cambiar su nombre a Condado Beach Hotel y se añadieron habitaciones, salones de actividades y un restaurante. Luego de considerar su demolición fue incluido en el Registro Nacional de Lugares Históricos en el año 1988. Más recientemente fue remodelado entre los años 2008 a 2014 por los arquitectos Thomas S. Marvel y José Marchand Sifre añadiendo dos torres de suites modernas. Además, la planificación y restauración de los espacios estuvo a cargo del Arquitecto Jonathan Parks y la firma SOLSTICE Planning and Architecture. Los diseños interiores estuvieron a cargo del diseñador Jorge Roselló.

Casa Defilló Amiguet - Mayagüez - 2012 00007

Casa Defilló Amiguet - Mayagüez - 2012 00007



Fachada de la casa Defilló Amiguet localizada en la calle Méndez Vigo 21 en Mayagüez. La casa está elevada en un podio y tiene dos niveles. El primer nivel exhibe arcos de medio punto flanqueados por pilastras emparejadas. Algunos de los arcos integran rejas y otros exhiben murales que simulan puertas de doble hoja. La transición hacia el segundo nivel está acentuada por un friso ornamental y una cornisa. El segundo nivel se distingue por un balcón con baranda de metal, columnas de fuste acanalado y capiteles jónicos, y puertas de madera con lumbreras y vidrios. Asimismo, es visible un vano de ventana y un parapeto. El tramo del segundo nivel es de madera machihembrada. La superficie de la casa es de color amarillo con detalles de blanco. Frente a la casa se ubican varios automóviles, mientras que al lado resalta un edificio de tres niveles con la superficie de color anaranjado con detalles de blanco. Esta casona fue construida en la década de 1840 en el estilo neoclásico colonial. Esta casa es de gran valor histórico, ya que allí nació Pilar Defilló Amiguet, la madre del ilustre músico Pablo Casals Defilló. Además, desde sus balcones, Casals realizó su primer concierto en el continente americano tras llegar a Puerto Rico el 17 de diciembre de 1955. Esta residencia fue adquirida y restaurada por el municipio de Mayagüez como un homenaje a Pilar Defilló Amiguet y con el fin de difundir el legado musical y cultural del maestro Casals y la familia Defilló. En el 2015 la casona se convirtió en sede del Museo Pablo Casals de Puerto Rico.

Condado Vanderbilt - San Juan (Condado) - 2013 00131

Condado Vanderbilt - San Juan (Condado) - 2013 00131



Vista desde el balcón frontal del Hotel Condado Vanderbilt ubicado en la avenida Ashford del pueblo costero de San Juan. El hotel es de varios niveles y características del estilo resurgimiento español. La fachada frontal del hotel tiene puertas y ventanas dobles de cristal bajo arcos semicirculares moduladas por lámparas de pared. Además, sobre estas se distingue un entablamento corrido con molduras y cornisas. La fachada frontal también tiene un balcón abierto rodeado por balaustradas. El interior tiene el piso cubierto por losas de cerámica, está decorado con muebles de jardín y plantas en macetas decorativas. También se distingue una de las torres laterales del hotel con ventanas dobles de cristal enmarcadas con molduras, balcones con balaustradas de cristal dentro de los cuales hay más ventanas y puertas enmarcadas con molduras. El Hotel Condado Vanderbilt fue comisionado en 1917 por Frederick William Vanderbilt. Finalmente el 16 de octubre de 1919 fue inaugurado el primer gran hotel de lujo del Caribe. En el año 1930 fue vendido y pasó a llamarse Hotel Condado, posteriormente en 1940 se convirtió en el primer hotel en la isla en tener un casino. Además, en 1950 volvieron a cambiar su nombre a Condado Beach Hotel y se añadieron habitaciones, salones de actividades y un restaurante. Luego de considerar su demolición fue incluido en el Registro Nacional de Lugares Históricos en el año 1988. Más recientemente fue remodelado entre los años 2008 a 2014 por los arquitectos Thomas S. Marvel y José Marchand Sifre añadiendo dos torres de suites modernas. Además, la planificación y restauración de los espacios estuvo a cargo del Arquitecto Jonathan Parks y la firma SOLSTICE Planning and Architecture. Los diseños interiores estuvieron a cargo del diseñador Jorge Roselló.

Condado Vanderbilt - San Juan (Condado) - 2013 00150

Condado Vanderbilt - San Juan (Condado) - 2013 00150



Vista de los espacios interiores del Hotel Condado Vanderbilt ubicado en la avenida Ashford del pueblo costero de San Juan. El hotel es de varios niveles con características del estilo resurgimiento español. El baño tiene dos ventanas revestidas por una cortina de tela y el piso revestido por mármol en varios colores. Además, en medio se distingue un mueble de mármol con varios lavamanos, lámparas decorativas y espejos. También se distingue un cuadro decorativo en la pared, en el techo se ven pequeños focos de luz individual y un extremo de una lámpara colgante. El Hotel Condado Vanderbilt fue comisionado en 1917 por Frederick William Vanderbilt. Finalmente el 16 de octubre de 1919 fue inaugurado el primer gran hotel de lujo del Caribe. En el año 1930 fue vendido y pasó a llamarse Hotel Condado, posteriormente en 1940 se convirtió en el primer hotel en la isla en tener un casino. Además, en 1950 volvieron a cambiar su nombre a Condado Beach Hotel y se añadieron habitaciones, salones de actividades y un restaurante. Luego de considerar su demolición fue incluido en el Registro Nacional de Lugares Históricos en el año 1988. Más recientemente fue remodelado entre los años 2008 a 2014 por los arquitectos Thomas S. Marvel y José Marchand Sifre añadiendo dos torres de suites modernas. Además, la planificación y restauración de los espacios estuvo a cargo del Arquitecto Jonathan Parks y la firma SOLSTICE Planning and Architecture. Los diseños interiores estuvieron a cargo del diseñador Jorge Roselló.

Calle de la Fortaleza 56 - Antigua Real Audiencia - Conservatorio De Artes Del Caribe - San Juan (Viejo San Juan) - 2012 00009

Calle de la Fortaleza 56 - Antigua Real Audiencia - Conservatorio De Artes Del Caribe - San Juan (Viejo San Juan) - 2012 00009



Antigua Real Audiencia, calle de la Fortaleza en el Viejo San Juan. Vista parcial de la Torre Meteorológica y de Observación ubicada en el techo de la casa de dos pisos estilo colonial español. Se ve el área de observación de la torre. Esta parte está construida de madera sobre un armazón de barras de metal y está protegida por una baranda de hierro. Las paredes consisten en una puerta y ventanas con celosías. Tres de las ventanas visibles están rotas, le faltan las celosías. La torre tiene una cúpula cubierta con láminas de metal y tiene un remate esférico. Del remate sale una vara de metal de la que cuelga un cable. Originalmente esta casa fue la residencia del Dr. Francisco Oller y Ferrer, abuelo del pintor Francisco Oller y Cestero. En 1831 fue vendida al Estado y el 1832 pasó a ser la primera sede de la Real Audiencia Territorial. Alrededor del 1898 fue arrendada al Departamento de Agricultura de Estados Unidos y en otro momento se usó como Departamento de Estado. En 1992 la edificación fue dedicada a Don Fernando Chardón. Luego de un periodo de abandono fue restaurada en el año 2000 y asignada a las oficinas de Guías Turísticos y de Programas Federales adscritos a la Oficina del Gobernador. La Torre Meteorológica y de Observación fue diseñada por el ingeniero Manuel Maese, la orden para su construcción fue emitida en 1883.

Capitolio de Puerto Rico - San Juan (Puerta de Tierra) - 2009 00006

Capitolio de Puerto Rico - San Juan (Puerta de Tierra) - 2009 00006



Vista frontal del Capitolio de Puerto Rico ubicado en la comunidad de Puerta de Tierra del pueblo costero de San Juan. En primer plano, se alza un asta con la bandera de los Estados Unidos. El edificio es de tres niveles con características del estilo neoclásico en hormigón y acero revestido por mármol blanco. Tiene una forma oblicua dividida en naves, la nave central tiene un pórtico que está presidido por unas escalinatas y está sostenido por ocho columnas de órden jónico que a su vez sostienen un entablamento corrido con cornisas, molduras, dentículos y mútulos. Dentro de este se ven varias puertas dobles de madera y cristal bajo arcos de medio punto coronadas con travesaños y medallones en bajorrelieve sobre los cuales se ven ventanas de cristal. Las puertas y ventanas están moduladas por pilastras y se pueden ver varias personas de pie. El resto de la fachada tiene ventanas de cristal y puertas dobles presididas por antepechos y coronadas con entablamento. Además, el borde superior está decorado con una crestería y coronando el edificio se alza una cúpula rematada con una linterna. El Capitolio de Puerto Rico fue construido entre los años 1925 a 1929 utilizando el diseño del arquitecto Puertorriqueño Rafael Carmoega. Ha permanecido en uso continuo y fue expandido añadiendo dos edificios anexos en la década de 1950 trabajo realizado por la firma Toro y Ferrer, Además, fue incluido al Registro Nacional de Lugares históricos en el año 1977 y añadido a la nominación de Distrito Histórico de Puerta de Tierra en el año 2019.

Iglesia de San Jorge - San Juan (Condado) - 2014 00118

Iglesia de San Jorge - San Juan (Condado) - 2014 00118



Vista desde el interior de la Parroquia San Jorge ubicada en la comunidad de Condado del pueblo costero de San Juan. La iglesia es de dos niveles en hormigón con características del estilo neogótico pintada de color blanco y color gris. El interior está dividido en tres naves, la nave central se eleva un nivel adicional con techos abovedados. Las bóvedas son cuatripartitas conectadas por espinazos pintados de color dorado, de alguno de estos cuelgan lámparas de cristal. Además, hay ventanas de cleristerio, son de cristal bajo un arcos ojivales coronadas con vierteaguas y tracerías lobuladas. Dividiendo la nave central de las naves laterales hay arcadas de arcos ojivales enmarcadas con molduras y flanqueadas por pilastras pares que a su vez conectan con las vigas en el techo. A diferencia de la nave central, las naves laterales son de un nivel. También se pueden ver en el borde superior un friso ornamental y emblemas decorativos. Por otra parte, al fondo en el segundo nivel está ubicado el espacio del coro. Está rodeado por una balaustrada de hormigón y decorado con un órgano sobre el cual se proyecta un rosetón. La iglesia San Jorge fue inaugurada en el año 1920 siendo oficialmente fundada canónicamente en 1924 tras ser desmembrada de las Parroquias San Mateo y Sagrado Corazón. Su diseño inicial estuvo a cargo de la firma Martínez y Lázaro siendo finalizado en dos años. Seis años después se comienza la construcción de los edificios aledaños a la academia San Jorge. Posteriormente en 1940 la fachada fue remodelada por el arquitecto Rafael Carmoega. Más recientemente en el año 2017 fue restaurada en fases por la firma Astrid Díaz: ADV Architects.

Calle de la Fortaleza 56 - Antigua Real Audiencia - Conservatorio De Artes Del Caribe - San Juan (Viejo San Juan) - 2011 00097

Calle de la Fortaleza 56 - Antigua Real Audiencia - Conservatorio De Artes Del Caribe - San Juan (Viejo San Juan) - 2011 00097



Antigua Real Audiencia, calle de la Fortaleza en el Viejo San Juan. Vista desde la Torre Meteorológica y de Observación ubicada en el techo de la casa de dos pisos estilo colonial español. Se observa el techo de unos de los edificios de enfrente que tiene varias antenas de satélite, compresores de acondicionadores de aire, extractores y dos tragaluces redondos. Además se ven otros edificios y casas de la ciudad antigua entre los que se pueden distinguir varios edificios históricos como: la Catedral Basílica Menor de San Juan Bautista y Parroquia Nuestra Señora de los Remedios, Iglesia San José, Iglesia San José, Hotel El Convento, Seminario Conciliar de San Idelfonso y el Cuartel de Ballajá. Originalmente esta casa fue la residencia del Dr. Francisco Oller y Ferrer, abuelo del pintor Francisco Oller y Cestero. En 1831 fue vendida al Estado y el 1832 pasó a ser la primera sede de la Real Audiencia Territorial. Alrededor del 1898 fue arrendada al Departamento de Agricultura de Estados Unidos y en otro momento se usó como Departamento de Estado. En 1992 la edificación fue dedicada a Don Fernando Chardón. Luego de un periodo de abandono fue restaurada en el año 2000 y asignada a las oficinas de Guías Turísticos y de Programas Federales adscritos a la Oficina del Gobernador. La Torre Meteorológica y de Observación fue diseñada por el ingeniero Manuel Maese, la orden para su construcción fue emitida en 1883.

Condado Vanderbilt - San Juan (Condado) - 2013 00192

Condado Vanderbilt - San Juan (Condado) - 2013 00192



Vista del interior del Hotel Condado Vanderbilt ubicado en la avenida Ashford del pueblo costero de San Juan. El hotel es de varios niveles con características del estilo resurgimiento español. Los espacios interiores están pintados en varios tonos de color rosa. El vestíbulo tiene dos niveles con pisos de mármol, techos abovedados con lámparas colgantes y lámparas de pared a juego. La pared del extremo opuesto tiene varias puertas dobles de madera con ventanas de cristal bajo arcos semicirculares. Los espacios están separados con vanos semicirculares coronados con pequeños emblemas y balaustradas de hierro ornamental con pasamanos de madera. También se pueden ver las balaustradas de la escalera en medio y una pared cubierta por espejo enfrente de la cual hay una persona de pie. El Hotel Condado Vanderbilt fue comisionado en 1917 por Frederick William Vanderbilt. Finalmente el 16 de octubre de 1919 fue inaugurado el primer gran hotel de lujo del Caribe. En el año 1930 fue vendido y pasó a llamarse Hotel Condado, posteriormente en 1940 se convirtió en el primer hotel en la isla en tener un casino. Además, en 1950 volvieron a cambiar su nombre a Condado Beach Hotel y se añadieron habitaciones, salones de actividades y un restaurante. Luego de considerar su demolición fue incluido en el Registro Nacional de Lugares Históricos en el año 1988. Más recientemente fue remodelado entre los años 2008 a 2014 por los arquitectos Thomas S. Marvel y José Marchand Sifre añadiendo dos torres de suites modernas. Además, la planificación y restauración de los espacios estuvo a cargo del Arquitecto Jonathan Parks y la firma SOLSTICE Planning and Architecture. Los diseños interiores estuvieron a cargo del diseñador Jorge Roselló.

Teatro Yagüez - Mayagüez - 2011 00031

Teatro Yagüez - Mayagüez - 2011 00031



Perspectiva de un tramo del pasillo y las cortinas de uno de los palcos del Teatro Yagüez, localizado entre las calles McKinley y Basora del municipio de Mayagüez. El muro del pasillo tiene paneles de mármol que cubren la mitad de la pared y contrasta con el color rojo de la otra mitad. En esta pared también se exhiben varias lámparas. La transición hacia el techo está acentuada por una moldura. Frente a esta pared se extienden las cortinas rojas a través de las cuales se accede a un palco. En su origen, en 1909, el teatro fue diseñado y construido de madera, acero y cinc, y se le conoció como la Casa del Arte Sonoro. El dueño original de este teatro fue Francisco Maymón Palmer. En el año 1919 un fuego consumió el edificio. En 1920 se llevó a cabo un nuevo diseño de estilo ecléctico, integrando materiales como el hormigón, la madera, el cristal, el mármol italiano y el yeso para las ornamentaciones. Durante la década de 1950 el teatro mostró signos de deterioro y en el periodo de 1977 a 1984 se llevaron a cabo trabajos de restauración bajo el auspicio del municipio de Mayagüez. Asimismo, durante el periodo de 2002 a 2008 se realizó una tercera restauración al teatro. Este teatro constituye uno de los principales escenarios artísticos y de gran valor histórico en el área oeste de Puerto Rico por acoger a importantes orquestas y compañías de drama y danza. Su arquitectura refleja elementos del neoclásico europeo, el neobarroco y de la arquitectura de principios del siglo XX que se conoció como la Belle Époque.

Iglesia de San Jorge - San Juan (Condado) - 2014 00015

Iglesia de San Jorge - San Juan (Condado) - 2014 00015



Vista desde el interior de la Parroquia San Jorge ubicada en la comunidad de Condado del pueblo costero de San Juan. La iglesia es de dos niveles en hormigón con características del estilo neogótico pintada de color blanco y color gris. El interior está dividido en tres naves, la nave central se eleva un nivel adicional con techos abovedados. Las bóvedas son cuatripartitas unidas por espinazos pintados de color dorado, algunos de estos sirven como la base para las lámparas colgantes de cristal. Además, el claristorio tiene ventanas de cristal bajo arcos ojivales coronadas con vierteaguas y tracerías lobuladas. La nave central también tiene escudos en bajorrelieve, arcadas de arcos ojivales enmarcadas con molduras y flanqueadas por pilastras pares que a su vez conectan con las molduras que enmarcan las bóvedas. Las naves laterales también tienen puertas y ventanas dobles de madera coronadas con vidrieras de colores. Al fondo, bajo un ábside semicircular se encuentra el altar que está decorado con un retablo en la pared. A ambos lados del retablo hay estatuas de representaciones religiosas sobre ménsulas. La iglesia San Jorge fue inaugurada en el año 1920 siendo oficialmente fundada canónicamente en 1924 tras ser desmembrada de las Parroquias San Mateo y Sagrado Corazón. Su diseño inicial estuvo a cargo de la firma Martínez y Lázaro siendo finalizado en dos años. Seis años después se comienza la construcción de los edificios aledaños a la academia San Jorge. Posteriormente en 1940 la fachada fue remodelada por el arquitecto Rafael Carmoega. Más recientemente en el año 2017 fue restaurada en fases por la firma Astrid Díaz: ADV Architects.

Ateneo Puertorriqueño - San Juan (Viejo San Juan) - 2009 00002

Ateneo Puertorriqueño - San Juan (Viejo San Juan) - 2009 00002



El Ateneo Puertorriqueño localizado en el barrio Puerta de Tierra en el Viejo San Juan. Fue fundado en 1876 y construido por el ingeniero Ramón Carbia Burt en 1923. Es la institución cultural más antigua de Puerto Rico, también se le conoce como "la Docta Casa". Su estilo arquitectónico es representativo del neoárabe. Fue nominado para el Registro Nacional de Lugares Históricos en 1984. Está pintado de color blanco y terracota. Se observa que la parte superior de la fachada tiene un alero cubierto con tejas sostenido por ménsulas de madera. También tiene siete arcos polilobulados interrumpidos por ocho pilastras que tienen azulejos en la parte superior. En la parte inferior de la fachada resaltan seis pilastras que sostienen un arco semicircular y entablamento cubierto de azulejos con motivos florales. El vano de la puerta tiene escrito en la parte superior "Ateneo Puertorriqueño". En ambos extremos de las pilastras se aprecian frisos en altos relieves con representaciones de figuras humanas que fueron esculpidos por el artista italiano Arrighini. Frente a la entrada hay unas escalinatas y farolas. El edificio también tiene ventanas de cristal con marcos de madera abisagradas y una ornamentación en forma de antorcha en la esquina superior del lado derecho de la imagen. En los alrededores se ven árboles, arbustos, una decoración alusiva a los tres Reyes Magos y grama. Posteriormente el Ateneo Puertorriqueño se dedicó a fomentar el teatro, música, cine, literatura, historia, ciencias, ciencias morales y políticas y las artes plásticas puertorriqueñas.

Teatro Yagüez - Mayagüez - 2011 00011

Teatro Yagüez - Mayagüez - 2011 00011



Lámpara que corona el centro del Teatro Yagüez, localizado entre las calles McKinley y Basora del municipio de Mayagüez. Esta lámpara es de cristal y del tipo de lámpara de araña. Además, es visible la sala principal del teatro que tiene tres niveles y una forma de herradura o forma de "U". También, resaltan los parapetos de los palcos y balcones ornamentados con yesería. Al fondo es visible el área del escenario, la cortina y la bambalina. En su origen, en 1909, el teatro fue diseñado y construido de madera, acero y cinc, y se le conoció como la Casa del Arte Sonoro. El dueño original de este teatro fue Francisco Maymón Palmer. En el año 1919 un fuego consumió el edificio. En 1920 se llevó a cabo un nuevo diseño de estilo ecléctico, integrando materiales como el hormigón, la madera, el cristal, el mármol italiano y el yeso para las ornamentaciones. Durante la década de 1950 el teatro mostró signos de deterioro y en el periodo de 1977 a 1984 se llevaron a cabo trabajos de restauración bajo el auspicio del municipio de Mayagüez. Asimismo, durante el periodo de 2002 a 2008 se realizó una tercera restauración al teatro. Este teatro constituye uno de los principales escenarios artísticos y de gran valor histórico en el área oeste de Puerto Rico por acoger a importantes orquestas y compañías de drama y danza. Su arquitectura refleja elementos del neoclásico europeo, el neobarroco y de la arquitectura de principios del siglo XX que se conoció como la Belle Époque.

Edificio Oliver - Arecibo - 2012 00018

Edificio Oliver - Arecibo - 2012 00018



Vista frontal del edificio Oliver en el pueblo costero de Arecibo. El edificio es de tres niveles con una esquina biselada que sirve como entrada principal. Es de concreto armado inspirado por el estilo neoclásico. La fachada se divide en varios tramos. Horizontalmente, el edificio se divide en dos partes, la planta base y dos plantas superiores. En la base, a través de la esquina achaflanada hay una entrada bajo un arco semicircular enmarcado por molduras continuas. Por otra parte, el segundo nivel tiene aberturas de puertas y ventanas rectangulares con marcos planos. Las aberturas conducen a un balcón semicircular con balaustres sostenidos por ménsulas decorativas. Flanqueando el balcón se encuentran pilastras acanaladas sostenidas por cornisas corridas bajo las cuales hay una serie de cabezas de leones en relieve. En los alrededores se divisan más edificios en tonos rosa, amarillo y naranja con diferentes características. El edificio Oliver fue construido en 1914 con fines comerciales y residenciales. Está cimentado en el mismo lugar que en 1765 el gobierno español construyó la Casa del Rey hasta 1913 cuando fue demolida. Este innovador edificio fue el primero en incorporar espacios de vivienda y establecimiento comercial. También fue el primer edificio construido en el pueblo con una entrada achaflanada. Además, su diseño ricamente ornamentado adopta características de la Escuela de Bellas Artes y el estilo tradicional español. A través de los años ha sido utilizado cómo espacio residencial, comercial y sede de varios consulados extranjeros que ocupaban el primer nivel. Fue restaurado en la década de 1980 y todos los espacios asignados para vivienda se convirtieron en espacios comerciales.

Calle de la Fortaleza 56 - Antigua Real Audiencia - Conservatorio De Artes Del Caribe - San Juan (Viejo San Juan) - 2011 00002

Calle de la Fortaleza 56 - Antigua Real Audiencia - Conservatorio De Artes Del Caribe - San Juan (Viejo San Juan) - 2011 00002



Antigua Real Audiencia, calle de la Fortaleza en el Viejo San Juan. Vista parcial de la fachada de la casa de dos pisos estilo colonial español. En el primer nivel se observan, la entrada principal, ubicada en el centro y dos de las cuatro ventanas laterales que tienen paneles de vidrio y antepechos de balaustres de madera, sobre cada una hay un óculo ovalado. La ventana del extremo tiene un rótulo con la imagen de La Fortaleza y una inscripción que dice: "La Tiendita de Santa Catalina". Una moldura continua se extiende sobre la base del edificio y alrededor de la entrada. Entre la entrada y la primera ventana hay una lámpara de pared tipo farol. En el segundo nivel se destaca un balcón con balaustres de madera que se extiende frente a los cinco vanos con puertas de de doble hoja con celosías y paneles de vidrio en la parte superior, de los cuales solo tres son visibles. La casa tiene una hilada seguida por una cornisa delgada y un parapeto liso con moldura en el borde superior. Hacia uno de los lado del techo se divisa parte de la Torre Meteorológica y de Observación. La casa está pintada de amarillo con las molduras blancas. La torre también tiene paredes amarillas, la cornisa es blanca y el área de observación es verde al igual que la baranda. Originalmente esta casa fue la residencia del Dr. Francisco Oller y Ferrer, abuelo del pintor Francisco Oller y Cestero. En 1831 fue vendida al Estado y en 1832 pasó a ser la primera sede de la Real Audiencia Territorial. Alrededor del 1898 fue arrendado al Departamento de Agricultura de Estados Unidos y en otro momento se usó como Departamento de Estado. En 1992 la edificación fue dedicada a Don Fernando Chardón. Luego de un periodo de abandono fue restaurada en el año 2000 y asignada a las oficinas de Guías Turísticos y de Programas Federales adscritos a la Oficina del Gobernador. La Torre Meteorológica y de Observación fue diseñada por el ingeniero Manuel Maese, la orden para su construcción fue emitida en 1883.

Calle de la Fortaleza 56 - Antigua Real Audiencia - Conservatorio De Artes Del Caribe - San Juan (Viejo San Juan) - 2011 00086

Calle de la Fortaleza 56 - Antigua Real Audiencia - Conservatorio De Artes Del Caribe - San Juan (Viejo San Juan) - 2011 00086



Antigua Real Audiencia, calle de la Fortaleza en el Viejo San Juan. Vista parcial de la fachada de la casa de dos pisos estilo colonial español. Se observa, la entrada principal, ubicada en el centro. Tiene tres escalones y una puerta de doble hoja, la puerta está abierta y se puede ver hacia el vestíbulo. Una moldura se extiende sobre la base del edificio y alrededor de la entrada. A cada lado de la puerta hay una lámpara de pared tipo farol. Bajo una de las lámparas hay una placa conmemorativa. Se puede ver parte del balcón descubierto del segundo piso que tiene balaustres de madera. Se pueden ver tres de los cinco vanos del segundo piso, estos están bordeados por molduras simples y tienen puertas de doble hoja con celosías. La pared tiene una hilada seguida por una cornisa. Originalmente esta casa fue la residencia del Dr. Francisco Oller y Ferrer, abuelo del pintor Francisco Oller y Cestero. En 1831 fue vendida al Estado y en 1832 pasó a ser la primera sede de la Real Audiencia Territorial. Alrededor del 1898 fue arrendado al Departamento de Agricultura de Estados Unidos y en otro momento se usó como Departamento de Estado. En 1992 la edificación fue dedicada a Don Fernando Chacón. Luego de un periodo de abandono fue restaurada en el año 2000 y asignada a las oficinas de Guías Turísticos y de Programas Federales adscritos a la Oficina del Gobernador. La Torre Meteorológica y de Observación fue diseñada por el ingeniero Manuel Maese, la orden para su construcción fue emitida en 1883.

Parroquia San Francisco de Asís - Aguada - 2011 00001

Parroquia San Francisco de Asís - Aguada - 2011 00001



Parroquia San Francisco de Asís, Aguada. El diseño de esta iglesia católica presenta influencias de la arquitectura gótica y la neoclásica. Su fachada se compone de un cuerpo central con una cruz en el tope y dos torres laterales. Sobresale el uso de arcos ojivales que se repite tanto en las torres como en el cuerpo central. En el centro hay un pórtico con cuatro columnas delgadas y techo en pendiente. Sobre el techo del pórtico hay un rótulo con las fechas 1924 y 1936. En el segundo nivel de la fachada se observa un arco dentro del cual hay siete arcos ojivales delgados con vitrales, flanqueados por dos pilastras coronadas con pináculos. En las torres cuadrangulares se distinguen distintos niveles y todos presentan arcos ojivales. En el primer nivel cada torre tiene una ventana de madera con un vitral. En el segundo nivel, tres arcos delgados, el del centro más alto que los otros dos. En el tercer nivel hay tres arcos delgados de la misma altura y una de las torres tiene un reloj. El cuarto nivel tiene un arco ojival dentro de una forma triangular. Cada torre termina con una cúpula, linterna con arcos ojivales, aguja y una pequeña cruz. El edificio está rodeado por una cerca de cemento, los pilares de la cerca tienen tiestos con plantas. También hay un portón de hierro con dos pilares con lámparas. Tanto la iglesia como la cerca están pintadas de un color verde grisáceo con los bordes y detalles en color blanco. Frente a la iglesia, al cruzar la calle, está la plaza pública en donde se ve una estatua de Cristóbal Colón.

Alcaldía de Ponce - 2013 00002

Alcaldía de Ponce - 2013 00002



Vista frontal de la Casa Alcaldía del pueblo de Ponce. El edificio es de dos niveles en mampostería y tiene características del estilo neoclásico isabelino. En el primer nivel hay almohadillado, dos ventanas dobles de madera y dos puertas dobles de madera y cristal enmarcada y coronada con un entablamento. En medio se encuentra la entrada principal con reja metálica ornamental bajo un arco semicircular enmarcado con molduras y flanqueado por dos pares de pilastras toscanas. Por otra parte, en el segundo nivel hay cinco puertas dobles de madera y cristal enmarcadas con molduras planas y presididas por balaustradas. La puerta del medio está presidida por un balcón saledizo con balaustrada sostenida por ménsulas. La fachada frontal también tiene una inscripción que dice: “Casa Alcaldía”, un entablamento corrido y un frontón que corona el edificio. El frontón es pequeño y tiene un reloj, pilastras, volutas, molduras y cornisas corridas. Además, sobre el edificio hay tres astas con las banderas de Estados Unidos, Puerto Rico y Ponce. A ambos lados del edificio hay edificios adosados con diferentes características. A su vez, al otro lado de la calle se distingue un extremo de la Plaza Pública Federico Degetau. Tiene postes de luz y zonas ajardinadas. La casa alcaldía de Ponce fue construida entre 1846 y 1848 convirtiéndose en el primer edificio gubernamental en el pueblo. A pesar de que el diseño del interior fue alterado en el siglo XX aún conserva su diseño exterior original.

Catedral de Nuestra Señora de la Guadalupe - Ponce - 2013 00004

Catedral de Nuestra Señora de la Guadalupe - Ponce - 2013 00004



Vista frontal de la Catedral de Nuestra Señora de la Guadalupe ubicada en el pueblo costero de Ponce. La catedral es de dos niveles en mampostería y ladrillo con características del estilo Neoclásico. La fachada frontal está dividida en dos tramos. El del segundo nivel tiene ventanas enmarcadas con molduras y coronadas con entablamentos, algunos son semicirculares y el otros triangulares. También tiene cornisas corridas donde descansan ánforas y pares de pilastras que a su vez sostienen el entablamento y un frontón triangular coronado con una cruz. Por otra parte, flanqueando la catedral hay dos torres de campanario divididas en tres tramos por entablamentos. Son de bases cuadradas, el segundo nivel tiene vanos cuadrados enmarcados con molduras salientes, coronados con entablamentos semicirculares y presididos por balaustradas. El tercer tramo muestra ventanas dobles de madera bajo arcos semicirculares que a su vez están enmarcados con molduras, coronados con espinazos y entablamentos. Además, están flanqueados por pares de columnas acanaladas que sostienen el entablamento. El siguiente tramo de la torre es hexagonal y está decorado con cornisas, molduras, un friso con guirnaldas y ánforas. Por otra parte, las cúpulas muestran óculos de vidrio pintado enmarcados con molduras. A su vez, las cúpulas están coronadas con linternas de aberturas semicirculares y cruces. Los inicios de la Catedral de Nuestra Señora de la Guadalupe datan de 1670 cuando apenas era una ermita de yagua y palma, fue clausurada en 1820 por las malas condiciones del edificio. El comienzo de la construcción de la iglesia actual data de 1835 y fue inaugurada en 1839. Sin embargo el terremoto de 1918 destruyó ambas torres por lo que pasó a ser reconstruida con un diseño nuevo entre 1918 y 1937. Años más tarde, en 1984 fue incluida en el Registro Nacional de Lugares Históricos. Posteriormente fue restaurada nuevamente en 1992.

Banco Crédito y Ahorro Ponceño - 2014 00002

Banco Crédito y Ahorro Ponceño - 2014 00002



Vista de cerca del Banco de Crédito y Ahorro Ponceño ubicado frente a la plaza pública en el pueblo costero de Ponce. El edificio es achaflanado, de dos niveles en mampostería y concreto con características del estilo Beaux Arts. Sin embargo, la fachada exterior está dividida en tres niveles. En el primer nivel tiene ventanas bajo arcos semicirculares cubiertas por rejas de hierro, coronadas con espinazos y una puerta bajo un arco semicircular enmarcado con molduras y coronada con un travesaño de cristal. El segundo nivel tiene puertas dobles estilo francés enmarcadas con molduras ornamentales y presididas por balaustradas. Además, están articuladas por pilastras acanaladas de orden corintio que se extienden hasta el nivel adicional sosteniendo un entablamento corrido decorado con guirnaldas, dentículos, una cornisa superior saliente con ménsulas y una inscripción que dice: "Crédito y Ahorro Ponceño". El tercer nivel tiene una barandilla con balaustres entre tres frontones con medallones con vidrieras, el de en medio con un reloj. Todos tienen molduras ornamentales y detalles en relieve. A su vez, el techo es en forma de mansarda. El Banco de Crédito y Ahorro Ponceño se fundó en 1895, sin embargo no es hasta 1924 y 1925 cuando se construye este emblemático edificio. Permaneció en uso continuo hasta 1978 cuando el Banco Popular de Puerto Rico y el Banco Santander compraron las acciones de este. A pesar de eso en 1987 el edificio fue incluido en el Registro Nacional de Lugares Históricos. En adición, desde el 2022 es la sede del medio noticioso La Perla del Sur.

Condado Vanderbilt - San Juan (Condado) - 2013 00148

Condado Vanderbilt - San Juan (Condado) - 2013 00148



Vista de los espacios interiores del Hotel Condado Vanderbilt ubicado en la avenida Ashford del pueblo costero de San Juan. El hotel es de varios niveles con características del estilo resurgimiento español. El interior del baño está revestido de mármol en las paredes y el piso. La pared del extremo izquierdo está revestida por espejos y el resto es de madera con cristal en cuadrados. El extremo opuesto tiene varias puertas de madera enmarcadas creando cubículos. Además, el techo tiene lámparas colgantes de vidrio pintado y al fondo una ventana cubierta por una cortina de tela. El Hotel Condado Vanderbilt fue comisionado en 1917 por Frederick William Vanderbilt. Finalmente el 16 de octubre de 1919 fue inaugurado el primer gran hotel de lujo del Caribe. En el año 1930 fue vendido y pasó a llamarse Hotel Condado, posteriormente en 1940 se convirtió en el primer hotel en la isla en tener un casino. Además, en 1950 volvieron a cambiar su nombre a Condado Beach Hotel y se añadieron habitaciones, salones de actividades y un restaurante. Luego de considerar su demolición fue incluido en el Registro Nacional de Lugares Históricos en el año 1988. Más recientemente fue remodelado entre los años 2008 a 2014 por los arquitectos Thomas S. Marvel y José Marchand Sifre añadiendo dos torres de suites modernas. Además, la planificación y restauración de los espacios estuvo a cargo del Arquitecto Jonathan Parks y la firma SOLSTICE Planning and Architecture. Los diseños interiores estuvieron a cargo del diseñador Jorge Roselló.

Edificio Oliver - Arecibo - 2012 00007

Edificio Oliver - Arecibo - 2012 00007



Vista del edificio Oliver en el pueblo costero de Arecibo. El edificio es de tres niveles con características del estilo neoclásico en concreto armado. La fachada lateral se divide en tramos. Se observa el tercer nivel, tiene aberturas de puertas dobles y ventanas rectangulares de madera y persianas con marcos planos. Las aberturas conducen a un balcón con balaustres. Hay balcones pequeños con esquinas redondas y balcones rectangulares. Entre los balcones hay pilastras acanaladas que sostienen un entablamento con friso ornamental, cornisa corrida y dentículos. Coronando el edificio se divisa un parapeto con balaustrada y ánforas romanas. También se puede ver una extensión de la construcción en menor tamaño con puertas y ventanas de cristal coronado con ánforas. En la esquina biselada se interrumpe el parapeto por un frontispicio curvilíneo decorado con detalles en relieve. El edificio Oliver fue construido en 1914 con fines comerciales y residenciales. Está cimentado en el mismo lugar que en 1765 el gobierno español construyó la Casa del Rey hasta 1913 cuando fue demolida. Este innovador edificio fue el primero en incorporar espacios de vivienda y establecimiento comercial. También fue el primer edificio construido en el pueblo con una entrada achaflanada. Además, su diseño ricamente ornamentado adopta características de la Escuela de Bellas Artes y el estilo tradicional español. A través de los años ha sido utilizado cómo espacio residencial, comercial y sede de varios consulados extranjeros que ocupaban el primer nivel. Fue restaurado en la década de 1980 y todos los espacios asignados para vivienda se convirtieron en espacios comerciales.

Alcaldía de Arecibo - 2014 00003

Alcaldía de Arecibo - 2014 00003



Vista de la Casa Alcaldía del pueblo de Arecibo. El edificio es de dos niveles de mampostería de ladrillo con elementos típicos del estilo neoclásico. Está pintado en tonos salmón y marrón con molduras blancas. La fachada se articula horizontalmente con un basamento rusticado que cubre parte del segundo nivel. En el primer nivel hay tres entradas sobre las cuales se encuentra una inscripción que dice: "Alcaldía". También hay varias ventanas bajo arcos de medio punto. La fachada se divide con cornisas sostenidas por pilastras que se extienden al segundo tramo y sostienen el frontón triangular que corona el edificio. Por otra parte, el nivel superior tiene siete puertas dobles enmarcadas por pilastras esbeltas que flanquean un frontón ciego y curvo. Las puertas de los extremos están encerradas en unos balcones de un tramo y las tres puertas de en medio se conectan con un balcón central de tres tramos sostenidos por ménsulas y encerrados con rejas metálicas ornamentales. Frente al edificio se alzan tres astas con las banderas de Arecibo, Puerto Rico y los Estados Unidos. También se pueden ver vehículos estacionados en la calle. La construcción de la alcaldía de Arecibo data del año 1866 bajo el dominio español en la isla. El primer nivel del edificio era utilizado cómo prisión mientras que en el segundo nivel estaban las oficinas. Tras el terremoto de 1918 la fachada frontal del edificio sufrió derrumbes por lo que fue modificada añadiendo una torre de reloj hasta el año 1978 cuando restauraron el edificio y le devolvieron su diseño original.

Antiguo Acueducto de Río Piedras - Documentación Aérea - San Juan (Río Piedras) - 2013 00016

Antiguo Acueducto de Río Piedras - Documentación Aérea - San Juan (Río Piedras) - 2013 00016



Vista aérea de la casa del superintendente, la casa de bombeo, la casa de filtros y bombas, la residencia de ingenieros y cuidadores y la casa de llaves y esclusas que forman parte del sitio del antiguo acueducto de Río Piedras, en San Juan. Este conjunto de edificios refleja los estilos arquitectónicos de la historia del sitio, entre estos el colonial español, renacimiento clásico, el neoclásico y el estilo bungaló. La casa del superintendente es un edificio de hormigón pintado de azul con cubierta plana con elementos característicos del estilo bungaló. La casa de bombeo es un edificio de mampostería de piedra caliza y ladrillo enyesado, de un piso y con cubierta a dos aguas con paneles de metal corrugado o cinc, diseñado en 1892 por Henry Thomas Granger. Una chimenea de ladrillo con forma cónica octogonal de una altura de 80 pies con elementos neoclásicos se encuentra en la elevación este de la casa de bombeo. La casa de filtros y bombas es un edificio de hormigón armado, de un nivel con forma de "L" y cubierta plana. Este edificio fue diseñado por Carlos del Valle Zeno y construido en 1923 en sustitución de un edificio de madera previo. Al lado, se ubica la residencia de ingenieros y cuidadores diseñada por Fernando Alameda en 1887. Su construcción tuvo lugar entre 1892 y 1894 y se emplearon materiales como la piedra caliza y mampostería. Este edificio, de estilo colonial español, es de una planta rectangular, de un solo piso y una cubierta plana. Además, exhibe vanos arqueados y una cornisa coronada con un parapeto. Después de 1923 el edificio fue alterado para acomodar nuevos usos, entre estos, funcionó como almacén y posteriormente como laboratorio de calidad del agua desde 1923-1980. Al fondo es visible la casa de llaves y esclusas de una planta rectangular, constituido de mampostería de piedra y ladrillos y de estilo colonial español. En un tramo de su fachada exhibe tres aberturas arqueadas. Este edificio de 1894-1896, fue diseñado por Arturo Guerra, basado en el esquema original de Fernando Alameda en 1887 y funcionó como punto de distribución del agua cruda de la presa hasta los estanques de sedimentación. La planificación del histórico Acueducto de Río Piedras inició en 1846 mediante una serie de propuestas y su construcción inició a partir de 1892 con periodos de construcción adicionales que continuaron hacia el temprano siglo XX. La planta operó desde el tardío siglo XIX hasta la década de 1980. El sitio ha estado vacante desde 1980 y es propiedad del Fideicomiso de Conservación de Puerto Rico y está dirigido por la organización local sin fines de lucro "Para La Naturaleza" que utiliza el sitio para actividades de educación ambiental.

Edificios en la calle Presidio en el barrio La Puntilla del Viejo San Juan

Edificios en la calle Presidio en el barrio La Puntilla del Viejo San Juan



Vista hacia los edificios que están ubicados en la calle Presidido del barrio de la Puntilla en el Viejo San Juan. Se observa una calle pavimentada con asfalto que tiene a su derecha una línea de edificios contiguos. Los edificios son construidos en hormigón y algunos en mampostería, muestran influencias de varios estilos arquitectónicos como el resurgimiento, neorenacimiento, Art déco, Beaux arts, y neoárabe. Esto se nota por los elementos arquitectónicos que se pueden ver en sus fachadas. Los edificios tienen balcones con balaustradas, tejadillos, cresterías y remates, cornisas, molduras arquitectónicas, almenas, techos a dos aguas con buhardillas, ventanas dobles de madera, balconeras, y puertas dobles con celosías. Estas edificaciones son residenciales y una de ellas es un taller de mecánica de automóviles y tiene un letrero de establecimiento que dice: "Amador Hnos". Al fondo de la calle se observa el edificio de la Antigua Prisión La Princesa que está pintado de blanco, tiene una cúpula, linterna, y un frontón en la pared de su fachada. Detrás se encuentra una parte de la muralla de defensa que queda a lo largo del Paseo de la Princesa y al fondo un edificio pintado de rosa. Sobresale un edificio a la derecha que está pintado de color blanco y tiene arcos con columnas y mosaicos con influencia morisca. Este edificio solía ser la revista y el periódico llamado El Mundo, posteriormente ha sido un edificio comercial. Alrededor se pueden ver automóviles, aceras, cables de tendido eléctrico, camiones, barriles, alumbrado de calles, antenas, árboles, arbustos y personas. Posteriormente esta área fue convertida en el estacionamiento La Puntilla.

Casa en la Calle Cuevillas 607 - San Juan (Miramar) - 2014 00034

Casa en la Calle Cuevillas 607 - San Juan (Miramar) - 2014 00034



Fachada lateral de la casa en la calle Cuevillas 607, en Miramar, San Juan. Este tramo de la fachada se distingue por los balcones con barandas compuestas de bloques ornamentales. Las ventanas son tipo persianas, de las cuales algunas están protegidas con rejas. Estas ventanas, así como las puertas están acentuadas con una moldura blanca que contrasta con el color rosado de la superficie del edificio. La parte superior de la fachada se caracteriza por un friso ornamental con rosetas seguido de dentículos, una cornisa y modillones. Además, se proyecta un tipo de cubierta a dos aguas o frontón triangular. Esta casa se construyó en 1913 siguiendo influencias del estilo resurgimiento del renacimiento francés o resurgimiento neoclásico francés. Sus dueños originales fueron el juez Luis Méndez Baz y su esposa, María Bagur. Tras visitar Francia, la pareja hizo construir su residencia siguiendo el diseño de un prototipo publicado en Nouvelles Maisons de Campagne, Paris et ses Environs, que mostraba fachadas y planos de casas de campo populares en París. Posteriormente la casa funcionó como residencia y taller para artistas como Lorenzo Homar, Juan Ramón Velázquez, Ada Bobonis y Aaron Salabarrías. Además, los herederos de los dueños originales establecieron una fundación para desarrollar un museo en esta residencia. Entre el 2018 y 2019 se llevó a cabo la restauración del edificio que dio lugar al establecimiento del Museo de Arte y Diseño de Miramar, también conocido como la Casa Rosada.

Condado Vanderbilt - San Juan (Condado) - 2013 00004

Condado Vanderbilt - San Juan (Condado) - 2013 00004



Vista del interior del Hotel Condado Vanderbilt ubicado en la avenida Ashford del pueblo costero de San Juan. El hotel es de varios niveles con características del estilo resurgimiento español. Los espacios interiores tienen el piso cubierto por una alfombra con motivos ornamentales, paredes revestidas de madera con espejos, columnas de mármol, lámparas de pared en cristal y al extremo derecho puertas de madera y cristal. Además, el techo es artesonado y está dividido en cuadrados con profundidad y decorado con lámparas colgantes de cristal. El Hotel Condado Vanderbilt fue comisionado en 1917 por Frederick William Vanderbilt. Finalmente el 16 de octubre de 1919 fue inaugurado el primer gran hotel de lujo del Caribe. En el año 1930 fue vendido y pasó a llamarse Hotel Condado, posteriormente en 1940 se convirtió en el primer hotel en la isla en tener un casino. Además, en 1950 volvieron a cambiar su nombre a Condado Beach Hotel y se añadieron habitaciones, salones de actividades y un restaurante. Luego de considerar su demolición fue incluido en el Registro Nacional de Lugares Históricos en el año 1988. Más recientemente fue remodelado entre los años 2008 a 2014 por los arquitectos Thomas S. Marvel y José Marchand Sifre añadiendo dos torres de suites modernas. Además, la planificación y restauración de los espacios estuvo a cargo del Arquitecto Jonathan Parks y la firma SOLSTICE Planning and Architecture. Los diseños interiores estuvieron a cargo del diseñador Jorge Roselló.

Antiguo Acueducto de Río Piedras - Documentación Aérea - San Juan (Río Piedras) - 2013 00022

Antiguo Acueducto de Río Piedras - Documentación Aérea - San Juan (Río Piedras) - 2013 00022



Vista aérea de la casa de filtros y bombas y la residencia de ingenieros y cuidadores del sitio del antiguo acueducto de Río Piedras, en San Juan. Estos edificios presentan elementos característicos del estilo colonial español. La casa de filtros y bombas se distingue por tener una planta con forma de "L" y una cubierta plana. En una de sus caras presenta vanos cuadrados de los cuales se extienden cilindros de metal los cuales presentan signos de oxidación. Este edificio fue diseñado por Carlos del Valle Zeno y construido en 1923 en sustitución de un edificio de madera previo. Al lado, se ubica la residencia de ingenieros y cuidadores diseñada por Fernando Alameda en 1887. Su construcción tuvo lugar entre 1892 y 1894 y se emplearon materiales como la piedra caliza y mampostería. Este edificio, de estilo colonial español, es de una planta rectangular, de un solo piso y una cubierta plana. Después de 1923 el edificio fue alterado para acomodar nuevos usos, entre estos, funcionó como almacén y posteriormente como laboratorio de calidad del agua desde 1923-1980. La planificación del histórico Acueducto de Río Piedras inició en 1846 mediante una serie de propuestas y su construcción inició a partir de 1892 con periodos de construcción adicionales que continuaron hacia el temprano siglo XX. La planta operó desde el tardío siglo XIX hasta la década de 1980. El sitio ha estado vacante desde 1980 y es propiedad del Fideicomiso de Conservación de Puerto Rico y está dirigido por la organización local sin fines de lucro "Para La Naturaleza" que utiliza el sitio para actividades de educación ambiental.

Condado Vanderbilt - San Juan (Condado) - 2013 00120

Condado Vanderbilt - San Juan (Condado) - 2013 00120



Vista del patio trasero del Hotel Condado Vanderbilt ubicado en la avenida Ashford del pueblo costero de San Juan. El hotel es de varios niveles y características del estilo resurgimiento español. La parte trasera del hotel tiene una extensión moderna con amplios ventanales de cristal modulados por columnas. Además, el patio trasero tiene el piso cubierto por baldosas de cerámica, zonas ajardinadas y macetas decorativas. También hay sombrillas de patio y muebles a juego. El Hotel Condado Vanderbilt fue comisionado en 1917 por Frederick William Vanderbilt. Finalmente el 16 de octubre de 1919 fue inaugurado el primer gran hotel de lujo del Caribe. En el año 1930 fue vendido y pasó a llamarse Hotel Condado, posteriormente en 1940 se convirtió en el primer hotel en la isla en tener un casino. Además, en 1950 volvieron a cambiar su nombre a Condado Beach Hotel y se añadieron habitaciones, salones de actividades y un restaurante. Luego de considerar su demolición fue incluido en el Registro Nacional de Lugares Históricos en el año 1988. Más recientemente fue remodelado entre los años 2008 a 2014 por los arquitectos Thomas S. Marvel y José Marchand Sifre añadiendo dos torres de suites modernas. Además, la planificación y restauración de los espacios estuvo a cargo del Arquitecto Jonathan Parks y la firma SOLSTICE Planning and Architecture. Los diseños interiores estuvieron a cargo del diseñador Jorge Roselló.

Condado Vanderbilt - San Juan (Condado) - 2013 00190

Condado Vanderbilt - San Juan (Condado) - 2013 00190



Vista desde el interior del Hotel Condado Vanderbilt ubicado en la avenida Ashford del pueblo costero de San Juan. El hotel es de varios niveles con características del estilo resurgimiento español. Los espacios interiores están pintados en varios tonos de color rosa. El vestíbulo tiene dos niveles con pisos de mármol en dos colores y patrón ajedrezado. En el primer nivel la nave central se divide de las laterales con arcos rectangulares acompañados con lámparas de pared. En medio hay una escalera es espiral de mármol negro con balaustrada metálica y pasamano de madera. Al pie de esta se puede ver una planta en una maceta y una esfinge sobre una alfombra pequeña. Además, el segundo nivel tiene una nave lateral dividida por balaustradas, puertas dobles de madera y cristal. El Hotel Condado Vanderbilt fue comisionado en 1917 por Frederick William Vanderbilt. Finalmente el 16 de octubre de 1919 fue inaugurado el primer gran hotel de lujo del Caribe. En el año 1930 fue vendido y pasó a llamarse Hotel Condado, posteriormente en 1940 se convirtió en el primer hotel en la isla en tener un casino. Además, en 1950 volvieron a cambiar su nombre a Condado Beach Hotel y se añadieron habitaciones, salones de actividades y un restaurante. Luego de considerar su demolición fue incluido en el Registro Nacional de Lugares Históricos en el año 1988. Más recientemente fue remodelado entre los años 2008 a 2014 por los arquitectos Thomas S. Marvel y José Marchand Sifre añadiendo dos torres de suites modernas. Además, la planificación y restauración de los espacios estuvo a cargo del Arquitecto Jonathan Parks y la firma SOLSTICE Planning and Architecture. Los diseños interiores estuvieron a cargo del diseñador Jorge Roselló.

Teatro Yagüez - Mayagüez - 2011 00010

Teatro Yagüez - Mayagüez - 2011 00010



Lámpara que corona el centro del Teatro Yagüez, localizado entre las calles McKinley y Basora del municipio de Mayagüez. Esta lámpara es de cristal y del tipo de lámpara de araña. Además, es visible la sala principal del teatro que tiene tres niveles y una forma de herradura o en forma de "U". También, resaltan los parapetos de los palcos y los balcones ornamentados con yesería. Al fondo es visible parcialmente el área del escenario. En su origen, en 1909, el teatro fue diseñado y construido de madera, acero y cinc, y se le conoció como la Casa del Arte Sonoro. El dueño original de este teatro fue Francisco Maymón Palmer. En el año 1919 un fuego consumió el edificio. En 1920 se llevó a cabo un nuevo diseño de estilo ecléctico, integrando materiales como el hormigón, la madera, el cristal, el mármol italiano y el yeso para las ornamentaciones. Durante la década de 1950 el teatro mostró signos de deterioro y en el periodo de 1977 a 1984 se llevaron a cabo trabajos de restauración bajo el auspicio del municipio de Mayagüez. Asimismo, durante el periodo de 2002 a 2008 se realizó una tercera restauración al teatro. Este teatro constituye uno de los principales escenarios artísticos y de gran valor histórico en el área oeste de Puerto Rico por acoger a importantes orquestas y compañías de drama y danza. Su arquitectura refleja elementos del neoclásico europeo, el neobarroco y de la arquitectura de principios del siglo XX que se conoció como la Belle Époque.

Antiguo Acueducto de Río Piedras - Documentación Aérea - San Juan (Río Piedras) - 2013 00001

Antiguo Acueducto de Río Piedras - Documentación Aérea - San Juan (Río Piedras) - 2013 00001



Vista aérea de la casa de bombeo, la casa de filtros y bombas, la casa del superintendente y del servicio doméstico que forman parte del antiguo acueducto de Río Piedras, en San Juan. Este conjunto de edificios refleja los estilos arquitectónicos de la historia del sitio. Por ejemplo, la casa de bombeo presenta características del estilo colonial español, mientras que la casa del superintendente y del servicio doméstico exhiben rasgos del estilo bungaló y art déco respectivamente. La casa de bombeo es un edificio de mampostería de piedra caliza y ladrillo enyesado, de un piso y con cubierta a dos aguas con paneles de metal corrugado o cinc, diseñado en 1892 por Henry Thomas Granger. Este edificio, además presenta aberturas de puertas y ventanas rectangulares y pilastras. La casa de bombeo albergaba tres funciones, entre estas, servir como la casa de máquinas, la casa de calderas y el almacenamiento de carbón. Una chimenea de ladrillo con forma cónica octogonal de una altura de 80 pies con elementos neoclásicos se encuentra en la elevación este de la casa de bombeo. Seguidamente, es visible la casa de filtros y bombas que consiste en un edificio de un piso y techo plano con arcos de medio punto y una entrada rectangular, diseñado por Carlos del Valle Zeno y construido en 1923 en sustitución de un edificio de madera previo. Cada arco señala el lugar donde se encontraban los filtros mecánicos. Al fondo resalta un conjunto de edificios de dos pisos correspondientes a la casa del superintendente, el garaje y la casa del personal de servicio doméstico. La casa del superintendente es un edificio de hormigón pintado de azul con cubierta plana y además exhibe un porche, columnas de mampostería, una escalera lateral, ventanas rectangulares y vanos arqueados. El otro edificio del servicio doméstico presenta un color amarillo y también es de dos niveles, con techo plano, un balcón, columnas y ventanas tipo persianas protegidas con rejas. Su fachada presenta elementos art déco simplificados y notables mediante las líneas rectas, el uso de bloques de vidrio, bloques ornamentales. Estos dos edificios están unidos por un garaje pequeño de un piso con techo plano. Ambos también fueron diseñados por el ingeniero Carlos de Valle Zeno. La planificación del histórico Acueducto de Río Piedras inició en 1846 mediante una serie de propuestas y su construcción inició a partir de 1892 con periodos de construcción adicionales que continuaron hacia el temprano siglo XX. La planta operó desde el tardío siglo XIX hasta la década de 1980. El sitio ha estado vacante desde 1980 y es propiedad del Fideicomiso de Conservación de Puerto Rico y está dirigido por la organización local sin fines de lucro "Para La Naturaleza" que utiliza el sitio para actividades de educación ambiental.

Casilla de Camineros - Bayamón - 2011 00036

Casilla de Camineros - Bayamón - 2011 00036



Casilla de Camineros en la Carretera 2, km. 12.7 en Bayamón. Detalle de la fachada de un edificio construido en mampostería y ladrillos y de estilo neoclásico colonial. Se observan una pared de roca caliza expuesta y un hueco rectangular adintelado con molduras rústicas que funciona como ventana. Parte de la pared muestra pintura blanca. El techo de hormigón muestra una cornisa con dentículos y un parapeto en estado de deterioro con algunas plantas creciendo en el borde. Algunas partes del enlucido de las molduras se han desprendido exponiendo los ladrillos. La pared termina en una base de piedra caliza y hormigón. Las Casillas de Camineros fueron construidas durante la última parte del siglo XIX a lo largo de las carreteras principales en Puerto Rico. Estas fueron las residencias de los camineros, trabajadores gubernamentales encargados de brindar mantenimiento a la superficie de la carretera. La mayoría de las casillas fueron abandonadas a finales del siglo XX y las que aún permanecen han enfrentado diferentes destinos. Muchas de ellas se han deteriorado o han sido demolidas y otras han sido destinadas a otros usos. Esta casilla es una de tres construidas en 1882 a lo largo de un tramo de la Carretera número 2 entre Bayamón y Mayagüez. Perteneció originalmente al Departamento de Transportación y Obras Públicas, quien luego la cedió al Instituto de Cultura para ser usada como museo y oficinas de la Cámara de Comercio de Bayamón.

Archivo General - Antiguo Hospital Civil - San Juan (Puerta de Tierra) - 2010 00027

Archivo General - Antiguo Hospital Civil - San Juan (Puerta de Tierra) - 2010 00027



Vista frontal del Archivo General y Biblioteca Nacional de Puerto Rico ubicado en la comunidad de Puerta de Tierra del pueblo costero de San Juan. El edificio es de tres niveles en mampostería y ladrillo con características del estilo neoclásico. Está pintado en tonos de amarillo y color blanco. La fachada frontal tiene zonas estriadas además, tiene ventanas de madera, cristal con persianas y soles truncos bajo arcos de medio punto enmarcados con molduras planas. Las ventanas del segundo nivel están ubicadas sobre molduras salientes. Modulando las ventanas hay pilastras en pares de dos que sostienen una cornisa corrida. La fachada frontal es oblicua y en medio tiene la entrada a través de una puerta doble de cristal bajo un arco de medio punto enmarcado con molduras planas y coronada con un espinazo. Además, flanqueando la entrada hay faroles metálicos, carteles y placas conmemorativas. El antiguo Hospital Civil fue el último edificio erigido por el gobierno Español en la Isla entre los años 1877-1887. A pesar de que fue construido como hospital fue utilizado como Cárcel provincial y posteriormente como destilería. Años más tarde, ante una amenaza de demolición el Instituto de Cultura Puertorriqueña lo adquirió y lo restauró para albergar documentos históricos. A partir del año 1973 trasladaron el Archivo General y la Biblioteca Nacional de Puerto Rico a este espacio. Además, el edificio fue incluido en el Registro Nacional de Lugares Históricos en el año 1976.

Casilla de Camineros - Bayamón - 2011 00013

Casilla de Camineros - Bayamón - 2011 00013



Casilla de Camineros en la Carretera 2, km. 12.7 en Bayamón. Perspectiva de la fachada principal de un edificio construido en mampostería y ladrillos y de estilo neoclásico colonial. Tiene paredes de roca caliza expuestas, cuatro huecos rectangulares adintelados con molduras rústicas que funcionan como ventanas y una puerta con un entablamento en el tope con letras color oro que leen: "Baya_ó_". El techo de hormigón muestra una cornisa con dentículos y un parapeto en estado de deterioro y plantas que sobresalen del borde. Se puede observar parte del patio donde hay varios árboles. Un muro de contención con una cerca de malla de hierro bordea la propiedad y un poste de servicios públicos con cables se encuentra entre la casa y la carretera. La casa está abandonada. Las Casillas de Camineros fueron construidas durante la última parte del siglo XIX a lo largo de las carreteras principales en Puerto Rico. Estas fueron las residencias de los camineros, trabajadores gubernamentales encargados de brindar mantenimiento a la superficie de la carretera. La mayoría de las casillas fueron abandonadas a finales del siglo XX y las que aún permanecen han enfrentado diferentes destinos. Muchas de ellas se han deteriorado o han sido demolidas y otras han sido destinadas a otros usos. Esta casilla es una de tres construidas en 1882 a lo largo de un tramo de la Carretera número 2 entre Bayamón y Mayagüez. Perteneció originalmente al Departamento de Transportación y Obras Públicas, quien luego la cedió al Instituto de Cultura para ser usada como museo y oficinas de la Cámara de Comercio de Bayamón.

Hotel Condado Vanderbilt - 08001110

Hotel Condado Vanderbilt - 08001110



Perspectiva amplia del Hotel Condado Vanderbilt en el distrito urbano, comercial y turístico de Condado, en el Municipio de San Juan. El hotel fue diseñado en 1917 para la familia Vanderbilt, una de las más ricas de la época, por la reconocida firma de arquitectos basada en Nueva York, Warren & Wetmore. Se comenzó a construir en 1918, y se inauguró en 1919. Originalmente fue bautizado como el Hotel Grand Condado Vanderbilt, pero a través de los años cambio a los nombres de: Hotel Condado, Condado Beach Hotel y Hyatt Puerto Rico Hotel. Cuenta con cinco pisos de concreto reforzado y exhibe un estilo del Renacimiento español, combinado con influencias arquitectónicas de los estilos neocoloniales prevalecientes en los estados de la Florida y California en esos tiempos. El edificio tiene la forma de tres rectángulos superpuestos, y en el centro de la fachada principal exhibe una entrada que antes se utilizaba como patio interior y cochera para recibir los invitados. En el primer nivel se observan nueve arcos de medio punto y galerías que sirven como puntos intermedios de transición, permitiendo la exploración simultánea de los espacios interiores y exteriores. Insistiendo en su carácter español esencial, sus constructores emplearon tejas de cerámica en su techo inclinado; las aberturas arqueadas en sus dos primeros niveles; hileras de ventanas rectangulares de vidrio con marco de madera en los tres niveles superiores; y pisos de terrazo, baldosas hidráulicas y mosaicos cerámicos en su interior, realzando sus características particulares con ornamentación heráldica, mitológica y marítima que le otorga al hotel un ambiente palaciego de antaño. A ambos lados del edificio, en los extremos del primer nivel, hay dos secciones con arcos abiertos. En los alrededores del edificio, se observa un camino en la entrada principal y una serie de jardines, acentuados árboles que flanquean la construcción. El Hotel Condado Vanderbilt, el primero de su tipo en Puerto Rico, introdujo influencias de la arquitectura beaux-arts y un enfoque en el turismo de lujo, fomentando el crecimiento del área de Condado como destino turístico. Este desarrollo fue facilitado también por la conexión del Puente Dos Hermanos, facilitando el acceso entre San Juan y Condado. En 1959, el Hotel La Concha se construyó en un terreno justo al este del Condado Vanderbilt que posteriormente formaría parte del conglomerado estatal llamado El Trío Condado, que incluía el edificio del Centro de Convenciones. Pero el Condado Vanderbilt no solo es históricamente significativo como el destino vacacional que transformó la forma en que se practicaba el turismo en Puerto Rico, el hotel estableció el estilo elegante que caracterizaba a la clase alta del Condado e influyó en el diseño de las viviendas que se construyeron posteriormente en esa zona. A pesar de varias remodelaciones y modificaciones en su interior a lo largo de los años con el objetivo de modernizar y adaptarse a las demandas actuales, el hotel ha conservado gran parte de su diseño original en su fachada que lo definen como un ejemplo de principios del siglo XX de la tipología de un Gran Hotel.

Asilo de Beneficencia - San Juan (Viejo San Juan) - 2015 00001

Asilo de Beneficencia - San Juan (Viejo San Juan) - 2015 00001



Antiguo Asilo de Beneficencia localizado en el barrio Ballajá en el Viejo San Juan. Fue inaugurado en 1844 y diseñado por el arquitecto Pedro García y el ingeniero Santiago Cortijo. Su estilo arquitectónico es representativo del neoclásico. Está pintado de color amarillo, blanco, verde y marrón. Se observa que la fachada tiene dos frontones rectilíneos, en uno de ellos se aprecia un alto relieve en el tímpano. La entrada principal tiene en la parte superior cuatro pares de columnas jónicas, balconeras y puertas dobles de madera color verde con arcos de medio punto. En la parte inferior se aprecian cuatro pares de columnas dóricas blancas con puertas dobles color verde y arcos de medio punto. Estas columnas sostienen un entablamento que tiene una inscripción en las metopas. La fachada también tiene cornisas corridas y ventanas dobles de celosía de madera color verde enmarcadas por arcos de medio punto y molduras planas blancas. Frente a la entrada hay un muro escalonado con barandas. El edificio está cercado por unas rejas metálicas sostenidas por varios pilares cuadrados. Posteriormente el antiguo Asilo de Beneficencia fue sede del Instituto de Cultura Puertorriqueña. En el lado izquierdo de la imagen se ve parcialmente el edificio El Bastión, el cual fue construido durante el siglo XIX y sirvió como habitación, almacén y cárcel de las tropas españolas. Está pintado de color blanco. Tiene parapetos y en la entrada principal se aprecian los arcos de ladrillos y un relieve en la parte superior. Pasó a ser un centro cultural autogestionado por la Asociación ACirc, dedicado al desarrollo de las artes. En la imagen también se ve la calle del Morro, parte del Jardín Paseo de Ballajá, una fuente de agua, personas, automóviles, palmas, árboles, farolas y balizas. A distancia se divisa la bahía de San Juan, montañas y la costa de los municipios de Cataño, Toa Baja y Guaynabo.

Iglesia de San Jorge - San Juan (Condado) - 2014 00123

Iglesia de San Jorge - San Juan (Condado) - 2014 00123



Vista desde el interior de la Parroquia San Jorge ubicada en la comunidad de Condado del pueblo costero de San Juan. La iglesia es de dos niveles en hormigón con características del estilo neogótico pintada de color gris y color blanco. El interior está dividido en tres naves, al fondo de la nave central, bajo un ábside semicircular se encuentra el altar. Las paredes tienen pilastras con capiteles decorados con uvas y hojas en relieve. Estás se alzan, sostienen una cornisa corrida y conectan con las molduras que enmarcan el techo abovedado. La pared de fondo tiene un retablo que muestra mosaicos, molduras de color dorado y otras de color blanco. En medio dentro de un óvalo hay una estatua del Sagrado corazón sobre una ménsula. Además, coronando el retablo hay un dosel de mármol con diseños ornamentales de arcos de tres centros, remates decorativos, agujas y una cruz. La iglesia San Jorge fue inaugurada en el año 1920 siendo oficialmente fundada canónicamente en 1924 tras ser desmembrada de las Parroquias San Mateo y Sagrado Corazón. Su diseño inicial estuvo a cargo de la firma Martínez y Lázaro siendo finalizado en dos años. Seis años después se comienza la construcción de los edificios aledaños a la academia San Jorge. Posteriormente en 1940 la fachada fue remodelada por el arquitecto Rafael Carmoega. Más recientemente en el año 2017 fue restaurada en fases por la firma Astrid Díaz: ADV Architects.

Calle de la Fortaleza - San Juan (Viejo San Juan) - 2009 00003

Calle de la Fortaleza - San Juan (Viejo San Juan) - 2009 00003



Edificio Droguería Colonial Inc., ubicado en el número 206 de la calle de la Fortaleza en el Viejo San Juan. Vista en plano contrapicado de la fachada del edificio de cuatro pisos cuyo diseño combina el estilo neocolonial español con detalles reminiscentes del art deco. El primer piso, ocupado por una tienda llamada Hatian Gallery. Tiene cuatro arcos adintelados, tres vitrinas y una entrada que se encuentra en uno de los extremos de la fachada. Los pisos subsiguientes tienen tres ventanas rectangulares cada uno. La ventanas tienen pequeños aleros y una moldura simple en la parte inferior. El espacio entre el alero de las ventanas del segundo piso y la moldura de las ventanas del tercer piso está ornamentado con un diseño estriado. Este patrón se repite entre las ventanas del segundo y tercer piso, también entre el segundo y tercer piso hay un marco en relieve con el nombre del edificio en el interior. Sobre la entrada hay una moldura vertical con un ornamento estriado como el de las ventanas, seguida por una ventana fija con pequeños bloques de vidrio que se extiende hasta el tercer piso. Al lado hay una moldura vertical simple que divide que divide la fachada en dos secciones asimétricas. Sobre las ventanas hay un friso ornamental y una cornisa con ménsulas y tejas. Se divisa un segmento del frontón que corona el edificio. Se pueden ver otros edificios y cadas adosadas a lo largo de la calle, la mayoría de ellos con balcones o antepechos y con locales comerciales en el primer piso.

Teatro Yagüez - Mayagüez - 2011 00033

Teatro Yagüez - Mayagüez - 2011 00033



Detalle de la fachada del Teatro Yagüez, localizado entre las calles McKinley y Basora del municipio de Mayagüez. Desde esta perspectiva resalta un par de columnas del pórtico, las pilastras, una lámpara de pared, las molduras de ovas y dardos, una cornisa, un friso, el sofito del alero con bombillas y las ventanas con vitrales de color verde, amarillo, rojo y azul. Sobre el vitral se proyectan tres cabezas de animales ornamentales tipo mascarón. La superficie del edificio es de color amarillo con detalles de blanco. En su origen, en 1909, el teatro fue diseñado y construido de madera, acero y cinc, y se le conoció como la Casa del Arte Sonoro. El dueño original de este teatro fue Francisco Maymón Palmer. En el año 1919 un fuego consumió el edificio. En 1920 se llevó a cabo un nuevo diseño de estilo ecléctico, integrando materiales como el hormigón, la madera, el cristal, el mármol italiano y el yeso para las ornamentaciones. Durante la década de 1950 el teatro mostró signos de deterioro y en el periodo de 1977 a 1984 se llevaron a cabo trabajos de restauración bajo el auspicio del municipio de Mayagüez. Asimismo, durante el periodo de 2002 a 2008 se realizó una tercera restauración al teatro. Este teatro constituye uno de los principales escenarios artísticos y de gran valor histórico en el área oeste de Puerto Rico por acoger a importantes orquestas y compañías de drama y danza. Su arquitectura refleja elementos del neoclásico europeo, el neobarroco y de la arquitectura de principios del siglo XX que se conoció como la Belle Époque.

Original Drawings - Antiguo Hospital Civil - Archivo General 2010 00027

Original Drawings - Antiguo Hospital Civil - Archivo General 2010 00027



Dibujo arquitectónico del Archivo General y Biblioteca Nacional de Puerto Rico ubicado en la comunidad de Puerta de Tierra del pueblo costero de San Juan. El edificio es de tres niveles con características del estilo neoclásico. El plano muestra la fachada lateral del edificio que tiene dos pisos visibles con características del estilo neoclásico. La fachada lateral tiene una parte del primer nivel con un diseño estriado y ventanas dobles bajo arcos de medio punto enmarcados con molduras. Las ventanas del segundo nivel están coronadas con espinazos y están sobre bases de molduras salientes una de las cuales tienen balaustres. Además, modulando las ventanas hay pilastras que se conectan y se alzan hasta sostener un entablamento con molduras, cornisa y triglifos. Sobre este se proyecta un parapeto bajo con ánforas ubicadas a la par con las pilastras y los triglifos. El antiguo Hospital Civil fue el último edificio erigido por el gobierno Español en la Isla entre los años 1877-1887. A pesar de que fue construido como hospital fue utilizado como Cárcel provincial y posteriormente como destilería. Años más tarde, ante una amenaza de demolición el Instituto de Cultura Puertorriqueña lo adquirió y lo restauró para albergar documentos históricos. A partir del año 1973 trasladaron el Archivo General y la Biblioteca Nacional de Puerto Rico a este espacio. Además, el edificio fue incluido en el Registro Nacional de Lugares Históricos en el año 1976.

Antiguo Acueducto de Río Piedras - Documentación Aérea - San Juan (Río Piedras) - 2013 00017

Antiguo Acueducto de Río Piedras - Documentación Aérea - San Juan (Río Piedras) - 2013 00017



Vista aérea de la casa de bombeo, la casa de filtros y bombas, la residencia de ingenieros y cuidadores y la casa de llaves y esclusas que forman parte del sitio del antiguo acueducto de Río Piedras, en San Juan. Estos edificios reflejan los estilos arquitectónicos de la historia del sitio, entre estos el colonial español, renacimiento clásico y neoclásico. La casa de bombeo es un edificio de mampostería de piedra caliza y ladrillo enyesado, de un piso y con cubierta a dos aguas con paneles de metal corrugado o cinc, diseñado en 1892 por Henry Thomas Granger. Una chimenea de ladrillo con forma cónica octogonal de una altura de 80 pies con elementos neoclásicos se encuentra en la elevación este de la casa de bombeo. La casa de filtros y bombas es un edificio de hormigón armado, de un nivel con forma de "L" y cubierta plana. Este edificio fue diseñado por Carlos del Valle Zeno y construido en 1923 en sustitución de un edificio de madera previo. Al lado, se ubica la residencia de ingenieros y cuidadores diseñada por Fernando Alameda en 1887. Su construcción tuvo lugar entre 1892 y 1894 y se emplearon materiales como la piedra caliza y mampostería. Este edificio, de estilo colonial español, es de una planta rectangular, de un solo piso y una cubierta plana. Después de 1923 el edificio fue alterado para acomodar nuevos usos, entre estos, funcionó como almacén y posteriormente como laboratorio de calidad del agua desde 1923-1980. Al fondo es visible la casa de llaves y esclusas de una planta rectangular, constituido de mampostería de piedra y ladrillos y de estilo colonial español. En un tramo de su fachada exhibe tres aberturas arqueadas. Este edificio de 1894-1896, fue diseñado por Arturo Guerra, basado en el esquema original de Fernando Alameda en 1887 y funcionó como punto de distribución del agua cruda de la presa hasta los estanques de sedimentación. La planificación del histórico Acueducto de Río Piedras inició en 1846 mediante una serie de propuestas y su construcción inició a partir de 1892 con periodos de construcción adicionales que continuaron hacia el temprano siglo XX. La planta operó desde el tardío siglo XIX hasta la década de 1980. El sitio ha estado vacante desde 1980 y es propiedad del Fideicomiso de Conservación de Puerto Rico y está dirigido por la organización local sin fines de lucro "Para La Naturaleza" que utiliza el sitio para actividades de educación ambiental.

Archivo General - Antiguo Hospital Civil - San Juan (Puerta de Tierra) - 2010 00002

Archivo General - Antiguo Hospital Civil - San Juan (Puerta de Tierra) - 2010 00002



Vista frontal y lateral del Archivo General y Biblioteca Nacional de Puerto Rico ubicado en la comunidad de Puerta de Tierra del pueblo costero de San Juan. El edificio es de tres niveles en mampostería y ladrillo con características del estilo neoclásico. Está pintado en tonos de amarillo y color blanco. El primer nivel tiene zonas estriadas además, tiene ventanas de madera color azul y cristal con persianas y soles truncos bajo arcos de medio punto enmarcados con molduras planas. Las del segundo nivel están coronadas con espinazos y al pie tienen molduras salientes a modo de soporte. Modulando las ventanas hay pilastras en pares de dos que sostienen un entablamento corrido y a su vez se alzan y sostienen el entablamento del segundo nivel sobre el cual se proyecta un parapeto bajo. Por otra parte, en las calles aledañas se pueden ver vehículos estacionados. El antiguo Hospital Civil fue el último edificio erigido por el gobierno Español en la Isla entre los años 1877-1887. A pesar de que fue construido como hospital fue utilizado como Cárcel provincial y posteriormente como destilería. Años más tarde, ante una amenaza de demolición el Instituto de Cultura Puertorriqueña lo adquirió y lo restauró para albergar documentos históricos. A partir del año 1973 trasladaron el Archivo General y la Biblioteca Nacional de Puerto Rico a este espacio. Además, el edificio fue incluido en el Registro Nacional de Lugares Históricos en el año 1976.

Banco Popular de Puerto Rico - San Juan (Viejo San Juan) - 2012 00001

Banco Popular de Puerto Rico - San Juan (Viejo San Juan) - 2012 00001



Banco Popular de Puerto Rico localizado en el Viejo San Juan. Fue inaugurado en 1939 y diseñado por el arquitecto Chauncey W. Riley y construido por los ingenieros José Benítez y Gautier, Manuel Miró y Saudí y Juan M. Beltrán Carrasquillo. El banco fue construido donde originalmente se ubicaba el Banco Territorial y Agrícola de Puerto Rico a finales del siglo XIX. En el centro de la imagen se aprecia el Banco Popular de Puerto Rico. Su estilo arquitectónico es representativo del art déco. Está pintado de color crema y blanco. Tiene una fachada curva con ventanas de cristal rectangulares con marcos de metal y voladizos en la parte superior. También se aprecian parapetos con barandas y un letrero que lee: "Banco Popular". En el lado izquierdo de la imagen se ve parcialmente el edificio Finlay, que estuvo localizado donde se encontraba el antiguo edificio del banco Citibank y que luego fue sede de la cervecería Old Harbor Brewery. Este edificio está pintado de color crema y blanco. Tiene molduras, una pilastra acanalada, parasoles, ventanas y puertas de cristal con marcos de metal. En la parte superior se nota un letrero rojo y negro que dice: "Harbor Brewery Lobster House." En lado derecho de la imagen se divisa la parte superior del antiguo edificio del American Colonial Bank que luego fue sede del Banco de Crédito y Ahorro Ponceño. Este fue el primer banco estadounidense establecido en Puerto Rico. Fue construido en 1899 por el contratista Frank Bond Hatch. Posteriormente el edificio fue el Restaurante Triana. Está pintado de color rojo y blanco. Su arquitectura tiene influencias del estilo colonial español, y tiene un alero cubierto de tejas sostenidas por ménsulas. A lo largo de la imagen se ven arbustos, farolas, palmas y automóviles.

Capitolio de Puerto Rico - San Juan (Puerta de Tierra) - 2009 00005

Capitolio de Puerto Rico - San Juan (Puerta de Tierra) - 2009 00005



Vista frontal del Capitolio de Puerto Rico ubicado en la comunidad de Puerta de Tierra del pueblo costero de San Juan. El edificio es de tres niveles con características del estilo neoclásico en hormigón y acero revestido por mármol blanco. Tiene una forma oblicua que permite ver en primer plano un ala lateral de un nivel cobre la cual se proyecta una azotea con balaustrada de mármol y ánforas decorativas. La fachada frontal está dividida en naves, la nave lateral derecha tiene ventanas de cristal bajo arcos rectangulares enmarcadas con molduras, puertas dobles de cristal presididas por antepechos y coronadas con entablamentos. También se puede ver un pórtico sostenido por ocho columnas de órden jónico. Dentro de este se ven varias puertas dobles de madera y cristal coronadas con medallones en bajorrelieve y ventanas de cristal. Las puertas y ventanas están moduladas por pilastras y el techo está decorado con artesonado. Además, se alcanza a ver un extremo de la nave central presidida por un pórtico sostenido por columnas de orden corintio que a su vez sostienen un entablamento corrido que tiene cornisas corridas, molduras y dentículos. A su vez, el borde superior está decorado con molduras y una crestería. Coronando el edificio se alcanza a ver una cúpula rematada con una linterna. En los alrededores del edificio hay espacios de estacionamiento. El Capitolio de Puerto Rico fue construido entre los años 1925 a 1929 utilizando el diseño del arquitecto Puertorriqueño Rafael Carmoega. Ha permanecido en uso continuo y fue expandido añadiendo dos edificios anexos en la década de 1950 trabajo realizado por la firma Toro y Ferrer, Además, fue incluido al Registro Nacional de Lugares históricos en el año 1977 y añadido a la nominación de Distrito Histórico de Puerta de Tierra en el año 2019.

Teatro Yagüez - Mayagüez - 2011 00052

Teatro Yagüez - Mayagüez - 2011 00052



Detalle de las butacas de la sala principal y los palcos del Teatro Yagüez, localizado en las calles McKinley y Basora del municipio de Mayagüez. Las butacas son de color rojo y contrastan con las yeserías ornamentales blancas en los parapetos que delimitan los palcos. Las paredes laterales exhiben paneles de mármol. Además, en el palco del primer nivel es visible una serie de parapetos con paneles de mármol y entre estos se ubican las cortinas rojas. Desde esta perspectiva, la planta del teatro tiene una forma curvada o forma de "U". En su origen, en 1909, el teatro fue diseñado y construido de madera, acero y cinc, y se le conoció como la Casa del Arte Sonoro. El dueño original de este teatro fue Francisco Maymón Palmer. En el año 1919 un fuego consumió el edificio. En 1920 se llevó a cabo un nuevo diseño de estilo ecléctico, integrando materiales como el hormigón, la madera, el cristal, el mármol italiano y el yeso para las ornamentaciones. Durante la década de 1950 el teatro mostró signos de deterioro y en el periodo de 1977 a 1984 se llevaron a cabo trabajos de restauración bajo el auspicio del municipio de Mayagüez. Asimismo, durante el periodo de 2002 a 2008 se realizó una tercera restauración al teatro. Este teatro constituye uno de los principales escenarios artísticos y de gran valor histórico en el área oeste de Puerto Rico por acoger a importantes orquestas y compañías de drama y danza. Su arquitectura refleja elementos del neoclásico europeo, el neobarroco y de la arquitectura de principios del siglo XX que se conoció como la Belle Époque.

Hacienda Santa Ana - Bayamón - 2011 00030

Hacienda Santa Ana - Bayamón - 2011 00030



Hacienda Santa Ana en Bayamón. Perspectiva de la fachada lateral de la casona de la Hacienda. El edificio es de dos niveles construido en mampostería de ladrillos con un estilo arquitectónico ecléctico. Se observan dos volúmenes. El del lado derecho exhibe tejadillos sostenidos por ménsulas encima de ventanas de madera de doble hoja y celosías. En una de las esquinas se puede apreciar un balcón en voladizo con techo en pendiente y rejas de hierro ornamental. En la otra esquina se observan dos arcos que dan acceso a pórticos; el del nivel superior tiene una baranda ornamental de hierro. Láminas blancas de metal sobresalen de la cornisa en el techo plano de cemento. El volumen de la izquierda muestra un techo de cuatro aguas de láminas de zinc. Ambos volúmenes tienen puertas de madera que dan acceso a un pasillo de cemento que los bordea y al patio con grama. Las manchas de humedad en las paredes y en el techo sugieren una propiedad en estado de abandono. La Casona de la Hacienda Santa Ana reside en terrenos conferidos en 1787 por el rey Carlos III al capitán Fernando Fernández, corsario español que rendía servicios a la corona. A partir de 1804, el capitán comenzó a sembrar caña de azúcar y a destilar ron en la propiedad para su uso personal, pero no fue hasta 1880 cuando su bisnieto Pedro Fernández y su hijo Edmundo desarrollaron la fórmula y el proceso de destilación del conocido Ron del Barrilito. Además de la casona, la Hacienda abarca la tonelería, el trapiche, el área de añejamiento y el área de embotellamiento y empaque. Estas instalaciones, que también sirven como museo, continúan produciendo el popular ron, así como el alcoholado medicinal Santa Ana.

Asilo de Beneficencia - San Juan (Viejo San Juan) - 2015 00002

Asilo de Beneficencia - San Juan (Viejo San Juan) - 2015 00002



Antiguo Asilo de Beneficencia localizado en el barrio Ballajá en el Viejo San Juan. Fue inaugurado en 1844 y diseñado por el arquitecto Pedro García y el ingeniero Santiago Cortijo. Su estilo arquitectónico es representativo del neoclásico. Está pintado de color amarillo, blanco, verde y marrón. Se observa que la fachada tiene dos frontones rectilíneos, en uno de ellos se aprecia un alto relieve en el tímpano. La entrada principal tiene en la parte superior cuatro pares de columnas jónicas color blanco, balconeras y puertas dobles de madera color verde con arcos de medio punto. En la parte inferior se aprecian cuatro pares de columnas dóricas pintadas de blanco con puertas dobles de madera color verde y arcos de medio punto. Estas columnas sostienen un entablamento que tiene una inscripción en las metopas. La fachada también tiene cornisas corridas y ventanas dobles de celosía de madera pintadas de verde enmarcadas por arcos de medio punto y molduras planas blancas. Frente a la entrada hay un muro escalonado con barandas. El edificio está cercado por unas rejas metálicas sostenidas por varios pilares cuadrados. Posteriormente el antiguo Asilo de Beneficencia fue sede del Instituto de Cultura Puertorriqueña. Adyacente al edificio se encuentra el antiguo Manicomio Insular. Este edificio está pintado de color amarillo, marrón y blanco. Tiene parapetos, almohadillados, cornisas, ventanas rectangulares y una linterna color terracota coronada con un pináculo. Más adelante al edificio se lo conoce como la Escuela de Artes Plásticas y Diseño. En el lado derecho de la imagen se ve la calle del Morro, parte del Jardín Paseo de Ballajá, una fuente de agua, personas, automóviles, palmas, árboles, farolas y balizas. A distancia se divisa el glacis y el Castillo San Felipe del Morro. Se notan las paredes de mampostería, las troneras, dos garitas y una torre.

Hacienda Santa Ana - Bayamón - 2011 00023

Hacienda Santa Ana - Bayamón - 2011 00023



Hacienda Santa Ana en Bayamón. Vista de la parte posterior de la casona de la Hacienda. El edificio es de dos niveles construidos en mampostería de ladrillos con un estilo arquitectónico ecléctico. Se observan dos volúmenes de hormigón. El del lado derecho exhibe un tejadillo sostenido por una base y dos ménsulas de cemento sobre dos ventanas de madera de doble hoja y celosías. A un lado, se puede contemplar un balcón en voladizo con techo en pendiente y rejas de hierro ornamentales. Láminas blancas de metal sobresalen de la cornisa en el techo plano de cemento. El volumen de la izquierda muestra un techo inclinado. Ambos niveles tienen puertas de madera que dan acceso a un pasillo de cemento que los bordea y al patio con grama. Las manchas de humedad en la pared y en la cornisa sugieren una propiedad en estado de abandono. La Casona de la Hacienda Santa Ana reside en terrenos conferidos en 1787 por el rey Carlos III al capitán Fernando Fernández, corsario español que rendía servicios a la corona. A partir de 1804, el capitán comenzó a sembrar caña de azúcar y a destilar ron en la propiedad para su uso personal, pero no fue hasta 1880 cuando su bisnieto Pedro Fernández y su hijo Edmundo desarrollaron la fórmula y el proceso de destilación del conocido Ron del Barrilito. Además de la casona, la Hacienda abarca la tonelería, el trapiche, el área de añejamiento y el área de embotellamiento y empaque. Estas instalaciones, que también sirven como museo, continúan produciendo el popular ron, así como el alcoholado medicinal Santa Ana.

Condado Vanderbilt - San Juan (Condado) - 2013 00072

Condado Vanderbilt - San Juan (Condado) - 2013 00072



Vista desde el patio trasero del Hotel Condado Vanderbilt ubicado en la avenida Ashford del pueblo costero de San Juan. El hotel es de varios niveles con características del estilo resurgimiento español. En el patio trasero del hotel hay una pérgola que se extiende con el piso de madera y puertas de cristal presididas por una balaustrada que anticipa la costa del océano atlántico. También se distingue el primer nivel de una de las torres laterales del hotel con amplios ventanales de cristal. El Hotel Condado Vanderbilt fue comisionado en 1917 por Frederick William Vanderbilt. Finalmente el 16 de octubre de 1919 fue inaugurado el primer gran hotel de lujo del Caribe. En el año 1930 fue vendido y pasó a llamarse Hotel Condado, posteriormente en 1940 se convirtió en el primer hotel en la isla en tener un casino. Además, en 1950 volvieron a cambiar su nombre a Condado Beach Hotel y se añadieron habitaciones, salones de actividades y un restaurante. Luego de considerar su demolición fue incluido en el Registro Nacional de Lugares Históricos en el año 1988. Más recientemente fue remodelado entre los años 2008 a 2014 por los arquitectos Thomas S. Marvel y José Marchand Sifre añadiendo dos torres de suites modernas. Además, la planificación y restauración de los espacios estuvo a cargo del Arquitecto Jonathan Parks y la firma SOLSTICE Planning and Architecture. Los diseños interiores estuvieron a cargo del diseñador Jorge Roselló.

Edificio en calle Isabel-Muñoz Rivera - Ponce - 2014

Edificio en calle Isabel-Muñoz Rivera - Ponce - 2014



Vista de edificios en la calle Reina Isabel del pueblo costero de Ponce. En primer plano, se distingue un extremo de la plaza pública de Ponce decorada con baldosas de exterior, barandas metálicas, zonas ajardinadas, kioscos de madera y techos de láminas de metal corrugado. Cruzando la calle pavimentada y transitada se distinguen tres edificios adosados. De derecha a izquierda, se distingue un extremo de la Casa Casals, el edificio que le sigue es un establecimiento comercial de dos niveles con características del estilo neoclásico. El primer nivel tiene tres puertas dobles de cristal enmarcadas con molduras planas y coronadas con toldos de tela. La puerta de en medio es de mayor tamaño y sobre el toldo hay una inscripción que dice: “Pizzalato Gelato - Pizza”. Flanqueando la puerta también se distinguen dos inscripciones que dicen: “Pastry”, “Coffee”. El segundo nivel tiene cuatro puertas dobles de madera con celosías enmarcadas con molduras planas coronadas con travesaños y entablamentos sostenidos por ménsulas. Las puertas están precisadas por balcones abiertos, dos sencillos y uno doble con barandas de hierro ornamental sostenidos por ménsulas. El borde superior también tiene un entablamento corrido sobre el cual se proyecta un parapeto bajo decorado con ánforas, un frontón curvilíneo con un óculo y un espinazo. Ahora bien, el edificio continuo también es de dos niveles con características del estilo neoclásico. En el primer nivel se distingue un vano rectangular enmarcado con molduras y coronado con un toldo de tela. A través de este se distingue un mostrador de tienda. Por otra parte, en el segundo nivel se pueden ver cuatro puertas dobles de madera enmarcadas con molduras planas y coronadas con entablamentos sostenidos por molduras y detalles ornamentales en bajorrelieve. Las puertas están presididas por un balcón abierto sostenido por ménsulas y rodeados por barandas de hierro metálicas. Además, el borde superior del edificio está decorado con un entablamento corrido acompañado con cornisas, molduras, dentículos y un friso ornamental estilo greca.

Calle de la Fortaleza 56 - Antigua Real Audiencia - Conservatorio De Artes Del Caribe - San Juan (Viejo San Juan) - 2012 00010

Calle de la Fortaleza 56 - Antigua Real Audiencia - Conservatorio De Artes Del Caribe - San Juan (Viejo San Juan) - 2012 00010



Antigua Real Audiencia, calle de la Fortaleza en el Viejo San Juan. Vista parcial de la Torre Meteorológica y de Observación ubicada en el techo de la casa de dos pisos estilo colonial español. Se ve el área de observación de la torre. Esta parte está construida de madera sobre un armazón de barras de metal y está protegida por una baranda de hierro. Las paredes consisten en una puerta y ventanas con celosías. Tres de las ventanas visibles están rotas, le faltan las celosías. La torre tiene una cúpula cubierta con láminas de metal y tiene un remate esférico. Del remate sale una vara de metal de la que cuelga un cable. Frente a la torre se ve un segmento de un techo con parapeto de poca altura. Se note que el techo fue tratado con algún material impermeabilizante. Tras la torre se ven casa y edificios de la ciudad antigua, entre ellos, el Seminario Conciliar de San Idelfonso y el Cuartel de Ballajá. Originalmente esta casa fue la residencia del Dr. Francisco Oller y Ferrer, abuelo del pintor Francisco Oller y Cestero. En 1831 fue vendida al Estado y el 1832 pasó a ser la primera sede de la Real Audiencia Territorial. Alrededor del 1898 fue arrendada al Departamento de Agricultura de Estados Unidos y en otro momento se usó como Departamento de Estado. En 1992 la edificación fue dedicada a Don Fernando Chardón. Luego de un periodo de abandono fue restaurada en el año 2000 y asignada a las oficinas de Guías Turísticos y de Programas Federales adscritos a la Oficina del Gobernador. La Torre Meteorológica y de Observación fue diseñada por el ingeniero Manuel Maese, la orden para su construcción fue emitida en 1883.

Condado Vanderbilt - San Juan (Condado) - 2013 00114

Condado Vanderbilt - San Juan (Condado) - 2013 00114



Vista del patio trasero del Hotel Condado Vanderbilt ubicado en la avenida Ashford del pueblo costero de San Juan. El hotel es de varios niveles con características del estilo resurgimiento español. El patio trasero tiene el piso cubierto por baldosas de cerámica. Además, está rodeado por una balaustrada de cristal modulada por pilares presidiendo la costa del océano atlántico. Está decorado con plantas en macetas decorativas, muebles de jardín, mesas con sombrillas a juego, remates decorativos con formas cónicas y al fondo se distinguen unas escaleras con pasamanos metálicos. También se puede ver una pérgola con techos de vigas de madera expuestas. El Hotel Condado Vanderbilt fue comisionado en 1917 por Frederick William Vanderbilt. Finalmente el 16 de octubre de 1919 fue inaugurado el primer gran hotel de lujo del Caribe. En el año 1930 fue vendido y pasó a llamarse Hotel Condado, posteriormente en 1940 se convirtió en el primer hotel en la isla en tener un casino. Además, en 1950 volvieron a cambiar su nombre a Condado Beach Hotel y se añadieron habitaciones, salones de actividades y un restaurante. Luego de considerar su demolición fue incluido en el Registro Nacional de Lugares Históricos en el año 1988. Más recientemente fue remodelado entre los años 2008 a 2014 por los arquitectos Thomas S. Marvel y José Marchand Sifre añadiendo dos torres de suites modernas. Además, la planificación y restauración de los espacios estuvo a cargo del Arquitecto Jonathan Parks y la firma SOLSTICE Planning and Architecture. Los diseños interiores estuvieron a cargo del diseñador Jorge Roselló.

Antiguo Acueducto de Río Piedras - Documentación Aérea - San Juan (Río Piedras) - 2013 00002

Antiguo Acueducto de Río Piedras - Documentación Aérea - San Juan (Río Piedras) - 2013 00002



Vista aérea de la casa de filtros y bombas y la residencia de ingenieros y cuidadores que forman parte del sitio del antiguo acueducto de Río Piedras, en San Juan. Este conjunto de edificios refleja los estilos arquitectónicos de la historia del sitio, entre estos el colonial español, renacimiento clásico y neoclásico. La casa de filtros y bombas es un edificio de hormigón armado, de un nivel con forma de "L" y cubierta plana. Este edificio fue diseñado por Carlos del Valle Zeno y construido en 1923 en sustitución de un edificio de madera previo. Al lado, se ubica la residencia de ingenieros y cuidadores diseñada por Fernando Alameda en 1887. Su construcción tuvo lugar entre 1892 y 1894 y se emplearon materiales como la piedra caliza y mampostería. Este edificio, de estilo colonial español, es de una planta rectangular, de un solo piso y una cubierta plana. Además, exhibe vanos arqueados y rectangulares protegidos con aleros y una cornisa coronada con un parapeto. Después de 1923 el edificio fue alterado para acomodar nuevos usos, entre estos, funcionó como almacén y posteriormente como laboratorio de calidad del agua desde 1923-1980. Una chimenea de ladrillo con forma cónica octogonal de una altura de 80 pies con elementos neoclásicos se encuentra en la elevación este de la casa de bombeo. La casa de bombeo es un edificio de mampostería de piedra caliza y ladrillo enyesado, de un piso y con cubierta a dos aguas con paneles de metal corrugado o cinc, diseñado en 1892 por Henry Thomas Granger. En los laterales presenta vanos rectangulares. La planificación del histórico Acueducto de Río Piedras inició en 1846 mediante una serie de propuestas y su construcción inició a partir de 1892 con periodos de construcción adicionales que continuaron hacia el temprano siglo XX. La planta operó desde el tardío siglo XIX hasta la década de 1980. El sitio ha estado vacante desde 1980 y es propiedad del Fideicomiso de Conservación de Puerto Rico y está dirigido por la organización local sin fines de lucro "Para La Naturaleza" que utiliza el sitio para actividades de educación ambiental.

Edificio Oliver - Arecibo - 2012 00008

Edificio Oliver - Arecibo - 2012 00008



Vista lateral de parte del edificio Oliver en el pueblo costero de Arecibo. En primer plano, se divisa una cerca de concreto con rejas metálicas y vehículos estacionados en la calle pavimentada. El edificio es de tres niveles con características del estilo neoclásico en concreto armado. La fachada lateral se divide en varios tramos horizontalmente, la planta base y dos plantas superiores. La planta base tiene entradas bajo arcos semicirculares enmarcados con molduras. Además, los arcos están cubiertos por rejas metálicas. El segundo y tercer nivel tienen puertas dobles de madera y ventanas con persianas rectangulares con marcos planos. Las puertas conducen a un balcón con balaustres sostenidos por ménsulas decorativas. Hay balcones de un tramo con esquinas redondeadas y balcones de dos tramos rectangulares. Flanqueando los balcones hay pilastras acanaladas sostenidas por una cornisa corrida y bajo las cuales hay una serie de cabezas de leones en relieve. El edificio Oliver fue construido en 1914 con fines comerciales y residenciales. Está cimentado en el mismo lugar que en 1765 el gobierno español construyó la Casa del Rey hasta 1913 cuando fue demolida. Este innovador edificio fue el primero en incorporar espacios de vivienda y establecimiento comercial. También fue el primer edificio construido en el pueblo con una entrada achaflanada. Además, su diseño ricamente ornamentado adopta características de la Escuela de Bellas Artes y el estilo tradicional español. A través de los años ha sido utilizado cómo espacio residencial, comercial y sede de varios consulados extranjeros que ocupaban el primer nivel. Fue restaurado en la década de 1980 y todos los espacios asignados para vivienda se convirtieron en espacios comerciales.

Casa Dr. Agustín Stahl Stamm - Bayamón - 2011 00024

Casa Dr. Agustín Stahl Stamm - Bayamón - 2011 00024



Casa Dr. Agustín Stahl Stamm en Bayamón. Vista oblicua de la fachada principal de la casa. Tiene paredes de mampostería de ladrillo recubiertas con estuco y está orientada hacia la calle José Martí. Presenta una disposición simétrica con tres puertas dobles de madera, cada una protegida por rejas de hierro y rematada con una cornisa decorativa. Las tres muestran paneles de vidrio idénticos para permitir la entrada de luz natural. Las puertas en los extremos izquierdo y derecho de la puerta central tienen celosías de madera. El techo tiene un parapeto y una cornisa que recorre toda la fachada. Sobre la cornisa de la puerta hay un letrero que dice: "Baya Empresas". También se observan dos lámparas de pared a los lados de la puerta y edificios de cemento a los lados. En la calle hay cables eléctricos colgando y automóviles estacionados. La casa, construida en la década de 1840, exhibe características arquitectónicas neoclásicas y no solo fue la residencia del internacionalmente reconocido científico puertorriqueño Agustín Stahl (1842-1917), sino que también sirvió de consultorio médico, laboratorio y almacén para sus colecciones de historia natural y antropología. Fue adquirida y parcialmente restaurada por la Alcaldía de Bayamón en el año 2000, quien posteriormente la convirtió en museo. Aunque no existen planos históricos de la planta de la casa, durante el proceso de restauración no se realizó ninguna modificación y se conservó así su integridad en los materiales, la distribución espacial, ubicación y su ambiente.

Edificio de imprenta, papelería y litografía en la calle Marina del Viejo San Juan

Edificio de imprenta, papelería y litografía en la calle Marina del Viejo San Juan



Edificios ubicados en la calle Marina del Viejo San Juan. Se observan cuatro edificios que están localizados frente a una calle extensa. La edificación que está en el centro es una imprenta y papelería que está pintada de color blanco, mostaza y terracota, tiene en su fachada pilastras, cornisas, molduras y un toldo de capota color verde en una de sus entradas. Una sección del edificio funciona como un establecimiento aparte y es un club nocturno. En su entrada hay un letrero que dice: "Bay View Host Club". En el 1915 este edificio fue un cine llamado Tres Banderas. Luego le sigue una edificación que era una compañía aseguradora llamada Inter-American Insurance Agency, es de color gris oscuro y gris claro, sus ventanas son de guillotina de vidrio y posee puertas de madera. A la izquierda se encuentran el edificio Badrena, este es de dos tonos diferentes de gris, tiene un letrero en una de sus paredes que dice: "Dole" de color rojo. Hay aberturas rectangulares y cuadradas en las que tiene colocadas ventanas de persiana que son de vidrio. El que se encuentra a la extrema izquierda es el edificio Ochoa que tiene influencia de estilo arquitectónico del neo-renacimiento, es de color crema con toques de verde claro, tiene ventanas de metal con persianas en vidrio, arcos en la fachada del primer piso, y ornamentos en mosaico en los capiteles de cada pilastra. En los alrededores se ve una calle pavimentada de concreto, unas antenas en algunos techos, un callejón, aceras, contenedores de barril encima de unas paletas de madera, cables de tendido eléctrico, un automóvil, y árboles. Posteriormente este grupo de edificios contiguos al edificio Ochoa, se convirtieron en un solo edificio en el que hay una farmacia La Caridad, la tienda Polo Ralph Lauren y un condominio de apartamentos de lujo llamado Harbor Plaza.

Condado Vanderbilt - San Juan (Condado) - 2013 00107

Condado Vanderbilt - San Juan (Condado) - 2013 00107



Vista del patio trasero del Hotel Condado Vanderbilt ubicado en la avenida Ashford del pueblo costero de San Juan. El hotel es de varios niveles y características del estilo resurgimiento español. La parte trasera del hotel tiene una extensión moderna con amplios ventanales de cristal modulados por columnas. Además, el patio trasero tiene el piso cubierto por baldosas de cerámica, zonas ajardinadas, figuras decorativas y macetas decorativas. También hay sombrillas de patio y muebles a juego. El Hotel Condado Vanderbilt fue comisionado en 1917 por Frederick William Vanderbilt. Finalmente el 16 de octubre de 1919 fue inaugurado el primer gran hotel de lujo del Caribe. En el año 1930 fue vendido y pasó a llamarse Hotel Condado, posteriormente en 1940 se convirtió en el primer hotel en la isla en tener un casino. Además, en 1950 volvieron a cambiar su nombre a Condado Beach Hotel y se añadieron habitaciones, salones de actividades y un restaurante. Luego de considerar su demolición fue incluido en el Registro Nacional de Lugares Históricos en el año 1988. Más recientemente fue remodelado entre los años 2008 a 2014 por los arquitectos Thomas S. Marvel y José Marchand Sifre añadiendo dos torres de suites modernas. Además, la planificación y restauración de los espacios estuvo a cargo del Arquitecto Jonathan Parks y la firma SOLSTICE Planning and Architecture. Los diseños interiores estuvieron a cargo del diseñador Jorge Roselló.

Calle de la Fortaleza 56 - Antigua Real Audiencia - Conservatorio De Artes Del Caribe - San Juan (Viejo San Juan) - 2011 00

Calle de la Fortaleza 56 - Antigua Real Audiencia - Conservatorio De Artes Del Caribe - San Juan (Viejo San Juan) - 2011 00



Antigua Real Audiencia, calle de la Fortaleza en el Viejo San Juan. Vista parcial de la fachada de la casa de dos pisos estilo colonial español. En el primer nivel se observan cuatro arcos adintelados: la entrada principal en el centro, una puerta y una ventana a un lado y una ventana al otro lado. La entrada tiene tres escalones. Las ventanas y la puerta del extremo tienen antepechos de balaustres de madera y sobre cada una hay un óculo ovalado. Una moldura continua se extiende sobre la base del edificio y alrededor de la entrada, esta solo es interrumpida sobre la puerta del extremo. A los lados de la entrada hay dos lámparas de techo tipo farol y bajo una de la lámparas hay una placa conmemorativa. Un extenso balcón abierto con balaustrada de madera une los cinco vanos del segundo nivel, de los cuales solo cuatro son visibles. Cada vano tiene una puerta de doble hoja con celosías y paneles de vidrio en la parte superior. La casa tiene una hilada seguida por una cornisa delgada y un parapeto liso con moldura en el borde. Hacia uno de los lado del techo se divisa parte de la Torre Meteorológica y de Observación. Tras la torre se pueden ver partes de dos edificios cercanos. Son visibles un tramo de la acera pavimentada con losetas, tres balizas de metal y un pequeño segmento de la calle, pavimentada con adoquines. Originalmente esta casa fue la residencia del Dr. Francisco Oller y Ferrer, abuelo del pintor Francisco Oller y Cestero. En 1831 fue vendida al Estado y el 1832 pasó a ser la primera sede de la Real Audiencia Territorial. Alrededor del 1898 fue arrendado al Departamento de Agricultura de Estados Unidos y en otro momento se usó como Departamento de Estado. En 1992 la edificación fue dedicada a Don Fernando Chardón. Luego de un periodo de abandono fue restaurada en el año 2000 y asignada a las oficinas de Guías Turísticos y de Programas Federales adscritos a la Oficina del Gobernador. La Torre Meteorológica y de Observación fue diseñada por el ingeniero Manuel Maese, la orden para su construcción fue emitida en 1883.

Original Drawings - Antiguo Hospital Civil - Archivo General 2010 00023

Original Drawings - Antiguo Hospital Civil - Archivo General 2010 00023



Dibujo arquitectónico del Archivo General y Biblioteca Nacional de Puerto Rico ubicado en la comunidad de Puerta de Tierra del pueblo costero de San Juan. El edificio es de tres niveles con características del estilo neoclásico. El dibujo muestra la fachada lateral del edificio que tiene tres pisos con características del estilo neoclásico. La fachada lateral tiene una parte del primer nivel con un diseño estriado y ventanas dobles bajo arcos de medio punto enmarcados con molduras. Las ventanas del segundo nivel están coronadas con espinazos y están sobre bases de molduras salientes una de las cuales tienen balaustres. Además, modulando las ventanas hay pilastras que se conectan y se alzan hasta sostener un entablamento con molduras, cornisa y triglifos. Sobre este se proyecta un parapeto bajo con ánforas ubicadas a la par con las pilastras y los triglifos. El antiguo Hospital Civil fue el último edificio erigido por el gobierno Español en la Isla entre los años 1877-1887. A pesar de que fue construido como hospital fue utilizado como Cárcel provincial y posteriormente como destilería. Años más tarde, ante una amenaza de demolición el Instituto de Cultura Puertorriqueña lo adquirió y lo restauró para albergar documentos históricos. A partir del año 1973 trasladaron el Archivo General y la Biblioteca Nacional de Puerto Rico a este espacio. Además, el edificio fue incluido en el Registro Nacional de Lugares Históricos en el año 1976.

Parroquia San Miguel Arcángel - Cabo Rojo - 2011 00014

Parroquia San Miguel Arcángel - Cabo Rojo - 2011 00014



Fachada de la Parroquia San Miguel Arcángel, ubicada en Cabo Rojo. La entrada está compuesta por un arco de tres centros flanqueado por pilastras que sostienen un frontón triangular con dentículos. La transición hacia el segundo nivel está acentuada por una hilada volada y un par de cornisas elevadas por pilastras. También son notables los óculos y las ventanas con hojas de cristal y con forma de arco de medio punto. En un extremo del segundo nivel de la fachada destaca un frontón triangular con dentículos coronado con una cruz, mientras que en el lado opuesto sobresale la torre de la iglesia, en cuyo campanario se exhiben arcos, relojes, molduras y una cúpula. La parroquia está rodeada por una cerca articulada por una balaustrada interrumpida por pilares con remates y un portón. En la parte del frente se ubica un monumento con la estatua que conmemora al escritor, político e historiador puertorriqueño Salvador Brau Asencio. También es visible una camioneta y un poste de luz. Las superficies de la parroquia presentan tonalidades de amarillo y castaño claro. La Parroquia San Miguel Arcángel fue designada monumento histórico bajo la Ley Número 150 del 18 de junio de 2004. Su historia está vinculada a la fundación del pueblo de Cabo Rojo mediante Orden Real del rey Carlos III del 17 de diciembre de 1771. A partir del 29 de septiembre de 1783 esta iglesia se dedica al patrono de San Miguel Arcángel y dos años más tarde inició la construcción del templo. En esta iglesia, además, se encuentran las actas de nacimiento de Ramón Emeterio Betances, Salvador Brau Asencio y el legendario pirata Cofresí. En su bicentenario se sembró un árbol de guayacán al costado de la Plaza de Recreo.

Condado Vanderbilt - San Juan (Condado) - 2013 00207

Condado Vanderbilt - San Juan (Condado) - 2013 00207



Vista desde el interior del Hotel Condado Vanderbilt ubicado en la avenida Ashford del pueblo costero de San Juan. El hotel es de varios niveles con características del estilo resurgimiento español. Los espacios interiores están pintados en varios tonos de color rosa. El vestíbulo tiene dos niveles con pisos de mármol con motivo ajedrezado, techos abovedados y lámparas de pared metálicas a juego con las del techo. La nave lateral derecha tiene corredores. Los espacios están separados con vanos semicirculares en el segundo nivel y balaustradas de hierro ornamental con pasamanos de madera. Además, la pared del fondo en la llave central está revestida por un espejo. El del primer nivel tiene vanos rectangulares sin balaustrada. También se pueden ver unas escaleras es espiral de mármol negro y una esfinge sore una alfombra al pie de la escalera. La escalera tiene una balaustrada de hierro ornamental con pasamano de madera alineada con un pasamano metálico en la pared. El Hotel Condado Vanderbilt fue comisionado en 1917 por Frederick William Vanderbilt. Finalmente el 16 de octubre de 1919 fue inaugurado el primer gran hotel de lujo del Caribe. En el año 1930 fue vendido y pasó a llamarse Hotel Condado, posteriormente en 1940 se convirtió en el primer hotel en la isla en tener un casino. Además, en 1950 volvieron a cambiar su nombre a Condado Beach Hotel y se añadieron habitaciones, salones de actividades y un restaurante. Luego de considerar su demolición fue incluido en el Registro Nacional de Lugares Históricos en el año 1988. Más recientemente fue remodelado entre los años 2008 a 2014 por los arquitectos Thomas S. Marvel y José Marchand Sifre añadiendo dos torres de suites modernas. Además, la planificación y restauración de los espacios estuvo a cargo del Arquitecto Jonathan Parks y la firma SOLSTICE Planning and Architecture. Los diseños interiores estuvieron a cargo del diseñador Jorge Roselló.

Casa El Castillo estilo renacimiento colonial español

Casa El Castillo estilo renacimiento colonial español



Vista lateral de casa estilo Resurgimiento Colonial Español ubicada en el pueblo de Barranquitas. La vivienda es de concreto y el techo, que está cubierto por tejado, es a dos aguas. En el primer nivel, la residencia tiene un jardín y plantas en macetas decorativas. En el extremo izquierdo tiene un espacio abierto sostenido por columnas. Se observa una puerta doble de madera con cristal y una ventana cubierta por una reja metálica ornamental. Además, tiene dos arcos de medio punto sostenidos por una columna, bajo los cuales hay escaleras cubiertas por losas nativas. En el extremo derecho, se encuentra una balconera rodeada por una baranda de reja metálica ornamental. Allí, hay una puerta doble, en madera y cristal, rodeada por molduras. En el segundo nivel hay ventanas dobles en madera y cristal; sobre las ventanas hay un alero cubierto por tejas y está sostenido por ménsulas de madera. En el extremo derecho tiene un balcón más amplio rodeado por una baranda, en madera, sostenida por columnas finas de la misma composición. El balcón está sostenido por ménsulas en madera y tiene un alero cubierto por tejado. Bajo el balcón hay dos ventanas de diferentes tamaños cubiertas por rejas metálicas ornamentales. En la parte superior, se observa un ático de menor tamaño con un balcón, sostenido por ménsulas metálicas ornamentales, sin techo; el cual tiene una baranda de reja metálica ornamental. Posee dos puertas dobles en madera y cristal, sobre las cuales hay pequeños aleros.

Condado Vanderbilt - San Juan (Condado) - 2013 00134

Condado Vanderbilt - San Juan (Condado) - 2013 00134



Vista desde el balcón frontal del Hotel Condado Vanderbilt ubicado en la avenida Ashford del pueblo costero de San Juan. El hotel es de varios niveles y características del estilo resurgimiento español. La fachada frontal del hotel tiene ventanas dobles de cristal, puertas dobles bajo arcos semicirculares presididas por antepechos y un entablamento corrido. También se distingue una de las ventanas coronada con un entablamento triangular. Además, la fachada frontal está presidida por una entrada vehicular y zonas ajardinadas. Por otra parte, al extremo izquierdo se distingue una de las torres laterales del hotel con ventanas sobres de cristal enmarcadas con molduras, balcones con balaustradas de cristal dentro de los cuales hay más ventanas y puertas enmarcadas con molduras. El primer nivel de la torre tiene acceso a un estacionamiento subterráneo. El Hotel Condado Vanderbilt fue comisionado en 1917 por Frederick William Vanderbilt. Finalmente el 16 de octubre de 1919 fue inaugurado el primer gran hotel de lujo del Caribe. En el año 1930 fue vendido y pasó a llamarse Hotel Condado, posteriormente en 1940 se convirtió en el primer hotel en la isla en tener un casino. Además, en 1950 volvieron a cambiar su nombre a Condado Beach Hotel y se añadieron habitaciones, salones de actividades y un restaurante. Luego de considerar su demolición fue incluido en el Registro Nacional de Lugares Históricos en el año 1988. Más recientemente fue remodelado entre los años 2008 a 2014 por los arquitectos Thomas S. Marvel y José Marchand Sifre añadiendo dos torres de suites modernas. Además, la planificación y restauración de los espacios estuvo a cargo del Arquitecto Jonathan Parks y la firma SOLSTICE Planning and Architecture. Los diseños interiores estuvieron a cargo del diseñador Jorge Roselló.

Condado Vanderbilt - San Juan (Condado) - 2013 00027

Condado Vanderbilt - San Juan (Condado) - 2013 00027



Vista del interior del Hotel Condado Vanderbilt ubicado en la avenida Ashford del pueblo costero de San Juan. El hotel es de varios niveles con características del estilo resurgimiento español. Los espacios interiores tienen los pisos de mármol en dos colores, techos abovedados, lámparas colgantes y puertas dobles de cristal bajo arcos semicirculares acompañados por cortinas de tela. El pasillo está decorado con bancos, cuadros decorativos y un espejo con un marco ornamentado. El Hotel Condado Vanderbilt fue comisionado en 1917 por Frederick William Vanderbilt. Finalmente el 16 de octubre de 1919 fue inaugurado el primer gran hotel de lujo del Caribe. En el año 1930 fue vendido y pasó a llamarse Hotel Condado, posteriormente en 1940 se convirtió en el primer hotel en la isla en tener un casino. Además, en 1950 volvieron a cambiar su nombre a Condado Beach Hotel y se añadieron habitaciones, salones de actividades y un restaurante. Luego de considerar su demolición fue incluido en el Registro Nacional de Lugares Históricos en el año 1988. Más recientemente fue remodelado entre los años 2008 a 2014 por los arquitectos Thomas S. Marvel y José Marchand Sifre añadiendo dos torres de suites modernas. Además, la planificación y restauración de los espacios estuvo a cargo del Arquitecto Jonathan Parks y la firma SOLSTICE Planning and Architecture. Los diseños interiores estuvieron a cargo del diseñador Jorge Roselló.

Calle de la Fortaleza 56 - Antigua Real Audiencia - Conservatorio De Artes Del Caribe - San Juan (Viejo San Juan) - 2011 00076

Calle de la Fortaleza 56 - Antigua Real Audiencia - Conservatorio De Artes Del Caribe - San Juan (Viejo San Juan) - 2011 00076



Antigua Real Audiencia, calle de la Fortaleza en el Viejo San Juan. Vista desde la Torre Meteorológica y de Observación ubicada en el techo de la casa de dos pisos estilo colonial español. Se observa parte del techo de una edificación contigua que está ocupado casi en su totalidad por componentes de un sistema de acondicionamiento de aire, en su mayoría conductos. Además se ve parte de un edificio multipisos que está al lado de a casa del que se puede ver parte de la fachada que tiene una ventana de vidrio de gran tamaño. también se ve parte de su techo que tiene una antena y dos sillas reclinables para tomar sol. Al fondo se ve la bahía de San Juan. Originalmente esta casa fue la residencia del Dr. Francisco Oller y Ferrer, abuelo del pintor Francisco Oller y Cestero. En 1831 fue vendida al Estado y el 1832 pasó a ser la primera sede de la Real Audiencia Territorial. Alrededor del 1898 fue arrendada al Departamento de Agricultura de Estados Unidos y en otro momento se usó como Departamento de Estado. En 1992 la edificación fue dedicada a Don Fernando Chardón. Luego de un periodo de abandono fue restaurada en el año 2000 y asignada a las oficinas de Guías Turísticos y de Programas Federales adscritos a la Oficina del Gobernador. La Torre Meteorológica y de Observación fue diseñada por el ingeniero Manuel Maese, la orden para su construcción fue emitida en 1883.

Antiguo Acueducto de Río Piedras - Documentación Aérea - San Juan (Río Piedras) - 2013 00033

Antiguo Acueducto de Río Piedras - Documentación Aérea - San Juan (Río Piedras) - 2013 00033



Vista aérea del río Piedras y el sitio del antiguo acueducto de Río Piedras en San Juan. Desde esta perspectiva es visible un muro en el río que conforma un tipo de represa. Además, es notable la casa de llaves y esclusas cuyo edificio es de una planta rectangular, constituido de mampostería de piedra y ladrillos y de estilo colonial español. Este edificio de 1894-1896, fue diseñado por Arturo Guerra, basado en el esquema original de Fernando Alameda en 1887 y funcionó como punto de distribución del agua cruda de la presa hasta los estanques de sedimentación. De manera parcial, también es visible el techo plano de la residencia de ingenieros y cuidadores diseñada por Fernando Alameda en 1887. Su construcción tuvo lugar entre 1892 y 1894 y se emplearon materiales como la piedra caliza y mampostería. Este edificio, de estilo colonial español, es de una planta rectangular, de un solo piso y una cubierta plana. Después de 1923 el edificio fue alterado para acomodar nuevos usos, entre estos, funcionó como almacén y posteriormente como laboratorio de calidad del agua desde 1923-1980. Al lado, se encuentra la casa de filtros y bombas y se distingue por ser un edificio de hormigón armado, de un nivel con forma de "L" y cubierta plana. Este edificio fue diseñado por Carlos del Valle Zeno y construido en 1923 en sustitución de un edificio de madera previo. Al fondo, al lado del río Piedras se encuentra un estacionamiento con varios automóviles. La planificación del histórico Acueducto de Río Piedras inició en 1846 mediante una serie de propuestas y su construcción inició a partir de 1892 con periodos de construcción adicionales que continuaron hacia el temprano siglo XX. La planta operó desde el tardío siglo XIX hasta la década de 1980. El sitio ha estado vacante desde 1980 y es propiedad del Fideicomiso de Conservación de Puerto Rico y está dirigido por la organización local sin fines de lucro "Para La Naturaleza" que utiliza el sitio para actividades de educación ambiental.

Calle Fortaleza 353 - Sanatorio de la Sociedad Esp

Calle Fortaleza 353 - Sanatorio de la Sociedad Esp



Calle de La Fortaleza número 353, Viejo San Juan. Dibujo arquitectónico de la fachada del edificio de tres pisos estilo neoclásico. En el diseño de esta fachada son evidentes la simetría y la repetición de elementos característicos de este estilo. En el primer nivel se destacan dos arcos apuntados geminados con tres columnas estriadas con capiteles ornamentados y bases cuadrangulares. Sobre las columnas hay dos molduras cóncavas en forma de conchas. A los lados hay dos puertas de doble hoja coronadas con molduras de guirnalda. Molduras horizontales equidistantes completan la ornamentación del primer nivel. El segundo nivel tiene tres arcos adintelados con puertas de celosías, el del centro más ancho que los laterales. Cada uno tiene un balcón con balaustres. En el tercer nivele se repiten los elementos del segundo con la diferencia de que los arcos son de medio punto, laas puertas tienen montantes y los balcones tienen barandas de hierro. Hay cuatro pilastras que se extienden del segundo al tercer nivel sobre la pared con almohadillado. Arriba de las pilastras hay un friso. El coronamiento del edificio incluye una cornisa con dentículos sostenida por seis ménsulas, un parapeto con balaustres y un pequeño frontón. Este edificio se encuentra en la localidad donde se estableció, en 1883, el Sanatorio de la Sociedad Española de Auxilio Mutuo y Beneficencia, institución que en 1910 se trasformó en el Hospital Auxilio Mutuo.

Teatro Yagüez - Mayagüez - 2011 00058

Teatro Yagüez - Mayagüez - 2011 00058



Perspectiva de la sala principal y la lámpara de cristal del Teatro Yagüez, localizado entre las calles McKinley y Basora del municipio de Mayagüez. La sala tiene tres niveles y una forma de "U" o forma de herradura. Las butacas son rojas y los palcos están delimitados por parapetos ornamentados con bajorrelieves de color blanco. Del centro del techo cuelga una gran lámpara de cristal tipo araña. Al fondo, en el tercer nivel, se encuentra la cabina de control de iluminación. En su origen, en 1909, el teatro fue diseñado y construido de madera, acero y cinc, y se le conoció como la Casa del Arte Sonoro. El dueño original de este teatro fue Francisco Maymón Palmer. En el año 1919 un fuego consumió el edificio. En 1920 se llevó a cabo un nuevo diseño de estilo ecléctico, integrando materiales como el hormigón, la madera, el cristal, el mármol italiano y el yeso para las ornamentaciones. Durante la década de 1950 el teatro mostró signos de deterioro y en el periodo de 1977 a 1984 se llevaron a cabo trabajos de restauración bajo el auspicio del municipio de Mayagüez. Asimismo, durante el periodo de 2002 a 2008 se realizó una tercera restauración al teatro. Este teatro constituye uno de los principales escenarios artísticos y de gran valor histórico en el área oeste de Puerto Rico por acoger a importantes orquestas y compañías de drama y danza. Su arquitectura refleja elementos del neoclásico europeo, el neobarroco y de la arquitectura de principios del siglo XX que se conoció como la Belle Époque.

Condado Vanderbilt - San Juan (Condado) - 2013 00170

Condado Vanderbilt - San Juan (Condado) - 2013 00170



Vista del interior del Hotel Condado Vanderbilt ubicado en la avenida Ashford del pueblo costero de San Juan. El hotel es de varios niveles con características del estilo resurgimiento español. En el interior se distingue un salón de actividades con el techo decorado con una gran lámpara colgante de vidrio pintado en dos colores. La lámpara tiene una forma esférica y está rodeada por brazos de color salmón y detalles de color negro. La parte de abajo tiene pequeños elementos colgantes colocados de manera escalonada. El Hotel Condado Vanderbilt fue comisionado en 1917 por Frederick William Vanderbilt. Finalmente el 16 de octubre de 1919 fue inaugurado el primer gran hotel de lujo del Caribe. En el año 1930 fue vendido y pasó a llamarse Hotel Condado, posteriormente en 1940 se convirtió en el primer hotel en la isla en tener un casino. Además, en 1950 volvieron a cambiar su nombre a Condado Beach Hotel y se añadieron habitaciones, salones de actividades y un restaurante. Luego de considerar su demolición fue incluido en el Registro Nacional de Lugares Históricos en el año 1988. Más recientemente fue remodelado entre los años 2008 a 2014 por los arquitectos Thomas S. Marvel y José Marchand Sifre añadiendo dos torres de suites modernas. Además, la planificación y restauración de los espacios estuvo a cargo del Arquitecto Jonathan Parks y la firma SOLSTICE Planning and Architecture. Los diseños interiores estuvieron a cargo del diseñador Jorge Roselló.

Condado Vanderbilt - San Juan (Condado) - 2013 00208

Condado Vanderbilt - San Juan (Condado) - 2013 00208



Vista desde el interior del Hotel Condado Vanderbilt ubicado en la avenida Ashford del pueblo costero de San Juan. El hotel es de varios niveles con características del estilo resurgimiento español. Los espacios interiores están pintados en varios tonos de color rosa. El vestíbulo tiene dos niveles con pisos de mármol y lámparas de pared metálicas. El interior está dividido en naves con techos abovedados. La nave lateral tiene un corredor en donde hay una puerta doble de madera y cristal bajo un arco semicircular. Además, las naves están separadas por arcos semicirculares coronados con pequeños emblemas metálicos y una balaustrada de hierro ornamental con pasamano de madera. El Hotel Condado Vanderbilt fue comisionado en 1917 por Frederick William Vanderbilt. Finalmente el 16 de octubre de 1919 fue inaugurado el primer gran hotel de lujo del Caribe. En el año 1930 fue vendido y pasó a llamarse Hotel Condado, posteriormente en 1940 se convirtió en el primer hotel en la isla en tener un casino. Además, en 1950 volvieron a cambiar su nombre a Condado Beach Hotel y se añadieron habitaciones, salones de actividades y un restaurante. Luego de considerar su demolición fue incluido en el Registro Nacional de Lugares Históricos en el año 1988. Más recientemente fue remodelado entre los años 2008 a 2014 por los arquitectos Thomas S. Marvel y José Marchand Sifre añadiendo dos torres de suites modernas. Además, la planificación y restauración de los espacios estuvo a cargo del Arquitecto Jonathan Parks y la firma SOLSTICE Planning and Architecture. Los diseños interiores estuvieron a cargo del diseñador Jorge Roselló.

Condado Vanderbilt - San Juan (Condado) - 2013 00198

Condado Vanderbilt - San Juan (Condado) - 2013 00198



Vista del interior del Hotel Condado Vanderbilt ubicado en la avenida Ashford del pueblo costero de San Juan. El hotel es de varios niveles con características del estilo resurgimiento español. El vestíbulo tiene dos niveles con pisos de mármol en dos colores con motivo ajedrezado. El primer nivel tiene las naves separadas por arcos rectangulares con lámparas metálicas de pared. En medio hay unas escaleras en espiral de mármol negro con balaustradas de hierro oramental y pasamanos de madera. El Hotel Condado Vanderbilt fue comisionado en 1917 por Frederick William Vanderbilt. Finalmente el 16 de octubre de 1919 fue inaugurado el primer gran hotel de lujo del Caribe. En el año 1930 fue vendido y pasó a llamarse Hotel Condado, posteriormente en 1940 se convirtió en el primer hotel en la isla en tener un casino. Además, en 1950 volvieron a cambiar su nombre a Condado Beach Hotel y se añadieron habitaciones, salones de actividades y un restaurante. Luego de considerar su demolición fue incluido en el Registro Nacional de Lugares Históricos en el año 1988. Más recientemente fue remodelado entre los años 2008 a 2014 por los arquitectos Thomas S. Marvel y José Marchand Sifre añadiendo dos torres de suites modernas. Además, la planificación y restauración de los espacios estuvo a cargo del Arquitecto Jonathan Parks y la firma SOLSTICE Planning and Architecture. Los diseños interiores estuvieron a cargo del diseñador Jorge Roselló.

Condado Vanderbilt - San Juan (Condado) - 2013 00044

Condado Vanderbilt - San Juan (Condado) - 2013 00044



Vista desde el patio trasero del Hotel Condado Vanderbilt ubicado en la avenida Ashford del pueblo costero de San Juan. El hotel es de varios niveles con características del estilo resurgimiento español. El patio trasero tiene el piso cubierto por baldosas y un gazebo moderno rodeado con puertas de cristal y aleros con vigas expuestas. En los alrededores también se pueden ver zonas ajardinadas, plantas en macetas decorativas y muebles de patio. A la distancia, unas escaleras con pasamanos metálicos y una pérgola con vigas de madera y puertas de cristal. Junto a estas se alcanza a ver un extremo de una de las torres laterales del hotel. Tiene ventanas de cristal enmarcadas con molduras y balcones abiertos con balaustradas también de cristal dentro de los cuales hay puertas enmarcadas con molduras. El Hotel Condado Vanderbilt fue comisionado en 1917 por Frederick William Vanderbilt. Finalmente el 16 de octubre de 1919 fue inaugurado el primer gran hotel de lujo del Caribe. En el año 1930 fue vendido y pasó a llamarse Hotel Condado, posteriormente en 1940 se convirtió en el primer hotel en la isla en tener un casino. Además, en 1950 volvieron a cambiar su nombre a Condado Beach Hotel y se añadieron habitaciones, salones de actividades y un restaurante. Luego de considerar su demolición fue incluido en el Registro Nacional de Lugares Históricos en el año 1988. Más recientemente fue remodelado entre los años 2008 a 2014 por los arquitectos Thomas S. Marvel y José Marchand Sifre añadiendo dos torres de suites modernas. Además, la planificación y restauración de los espacios estuvo a cargo del Arquitecto Jonathan Parks y la firma SOLSTICE Planning and Architecture. Los diseños interiores estuvieron a cargo del diseñador Jorge Roselló.

Condado Vanderbilt - San Juan (Condado) - 2013 00035

Condado Vanderbilt - San Juan (Condado) - 2013 00035



Vista del interior del Hotel Condado Vanderbilt ubicado en la avenida Ashford del pueblo costero de San Juan. El hotel es de varios niveles con características del estilo resurgimiento español. El salón de actividades tiene el techo dividido por vigas expuestas y decorado con lámparas colgantes de vidrio. La pared de fondo tiene un espejo semicircular enmarcado y las paredes laterales tienen arcos semicirculares coronados con entablamentos y flanqueados por lámparas de pared a ajuego con las del techo. Los arcos del extremo izquierdo tienen puertas dobles de madera y cristal y los del extremo derecho dan paso a un corredor lateral. El Hotel Condado Vanderbilt fue comisionado en 1917 por Frederick William Vanderbilt. Finalmente el 16 de octubre de 1919 fue inaugurado el primer gran hotel de lujo del Caribe. En el año 1930 fue vendido y pasó a llamarse Hotel Condado, posteriormente en 1940 se convirtió en el primer hotel en la isla en tener un casino. Además, en 1950 volvieron a cambiar su nombre a Condado Beach Hotel y se añadieron habitaciones, salones de actividades y un restaurante. Luego de considerar su demolición fue incluido en el Registro Nacional de Lugares Históricos en el año 1988. Más recientemente fue remodelado entre los años 2008 a 2014 por los arquitectos Thomas S. Marvel y José Marchand Sifre añadiendo dos torres de suites modernas. Además, la planificación y restauración de los espacios estuvo a cargo del Arquitecto Jonathan Parks y la firma SOLSTICE Planning and Architecture. Los diseños interiores estuvieron a cargo del diseñador Jorge Roselló.

Archivo General - Antiguo Hospital Civil - San Juan (Puerta de Tierra) - 2010 00021

Archivo General - Antiguo Hospital Civil - San Juan (Puerta de Tierra) - 2010 00021



Vista de la fachada frontal del Archivo General y Biblioteca Nacional de Puerto Rico ubicado en la comunidad de Puerta de Tierra del pueblo costero de San Juan. El edificio es de tres niveles en mampostería y ladrillo con características del estilo neoclásico. Está pintado en tonos de amarillo y color blanco, el primer nivel tiene zonas estriadas además, tiene ventanas de madera y cristal con persianas y soles truncos pintadas de color azul bajo arcos de medio punto enmarcados con molduras planas. Las del segundo nivel están coronadas con espinazos ubicadas sobre molduras salientes. Modulando las ventanas hay pilastras en pares de dos que se alzan y sostienen el entablamento del segundo nivel sobre el cual se proyecta un parapeto bajo. También se puede ver una acera y una jardinera frente al edificio. El antiguo Hospital Civil fue el último edificio erigido por el gobierno Español en la Isla entre los años 1877-1887. A pesar de que fue construido como hospital fue utilizado como Cárcel provincial y posteriormente como destilería. Años más tarde, ante una amenaza de demolición el Instituto de Cultura Puertorriqueña lo adquirió y lo restauró para albergar documentos históricos. A partir del año 1973 trasladaron el Archivo General y la Biblioteca Nacional de Puerto Rico a este espacio. Además, el edificio fue incluido en el Registro Nacional de Lugares Históricos en el año 1976.

Acueducto de San Juan - 07000585

Acueducto de San Juan - 07000585



Perspectiva de la Estación de Bombeo del antiguo Acueducto de San Juan. La estación, de estilo arquitectónico colonial español, fue diseñada en 1892 por el consultor de la empresa con sede en Londres, Henry Thomas Granger, y completada en 1896. El edificio rectangular, de una planta y el techo a dos aguas cubierto por láminas metálicas deterioradas, originalmente se utilizaba para albergar el carbón, las calderas, y las máquinas de vapor. Estas últimas fueron reemplazadas en 1917 por bombas de motor eléctrico. La fachada exhibe gruesas paredes de mampostería de ladrillo y piedra caliza, con amplias aberturas que corresponden a accesos de carga. A la derecha, se destaca una chimenea octagonal construida en ladrillo y coronada con una cornisa Neoclásica. A su alrededor se encuentran cuencas de sedimentación, la estación de filtros mecánicos y químicos, otros edificios auxiliares, y una vegetación densa con árboles altos al fondo. A la izquierda se observa maquinaria agrícola y vehículos estacionados. Esta estación es la más sobresaliente del complejo por sus dimensiones y obra de ingeniería. El antiguo Acueducto de San Juan es el mejor ejemplo de las obras hidráulicas de finales del siglo XIX en Puerto Rico. Se propuso por primera vez en la década de 1840, pero la construcción no comenzó hasta 1892. La planta de tratamiento de agua comenzó a suministrar agua potable a la ciudad en 1899 y cerró operaciones en 1980. Este complejo histórico, compuesto por elementos arquitectónicos con influencias de estilo español colonial y Neoclásico, está ubicado dentro del Jardín Botánico y Estación Agrícola de la Universidad de Puerto Rico y parte del Corredor Ecológico de San Juan, y cubre aproximadamente 24.18 acres, divididas en dos parcelas. La parcela principal consta de una represa, tanques de filtrado y procesamiento, una estación de bombeo y la segunda ubica un tanque de almacenamiento de agua filtrada. Establecer el Acueducto en esa zona también fue clave para la planificación y el desarrollo de numerosas comunidades de Río Piedras, Santurce, Puerta de Tierra, y Miramar, un distrito histórico local planificado tras la disponibilidad de agua corriente del acueducto.

Cabildo - San Juan (Viejo San Juan) - 2012 00013

Cabildo - San Juan (Viejo San Juan) - 2012 00013



Casa Cabildo ubicada en la esquina de la calle del Cristo y la calle Caleta en el Viejo San Juan. Este edificio fue sede de la primera alcaldía del municipio de San Juan y en el sótano se ubicaba la primera cárcel del municipio. Posteriormente la Casa Cabildo fue la Galería Éxodo. Se observa que la imagen fue tomada desde la acera de la fachada lateral del edificio Casa Cabildo. Se aprecia parcialmente la Plaza de la Catedral, en la cual se aprecian árboles, un muro pequeño con ladrillos y dos farolas. Al lado de la plaza se encuentra el antiguo Convento de las Madres Carmelitas Calzadas que posteriormente fue sede del Hotel El Convento. Este edificio fue diseñado en 1646 y está pintando de color crema y blanco. Su estilo arquitectónico es representativo del neoclásico. Tiene varias balconeras con balaustrada de madera y puertas dobles. En el lado izquierdo de la imagen se encuentra el edificio que fue sede del Museo del Niño. Está pintado de color anaranjado y verde. En la parte superior del edificio se divisan puertas dobles de madera y cristal, tiene un balcón con balaustrada que está sostenido por unos pilares y techo con faldón. La parte inferior del edificio tiene antepechos con molduras blancas, cornisas y puertas dobles. También tiene una ventana a bisagra con molduras que conectan con el vano de la entrada principal. Además, se notan las calles adoquinadas, aceras, macetas con plantas y automóviles.

Residencia Rodríguez Cabrero (Casa Doña Bisa) - San Sebastián - 2011 00032

Residencia Rodríguez Cabrero (Casa Doña Bisa) - San Sebastián - 2011 00032



Residencia Rodríguez Cabrero también conocida como Casa Doña Bisa en San Sebastián. Vista parcial de las fachada principal de la casa construida con hormigón armado en estilo paladiano. La construcción sobre podio tiene un pórtico accesible a través de una escalera central, cada lado de la escalera hay un óculo. El techo del pórtico tiene un friso ornamental. Sobre el pórtico hay un balcón cuyo techo tiene un frontón triangular. Las barandas y columnas del pórtico y del balcón se extienden en toda la fachada frontal y a los lados formando arcadas en ambos pisos. Las barandas son de hierro y las columnas redondas tienen pedestales cuadrangulares. Los capiteles de las columnas del primer piso son de orden toscano y los del segundo piso, de orden jónico. En el segundo piso hay remates en forma de florero sobre seis de los pedestales. En las paredes frontales hay puertas y ventanas de doble hoja con soles truncos y molduras en los arcos superiores. Las molduras de las dos puertas centrales tienen una clave ornamental cada una. Las puertas del segundo piso están tapiadas con paneles. La casa tiene una azotea con parapeto, sobre la parte frontal del parapeto hay otros seis remates en forma de florero. En medio de la azotea hay una habitación octagonal, su techo sobresale de la pared formando un alero. El alero tiene una parte dañada. Frente a la casa hay varios automóviles estacionados. La casa fue construida en 1914. En el 2008 fue adquirida por el municipio de San Sebastián, posteriormente fue restaurada y convertida en museo.

Casilla de Camineros - Bayamón - 2011 00038

Casilla de Camineros - Bayamón - 2011 00038



Casilla de Camineros en la Carretera 2, km. 12.7 en Bayamón. Vista del edificio construido en mampostería y ladrillos, de estilo neoclásico colonial. Se observan paredes de roca caliza expuestas, cinco huecos rectangulares adintelados con molduras rústicas que funcionan como ventanas y una puerta. La puerta principal tiene un entablamento en el tope con letras color oro que leen: "Baya_ó_". Se puede notar humedad en las paredes y abandono en toda la casa. El techo muestra una cornisa con dentículos y un parapeto, también en estado de deterioro, y algunas plantas creciendo en el borde. En primer plano se observa un muro de contención de bloques de cemento. Las Casillas de Camineros fueron construidas durante la última parte del siglo XIX a lo largo de las carreteras principales en Puerto Rico. Estas fueron las residencias de los camineros, trabajadores gubernamentales encargados de brindar mantenimiento a la superficie de la carretera. La mayoría de las casillas fueron abandonadas a finales del siglo XX y las que aún permanecen han enfrentado diferentes destinos. Muchas de ellas se han deteriorado o han sido demolidas y otras han sido destinadas a otros usos. Esta casilla es una de tres construidas en 1882 a lo largo de un tramo de la Carretera número 2 entre Bayamón y Mayagüez. Perteneció originalmente al Departamento de Transportación y Obras Públicas, quien luego la cedió al Instituto de Cultura para ser usada como museo y oficinas de la Cámara de Comercio de Bayamón.

Casa Armstrong Poventud - 2013

Casa Armstrong Poventud - 2013



Vista lateral y frontal de la Casa Armstrong Poventud ubicada en la calle Unión del pueblo costero de Ponce. La casa es de dos niveles en mampostería sobre una base de piedra expuesta. En primer plano, se distingue un poste de luz y vehículos estacionados en la calle. Por otra parte, el primer nivel de la casa tiene una entrada a través de una puerta doble de madera bajo un arco semicircular enmarcado con molduras y coronado con un sol trunco y un espinazo. Flanqueando la entrada principal hay dos cariátides sobre ménsulas decoradas y ventanas de madera bajo arcos dobles enmarcados con molduras, sostenidos por pilastras compuestas y presididos por balaustradas. Cada extremo tiene pilastras con capiteles compuestos que se alzan hasta el segundo nivel sosteniendo un entablamento corrido. De la misma manera, el segundo nivel tiene tres arcos semicirculares enmarcados con molduras, coronados con soles truncos y espinazos. Los tres arcos están presididos por balconeras, las de los extremos con barandas de hierro ornamental y la de en medio con una balaustrada de mampostería. Además, los balcones están flanqueados por pilastras compuestas que a su vez sostienen un entablamento corrido con ménsulas, un friso ornamental, una cornisa corrida y un parapeto con ánforas. A su vez, al extremo derecho la casa tiene una cochera presidida por un portón de reja metálico enmarcado con molduras. Esta cochera se eleva un nivel abriendo paso a una azotea en el segundo nivel rodeada por rejas de hierro ornamental. La conocida Casa de las Cariátides fue construida en 1899 para la familia del señor Carlos Armstrong Toro, el fundador del Banco de Ponce y Banco de Crédito y Ahorro Ponceño. Tras el terremoto de 1918 fue restaurada y se le añadió el espacio de la cochera. Años más tarde, en 1986 fue vendida al gobierno y restaurada por lo que en 1987 fue incluida en el Registro nacional de Lugares Históricos.

Real Audiencia

Real Audiencia



Antigua Real Audiencia, calle de la Fortaleza en el Viejo San Juan. Dibujo arquitectónico de la fachada de la casa de dos pisos estilo colonial español. En el primer nivel se observan cinco arcos adintelados: la entrada principal en el centro, una puerta y una ventana a un lado y dos ventanas al otro lado. La entrada tiene tres escalones. Las ventanas tienen antepechos de balaustres de madera y sobre cada una hay un óculo ovalado. Una moldura continua se extiende sobre la base del edificio y alrededor de la entrada, esta solo es interrumpida en la puerta del extremo. A los lados de la entrada hay dos lámparas de techo tipo farol. Un extenso balcón abierto con balaustrada de madera une los cinco vanos del segundo nivel. Cada vano tiene una puerta de doble hoja con celosías y paneles de vidrio en la parte superior. La casa tiene una hilada seguida por una cornisa delgada y un parapeto liso con moldura en el borde. En el techo se ve la Torre Meteorológica y de Observación, la torre octagonal fue construida en mampostería, acero y madera. La parte de mampostería tiene un pequeño óculo en una de las paredes y una cornisa con ménsulas. Sobre la cornisa se encuentra el área de observación, que tiene ventanas con celosías, está protegida por una baranda y tiene una cúpula con un remate esférico. Originalmente esta casa fue la residencia del Dr. Francisco Oller y Ferrer, abuelo del pintor Francisco Oller y Cestero. En 1831 fue vendida al Estado y el 1832 pasó a ser la primera sede de la Real Audiencia Territorial. Alrededor del 1898 fue arrendada al Departamento de Agricultura de Estados Unidos y en otro momento se usó como Departamento de Estado. En 1992 la edificación fue dedicada a Don Fernando Chardón. Luego de un periodo de abandono fue restaurada en el año 2000 y asignada a las oficinas de Guías Turísticos y de Programas Federales adscritos a la Oficina del Gobernador. La Torre Meteorológica y de Observación fue diseñada por el ingeniero Manuel Maese, la orden para su construcción fue emitida en 1883.

Catedral de Nuestra Señora de la Guadalupe - Ponce - 2014 00003

Catedral de Nuestra Señora de la Guadalupe - Ponce - 2014 00003



Vista lateral y trasera de la Catedral de Nuestra Señora de la Guadalupe ubicada en el pueblo costero de Ponce. La catedral es de dos niveles en mampostería y ladrillo con características del estilo Neoclásico. La fachada lateral de la catedral tiene contrafuertes, ventanas cubiertas por tormenteras y un entablamento corrido sobre el cual descansa un parapeto bajo. Además, hay una cúpula esférica coronada con una linterna. Por otra parte, flanqueando la catedral hay una torre de campanario dividida en tres tramos. Son de base cuadrada, el segundo nivel tiene vanos cuadrados enmarcados con molduras salientes, coronados con entablamentos semicirculares y presididos por balaustradas. El tercer tramo muestra ventanas dobles de madera bajo arcos semicirculares que a su vez están enmarcados con molduras, coronados con espinazos y entablamentos. En adición, está flanqueada por pares de columnas acanaladas que sostienen el entablamento. El siguiente tramo de la torre es hexagonal y está decorado con cornisas, molduras, un friso con guirnaldas y ánforas. De la misma manera, la cúpula muestra óculos de vidrio pintado enmarcados con molduras. A su vez, la cúpula está coronada con una linterna de aberturas semicirculares y una cruz. Los inicios de la Catedral de Nuestra Señora de la Guadalupe datan de 1670 cuando apenas era una ermita de yagua y palma, fue clausurada en 1820 por las malas condiciones del edificio. El comienzo de la construcción de la iglesia actual data de 1835 y fue inaugurada en 1839. Sin embargo, el terremoto de 1918 destruyó ambas torres por lo que pasó a ser reconstruida con un diseño nuevo entre 1918 y 1937. Años más tarde, en 1984 fue incluida en el Registro Nacional de Lugares Históricos. Posteriormente fue restaurada nuevamente en 1992.

Catedral de Nuestra Señora de la Guadalupe - Ponce - 2014 00031

Catedral de Nuestra Señora de la Guadalupe - Ponce - 2014 00031



Vista desde el techo hacia una de las torres de la Catedral de Nuestra Señora de la Guadalupe ubicada en el pueblo costero de Ponce. La catedral es de dos niveles en mampostería y ladrillo con características del estilo Neoclásico. La torre del campanario es de base cuadrada y muestra ventanas dobles de madera bajo arcos semicirculares que a su vez están enmarcados con molduras, coronados con espinazos y entablamentos. Además, están flanqueados por pares de columnas acanaladas que sostienen el entablamento y presididas por balaustradas. El siguiente tramo de la torre es hexagonal y está decorado con cornisas, molduras, un friso con guirnaldas y ánforas. Por último, la cúpula muestra óculos de vidrio pintado enmarcados con molduras. A su vez, la cúpula está coronada con una linterna de aberturas semicirculares y una cruz. Desde el techo también se distingue una estatua junto a la torre y edificios con diferentes características en los alrededores. Los inicios de la Catedral de Nuestra Señora de la Guadalupe datan de 1670 cuando apenas era una ermita de yagua y palma, fue clausurada en 1820 por las malas condiciones del edificio. El comienzo de la construcción de la iglesia actual data de 1835 y fue inaugurada en 1839. Sin embargo, el terremoto de 1918 destruyó ambas torres por lo que pasó a ser reconstruida con un diseño nuevo entre 1918 y 1937. Años más tarde, en 1984 fue incluida en el Registro Nacional de Lugares Históricos. Posteriormente fue restaurada nuevamente en 1992.

Condado Vanderbilt - San Juan (Condado) - 2013 00097

Condado Vanderbilt - San Juan (Condado) - 2013 00097



Vista desde el patio trasero del Hotel Condado Vanderbilt ubicado en la avenida Ashford del pueblo costero de San Juan. El hotel es de varios niveles con techos a cuatro aguas y características del estilo resurgimiento español. El patio trasero tiene el piso cubierto por baldosas de cerámica, plantas en macetas decorativas y una balaustrada de cristal modulada por pilares cuadrados. En los alrededores también se pueden ver unas escaleras con barandal metálico, una pérgola con vigas de madera expuestas y puertas de cristal. El Hotel Condado Vanderbilt fue comisionado en 1917 por Frederick William Vanderbilt. Finalmente el 16 de octubre de 1919 fue inaugurado el primer gran hotel de lujo del Caribe. En el año 1930 fue vendido y pasó a llamarse Hotel Condado, posteriormente en 1940 se convirtió en el primer hotel en la isla en tener un casino. Además, en 1950 volvieron a cambiar su nombre a Condado Beach Hotel y se añadieron habitaciones, salones de actividades y un restaurante. Luego de considerar su demolición fue incluido en el Registro Nacional de Lugares Históricos en el año 1988. Más recientemente fue remodelado entre los años 2008 a 2014 por los arquitectos Thomas S. Marvel y José Marchand Sifre añadiendo dos torres de suites modernas. Además, la planificación y restauración de los espacios estuvo a cargo del Arquitecto Jonathan Parks y la firma SOLSTICE Planning and Architecture. Los diseños interiores estuvieron a cargo del diseñador Jorge Roselló.

Primera Iglesia Metodista Unida de Ponce - 2014 00028

Primera Iglesia Metodista Unida de Ponce - 2014 00028



Vista desde el interior de la primera iglesia metodista de Ponce ubicada en la calle Villa 135 del pueblo costero de Ponce. La iglesia es de un nivel en hormigón armado con características de varios estilos por lo que se considera ecléctica. El techo es a dos aguas con vigas de madera y lámparas colgantes. Al fondo hay un altar elevado presidido por una balaustrada de madera y escalones. Está cubierto por una alfombra de color rojo y tiene ambones a cada lado, sillas, instrumentos musicales y carteles decorativos. En medio, bajo un arco semicircular enmarcado con molduras de madera está ubicada la mesa del altar. La mesa es de madera, cubierta por un mantel de encaje y acompañada por un libro, candelabros y flanqueada por macetas decorativas sobre pequeñas columnas decorativas. También tiene una cruz de madera en la pared y a ambos lados del altar ventanas bajo arcos semicirculares de madera con vidrieras de colores. También se pueden ver filas de bancos de madera, el piso cubierto por una alfombra y personas de pie. La Iglesia Metodista de la Resurrección de Ponce fue construida en 1907 convirtiéndose en una de las primeras iglesias no católica romana construida después del cambio de soberanía en 1898 siendo un ejemplo de la libertad de culto. Tras el terremoto de 1918 la torre del campanario se tuvo que reconstruir utilizando el diseño de Francisco Porrata Doria, por lo que su diseño y materiales son diferentes al original. Años más tarde, en 1987 fue incluida en el Registro Nacional de Lugares Históricos.

Teatro Yagüez - Mayagüez - 2011 00025

Teatro Yagüez - Mayagüez - 2011 00025



Detalle de una escalera y una puerta en el interior del Teatro Yagüez, localizado entre las calles McKinley y Basora del municipio de Mayagüez. La mitad de los muros que flanquean la escalera están revestidos con paneles de mármol que contrastan con la otra mitad del muro del color rojo. La transición de la pared hacia el techo está acentuada por una moldura blanca. Además, es notable una puerta de madera con paneles y una lámpara de pared. A través del espacio se ubican varios objetos como, por ejemplo, un extintor, una silla, un teléfono, varios sacos de concreto, bloques, una manga y un tubo. En su origen, en 1909, el teatro fue diseñado y construido de madera, acero y cinc, y se le conoció como la Casa del Arte Sonoro. El dueño original de este teatro fue Francisco Maymón Palmer. En el año 1919 un fuego consumió el edificio. En 1920 se llevó a cabo un nuevo diseño de estilo ecléctico, integrando materiales como el hormigón, la madera, el cristal, el mármol italiano y el yeso para las ornamentaciones. Durante la década de 1950 el teatro mostró signos de deterioro y en el periodo de 1977 a 1984 se llevaron a cabo trabajos de restauración bajo el auspicio del municipio de Mayagüez. Asimismo, durante el periodo de 2002 a 2008 se realizó una tercera restauración al teatro. Este teatro constituye uno de los principales escenarios artísticos y de gran valor histórico en el área oeste de Puerto Rico por acoger a importantes orquestas y compañías de drama y danza. Su arquitectura refleja elementos del neoclásico europeo, el neobarroco y de la arquitectura de principios del siglo XX que se conoció como la Belle Époque.

Condado Vanderbilt - San Juan (Condado) - 2013 00030

Condado Vanderbilt - San Juan (Condado) - 2013 00030



Vista del interior del Hotel Condado Vanderbilt ubicado en la avenida Ashford del pueblo costero de San Juan. El hotel es de varios niveles con características del estilo resurgimiento español. Los espacios tienen los pisos de mármol en dos colores, techos abovedados y lámparas colgantes. Además, el pasillo está decorado con un mueble tipo consola sobre el cual descansa un espejo con marco ornamental. A través del espejo se ve una puerta doble de cristal bajo un arco semicircular acompañado por cortinas de tela. Además, junto a la consola hay un banco sin respaldo. El Hotel Condado Vanderbilt fue comisionado en 1917 por Frederick William Vanderbilt. Finalmente el 16 de octubre de 1919 fue inaugurado el primer gran hotel de lujo del Caribe. En el año 1930 fue vendido y pasó a llamarse Hotel Condado, posteriormente en 1940 se convirtió en el primer hotel en la isla en tener un casino. Además, en 1950 volvieron a cambiar su nombre a Condado Beach Hotel y se añadieron habitaciones, salones de actividades y un restaurante. Luego de considerar su demolición fue incluido en el Registro Nacional de Lugares Históricos en el año 1988. Más recientemente fue remodelado entre los años 2008 a 2014 por los arquitectos Thomas S. Marvel y José Marchand Sifre añadiendo dos torres de suites modernas. Además, la planificación y restauración de los espacios estuvo a cargo del Arquitecto Jonathan Parks y la firma SOLSTICE Planning and Architecture. Los diseños interiores estuvieron a cargo del diseñador Jorge Roselló.

Molino de viento (1827) - Hacienda Santa Ana - 2011 00019

Molino de viento (1827) - Hacienda Santa Ana - 2011 00019



Hacienda Santa Ana en Bayamón. Vista de la torre del antiguo molino de viento de la Hacienda. Este molino construido con ladrillos, y mejor conocido como trapiche, data de 1827 y es uno de los más antiguos en la isla. Se observa una torre redonda de ladrillos con una escalera de ladrillos y piedras. La escalera tiene dos pasamanos de tubos que conducen a la entrada principal en forma de arco de medio punto en el segundo nivel. Sobre el arco hay un óculo de cemento color blanco incrustado en la pared. La entrada cuenta con una puerta de madera de doble hoja con montante de sol trunco. Además, se puede ver otra escalera de piedras y una segunda puerta de madera en la pared lateral. En el tope de la torre hay un parapeto con diseño almenado desde donde bajan manchas de humedad u hollín, una pequeña antena, un cable eléctrico y una lámpara. También puede observar un equipo de aire acondicionado en el patio posiblemente porque esta torre fue acondicionada para utilizarse como oficina. Al fondo se puede ver una edificación. La Casona de la Hacienda Santa Ana reside en terrenos conferidos en 1787 por el rey Carlos III al capitán Fernando Fernández, corsario español que rendía servicios a la corona. A partir de 1804, el capitán comenzó a sembrar caña de azúcar y a destilar ron en la propiedad para su uso personal, pero no fue hasta 1880 cuando su bisnieto Pedro Fernández y su hijo Edmundo desarrollaron la fórmula y el proceso de destilación del conocido Ron del Barrilito. Además de la casona, la Hacienda abarca la tonelería, el trapiche, el área de añejamiento y el área de embotellamiento y empaque. Estas instalaciones, que también sirven como museo, continúan produciendo el popular ron, así como el alcoholado medicinal Santa Ana.

Condado Vanderbilt - San Juan (Condado) - 2013 00174

Condado Vanderbilt - San Juan (Condado) - 2013 00174



Vista del interior del Hotel Condado Vanderbilt ubicado en la avenida Ashford del pueblo costero de San Juan. El hotel es de varios niveles con características del estilo resurgimiento español. En el interior se distingue una columna revestida de mármol negro con molduras doradas y una lámpara de vidrio pintado. La lámpara tiene brazos de color salmón con detalles color negro. Además, de la parte de abajo cuelgan pequeñas piedras de color dorado colocadas escalonadamente. El Hotel Condado Vanderbilt fue comisionado en 1917 por Frederick William Vanderbilt. Finalmente el 16 de octubre de 1919 fue inaugurado el primer gran hotel de lujo del Caribe. En el año 1930 fue vendido y pasó a llamarse Hotel Condado, posteriormente en 1940 se convirtió en el primer hotel en la isla en tener un casino. Además, en 1950 volvieron a cambiar su nombre a Condado Beach Hotel y se añadieron habitaciones, salones de actividades y un restaurante. Luego de considerar su demolición fue incluido en el Registro Nacional de Lugares Históricos en el año 1988. Más recientemente fue remodelado entre los años 2008 a 2014 por los arquitectos Thomas S. Marvel y José Marchand Sifre añadiendo dos torres de suites modernas. Además, la planificación y restauración de los espacios estuvo a cargo del Arquitecto Jonathan Parks y la firma SOLSTICE Planning and Architecture. Los diseños interiores estuvieron a cargo del diseñador Jorge Roselló.

Condado Vanderbilt - San Juan (Condado) - 2013 00156

Condado Vanderbilt - San Juan (Condado) - 2013 00156



Vista de los espacios interiores del Hotel Condado Vanderbilt ubicado en la avenida Ashford del pueblo costero de San Juan. El hotel es de varios niveles con características del estilo resurgimiento español. El baño tiene una ventana revestida por una cortina de tela, el piso y una de las paredes están revestidas por mármol en varios tonos. Además, en medio se distingue un mueble de mármol con varios lavamanos esféricos de porcelana, lámparas decorativas y espejos. El Hotel Condado Vanderbilt fue comisionado en 1917 por Frederick William Vanderbilt. Finalmente el 16 de octubre de 1919 fue inaugurado el primer gran hotel de lujo del Caribe. En el año 1930 fue vendido y pasó a llamarse Hotel Condado, posteriormente en 1940 se convirtió en el primer hotel en la isla en tener un casino. Además, en 1950 volvieron a cambiar su nombre a Condado Beach Hotel y se añadieron habitaciones, salones de actividades y un restaurante. Luego de considerar su demolición fue incluido en el Registro Nacional de Lugares Históricos en el año 1988. Más recientemente fue remodelado entre los años 2008 a 2014 por los arquitectos Thomas S. Marvel y José Marchand Sifre añadiendo dos torres de suites modernas. Además, la planificación y restauración de los espacios estuvo a cargo del Arquitecto Jonathan Parks y la firma SOLSTICE Planning and Architecture. Los diseños interiores estuvieron a cargo del diseñador Jorge Roselló.

Casa en la Calle Cuevillas 607 - San Juan (Miramar) - 2014 00038

Casa en la Calle Cuevillas 607 - San Juan (Miramar) - 2014 00038



Fachada lateral de la casa en la calle Cuevillas 607, en Miramar, San Juan. Este tramo de la fachada se distingue por los balcones con barandas compuestas de bloques ornamentales. Las ventanas son tipo persianas, de las cuales algunas están protegidas con rejas. Estas ventanas, así como las puertas están acentuadas con una moldura blanca que contrasta con el color rosado de la superficie del edificio. La parte superior de la fachada se caracteriza por un friso ornamental con rosetas seguido de dentículos, una cornisa y modillones. Además, se proyecta un tipo de cubierta a dos aguas o frontón triangular. Esta casa se construyó en 1913 siguiendo influencias del estilo resurgimiento del renacimiento francés o resurgimiento neoclásico francés. Sus dueños originales fueron el juez Luis Méndez Baz y su esposa, María Bagur. Tras visitar Francia, la pareja hizo construir su residencia siguiendo el diseño de un prototipo publicado en Nouvelles Maisons de Campagne, Paris et ses Environs, que mostraba fachadas y planos de casas de campo populares en París. Posteriormente la casa funcionó como residencia y taller para artistas como Lorenzo Homar, Juan Ramón Velázquez, Ada Bobonis y Aaron Salabarrías. Además, los herederos de los dueños originales establecieron una fundación para desarrollar un museo en esta residencia. Entre el 2018 y 2019 se llevó a cabo la restauración del edificio que dio lugar al establecimiento del Museo de Arte y Diseño de Miramar, también conocido como la Casa Rosada.

Casa en la Calle Cuevillas 607 - San Juan (Miramar) - 2014 00009

Casa en la Calle Cuevillas 607 - San Juan (Miramar) - 2014 00009



Detalle de los tramos de la fachada principal de la casa en la calle Cuevillas 607, en Miramar, San Juan. El primer nivel exhibe puertas de doble hoja con lumbreras y vidrios, flanqueadas por pilastras. Una de las puertas está protegida con un panel de madera. Sobre la puerta del centro se proyecta un ornamento tipo "cartouche" y el número del edificio, 607. El segundo nivel se distingue por arcos tapiados acentuados con molduras, claves y pilastras. En el tramo lateral se presenta una balconera con ventanas dobles y barandillas compuestas por rejas ornamentales. La fachada está ornamentada con detalles como rosetas, molduras y motivos de conchas. La casa está compuesta de mampostería, hormigón armado y madera. El color de la casa es rosado con los detalles ornamentales de blanco. Esta casa se construyó en 1913 siguiendo influencias del estilo resurgimiento del renacimiento francés o resurgimiento neoclásico francés. Sus dueños originales fueron el juez Luis Méndez Baz y su esposa, María Bagur. Tras visitar Francia, la pareja hizo construir su residencia siguiendo el diseño de un prototipo publicado en Nouvelles Maisons de Campagne, Paris et ses Environs, que mostraba fachadas y planos de casas de campo populares en París. Posteriormente la casa funcionó como residencia y taller para artistas como Lorenzo Homar, Juan Ramón Velázquez, Ada Bobonis y Aaron Salabarrías. Además, los herederos de los dueños originales establecieron una fundación para desarrollar un museo en esta residencia. Entre el 2018 y 2019 se llevó a cabo la restauración del edificio que dio lugar al establecimiento del Museo de Arte y Diseño de Miramar, también conocido como la Casa Rosada.

Capilla Nuestra Señora de Lourdes - San Juan (Miramar) - 2009 00012

Capilla Nuestra Señora de Lourdes - San Juan (Miramar) - 2009 00012



Detalle de la torre y el rosetón en la fachada de la Capilla Nuestra Señora de Lourdes, en Miramar, San Juan. La torre cuadrada del campanario se distingue por tener almenas como coronamiento, gárgolas decorativas que también funcionan como desagües, cornisas, arcos emparejados levemente apuntados y parteluces. Además, es visible un tramo de la fachada que exhibe una ventana con tracería y vitrales y un rosetón con una representación del Espíritu Santo. El techo es de madera y está dispuesto a dos aguas. Una cruz celta corona el pináculo del hastial. El edificio es de hormigón con un acabado rusticado en imitación de piedra y sillería. Una verja de hierro rodea el edificio y lo separa del entorno inmediato. La construcción de la Capilla Nuestra Señora de Lourdes se inició en 1907 y su inauguración tuvo lugar en 1908. Este edificio es representativo de las iglesias protestantes que se establecieron en Puerto Rico tras el cambio de régimen en 1898. Fue el primer templo de la Iglesia Metodista Episcopal de Puerto Rico, luego, en 1917, pasó a manos de la Iglesia Unida de Puerto Rico y finalmente, a la Iglesia Católica Romana, adscrita a la arquidiócesis de San Juan en 1959. Su diseño y características corresponden al estilo neogótico o resurgimiento gótico. Este diseño además, imita a un edificio de la Iglesia Episcopal en la calle North Market, en Jacksonville Florida, donde su arquitecto tenía su residencia entonces.

Archivo General - Antiguo Hospital Civil - San Juan (Puerta de Tierra) - 2010 00038

Archivo General - Antiguo Hospital Civil - San Juan (Puerta de Tierra) - 2010 00038



Vista frontal y lateral del Archivo General y Biblioteca Nacional de Puerto Rico ubicado en la comunidad de Puerta de Tierra del pueblo costero de San Juan. El edificio es de tres niveles en mampostería y ladrillo con características del estilo neoclásico. Está pintado en tonos de amarillo y color blanco. El primer nivel tiene zonas estriadas además, tiene ventanas de madera color azul y cristal con persianas y soles truncos bajo arcos de medio punto enmarcados con molduras planas. Las del segundo nivel están coronadas con espinazos y al pie tienen molduras salientes a modo de soporte. Modulando las ventanas hay pilastras en pares de dos que sostienen un entablamento corrido y a su vez se alzan y sostienen el entablamento del segundo nivel sobre el cual se proyecta un parapeto bajo. Además, junto al edificio hay un espacio de estacionamiento en donde se puede ver vehículos estacionados. El antiguo Hospital Civil fue el último edificio erigido por el gobierno Español en la Isla entre los años 1877-1887. A pesar de que fue construido como hospital fue utilizado como Cárcel provincial y posteriormente como destilería. Años más tarde, ante una amenaza de demolición el Instituto de Cultura Puertorriqueña lo adquirió y lo restauró para albergar documentos históricos. A partir del año 1973 trasladaron el Archivo General y la Biblioteca Nacional de Puerto Rico a este espacio. Además, el edificio fue incluido en el Registro Nacional de Lugares Históricos en el año 1976.

Hacienda Santa Ana - Bayamón - 2011 00031

Hacienda Santa Ana - Bayamón - 2011 00031



Hacienda Santa Ana en Bayamón. Perspectiva de la fachada principal de la casona de la Hacienda. El edificio es de dos niveles construido en mampostería de ladrillos con un estilo arquitectónico ecléctico. En el frente tiene una gran escalera color terracota de escalones curvos, más ancha abajo que arriba, lo que la hace lucir como un abanico invertido. La escalera tiene pasamanos de tubo y llega al segundo nivel donde se observa la entrada en forma de arco del pórtico. La entrada muestra una lámpara de pared, dos columnas redondas a los lados y un portón ornamental de hierro. El pórtico exhibe columnas redondas gruesas con capiteles cuadrangulares y arcadas que se extienden a lo ancho de toda la fachada. Los arcos del primer piso tienen pilares lisos. La arcada del segundo piso tiene barandas ornamentales de hierro y sobre esta hay una cornisa. El patio está cubierto de grama. La Casona de la Hacienda Santa Ana reside en terrenos conferidos en 1787 por el rey Carlos III al capitán Fernando Fernández, corsario español que rendía servicios a la corona. A partir de 1804, el capitán comenzó a sembrar caña de azúcar y a destilar ron en la propiedad para su uso personal, pero no fue hasta 1880 cuando su bisnieto Pedro Fernández y su hijo Edmundo desarrollaron la fórmula y el proceso de destilación del conocido Ron del Barrilito. Además de la casona, la Hacienda abarca la tonelería, el trapiche, el área de añejamiento y el área de embotellamiento y empaque. Estas instalaciones, que también sirven como museo, continúan produciendo el popular ron, así como el alcoholado medicinal Santa Ana.

Calle de la Fortaleza 56 - Antigua Real Audiencia - Conservatorio De Artes Del Caribe - San Juan (Viejo San Juan) - 2012 00007

Calle de la Fortaleza 56 - Antigua Real Audiencia - Conservatorio De Artes Del Caribe - San Juan (Viejo San Juan) - 2012 00007



Antigua Real Audiencia, calle de la Fortaleza en el Viejo San Juan. Vista parcial de la Torre Meteorológica y de Observación ubicada en el techo de la casa de dos pisos estilo colonial español. Se ve el área de observación de la torre. Esta sección está compuesta por paredes de madera sostenidas por un armazón de barras de metal. Las paredes tienen ventanas fijas con celosías y una puerta, también con celosías y están rodeadas por una baranda de metal. Tres de las ventanas visibles están rotas, les faltan las celosías. La torre tiene una cúpula cubierta por láminas de metal. El piso del área de observación es una plataforma que forma una cornisa sobre el cuerpo de la torre y que tiene ménsulas. Al fondo se ven casas y edificios de la ciudad antigua entre los que se distinguen el antiguo Seminario Conciliar de San Idelfonso y el Cuartel de Ballajá. Originalmente esta casa fue la residencia del Dr. Francisco Oller y Ferrer, abuelo del pintor Francisco Oller y Cestero. En 1831 fue vendida al Estado y el 1832 pasó a ser la primera sede de la Real Audiencia Territorial. Alrededor del 1898 fue arrendada al Departamento de Agricultura de Estados Unidos y en otro momento se usó como Departamento de Estado. En 1992 la edificación fue dedicada a Don Fernando Chardón. Luego de un periodo de abandono fue restaurada en el año 2000 y asignada a las oficinas de Guías Turísticos y de Programas Federales adscritos a la Oficina del Gobernador. La Torre Meteorológica y de Observación fue diseñada por el ingeniero Manuel Maese, la orden para su construcción fue emitida en 1883.

Casa en la calle Castillo esquina calle Mayor - Antigua Corte de España - Ponce - Foto Histórica

Casa en la calle Castillo esquina calle Mayor - Antigua Corte de España - Ponce - Foto Histórica



Vista de edificio ubicado en la calle Castillo esquina mayor en el pueblo costero de Ponce. El edificio es de dos niveles en mampostería y características de los estilos neoclásico y barroco. En el primer nivel se pueden ver arcos semicirculares flanqueados por pilastras, enmarcados con molduras y almohadillados coronados con soles truncos y espinazos. Los arcos también están presididos por balaustradas con excepción de dos arcos que son puertas de acceso. También hay un balcón bajo un arco rebajado enmarcado con almohadillado, flanqueado por pilastras y coronado con un espinazo. El balcón tiene una balaustrada y una puerta bajo un arco rectangular enmarcado con molduras. Además, hay dos puertas, una bajo un arco de medio punto enmarcada y coronada con un sol trunco y un espinazo. La otra puerta está bajo un arco rectangular enmarcada y coronada con un entablamento decorativo. Entre los arcos también se distinguen pilastras de almohadillado que se elevan hasta el segundo nivel sosteniendo un entablamento corrido. Por otra parte, en el segundo nivel hay siete puertas dobles de madera con celosías enmarcadas con molduras, coronadas con entablamentos y espinazos. Las puertas están presididas por balconeras, dos dobles y tres sencillas con barandas de hierro ornamental. De la misma manera que en el primer nivel, los arcos están flanqueados por pilastras de almohadillados que a su vez sostienen un entablamento corrido con una cornisa corrida, un friso decorativo y dentículos. En adición, adosado a este se distingue una casa de un nivel con características del estilo vernáculo. El edificio de la Antigua Corte España data de 1898. A través de los años ha sido utilizada como establecimiento gubernamental y comercial. Sin embargo, a partir del 2015 el edificio alberga la biblioteca y museo Rafael Hernandez Colón la cual fue fundada en 1992 con el fin de promover el estudio y reflexión de los y las puertorriqueñas.

Iglesia de San Jorge - San Juan (Condado) - 2014 00145

Iglesia de San Jorge - San Juan (Condado) - 2014 00145



Vista de la fachada frontal de la Parroquia San Jorge ubicada en la comunidad de Condado del pueblo costero de San Juan. La iglesia es de dos niveles en hormigón con características del estilo neogótico, techo a dos aguas revestido por tejas, pintada de color gris y color blanco. La entrada está bajo un arco ojival en derrame enmarcado y con un tímpano esculpido con esculturas figurativas. El arco ojival tiene pequeñas figuras de santos tallados. Además, sobre el arco también se pueden ver más estatuas talladas de mayor tamaño dentro de nichos ornamentados, cada esquina está acompañada por pináculos. Sobre la entrada hay un rosetón enmarcado y un nicho sobre una ménsula ornamentada coronado con pináculos. Al extremo derecho se alza la torre del campanario, tiene forma piramidal y está coronada con una cruz metálica. Además, tiene ventanas bajo arcos ojivales decorados con cresterías, vierteaguas y parteluces. Sobre las ventanas se ven ornamentación en bajorrelieve, gárgolas y a los lados contrafuertes que se extienden y a su vez sostienen pináculos con detalles ornamentales. En los alrededores se distinguen edificios, calles y espacios de estacionamiento. La iglesia San Jorge fue inaugurada en el año 1920 siendo oficialmente fundada canónicamente en 1924 tras ser desmembrada de las Parroquias San Mateo y Sagrado Corazón. Su diseño inicial estuvo a cargo de la firma Martínez y Lázaro siendo finalizado en dos años. Seis años después se comienza la construcción de los edificios aledaños a la academia San Jorge. Posteriormente en 1940 la fachada fue remodelada por el arquitecto Rafael Carmoega. Más recientemente en el año 2017 fue restaurada en fases por la firma Astrid Díaz: ADV Architects.

Alcaldía de Arecibo - 2014 00001

Alcaldía de Arecibo - 2014 00001



Vista frontal de la Casa Alcaldía del pueblo de Arecibo. El edificio es de dos niveles de mampostería de ladrillo con elementos típicos del estilo neoclásico. Está pintado en tonos salmón y marrón con molduras blancas. La fachada se articula horizontalmente con un basamento rusticado que cubre parte del segundo nivel. En el primer nivel hay tres entradas sobre las cuales se encuentra una inscripción que dice: "Alcaldía". También hay dos ventanas bajo arcos de medio punto. La fachada se divide con cornisas sostenidas por pilastras. Por otra parte, el nivel superior tiene cinco puertas dobles enmarcadas por pilastras esbeltas que flanquean un frontón ciego y curvo. Las puertas de los extremos están encerradas en unos balcones de un tramo y las tres puertas de en medio se conectan con un balcón central de tres tramos sostenidos por ménsulas y encerrados con rejas metálicas ornamentales. Frente al edificio se alzan tres astas con las banderas de Arecibo, Puerto Rico y los Estados Unidos. También se pueden ver vehículos estacionados en la calle. La construcción de la alcaldía de Arecibo data del año 1866 bajo el dominio español en la isla. El primer nivel del edificio era utilizado cómo prisión mientras que en el segundo nivel estaban las oficinas. Tras el terremoto de 1918 la fachada frontal del edificio sufrió derrumbes por lo que fue modificada añadiendo una torre de reloj hasta el año 1978 cuando restauraron el edificio y le devolvieron su diseño original.

Condado Vanderbilt - San Juan (Condado) - 2013 00159

Condado Vanderbilt - San Juan (Condado) - 2013 00159



Vista de los espacios interiores del Hotel Condado Vanderbilt ubicado en la avenida Ashford del pueblo costero de San Juan. El hotel es de varios niveles con características del estilo resurgimiento español. En el interior se distingue un salón de actividades con el piso parcialmente revestido por una alfombra con motivos ornamentales en varios tonos de rojo y morado. Las paredes laterales están revestidas de mármol en dos colores y tienen amplios espejos. Además, se distinguen puertas de madera, consolas de pared en madera y lámparas de vidrio pintado. Por otra parte, la pared de fondo tiene cinco puertas dobles de madera y cristal bajo arcos semicirculares flanqueados por columnas cilíndricas. El techo es artesonado y está dividido en espacios cúbicos con profundidad decorados con lámparas colgantes de vidrio pintado en dos colores a juego con las de las paredes y pequeños focos de luz individual. El Hotel Condado Vanderbilt fue comisionado en 1917 por Frederick William Vanderbilt. Finalmente el 16 de octubre de 1919 fue inaugurado el primer gran hotel de lujo del Caribe. En el año 1930 fue vendido y pasó a llamarse Hotel Condado, posteriormente en 1940 se convirtió en el primer hotel en la isla en tener un casino. Además, en 1950 volvieron a cambiar su nombre a Condado Beach Hotel y se añadieron habitaciones, salones de actividades y un restaurante. Luego de considerar su demolición fue incluido en el Registro Nacional de Lugares Históricos en el año 1988. Más recientemente fue remodelado entre los años 2008 a 2014 por los arquitectos Thomas S. Marvel y José Marchand Sifre añadiendo dos torres de suites modernas. Además, la planificación y restauración de los espacios estuvo a cargo del Arquitecto Jonathan Parks y la firma SOLSTICE Planning and Architecture. Los diseños interiores estuvieron a cargo del diseñador Jorge Roselló.

Molino de viento (1827) - Hacienda Santa Ana - 2011 00010

Molino de viento (1827) - Hacienda Santa Ana - 2011 00010



Hacienda Santa Ana en Bayamón. Plano contrapicado de la torre del antiguo molino de viento de la Hacienda. Este molino construido con ladrillos, y mejor conocido como trapiche, data de 1827 y es uno de los más antiguos en la isla. Se observa una escalera de piedra a la que le han instalado pasamanos de tubo de metal. La escalera conduce a la estrada principal que consiste en un arco de medio punto con puerta de madera de doble hoja y un montante de sol trunco con las iniciales "EBF". Sobre el arco hay un óculo que tiene una placa y una inscripción. En el tope de la torre hay un parapeto con diseño almenado desde donde bajan manchas de humedad u hollín. Esta torre fue acondicionada para utilizarse como oficina. La Casona de la Hacienda Santa Ana reside en terrenos conferidos en 1787 por el rey Carlos III al capitán Fernando Fernández, corsario español que rendía servicios a la corona. A partir de 1804, el capitán comenzó a sembrar caña de azúcar y a destilar ron en la propiedad para su uso personal, pero no fue hasta 1880 cuando su bisnieto Pedro Fernández y su hijo Edmundo desarrollaron la fórmula y el proceso de destilación del conocido Ron del Barrilito. Además de la casona, la Hacienda abarca la tonelería, el trapiche, el área de añejamiento y el área de embotellamiento y empaque. Estas instalaciones, que también sirven como museo, continúan produciendo el popular ron, así como el alcoholado medicinal Santa Ana.

Exploring the Condado Lagoon Site - San Juan (Condado) - 2011 00014

Exploring the Condado Lagoon Site - San Juan (Condado) - 2011 00014



Vista de la laguna del Condado y sus alrededores ubicado entre los barrios de Condado y Miramar del pueblo de San Juan. En primer plano se puede ver una de las partes laterales del puente Dos Hermanos que conecta la comunidad de Condado con la isleta de San Juan. El puente es de vigas continuas en hormigón, el diseño de la base es de arcos semicirculares interrumpidos por pilares sobresalientes. Además, los pilares se extienden y se unen con los pilares que interrumpen la baranda lateral, estos a su vez sirven como la base de los postes de luz. En los alrededores se pueden ver diferentes tipos de materiales de construcción y la Laguna del Condado. El puente Dos Hermanos, también conocido como el puente número 1750. Gracias a la intención de los hermanos Behn de conectar la isleta de San Juan con la comunidad del Condado este fue construido por primera vez en 1908. Años más tarde, fue reconstruido e inaugurado nuevamente en el año 2011. En el 2013 la Autoridad de Carreteras recibió un reconocimiento por la construcción de este puente por la Federal Highway Administration (FHWA) siento este es el primer reconocimiento recibido de esta índole. La laguna de la bahía del Condado es un Parque Nacional con una Reserva Natural Estuarina desde su designación en el año 1992 por el Programa Nacional de Estuarios (NEP) administrada por la Agencia de Protección Ambiental de Estados Unidos (USEPA). Convirtiéndose así en el único estuario tropical y el único fuera de Estados Unidos en recibir esta designación. A partir del año 2005 se estableció lo que hoy se conoce como la Corporación para la Conservación del Estuario de la bahía de San Juan como una entidad sin fines de lucro.

Casa en la Calle Cuevillas 607 - San Juan (Miramar) - 2014 00037

Casa en la Calle Cuevillas 607 - San Juan (Miramar) - 2014 00037



Perspectiva de una entrada de la casa en la calle Cuevillas 607, en Miramar, San Juan. Este tramo se distingue por una escalera flanqueada por barandas y muros bajos que funcionan como pequeñas jardineras. A través de la escalera se accede a una de las puertas, la cual está protegida por una reja ornamental que exhibe un patrón geométrico. Las ventanas que flanquean la puerta son de aluminio, tipo persianas y también están protegidas con rejas. También son notables las pilastras que separan los tramos de la fachada y el alero. La casa es de dos niveles y está compuesta de mampostería, hormigón armado y madera. Su superficie exhibe el color rosado con detalles de blanco. Esta casa se construyó en 1913 siguiendo influencias del estilo resurgimiento del renacimiento francés o resurgimiento neoclásico francés. Sus dueños originales fueron el juez Luis Méndez Baz y su esposa, María Bagur. Tras visitar Francia, la pareja hizo construir su residencia siguiendo el diseño de un prototipo publicado en Nouvelles Maisons de Campagne, Paris et ses Environs, que mostraba fachadas y planos de casas de campo populares en París. Posteriormente la casa funcionó como residencia y taller para artistas como Lorenzo Homar, Juan Ramón Velázquez, Ada Bobonis y Aaron Salabarrías. Además, los herederos de los dueños originales establecieron una fundación para desarrollar un museo en esta residencia. Entre el 2018 y 2019 se llevó a cabo la restauración del edificio que dio lugar al establecimiento del Museo de Arte y Diseño de Miramar, también conocido como la Casa Rosada.

Teatro Yagüez - Mayagüez - 2011 00020

Teatro Yagüez - Mayagüez - 2011 00020



Detalle de la fachada del Teatro Yagüez, localizado entre las calles McKinley y Basora del municipio de Mayagüez. Desde esta perspectiva resalta una columna del pórtico, las pilastras, una lámpara de pared, las molduras de ovas y dardos, una cornisa, un friso, un alero con bombillas y las ventanas con vitrales de color verde, amarillo, rojo y azul. La superficie del edificio es de color amarillo con detalles de blanco. En su origen, en 1909, el teatro fue diseñado y construido de madera, acero y cinc, y se le conoció como la Casa del Arte Sonoro. El dueño original de este teatro fue Francisco Maymón Palmer. En el año 1919 un fuego consumió el edificio. En 1920 se llevó a cabo un nuevo diseño de estilo ecléctico, integrando materiales como el hormigón, la madera, el cristal, el mármol italiano y el yeso para las ornamentaciones. Durante la década de 1950 el teatro mostró signos de deterioro y en el periodo de 1977 a 1984 se llevaron a cabo trabajos de restauración bajo el auspicio del municipio de Mayagüez. Asimismo, durante el periodo de 2002 a 2008 se realizó una tercera restauración al teatro. Este teatro constituye uno de los principales escenarios artísticos y de gran valor histórico en el área oeste de Puerto Rico por acoger a importantes orquestas y compañías de drama y danza. Su arquitectura refleja elementos del neoclásico europeo, el neobarroco y de la arquitectura de principios del siglo XX que se conoció como la Belle Époque.

Condado Vanderbilt - San Juan (Condado) - 2013 00069

Condado Vanderbilt - San Juan (Condado) - 2013 00069



Vista del patio trasero del Hotel Condado Vanderbilt ubicado en la avenida Ashford del pueblo costero de San Juan. El hotel es de varios niveles con techo a cuatro aguas revestido por tejas y características del estilo resurgimiento español. El patio trasero tiene el piso cubierto por baldosas de cerámica. Además, está rodeado por una balaustrada de cristal modulada por pilares cuadrados que a su vez preside la costa del océano atlántico. Hay plantas en macetas decorativas, muebles de jardín, mesas con sombrillas a juego y remates decorativos con formas cónicas. Por otra parte, la fachada trasera del edificio tiene una extensión moderna con amplios ventanales de cristal interrumpidos por columnas cuadradas. También se puede ver un extremo de una de las torres laterales del hotel con ventanas dobles enmarcadas con molduras y balcones con balaustradas de cristal. Además, a la distancia se ve un mirador junto al parque Ventana al Mar y edificios. El Hotel Condado Vanderbilt fue comisionado en 1917 por Frederick William Vanderbilt. Finalmente el 16 de octubre de 1919 fue inaugurado el primer gran hotel de lujo del Caribe. En el año 1930 fue vendido y pasó a llamarse Hotel Condado, posteriormente en 1940 se convirtió en el primer hotel en la isla en tener un casino. Además, en 1950 volvieron a cambiar su nombre a Condado Beach Hotel y se añadieron habitaciones, salones de actividades y un restaurante. Luego de considerar su demolición fue incluido en el Registro Nacional de Lugares Históricos en el año 1988. Más recientemente fue remodelado entre los años 2008 a 2014 por los arquitectos Thomas S. Marvel y José Marchand Sifre añadiendo dos torres de suites modernas. Además, la planificación y restauración de los espacios estuvo a cargo del Arquitecto Jonathan Parks y la firma SOLSTICE Planning and Architecture. Los diseños interiores estuvieron a cargo del diseñador Jorge Roselló.

Calle de la Fortaleza 56 - Antigua Real Audiencia - Conservatorio De Artes Del Caribe - San Juan (Viejo San Juan) - 2011 00023

Calle de la Fortaleza 56 - Antigua Real Audiencia - Conservatorio De Artes Del Caribe - San Juan (Viejo San Juan) - 2011 00023



Antigua Real Audiencia, calle de la Fortaleza en el Viejo San Juan. Vista, desde el segundo piso, del patio interior de la casa de dos pisos estilo colonial español. Se observa una pared que tiene dos arcadas de medio punto, una en cada piso. Entre los arcos hay una pilastra que se extiende hasta la cornisa del segundo piso. Sobre esta cornisa se puede ver un segmento del parapeto que tiene dos desagües. Tras el parapeto se ve parte de la Torre Meteorológica y de Observación. El patio está cubierto con una tela metálica. Una balaustrada de madera bordea dos corredores del segundo nivel, el corredor de la pared de fondo y un corredor perpendicular. Este último tiene techo de madera y la balaustrada tiene pilares de madera torneada. El patio tiene losetas grises con textura de piedra. En las paredes hay lámparas modernas de forma ovalada. El piso de los corredores tiene losetas color terracota En primer plano se observa, a contraluz, el brocal de un pozo que tiene un arcón de metal ornamentado con volutas. A un lado del pozo se pueden ver una palmera en un tiesto y las ramas de un árbol. Originalmente esta casa fue la residencia del Dr. Francisco Oller y Ferrer, abuelo del pintor Francisco Oller y Cestero. En 1831 fue vendida al Estado y el 1832 pasó a ser la primera sede de la Real Audiencia Territorial. Alrededor del 1898 fue arrendada al Departamento de Agricultura de Estados Unidos y en otro momento se usó como Departamento de Estado. En 1992 la edificación fue dedicada a Don Fernando Chardón. Luego de un periodo de abandono fue restaurada en el año 2000 y asignada a las oficinas de Guías Turísticos y de Programas Federales adscritos a la Oficina del Gobernador. La Torre Meteorológica y de Observación fue diseñada por el ingeniero Manuel Maese, la orden para su construcción fue emitida en 1883.

Iglesia de San Jorge - San Juan (Condado) - 2014 00009

Iglesia de San Jorge - San Juan (Condado) - 2014 00009



Vista desde el interior de la Parroquia San Jorge ubicada en la comunidad de Condado del pueblo costero de San Juan. La iglesia es de dos niveles en hormigón con características del estilo neogótico pintada de color blanco y color gris. El interior está dividido en tres naves, la nave central se eleva un nivel adicional con techos abovedados. También tiene arcadas de arcos ojivales enmarcadas con molduras y flanqueadas por pilastras pares. Las naves laterales también tienen bancos de madera y puertas dobles de madera coronadas con vidrieras de colores enmarcadas con vierteaguas de color dorado. Al fondo, bajo un ábside semicircular se encuentra el altar presidido por una balaustrada y escaleras. Está decorado con un retablo al pie del cual está el sagrario y la mesa de altar cubierta por un mantel de tela blanco. A ambos lados del retablo hay estatuas de representaciones religiosas sobre ménsulas semicirculares, sillas, ambones y jarrones decorativos. La iglesia San Jorge fue inaugurada en el año 1920 siendo oficialmente fundada canónicamente en 1924 tras ser desmembrada de las Parroquias San Mateo y Sagrado Corazón. Su diseño inicial estuvo a cargo de la firma Martínez y Lázaro siendo finalizado en dos años. Seis años después se comienza la construcción de los edificios aledaños a la academia San Jorge. Posteriormente en 1940 la fachada fue remodelada por el arquitecto Rafael Carmoega. Más recientemente en el año 2017 fue restaurada en fases por la firma Astrid Díaz: ADV Architects.

Calle de la Fortaleza 56 - Antigua Real Audiencia - Conservatorio De Artes Del Caribe - San Juan (Viejo San Juan) - 2012 00006

Calle de la Fortaleza 56 - Antigua Real Audiencia - Conservatorio De Artes Del Caribe - San Juan (Viejo San Juan) - 2012 00006



Antigua Real Audiencia, calle de la Fortaleza en el Viejo San Juan. Vista parcial de la Torre Meteorológica y de Observación ubicada en el techo de la casa de dos pisos estilo colonial español. Se observa un lado del área de observación de la torre. Esta sección está compuesta por paredes de madera sostenidas por un armazón de barras de metal. Las paredes tienen ventanans fijas con celosías y una puerta, también con celosías y están rodeadas por una baranda de metal. La torre tiene una cúpula cubierta por láminas de metal. Al fondo se ven casas y edificios de la ciudad antigua entre los que se distinguen el antiguo Seminario Conciliar de San Idelfonso y el Cuartel de Ballajá. Originalmente esta casa fue la residencia del Dr. Francisco Oller y Ferrer, abuelo del pintor Francisco Oller y Cestero. En 1831 fue vendida al Estado y el 1832 pasó a ser la primera sede de la Real Audiencia Territorial. Alrededor del 1898 fue arrendada al Departamento de Agricultura de Estados Unidos y en otro momento se usó como Departamento de Estado. En 1992 la edificación fue dedicada a Don Fernando Chardón. Luego de un periodo de abandono fue restaurada en el año 2000 y asignada a las oficinas de Guías Turísticos y de Programas Federales adscritos a la Oficina del Gobernador. La Torre Meteorológica y de Observación fue diseñada por el ingeniero Manuel Maese, la orden para su construcción fue emitida en 1883.

Condado Vanderbilt - San Juan (Condado) - 2013 00010

Condado Vanderbilt - San Juan (Condado) - 2013 00010



Vista del interior del Hotel Condado Vanderbilt ubicado en la avenida Ashford del pueblo costero de San Juan. El hotel es de varios niveles con características del estilo resurgimiento español. En el interior se distingue una sala de conferencias, la habitación tiene el piso revestido por una alfombra de color claro, las paredes revestidas de madera, una consola suspendida sobre la cual hay un cuadro decorativo. Además, la pared de fondo tiene un televisor, lámparas de pared y lámparas de piso. Del techo cuelga una lámpara con forma rectangular a juego con las de la pared. También hay una mesa de madera rectangular acompañada por sillas de oficina. El Hotel Condado Vanderbilt fue comisionado en 1917 por Frederick William Vanderbilt. Finalmente el 16 de octubre de 1919 fue inaugurado el primer gran hotel de lujo del Caribe. En el año 1930 fue vendido y pasó a llamarse Hotel Condado, posteriormente en 1940 se convirtió en el primer hotel en la isla en tener un casino. Además, en 1950 volvieron a cambiar su nombre a Condado Beach Hotel y se añadieron habitaciones, salones de actividades y un restaurante. Luego de considerar su demolición fue incluido en el Registro Nacional de Lugares Históricos en el año 1988. Más recientemente fue remodelado entre los años 2008 a 2014 por los arquitectos Thomas S. Marvel y José Marchand Sifre añadiendo dos torres de suites modernas. Además, la planificación y restauración de los espacios estuvo a cargo del Arquitecto Jonathan Parks y la firma SOLSTICE Planning and Architecture. Los diseños interiores estuvieron a cargo del diseñador Jorge Roselló.

Iglesia de San Jorge - San Juan (Condado) - 2014 00072

Iglesia de San Jorge - San Juan (Condado) - 2014 00072



Vista lateral y trasera de la Parroquia San Jorge ubicada en la comunidad de Condado del pueblo costero de San Juan. La iglesia es de dos niveles en hormigón con características del estilo neogótico pintada de color gris y color blanco con techo a dos aguas revestido por tejas. Desde la fachada lateral se pueden ver varias ventanas de claristorios bajo arcos ojivales coronadas con vierteaguas y tracerías. En la parte de abajo de las ventanas hay conductos de aire acondicionados. En la parte frontal adosada al edificio está la torre del campanario la cual se eleva varios niveles adicionales y tiene una forma piramidal. Desde el segundo nivel se ve que tiene una moldura plana con forma de diamante que enmarca una ventana de cristal pintado y flanqueada por contrafuertes. La parte de arriba de la torre del campanario tiene ventanas bajo arcos ojivales decorados con cresterías, vierteaguas y parteluces. Sobre las ventanas se ven dos emblemas a cada lado, gárgolas y ornamentación en bajorrelieve. Además, de que la parte superior está acompañada por varios contrafuertes que se alzan y a su vez sostienen pináculos ornamentados. Por otra parte, en los alrededores de la iglesia se pueden ver edificios con diferentes características y vehículos transitando la calle. La iglesia San Jorge fue inaugurada en el año 1920 siendo oficialmente fundada canónicamente en 1924 tras ser desmembrada de las Parroquias San Mateo y Sagrado Corazón. Su diseño inicial estuvo a cargo de la firma Martínez y Lázaro siendo finalizado en dos años. Seis años después se comienza la construcción de los edificios aledaños a la academia San Jorge. Posteriormente en 1940 la fachada fue remodelada por el arquitecto Rafael Carmoega. Más recientemente en el año 2017 fue restaurada en fases por la firma Astrid Díaz: ADV Architects.

Calle de la Fortaleza 56 - Antigua Real Audiencia - Conservatorio De Artes Del Caribe - San Juan (Viejo San Juan) - 2011 00024

Calle de la Fortaleza 56 - Antigua Real Audiencia - Conservatorio De Artes Del Caribe - San Juan (Viejo San Juan) - 2011 00024



Antigua Real Audiencia, calle de la Fortaleza en el Viejo San Juan. Vista, en plano contrapicado,desde el patio interior de la casa de dos pisos estilo colonial español. Se observa la Torre Meteorológica y de Observación, esta torre octagonal fue construida en mampostería, acero y madera. La sección de mampostería tiene pequeños óculos en una de las paredes y una cornisa con ménsulas. Sobre ésta se encuentra el área de observación, que es de madera y consiste de una puerta y varias ventanas con celosías, está protegida por una baranda y tiene una cúpula de metal. La torre tiene paredes amarillas, la cornisa es blanca, el área de observación es verde al igual que la baranda y la cúpula tiene color marrón. Se puede notar que el patio interior está cubierto por una tela metálica. Originalmente esta casa fue la residencia del Dr. Francisco Oller y Ferrer, abuelo del pintor Francisco Oller y Cestero. En 1831 fue vendida al Estado y el 1832 pasó a ser la primera sede de la Real Audiencia Territorial. Alrededor del 1898 fue arrendada al Departamento de Agricultura de Estados Unidos y en otro momento se usó como Departamento de Estado. En 1992 la edificación fue dedicada a Don Fernando Chardón. Luego de un periodo de abandono fue restaurada en el año 2000 y asignada a las oficinas de Guías Turísticos y de Programas Federales adscritos a la Oficina del Gobernador. La Torre Meteorológica y de Observación fue diseñada por el ingeniero Manuel Maese, la orden para su construcción fue emitida en 1883.

Condado Vanderbilt - San Juan (Condado) - 2013 00059

Condado Vanderbilt - San Juan (Condado) - 2013 00059



Vista desde el patio trasero del Hotel Condado Vanderbilt ubicado en la avenida Ashford del pueblo costero de San Juan. El hotel es de varios niveles con techos a cuatro aguas y características del estilo resurgimiento español. La fachada trasera del hotel tiene ventanas dobles de madera y cristal en diferentes tamaños rectangulares, el techo revestido por tejas y una extensión moderna de un solo nivel con grandes ventanales de cristal. Además, el patio trasero tiene el piso cubierto por baldosas, está decorado con muebles, macetas decorativas y zonas ajardinadas. También tiene unas escaleras con barandales metálicos y un gazebo moderno rodeado con puertas de cristal y aleros saledizos con vigas expuestas. El Hotel Condado Vanderbilt fue comisionado en 1917 por Frederick William Vanderbilt. Finalmente el 16 de octubre de 1919 fue inaugurado el primer gran hotel de lujo del Caribe. En el año 1930 fue vendido y pasó a llamarse Hotel Condado, posteriormente en 1940 se convirtió en el primer hotel en la isla en tener un casino. Además, en 1950 volvieron a cambiar su nombre a Condado Beach Hotel y se añadieron habitaciones, salones de actividades y un restaurante. Luego de considerar su demolición fue incluido en el Registro Nacional de Lugares Históricos en el año 1988. Más recientemente fue remodelado entre los años 2008 a 2014 por los arquitectos Thomas S. Marvel y José Marchand Sifre añadiendo dos torres de suites modernas. Además, la planificación y restauración de los espacios estuvo a cargo del Arquitecto Jonathan Parks y la firma SOLSTICE Planning and Architecture. Los diseños interiores estuvieron a cargo del diseñador Jorge Roselló.

Bastión de las Palmas de San José - San Juan (Viejo San Juan) - 2012 00018

Bastión de las Palmas de San José - San Juan (Viejo San Juan) - 2012 00018



Bastión de las Palmas de San José, localizado en la esquina de las calles Tetuán y San José en el Viejo San Juan. Fue construido en el siglo XVII, en 1625 luego del ataque holandés al Viejo San Juan. Sse observa una plaza con dos personas, tres banquetas, unas rejas con barandas, escalones y árboles. También se aprecia la parte superior de una pared amurallada de mampostería de piedra y ladrillos interrumpida por una garita con cúpula semiesférica, clave y cornisas. Posteriormente el Bastión de las Palmas de San José fue un parque. En el lado izquierdo de la imagen se encuentra el antiguo edificio de la Cámara de Comercio de Puerto Rico. Fue diseñado en 1926 por el arquitecto Antonín Nechodoma para ser la sede del Federal Land Bank of Baltimore en Puerto Rico. Anteriormente se le conocía como la Lonja de Valores y Víveres de San Juan. En 1937 fue adquirido por la Cámara de Comercio de Puerto Rico y en el 2019 fue vendido a un privado. El edificio está pintado de color anaranjado y blanco. Tiene ventanas suspendidas rectangulares y un portón con rejas color verde. En el lado derecho de la imagen se ubica el Paseo de la Princesa. Se aprecian cuatro pilares anaranjados con el tope escalonado, la acera, personas, automóviles y árboles. De igual forma, se nota la parte superior del United States Customs House, también conocido como la Aduana de San Juan. Su estilo arquitectónico es representativo del resurgimiento español y su construcción es obra del arquitecto Albert B. Nichols. Fue construido en 1924 y está pintado de color rosado y terracota. Este edificio fue incluido en el Registro Nacional de Lugares Históricos en 1988. A distancia se divisa la bahía de San Juan, el muelle 1, un barco de crucero y parte de los predios del Aeropuerto Regional Comandante Fernando Luis Ribas Dominicci, conocido también como el Aeropuerto de Isla Grande. A distancia ubica el edificio de la Antiguo Correo y Corte Federal José V. Toledo, el cual tiene una combinación de estilos arquitectónicos, como el beaux arts, federal y renacimiento español. Fue diseñado por Oscar Wenderoth y está pintado de color crema y terracota. Tiene una torre coronada por una linterna con pináculo y tejas árabes. Se notan las ventanas rectangulares de cristal y los parapetos. El edificio fue incluido en el Registro Nacional de Lugares Históricos en 1986.

Casa Defilló Amiguet - Mayagüez - 2012 00001

Casa Defilló Amiguet - Mayagüez - 2012 00001



Fachada de la casa Defilló Amiguet localizada en la calle Méndez Vigo 21 en Mayagüez. La casa está elevada en un podio y tiene dos niveles. El primer nivel exhibe arcos de medio punto flanqueados por pilastras emparejadas. La puerta principal es de doble hoja con lumbreras y montantes. Algunos de los arcos integran rejas y otros exhiben murales que simulan puertas de doble hoja. La transición hacia el segundo nivel está acentuada por un friso ornamental y una cornisa. El segundo nivel se distingue por un balcón con baranda de metal, columnas de fuste acanalado, capiteles jónicos y puertas de madera con lumbreras y vidrios. Asimismo, es visible un vano de ventana y un parapeto. El tramo del segundo nivel es de madera machihembrada. La superficie de la casa es de color amarillo con detalles de blanco. Frente a la casa se ubica un par de automóviles. Esta casona fue construida en la década de 1840 en el estilo neoclásico colonial. Esta casa es de gran valor histórico, ya que allí nació Pilar Defilló Amiguet, la madre del ilustre músico Pablo Casals Defilló. Además, desde sus balcones, Casals realizó su primer concierto en el continente americano tras llegar a Puerto Rico el 17 de diciembre de 1955. Esta residencia fue adquirida y restaurada por el municipio de Mayagüez como un homenaje a Pilar Defilló Amiguet con el fin de difundir el legado musical y cultural del maestro Casals y la familia Defilló. En el 2015 la casona se convirtió en sede del Museo Pablo Casals de Puerto Rico.

Calle de la Fortaleza 56 - Antigua Real Audiencia - Conservatorio De Artes Del Caribe - San Juan (Viejo San Juan) - 2011 00054

Calle de la Fortaleza 56 - Antigua Real Audiencia - Conservatorio De Artes Del Caribe - San Juan (Viejo San Juan) - 2011 00054



Antigua Real Audiencia, calle de la Fortaleza en el Viejo San Juan. Vista de la fachada de la casa de dos pisos estilo colonial español. En el primer nivel se observan cinco arcos adintelados: la entrada principal en el centro, una puerta y una ventana a un lado y dos ventanas al otro lado. Las ventanas tienen antepechos de balaustres de madera. Una moldura continua se extiende sobre la base del edificio y alrededor de la entrada, esta solo es interrumpida en la puerta del extremo. A los lados de la entrada hay dos lámparas de techo tipo farol y bajo una de la lámparas hay una placa conmemorativa. Un extenso balcón abierto con balaustrada de madera une los cinco vanos del segundo nivel. Cada vano tiene una puerta de doble hoja con celosías y paneles de vidrio en la parte superior. La casa tiene una hilada seguida por una cornisa delgada y un parapeto liso con moldura en el borde. En el techo se ve parte de la Torre Meteorológica y de Observación, la torre octagonal fue construida en mampostería, acero y madera. La casa está pintada de amarillo con las molduras blancas, los balaustres son verdes. Tras la torre se pueden ver partes de edificios cercanos. Son visibles un tramo de la acera pavimentada con losetas, varias balizas de metal y un segmento de la calle, pavimentada con adoquines. Los dos edificios contiguos son parcialmente visibles. A un lado el Palacio Rojo y al otro lado el edificio localizado en la esquina con la calle del Cristo. La vista es desde el techo del edificio número 59. Originalmente esta casa fue la residencia del Dr. Francisco Oller y Ferrer, abuelo del pintor Francisco Oller y Cestero. En 1831 fue vendida al Estado y el 1832 pasó a ser la primera sede de la Real Audiencia Territorial. Alrededor del 1898 fue arrendada al Departamento de Agricultura de Estados Unidos y en otro momento se usó como Departamento de Estado. En 1992 la edificación fue dedicada a Don Fernando Chardón. Luego de un periodo de abandono fue restaurada en el año 2000 y asignada a las oficinas de Guías Turísticos y de Programas Federales adscritos a la Oficina del Gobernador. La Torre Meteorológica y de Observación fue diseñada por el ingeniero Manuel Maese, la orden para su construcción fue emitida en 1883.

Iglesia de San Jorge - San Juan (Condado) - 2014 00005

Iglesia de San Jorge - San Juan (Condado) - 2014 00005



Vista desde el interior de la Parroquia San Jorge ubicada en la comunidad de Condado del pueblo costero de San Juan. La iglesia es de dos niveles en hormigón con características del estilo neogótico pintada de color blanco y color gris. El interior está dividido en tres naves, la nave central se eleva un nivel adicional con techos abovedados. Las bóvedas son cuatripartitas unidas por espinazos, algunos de estos sirven como la base para las lámparas colgantes. Además, el claristorio tiene ventanas de cristal bajo arcos ojivales coronadas con vierteaguas y tracerías lobuladas. La nave central también tiene escudos en bajorrelieve, arcadas de arcos ojivales enmarcadas con molduras y flanqueadas por pilastras pares que a su vez conectan con las separaciones de las bóvedas. Los espacios interiores también tienen varias filas de bancos de madera y mesas. Por otra parte, la nave lateral derecha también tiene bancos de madera y ventanas dobles de madera coronadas con vidrieras de colores. También se puede ver un altar y un vano presididio por cancelas. Al fondo, bajo un ábside semicircular se encuentra el altar presidido por una balaustrada y escaleras. Está decorado con ambones, un retablo al pie del cual está el sagrario y la mesa de altar cubierta por un mantel de tela. A ambos lados del retablo hay estatuas de representaciones religiosas sobre ménsulas semicirculares, sillas y jarrones decorativos. La iglesia San Jorge fue inaugurada en el año 1920 siendo oficialmente fundada canónicamente en 1924 tras ser desmembrada de las Parroquias San Mateo y Sagrado Corazón. Su diseño inicial estuvo a cargo de la firma Martínez y Lázaro siendo finalizado en dos años. Seis años después se comienza la construcción de los edificios aledaños a la academia San Jorge. Posteriormente en 1940 la fachada fue remodelada por el arquitecto Rafael Carmoega. Más recientemente en el año 2017 fue restaurada en fases por la firma Astrid Díaz: ADV Architects.

Capilla Nuestra Señora de Lourdes - San Juan (Miramar) - 2011 00035

Capilla Nuestra Señora de Lourdes - San Juan (Miramar) - 2011 00035



Vista del interior de la nave principal de la Capilla Nuestra Señora de Lourdes, en Miramar, San Juan. El techo es de madera, dispuesto a dos aguas y con cerchas ornamentales desde las que cuelgan lámparas tipo arañas. El piso está cubierto con losa isleña que forma un motivo geométrico en tonalidades de blanco y rojo. El área del altar y del ábside están acompañados de una mesa de altar, un ambón y la representación de Nuestra Señora de Lourdes. Además, sobre el altar resalta un rosetón con un vitral en tonalidades de azul, violeta, verde, amarillo y blanco. Las ventanas laterales se componen de tres paneles de vitrales con tracerías. En las paredes cuelgan representaciones de las estaciones del Vía Crucis. A través de la nave principal se encuentran las sillerías de madera. La construcción de la Capilla Nuestra Señora de Lourdes se inició en 1907 y su inauguración tuvo lugar en 1908. Este edificio es representativo de las iglesias protestantes que se establecieron en Puerto Rico tras el cambio de régimen en 1898. Fue el primer templo de la Iglesia Metodista Episcopal de Puerto Rico, luego, en 1917, pasó a manos de la Iglesia Unida de Puerto Rico y finalmente, a la Iglesia Católica Romana, adscrita a la arquidiócesis de San Juan en 1959. Su diseño y características corresponden al estilo neogótico o resurgimiento gótico. Este diseño, además, imita a un edificio de la Iglesia Episcopal en la calle North Market, en Jacksonville Florida, donde su arquitecto tenía su residencia entonces.

Teatro Yagüez - Mayagüez - 2011 00040

Teatro Yagüez - Mayagüez - 2011 00040



Vista hacia la sala principal y el escenario del Teatro Yagüez, localizado entre las calles McKinley y Basora del municipio de Mayagüez. Las butacas de la sala principal son del color rojo y contrastan con el color blanco de la yesería ornamental del parapeto de los palcos y las paredes de mármol. La boca del escenario tiene una cortina dispuesta hasta la mitad y a través de esta son visibles varios objetos como sillas, mesas, tablas y paneles. En el centro del techo, es notable parcialmente la lámpara de cristal tipo araña. Además, la sala principal del teatro tiene tres niveles y una forma de herradura o forma de "U". En su origen, en 1909, el teatro fue diseñado y construido de madera, acero y cinc, y se le conoció como la Casa del Arte Sonoro. El dueño original de este teatro fue Francisco Maymón Palmer. En el año 1919 un fuego consumió el edificio. En 1920 se llevó a cabo un nuevo diseño de estilo ecléctico, integrando materiales como el hormigón, la madera, el cristal, el mármol italiano y el yeso para las ornamentaciones. Durante la década de 1950 el teatro mostró signos de deterioro y en el periodo de 1977 a 1984 se llevaron a cabo trabajos de restauración bajo el auspicio del municipio de Mayagüez. Asimismo, durante el periodo de 2002 a 2008 se realizó una tercera restauración al teatro. Este teatro constituye uno de los principales escenarios artísticos y de gran valor histórico en el área oeste de Puerto Rico por acoger a importantes orquestas y compañías de drama y danza. Su arquitectura refleja elementos del neoclásico europeo, el neobarroco y de la arquitectura de principios del siglo XX que se conoció como la Belle Époque.

Condado Vanderbilt - San Juan (Condado) - 2013 00203

Condado Vanderbilt - San Juan (Condado) - 2013 00203



Vista desde el interior del Hotel Condado Vanderbilt ubicado en la avenida Ashford del pueblo costero de San Juan. El hotel es de varios niveles con características del estilo resurgimiento español. Los espacios interiores están pintados en varios tonos de color rosa. Además, el vestíbulo tiene dos niveles con pisos de mármol de motivo ajedrezado, techos abovedados y lámparas de pared metálicas. La nave lateral tiene una puerta doble de madera con ventanas de cristal bajo arcos semicirculares. Los espacios están separados con vanos semicirculares coronados con pequeños emblemas y balaustradas de hierro ornamental con pasamanos de madera. También se pueden ver unas escaleras es espiral de mármol negro y sillas de madera. Por otra parte, la pared de fondo en la nave central tiene un espejo. El Hotel Condado Vanderbilt fue comisionado en 1917 por Frederick William Vanderbilt. Finalmente el 16 de octubre de 1919 fue inaugurado el primer gran hotel de lujo del Caribe. En el año 1930 fue vendido y pasó a llamarse Hotel Condado, posteriormente en 1940 se convirtió en el primer hotel en la isla en tener un casino. Además, en 1950 volvieron a cambiar su nombre a Condado Beach Hotel y se añadieron habitaciones, salones de actividades y un restaurante. Luego de considerar su demolición fue incluido en el Registro Nacional de Lugares Históricos en el año 1988. Más recientemente fue remodelado entre los años 2008 a 2014 por los arquitectos Thomas S. Marvel y José Marchand Sifre añadiendo dos torres de suites modernas. Además, la planificación y restauración de los espacios estuvo a cargo del Arquitecto Jonathan Parks y la firma SOLSTICE Planning and Architecture. Los diseños interiores estuvieron a cargo del diseñador Jorge Roselló.

Teatro Yagüez - Mayagüez - 2011 00028

Teatro Yagüez - Mayagüez - 2011 00028



Perspectiva de la sala principal y el escenario del Teatro Yagüez, localizado entre las calles McKinley y Basora del municipio de Mayagüez. La sala tiene tres niveles y una forma de "U" o forma de herradura. Las butacas son rojas y los palcos están delimitados por parapetos ornamentados con bajorrelieves de color blanco. Del centro del techo cuelga una gran lámpara de cristal tipo araña. Al fondo es visible el área del escenario en el que se ubican varios objetos de madera. En su origen, en 1909, el teatro fue diseñado y construido de madera, acero y cinc, y se le conoció como la Casa del Arte Sonoro. El dueño original de este teatro fue Francisco Maymón Palmer. En el año 1919 un fuego consumió el edificio. En 1920 se llevó a cabo un nuevo diseño de estilo ecléctico, integrando materiales como el hormigón, la madera, el cristal, el mármol italiano y el yeso para las ornamentaciones. Durante la década de 1950 el teatro mostró signos de deterioro y en el periodo de 1977 a 1984 se llevaron a cabo trabajos de restauración bajo el auspicio del municipio de Mayagüez. Asimismo, durante el periodo de 2002 a 2008 se realizó una tercera restauración al teatro. Este teatro constituye uno de los principales escenarios artísticos y de gran valor histórico en el área oeste de Puerto Rico por acoger a importantes orquestas y compañías de drama y danza. Su arquitectura refleja elementos del neoclásico europeo, el neobarroco y de la arquitectura de principios del siglo XX que se conoció como la Belle Époque.

El Cortijo - Barranquitas - 2012 00107

El Cortijo - Barranquitas - 2012 00107



Vista frontal de la residencia conocida como El Cortijo en el pueblo de Barranquitas. La residencia es de dos niveles más una torre que se eleva un nivel adicional, está cimentada en concreto armado con techos cubierto por tejas. Además, su diseño está inspirado en el estilo del resurgimiento colonial español. La casa tiene ventanas de madera y cristal algunas cubiertas por rejas ornamentales de hierro y otras están coronadas con aleros cubiertos por tejas. También se pueden ver balcones voladizos con puertas dobles de madera y cristal sostenidos por ménsulas. Uno de los balcones goza de una balaustrada de madera modulada por pilares, lámparas colgantes y el otro es abierto y tiene baranda de hierro. Decorando la fachada se aprecian tragaluces y una balconera en el descanso de la escalera con puerta doble de cristal enmarcada y coronada con un entablamento. Por otra parte, la entrada es a través de un pórtico presidido por escalones cubiertos por losas de cerámica con motivos ornamentales y una arcada modulada por una columna compuesta, sobre la cual se distingue un emblema en relieve. En el pórtico se visualizan plantas en macetas decorativas y una pequeña estatua de león. El Cortijo fue construido en 1939 como residencia de verano para la familia Lozana Fabián, relacionados a la administración de centrales azucareras en Puerto Rico. A lo largo de los años ha cambiado de dueños, pero su diseño original no ha sido alterado.

Teatro Yagüez - Mayagüez - 2011 00054

Teatro Yagüez - Mayagüez - 2011 00054



Vista del palco del tercer y segundo nivel del Teatro Yagüez, localizado entre las calles McKinley y Basora del municipio de Mayagüez. Desde esta perspectiva son visibles las barandas, las butacas rojas y el parapeto que delimita los palcos decorados con yesería de motivos de guirnaldas. Además, resaltan las paredes rojas, una cornisa, el techo moldurado y la cabina de control de iluminación del teatro. En su origen, en 1909, el teatro fue diseñado y construido de madera, acero y cinc, y se le conoció como la Casa del Arte Sonoro. El dueño original de este teatro fue Francisco Maymón Palmer. En el año 1919 un fuego consumió el edificio. En 1920 se llevó a cabo un nuevo diseño de estilo ecléctico, integrando materiales como el hormigón, la madera, el cristal, el mármol italiano y el yeso para las ornamentaciones. Durante la década de 1950 el teatro mostró signos de deterioro y en el periodo de 1977 a 1984 se llevaron a cabo trabajos de restauración bajo el auspicio del municipio de Mayagüez. Asimismo, durante el periodo de 2002 a 2008 se realizó una tercera restauración al teatro. Este teatro constituye uno de los principales escenarios artísticos y de gran valor histórico en el área oeste de Puerto Rico por acoger a importantes orquestas y compañías de drama y danza. Su arquitectura refleja elementos del neoclásico europeo, el neobarroco y de la arquitectura de principios del siglo XX que se conoció como la Belle Époque.

Teatro Yagüez - Mayagüez - 2011 00017

Teatro Yagüez - Mayagüez - 2011 00017



Detalle de los vitrales en la fachada del Teatro Yagüez, localizado entre las calles McKinley y Basora del municipio de Mayagüez. Los vitrales exhiben motivos geométricos y vidrios de tonalidades de verde, amarillo, azul y rojo. Estos se ubican sobre los montantes de las puertas de paneles del primer nivel y en las ventanas del segundo nivel. Estos vitrales están flanqueados por pilastras coronadas con ménsulas ornamentales y con focos que sobresalen desde el cuerpo de cada una de estas pilastras. La parte superior del edificio se distingue por una cornisa, un friso con paneles y una moldura de ovas y dardos. A través del alero destaca una serie de bombillas. La superficie del edificio del teatro es de color amarilla con detalles de color blanco. En su origen, en 1909, el teatro fue diseñado y construido de madera, acero y cinc, y se le conoció como la Casa del Arte Sonoro. El dueño original de este teatro fue Francisco Maymón Palmer. En el año 1919 un fuego consumió el edificio. En 1920 se llevó a cabo un nuevo diseño de estilo ecléctico, integrando materiales como el hormigón, la madera, el cristal, el mármol italiano y el yeso para las ornamentaciones. Durante la década de 1950 el teatro mostró signos de deterioro y en el periodo de 1977 a 1984 se llevaron a cabo trabajos de restauración bajo el auspicio del municipio de Mayagüez. Asimismo, durante el periodo de 2002 a 2008 se realizó una tercera restauración al teatro. Este teatro constituye uno de los principales escenarios artísticos y de gran valor histórico en el área oeste de Puerto Rico por acoger a importantes orquestas y compañías de drama y danza. Su arquitectura refleja elementos del neoclásico europeo, el neobarroco y de la arquitectura de principios del siglo XX que se conoció como la Belle Époque.

Archivo General - Antiguo Hospital Civil - San Juan (Puerta de Tierra) - 2009 00002

Archivo General - Antiguo Hospital Civil - San Juan (Puerta de Tierra) - 2009 00002



Vista frontal del Archivo General y Biblioteca Nacional de Puerto Rico ubicado en la comunidad de Puerta de Tierra del pueblo costero de San Juan. El edificio es de tres niveles en mampostería y ladrillo con características del estilo neoclásico. Está pintado en tonos de amarillo y color blanco. Desde el Parque Luis Muñoz Rivera se puede ver la calle transitada y el edificio del archivo. El primer nivel tiene zonas estriadas además, tiene ventanas de madera pintadas de color azul y cristal con persianas y soles truncos bajo arcos de medio punto enmarcados con molduras planas. Las del segundo nivel están coronadas con espinazos y al pie tienen molduras salientes a modo de soporte. Modulando las ventanas hay pilastras en pares de dos que sostienen un entablamento corrido y a su vez se alzan y sostienen el entablamento del segundo nivel sobre el cual se proyecta un parapeto bajo. La fachada frontal es oblicua y en medio tiene la entrada a través de una puerta doble de cristal bajo un arco de medio punto enmarcado con molduras planas. Sobre esta hay una ventana como las demás flanqueada por columnas pares de órden dórico que a su vez sostienen un frontón triangular. El antiguo Hospital Civil fue el último edificio erigido por el gobierno Español en la Isla entre los años 1877-1887. A pesar de que fue construido como hospital fue utilizado como Cárcel provincial y posteriormente como destilería. Años más tarde, ante una amenaza de demolición el Instituto de Cultura Puertorriqueña lo adquirió y lo restauró para albergar documentos históricos. A partir del año 1973 trasladaron el Archivo General y la Biblioteca Nacional de Puerto Rico a este espacio. Además, el edificio fue incluido en el Registro Nacional de Lugares Históricos en el año 1976.

Condado Vanderbilt - San Juan (Condado) - 2013 00037

Condado Vanderbilt - San Juan (Condado) - 2013 00037



Vista del interior del Hotel Condado Vanderbilt ubicado en la avenida Ashford del pueblo costero de San Juan. El hotel es de varios niveles con características del estilo resurgimiento español. El salón de actividades tiene el piso cubierto por una alfombra con patrones florales en colores difusos. El salón también tiene un corredor lateral con techo abovedado y puertas dobles de cristal cubiertas por cortinas de tela. Al fondo, se distinguen un cuadro decorativo sobre una mesa, dos sillas a juego, una maceta decorativa y una persona de pie. El Hotel Condado Vanderbilt fue comisionado en 1917 por Frederick William Vanderbilt. Finalmente el 16 de octubre de 1919 fue inaugurado el primer gran hotel de lujo del Caribe. En el año 1930 fue vendido y pasó a llamarse Hotel Condado, posteriormente en 1940 se convirtió en el primer hotel en la isla en tener un casino. Además, en 1950 volvieron a cambiar su nombre a Condado Beach Hotel y se añadieron habitaciones, salones de actividades y un restaurante. Luego de considerar su demolición fue incluido en el Registro Nacional de Lugares Históricos en el año 1988. Más recientemente fue remodelado entre los años 2008 a 2014 por los arquitectos Thomas S. Marvel y José Marchand Sifre añadiendo dos torres de suites modernas. Además, la planificación y restauración de los espacios estuvo a cargo del Arquitecto Jonathan Parks y la firma SOLSTICE Planning and Architecture. Los diseños interiores estuvieron a cargo del diseñador Jorge Roselló.

Capilla Nuestra Señora de Lourdes - San Juan (Miramar) - 2011 00034

Capilla Nuestra Señora de Lourdes - San Juan (Miramar) - 2011 00034



Vista de la nave principal de la Capilla Nuestra Señora de Lourdes, en Miramar, San Juan. A través de la nave se encuentran las sillas de madera y resaltan las losas nativas o isleñas que cubren el piso formando un motivo geométrico en tonalidades de blanco y rojo. El altar y el ábside se distinguen por estar acompañados de una mesa y una representación de Nuestra Señora de Lourdes. En la parte superior del altar sobresale un rosetón con vitrales en tonalidades de azul, violeta, amarillo, blanco y verde. Las ventanas del lateral tienen paneles con vitrales y tracerías. El techo es de madera, dispuesto a dos aguas y con cerchas de las que cuelgan lámparas tipo arañas. También son visibles diversos objetos colgados en la pared con representaciones iconográficas cristianas, como lo son las estaciones del Vía Crucis. La construcción de la Capilla Nuestra Señora de Lourdes se inició en 1907 y su inauguración tuvo lugar en 1908. Este edificio es representativo de las iglesias protestantes que se establecieron en Puerto Rico tras el cambio de régimen en 1898. Fue el primer templo de la Iglesia Metodista Episcopal de Puerto Rico, luego, en 1917, pasó a manos de la Iglesia Unida de Puerto Rico y finalmente, a la Iglesia Católica Romana, adscrita a la arquidiócesis de San Juan en 1959. Su diseño y características corresponden al estilo neogótico o resurgimiento gótico. Este diseño, además, imita a un edificio de la Iglesia Episcopal en la calle North Market, en Jacksonville Florida, donde su arquitecto tenía su residencia entonces.

Ateneo Puertorriqueño - San Juan (Viejo San Juan) - 2011 00041

Ateneo Puertorriqueño - San Juan (Viejo San Juan) - 2011 00041



El Ateneo Puertorriqueño localizado en el barrio Puerta de Tierra en el Viejo San Juan. Fue fundado en 1876 y construido por el ingeniero Ramón Carbia Burt en 1923. Es la institución cultural más antigua de Puerto Rico, también se le conoce como "la Docta Casa". Su estilo arquitectónico es representativo del neoárabe. Fue nominado para el Registro Nacional de Lugares Históricos en 1984. Está pintado de color blanco y terracota. La imagen es una vista de la fachada lateral del edificio. Se observa un techo plano con parapetos, tiene molduras en la parte superior y una extensión de construcción con aleros cubiertos de tejas, también posee seis ventanas de cristal con marcos de madera abisagradas y un azulejo rectangular. Tiene otra extensión de construcción con ornamentaciones blancas en la parte superior. En el lado izquierdo de la imagen se ve un estacionamiento con varios automóviles, postes de servicio y árboles. En el lado derecho hay una acera, automóviles, árboles, una calle y se ve el estacionamiento multipisos del Departamento de Hacienda de Puerto Rico. A distancia adyacente al Ateneo se ve el techo cubierto de tejas de la Biblioteca Carnegie. Este edificio pertenece al estilo arquitectónico neoclásico y fue diseñado también por Ramón Carbia Burt en 1915. Posteriormente el Ateneo Puertorriqueño se dedicó a fomentar el teatro, música, cine, literatura, historia, ciencias, ciencias morales y políticas y las artes plásticas puertorriqueñas.

Banco Popular de Puerto Rico - San Juan (Viejo San Juan) - 2012 00016

Banco Popular de Puerto Rico - San Juan (Viejo San Juan) - 2012 00016



Banco Popular de Puerto Rico localizado en el Viejo San Juan. Fue inaugurado en 1939 y diseñado por el arquitecto Chauncey W. Riley y construido por los ingenieros José Benítez y Gautier, Manuel Miró y Saudí y Juan M. Beltrán Carrasquillo. El banco fue construido donde originalmente se ubicaba el Banco Territorial y Agrícola de Puerto Rico a finales del siglo XIX. Su estilo arquitectónico es representativo del art déco. Está pintado de color crema, blanco y verde. Tiene una fachada curva con ventanas rectangulares de cristal con marcos de metal. La entrada principal tiene doce bajos relieves, ubicados a cada lado de un vitral y tiene cuatro imágenes de figuras humanas que se intercalan repitiéndose cada una tres veces. En el centro hay una inscripción que lee: "Banco Popular de Puerto Rico. Banco". La entrada está flanqueada por dos altos relieves con la figura de un águila. Frente al banco se ve una cortina de lona, personas, árboles, farolas y la calle adoquinada. En el lado derecho de la imagen se encuentra el antiguo edificio del American Colonial Bank que luego fue sede del Banco de Crédito y Ahorro Ponceño. Este fue el primer banco estadounidense establecido en Puerto Rico. Fue construido en 1899 por el contratista Frank Bond Hatch. Posteriormente el edificio fue el Restaurante Triana. Está pintado de color rojo, crema y blanco. Su arquitectura tiene influencias del estilo colonial español. La parte inferior del edificio tiene arcadas sostenidas por pilastras, cornisas y ornamentaciones en forma circular. La parte superior posee un alero cubierto de tejas sostenidas por ménsulas, también tiene antepechos con barandas, puertas dobles enmarcadas por pilastras y frontones semicirculares en la parte superior. Al lado de este edificio hay otro pintado de una tonalidad verde y blanco. También posee rasgos arquitectónicos del estilo colonial español. El edificio tiene parapetos, cornisas, dentículos, antepechos con balaustradas y puertas dobles con frontones triangulares.

Antiguo Acueducto de Río Piedras - Documentación Aérea - San Juan (Río Piedras) - 2013 00013

Antiguo Acueducto de Río Piedras - Documentación Aérea - San Juan (Río Piedras) - 2013 00013



Vista aérea de la casa de bombeo, la casa de filtros y bombas y la residencia de ingenieros y cuidadores que forman parte del sitio del antiguo acueducto de Río Piedras, en San Juan. Este conjunto de edificios refleja los estilos arquitectónicos de la historia del sitio, entre estos el colonial español, renacimiento clásico y neoclásico. La casa de bombeo es un edificio de mampostería de piedra caliza y ladrillo enyesado, de un piso y con cubierta a dos aguas con paneles de metal corrugado o cinc, diseñado en 1892 por Henry Thomas Granger. Una chimenea de ladrillo con forma cónica octogonal de una altura de 80 pies con elementos neoclásicos se encuentra en la elevación este de la casa de bombeo. La casa de filtros y bombas es un edificio de hormigón armado, de un nivel con forma de "L" y cubierta plana. Este edificio fue diseñado por Carlos del Valle Zeno y construido en 1923 en sustitución de un edificio de madera previo. Al lado, se ubica la residencia de ingenieros y cuidadores diseñada por Fernando Alameda en 1887. Su construcción tuvo lugar entre 1892 y 1894 y se emplearon materiales como la piedra caliza y mampostería. Este edificio, de estilo colonial español, es de una planta rectangular, de un solo piso y una cubierta plana. Además, exhibe vanos arqueados y una cornisa coronada con un parapeto. Después de 1923 el edificio fue alterado para acomodar nuevos usos, entre estos, funcionó como almacén y posteriormente como laboratorio de calidad del agua desde 1923-1980. Al fondo es visible parcialmente la casa de llaves y esclusas de una planta rectangular, constituido de mampostería de piedra y ladrillos y de estilo colonial español. En un tramo de su fachada exhibe tres aberturas arqueadas. Este edificio de 1894-1896, fue diseñado por Arturo Guerra, basado en el esquema original de Fernando Alameda en 1887 y funcionó como punto de distribución del agua cruda de la presa hasta los estanques de sedimentación. La planificación del histórico Acueducto de Río Piedras inició en 1846 mediante una serie de propuestas y su construcción inició a partir de 1892 con periodos de construcción adicionales que continuaron hacia el temprano siglo XX. La planta operó desde el tardío siglo XIX hasta la década de 1980. El sitio ha estado vacante desde 1980 y es propiedad del Fideicomiso de Conservación de Puerto Rico y está dirigido por la organización local sin fines de lucro "Para La Naturaleza" que utiliza el sitio para actividades de educación ambiental.

Condado Vanderbilt - San Juan (Condado) - 2013 00025

Condado Vanderbilt - San Juan (Condado) - 2013 00025



Vista del interior del Hotel Condado Vanderbilt ubicado en la avenida Ashford del pueblo costero de San Juan. El hotel es de varios niveles con características del estilo resurgimiento español. El vestíbulo tiene dos niveles con pasillos laterales que tienen los pisos de mármol en dos colores, techos abovedados, lámparas colgantes, lámparas de pared a juego y puertas dobles de cristal bajo arcos semicirculares. Los espacios están divididos por arcos semicirculares con balaustradas de hierro ornamental con pasamanos de madera. Hay sillas de madera y al fondo una puerta de madera y cristal. El Hotel Condado Vanderbilt fue comisionado en 1917 por Frederick William Vanderbilt. Finalmente el 16 de octubre de 1919 fue inaugurado el primer gran hotel de lujo del Caribe. En el año 1930 fue vendido y pasó a llamarse Hotel Condado, posteriormente en 1940 se convirtió en el primer hotel en la isla en tener un casino. Además, en 1950 volvieron a cambiar su nombre a Condado Beach Hotel y se añadieron habitaciones, salones de actividades y un restaurante. Luego de considerar su demolición fue incluido en el Registro Nacional de Lugares Históricos en el año 1988. Más recientemente fue remodelado entre los años 2008 a 2014 por los arquitectos Thomas S. Marvel y José Marchand Sifre añadiendo dos torres de suites modernas. Además, la planificación y restauración de los espacios estuvo a cargo del Arquitecto Jonathan Parks y la firma SOLSTICE Planning and Architecture. Los diseños interiores estuvieron a cargo del diseñador Jorge Roselló.

Condado Vanderbilt - San Juan (Condado) - 2013 00172

Condado Vanderbilt - San Juan (Condado) - 2013 00172



Vista del interior del Hotel Condado Vanderbilt ubicado en la avenida Ashford del pueblo costero de San Juan. El hotel es de varios niveles con características del estilo resurgimiento español. En el interior se distingue un salón de actividades con el techo artesonado dividido en espacios cúbicos decorado con una lámpara colgante de vidrio pintado en dos colores. La lámpara es de forma esférica rodeada por brazos de color salmón con detalles de color negro. Además, de la parte de abajo cuelgan pequeñas piedras de color dorado ubicadas de manera escalonada. El Hotel Condado Vanderbilt fue comisionado en 1917 por Frederick William Vanderbilt. Finalmente el 16 de octubre de 1919 fue inaugurado el primer gran hotel de lujo del Caribe. En el año 1930 fue vendido y pasó a llamarse Hotel Condado, posteriormente en 1940 se convirtió en el primer hotel en la isla en tener un casino. Además, en 1950 volvieron a cambiar su nombre a Condado Beach Hotel y se añadieron habitaciones, salones de actividades y un restaurante. Luego de considerar su demolición fue incluido en el Registro Nacional de Lugares Históricos en el año 1988. Más recientemente fue remodelado entre los años 2008 a 2014 por los arquitectos Thomas S. Marvel y José Marchand Sifre añadiendo dos torres de suites modernas. Además, la planificación y restauración de los espacios estuvo a cargo del Arquitecto Jonathan Parks y la firma SOLSTICE Planning and Architecture. Los diseños interiores estuvieron a cargo del diseñador Jorge Roselló.

Arsenal de La Marina en La Puntilla - San Juan (Viejo San Juan) - 2012 00023

Arsenal de La Marina en La Puntilla - San Juan (Viejo San Juan) - 2012 00023



Antiguo Arsenal de La Marina Española en el barrio La Puntilla en el Viejo San Juan. El edificio es representativo del estilo neoclásico y fue construido en 1800. Está pintado de color blanco, gris y azul oscuro. Se observa un pasillo al aire libre con arcadas que tienen molduras blancas, cornisas, vanos de puertas dobles de madera y piso de ladrillos. Al fondo se ve un vano de ventana con molduras blancas y un farol sostenido por una ménsula. En el lado derecho de la imagen se aprecia la fachada lateral de la capilla de las Madres Carmelitas. Este edificio también es representativo del estilo neoclásico y está pintado de color, rosado, crema y blanco. En la parte superior tiene una cúpula semiesférica coronada con una linterna de color terracota. Tiene cornisas, arcos semicirculares y dos faroles de pared sostenidos por ménsulas. Frente a la fachada se ve una persona, un andamio color amarillo y dos barriles de construcción anaranjados. En el lado izquierdo de la imagen se ve parcialmente el condominio La Puntilla. Está pintado de color anaranjado y crema. Se notan los aleros, balconeras y los vanos de las ventanas. A distancia se ve parcialmente el techo con tejas del United States Customs House, conocido como la Aduana de San Juan. También se divisa el edificio art déco del Banco Popular de Puerto Rico que está pintado de color crema. Fue diseñado por el arquitecto Chauncey W. Riley y construido por los ingenieros Juan M. Beltrán Carrasquillo, Manuel Miró y Saurí y José Benítez Gautier. De igual forma se notan otros edificios altos, los postes de luz y árboles. Posteriormente el Arsenal de la Marina Española se utilizó para exhibiciones y oficinas administrativas del Instituto de Cultura Puertorriqueña.

El Cortijo - SG100002934

El Cortijo - SG100002934



Vista oblicua de la residencia conocida como El Cortijo, ubicada en Barranquitas. Se observa un edificio residencial de dos niveles compuesto por varios volúmenes asimétricos, con una torre central de cuatro niveles que sobresale del conjunto con influencias del resurgimiento colonial español. Está construido en hormigón con acabado de estuco color crema y detalles color blanco. El nivel principal presenta vanos rectangulares con ventanas protegidas por rejas metálicas ornamentales. El acceso principal se eleva levemente mediante unas escaleras y conduce a un pórtico con dos arcos rematados por un panel en relieve. En el lateral derecho tiene un volumen saliente con una ventana suspendida y un alero pequeño. En el lateral izquierdo tiene una terraza abierta sostenida por pilares cuadrados. En el segundo nivel, se encuentra un balcón de esquina construido de madera con una balaustrada torneada, una cubierta inclinada con vigas vistas y está sostenido por ménsulas de madera. Tiene dos puertas de doble hoja con paneles de vidrio y vanos con ventanas rectangulares con paneles de vidrio. En el centro de la fachada principal, hay un balcón pequeño con un frontón triangular y una baranda de metal. La torre central presenta un balcón saliente con baranda metálica en el cuarto nivel, dos puertas de doble hoja y está coronada por una veleta en forma de barco de velas. La cubierta combina techos a dos aguas y planos inclinados, decorados con cornisas molduradas y rematados por tejas de cerámica color rojo. En los alrededores hay varias sillas metálicas ornamentales alineadas sobre el césped, un sendero pavimentado y un área verde que rodea el edificio. El Cortijo es una residencia veraniega construida en 1939 como casa de descanso para la familia Lozana Fabián, vinculada a la industria azucarera. Está compuesto por tres edificaciones principales: la residencia, un garaje con sótano destinado al personal doméstico y una casa de jardinero de una planta. Conserva un alto grado de integridad en ubicación, diseño, materiales, manufactura y contexto, constituyéndose en un ejemplo de la arquitectura residencial puertorriqueña de la primera mitad del siglo XX.

Teatro Yagüez - Mayagüez - 2011 00018

Teatro Yagüez - Mayagüez - 2011 00018



Perspectiva de un tramo del pasillo y las cortinas de uno de los palcos del Teatro Yagüez, localizado entre las calles McKinley y Basora del municipio de Mayagüez. El muro del pasillo tiene paneles de mármol que cubren la mitad de la pared y contrasta con el color rojo de la otra mitad. En esta pared también se exhibe un par de lámparas y la transición hacia el techo está acentuada por una moldura. Frente a esta pared se extienden las cortinas rojas a través de las cuales se accede a un palco. Entre las cortinas se ubican columnas y en una de estas se muestra un letrero que indica: "Palco J". En su origen, en 1909, el teatro fue diseñado y construido de madera, acero y cinc, y se le conoció como la Casa del Arte Sonoro. El dueño original de este teatro fue Francisco Maymón Palmer. En el año 1919 un fuego consumió el edificio. En 1920 se llevó a cabo un nuevo diseño de estilo ecléctico, integrando materiales como el hormigón, la madera, el cristal, el mármol italiano y el yeso para las ornamentaciones. Durante la década de 1950 el teatro mostró signos de deterioro y en el periodo de 1977 a 1984 se llevaron a cabo trabajos de restauración bajo el auspicio del municipio de Mayagüez. Asimismo, durante el periodo de 2002 a 2008 se realizó una tercera restauración al teatro. Este teatro constituye uno de los principales escenarios artísticos y de gran valor histórico en el área oeste de Puerto Rico por acoger a importantes orquestas y compañías de drama y danza. Su arquitectura refleja elementos del neoclásico europeo, el neobarroco y de la arquitectura de principios del siglo XX que se conoció como la Belle Époque.

Iglesia de San Jorge - San Juan (Condado) - 2014 00039

Iglesia de San Jorge - San Juan (Condado) - 2014 00039



Vista lateral y trasera de la Parroquia San Jorge ubicada en la comunidad de Condado del pueblo costero de San Juan. La iglesia es de dos niveles en hormigón con características del estilo neogótico pintada de color cris y blanco con techo a dos aguas revestido por tejas. El primer nivel tiene ventanas de cristal, contrafuertes y cornisas corridas. También se pueden ver en la parte lateral ventanas revestidas por rejas metálicas y puertas dobles coronadas con travesaños también revestidos por rejas bajo arcos ojivales. La nave central se eleva un nivel adicional y son visibles dos ventanas de cristal coronadas con arcos ojivales decorados con tracerías y vierteaguas. Junto a las ventanas también hay contrafuertes. Además, la fachada trasera de la nave central tiene un ábside sobre el cual se eleva una escalera metálica. Por otra parte, en la fachada frontal adosada al edificio está la torre del campanario que se eleva sobre esta. La torre tiene forma piramidal y está coronada con una cruz metálica. Además, tiene ventanas bajo arcos ojivales decorados con cresterías, vierteaguas y parteluces. Sobre las ventanas se ven ornamentación en bajorrelieve, gárgolas y a los lados contrafuertes que se extienden y a su vez sostienen pináculos con detalles ornamentales. En los alrededores de la iglesia hay carteles de tránsito y una reja metálica. La iglesia San Jorge fue inaugurada en el año 1920 siendo oficialmente fundada canónicamente en 1924 tras ser desmembrada de las Parroquias San Mateo y Sagrado Corazón. Su diseño inicial estuvo a cargo de la firma Martínez y Lázaro siendo finalizado en dos años. Seis años después se comienza la construcción de los edificios aledaños a la academia San Jorge. Posteriormente en 1940 la fachada fue remodelada por el arquitecto Rafael Carmoega. Más recientemente en el año 2017 fue restaurada en fases por la firma Astrid Díaz: ADV Architects.

Calle de la Fortaleza 56 - Antigua Real Audiencia - Conservatorio De Artes Del Caribe - San Juan (Viejo San Juan) - 2011 00016

Calle de la Fortaleza 56 - Antigua Real Audiencia - Conservatorio De Artes Del Caribe - San Juan (Viejo San Juan) - 2011 00016



Antigua Real Audiencia, calle de la Fortaleza en el Viejo San Juan. Vista del interior del segundo piso de la casa de dos pisos estilo colonial español. Se observa parte de una arcada de medio punto. Sus columnas tienen molduras en forma de cornisa. También hay molduras en la parte superior de los arcos. El arco del extremo es el acceso a la escalera hacia el piso inferior de la que se pueden ver un tramo de la balaustrada de madera y parte del pasamanos. Hay una pequeña ventana de dobe hoja con celosías sobre el área del descanso de la escalera. Se puede ver parte del techo de esa sección que tiene las vigas expuestas y una lámpara colgante. Junto a la balaustrada hay una silla de oficina. El piso tiene losetas de mármol en tonos gris claro y gris oscuro. Originalmente esta casa fue la residencia del Dr. Francisco Oller y Ferrer, abuelo del pintor Francisco Oller y Cestero. En 1831 fue vendida al Estado y el 1832 pasó a ser la primera sede de la Real Audiencia Territorial. Alrededor del 1898 fue arrendada al Departamento de Agricultura de Estados Unidos y en otro momento se usó como Departamento de Estado. En 1992 la edificación fue dedicada a Don Fernando Chardón. Luego de un periodo de abandono fue restaurada en el año 2000 y asignada a las oficinas de Guías Turísticos y de Programas Federales adscritos a la Oficina del Gobernador. La Torre Meteorológica y de Observación fue diseñada por el ingeniero Manuel Maese, la orden para su construcción fue emitida en 1883.

Alcaldía de San Germán - 2011 00001

Alcaldía de San Germán - 2011 00001



Vista frontal y lateral de la Casa Alcaldía en el pueblo de San Germán. El edificio de la Casa Alcaldía es de dos niveles en mampostería con detalles del estilo neoclásico. Está dividido en tramos con pilastras que a su vez sostienen cornisas corridas y se repiten en el segundo nivel. En el primer nivel hay tres arcos semicirculares, coronados con espinazos, flanqueados por pilastras y por dos ventanas dobles a cada extremo. Al extremo derecho, sobre la ventana también hay una inscripción que dice: “Oficina de Turismo”. De la misma manera, en el segundo nivel, un corredor se proyecta detrás de tres arcos de medio punto presididos por balaustradas ornamentales flanqueados por pilastras y enmarcados con molduras. También hay ventanas dobles con celosía de madera. Por otra parte, coronando el edificio, sobre el entablamento corrido se alza un frontón con un reloj decorado con molduras, pilastras y volutas. Además, flanqueando el frontón hay un parapeto que rodea el espacio. Por otra parte, en los alrededores se distingue un extremo de la Plaza Francisco Mariano Quintero, vehículos estacionados y edificios con diferentes características. La casa Alcaldía del pueblo de San Germán fue construida entre 1839 y 1844, el diseño original incluía una torre octagonal hasta 1918 cuando se derrumbó con un terremoto. A través de los años, este edificio ha sido utilizado originalmente como Parque de Bombas, cárcel, oficinas de gobierno y más recientemente como Oficina de Desarrollo Económico y Turismo de San Germán.

Edificio Oliver - Arecibo - 2012 00009

Edificio Oliver - Arecibo - 2012 00009



Vista lateral del edificio Oliver en el pueblo costero de Arecibo. En primer plano, se divisa una cerca de concreto con rejas metálicas y vehículos estacionados en la calle pavimentada. El edificio es de tres niveles con características del estilo neoclásico en concreto armado. La fachada lateral se divide en varios tramos horizontalmente, la planta base y dos plantas superiores. La planta base tiene entradas bajo arcos semicirculares enmarcados con molduras. Además, los arcos están cubiertos por rejas metálicas. El segundo nivel tiene puertas dobles de madera con persianas rectangulares y marcos planos. Las puertas conducen a balcones con balaustres sostenidos por ménsulas decorativas. Flanqueando los balcones hay pilastras acanaladas sostenidas por una cornisa corrida y bajo las cuales hay una serie de cabezas de leones en relieve. El edificio Oliver fue construido en 1914 con fines comerciales y residenciales. Está cimentado en el mismo lugar que en 1765 el gobierno español construyó la Casa del Rey hasta 1913 cuando fue demolida. Este innovador edificio fue el primero en incorporar espacios de vivienda y establecimiento comercial. También fue el primer edificio construido en el pueblo con una entrada achaflanada. Además, su diseño ricamente ornamentado adopta características de la Escuela de Bellas Artes y el estilo tradicional español. A través de los años ha sido utilizado cómo espacio residencial, comercial y sede de varios consulados extranjeros que ocupaban el primer nivel. Fue restaurado en la década de 1980 y todos los espacios asignados para vivienda se convirtieron en espacios comerciales.

Condado Vanderbilt - San Juan (Condado) - 2013 00040

Condado Vanderbilt - San Juan (Condado) - 2013 00040



Vista del interior del Hotel Condado Vanderbilt ubicado en la avenida Ashford del pueblo costero de San Juan. El hotel es de varios niveles con características del estilo resurgimiento español. El salón de actividades tiene el piso cubierto por una alfombra con patrones florales en varios colores difusos. El salón también tiene un corredor lateral con techo abovedado, un cuadro decorativo sobre una mesa con dos sillas a juego y una maceta decorativa. También se distingue la nave central con vigas expuestas en el techo y un espejo semicircular en la pared de fondo. El Hotel Condado Vanderbilt fue comisionado en 1917 por Frederick William Vanderbilt. Finalmente el 16 de octubre de 1919 fue inaugurado el primer gran hotel de lujo del Caribe. En el año 1930 fue vendido y pasó a llamarse Hotel Condado, posteriormente en 1940 se convirtió en el primer hotel en la isla en tener un casino. Además, en 1950 volvieron a cambiar su nombre a Condado Beach Hotel y se añadieron habitaciones, salones de actividades y un restaurante. Luego de considerar su demolición fue incluido en el Registro Nacional de Lugares Históricos en el año 1988. Más recientemente fue remodelado entre los años 2008 a 2014 por los arquitectos Thomas S. Marvel y José Marchand Sifre añadiendo dos torres de suites modernas. Además, la planificación y restauración de los espacios estuvo a cargo del Arquitecto Jonathan Parks y la firma SOLSTICE Planning and Architecture. Los diseños interiores estuvieron a cargo del diseñador Jorge Roselló.

Casa Grande - Mayagüez - 2011 00057

Casa Grande - Mayagüez - 2011 00057



Perspectiva del patio central de la Casa Grande, localizada en Mayagüez. La circulación principal de esta casa gira en torno a este patio central con galería. El piso de esta área está cubierto con losas nativas, criollas o baldosas hidráulicas con motivos geométricos. También es notable una puerta con reja, un toldo, un conjunto de ventanas tipo persianas con lamas horizontales de vidrio y una ventana con una reja de motivo geométrico con una consola de aire acondicionado. La superficie de la casa exhibe colores como el amarillo, el verde y el blanco. Esta casa fue edificada en el 1890 y sus características son representativas del estilo arquitectónico neoclásico criollo. Su sólida construcción, mayormente de mampostería, resistió el terremoto de San Fermín ocurrido el 11 de octubre de 1918. Esta casa es históricamente importante porque también albergó la Sede de la Audiencia de Mayagüez y, tras el cambio de soberanía en 1898, pasó a manos privadas. Para 1901 fue la propiedad de don Guillermo Santos, quien la heredó a su hija, Isabel Santos Tió, casada con don Benigno Rodríguez Campoamor, el vicecónsul de España en Puerto Rico. En 1998, la administración municipal de Mayagüez adquirió esta casa y la restauró como museo, sala de exhibiciones, centro de presentación de obras literarias y, para el desarrollo social y cultural de la ciudad. Desde entonces es conocida como la Casa Grande, Museo y Casa Cultural.

Iglesia de San Jorge - San Juan (Condado) - 2014 00061

Iglesia de San Jorge - San Juan (Condado) - 2014 00061



Vista lateral y trasera de la Parroquia San Jorge ubicada en la comunidad de Condado del pueblo costero de San Juan. La iglesia es de dos niveles en hormigón con características del estilo neogótico pintada de color gris y color blanco con techo a dos aguas revestido por tejas. Desde la fachada lateral se alcanza a ver una ventana de claristorio bajo un arco ojival coronada con un vierteaguas y tracería. En la parte de abajo de la ventana hay un conducto de aire acondicionado. Además, desde el segundo nivel se ve una entrada al campanario que está adosado al edificio. La entrada es a través de una puerta metálica con ventanas de celosía en cristal. Sobre la puerta hay una moldura plana con forma de diamante que enmarca una ventana de cristal pintado flanqueada por contrafuertes. La parte de arriba de la torre del campanario tiene ventanas bajo arcos ojivales decorados con cresterías, vierteaguas y parteluces. Sobre las ventanas se ven dos emblemas a cada lado, gárgolas y ornamentación en bajorrelieve. La iglesia San Jorge fue inaugurada en el año 1920 siendo oficialmente fundada canónicamente en 1924 tras ser desmembrada de las Parroquias San Mateo y Sagrado Corazón. Su diseño inicial estuvo a cargo de la firma Martínez y Lázaro siendo finalizado en dos años. Seis años después se comienza la construcción de los edificios aledaños a la academia San Jorge. Posteriormente en 1940 la fachada fue remodelada por el arquitecto Rafael Carmoega. Más recientemente en el año 2017 fue restaurada en fases por la firma Astrid Díaz: ADV Architects.

Calle de la Fortaleza 56 - Antigua Real Audiencia - Conservatorio De Artes Del Caribe - San Juan (Viejo San Juan) - 2011 00066

Calle de la Fortaleza 56 - Antigua Real Audiencia - Conservatorio De Artes Del Caribe - San Juan (Viejo San Juan) - 2011 00066



Antigua Real Audiencia, calle de la Fortaleza en el Viejo San Juan. Vista del interior del área de vigilancia de la Torre Meteorológica y de Observación ubicada en el techo de la casa de dos pisos estilo colonial español. Se observa el piso del área de observación de la torre. El acceso es un hueco a través del cual se puede ver parte de la escalera en espiral de metal. El borde del piso forma parte del armazón de metal que sostiene las paredes de madera del área de observación. Sobre el suelo hay un cartón con una libreta y un artefacto con una correa para la muñeca. Se pueden ver las piernas de un hombre recostado sobre una de las paredes. Originalmente esta casa fue la residencia del Dr. Francisco Oller y Ferrer, abuelo del pintor Francisco Oller y Cestero. En 1831 fue vendida al Estado y el 1832 pasó a ser la primera sede de la Real Audiencia Territorial. Alrededor del 1898 fue arrendado al Departamento de Agricultura de Estados Unidos y en otro momento se usó como Departamento de Estado. En 1992 la edificación fue dedicada a Don Fernando Chardón. Luego de un periodo de abandono fue restaurada en el año 2000 y asignada a las oficinas de Guías Turísticos y de Programas Federales adscritos a la Oficina del Gobernador. La Torre Meteorológica y de Observación fue diseñada por el ingeniero Manuel Maese, la orden para su construcción fue emitida en 1883.

Catedral de Nuestra Señora de la Guadalupe - Ponce - 2014 00004

Catedral de Nuestra Señora de la Guadalupe - Ponce - 2014 00004



Vista lateral y trasera de la Catedral de Nuestra Señora de la Guadalupe ubicada en el pueblo costero de Ponce. La catedral es de dos niveles en mampostería y ladrillo con características del estilo Neoclásico. Justo detrás de la catedral se ve el antiguo Parque de Bombas de Ponce distinguido por su diseño policromado en madera y techo de láminas de metal corrugado. Ahora bien, la fachada lateral de la catedral tiene contrafuertes, ventanas cubiertas por tormenteras y un entablamento corrido sobre el cual descansa un parapeto bajo. Además, hay tres cúpulas esféricas coronadas con linternas. Por otra parte, flanqueando la catedral hay dos torres de campanario divididas en tres tramos. Son de bases cuadradas, el segundo nivel tiene vanos cuadrados enmarcados con molduras salientes, coronados con entablamentos semicirculares y presididos por balaustradas. El tercer tramo muestran ventanas dobles de madera bajo arcos semicirculares que a su vez están enmarcados con molduras, coronados con espinazos y entablamentos. En adición, están flanqueados por pares de columnas acanaladas que sostienen los entablamentos. Los siguientes tramos de las torres son hexagonales y están decorados con cornisas, molduras, un friso con guirnaldas y ánforas. De la misma manera, las cúpulas muestran óculos de vidrio pintado enmarcados con molduras. A su vez, las cúpulas están coronadas con linternas de aberturas semicirculares y cruces. En los alrededores también se distinguen vehículos estacionados, edificios a la distancia y una cerca modulada por postes de luz. Los inicios de la Catedral de Nuestra Señora de la Guadalupe datan de 1670 cuando apenas era una ermita de yagua y palma, fue clausurada en 1820 por las malas condiciones del edificio. El comienzo de la construcción de la iglesia actual data de 1835 y fue inaugurada en 1839. Sin embargo, el terremoto de 1918 destruyó ambas torres por lo que pasó a ser reconstruida con un diseño nuevo entre 1918 y 1937. Años más tarde, en 1984 fue incluida en el Registro Nacional de Lugares Históricos. Posteriormente fue restaurada nuevamente en 1992.

Calle de la Luna 367 - San Juan (Viejo San Juan) - 2020 00026

Calle de la Luna 367 - San Juan (Viejo San Juan) - 2020 00026



Calle de la Luna 367 en el Viejo San Juan. Vista de esquina del edificio color crema de dos pisos estilo colonial español, ubicado en la esquina con la calle O'Donell. En el primer nivel de la fachada de la calle de la Luna hay tres arcos adintelados, una entrada y dos ventanas con antepechos de balaustres. La puerta es de doble hoja de madera, las ventanas son de doble hoja con celosías. En la fachada de la calle O'Donell hay tres arcos adintelados, una entrada y dos ventanas y luego un arco de medio punto con puerta seguidos por tres arcos adintelados con puertas. Esta sección donde se encuentran los últimos tres arcos tiene un solo piso. En el segundo nivel hay dos arcos adintelados que convergen en la esquina formando un balcón que tiene parapeto liso y alero cubierto con tejas. También se observan cuatro balcones individuales también con parapetos liso y con tejadillos cubiertos con tejas. Las puertas de los balcones son de doble hoja con celosías y de color blanco. El edificio tiene parapeto y un frontón semicircular. En ambas paredes hay placas con el nombre de la casa de huéspedes que ocupa el edificio que se llama Casa Luna. En la pared de la calle de la Luna también hay una placa con el número del edificio. Se pueden ver las fachadas de las dos casas contiguas de la calle de la luna. También se ven tramos de las aceras y de las calles pavimentadas con adoquines. Al final de la calle O'Donnell se pueden ver, parcialmente, las fachadas de dos de los edificios de la calle del Sol.

Casa en la Calle Cuevillas 607 - San Juan (Miramar) - 2014 00002

Casa en la Calle Cuevillas 607 - San Juan (Miramar) - 2014 00002



Vista de un tramo lateral de la fachada de la casa en la calle Cuevillas 607, en Miramar, San Juan. La casa está compuesta de mampostería, hormigón armado y madera. El primer nivel presenta una puerta doble con paneles ornamentales acentuados con una moldura y una clave. El segundo nivel se distingue por una balconera o antepecho con baranda de reja ornamental y puertas dobles que integran lumbreras y hojas de vidrio. Este tramo de la fachada también presenta elementos ornamentales como pilastras, rosetas, molduras, guirnaldas, dentículos y una cornisa. Uno de los arcos del nivel superior está tapiado, mientras que el vano inferior está protegido por una panel de madera. En el lateral se extiende una escalera. Esta casa se construyó en 1913 siguiendo influencias del estilo resurgimiento del renacimiento francés o resurgimiento neoclásico francés. Sus dueños originales fueron el juez Luis Méndez Baz y su esposa, María Bagur. Tras visitar Francia, la pareja hizo construir su residencia siguiendo el diseño de un prototipo publicado en Nouvelles Maisons de Campagne, Paris et ses Environs, que mostraba fachadas y planos de casas de campo populares en París. Posteriormente la casa funcionó como residencia y taller para artistas como Lorenzo Homar, Juan Ramón Velázquez, Ada Bobonis y Aaron Salabarrías. Además, los herederos de los dueños originales establecieron una fundación para desarrollar un museo en esta residencia. Entre el 2018 y 2019 se llevó a cabo la restauración del edificio que dio lugar al establecimiento del Museo de Arte y Diseño de Miramar, también conocido como la Casa Rosada.

Iglesia de San Jorge - San Juan (Condado) - 2014 00017

Iglesia de San Jorge - San Juan (Condado) - 2014 00017



Vista desde el interior de la Parroquia San Jorge ubicada en la comunidad de Condado del pueblo costero de San Juan. La iglesia es de dos niveles en hormigón con características del estilo neogótico pintada de color blanco y color gris. El interior está dividido en tres naves, la nave central se eleva un nivel adicional con techos abovedados. La nave central también tiene arcadas de arcos ojivales enmarcadas con molduras y flanqueadas por pilastras pares. Las naves laterales al igual que la central tienen bancos de madera, puertas y ventanas dobles de madera coronadas con vidrieras de colores y vierteaguas. Al fondo, bajo un ábside semicircular se encuentra el altar presidido por una balaustrada y escaleras. Está decorado con ambones metálicos, un retablo al pie del cual está el sagrario y la mesa de altar cubierta por un mantel de tela. A ambos lados del retablo hay estatuas de representaciones religiosas sobre ménsulas semicirculares, sillas y jarrones decorativos. La iglesia San Jorge fue inaugurada en el año 1920 siendo oficialmente fundada canónicamente en 1924 tras ser desmembrada de las Parroquias San Mateo y Sagrado Corazón. Su diseño inicial estuvo a cargo de la firma Martínez y Lázaro siendo finalizado en dos años. Seis años después se comienza la construcción de los edificios aledaños a la academia San Jorge. Posteriormente en 1940 la fachada fue remodelada por el arquitecto Rafael Carmoega. Más recientemente en el año 2017 fue restaurada en fases por la firma Astrid Díaz: ADV Architects.

Biblioteca Carnegie - San Juan (Puerta de Tierra) - 2011  00001

Biblioteca Carnegie - San Juan (Puerta de Tierra) - 2011 00001



Vista frontal de la Biblioteca Carnegie ubicada en la comunidad de Puerta de Tierra del pueblo costero de San Juan. El edificio es de dos niveles con techo de madera revestido por tejas y características del estilo neoclásico. En primer plano se puede ver la Avenida Juan Ponce de León y en la acera una parada de transporte colectivo junto a un letrero. También se puede ver una cerca con reja metálica y un patio frontal con vegetación y bancos. Por otra parte, la entrada al edificio es a través de un pórtico presidido por escaleras y sostenido por seis columnas de orden dórico que a su vez sostienen un entablamento corrido en dónde se puede ver una inscripción que dice: “Biblioteca Carnegie”. El techo es de madera, tiene un diseño artesonado y está visiblemente deteriorado. En el interior del pórtico hay siete puertas dobles de madera y cristal enmarcadas con molduras y coronadas con travesaños semicirculares. Además, en el interior se ven ventanas de madera y cristal bajo arcos rectangulares enmarcados con molduras planas. A ambos lados del pórtico se ven más ventanas una de las cuales está presidida por una balconera metálica. En el año 1914 gracias a la donación de Andrew Carnegie se comenzaron los trámites para la construcción de este edificio terminado entre los años 1915 y 1916 . Finalmente en el año 1917 la Biblioteca Insular fue trasladada a este edificio. Ha permanecido en uso continuo y fue restaurado en los años 1966 y 1991. En 1983 el edificio fue incluido en el Registro Nacional de Lugares Históricos y finalmente inlcuído en la nominación del Distrito Histórico de Puerta de Tierra en el año 2019.

Calle de la Fortaleza 56 - Antigua Real Audiencia - Conservatorio De Artes Del Caribe - San Juan (Viejo San Juan) - 2011 00083

Calle de la Fortaleza 56 - Antigua Real Audiencia - Conservatorio De Artes Del Caribe - San Juan (Viejo San Juan) - 2011 00083



Antigua Real Audiencia, calle de la Fortaleza en el Viejo San Juan. Se observa parte de la Torre Meteorológica y de Observación ubicada en el techo de la casa de dos pisos estilo colonial español. La vista es desde uno de los corredores del patio interior, a un lado se ve el techo del corredor. La torre octagonal fue construida en mampostería, acero y madera. La sección de mampostería tiene una cornisa con ménsulas. Sobre ésta se encuentra el área de observación, que es de madera y consiste de una puerta y ventanas con celosías, está protegida por una baranda y tiene una cúpula de metal. Las ventanas visibles están rotas. La torre tiene paredes amarillas, la cornisa es blanca, el área de observación es verde al igual que la baranda y la cúpula tiene color marrón. Originalmente esta casa fue la residencia del Dr. Francisco Oller y Ferrer, abuelo del pintor Francisco Oller y Cestero. En 1831 fue vendida al Estado y el 1832 pasó a ser la primera sede de la Real Audiencia Territorial. Alrededor del 1898 fue arrendado al Departamento de Agricultura de Estados Unidos y en otro momento se usó como Departamento de Estado. En 1992 la edificación fue dedicada a Don Fernando Chardón. Luego de un periodo de abandono fue restaurada en el año 2000 y asignada a las oficinas de Guías Turísticos y de Programas Federales adscritos a la Oficina del Gobernador. La Torre Meteorológica y de Observación fue diseñada por el ingeniero Manuel Maese, la orden para su construcción fue emitida en 1883.

Condado Vanderbilt - San Juan (Condado) - 2013 00200

Condado Vanderbilt - San Juan (Condado) - 2013 00200



Vista del interior del Hotel Condado Vanderbilt ubicado en la avenida Ashford del pueblo costero de San Juan. El hotel es de varios niveles con características del estilo resurgimiento español. El vestíbulo tiene dos niveles con pisos de mármol en dos colores con motivo ajedrezado. El primer nivel tiene unas escaleras en espiral de mármol negro con balaustradas de hierro oramental y pasamanos de madera. La pared también tiene un pasamanos metálico que se alinea con el de la escalera. Además, en el piso se alcanza a ver un extremo de una alfombra. El Hotel Condado Vanderbilt fue comisionado en 1917 por Frederick William Vanderbilt. Finalmente el 16 de octubre de 1919 fue inaugurado el primer gran hotel de lujo del Caribe. En el año 1930 fue vendido y pasó a llamarse Hotel Condado, posteriormente en 1940 se convirtió en el primer hotel en la isla en tener un casino. Además, en 1950 volvieron a cambiar su nombre a Condado Beach Hotel y se añadieron habitaciones, salones de actividades y un restaurante. Luego de considerar su demolición fue incluido en el Registro Nacional de Lugares Históricos en el año 1988. Más recientemente fue remodelado entre los años 2008 a 2014 por los arquitectos Thomas S. Marvel y José Marchand Sifre añadiendo dos torres de suites modernas. Además, la planificación y restauración de los espacios estuvo a cargo del Arquitecto Jonathan Parks y la firma SOLSTICE Planning and Architecture. Los diseños interiores estuvieron a cargo del diseñador Jorge Roselló.

El Cortijo - Barranquitas - 2012 00039

El Cortijo - Barranquitas - 2012 00039



Vista de la residencia conocida como El Cortijo en el pueblo de Barranquitas. La residencia es de dos niveles más una torre que se eleva un nivel adicional, está cimentada en concreto armado con techos cubiertos por tejas. Además, su diseño está inspirado en el estilo del resurgimiento colonial español. La casa tiene ventanas dobles de cristal algunas cubiertas por rejas ornamentales de hierro y otras están coronadas con aleros. También se pueden ver balcones voladizos con puertas dobles de madera y cristal sostenidos por ménsulas. Uno de los balcones tiene balaustrada de madera modulada por pilares, el otro es abierto y tiene baranda de hierro. Decorando la fachada también hay tragaluces y una balconera en el descanso de la escalera con puerta doble de cristal coronada con un entablamento. Por otra parte, la entrada es a través de un pórtico presidido por escalones cubiertos por losas de cerámica y una arcada modulada por una columna compuesta sobre la cual se distingue un emblema en relieve. En el pórtico también se pueden ver plantas en macetas decorativas, las paredes parcialmente cubiertas por losas de cerámica, una representación de la Virgen del Perpetuo Socorro, estatuas de leones y una lámpara en la pared. Al extremo izquierdo del pórtico se puede ver un balcón lateral con techo de vigas de madera expuestas, una lámpara colgante y plantas en macetas decorativas. El Cortijo fue construido en 1939 como residencia de verano para la familia Lozana Fabián, relacionados a la administración de centrales azucareras en Puerto Rico. A lo largo de los años ha cambiado de dueños, pero su diseño original no ha sido alterado.

Condado Vanderbilt - San Juan (Condado) - 2013 00128

Condado Vanderbilt - San Juan (Condado) - 2013 00128



Vista del patio trasero del Hotel Condado Vanderbilt ubicado en la avenida Ashford del pueblo costero de San Juan. El hotel es de varios niveles y características del estilo resurgimiento español. El patio trasero tiene el piso cubierto por baldosas de cerámica. Además, tiene escaleras con pasamanos metálicos, plantas en macetas decorativas y remates decorativos con formas cónicas. También se distingue la parte trasera del hotel, es una extensión moderna del edificio con amplios ventanales de madera modulada por columnas cuadradas. Por otra parte, al extremo derecho de este se ve una de las torres laterales del hotel. La torre se eleva once niveles, tiene ventanas de cristal enmarcadas con molduras, balcones con balaustradas de cristal dentro de los cuales hay puertas enmarcadas y la cabina que resguarda el ascensor tiene una forma triangular que sobresale en el exterior. Además, frente a la torre hay una pérgola con techo de vigas expuestas y paredes de cristal. El Hotel Condado Vanderbilt fue comisionado en 1917 por Frederick William Vanderbilt. Finalmente el 16 de octubre de 1919 fue inaugurado el primer gran hotel de lujo del Caribe. En el año 1930 fue vendido y pasó a llamarse Hotel Condado, posteriormente en 1940 se convirtió en el primer hotel en la isla en tener un casino. Además, en 1950 volvieron a cambiar su nombre a Condado Beach Hotel y se añadieron habitaciones, salones de actividades y un restaurante. Luego de considerar su demolición fue incluido en el Registro Nacional de Lugares Históricos en el año 1988. Más recientemente fue remodelado entre los años 2008 a 2014 por los arquitectos Thomas S. Marvel y José Marchand Sifre añadiendo dos torres de suites modernas. Además, la planificación y restauración de los espacios estuvo a cargo del Arquitecto Jonathan Parks y la firma SOLSTICE Planning and Architecture. Los diseños interiores estuvieron a cargo del diseñador Jorge Roselló.

Condado Vanderbilt - San Juan (Condado) - 2013 00103

Condado Vanderbilt - San Juan (Condado) - 2013 00103



Vista del patio trasero del Hotel Condado Vanderbilt ubicado en la avenida Ashford del pueblo costero de San Juan. El hotel es de varios niveles con características del estilo resurgimiento español. El patio trasero tiene el piso cubierto por baldosas de cerámica. Además, está rodeado por una balaustrada de cristal modulada por pilares cuadrados presidiendo la costa del océano atlántico. Hay plantas en macetas decorativas, muebles de jardín, mesas con sombrillas a juego, remates decorativos con formas cónicas y escaleras con pasamanos metálicos. La fachada trasera del hotel tiene una extensión moderna con amplios ventanales de cristal interrumpidos por columnas cuadradas. También se puede ver una pérgola con techos de vigas de madera expuestas. Junto a esta también se distingue una de las torres laterales del hotel con ventanas dobles enmarcadas con molduras y balcones con balaustradas de cristal dentro de los cuales también hay puertas enmarcadas con molduras. El Hotel Condado Vanderbilt fue comisionado en 1917 por Frederick William Vanderbilt. Finalmente el 16 de octubre de 1919 fue inaugurado el primer gran hotel de lujo del Caribe. En el año 1930 fue vendido y pasó a llamarse Hotel Condado, posteriormente en 1940 se convirtió en el primer hotel en la isla en tener un casino. Además, en 1950 volvieron a cambiar su nombre a Condado Beach Hotel y se añadieron habitaciones, salones de actividades y un restaurante. Luego de considerar su demolición fue incluido en el Registro Nacional de Lugares Históricos en el año 1988. Más recientemente fue remodelado entre los años 2008 a 2014 por los arquitectos Thomas S. Marvel y José Marchand Sifre añadiendo dos torres de suites modernas. Además, la planificación y restauración de los espacios estuvo a cargo del Arquitecto Jonathan Parks y la firma SOLSTICE Planning and Architecture. Los diseños interiores estuvieron a cargo del diseñador Jorge Roselló.

Casilla de Camineros - Bayamón - 2011 00026

Casilla de Camineros - Bayamón - 2011 00026



Casilla de Camineros en la Carretera 2, km. 12.7 en Bayamón. Vista de la fachada principal de un edificio construido en mampostería y ladrillos y de estilo neoclásico colonial. La fachada exhibe paredes de roca caliza expuestas y tres huecos rectangulares adintelados que funcionan como ventanas y puertas con molduras rústicas. La puerta tiene un entablamento en el tope con letras color oro que leen: "Baya_ó_". El techo de hormigón muestra una cornisa con dentículos y un parapeto en estado de deterioro y plantas que sobresalen del techo. Se puede observar parte del patio con árboles altos. En primer plano, se observa un muro de contención con una cerca de rejillas de hierro que separa la casa de la carretera. La casa está abandonada. Las Casillas de Camineros fueron construidas durante la última parte del siglo XIX a lo largo de las carreteras principales en Puerto Rico. Estas fueron las residencias de los camineros, trabajadores gubernamentales encargados de brindar mantenimiento a la superficie de la carretera. La mayoría de las casillas fueron abandonadas a finales del siglo XX y las que aún permanecen han enfrentado diferentes destinos. Muchas de ellas se han deteriorado o han sido demolidas y otras han sido destinadas a otros usos. Esta casilla es una de tres construidas en 1882 a lo largo de un tramo de la Carretera número 2 entre Bayamón y Mayagüez. Perteneció originalmente al Departamento de Transportación y Obras Públicas, quien luego la cedió al Instituto de Cultura para ser usada como museo y oficinas de la Cámara de Comercio de Bayamón.

Condado Vanderbilt - San Juan (Condado) - 2013 00121

Condado Vanderbilt - San Juan (Condado) - 2013 00121



Vista del patio trasero del Hotel Condado Vanderbilt ubicado en la avenida Ashford del pueblo costero de San Juan. El hotel es de varios niveles con características del estilo resurgimiento español. El patio trasero tiene el piso cubierto por baldosas de cerámica. Además, está rodeado por una balaustrada de cristal presidiendo la costa del océano atlántico. Está decorado con plantas en macetas decorativas, muebles de jardín, mesas con sombrillas a juego, remates decorativos con formas cónicas y al fondo se distinguen unas escaleras con pasamanos metálicos. También se puede ver una pérgola con techos de vigas de madera expuestas. El Hotel Condado Vanderbilt fue comisionado en 1917 por Frederick William Vanderbilt. Finalmente el 16 de octubre de 1919 fue inaugurado el primer gran hotel de lujo del Caribe. En el año 1930 fue vendido y pasó a llamarse Hotel Condado, posteriormente en 1940 se convirtió en el primer hotel en la isla en tener un casino. Además, en 1950 volvieron a cambiar su nombre a Condado Beach Hotel y se añadieron habitaciones, salones de actividades y un restaurante. Luego de considerar su demolición fue incluido en el Registro Nacional de Lugares Históricos en el año 1988. Más recientemente fue remodelado entre los años 2008 a 2014 por los arquitectos Thomas S. Marvel y José Marchand Sifre añadiendo dos torres de suites modernas. Además, la planificación y restauración de los espacios estuvo a cargo del Arquitecto Jonathan Parks y la firma SOLSTICE Planning and Architecture. Los diseños interiores estuvieron a cargo del diseñador Jorge Roselló.

Parroquia San Miguel Arcángel - Cabo Rojo - 2011 00004

Parroquia San Miguel Arcángel - Cabo Rojo - 2011 00004



Fachada principal y lateral de la Parroquia San Miguel Arcángel, ubicada en Cabo Rojo. La parroquia presenta varias tonalidades de amarillo que alternan con detalles de color blanco y de castaño claro. La entrada está compuesta por un arco de tres centros flanqueado por pilastras que sostienen un frontón triangular que integra dentículos. La transición hacia el segundo nivel está acentuada por una hilada volada y un par de cornisas elevadas por pilastras. También son notables los óculos y las ventanas con hojas de cristal y con forma de arco de medio punto. En un extremo de la fachada destaca un frontón triangular con dentículos coronado con una cruz, mientras que en el lado opuesto sobresale la torre de la iglesia, en cuyo campanario se exhiben arcos, relojes, molduras y una cúpula. En la parte posterior también es visible parcialmente una linterna con cúpula coronada con una cruz. La parroquia está rodeada por una cerca articulada por una balaustrada interrumpida por pilares con remates. En la parte del frente se ubica un monumento con la estatua que conmemora al escritor, político e historiador puertorriqueño Salvador Brau Asencio. La Parroquia San Miguel Arcángel fue designada monumento histórico bajo la Ley Número 150 del 18 de junio de 2004. Su historia está vinculada a la fundación del pueblo de Cabo Rojo mediante Orden Real del rey Carlos III del 17 de diciembre de 1771. A partir del 29 de septiembre de 1783 esta iglesia se dedica al patrono de San Miguel Arcángel y dos años más tarde inició la construcción del templo. En esta iglesia, además, se encuentran las actas de nacimiento de Ramón Emeterio Betances, Salvador Brau Asencio y el legendario pirata Cofresí.

Escuela Luchetti - San Juan (Condado) - 2011 00005

Escuela Luchetti - San Juan (Condado) - 2011 00005



Vista frontal y lateral de la escuela Luchetti ubicada en la comunidad de Condado del pueblo costero de San Juan. La escuela es de dos niveles construida en hormigón, pintada de color verde y color amarillo. Tiene características de los estilos artesanal y modernista. La fachada frontal tiene ventanas estilo celosía de aluminio enmarcadas con molduras. En medio, se distingue un pórtico de entrada sostenido por columnas de órden dórico. A su vez las columnas sostienen un entablamento con molduras y cornisas. Además, el pórtico tiene una puerta doble de madera, enmarcada con molduras, presidida por escaleras y coronada con un travesaño de reja metálica. Por otra parte, en el segundo nivel hay una balconera abierta y rodeada por una balaustrada de hormigón. También tiene dos puertas de madera en medio de la cual hay una columna acanalada. La balconera está enmarcada con molduras sobre la cual hay una inscripción que dice: “Escuela Luchetti”. Rodeando el borde superior se puede ver una cornisa corrida sobre la cual se proyecta un frontón escalonado coronado con un detalle ornamental. La fachada lateral también tiene ventanas enmarcadas y consolas de aire acondicionado. En los alrededores de la escuela hay aceras pavimentadas y vegetación. La escuela Luchetti data de los años 1908 y 1909 siguiendo el diseño del arquitecto Antonin Nechodoma. Es una de las primeras escuelas edificadas y edificación de hormigón en la zona de San Juan antiguamente conocida como: “El Condado Schools”. Permaneció en uso continuo hasta su cierre por el Departamento de Educación el año 2018. Posteriormente en el año 2021 gracias a una iniciativa comunitaria el edificio fue nominado como edificio histórico ante la junta de planificación y el Instituto de Cultura Puertorriqueña.

Iglesia de San Jorge - San Juan (Condado) - 2014 00113

Iglesia de San Jorge - San Juan (Condado) - 2014 00113



Vista desde el interior de la Parroquia San Jorge ubicada en la comunidad de Condado del pueblo costero de San Juan. La iglesia es de dos niveles en hormigón con características del estilo neogótico pintada de color gris y color blanco. Los espacios interiores tienen el piso revestido por terrazo y se encuentran divididos por arcos ojivales enmarcados con molduras. Una de las naves laterales tiene una capilla con un altar presidido por un reclinatorio de madera y lampadarios metálicos con letreros que dicen: “ofrenda”. La pared de fondo tiene un retablo sobre una base de mármol en varios colores. El retablo está dividido en tres, en medio hay una estatua de una representación de un ángel sobre una ménsula ornamentada. El resto del retablo tiene mosaicos con dos representaciones de la Virgen María, querubines y detalles decorativos enmarcados con molduras. También hay más estatuas de representaciones religiosas ubicadas sobre ménsulas, una estación de via crucis y una puerta bajo un arco ojival enmarcada y ornamentada. La iglesia San Jorge fue inaugurada en el año 1920 siendo oficialmente fundada canónicamente en 1924 tras ser desmembrada de las Parroquias San Mateo y Sagrado Corazón. Su diseño inicial estuvo a cargo de la firma Martínez y Lázaro siendo finalizado en dos años. Seis años después se comienza la construcción de los edificios aledaños a la academia San Jorge. Posteriormente en 1940 la fachada fue remodelada por el arquitecto Rafael Carmoega. Más recientemente en el año 2017 fue restaurada en fases por la firma Astrid Díaz: ADV Architects.

Iglesia de San Jorge - San Juan (Condado) - 2014 00013

Iglesia de San Jorge - San Juan (Condado) - 2014 00013



Vista desde el interior de la Parroquia San Jorge ubicada en la comunidad de Condado del pueblo costero de San Juan. La iglesia es de dos niveles en hormigón con características del estilo neogótico pintada de color blanco y color gris. El interior está dividido en tres naves, la nave central se eleva un nivel adicional con techos abovedados. Las bóvedas son cuatripartitas unidas por espinazos pintados de color dorado, algunos de estos sirven como la base para las lámparas colgantes de cristal. Además, el claristorio tiene ventanas de cristal bajo arcos ojivales coronadas con vierteaguas y tracerías lobuladas. La nave central también tiene escudos en bajorrelieve, arcadas de arcos ojivales enmarcadas con molduras y flanqueadas por pilastras pares que a su vez conectan con las molduras que enmarcan las bóvedas. Las naves laterales también tienen bancos de madera, puertas y ventanas dobles de madera coronadas con vidrieras de colores. Al fondo, bajo un ábside semicircular se encuentra el altar presidido por una balaustrada y escaleras. Está decorado con un retablo al pie del cual está el sagrario y la mesa de altar cubierta por un mantel de tela. A ambos lados del retablo hay estatuas de representaciones religiosas sobre ménsulas semicirculares, sillas y jarrones decorativos. La iglesia San Jorge fue inaugurada en el año 1920 siendo oficialmente fundada canónicamente en 1924 tras ser desmembrada de las Parroquias San Mateo y Sagrado Corazón. Su diseño inicial estuvo a cargo de la firma Martínez y Lázaro siendo finalizado en dos años. Seis años después se comienza la construcción de los edificios aledaños a la academia San Jorge. Posteriormente en 1940 la fachada fue remodelada por el arquitecto Rafael Carmoega. Más recientemente en el año 2017 fue restaurada en fases por la firma Astrid Díaz: ADV Architects.

Condado Vanderbilt - San Juan (Condado) - 2013 00163

Condado Vanderbilt - San Juan (Condado) - 2013 00163



Vista de los espacios interiores del Hotel Condado Vanderbilt ubicado en la avenida Ashford del pueblo costero de San Juan. El hotel es de varios niveles con características del estilo resurgimiento español. En el interior se distingue un salón de actividades con el piso parcialmente revestido por una alfombra con motivos ornamentales en varios tonos de color rojo y morado. Las paredes están revestidas de mármol en dos colores y tienen lámparas de vidrio pintado. La pared del extremo derecho tiene una puerta doble de cristal y amplios ventanales de cristal cubierto por cortinas de tela. Además, la pared de fondo tiene puertas dobles de madera, un amplio espejo al pie del cual hay una mesa de madera. Además, al extremo izquierdo se distingue otra puerta doble de madera y cristal bajo un arco semicircular junto a la cual hay una columna cilíndrica. Por otra parte, el techo es artesonado y está dividido en espacios cúbicos con profundidad decorados con lámparas colgantes de vidrio pintado a juego con las de las paredes y pequeños focos de luz individual. El Hotel Condado Vanderbilt fue comisionado en 1917 por Frederick William Vanderbilt. Finalmente el 16 de octubre de 1919 fue inaugurado el primer gran hotel de lujo del Caribe. En el año 1930 fue vendido y pasó a llamarse Hotel Condado, posteriormente en 1940 se convirtió en el primer hotel en la isla en tener un casino. Además, en 1950 volvieron a cambiar su nombre a Condado Beach Hotel y se añadieron habitaciones, salones de actividades y un restaurante. Luego de considerar su demolición fue incluido en el Registro Nacional de Lugares Históricos en el año 1988. Más recientemente fue remodelado entre los años 2008 a 2014 por los arquitectos Thomas S. Marvel y José Marchand Sifre añadiendo dos torres de suites modernas. Además, la planificación y restauración de los espacios estuvo a cargo del Arquitecto Jonathan Parks y la firma SOLSTICE Planning and Architecture. Los diseños interiores estuvieron a cargo del diseñador Jorge Roselló.

Casilla de Camineros - Bayamón - 2011 00035

Casilla de Camineros - Bayamón - 2011 00035



Casilla de Camineros en la Carretera 2, km. 12.7 en Bayamón. Vista parcial de un edificio construido en mampostería y ladrillos y de estilo neoclásico colonial. Se observan una pared de roca caliza expuesta y un hueco rectangular adintelado con molduras rústicas que funciona como ventana. El techo de hormigón muestra una cornisa con dentículos y un parapeto en estado de deterioro con algunas plantas creciendo en el borde. Algunas partes del enlucido en la cornisa y en la columna al borde del edificio se han desprendido exponiendo los ladrillos. La pared termina en una base de piedra caliza y hormigón. En primer plano se observa una caja plástica azul sobre el piso del patio de cemento y al fondo, alguna vegetación. Las Casillas de Camineros fueron construidas durante la última parte del siglo XIX a lo largo de las carreteras principales en Puerto Rico. Estas fueron las residencias de los camineros, trabajadores gubernamentales encargados de brindar mantenimiento a la superficie de la carretera. La mayoría de las casillas fueron abandonadas a finales del siglo XX y las que aún permanecen han enfrentado diferentes destinos. Muchas de ellas se han deteriorado o han sido demolidas y otras han sido destinadas a otros usos. Esta casilla es una de tres construidas en 1882 a lo largo de un tramo de la Carretera número 2 entre Bayamón y Mayagüez. Perteneció originalmente al Departamento de Transportación y Obras Públicas, quien luego la cedió al Instituto de Cultura para ser usada como museo y oficinas de la Cámara de Comercio de Bayamón.

Condado Vanderbilt - San Juan (Condado) - 2013 00067

Condado Vanderbilt - San Juan (Condado) - 2013 00067



Vista del patio trasero del Hotel Condado Vanderbilt ubicado en la avenida Ashford del pueblo costero de San Juan. El hotel es de varios niveles con características del estilo resurgimiento español. El patio trasero está rodeado por una balaustrada de cristal modulada por pilares cuadrados que a su vez presiden la costa del océano atlántico. Hay muebles de jardín y mesas con sombrillas a juego. Además, a la distancia se distinguen edificios y el mirador junto al parque Ventana al mar. El Hotel Condado Vanderbilt fue comisionado en 1917 por Frederick William Vanderbilt. Finalmente el 16 de octubre de 1919 fue inaugurado el primer gran hotel de lujo del Caribe. En el año 1930 fue vendido y pasó a llamarse Hotel Condado, posteriormente en 1940 se convirtió en el primer hotel en la isla en tener un casino. Además, en 1950 volvieron a cambiar su nombre a Condado Beach Hotel y se añadieron habitaciones, salones de actividades y un restaurante. Luego de considerar su demolición fue incluido en el Registro Nacional de Lugares Históricos en el año 1988. Más recientemente fue remodelado entre los años 2008 a 2014 por los arquitectos Thomas S. Marvel y José Marchand Sifre añadiendo dos torres de suites modernas. Además, la planificación y restauración de los espacios estuvo a cargo del Arquitecto Jonathan Parks y la firma SOLSTICE Planning and Architecture. Los diseños interiores estuvieron a cargo del diseñador Jorge Roselló.

Casilla de Camineros - Bayamón - 2011 00029

Casilla de Camineros - Bayamón - 2011 00029



Casilla de Camineros en la Carretera 2, km. 12.7 en Bayamón. Vista de la fachada principal de un edificio construido en mampostería y ladrillos y de estilo neoclásico colonial. La fachada exhibe paredes de roca caliza expuestas y tres huecos rectangulares adintelados que funcionan como ventanas y puertas con molduras rústicas. La puerta tiene un entablamento en el tope con letras color oro que leen: "Baya_ó_". El techo de hormigón muestra una cornisa con dentículos y un parapeto en estado de deterioro y plantas que sobresalen del techo. Se puede notar el abandono de la casa a través de toda la fachada. El patio frontal está cubierto de cemento. Las Casillas de Camineros fueron construidas durante la última parte del siglo XIX a lo largo de las carreteras principales en Puerto Rico. Estas fueron las residencias de los camineros, trabajadores gubernamentales encargados de brindar mantenimiento a la superficie de la carretera. La mayoría de las casillas fueron abandonadas a finales del siglo XX y las que aún permanecen han enfrentado diferentes destinos. Muchas de ellas se han deteriorado o han sido demolidas y otras han sido destinadas a otros usos. Esta casilla es una de tres construidas en 1882 a lo largo de un tramo de la Carretera número 2 entre Bayamón y Mayagüez. Perteneció originalmente al Departamento de Transportación y Obras Públicas, quien luego la cedió al Instituto de Cultura para ser usada como museo y oficinas de la Cámara de Comercio de Bayamón.

Casilla de Camineros - Bayamón - 2011 00032

Casilla de Camineros - Bayamón - 2011 00032



Casilla de Camineros en la Carretera 2, km. 12.7 en Bayamón. Vista lateral del edificio construido en mampostería y ladrillos, de estilo neoclásico colonial. Se observan paredes de roca caliza expuestas y cuatro huecos rectangulares adintelados con molduras rústicas que funcionan como ventanas. El techo de hormigón muestra una cornisa con dentículos y un parapeto en estado de deterioro y algunas plantas creciendo en el borde. Algunas partes del enlucido en la cornisa y la columna al borde del edificio se han desprendido exponiendo los ladrillos. El piso del patio exterior está cubierto de cemento. Al fondo se pueden ver algunos árboles. Las Casillas de Camineros fueron construidas durante la última parte del siglo XIX a lo largo de las carreteras principales en Puerto Rico. Estas fueron las residencias de los camineros, trabajadores gubernamentales encargados de brindar mantenimiento a la superficie de la carretera. La mayoría de las casillas fueron abandonadas a finales del siglo XX y las que aún permanecen han enfrentado diferentes destinos. Muchas de ellas se han deteriorado o han sido demolidas y otras han sido destinadas a otros usos. Esta casilla es una de tres construidas en 1882 a lo largo de un tramo de la Carretera número 2 entre Bayamón y Mayagüez. Perteneció originalmente al Departamento de Transportación y Obras Públicas, quien luego la cedió al Instituto de Cultura para ser usada como museo y oficinas de la Cámara de Comercio de Bayamón.

Calle de la Tanca 259 - San Juan (Viejo San Juan) - 2012 00003

Calle de la Tanca 259 - San Juan (Viejo San Juan) - 2012 00003



Calle de la Tanca 259 en el Viejo San Juan. Vista parcial de la fachada del edificio de dos pisos cuyo diseño estilo colonial español incorpora elementos de los estilos neoclásico y neo colonial español. En el primer nivel se ven tres de los cuatro arcos de medio punto bordeados con moldura simple y que tienen montantes de hierro. Una cornisa delgada cruza la fachada al nivel de los montantes de los arcos. Entre los dos arcos centrales está el letrero de establecimiento de la tienda Ovalop, que ocupa el primer piso del edificio. Entre los dos arcos del extremo hay una placa con el número del edificio. En el segundo nivel se pueden ver tres de los cuatro arcos adintelados bordeados con molduras acanaladas con pequeñas cornisas individuales. Sobre las cornisas hay ornamentos en forma de frontón con dos volutas y un elemento central. Los arcos tienen puertas de doble hoja de madera con paneles de vidrio. Un balcón con baranda de hierro se extiende frente a las dos puertas centrales, su piso tiene ménsulas de hierro. Las otra puerta tiene antepechos también con barandas de hierro y ménsulas estructurales. El coronamiento de la fachada está compuesto por un friso con cuatro guirnaldas alineadas sobre los cuatro arcos, una cornisa con una banda inferior decorativa y un parapeto. En uno de los extremos laterales de la fachada hay una lámpara de metal tipo farol con soporte de volutas. Se puede ver el extremo de uno de los edificios contiguo, de color azul claro y que tiene cuatro pisos. El piso inferior tiene arcos de medio punto y los pisos subsiguientes tienen arcos adintelados con balcones y parapetos con barandas de hierro. Se puede ver un tramo de acera y de la calle adoquinada. Hay una mujer caminando por la acera.

Antiguo edificio Sucesores de Abarca - San Juan (Miramar) - 2011 00012

Antiguo edificio Sucesores de Abarca - San Juan (Miramar) - 2011 00012



Detalle del tramo derecho de la fachada del edificio de la compañía West India Machinery & Suply Co., localizada al lado del antiguo edificio de la compañía Sucesores de Abarca, en Miramar, San Juan. El tramo central del edificio se distingue por una entrada con una puerta enrollable y otra puerta con vidrio. Entre estas puertas está localizada una placa con los nombres de las compañías. Sobre la puerta principal se encuentra una moldura curvada en la que se exhibe parte del nombre del edificio: "...ery & Supply Co.". El tramo de la derecha tiene un techo plano, una ventana con hojas de vidrio y otra ventana protegida con tormenteras. También son notables las ventanas de aluminio tipo persianas en la parte superior y las molduras blancas que acentúan los tramos de la fachada. Frente al edificio se ubican varios automóviles estacionados. La compañía West India Machinery & Supply Co., fue fundada en 1924 y sus operaciones se centraron en la distribución de equipo industrial y eléctrico. Por otro lado, la compañía Sucesores de Abarca fue fundada en 1850 y su edificio constituyó una importante planta de ingeniería mecánica y de trabajos de fundición. El edificio contaba con grandes talleres de mecánica, pailería y acero estructural. También dio servicios a las industrias azucareras, tabacaleras y cafetaleras, así como a facilidades de acueductos y alcantarillados, a carreteras y al sector industrial.

Calle de la Fortaleza 56 - Antigua Real Audiencia - Conservatorio De Artes Del Caribe - San Juan (Viejo San Juan) - 2011 000

Calle de la Fortaleza 56 - Antigua Real Audiencia - Conservatorio De Artes Del Caribe - San Juan (Viejo San Juan) - 2011 000



Antigua Real Audiencia, calle de la Fortaleza en el Viejo San Juan. Vista parcial de la fachada de la casa de dos pisos estilo colonial español. En el primer nivel se observan, la entrada principal, ubicada en el centro y tres de las cuatro ventanas laterales que tienen paneles de vidrio y antepechos de balaustres de madera. Una moldura continua se extiende sobre la base del edificio y alrededor de la entrada. A los lados de la entrada hay dos lámparas de pared tipo farol, debajo de una de las lámparas hay una placa conmemorativa. Un extenso balcón abierto con balaustrada de madera une los cinco vanos del segundo nivel, de los cuales solo cuatro son visibles. Cada vano tiene una puerta de doble hoja con celosías y paneles de vidrio en la parte superior. La casa tiene una hilada seguida por una cornisa delgada y un parapeto liso con moldura en el borde superior. La vista es en dirección de La Fortaleza, la cual se puede ver al final de la calle adoquinada. Junto a la casa se observa la fachada del Palacio Rojo. Además se ven las aceras que tienen balizas de metal en los bordes. Hay un hombre caminado por la acera. Originalmente esta casa fue la residencia del Dr. Francisco Oller y Ferrer, abuelo del pintor Francisco Oller y Cestero. En 1831 fue vendida al Estado y en 1832 pasó a ser la primera sede de la Real Audiencia Territorial. Alrededor del 1898 fue arrendado al Departamento de Agricultura de Estados Unidos y en otro momento se usó como Departamento de Estado. En 1992 la edificación fue dedicada a Don Fernando Chardón. Luego de un periodo de abandono fue restaurada en el año 2000 y asignada a las oficinas de Guías Turísticos y de Programas Federales adscritos a la Oficina del Gobernador. La Torre Meteorológica y de Observación fue diseñada por el ingeniero Manuel Maese, la orden para su construcción fue emitida en 1883.

Condado Vanderbilt - San Juan (Condado) - 2013 00147

Condado Vanderbilt - San Juan (Condado) - 2013 00147



Vista de los espacios interiores del Hotel Condado Vanderbilt ubicado en la avenida Ashford del pueblo costero de San Juan. El hotel es de varios niveles y características del estilo resurgimiento español. El interior del baño está revestido de mármol en las paredes y el piso. La pared del extremo derecho es de madera con cristal en cuadrados y el resto de la pared está revestida por espejos. Además, el corredor está acompañado por lámparas colgantes de vidrio pintado. El Hotel Condado Vanderbilt fue comisionado en 1917 por Frederick William Vanderbilt. Finalmente el 16 de octubre de 1919 fue inaugurado el primer gran hotel de lujo del Caribe. En el año 1930 fue vendido y pasó a llamarse Hotel Condado, posteriormente en 1940 se convirtió en el primer hotel en la isla en tener un casino. Además, en 1950 volvieron a cambiar su nombre a Condado Beach Hotel y se añadieron habitaciones, salones de actividades y un restaurante. Luego de considerar su demolición fue incluido en el Registro Nacional de Lugares Históricos en el año 1988. Más recientemente fue remodelado entre los años 2008 a 2014 por los arquitectos Thomas S. Marvel y José Marchand Sifre añadiendo dos torres de suites modernas. Además, la planificación y restauración de los espacios estuvo a cargo del Arquitecto Jonathan Parks y la firma SOLSTICE Planning and Architecture. Los diseños interiores estuvieron a cargo del diseñador Jorge Roselló.

Teatro Yagüez - Mayagüez - 2011 00015

Teatro Yagüez - Mayagüez - 2011 00015



Detalle de una escalera y una baranda en el interior del Teatro Yagüez, localizado entre las calles McKinley y Basora del municipio de Mayagüez. La escalera está ubicada entre las butacas del tercer nivel del teatro y se caracteriza por tener alfombrado de color crema y una baranda de metal de color dorado con motivos de volutas. Las butacas que la flanquean son de color rojo. Además, es visible el ornamento con yeserías del techo del teatro. En su origen, en 1909, el teatro fue diseñado y construido de madera, acero y cinc, y se le conoció como la Casa del Arte Sonoro. El dueño original de este teatro fue Francisco Maymón Palmer. En el año 1919 un fuego consumió el edificio. En 1920 se llevó a cabo un nuevo diseño de estilo ecléctico, integrando materiales como el hormigón, la madera, el cristal, el mármol italiano y el yeso para las ornamentaciones. Durante la década de 1950 el teatro mostró signos de deterioro y en el periodo de 1977 a 1984 se llevaron a cabo trabajos de restauración bajo el auspicio del municipio de Mayagüez. Asimismo, durante el periodo de 2002 a 2008 se realizó una tercera restauración al teatro. Este teatro constituye uno de los principales escenarios artísticos y de gran valor histórico en el área oeste de Puerto Rico por acoger a importantes orquestas y compañías de drama y danza. Su arquitectura refleja elementos del neoclásico europeo, el neobarroco y de la arquitectura de principios del siglo XX que se conoció como la Belle Époque.

Casilla de Camineros - Bayamón - 2011 00012

Casilla de Camineros - Bayamón - 2011 00012



Casilla de Camineros en la Carretera 2, km. 12.7 en Bayamón. Vista lateral de la fachada principal de un edificio construido en mampostería y ladrillos y de estilo neoclásico colonial. Se observan una pilastra de ladrillos en la esquina, tres huecos rectangulares adintelados, una base de hormigón que recorre todo el edificio y una cornisa con dentículos. Las paredes son de roca caliza expuestas. Se puede notar el abandono de la casa rodeada de arbustos y plantas, algunas creciendo sobre la cornisa. El enlucido en parte de la pilastra y partes de la cornisa se ha caído, exponiendo los ladrillos. Al fondo se pueden ver algunos árboles, palmas y un poste de tendido eléctrico. El piso del patio es de cemento y en algunas partes se nota agrietado. Las Casillas de Camineros fueron construidas durante la última parte del siglo XIX a lo largo de las carreteras principales en Puerto Rico. Estas fueron las residencias de los camineros, trabajadores gubernamentales encargados de brindar mantenimiento a la superficie de la carretera. La mayoría de las casillas fueron abandonadas a finales del siglo XX y las que aún permanecen han enfrentado diferentes destinos. Muchas de ellas se han deteriorado o han sido demolidas y otras han sido destinadas a otros usos. Esta casilla es una de tres construidas en 1882 a lo largo de un tramo de la Carretera número 2 entre Bayamón y Mayagüez. Perteneció originalmente al Departamento de Transportación y Obras Públicas, quien luego la cedió al Instituto de Cultura para ser usada como museo y oficinas de la Cámara de Comercio de Bayamón.

Archivo General - Antiguo Hospital Civil - San Juan (Puerta de Tierra) - 2011 00009

Archivo General - Antiguo Hospital Civil - San Juan (Puerta de Tierra) - 2011 00009



Vista frontal del Archivo General y Biblioteca Nacional de Puerto Rico ubicado en la comunidad de Puerta de Tierra del pueblo costero de San Juan. El edificio es de tres niveles en mampostería y ladrillo con características del estilo neoclásico. Está pintado en tonos de amarillo y color blanco. El primer nivel de la fachada frontal tiene zonas estriadas además, tiene ventanas dobles de madera y cristal con persianas y soles truncos bajo arcos de medio punto enmarcados con molduras planas y pintadas de color azul. Las del segundo nivel están coronadas con espinazos y al pie tienen molduras salientes a modo de base. Modulando las ventanas hay pilastras en pares de dos que sostienen una cornisa corrida y a su vez se alzan y sostienen una cornisa corrida que divide ambos niveles. Sobre este se proyecta un parapeto bajo. La fachada frontal es oblicua y en medio tiene la entrada a través de una puerta doble de cristal bajo un arco de medio punto enmarcado con molduras planas. Además, sobre esta hay una ventana como las demás flanqueada por columnas pares que a su vez sostienen un frontón triangular. El antiguo Hospital Civil fue el último edificio erigido por el gobierno Español en la Isla entre los años 1877-1887. A pesar de que fue construido como hospital fue utilizado como Cárcel provincial y posteriormente como destilería. Años más tarde, ante una amenaza de demolición el Instituto de Cultura Puertorriqueña lo adquirió y lo restauró para albergar documentos históricos. A partir del año 1973 trasladaron el Archivo General y la Biblioteca Nacional de Puerto Rico a este espacio. Además, el edificio fue incluido en el Registro Nacional de Lugares Históricos en el año 1976.

Banco Crédito y Ahorro Ponceño - 2014 00001

Banco Crédito y Ahorro Ponceño - 2014 00001



Vista del Banco de Crédito y Ahorro Ponceño ubicado frente a la plaza pública en el pueblo costero de Ponce. El edificio es achaflanado, de dos niveles en mampostería y concreto con características del estilo Beaux Arts. Sin embargo, la fachada exterior está dividida en tres niveles. En el primer nivel tiene ventanas bajo arcos semicirculares cubiertas por rejas de hierro, coronadas con espinazos y puertas bajo arcos semicirculares enmarcadas con molduras y coronadas con travesaños de cristal. El segundo nivel tiene puertas dobles estilo francés enmarcadas con molduras ornamentales y presididas por balaustradas. Además, están articuladas por pilastras acanaladas de orden corintio que se extienden hasta el nivel adicional sosteniendo un entablamento corrido decorado con guirnaldas, dentículos y una cornisa superior saliente con ménsulas. El tercer nivel tiene una inscripción que dice: "Crédito y Ahorro Ponceño", una barandilla con balaustres entre tres frontones con medallones con vidrieras, el de en medio con un reloj. Todos tienen molduras ornamentales y detalles en relieve. En adición, el techo es en forma de mansarda. El Banco de Crédito y Ahorro Ponceño se fundó en 1895, sin embargo no es hasta 1924 y 1925 cuando se construye este emblemático edificio. Permaneció en uso continuo hasta 1978 cuando el Banco Popular de Puerto Rico y el Banco Santander compraron las acciones de este. A pesar de eso en 1987 el edificio fue incluido en el Registro Nacional de Lugares Históricos. Además, desde el 2022 es la sede del medio noticioso La Perla del Sur.

Calle de la Fortaleza 56 - Antigua Real Audiencia - Conservatorio De Artes Del Caribe - San Juan (Viejo San Juan) - 2011 00087

Calle de la Fortaleza 56 - Antigua Real Audiencia - Conservatorio De Artes Del Caribe - San Juan (Viejo San Juan) - 2011 00087



Antigua Real Audiencia, calle de la Fortaleza en el Viejo San Juan. Vista parcial de la fachada de la casa de dos pisos estilo colonial español. En el primer nivel se observan cuatro arcos adintelados: la entrada principal en el centro, una puerta y una ventana a un lado y una ventana al otro lado. La entrada tiene tres escalones. Las ventanas y la puerta del extremo tienen antepechos de balaustres de madera y sobre cada una hay un óculo ovalado. Una moldura continua se extiende sobre la base del edificio y alrededor de la entrada, esta solo es interrumpida sobre la puerta del extremo. A los lados de la entrada hay dos lámparas de techo tipo farol y bajo una de la lámparas hay una placa conmemorativa. Un extenso balcón abierto con balaustrada de madera une los cinco vanos del segundo nivel, de los cuales solo cuatro son visibles. Cada vano tiene una puerta de doble hoja con celosías y paneles de vidrio en la parte superior. La casa tiene una hilada seguida por una cornisa delgada y un parapeto liso con moldura en el borde. Son visibles un tramo de la acera pavimentada con losetas y tres balizas de metal. Originalmente esta casa fue la residencia del Dr. Francisco Oller y Ferrer, abuelo del pintor Francisco Oller y Cestero. En 1831 fue vendida al Estado y el 1832 pasó a ser la primera sede de la Real Audiencia Territorial. Alrededor del 1898 fue arrendado al Departamento de Agricultura de Estados Unidos y en otro momento se usó como Departamento de Estado. En 1992 la edificación fue dedicada a Don Fernando Chardón. Luego de un periodo de abandono fue restaurada en el año 2000 y asignada a las oficinas de Guías Turísticos y de Programas Federales adscritos a la Oficina del Gobernador. La Torre Meteorológica y de Observación fue diseñada por el ingeniero Manuel Maese, la orden para su construcción fue emitida en 1883.

Condado Vanderbilt - San Juan (Condado) - 2013 00117

Condado Vanderbilt - San Juan (Condado) - 2013 00117



Vista desde el Hotel Condado Vanderbilt ubicado en la avenida Ashford del pueblo costero de San Juan. El hotel es de varios niveles con características del estilo resurgimiento español. Desde la fachada lateral del hotel se ve el techo a cuatro aguas revestido por tejas y sostenido por vigas de madera. Además, cruzando la calle se alza el edificio Bristol Condominium con ventanales de cristal y aluminio, y una azotea con techo voladizo de cristal. El condominio Bristol fue construido en el año 2006 siguiendo el diseño del Arquitecto Gonzalo M. Ferrer. El Hotel Condado Vanderbilt fue comisionado en 1917 por Frederick William Vanderbilt. Finalmente el 16 de octubre de 1919 fue inaugurado el primer gran hotel de lujo del Caribe. En el año 1930 fue vendido y pasó a llamarse Hotel Condado, posteriormente en 1940 se convirtió en el primer hotel en la isla en tener un casino. Además, en 1950 volvieron a cambiar su nombre a Condado Beach Hotel y se añadieron habitaciones, salones de actividades y un restaurante. Luego de considerar su demolición fue incluido en el Registro Nacional de Lugares Históricos en el año 1988. Más recientemente fue remodelado entre los años 2008 a 2014 por los arquitectos Thomas S. Marvel y José Marchand Sifre añadiendo dos torres de suites modernas. Además, la planificación y restauración de los espacios estuvo a cargo del Arquitecto Jonathan Parks y la firma SOLSTICE Planning and Architecture. Los diseños interiores estuvieron a cargo del diseñador Jorge Roselló.

Teatro Yagüez - Mayagüez - 2011 00024

Teatro Yagüez - Mayagüez - 2011 00024



Detalle de un palco en el tercer nivel del Teatro Yagüez, localizado entre las calles McKinley y Basora del municipio de Mayagüez. De este tramo del teatro es visible una baranda de metal de color dorado con motivos de volutas, unos escalones alfombrados y las butacas rojas. Además, es notable la ornamentación de bajorrelieve del parapeto que delimita el palco y la decoración del techo. En el centro del techo resalta la lámpara de cristal tipo araña. En su origen, en 1909, el teatro fue diseñado y construido de madera, acero y cinc, y se le conoció como la Casa del Arte Sonoro. El dueño original de este teatro fue Francisco Maymón Palmer. En el año 1919 un fuego consumió el edificio. En 1920 se llevó a cabo un nuevo diseño de estilo ecléctico, integrando materiales como el hormigón, la madera, el cristal, el mármol italiano y el yeso para las ornamentaciones. Durante la década de 1950 el teatro mostró signos de deterioro y en el periodo de 1977 a 1984 se llevaron a cabo trabajos de restauración bajo el auspicio del municipio de Mayagüez. Asimismo, durante el periodo de 2002 a 2008 se realizó una tercera restauración al teatro. Este teatro constituye uno de los principales escenarios artísticos y de gran valor histórico en el área oeste de Puerto Rico por acoger a importantes orquestas y compañías de drama y danza. Su arquitectura refleja elementos del neoclásico europeo, el neobarroco y de la arquitectura de principios del siglo XX que se conoció como la Belle Époque.

Condado Vanderbilt - San Juan (Condado) - 2013 00068

Condado Vanderbilt - San Juan (Condado) - 2013 00068



Vista del patio trasero del Hotel Condado Vanderbilt ubicado en la avenida Ashford del pueblo costero de San Juan. El hotel es de varios niveles y características del estilo resurgimiento español. En primer plano, se distingue un espacio del patio con una balaustrada metálica, a través de esta se ve la costa del océano atlántico y el otro extremo del patio. Este está rodeado por una balaustrada de cristal modulada por pilares cuadrados. Hay muebles de jardín y mesas con sombrillas a juego. Además, a la distancia se ven edificios costeros y un mirador junto al parque Ventana al Mar. El Hotel Condado Vanderbilt fue comisionado en 1917 por Frederick William Vanderbilt. Finalmente el 16 de octubre de 1919 fue inaugurado el primer gran hotel de lujo del Caribe. En el año 1930 fue vendido y pasó a llamarse Hotel Condado, posteriormente en 1940 se convirtió en el primer hotel en la isla en tener un casino. Además, en 1950 volvieron a cambiar su nombre a Condado Beach Hotel y se añadieron habitaciones, salones de actividades y un restaurante. Luego de considerar su demolición fue incluido en el Registro Nacional de Lugares Históricos en el año 1988. Más recientemente fue remodelado entre los años 2008 a 2014 por los arquitectos Thomas S. Marvel y José Marchand Sifre añadiendo dos torres de suites modernas. Además, la planificación y restauración de los espacios estuvo a cargo del Arquitecto Jonathan Parks y la firma SOLSTICE Planning and Architecture. Los diseños interiores estuvieron a cargo del diseñador Jorge Roselló.

Calle Villa 135 - Ponce - 2014 00031

Calle Villa 135 - Ponce - 2014 00031



Vista frontal y lateral de la primera iglesia metodista de Ponce ubicada en la calle Villa 135 del pueblo costero de Ponce. La iglesia es de un nivel en hormigón armado con características de varios estilos por lo que se considera ecléctica. El techo es a dos aguas de láminas de metal corrugado. La fachada tiene un aspecto rústico simulando bloques de mampostería y ventanas bajo arcos apuntados de madera con vidrieras de colores enmarcados con molduras salientes, varias puertas dobles de madera presidida por escalones y coronadas con travesaños de cristal. Ambas fachadas están decoradas con un rosetón, sostenidas por contrafuertes y acompañadas por zonas ajardinadas. Adosada a esta se alza la torre del campanario de base cuadrada dividida en dos tramos. La base tiene un aspecto rústico simulando bloques con vanos de entrada y vanos verticales enmarcados con molduras planas. El segundo tramo está sobre una cornisa saliente, es de menor tamaño y está construida con bloques de concreto. También tiene varios vanos verticales, cornisas salientes rectangulares y columnas decorativas. Además, tiene vanos semicirculares flanqueados por columnas compuestas que a su vez sostienen un entablamento corrido. Los vanos están cubiertos por rejillas y la torre está coronada con una cúpula en forma de bulbo y un remate esférico. La Iglesia Metodista de la Resurrección de Ponce fue construida en 1907 convirtiéndose en una de las primeras iglesias no católica romana construida después del cambio de soberanía en 1898 siendo un ejemplo de la libertad de culto. Tras el terremoto de 1918 la torre del campanario se tuvo que reconstruir utilizando el diseño de Francisco Porrata Doria, por lo que su diseño y materiales son diferentes al original. Años más tarde, en 1987 fue incluida en el Registro Nacional de Lugares Históricos.

Primera Iglesia Metodista Unida de Ponce - 2014 00036

Primera Iglesia Metodista Unida de Ponce - 2014 00036



Vista desde el interior de la primera iglesia metodista de Ponce ubicada en la calle Villa 135 del pueblo costero de Ponce. La iglesia es de un nivel en hormigón armado con características de varios estilos por lo que se considera ecléctica. El techo es a dos aguas con vigas de madera y lámparas colgantes. En el interior hay un altar elevado, presidido por una balaustrada de madera y escalones. Está cubierto por una alfombra color rojo y tiene ambones a cada lado, sillas, instrumentos musicales y carteles decorativos. En medio, bajo un arco semicircular enmarcado con molduras de madera está ubicada la mesa del altar. La mesa es de madera, cubierta por un mantel de encaje y acompañada por un libro, candelabros y flanqueada por macetas decorativas sobre pequeñas columnas decorativas. También tiene una cruz de madera en la pared y a ambos lados del altar ventanas bajo arcos semicirculares de madera con vidrieras de colores. La Iglesia Metodista de la Resurrección de Ponce fue construida en 1907 convirtiéndose en una de las primeras iglesias no católica romana construida después del cambio de soberanía en 1898 siendo un ejemplo de la libertad de culto. Tras el terremoto de 1918 la torre del campanario se tuvo que reconstruir utilizando el diseño de Francisco Porrata Doria, por lo que su diseño y materiales son diferentes al original. Años más tarde, en 1987 fue incluida en el Registro Nacional de Lugares Históricos.

Condado Vanderbilt - San Juan (Condado) - 2013 00104

Condado Vanderbilt - San Juan (Condado) - 2013 00104



Vista desde el patio trasero del Hotel Condado Vanderbilt ubicado en la avenida Ashford del pueblo costero de San Juan. El hotel es de varios niveles con características del estilo resurgimiento español. El patio trasero tiene el piso cubierto por baldosas de cerámica. Además, está rodeado por una balaustrada de cristal modulada por pilares cuadrados presidiendo la costa del océano atlántico. Hay plantas en macetas decorativas, muebles de jardín, mesas con sombrillas a juego, remates decorativos con formas cónicas y escaleras con pasamanos metálicos. La fachada trasera del hotel tiene una extensión moderna con amplios ventanales de cristal interrumpidos por columnas cuadradas. También se puede ver una pérgola con techos de vigas de madera expuestas. El Hotel Condado Vanderbilt fue comisionado en 1917 por Frederick William Vanderbilt. Finalmente el 16 de octubre de 1919 fue inaugurado el primer gran hotel de lujo del Caribe. En el año 1930 fue vendido y pasó a llamarse Hotel Condado, posteriormente en 1940 se convirtió en el primer hotel en la isla en tener un casino. Además, en 1950 volvieron a cambiar su nombre a Condado Beach Hotel y se añadieron habitaciones, salones de actividades y un restaurante. Luego de considerar su demolición fue incluido en el Registro Nacional de Lugares Históricos en el año 1988. Más recientemente fue remodelado entre los años 2008 a 2014 por los arquitectos Thomas S. Marvel y José Marchand Sifre añadiendo dos torres de suites modernas. Además, la planificación y restauración de los espacios estuvo a cargo del Arquitecto Jonathan Parks y la firma SOLSTICE Planning and Architecture. Los diseños interiores estuvieron a cargo del diseñador Jorge Roselló.

Condado Vanderbilt - San Juan (Condado) - 2013 00020

Condado Vanderbilt - San Juan (Condado) - 2013 00020



Vista del interior del Hotel Condado Vanderbilt ubicado en la avenida Ashford del pueblo costero de San Juan. El hotel es de varios niveles con características del estilo resurgimiento español. El vestíbulo tiene dos niveles con pisos de mármol, techos abovedados con lámparas colgantes y lámparas de pared a juego. La pared de fondo tiene varias puertas dobles de madera con ventanas de cristal bajo arcos semicirculares. Los espacios están separados con vanos semicirculares coronados con pequeños emblemas y balaustradas de hierro ornamental con pasamanos de madera. El Hotel Condado Vanderbilt fue comisionado en 1917 por Frederick William Vanderbilt. Finalmente el 16 de octubre de 1919 fue inaugurado el primer gran hotel de lujo del Caribe. En el año 1930 fue vendido y pasó a llamarse Hotel Condado, posteriormente en 1940 se convirtió en el primer hotel en la isla en tener un casino. Además, en 1950 volvieron a cambiar su nombre a Condado Beach Hotel y se añadieron habitaciones, salones de actividades y un restaurante. Luego de considerar su demolición fue incluido en el Registro Nacional de Lugares Históricos en el año 1988. Más recientemente fue remodelado entre los años 2008 a 2014 por los arquitectos Thomas S. Marvel y José Marchand Sifre añadiendo dos torres de suites modernas. Además, la planificación y restauración de los espacios estuvo a cargo del Arquitecto Jonathan Parks y la firma SOLSTICE Planning and Architecture. Los diseños interiores estuvieron a cargo del diseñador Jorge Roselló.

Condado Vanderbilt - San Juan (Condado) - 2013 00054

Condado Vanderbilt - San Juan (Condado) - 2013 00054



Vista del patio trasero del Hotel Condado Vanderbilt ubicado en la avenida Ashford del pueblo costero de San Juan. El hotel es de varios niveles con características del estilo resurgimiento español. El patio trasero tiene el piso cubierto por baldosas de cerámica. Además, el hotel tiene una extensión moderna de su construcción con amplios ventanales de cristal interrumpidos por columnas cuadradas. En el patio hay escaleras con pasamanos metálicos, plantas en macetas decorativas y remates decorativos con formas cónicas. También se pueden ver sombrillas y muebles de patio. El Hotel Condado Vanderbilt fue comisionado en 1917 por Frederick William Vanderbilt. Finalmente el 16 de octubre de 1919 fue inaugurado el primer gran hotel de lujo del Caribe. En el año 1930 fue vendido y pasó a llamarse Hotel Condado, posteriormente en 1940 se convirtió en el primer hotel en la isla en tener un casino. Además, en 1950 volvieron a cambiar su nombre a Condado Beach Hotel y se añadieron habitaciones, salones de actividades y un restaurante. Luego de considerar su demolición fue incluido en el Registro Nacional de Lugares Históricos en el año 1988. Más recientemente fue remodelado entre los años 2008 a 2014 por los arquitectos Thomas S. Marvel y José Marchand Sifre añadiendo dos torres de suites modernas. Además, la planificación y restauración de los espacios estuvo a cargo del Arquitecto Jonathan Parks y la firma SOLSTICE Planning and Architecture. Los diseños interiores estuvieron a cargo del diseñador Jorge Roselló.

Bastión de las Palmas de San José - San Juan (Viejo San Juan) - 2014 00003

Bastión de las Palmas de San José - San Juan (Viejo San Juan) - 2014 00003



Bastión de las Palmas de San José, localizado en la esquina de las calles Tetuán y San José en el Viejo San Juan. Fue construido en el siglo XVII, en 1625 luego del ataque holandés al Viejo San Juan. Se observa una muralla de mampostería de piedra y ladrillos interrumpida por una garita con cúpula semiesférica, clave, cornisas y cordón. Se aprecia una baranda, varias personas, banquetas, árboles, pasamanos, una farola y una estatua con la figura de un hombre. Posteriormente el Bastión de las Palmas de San José se convirtió en un parque. Al fondo en el centro de la imagen se encuentra el antiguo edificio de la Cámara de Comercio de Puerto Rico. El edificio está pintado de color anaranjado y blanco. Se ven parcialmente las ventanas de cristal cuadradas con marcos de metal y unas rejas color verde. Fue diseñado en 1926 por el arquitecto Antonín Nechodoma para ser la sede del Federal Land Bank of Baltimore en Puerto Rico. Anteriormente se le conocía como la Lonja de Valores y Víveres de San Juan. En 1937 fue adquirido por la Cámara de Comercio de Puerto Rico y en 2019 fue vendido a un privado. En el lado izquierdo se encuentra un edificio de dos pisos pintado de color azul y blanco. Tiene cornisas, pilastras, molduras blancas, almohadillados, un balcón y puertas dobles de madera. También se divisa parcialmente la antigua sede del periódico El Mundo/Puerto Rico Ilustrado en el Viejo San Juan. El edificio está pintado de color marrón y crema. Fue construido en 1923 por el arquitecto Francisco Roldán Martinó. Tiene elementos del estilo arquitectónico neoárabe. La fachada tiene mosaicos y ventanas de cristal con marcos de metal. A distancia en el lado derecho se percibe un barco de crucero.

Hospital de la Caridad de la Concepción - San Germán - 2011 00022

Hospital de la Caridad de la Concepción - San Germán - 2011 00022



Vista del antiguo Hospital de la Caridad de la Concepción ubicado en el pueblo de San Germán. El edificio es de un nivel en mampostería y características de los estilos vernáculo y neoclásico. La fachada frontal muestra pilastras acanaladas que se alzan y sostienen un entablamento corrido acompañado por cornisas, molduras y un friso. Adosado al extremo derecho se distingue la capilla con puertas dobles de madera enmarcadas con molduras y espinazos, una placa conmemorativa enmarcada y coronada con un entablamento triangular. Además, tiene pilastras planas que a su vez sostienen el entablamento corrido donde descansa un parapeto. El parapeto está enmarcado con molduras, tiene ventanas estilo celosía y un campanario decorado con pilastras salomónicas sobre pedestales que a su vez sostienen un entablamento triangular. Por otra parte, en los alrededores se pueden ver personas de pie y vehículos estacionados en la calle. El Hospital de la Concepción fue construido en 1842 siendo así uno de los más antiguos de San Germán. Estuvo en uso hasta 1998 cuando se construyó un nuevo edificio. La capilla permanece en uso y conserva su fachada original, se le conoce como la Iglesia Sagrada Familia. Además, a través de los años ha sido utilizado como establecimiento comercial y educativo. Junto al distrito histórico de San Germán fue incluido en el Registro Nacional de Lugares Históricos en el año 1994.

Calle de la Fortaleza 56 - Antigua Real Audiencia - Conservatorio De Artes Del Caribe - San Juan (Viejo San Juan) - 2011 00027

Calle de la Fortaleza 56 - Antigua Real Audiencia - Conservatorio De Artes Del Caribe - San Juan (Viejo San Juan) - 2011 00027



Antigua Real Audiencia, calle de la Fortaleza en el Viejo San Juan. Vista del interior de la casa de dos pisos estilo colonial español. Se observa el final de un corredor, la pared de fondo tiene una puerta de doble hoja de madera en forma de arco de medio punto. También tiene un óculo entre la puerta y el techo que tiene vigas de madera expuestas. Una de las paredes laterales tiene un arco adintelado con puerta, en la esquina junto a la puerta hay dos cajas vacías y dos botellones de agua. En la otra pared hay un arco de medio punto bajo el arco se ven una fuente de agua y una dispensadora de agua con una botella de cinco galones. El piso tiene losetas color terracota. Originalmente esta casa fue la residencia del Dr. Francisco Oller y Ferrer, abuelo del pintor Francisco Oller y Cestero. En 1831 fue vendida al Estado y el 1832 pasó a ser la primera sede de la Real Audiencia Territorial. Alrededor del 1898 fue arrendada al Departamento de Agricultura de Estados Unidos y en otro momento se usó como Departamento de Estado. En 1992 la edificación fue dedicada a Don Fernando Chardón. Luego de un periodo de abandono fue restaurada en el año 2000 y asignada a las oficinas de Guías Turísticos y de Programas Federales adscritos a la Oficina del Gobernador. La Torre Meteorológica y de Observación fue diseñada por el ingeniero Manuel Maese, la orden para su construcción fue emitida en 1883.

Archivo General - Antiguo Hospital Civil - San Juan (Puerta de Tierra) - 2009 00001

Archivo General - Antiguo Hospital Civil - San Juan (Puerta de Tierra) - 2009 00001



Vista frontal y lateral del Archivo General y Biblioteca Nacional de Puerto Rico ubicado en la comunidad de Puerta de Tierra del pueblo costero de San Juan. El edificio es de tres niveles en mampostería y ladrillo con características del estilo neoclásico. Está pintado en tonos de amarillo y color blanco. Desde el Parque Luis Muñoz Rivera se puede ver la calle transitada y en la esquina el edificio. El primer nivel tiene zonas estriadas además, tiene ventanas de madera y cristal con persianas y soles truncos bajo arcos de medio punto enmarcados con molduras planas. Las del segundo nivel están coronadas con espinazos y al pie tienen molduras salientes a modo de soporte. Modulando las ventanas hay pilastras en pares de dos que sostienen un entablamento corrido y a su vez se alzan y sostienen el entablamento del segundo nivel sobre el cual se proyecta un parapeto bajo. El antiguo Hospital Civil fue el último edificio erigido por el gobierno Español en la Isla entre los años 1877-1887. A pesar de que fue construido como hospital fue utilizado como Cárcel provincial y posteriormente como destilería. Años más tarde, ante una amenaza de demolición el Instituto de Cultura Puertorriqueña lo adquirió y lo restauró para albergar documentos históricos. A partir del año 1973 trasladaron el Archivo General y la Biblioteca Nacional de Puerto Rico a este espacio. Además, el edificio fue incluido en el Registro Nacional de Lugares Históricos en el año 1976.

Casa Grande - Mayagüez - 2011 00029

Casa Grande - Mayagüez - 2011 00029



Vista de la sala y las habitaciones en la Casa Grande, localizada en Mayagüez. Este espacio se distingue por tener el piso de madera, una lámpara tipo araña y una puerta con ventanilla de montante que da acceso a otras dos habitaciones. En la sala y la habitación contigua se ubica una mesa y una silla de madera con estilo isabelino y patas torneadas, similares a un balaustre. Sobre la mesa resaltan tres bustos, así como un florero y un candelabro. En la pared cuelgan cuatro pinturas del género retrato. Al fondo, a través de una de las puertas es notable el cabezal de una cama de pilares. Esta casa fue edificada en el 1890 y sus características son representativas del estilo arquitectónico neoclásico criollo. Su sólida construcción, mayormente de mampostería, resistió el terremoto de San Fermín ocurrido el 11 de octubre de 1918. Esta casa es históricamente importante porque también albergó la Sede de la Audiencia de Mayagüez y, tras el cambio de soberanía en 1898, pasó a manos privadas. Para 1901 fue la propiedad de don Guillermo Santos, quien la heredó a su hija, Isabel Santos Tió, casada con don Benigno Rodríguez Campoamor, el vicecónsul de España en Puerto Rico. En 1998, la administración municipal de Mayagüez adquirió esta casa y la restauró como museo, sala de exhibiciones, centro de presentación de obras literarias y para el desarrollo social y cultural de la ciudad. Desde entonces es conocida como la Casa Grande, Museo y Casa Cultural.

Calle Villa 135 - Ponce - 2014 00018

Calle Villa 135 - Ponce - 2014 00018



Vista de la primera iglesia metodista de Ponce ubicada en la calle Villa 135 del pueblo costero de Ponce. La iglesia es de un nivel en hormigón armado con características de varios estilos por lo que se considera ecléctica. El techo es a dos aguas de láminas de metal corrugado. Adosada a esta se alza la torre del campanario de base cuadrada dividida en dos tramos. La base tiene un aspecto rústico simulando bloques y vanos verticales enmarcados con molduras planas. El segundo tramo está sobre una cornisa saliente, es de menor tamaño y está construida con bloques de concreto. También tiene varios vanos verticales, rectangulares cornisas salientes y columnas decorativas. Además, se divisan vanos semicirculares flanqueados por columnas compuestas que a su vez sostienen un entablamento corrido. Los vanos están cubiertos por rejillas y la torre está coronada con una cúpula en forma de bulbo y un remate esférico. La iglesia Metodista de La Iglesia Metodista de la Resurrección de Ponce fue construida en 1907 convirtiéndose en una de las primeras iglesias no católica romana construida después del cambio de soberanía en 1898 siendo un ejemplo de la libertad de culto. Tras el terremoto de 1918 la torre del campanario se tuvo que reconstruir utilizando el diseño de Francisco Porrata Doria, por lo que su diseño y materiales son diferentes al original. Años más tarde, en 1987 fue incluida en el Registro Nacional de Lugares Históricos.

Antiguo Acueducto de Río Piedras - Documentación Aérea - San Juan (Río Piedras) - 2013 00035

Antiguo Acueducto de Río Piedras - Documentación Aérea - San Juan (Río Piedras) - 2013 00035



Vista aérea del río Piedras y el sitio del antiguo acueducto de Río Piedras en San Juan. Desde esta perspectiva es visible un muro en el río que conforma un tipo de represa. A un lado del río se encuentra un estacionamiento con varios automóviles. En el extremo opuesto también es visible el techo plano de la residencia de ingenieros y cuidadores diseñada por Fernando Alameda en 1887. Su construcción tuvo lugar entre 1892 y 1894 y se emplearon materiales como la piedra caliza y mampostería. Este edificio, de estilo colonial español, es de una planta rectangular, de un solo piso y una cubierta plana. Después de 1923 el edificio fue alterado para acomodar nuevos usos, entre estos, funcionó como almacén y posteriormente como laboratorio de calidad del agua desde 1923-1980. Al lado, se encuentra la casa de filtros y bombas y se distingue por ser un edificio de hormigón armado, de un nivel con forma de "L" y cubierta plana. Este edificio fue diseñado por Carlos del Valle Zeno y construido en 1923 en sustitución de un edificio de madera previo. La planificación del histórico Acueducto de Río Piedras inició en 1846 mediante una serie de propuestas y su construcción inició a partir de 1892 con periodos de construcción adicionales que continuaron hacia el temprano siglo XX. La planta operó desde el tardío siglo XIX hasta la década de 1980. El sitio ha estado vacante desde 1980 y es propiedad del Fideicomiso de Conservación de Puerto Rico y está dirigido por la organización local sin fines de lucro "Para La Naturaleza" que utiliza el sitio para actividades de educación ambiental.

Condado Vanderbilt - San Juan (Condado) - 2013 00022

Condado Vanderbilt - San Juan (Condado) - 2013 00022



Vista del interior del Hotel Condado Vanderbilt ubicado en la avenida Ashford del pueblo costero de San Juan. El hotel es de varios niveles con características del estilo resurgimiento español. El vestíbulo tiene dos niveles con pisos de mármol en dos colores, techos abovedados y lámparas de pared. La pared de fondo está revestida por espejos. La nave lateral tiene vanos semicirculares coronados con pequeños emblemas. Además, tienen balaustradas de hierro ornamental con pasamanos de madera. También se distinguen sillas en madera, plantas en macetas decorativas y puertas dobles de madera y cristal bajo arco semicirculares. El Hotel Condado Vanderbilt fue comisionado en 1917 por Frederick William Vanderbilt. Finalmente el 16 de octubre de 1919 fue inaugurado el primer gran hotel de lujo del Caribe. En el año 1930 fue vendido y pasó a llamarse Hotel Condado, posteriormente en 1940 se convirtió en el primer hotel en la isla en tener un casino. Además, en 1950 volvieron a cambiar su nombre a Condado Beach Hotel y se añadieron habitaciones, salones de actividades y un restaurante. Luego de considerar su demolición fue incluido en el Registro Nacional de Lugares Históricos en el año 1988. Más recientemente fue remodelado entre los años 2008 a 2014 por los arquitectos Thomas S. Marvel y José Marchand Sifre añadiendo dos torres de suites modernas. Además, la planificación y restauración de los espacios estuvo a cargo del Arquitecto Jonathan Parks y la firma SOLSTICE Planning and Architecture. Los diseños interiores estuvieron a cargo del diseñador Jorge Roselló.

Hacienda Santa Ana - Bayamón - 2011 00025

Hacienda Santa Ana - Bayamón - 2011 00025



Hacienda Santa Ana en Bayamón. Vista de la fachada principal de la casona de la Hacienda. Se observa un edificio de dos niveles construido en mampostería de ladrillos con un estilo arquitectónico ecléctico. En el frente tiene una gran escalera color terracota de escalones curvos, más ancha abajo que arriba, lo que la hace lucir como un abanico invertido. La escalera tiene pasamanos de tubo y llega al segundo nivel donde se observa la entrada en forma de arco del pórtico. La entrada muestra una lámpara de pared, dos columnas redondas a los lados y un portón ornamental de hierro. El pórtico exhibe las mismas columnas redondas con capiteles cuadrangulares y arcadas a lo ancho de toda la fachada. Los arcos del primer piso tienen pilares lisos. La arcada del segundo piso tiene barandas ornamentales de hierro. El patio está cubierto de grama con caminos de ladrillos. La Casona de la Hacienda Santa Ana reside en terrenos conferidos en 1787 por el rey Carlos III al capitán Fernando Fernández, corsario español que rendía servicios a la corona. A partir de 1804, el capitán comenzó a sembrar caña de azúcar y a destilar ron en la propiedad para su uso personal, pero no fue hasta 1880 cuando su bisnieto Pedro Fernández y su hijo Edmundo desarrollaron la fórmula y el proceso de destilación del conocido Ron del Barrilito. Además de la casona, la Hacienda abarca la tonelería, el trapiche, el área de añejamiento y el área de embotellamiento y empaque. Estas instalaciones, que también sirven como museo, continúan produciendo el popular ron, así como el alcoholado medicinal Santa Ana.

Casa Vives - 13000013

Casa Vives - 13000013



Vista oblicua del edificio conocido como Casa Vives, en Ponce. Se observa un edificio de esquina de dos niveles, de estilo neoclásico, construido en ladrillo y mampostería, con techo plano y pretil moldurado. La fachada presenta un diseño que combina funciones comerciales en el primer nivel y residenciales en el segundo. El primer nivel cuenta con múltiples accesos independientes, puertas amplias y vitrinas protegidas con rejas metálicas. Estos cuentan con molduras simples y están separados por pilastras de orden toscano. El segundo nivel tiene balcones que se proyectan hacia el exterior, con barandas de hierro forjado ornamentadas con motivos decorativos característicos del siglo XIX. Cada vano en el nivel superior está enmarcado por molduras simples y pilastras corintias, que rematan en capiteles decorados y en una cornisa prominente. Las puertas del segundo nivel tienen celosías de madera ajustables, diseñadas para controlar la ventilación e iluminación del interior. La parte superior de la fachada está rematada por un entablamento compuesto por una cornisa prominente y un pretil sencillo que oculta la cubierta plana. El entorno incluye una acera pavimentada con losas rectangulares, árboles, postes de alumbrado de estilo clásico y un vendedor de piraguas (conos de nieve). Se observan varias personas en la calle, automóviles estacionados frente al edificio y, al fondo, un edificio adyacente de menor altura. Casa Vives fue construida entre 1859 y 1860 por encargo de Carlos Vives, hijo del hacendado Salvador Vives. Es una de las casas mejor preservadas del siglo XIX en Puerto Rico y representa los ideales arquitectónicos y sociales de la élite ponceña de la época. El diseño ha sido atribuido a Juan Bertoli Carderoni, aunque documentos históricos indican que el constructor fue Carlos Milán. La residencia conserva sus materiales originales, como vigas de ausubo, balcones de hierro forjado importados de Escocia y decoraciones interiores pintadas a mano. El edificio refleja el auge económico y urbano de Ponce durante el siglo XIX, impulsado por la agricultura, especialmente la caña de azúcar y el café. Su construcción, financiada en parte con la venta de esclavos, es testimonio del poder económico de su dueño y del contexto histórico de la época.

Condado Vanderbilt - San Juan (Condado) - 2013 00181

Condado Vanderbilt - San Juan (Condado) - 2013 00181



Vista desde el interior del Hotel Condado Vanderbilt ubicado en la avenida Ashford del pueblo costero de San Juan. El hotel es de varios niveles con características del estilo resurgimiento español. El salón de actividades tiene las paredes revestidas de mármol decorada con molduras. Además, hay una columna cilíndrica decorada con una moldura dorada. También se pueden ver pequeños focos de luz individual en el techo y una lámpara colgante de vidrio pintado. La lámpara tiene seis brazos y flequillos de pequeñas piezas de vidrio creando un diseño escalonado. El Hotel Condado Vanderbilt fue comisionado en 1917 por Frederick William Vanderbilt. Finalmente el 16 de octubre de 1919 fue inaugurado el primer gran hotel de lujo del Caribe. En el año 1930 fue vendido y pasó a llamarse Hotel Condado, posteriormente en 1940 se convirtió en el primer hotel en la isla en tener un casino. Además, en 1950 volvieron a cambiar su nombre a Condado Beach Hotel y se añadieron habitaciones, salones de actividades y un restaurante. Luego de considerar su demolición fue incluido en el Registro Nacional de Lugares Históricos en el año 1988. Más recientemente fue remodelado entre los años 2008 a 2014 por los arquitectos Thomas S. Marvel y José Marchand Sifre añadiendo dos torres de suites modernas. Además, la planificación y restauración de los espacios estuvo a cargo del Arquitecto Jonathan Parks y la firma SOLSTICE Planning and Architecture. Los diseños interiores estuvieron a cargo del diseñador Jorge Roselló.

Casa Dr. Agustín Stahl Stamm - Bayamón - 2011 00048

Casa Dr. Agustín Stahl Stamm - Bayamón - 2011 00048



Casa Dr. Agustín Stahl Stamm en Bayamón. Vista del patio interior donde se observa el aljibe con un cuerpo cilíndrico de cemento y ladrillo, una tapa de madera y un gancho con marco ornamental de hierro. En la pared del lado izquierdo se pueden ver dos puertas de madera de doble hoja cerradas que dan acceso a un área de almacenamiento debajo de la escalera. Al fondo, la entrada al corredor, con un arco de ladrillos en la parte superior, que da acceso a otra habitación. En esa área se observa una persona con una escalera plegable debajo de una puerta con un montante de sol trunco y otra puerta doble de madera blanca al fondo. Las paredes del patio interior exhiben también una placa de bronce con información sobre el aljibe, dos lámparas tipo candelabro y una moldura de madera en el techo. El piso es de losas de terracota y tiene una rejilla de desagüe. La casa, construida en la década de 1840, exhibe características arquitectónicas neoclásicas y no solo fue la residencia del internacionalmente reconocido científico puertorriqueño Agustín Stahl (1842-1917), sino que también sirvió de consultorio médico, laboratorio y almacén para sus colecciones de historia natural y antropología. Fue adquirida y parcialmente restaurada por la Alcaldía de Bayamón en el año 2000, quien posteriormente la convirtió en museo. Aunque no existen planos históricos de la planta de la casa, durante el proceso de restauración no se realizó ninguna modificación y se conservó así su integridad en los materiales, la distribución espacial, ubicación y su ambiente.

Condado Vanderbilt - San Juan (Condado) - 2013 00135

Condado Vanderbilt - San Juan (Condado) - 2013 00135



Vista desde el balcón frontal del Hotel Condado Vanderbilt ubicado en la avenida Ashford del pueblo costero de San Juan. El hotel es de varios niveles y características del estilo resurgimiento español. La fachada frontal del hotel tiene ventanas dobles de cristal en arcos rectangulares, puertas dobles bajo arcos semicirculares presididas por antepechos y un entablamento corrido. También se distingue una de las ventanas coronada con un entablamento triangular. Además, la fachada frontal está presidida por una entrada vehicular y zonas ajardinadas. Por otra parte, al extremo izquierdo se alza una de las torres laterales del hotel con ventanas dobles de cristal enmarcadas con molduras, balcones con balaustradas de cristal dentro de los cuales hay más ventanas y puertas enmarcadas con molduras. El primer nivel de la torre tiene acceso a un estacionamiento subterráneo. El Hotel Condado Vanderbilt fue comisionado en 1917 por Frederick William Vanderbilt. Finalmente el 16 de octubre de 1919 fue inaugurado el primer gran hotel de lujo del Caribe. En el año 1930 fue vendido y pasó a llamarse Hotel Condado, posteriormente en 1940 se convirtió en el primer hotel en la isla en tener un casino. Además, en 1950 volvieron a cambiar su nombre a Condado Beach Hotel y se añadieron habitaciones, salones de actividades y un restaurante. Luego de considerar su demolición fue incluido en el Registro Nacional de Lugares Históricos en el año 1988. Más recientemente fue remodelado entre los años 2008 a 2014 por los arquitectos Thomas S. Marvel y José Marchand Sifre añadiendo dos torres de suites modernas. Además, la planificación y restauración de los espacios estuvo a cargo del Arquitecto Jonathan Parks y la firma SOLSTICE Planning and Architecture. Los diseños interiores estuvieron a cargo del diseñador Jorge Roselló.

Condado Vanderbilt - San Juan (Condado) - 2013 00212

Condado Vanderbilt - San Juan (Condado) - 2013 00212



Vista desde el interior del Hotel Condado Vanderbilt ubicado en la avenida Ashford del pueblo costero de San Juan. El hotel es de varios niveles con características del estilo resurgimiento español. El vestíbulo tiene dos niveles y está pintado en diferentes tonos de color salmón. Además, en medio hay una escalera es espiral de mármol negro con balaustradas de hierro oramental y pasamanos de madera. Además, el pasamano tiene un pilarote con remate metálico de color dorado. El Hotel Condado Vanderbilt fue comisionado en 1917 por Frederick William Vanderbilt. Finalmente el 16 de octubre de 1919 fue inaugurado el primer gran hotel de lujo del Caribe. En el año 1930 fue vendido y pasó a llamarse Hotel Condado, posteriormente en 1940 se convirtió en el primer hotel en la isla en tener un casino. Además, en 1950 volvieron a cambiar su nombre a Condado Beach Hotel y se añadieron habitaciones, salones de actividades y un restaurante. Luego de considerar su demolición fue incluido en el Registro Nacional de Lugares Históricos en el año 1988. Más recientemente fue remodelado entre los años 2008 a 2014 por los arquitectos Thomas S. Marvel y José Marchand Sifre añadiendo dos torres de suites modernas. Además, la planificación y restauración de los espacios estuvo a cargo del Arquitecto Jonathan Parks y la firma SOLSTICE Planning and Architecture. Los diseños interiores estuvieron a cargo del diseñador Jorge Roselló.

Condado Vanderbilt - San Juan (Condado) - 2013 00188

Condado Vanderbilt - San Juan (Condado) - 2013 00188



Vista del interior del Hotel Condado Vanderbilt ubicado en la avenida Ashford del pueblo costero de San Juan. El hotel es de varios niveles con características del estilo resurgimiento español. El vestíbulo tiene dos niveles con pisos de mármol en dos colores con motivo ajedrezado. Los espacios están divididos en naves, la nave central tiene dos escaleras en espiral de mármol negro con balaustradas metálicas ornamentales y pasamanos de madera. Junto a las escaleras también se distingue una esfinge sobre una base negra y una alfombra. Además, dividiendo la nave central de la nave lateral hay arcos rectangulares flanqueados por lámparas de pared de color dorado. El Hotel Condado Vanderbilt fue comisionado en 1917 por Frederick William Vanderbilt. Finalmente el 16 de octubre de 1919 fue inaugurado el primer gran hotel de lujo del Caribe. En el año 1930 fue vendido y pasó a llamarse Hotel Condado, posteriormente en 1940 se convirtió en el primer hotel en la isla en tener un casino. Además, en 1950 volvieron a cambiar su nombre a Condado Beach Hotel y se añadieron habitaciones, salones de actividades y un restaurante. Luego de considerar su demolición fue incluido en el Registro Nacional de Lugares Históricos en el año 1988. Más recientemente fue remodelado entre los años 2008 a 2014 por los arquitectos Thomas S. Marvel y José Marchand Sifre añadiendo dos torres de suites modernas. Además, la planificación y restauración de los espacios estuvo a cargo del Arquitecto Jonathan Parks y la firma SOLSTICE Planning and Architecture. Los diseños interiores estuvieron a cargo del diseñador Jorge Roselló.

Casilla de Camineros - Bayamón - 2011 00022

Casilla de Camineros - Bayamón - 2011 00022



Casilla de Camineros en la Carretera 2, km. 12.7 en Bayamón. Vista parcial de la fachada lateral de un edificio construido en mampostería y ladrillos y de estilo neoclásico colonial. Tiene paredes de roca caliza expuestas y un hueco adintelado con moldura rústica con una ventana de madera de doble hoja. Una columna formada por ladrillos y con enlucido de yeso se observa en la esquina del edificio que descansa sobre un borde de hormigón y roca caliza. El enlucido en la columna y partes de la cornisa se ha caído exponiendo los ladrillos. El techo tiene una cornisa con dentículos y un parapeto en estado de deterioro, así como plantas que sobresalen del borde y las paredes. Las Casillas de Camineros fueron construidas durante la última parte del siglo XIX a lo largo de las carreteras principales en Puerto Rico. Estas fueron las residencias de los camineros, trabajadores gubernamentales encargados de brindar mantenimiento a la superficie de la carretera. La mayoría de las casillas fueron abandonadas a finales del siglo XX y las que aún permanecen han enfrentado diferentes destinos. Muchas de ellas se han deteriorado o han sido demolidas y otras han sido destinadas a otros usos. Esta casilla es una de tres construidas en 1882 a lo largo de un tramo de la Carretera número 2 entre Bayamón y Mayagüez. Perteneció originalmente al Departamento de Transportación y Obras Públicas, quien luego la cedió al Instituto de Cultura para ser usada como museo y oficinas de la Cámara de Comercio de Bayamón.

Antiguo Acueducto de Río Piedras - Documentación Aérea - San Juan (Río Piedras) - 2013 00007

Antiguo Acueducto de Río Piedras - Documentación Aérea - San Juan (Río Piedras) - 2013 00007



Vista aérea de la casa de bombeo, la casa de filtros y bombas, la casa del superintendente y del servicio doméstico que forman parte del antiguo acueducto de Río Piedras, en San Juan. Este conjunto de edificios refleja los estilos arquitectónicos de la historia del sitio. Por ejemplo, la casa de bombeo presenta características del estilo colonial español, mientras que la casa del superintendente exhibe rasgos del estilo bungaló. La casa de bombeo es un edificio de mampostería de piedra caliza y ladrillo enyesado, de un piso y con cubierta a dos aguas con paneles de metal corrugado o cinc, diseñado en 1892 por Henry Thomas Granger. Este edificio, además presenta aberturas de puertas y ventanas rectangulares. La casa de bombeo albergaba tres funciones, entre estas, servir como la casa de máquinas, la casa de calderas y el almacenamiento de carbón. Una chimenea de ladrillo con forma cónica octogonal de una altura de 80 pies con elementos neoclásicos se encuentra en la elevación este de la casa de bombeo. Seguidamente, es visible la casa de filtros y bombas que consiste de un edificio con forma de "L" de un piso y techo plano, diseñado por Carlos del Valle Zeno y construido en 1923 en sustitución de un edificio de madera previo. También es visible la residencia de ingenieros y cuidadores, cuyo edificio es rectangular y de techo plano. En otro extremo, detrás de la casa de bombeo, se encuentra la casa del superintendente cuyo edificio de hormigón está pintado de azul y se caracteriza por tener la cubierta plana. Además, exhibe un porche, columnas de mampostería, ventanas rectangulares de las cuales algunas están protegidas con rejas. Este edificio también fue diseñado por el ingeniero Carlos de Valle Zeno. La planificación del histórico Acueducto de Río Piedras inició en 1846 mediante una serie de propuestas y su construcción inició a partir de 1892 con periodos de construcción adicionales que continuaron hacia el temprano siglo XX. Este acueducto fue el primero de la ciudad de San Juan. La planta operó desde el tardío siglo XIX hasta la década de 1980. El sitio ha estado vacante desde 1980 y es propiedad del Fideicomiso de Conservación de Puerto Rico y está dirigido por la organización local sin fines de lucro "Para La Naturaleza" que utiliza el sitio para actividades de educación ambiental.

Casa Armstrong Poventud - 2014 00002

Casa Armstrong Poventud - 2014 00002



Vista frontal de la Casa Armstrong Poventud ubicada en la calle Unión del pueblo costero de Ponce. La casa es de dos niveles en mampostería sobre una base de piedra expuesta. Desde la Catedral Nuestra Señora de la Guadalupe se distingue la calle pavimentada con vehículos estacionados y la Casa Armstrong Poventud. En el primer nivel la casa tiene una entrada a través de una puerta doble bajo un arco semicircular enmarcado con molduras y coronado con un sol trunco y un espinazo. Flanqueando la entrada principal hay dos cariátides sobre ménsulas decoradas y ventanas de madera bajo arcos dobles enmarcados con molduras, sostenidos por pilastras compuestas y presididos por balaustradas. Cada extremo tiene pilastras con capiteles compuestos que se alzan hasta el segundo nivel sosteniendo un entablamento corrido. De la misma manera, el segundo nivel tiene tres arcos semicirculares con puertas dobles de madera enmarcados con molduras, coronados con soles truncos y espinazos. Los tres arcos están presididos por balconeras, las de los extremos con barandas de hierro ornamental y la de en medio con una balaustrada de mampostería. Además, los balcones están flanqueados por pilastras compuestas que a su vez sostienen un entablamento corrido con ménsulas, un friso ornamental, una cornisa corrida y un parapeto con ánforas. Por otra parte, al extremo derecho la casa tiene una cochera presidida por un portón de reja metálico. Esta cochera se eleva un nivel abriendo paso a una azotea abierta en el segundo nivel rodeada por rejas metálicas. También se pueden ver casas y edificios adosados con diferentes características. La conocida Casa de las Cariátides fue construida en 1899 para la familia del señor Carlos Armstrong Toro el fundador del Banco de Ponce y Banco de Crédito y Ahorro Ponceño. Tras el terremoto de 1918 fue restaurada y se le añadió el espacio de la cochera. Años más tarde, en 1986 fue vendida al gobierno y restaurada por lo que en 1987 fue incluida en el Registro Nacional de Lugares Históricos.

Condado Vanderbilt - San Juan (Condado) - 2013 00187

Condado Vanderbilt - San Juan (Condado) - 2013 00187



Vista del interior del Hotel Condado Vanderbilt ubicado en la avenida Ashford del pueblo costero de San Juan. El hotel es de varios niveles con características del estilo resurgimiento español. El vestíbulo tiene dos niveles con pisos de mármol en dos colores con motivo ajedrezado. Los espacios están divididos en naves, la nave central tiene dos escaleras en espiral de mármol negro con balaustradas metálicas ornamentales y pasamanos de madera. Junto a las escaleras también se distingue una esfinge sobre una base negra y una alfombra. Además, dividiendo la nave central de la nave lateral hay arcos rectangulares flanqueados por lámparas de pared de color dorado. El Hotel Condado Vanderbilt fue comisionado en 1917 por Frederick William Vanderbilt. Finalmente el 16 de octubre de 1919 fue inaugurado el primer gran hotel de lujo del Caribe. En el año 1930 fue vendido y pasó a llamarse Hotel Condado, posteriormente en 1940 se convirtió en el primer hotel en la isla en tener un casino. Además, en 1950 volvieron a cambiar su nombre a Condado Beach Hotel y se añadieron habitaciones, salones de actividades y un restaurante. Luego de considerar su demolición fue incluido en el Registro Nacional de Lugares Históricos en el año 1988. Más recientemente fue remodelado entre los años 2008 a 2014 por los arquitectos Thomas S. Marvel y José Marchand Sifre añadiendo dos torres de suites modernas. Además, la planificación y restauración de los espacios estuvo a cargo del Arquitecto Jonathan Parks y la firma SOLSTICE Planning and Architecture. Los diseños interiores estuvieron a cargo del diseñador Jorge Roselló.

Casa en la Calle Cuevillas 607 - San Juan (Miramar) - 2014 00040

Casa en la Calle Cuevillas 607 - San Juan (Miramar) - 2014 00040



Perspectiva de un tramo de la fachada y una entrada de la casa en la calle Cuevillas 607, en Miramar, San Juan. Este tramo se distingue por una escalera flanqueada por barandas y muros bajos que funcionan como pequeñas jardineras. A través de la escalera se accede a una de las puertas, la cual está protegida por una reja ornamental que exhibe un patrón geométrico. También son notables las pilastras que separan los tramos de la fachada y el alero. La casa es de dos niveles y está compuesta de mampostería, hormigón armado y madera. Su superficie exhibe el color rosado con detalles de blanco. En el área del jardín, y en primer plano, sobresale un árbol que proporciona sombra a esta parte de la casa. Esta casa se construyó en 1913 siguiendo influencias del estilo resurgimiento del renacimiento francés o resurgimiento neoclásico francés. Sus dueños originales fueron el juez Luis Méndez Baz y su esposa, María Bagur. Tras visitar Francia, la pareja hizo construir su residencia siguiendo el diseño de un prototipo publicado en Nouvelles Maisons de Campagne, Paris et ses Environs, que mostraba fachadas y planos de casas de campo populares en París. Posteriormente la casa funcionó como residencia y taller para artistas como Lorenzo Homar, Juan Ramón Velázquez, Ada Bobonis y Aaron Salabarrías. Además, los herederos de los dueños originales establecieron una fundación para desarrollar un museo en esta residencia. Entre el 2018 y 2019 se llevó a cabo la restauración del edificio que dio lugar al establecimiento del Museo de Arte y Diseño de Miramar, también conocido como la Casa Rosada.

Casa en la Calle Cuevillas 607 - San Juan (Miramar) - 2014 00012

Casa en la Calle Cuevillas 607 - San Juan (Miramar) - 2014 00012



Perspectiva del nivel superior del tramo central de la fachada de la casa en la calle Cuevillas 607, en Miramar, San Juan. Este tramo se distingue por tres arcos tapiados, flanqueados por pilastras y acentuados por molduras y claves. Uno de los arcos exhibe una baranda de reja ornamental. La fachada presenta varios elementos ornamentales de influencia francesa como el "cartouche", las rosetas, las pilastras, cornisas, guirnaldas, dentículos y molduras. La parte superior tiene una cubierta a dos aguas o forma de frontón triangular y en el centro presenta una ventanilla de lumbreras o persianas. Esta casa se construyó en 1913 siguiendo influencias del estilo resurgimiento del renacimiento francés o resurgimiento neoclásico francés. Sus dueños originales fueron el juez Luis Méndez Baz y su esposa, María Bagur. Tras visitar Francia, la pareja hizo construir su residencia siguiendo el diseño de un prototipo publicado en Nouvelles Maisons de Campagne, Paris et ses Environs, que mostraba fachadas y planos de casas de campo populares en París. Posteriormente la casa funcionó como residencia y taller para artistas como Lorenzo Homar, Juan Ramón Velázquez, Ada Bobonis y Aaron Salabarrías. Además, los herederos de los dueños originales establecieron una fundación para desarrollar un museo en esta residencia. Entre el 2018 y 2019 se llevó a cabo la restauración del edificio que dio lugar al establecimiento del Museo de Arte y Diseño de Miramar, también conocido como la Casa Rosada.

Arsenal de La Marina en La Puntilla - San Juan (Viejo San Juan) - 2012 00041

Arsenal de La Marina en La Puntilla - San Juan (Viejo San Juan) - 2012 00041



Vista desde la parte posterior del antiguo Arsenal de La Marina Española en el barrio La Puntilla en el Viejo San Juan. El edificio es representativo del estilo neoclásico y fue construido en 1800. Se observa un espacio limitado por balaustradas con varios vehículos y árboles. Se aprecia una fachada color rosado y blanco con parapeto, pilastras, cornisas, puertas dobles en madera y un balcón sostenido por pilares y sin barandas. Posteriormente el Arsenal de la Marina Española se utilizó para exhibiciones y oficinas administrativas del Instituto de Cultura Puertorriqueña. Continuo a este edificio se encuentra el United States Customs House, también conocido como la Aduana de San Juan. Su estilo arquitectónico es representativo del resurgimiento español y su construcción es obra del arquitecto Albert B. Nichols. Fue construido en 1924 y está pintado de color rosado, blanco y terracota. Este edificio fue incluido en el Registro Nacional de Lugares Históricos en 1988. A distancia se localiza el Banco Popular de Puerto Rico. El edificio está pintado de color crema y es representativo del estilo art déco. Fue diseñado por el arquitecto Chauncey W. Riley y construido por los ingenieros Juan M. Beltrán Carrasquillo, Manuel Miró y Saurí y José Benítez Gautier. En el centro de la imagen se puede ver la corte y correo federal José V. Toledo, en el cual resaltan dos torres coronadas con linternas y las tejas árabes. Fue diseñado por Oscar Wenderoth y está pintado de color crema y terracota. El edificio fue incluido en el Registro Nacional de Lugares Históricos en 1986. En la imagen también se divisa el edificio Ochoa, diseñado por el arquitecto Pedro Adolfo de Castro y Besosa. Está pintado de color gris y blanco, tiene una torre coronada con un diseño escalonado, también posee ventanas rectangulares y cuadradas. Igualmente se aprecia la fachada del edificio Harbor Plaza y el Hotel Sheraton. En el lado derecho de la imagen se encuentra la bahía de San Juan, el muelle 1 y el muelle 3.

Catedral de San Felipe Apóstol - Arecibo - 2011

Catedral de San Felipe Apóstol - Arecibo - 2011



Vista frontal de la Catedral de San Felipe Apóstol en el pueblo costero de Arecibo. En primer plano está la plaza Luis Muñoz Rivera rodeada por una baranda de hierro ornamental modulada por pilares cuadrados. Tiene postes de luz y zonas ajardinadas. Cruzando la calle transitada por vehículos se encuentra la Catedral San Felipe Apóstol. Está separada de su entorno inmediato por una cerca de mampostería modulada por una reja metálica y pilares cuadrados. Además, está presidida por una escalinata que conduce a la puerta de entrada. El edificio es de mampostería con techo de hormigón. Su diseño está inspirado en la arquitectura renacentista y neoclásica. La fachada frontal está decorada con pilastras, ventanas enmarcadas y coronadas con entablamento, molduras, cornisas y una entrada bajo un arco de medio punto coronada con un sol trunco de madera y un frontón sobre el cual se puede ver un nicho. Dentro del nicho hay una estatua religiosa. Por otra parte, coronando el edificio se alza un campanario cuadrado con un vano semicircular y una cruz. En los alrededores se pueden ver casas, postes de tendido eléctrico y edificios adosados con diferentes características. La construcción de la Catedral de San Felipe Apóstol data de 1616, sin embargo en 1846 fue que se construyó oficialmente el edificio con el diseño que se observa en la foto. Es la segunda iglesia más grande de la isla construida bajo el dominio español y no fue hasta 1960 que fue oficialmente designada Catedral de la diócesis de Arecibo.

Hacienda Santa Ana - Bayamón - 2011 00027

Hacienda Santa Ana - Bayamón - 2011 00027



Hacienda Santa Ana en Bayamón. Vista de la fachada principal de la casona de la Hacienda. Se observa un edificio de dos niveles construido en mampostería de ladrillos con un estilo arquitectónico ecléctico. En el frente tiene una gran escalera color terracota de escalones curvos, parapetos lisos y pasamanos de tubo. También se puede ver el pórtico en el segundo piso; este tiene columnas redondas con capiteles cuadrados, un portón y una baranda de rejas de hierro en los laterales. Sobre el arco del pórtico hay una lámpara de pared. Detrás de la escalera y justo debajo del pórtico hay dos arcos de medio punto. Además, se puede apreciar que el espacio contiguo a la casa está pavimentado. La pintura desprendida en la escalera y las paredes sugiere una propiedad en estado de abandono. La Casona de la Hacienda Santa Ana reside en terrenos conferidos en 1787 por el rey Carlos III al capitán Fernando Fernández, corsario español que rendía servicios a la corona. A partir de 1804, el capitán comenzó a sembrar caña de azúcar y a destilar ron en la propiedad para su uso personal, pero no fue hasta 1880 cuando su bisnieto Pedro Fernández y su hijo Edmundo desarrollaron la fórmula y el proceso de destilación del conocido Ron del Barrilito. Además de la casona, la Hacienda abarca la tonelería, el trapiche, el área de añejamiento y el área de embotellamiento y empaque. Estas instalaciones, que también sirven como museo, continúan produciendo el popular ron, así como el alcoholado medicinal Santa Ana.

Casa de Ramón Emeterio Betances - Mayagüez - 2011 00006

Casa de Ramón Emeterio Betances - Mayagüez - 2011 00006



Fachada de la casa de Ramón Emeterio Betances en Mayagüez, también conocida como la casa de los cinco arcos. Esta casa, de mampostería y madera machihembrada, está elevada sobre un podio. La fachada consiste en una galería delimitada por una serie de arcos mixtilíneos elevados sobre columnas emparejadas. Estas columnas se elevan sobre pedestales que separan la barandilla de metal ornamentada con motivos de hojas y flores. Sobre los arcos y en los paneles del podio sobresale el signo de una estrella dentro de una esfera. Las puertas son de doble hoja con paneles, lumbreras y montantes que permiten la ventilación. La fachada lateral se distingue por una puerta con características similares a las principales, mientras que la ventana visible tiene una reja y una consola de aire acondicionado. Un portón flanqueado por pilares conduce a este tramo lateral en el que también destaca una escalera con una urna en el parapeto. El techo es de cuatro aguas cubierto con planchas de cinc y también se distingue por apéndices con cubiertas a dos aguas y lumbreras que permiten la ventilación. La casa está delimitada por una cerca articulada por un muro bajo coronado con reja e interrumpido por pilares. En uno de estos pilares resalta una tarja con la representación de un retrato de Ramón Emeterio Betances y un texto. La superficie de la residencia está pintada de amarillo y blanco. Frente a la casa se encuentran varios automóviles estacionados cerca de la acera. En el 1865, Ramón Emeterio Betances solicitó el permiso para fabricar esta casa de mampostería en la cual solo vivió dos años. A su muerte, su hermana, Inés, la heredó. La casa fue afectada por el terremoto de 1918. En el 2006, el alcalde de la ciudad restituyó el nombre de Betances a la calle y colocó frente a la residencia una tarja en reconocimiento del amor de Betances por Mayagüez.

Antigua Iglesia El Nazareno - Catedral de la Música - San Juan (Miramar) - 2016 00059

Antigua Iglesia El Nazareno - Catedral de la Música - San Juan (Miramar) - 2016 00059



Fachada del edificio de la antigua Iglesia El Nazareno, también conocido como la Catedral de la Música Latina y la Casa Viera. Este edificio está localizado en el 909 de la avenida Fernández Juncos, esquina calle Hoare en la zona de Miramar, Santurce, en el municipio de San Juan. La fachada consiste de dos torres coronadas con tejas de barro. Las ventanas son arqueadas e integran rejas, vidrios y persianas. También se proyectan varios óculos acentuados por molduras blancas. La entrada principal, parcialmente visible, consiste de puertas de aluminio con hojas de vidrio y un tejadillo con tejas de barro. Sobre la entrada resalta un tipo de frontón, una representación caricaturesca de una vitrola y un perro aullando, así como el nombre del edificio: "Viera Discos", "La Casa del Coleccionista" y "...L de la Música Latina". En un extremo sobresale la representación de la carátula del disco de Ismael Rivera con sus Cachimbos, titulado "Esto fue lo que trajo el barco". Frente al edificio se extiende una cerca articulada por un muro interrumpido por pilares con remates. Sobre un tramo del muro de la cerca cuelga un cartel que anuncia el ofrecimiento de Viera Discos y las alternativas de contacto. La superficie del edificio es de color amarillo con detalles anaranjados. Este edificio de hormigón, construido en 1947 en el estilo resurgimiento español, originalmente albergó una iglesia episcopal, conocida como El Nazareno en Santurce. Posteriormente, acogió la Casa Viera, la cual constituyó una de las más grandes tiendas de música del Caribe. A partir del año 2015 el edificio fue adquirido por la compañía Puerto Rico Island Holdings mediante una subasta realizada por el banco Scotiabank.

Original Drawings - Antiguo Hospital Civil - Archivo General 2010 00024

Original Drawings - Antiguo Hospital Civil - Archivo General 2010 00024



Dibujo arquitectónico del Archivo General y Biblioteca Nacional de Puerto Rico ubicado en la comunidad de Puerta de Tierra del pueblo costero de San Juan. El edificio es de tres niveles con características del estilo neoclásico. El dibujo muestra la fachada lateral del edificio que tiene tres pisos con características del estilo neoclásico. La fachada lateral tiene una parte del primer nivel con un diseño estriado y ventanas dobles bajo arcos de medio punto enmarcados con molduras. Las ventanas del segundo nivel están coronadas con espinazos y están sobre bases de molduras salientes una de las cuales tienen balaustres. Además, modulando las ventanas hay pilastras que se conectan y se alzan hasta sostener un entablamento con molduras, cornisa y triglifos. Sobre este se proyecta un parapeto bajo con ánforas ubicadas a la par con las pilastras y los triglifos. También se alcanzan a ver columnas de órden dórico que sostienen un frontón triangular. El antiguo Hospital Civil fue el último edificio erigido por el gobierno Español en la Isla entre los años 1877-1887. A pesar de que fue construido como hospital fue utilizado como Cárcel provincial y posteriormente como destilería. Años más tarde, ante una amenaza de demolición el Instituto de Cultura Puertorriqueña lo adquirió y lo restauró para albergar documentos históricos. A partir del año 1973 trasladaron el Archivo General y la Biblioteca Nacional de Puerto Rico a este espacio. Además, el edificio fue incluido en el Registro Nacional de Lugares Históricos en el año 1976.

Teatro Yagüez - Mayagüez - 2011 00059

Teatro Yagüez - Mayagüez - 2011 00059



Detalle de la lámpara y el techo del Teatro Yagüez, localizado entre las calles McKinley y Basora del municipio de Mayagüez. La lámpara es de cristal tipo araña y sus cristales presentan formas de flores y esferas. El techo está ornamentado con molduras y yeserías que exhiben motivos de arabescos y geométricos. El parapeto del palco también exhibe yesería ornamental con motivos de guirnaldas. Además, es visible parte de la boca del escenario y la cortina roja que contrasta con el color blanco de las molduras, la yesería y los paneles de mármol que revisten las paredes. En su origen, en 1909, el teatro fue diseñado y construido de madera, acero y cinc, y se le conoció como la Casa del Arte Sonoro. El dueño original de este teatro fue Francisco Maymón Palmer. En el año 1919 un fuego consumió el edificio. En 1920 se llevó a cabo un nuevo diseño de estilo ecléctico, integrando materiales como el hormigón, la madera, el cristal, el mármol italiano y el yeso para las ornamentaciones. Durante la década de 1950 el teatro mostró signos de deterioro y en el periodo de 1977 a 1984 se llevaron a cabo trabajos de restauración bajo el auspicio del municipio de Mayagüez. Asimismo, durante el periodo de 2002 a 2008 se realizó una tercera restauración al teatro. Este teatro constituye uno de los principales escenarios artísticos y de gran valor histórico en el área oeste de Puerto Rico por acoger a importantes orquestas y compañías de drama y danza. Su arquitectura refleja elementos del neoclásico europeo, el neobarroco y de la arquitectura de principios del siglo XX que se conoció como la Belle Époque.

Calle de la Luna 277 - San Juan (Viejo San Juan) - 2014 00001

Calle de la Luna 277 - San Juan (Viejo San Juan) - 2014 00001



Calle de la Luna 277 en el Viejo San Juan. Fachada de la casa rosada de dos pisos estilo neoclásico con elementos del estilo colonial español, vista desde la Plaza de la Barandilla. El diseño de la fachada está compuesto por seis arcos rebajados, la curvatura de los arcos es tan leve que casi parecen arcos adintelados. En el primer piso los arcos de los lados tienen molduras con pilastras y frontones ovalados coronados con mascarones. Estos tienen puertas de doble hoja con celosías y paneles de vidrio, y antepechos de hierro. La moldura del arco central, que es la entrada principal, es más simple, no tiene frontón pero sí un ornamento que exhibe el número de la casa. La entrada tiene portón de rejas. El borde superior de la pared del primer piso tiene una moldura horizontal que incluye un friso con motivo floral. En el segundo piso hay un balcón descubierto y con baranda de hierro que se extiende frente a los tres arcos. Los arcos tienen molduras con ménsulas y cornisas individuales. Las puertas también son de doble hoja con celosías, iguales que las del primer piso. Sobre los arcos se observa un friso seguido por la cornisa y el parapeto. El parapeto tiene molduras verticales y remates en forma de tiesto que tienen plantas ornamentales. Dos pilastras desnudas enmarcan los extremos laterales de la fachada. Sobre una de las pilastras hay una lámpara de pared tipo farol. En primer plano se ve parte de la plaza. Esta tiene una cerca con baranda de hierro. Una escalera, también con baranda de hierro da acceso a la plaza hundida, desde la calle Luna. Se ve un busto de un hombre tocando güiro sobre un pedestal. A un lado hay árboles cuyas copas impiden la vista hacia un lado del primer piso de la casa.

Casa Grande - Mayagüez - 2011 00019

Casa Grande - Mayagüez - 2011 00019



Detalle de la entrada lateral a la Casa Grande, localizada en Mayagüez. La entrada está acentuada por un arco flanqueado por pilastras. En la parte superior se distingue una moldura con un diseño ondulado y, seguidamente, se extiende una cornisa. También es visible parcialmente una baranda de metal, una reja y un poste. La superficie de la casa es de color anaranjado claro con detalles ornamentales de blanco y, con las rejas y baranda de color verde. El edificio del lado también es de tonalidades de verde. Esta casa fue edificada en el 1890 y sus características son representativas del estilo arquitectónico neoclásico criollo. Además, constituye un ejemplo representativo de la tipología de un nivel con sótano en mampostería. Su sólida construcción resistió el terremoto de San Fermín ocurrido el 11 de octubre de 1918. Esta casa es históricamente importante porque también albergó la Sede de la Audiencia de Mayagüez y, tras el cambio de soberanía en 1898, pasó a manos privadas. Para 1901 fue la propiedad de don Guillermo Santos, quien la heredó a su hija, Isabel Santos Tió, casada con don Benigno Rodríguez Campoamor, el vicecónsul de España en Puerto Rico. En 1998, la administración municipal de Mayagüez adquirió esta casa y la restauró como museo, sala de exhibiciones, centro de presentación de obras literarias y para el desarrollo social y cultural de la ciudad. Desde entonces es conocida como la Casa Grande, Museo y Casa Cultural.

Colegio San José de San Germán - 2011 00008

Colegio San José de San Germán - 2011 00008



Vista de la Ermita de San Sebastián y los alrededores del colegio San José en el pueblo de San Germán. La Ermita de San Sebastián y el Colegio San José están construidos en mampostería con características del estilo neoclásico. Los edificios están separados de su entorno inmediato mediante una cerca metálica modulada por pilares. La fachada del edificio está dividida en tramos con pilastras planas y decorada con molduras y un entablamento corrido. En medio se distingue la ermita con una entrada ubicada bajo un arco de medio punto enmarcado, la puerta es sencilla de madera y está cubierta por una reja metálica. Las ventanas son de madera y persianas, las del primer nivel están cubiertas por rejas metálicas. Por otra parte, sobre el edificio se alza un campanario y una cúpula. Flanqueando la ermita hay edificios que pertenecen al Colegio San José con características similares, al extremo izquierdo las ventanas son semicirculares enmarcadas con molduras, pilastras y un entablamento corrido. Las del edificio del extremo derecho son dobles de madera enmarcadas con molduras, las de la fachada lateral son estilo celosía de aluminio. Esta fachada también tiene unas escaleras de entrada y un letrero en la pared. Además, en los alrededores se distinguen vehículos estacionados en la calle. Desde su construcción en 1782 y restauración en 1850 sirvió como iglesia parroquial, convento, seminario y parte del colegio San José como biblioteca. Junto al distrito histórico de San Germán fue incluido en el Registro Nacional de Lugares Históricos en el año 1994.

Antiguo Banco de Ponce - 2014 00002

Antiguo Banco de Ponce - 2014 00002



Vista a distancia del edificio del Antiguo Banco de Ponce ubicado en el pueblo costero de Ponce. En primer plano, al extremo derecho se distingue un edificio de dos niveles decorado con molduras ornamentales y balcones saledizos con balaustradas metálicas sostenidos por ménsulas. Enfrente hay una acera pavimentada con postes de luz y personas de pie. Cruzando la calle transitada se encuentra la plaza pública Federico Degetau decorada con zonas ajardinadas, bancos y postes de luz. Por otra parte, al fondo se alza el edificio del Banco de Ponce. El edificio es de tres niveles construido en hormigón con características de los estilos Beaux-Art y neoclásico. La fachada tiene ventanas cubiertas por rejas metálicas y ventanas francesas bajo arcos semicirculares presididos por balaustradas. Además, los arcos están enmarcados con molduras ornamentales, coronadas con espinazos y flanqueadas por pares de pilastras acanaladas de orden corintio. Las pilastras se entienden hasta el tercer nivel y sostienen un entablamento corrido con cornisas, molduras, dentículos y más ventanas francesas. En la parte frontal también se distingue una entrada a través de una puerta rectangular enmarcada, coronada con entablamentos y flanqueada por columnas acanaladas de orden corintio. Sobre la entrada se distingue una inscripción que dice: “Banco Popular”. El Banco de Ponce fue fundado en 1912 pero no fue hasta 1924 y 1925 cuando fue construido e inaugurado el edificio. Posteriormente en la década de 1940 su interior fue remodelado para ampliarlo de acuerdo con las necesidades del establecimiento. Para 1983 el banco contaba con cincuenta sucursales y en 1990 se fusionó con el Banco Popular de Puerto Rico. En adición, en 1987 el edificio fue incluido en el Registro Nacional de Lugares Históricos.

Calle Caleta de San Juan 72 - San Juan (Viejo San Juan) - 2009

Calle Caleta de San Juan 72 - San Juan (Viejo San Juan) - 2009



Edificio en la calle Caleta de San Juan 72 en el Viejo San Juan. El edificio tiene rasgos característicos del estilo arquitectónico neoclásico y está pintado de color amarillo. Se observa que el techo tiene molduras blancas y está curveado en una de sus esquinas. En la parte superior de la fachada se ve un balcón con balaustradas que tiene una bandera con los colores amarillo en el centro y rojo en los bordes superior e inferior y una representación de un toro. Al lado del balcón se ve el vano de una ventana con balaustres de madera. En la parte inferior de la fachada se aprecia una puerta de cristal que tiene varios letreros y en las esquinas hay otros dos letreros que dicen: "Rosa de Triana" y "Restaurante. Bar. Tapas". Al lado de la puerta se ven faroles y una puerta con balaustres. En el lado izquierdo de la imagen se divisa parcialmente el edificio Casa Cabildo. Este edificio fue construido en 1529 y fue sede de la primera alcaldía del municipio de San Juan. Tiene rasgos del estilo arquitectónico neoclásico y está pintado de color anaranjado y marrón. Se notan tres antepechos con balaustrada, una balconera, puertas dobles de celosía, una puerta con balaustres de madera y una ropa colgando de la pared. En el lado derecho de la imagen hay otro edificio color anaranjado, amarillo y blanco. Se notan las molduras planas y una balconera con puertas dobles de celosía y vigas de madera. Frente a estos edificios se encuentra una acera, arbustos y automóviles.

Calle de la Fortaleza 56 - Antigua Real Audiencia - Conservatorio De Artes Del Caribe - San Juan (Viejo San Juan) - 2012 00012

Calle de la Fortaleza 56 - Antigua Real Audiencia - Conservatorio De Artes Del Caribe - San Juan (Viejo San Juan) - 2012 00012



Antigua Real Audiencia, calle de la Fortaleza en el Viejo San Juan. Vista de la Torre Meteorológica y de Observación ubicada en el techo de la casa de dos pisos estilo colonial español. Se puede ver la torre desde el techo de uno de los edificios aledaños. La torre octagonal fue construida en mampostería, acero y madera. La sección de mampostería tiene un óculo en una de las paredes y una cornisa con ménsulas. Sobre ésta se encuentra el área de observación, que es de madera y consiste de una puerta y ventanas con celosías, tiene una cúpula de metal con un remate esférico y está protegida por una baranda. Las ventanas visibles están rotas. La torre tiene paredes amarillas, la cornisa es blanca, el área de observación es verde al igual que la baranda y la cúpula tiene color marrón. Se pueden ver segmentos de los techos de algunos edificios aledaños. Al fondo se ve la bahía de San Juan. Originalmente esta casa fue la residencia del Dr. Francisco Oller y Ferrer, abuelo del pintor Francisco Oller y Cestero. En 1831 fue vendida al Estado y el 1832 pasó a ser la primera sede de la Real Audiencia Territorial. Alrededor del 1898 fue arrendado al Departamento de Agricultura de Estados Unidos y en otro momento se usó como Departamento de Estado. En 1992 la edificación fue dedicada a Don Fernando Chardón. Luego de un periodo de abandono fue restaurada en el año 2000 y asignada a las oficinas de Guías Turísticos y de Programas Federales adscritos a la Oficina del Gobernador. La Torre Meteorológica y de Observación fue diseñada por el ingeniero Manuel Maese, la orden para su construcción fue emitida en 1883.

Hospital de la Caridad de la Concepción - San Germán - 2011 00021

Hospital de la Caridad de la Concepción - San Germán - 2011 00021



Vista del antiguo Hospital de la Caridad de la Concepción ubicado en el pueblo de San Germán. El edificio es de un nivel en mampostería y características de los estilos vernáculo y neoclásico. La fachada frontal muestra ventanas estilo celosía enmarcada con molduras planas y coronadas con bloques de vidrio y entablamentos. Además, hay una puerta doble coronada con un entablamento y una inscripción que dice; “Centro de Desarrollo Familiar seasonal Head Start Early Diócesis de Mayagüez Inc. La sagrada familia”. A ambos lados de esta hay logos y pilastras acanaladas que se alzan y sostienen un entablamento corrido acompañado por cornisas, molduras y un friso. Adosado al extremo derecho se distingue la capilla con puertas dobles de madera enmarcadas con molduras y espinazos, una placa conmemorativa enmarcada y coronada con un entablamento triangular. Además, tiene pilastras planas que a su vez sostienen el entablamento corrido donde descansa un parapeto. El parapeto está enmarcado con molduras, tiene ventanas estilo celosía y un campanario decorado con pilastras salomónicas sobre pedestales que a su vez sostienen un entablamento triangular. Por otra parte, en los alrededores se pueden ver personas de pie y vehículos estacionados en la calle. El Hospital de la Concepción fue construido en 1842 siendo así uno de los más antiguos de San Germán. Estuvo en uso hasta 1998 cuando se construyó un nuevo edificio. La capilla permanece en uso y conserva su fachada original, se le conoce como la Iglesia Sagrada Familia. Además, a través de los años ha sido utilizado como establecimiento comercial y educativo. Junto al distrito histórico de San Germán fue incluido en el Registro Nacional de Lugares Históricos en el año 1994.

El Cortijo - Barranquitas - 2012 00111

El Cortijo - Barranquitas - 2012 00111



Vista exterior de la residencia conocida como El Cortijo en el pueblo de Barranquitas. La residencia es de dos niveles más una torre que se eleva un nivel adicional, está cimentada en concreto armado con techos cubiertos por tejas. Además, su diseño está inspirado en el estilo del resurgimiento colonial español. La casa tiene ventanas dobles de madera y cristal algunas cubiertas por rejas ornamentales de hierro y otras están coronadas con aleros. También se pueden ver balcones voladizos con puertas dobles de madera y cristal sostenidos por ménsulas. Uno de los balcones posee una balaustrada de madera modulada por pilares, lámparas colgantes y el otro es abierto y tiene baranda de hierro. Decorando la fachada se visualizan tragaluces y una balconera en el descanso de la escalera con puerta doble de madera y cristal enmarcada y coronada con un entablamento. Por otra parte, en el primer nivel la entrada es a través de un pórtico presidido por escalones cubiertos por losas de cerámica y una arcada modulada por una columna compuesta sobre la cual se distingue un emblema en relieve. En el pórtico se aprecia de plantas en macetas decorativas, estatuas y una lámpara en la pared. Por su parte, el jardín tiene aceras y un antiguo pozo de mampostería ornamentada. El Cortijo fue construido en 1939 como residencia de verano para la familia Lozana Fabián, relacionados a la administración de centrales azucareras en Puerto Rico. A lo largo de los años ha cambiado de dueños, pero su diseño original no ha sido alterado.

Condado Vanderbilt - San Juan (Condado) - 2013 00096

Condado Vanderbilt - San Juan (Condado) - 2013 00096



Vista desde el patio trasero del Hotel Condado Vanderbilt ubicado en la avenida Ashford del pueblo costero de San Juan. El hotel es de varios niveles con características del estilo resurgimiento español. Además, el patio trasero tiene el piso cubierto por baldosas de cerámica, macetas decorativas y zonas ajardinadas. También tiene un gazebo moderno rodeado con puertas de cristal y aleros saledizos con vigas expuestas. Por otra parte, al extremo derecho se distingue un extremo de una de las torres laterales con balcones rodeado por balaustrada de cristal, ventanas enmarcadas con molduras y puertas dobles. El Hotel Condado Vanderbilt fue comisionado en 1917 por Frederick William Vanderbilt. Finalmente el 16 de octubre de 1919 fue inaugurado el primer gran hotel de lujo del Caribe. En el año 1930 fue vendido y pasó a llamarse Hotel Condado, posteriormente en 1940 se convirtió en el primer hotel en la isla en tener un casino. Además, en 1950 volvieron a cambiar su nombre a Condado Beach Hotel y se añadieron habitaciones, salones de actividades y un restaurante. Luego de considerar su demolición fue incluido en el Registro Nacional de Lugares Históricos en el año 1988. Más recientemente fue remodelado entre los años 2008 a 2014 por los arquitectos Thomas S. Marvel y José Marchand Sifre añadiendo dos torres de suites modernas. Además, la planificación y restauración de los espacios estuvo a cargo del Arquitecto Jonathan Parks y la firma SOLSTICE Planning and Architecture. Los diseños interiores estuvieron a cargo del diseñador Jorge Roselló.

ArquiTour 2015 - San Juan (Viejo San Juan) - 2015 00012

ArquiTour 2015 - San Juan (Viejo San Juan) - 2015 00012



Se aprecian varios edificios estilo colonial ubicados en la calle Fortaleza en el Viejo San Juan. En primer plano se observa un edificio de varios pisos con aleros y antenas satelitales. Tiene un balcón con rejas, una puerta doble y ventanas francesas con cortinas de metal corrugado. En la parte inferior se ven parcialmente tres arcos semicirculares con una puerta doble de celosía de madera, farolas y un letrero con el número "1918" en la pared. Al lado hay otro edificio con un frontón y parapeto ornamentado y tiene un alero sostenido por pilastras blancas acanaladas. Adyacente a este edificio se localiza un edificio color anaranjado con plantas en el techo, un alero sostenido por ménsulas y un balcón con barandas de metal. Continuo hay otro edificio de menor tamaño color anaranjado con pilares blancos y un poste de servicio en el techo. El siguiente edificio es anaranjado claro con un alero color rojo. Tiene una construcción inclinada en el techo, cornisas y postes de servicio. Al lado hay un edificio color amarillo y rojo. Tiene en el techo una construcción con una puerta color negra, antenas satelitales, postes de servicio, sillas de plástico y máquinas rodeadas por una verja de malla ciclónica de metal. La fachada frontal tiene las paredes curveadas con ventanas tipo Miami y balcón con rejas color negro. Justo al lado hay un edificio de menor tamaño color azul claro con aleros y vanos de puertas con molduras. A distancia se observa parcialmente el antiguo Casino de Puerto Rico, actual sede del Centro de Recepciones Oficiales del Gobierno de Puerto Rico. Su estilo arquitectónico es Beaux Arts, está pintado de color gris y blanco. Se nota el techo mansarda, las cornisas, balaustres, un frontón, molduras rectangulares ornamentadas y seis pilastras. Este edificio fue incluido en el Registro de Lugares Históricos de Estados Unidos en 1977. También se aprecia la muralla de mampostería del Castillo San Cristóbal. Se pueden ver las troneras, garitas y los vanos de ventanas. En la imagen se divisa el Océano Atlántico, árboles, arbustos, palmas, carreteras y vehículos.

Casa en la calle Castillo esquina calle Mayor - Corte de España

Casa en la calle Castillo esquina calle Mayor - Corte de España



Dibujo arquitectónico de edificio ubicado en la calle Castillo esquina calle Mayor en el pueblo costero de Ponce. El edificio es de dos niveles en mampostería y características de los estilos neoclásico y barroco. En el primer nivel se pueden ver arcos semicirculares flanqueados por pilastras, enmarcados con molduras, y almohadillados coronados con soles truncos y espinazos. Los arcos también están presididos por balaustradas con excepción de dos arcos que son puertas dobles de acceso. También hay un balcón bajo un arco rebajado enmarcado con almohadillado, flanqueado por pilastras y coronado con un espinazo. El balcón tiene una balaustrada y una puerta bajo un arco rectangular enmarcado con molduras. Además, hay dos puertas, una bajo un arco de medio punto enmarcada con molduras y coronada con un sol trunco y un espinazo. La otra puerta está bajo un arco rectangular enmarcada y coronada con un entablamento decorativo. Entre los arcos también se distinguen pilastras de almohadillado que se elevan hasta el segundo nivel sosteniendo un entablamento corrido. Por otra parte, en el segundo nivel hay siete puertas dobles con celosías enmarcadas con molduras y coronadas con entablamentos y espinazos. Las puertas están presididas por balconeras, dos dobles y tres sencillas con barandas ornamentales. De la misma manera que en el primer nivel, los arcos están flanqueados por pilastras de almohadillados que a su vez sostienen un entablamento corrido con una cornisa corrida, un friso decorativo y dentículos. En adición, en la parte superior derecha hay un logo que dice: “PRHBDS”. El edificio de la Antigua Corte España data de 1898. A través de los años ha sido utilizada como establecimiento gubernamental y comercial. Sin embargo, a partir del 2015 el edificio alberga la biblioteca y museo Rafael Hernandez Colón la cual fue fundada en 1992 con el fin de promover el estudio y reflexión de los y las puertorriqueñas.

Escuela Julián E. Blanco - San Juan (Condado) - 2011 00004

Escuela Julián E. Blanco - San Juan (Condado) - 2011 00004



Vista frontal de la Escuela Julián E. Blanco ubicada en la comunidad de Condado del pueblo costero de San Juan. La escuela es de dos niveles en concreto pintado de color amarillo y color verde con características del estilo art deco. El edificio está presidido por una cerca de balaustres interrumpida por muros y portones de reja metálica. La fachada frontal tiene la nave central superpuesta de las laterales además, la fachada frontal tiene ventanas estilo celosía de aluminio acompañadas por una moldura en la parte de abajo, bloques de vidrio y las ventanas del primer nivel están cubiertas por rejas metálicas. En medio está la puerta, es doble de madera enmarcada con molduras creando cuadrados sobre la cual se proyecta un entablamento con dentículos, molduras, cornisas, en medio un medallón decorado con guirnaldas y en las esquinas volutas. Por otra parte, el extremo superior tiene una moldura corrida sobre la cual hay una inscripción que dice: “Escuela Julián E. Blanco”. A cada lado de la inscripción hay detalles decorativos y en medio un medallón decorado con follaje y en el tope del frontón volutas a cada lado. También se puede ver un letrero que dice: “Bienvenidos a la escuela Especializada en Ballet Julián E. Blanco”. La escuela Julián E. Blanco fue fundada en el año 1956. Años más tarde, en el 1983 tomando en cuenta la iniciativa del bailarín profesional Pascual Guzmán de crear una escuela de ballet clásico para jóvenes de bajos recursos, la escuela Julián E. Blanco se convirtió en la primera escuela especializada del Departamento de Educación de Puerto Rico.

Iglesia de San Jorge - San Juan (Condado) - 2014 00117

Iglesia de San Jorge - San Juan (Condado) - 2014 00117



Vista desde el interior de la Parroquia San Jorge ubicada en la comunidad de Condado del pueblo costero de San Juan. La iglesia es de dos niveles en hormigón con características del estilo neogótico pintada de color blanco y color gris. El interior está dividido en tres naves, la nave central se eleva un nivel adicional con techos abovedados. Las bóvedas son cuatripartitas conectadas por espinazos pintados de color dorado, de alguno de estos cuelgan lámparas colgantes. Además, hay ventanas de cleristerio, las ventanas son de cristal bajo un arcos ojivales coronadas con vierteaguas y tracerías lobuladas. En la nave central también se ve un extremo del altar presidido por una balaustrada de mármol y ambones. Dividiendo la nave central de las naves laterales hay arcadas de arcos ojivales enmarcadas con molduras y flanqueadas por pilastras pares que a su vez conectan con las vigas en el techo. A diferencia de la nave central, las naves laterales son de un nivel. Hay filas de bancos de madera y lámparas colgantes de cristal. También se pueden ver en el borde superior un friso ornamental, emblemas, estaciones de via crucis, puertas dobles de madera coronadas con travesaños de vidrio pintado y enmarcado con un vierteaguas pintado de color dorado. Por otra parte, al fondo en el primer nivel se encuentra una cancela de madera presidiendo la entrada y sobre esta está ubicado el espacio del coro. El coro está rodeado por una balaustrada de hormigón y decorado con un órgano sobre el cual se proyecta un rosetón. La iglesia San Jorge fue inaugurada en el año 1920 siendo oficialmente fundada canónicamente en 1924 tras ser desmembrada de las Parroquias San Mateo y Sagrado Corazón. Su diseño inicial estuvo a cargo de la firma Martínez y Lázaro siendo finalizado en dos años. Seis años después se comienza la construcción de los edificios aledaños a la academia San Jorge. Posteriormente en 1940 la fachada fue remodelada por el arquitecto Rafael Carmoega. Más recientemente en el año 2017 fue restaurada en fases por la firma Astrid Díaz: ADV Architects.

Condado Vanderbilt - San Juan (Condado) - 2013 00071

Condado Vanderbilt - San Juan (Condado) - 2013 00071



Vista trasera del Hotel Condado Vanderbilt ubicado en la avenida Ashford del pueblo costero de San Juan. El hotel es de varios niveles con techos a cuatro aguas y características del estilo resurgimiento español. El patio trasero tiene un gazebo moderno rodeado con puertas de cristal y aleros saledizos con vigas expuestas. También se puede ver una de las torres laterales del hotel. La torre se eleva once pisos, tiene ventanas dobles de cristal enmarcadas con molduras y balcones abiertos con balaustradas de cristal. El Hotel Condado Vanderbilt fue comisionado en 1917 por Frederick William Vanderbilt. Finalmente el 16 de octubre de 1919 fue inaugurado el primer gran hotel de lujo del Caribe. En el año 1930 fue vendido y pasó a llamarse Hotel Condado, posteriormente en 1940 se convirtió en el primer hotel en la isla en tener un casino. Además, en 1950 volvieron a cambiar su nombre a Condado Beach Hotel y se añadieron habitaciones, salones de actividades y un restaurante. Luego de considerar su demolición fue incluido en el Registro Nacional de Lugares Históricos en el año 1988. Más recientemente fue remodelado entre los años 2008 a 2014 por los arquitectos Thomas S. Marvel y José Marchand Sifre añadiendo dos torres de suites modernas. Además, la planificación y restauración de los espacios estuvo a cargo del Arquitecto Jonathan Parks y la firma SOLSTICE Planning and Architecture. Los diseños interiores estuvieron a cargo del diseñador Jorge Roselló.

Arecibo Trip - 2014 00004

Arecibo Trip - 2014 00004



Vista del edificio González Marín 101 en el pueblo costero de Arecibo. Es un edificio de estilo neoclásico de mampostería enlucida de dos pisos originalmente construido para fines comerciales y residenciales. La fachada frontal es de tres tramos y la lateral se conectan mediante una esquina curva. A nivel del suelo, un zócalo continuo sostiene el edificio. Rodeando la fachada frontal y lateral se divisa una hilera de revestimiento de mármol blanco interrumpida por la puerta frontal flanqueada por dos faroles. La puerta es doble de cristal al igual que las ventanas cubiertas por láminas de metal corrugado que están enmarcadas con molduras blancas. Dividiendo los dos niveles del edificio color azul se divisa una cornisa blanca que a su vez sostiene el balcón frontal en voladizo sin baranda. El balcón alberga tres puertas dobles con ventanas de madera enmarcadas con molduras y coronadas con un entablamento. La puerta del medio cuenta con tres pilastras que a su vez sostienen un frontón. Por otra parte, en el lateral izquierdo hay varias puertas dobles con ventanas de madera coronadas con entablamento. Definiendo las esquinas del edificio se asoman pilastras que sostienen la cornisa superior y un parapeto que corona el edificio a modo de balcón abierto. En los alrededores se divisan más edificios con diferentes características y vehículos. Construido en 1908 es uno de los últimos edificios diseñados con el vocabulario neoclásico español en la isla. Desde sus comienzos el edificio albergó instituciones bancarias hasta 1930, bajo las consecuencias de la gran depresión First National City Bank abrió su sucursal siendo así el primer banco de Estados Unidos en la zona.

Biblioteca Carnegie - San Juan (Puerta de Tierra) - 2011  00002

Biblioteca Carnegie - San Juan (Puerta de Tierra) - 2011 00002



Vista frontal de la Biblioteca Carnegie ubicada en la comunidad de Puerta de Tierra del pueblo costero de San Juan. El edificio es de dos niveles con techo de madera revestido por tejas, características del estilo neoclásico pintado de color rosa y color blanco. En primer plano se puede ver la Avenida Juan Ponce de León y una parada de transporte colectivo junto a un letrero. También se puede ver una cerca con reja metálica, un patio frontal con vegetación y bancos. Por otra parte, la entrada es a través de un pórtico presidido por escaleras y sostenido por seis columnas de orden dórico que a su vez sostienen un entablamento corrido en dónde se puede ver una inscripción que dice: “Biblioteca Carnegie”. El techo es de madera, tiene un diseño artesonado visiblemente deteriorado. Por otra parte, en el interior del pórtico hay varias puertas dobles de madera y cristal enmarcadas con molduras y coronadas con travesaños semicirculares. Además, en el interior se ven ventanas de madera y cristal bajo arcos rectangulares enmarcados con molduras planas. En el año 1914 gracias a la donación de Andrew Carnegie se comenzó la construcción de este edificio finalizado entre los años 1915 y 1916. Finalmente en el año 1917 la Biblioteca Insular fue trasladada a este edificio. Ha permanecido en uso continuo, fue restaurado en los años 1966 y 1991. En 1983 el edificio fue incluido en el Registro Nacional de Lugares Históricos y finalmente incluido en la nominación del Distrito Histórico de Puerta de Tierra en el año 2019.

Ateneo Puertorriqueño - San Juan (Viejo San Juan) - 2011 00029

Ateneo Puertorriqueño - San Juan (Viejo San Juan) - 2011 00029



El Ateneo Puertorriqueño localizado en el barrio Puerta de Tierra en el Viejo San Juan. Fue fundado en 1876 y construido por el ingeniero Ramón Carbia Burt en 1923. Es la institución cultural más antigua de Puerto Rico, también se le conoce como "la Docta Casa". Su estilo arquitectónico es representativo del neoárabe. Fue nominado para el Registro Nacional de Lugares Históricos en 1984. Está pintado de color blanco y terracota. Se observa una fracción de la fachada principal. La parte superior de la fachada tiene un alero cubierto con tejas sostenido por ménsulas de madera. También posee dos arcos polilobulados interrumpidos por tres pilastras que tienen azulejos en la parte superior. En el lado derecho de la imagen se ve una pared con molduras de tres líneas, una ornamentación de una antorcha sostenida por una ménsula recta y cinco ventanas de cristal con marcos de madera abisagradas. En la parte inferior de la fachada se aprecian frisos en altos relieves con representaciones de nueve figuras masculinas, cada uno tiene un atributo en sus manos. Se le conoce como el "Friso de la cultura" y fueron esculpidos por el artista italiano Arrighini. También se puede ver un azulejo rectangular con motivos florales y un letrero en la pared que dice: "No Fume". Frente a la fachada hay arbustos, grama, un muro y una acera. Posteriormente el Ateneo Puertorriqueño se dedicó a fomentar el teatro, música, cine, literatura, historia, ciencias, ciencias morales y políticas y las artes plásticas puertorriqueñas.

Iglesia de San Jorge - San Juan (Condado) - 2014 00143

Iglesia de San Jorge - San Juan (Condado) - 2014 00143



Vista de la fachada frontal de la Parroquia San Jorge ubicada en la comunidad de Condado del pueblo costero de San Juan. La iglesia es de dos niveles en hormigón con características del estilo neogótico pintada de color gris y color blanco. La entrada está bajo un arco ojival enmarcado con un tímpano esculpido con esculturas figurativas. El arco ojival tiene arquivoltas de pequeños santos tallados. Además, sobre el arco también se pueden ver más estatuas talladas de mayor tamaño dentro de nichos ornamentados, cada esquina está acompañada por pináculos. Sobre la entrada hay un rosetón enmarcado y un nicho sobre una ménsula ornamentada coronado con pináculos. Al extremo derecho se alza la torre del campanario, tiene forma piramidal y está coronada con una cruz metálica. Además, tiene ventanas bajo arcos ojivales decorados con cresterías, vierteaguas y parteluces. Sobre las ventanas se ven ornamentación en bajorrelieve, gárgolas y a los lados contrafuertes que se extienden y a su vez sostienen pináculos con detalles ornamentales. También se ve coronando la torre una cruz metálica. La iglesia San Jorge fue inaugurada en el año 1920 siendo oficialmente fundada canónicamente en 1924 tras ser desmembrada de las Parroquias San Mateo y Sagrado Corazón. Su diseño inicial estuvo a cargo de la firma Martínez y Lázaro siendo finalizado en dos años. Seis años después se comienza la construcción de los edificios aledaños a la academia San Jorge. Posteriormente en 1940 la fachada fue remodelada por el arquitecto Rafael Carmoega. Más recientemente en el año 2017 fue restaurada en fases por la firma Astrid Díaz: ADV Architects.

Casa Grande - Mayagüez - 2011 00042

Casa Grande - Mayagüez - 2011 00042



Patio central de la Casa Grande, localizada en Mayagüez. La circulación principal de esta casa gira en torno al patio central con galería. El piso de esta área está cubierto con losas nativas, criollas o baldosas hidráulicas con motivos geométricos. En el centro resalta una fuente circular delimitada con bloques y plantas. También son notables un par de banquetas, una puerta con reja, un toldo verde, un conjunto de ventanas tipo persianas con lamas horizontales de vidrio y, una ventana con una reja de motivo geométrico con una consola de aire acondicionado. La superficie de la casa exhibe colores como el amarillo, el verde y el blanco. En uno de los laterales del patio es visible una persona. Esta casa fue edificada en el 1890 y sus características son representativas del estilo arquitectónico neoclásico criollo. Su sólida construcción, mayormente de mampostería, resistió el terremoto de San Fermín ocurrido el 11 de octubre de 1918. Esta casa es históricamente importante porque también albergó la Sede de la Audiencia de Mayagüez y, tras el cambio de soberanía en 1898, pasó a manos privadas. Para 1901 fue la propiedad de don Guillermo Santos, quien la heredó a su hija, Isabel Santos Tió, casada con don Benigno Rodríguez Campoamor, el vicecónsul de España en Puerto Rico. En 1998, la administración municipal de Mayagüez adquirió esta casa y la restauró como museo, sala de exhibiciones, centro de presentación de obras literarias y para el desarrollo social y cultural de la ciudad. Desde entonces es conocida como la Casa Grande, Museo y Casa Cultural.

Hacienda Buena Vista - Ponce - 2012

Hacienda Buena Vista - Ponce - 2012



Vista de la casa principal en la Hacienda Buena Vista ubicada en el barrio Mayagües del pueblo costero de Ponce. En los espacios de la hacienda hay varios edificios de los cuales se divisan dos. En primer plano se divisa la casa familiar de dos pisos construida en madera, mampostería de ladrillo encalado y techo a dos aguas de láminas de metal corrugado. Su diseño está inspirado en el estilo colonial español y el estilo vernáculo. En el primer nivel se ve un vano enmarcado con molduras planas y un vano rectangular de menor tamaño también enmarcado con molduras y presidido por un antepecho. Ambientando el espacio también hay bancos de madera y plantas en macetas decorativas. El segundo nivel está presidido por un balcón con balaustrada de madera modulada por pilares. Tiene tres puertas dobles de madera bajo arcos rectangulares enmarcados. Por otra parte, al extremo derecho se distingue un edificio de menor tamaño utilizado como almacén en mampostería encalada con características del estilo neoclásico y vernáculo. Tiene un zócalo pintado en donde hay dos rejillas de madera bajo arcos semicirculares. También tiene dos ventanas dobles de madera enmarcadas y coronadas con entablamentos. Además, el borde superior también tiene un entablamento corrido sobre el cual se proyecta un parapeto bajo. A ambos extremos del almacén hay establos de madera adosados. La Hacienda Buena Vista también conocida como Hacienda Vives fue fundada en 1833. Comenzó procesando frutos menores hasta convertirse en fábrica de maíz y hacienda cafetalera. En 1845 se hicieron cambios significativos incluyendo la construcción de la casa familiar. Esta permaneció activa hasta el año 1950, posteriormente en 1984 fue adquirida por el Fideicomiso de Conservación y fue restaurada y abierta al público en 1986 como museo dedicado a la historia de la tecnología y la agricultura. En el año 1987 se convirtió en la primera área natural protegida de la organización. También fue incluida en el Registro Nacional de Lugares Históricos en 1994.

Condado Vanderbilt - San Juan (Condado) - 2013 00045

Condado Vanderbilt - San Juan (Condado) - 2013 00045



Vista desde el patio trasero del Hotel Condado Vanderbilt ubicado en la avenida Ashford del pueblo costero de San Juan. El hotel es de varios niveles con características del estilo resurgimiento español. La fachada trasera del hotel tiene el techo cubierto por tejas y sostenido por vigas de madera, ventanas dobles de madera y cristal. Además, en el patio trasero hay un gazebo moderno rodeado con puertas de cristal y aleros con vigas expuestas. También se puede ver zonas ajardinadas y una de las torres laterales del hotel. Tiene ventanas de cristal enmarcadas con molduras y balcones abiertos con balaustradas de cristal dentro de los cuales hay puertas enmarcadas con molduras. El Hotel Condado Vanderbilt fue comisionado en 1917 por Frederick William Vanderbilt. Finalmente el 16 de octubre de 1919 fue inaugurado el primer gran hotel de lujo del Caribe. En el año 1930 fue vendido y pasó a llamarse Hotel Condado, posteriormente en 1940 se convirtió en el primer hotel en la isla en tener un casino. Además, en 1950 volvieron a cambiar su nombre a Condado Beach Hotel y se añadieron habitaciones, salones de actividades y un restaurante. Luego de considerar su demolición fue incluido en el Registro Nacional de Lugares Históricos en el año 1988. Más recientemente fue remodelado entre los años 2008 a 2014 por los arquitectos Thomas S. Marvel y José Marchand Sifre añadiendo dos torres de suites modernas. Además, la planificación y restauración de los espacios estuvo a cargo del Arquitecto Jonathan Parks y la firma SOLSTICE Planning and Architecture. Los diseños interiores estuvieron a cargo del diseñador Jorge Roselló.

Archivo General - Antiguo Hospital Civil - San Juan (Puerta de Tierra) - 2011 00012

Archivo General - Antiguo Hospital Civil - San Juan (Puerta de Tierra) - 2011 00012



Vista frontal del Archivo General y Biblioteca Nacional de Puerto Rico ubicado en la comunidad de Puerta de Tierra del pueblo costero de San Juan. El edificio es de tres niveles en mampostería y ladrillo con características del estilo neoclásico. Está pintado en tonos de amarillo y color blanco. En el primer nivel se alcanza a ver un arco de medio punto enmarcado con molduras planas a ambos lados del cual hay pilastras que sostienen una cornisa corrida. Por otra parte, en el segundo nivel hay una ventana doble de madera color azul y cristal bajo un arco de medio punto. Está enmarcada con molduras planas, coronada con un espinazo y al pie tiene molduras salientes a modo de base. De la misma manera que en el primer nivel, hay pilastras planas que se alzan y sostienen el entablamento del segundo nivel sobre el cual se proyecta un parapeto bajo. El entablamento tiene cornisas, molduras y triglifos. El antiguo Hospital Civil fue el último edificio erigido por el gobierno Español en la Isla entre los años 1877-1887. A pesar de que fue construido como hospital fue utilizado como Cárcel provincial y posteriormente como destilería. Años más tarde, ante una amenaza de demolición el Instituto de Cultura Puertorriqueña lo adquirió y lo restauró para albergar documentos históricos. A partir del año 1973 trasladaron el Archivo General y la Biblioteca Nacional de Puerto Rico a este espacio. Además, el edificio fue incluido en el Registro Nacional de Lugares Históricos en el año 1976.

Casa Márquez - 15000311

Casa Márquez - 15000311



Vista oblicua de la Casa Márquez, ubicada en Hormigueros. Se observa un edificio de dos niveles de forma rectangular y alargada estilo colonial español. El nivel inferior está construido en mampostería de piedra y tiene una galería con columnas rectangulares que recorre toda la fachada. Presenta vanos de acceso rectangulares, además de un vano central en forma de arco con reja metálica. El nivel superior está construido de tablones de madera dispuestos en sentido horizontal. Se distinguen varios vanos de puertas y ventanas de hojas abatibles. Las ventanas laterales tienen aleros pequeños integrados. A lo largo de la fachada tiene un balcón corrido con una baranda de balaustres torneados de madera y un techo propio sostenido por columnas de madera y vigas transversales, independiente del techo principal. Los muros y columnas son color blanco, mientras que los marcos, barandas y detalles color azul. El entorno inmediato está rodeado por jardines bajos, vegetación densa en el perímetro y un camino de piedra que conduce hacia el edificio. Casa Márquez, también conocida como Hacienda Valentina, fue fundada en 1823 por el inmigrante genovés José Marciani. Es un ejemplo único que combina la casa torre de mampostería, de carácter fortificado, con una segunda planta de madera añadida hacia 1885. Este cruce de estilos la convierte en el único ejemplar en Puerto Rico que refleja simultáneamente funciones urbanas y rurales. La hacienda se dedicó principalmente al cultivo de caña de azúcar, café y a la ganadería. Hasta 1873 dependió del trabajo de esclavos. Entre 1780 y 1934, la residencia experimentó diversas transformaciones, desde su origen como construcción defensiva hasta su conversión en una elegante residencia. Cambios como la sustitución de las tejas por techos de zinc y restauraciones posteriores no afectaron su integridad histórica. Ha permanecido en manos de la misma familia por seis generaciones, lo que ha garantizado su preservación.

Edificio Oliver - Arecibo - 2012 00002

Edificio Oliver - Arecibo - 2012 00002



Vista lateral del edificio Oliver en el pueblo costero de Arecibo. El edificio es de tres niveles con características del estilo neoclásico en concreto. La fachada lateral se divide en varios tramos. Horizontalmente, el edificio se divide en dos partes, la planta base y dos plantas superiores. El segundo y tercer nivel tiene aberturas de puertas y ventanas rectangulares con marcos planos. Las puertas dobles de madera conducen a un balcón con balaustres sostenidos por ménsulas decorativas. Hay balcones pequeños con esquinas redondeadas y balcones de dos tramos rectangulares. Entre los balcones hay pilastras acanaladas que sostienen un entablamento con friso ornamental, cornisa corrida y dentículos. Por otra parte, coronando el edificio se divisa un parapeto con balaustrada y ánforas romanas. También se puede ver una extensión de la construcción en menor tamaño con puertas de cristal y ventanas estilo celosía de cristal coronado con ánforas romanas. El edificio Oliver fue construido en 1914 con fines comerciales y residenciales. Está cimentado en el mismo lugar que en 1765 el gobierno español construyó la Casa del Rey hasta 1913 cuando fue demolida. Este innovador edificio fue el primero en incorporar espacios de vivienda y establecimiento comercial. También fue el primer edificio construido en el pueblo con una entrada achaflanada. Además, su diseño ricamente ornamentado adopta características de la Escuela de Bellas Artes y el estilo tradicional español. A través de los años ha sido utilizado cómo espacio residencial, comercial y sede de varios consulados extranjeros que ocupaban el primer nivel. Fue restaurado en la década de 1980 y todos los espacios asignados para vivienda se convirtieron en espacios comerciales.

Edificio Oliver - Arecibo - 2012 00014

Edificio Oliver - Arecibo - 2012 00014



Vista lateral del edificio Oliver en el pueblo costero de Arecibo. En primer plano, se divisa una cerca de concreto con rejas metálicas y vehículos estacionados en la calle pavimentada. El edificio es de tres niveles con características del estilo neoclásico en concreto. La fachada lateral se divide en varios tramos horizontalmente, la planta base y dos plantas superiores. La planta base tiene entradas bajo arcos semicirculares enmarcados con molduras. Además, los arcos están cubiertos por rejas metálicas. El segundo nivel tiene puertas dobles de madera y ventanas con persianas rectangulares con marcos planos. Las puertas conducen a un balcón con balaustres sostenidos por ménsulas decorativas. Tiene balcones de un tramo con esquinas redondeadas y balcones de dos tramos rectangulares. Flanqueando los balcones hay pilastras acanaladas sostenidas por una cornisa corrida y bajo las cuales se encuentran una serie de cabezas de leones en relieve. Al extremo derecho hay un edificio adosado con tejas y una abertura presidida por una baranda metálica y una cortina de tela. También se puede ver un letrero que dice: “Dental Familiar García-s… Frank Garc… 878-4121”. El edificio Oliver fue construido en 1914 con fines comerciales y residenciales. Está cimentado en el mismo lugar que en 1765 el gobierno español construyó la Casa del Rey hasta 1913 cuando fue demolida. Este innovador edificio fue el primero en incorporar espacios de vivienda y establecimiento comercial. También fue el primer edificio construido en el pueblo con una entrada achaflanada. Además, su diseño ricamente ornamentado adopta características de la Escuela de Bellas Artes y el estilo tradicional español. A través de los años ha sido utilizado cómo espacio residencial, comercial y sede de varios consulados extranjeros que ocupaban el primer nivel. Fue restaurado en la década de 1980 y todos los espacios asignados para vivienda se convirtieron en espacios comerciales.

Condado Vanderbilt - San Juan (Condado) - 2013 00122

Condado Vanderbilt - San Juan (Condado) - 2013 00122



Vista del patio trasero del Hotel Condado Vanderbilt ubicado en la avenida Ashford del pueblo costero de San Juan. El hotel es de varios niveles con características del estilo resurgimiento español. El patio trasero tiene el piso cubierto por baldosas de cerámica. Además, está rodeado por una balaustrada de cristal que preside la costa del océano atlántico. Está decorado con plantas en macetas decorativas, muebles de jardín, mesas con sombrillas a juego, remates decorativos con formas cónicas y al fondo se distinguen unas escaleras con pasamanos metálicos. También se puede ver una pérgola con techos de vigas de madera expuestas. El Hotel Condado Vanderbilt fue comisionado en 1917 por Frederick William Vanderbilt. Finalmente el 16 de octubre de 1919 fue inaugurado el primer gran hotel de lujo del Caribe. En el año 1930 fue vendido y pasó a llamarse Hotel Condado, posteriormente en 1940 se convirtió en el primer hotel en la isla en tener un casino. Además, en 1950 volvieron a cambiar su nombre a Condado Beach Hotel y se añadieron habitaciones, salones de actividades y un restaurante. Luego de considerar su demolición fue incluido en el Registro Nacional de Lugares Históricos en el año 1988. Más recientemente fue remodelado entre los años 2008 a 2014 por los arquitectos Thomas S. Marvel y José Marchand Sifre añadiendo dos torres de suites modernas. Además, la planificación y restauración de los espacios estuvo a cargo del Arquitecto Jonathan Parks y la firma SOLSTICE Planning and Architecture. Los diseños interiores estuvieron a cargo del diseñador Jorge Roselló.

Ateneo Puertorriqueño - San Juan (Viejo San Juan) - 2011 00014

Ateneo Puertorriqueño - San Juan (Viejo San Juan) - 2011 00014



El Ateneo Puertorriqueño localizado en el barrio Puerta de Tierra en el Viejo San Juan. Fue fundado en 1876 y construido por el ingeniero Ramón Carbia Burt en 1923. Es la institución cultural más antigua de Puerto Rico, también se le conoce como "la Docta Casa". Su estilo arquitectónico es representativo del neoárabe. Fue nominado para el Registro Nacional de Lugares Históricos en 1984. Está pintado de color blanco y terracota. Vista de la fachada principal. Se observa que la parte superior de la fachada tiene un alero cubierto con tejas sostenido por ménsulas de madera. También tiene siete arcos polilobulados interrumpidos por ocho pilastras que tienen azulejos en la parte superior. En la parte inferior de la fachada resaltan seis pilastras que sostienen un arco semicircular y entablamento cubierto de azulejos con motivos florales. El vano de la puerta tiene escrito en la parte superior "Ateneo Puertorriqueño". En ambos extremos de las pilastras se aprecian frisos en altos relieves con representaciones de figuras humanas que fueron esculpidos por el artista italiano Arrighini. El edificio también tiene ventanas de cristal con marcos de madera abisagradas. Frente a la entrada hay unas escalinatas y dos farolas. En los alrededores se ven árboles, palmas, una decoración alusiva a los tres Reyes Magos, grama y una acera. Posteriormente el Ateneo Puertorriqueño se dedicó a fomentar el teatro, música, cine, literatura, historia, ciencias, ciencias morales y políticas y las artes plásticas puertorriqueñas.

Calle de la Luna 155 - San Juan (Viejo San Juan) - 2011 00001

Calle de la Luna 155 - San Juan (Viejo San Juan) - 2011 00001



Calle de la Luna 155, en el Viejo San Juan. Vista de la fachada del edificio de dos pisos color azul claro cuyo diseño combina elementos de los estilos neoclásico y colonial español. Está dividida en dos niveles con dos arcos adintelados en cada nivel. La base de la pared del primer nivel tiene cuatro ornamentos en relieve con forma de rombos horizontales, dos en los extremos y dos entre los arcos. Sobre la base, hay una moldura horizontal interrumpida por los dos vanos y encima de esta, cuatro pilastras de almohadillado una pequeña cornisa acanalada que enmarcan los dos arcos. En uno de los bloques del almohadillado hay una placa de bronce con el nombre y el número del edificio. La parte superior de la pared está decorada con una moldura redonda en forma de guirnalda y dos rectángulos con las esquinas invertidas. En el segundo nivel hay un balcón con balaustrada de madera y ménsulas. Sobre la balaustrada hay un anuncio de venta que no se puede leer porque está doblado. Los vanos tienen molduras en forma de cornisas individuales que se extienden sobre los lados de los arcos. Dos pilastras con capiteles decoran los extremos de la pared cuyo entablamento curvo está coronado por una cornisa con dentículos. Bajo la cornisa hay un ornamento en relieve compuesto por un escudo con las iniciales MP en el centro y volutas en los lados. El parapeto del edificio tiene balaustres y tres remates en forma de copones.

Hacienda Iruena o Labadie - Palacete Los Moreau - Mansion Labadie (1905) - Moca - 2008 00003

Hacienda Iruena o Labadie - Palacete Los Moreau - Mansion Labadie (1905) - Moca - 2008 00003



Hacienda Irurena en Moca, también conocida como Hacienda Labadie, Palacete Los Moreau y Mansión Labadie. Fachada principal del edificio de dos pisos construido en hormigón armado. Este tiene diseño ecléctico con influencias del estilo château. Es una fachada simétrica con galerías de cinco módulos en el primer nivel y segundo nivel, en adición, tiene una escalera que da acceso al módulo central. Tiene columnas de orden jónico y barandas con balaustres de hierro muy ornamentados. Las puertas y ventanas son de doble hoja y tienen molduras. En el primer piso hay cinco puertas con molduras lineales, mientras que en el segundo piso se alternan tres ventanas y dos puertas con molduras ornamentadas y en forma de frontones. La ventana central es una ventana fija con vitrales. Hay dos torres idénticas cuadradas de dos niveles, flanquean la porción central de la fachada. Sus cubiertas son dos cúpulas de bulbo con evidente influencia francesa. Hay dos cornisas que bordean cada piso. Sobre la cornisa del segundo piso hay un friso con ornamentación de círculos y rectángulos, sobre el friso hay tres remates de jarrón. En el techo se pueden ver las cubiertas a dos aguas de tres buhardillas. Frente al edificio hay un jardín con palmas, arbustos y flores. En el centro se observa un área verde circular con un tiesto de gran tamaño con flores. La Hacienda Irurena o Labadie fue hacienda cafetalera en el siglo XIX y a una central azucarera en el siglo XX, este es el único edificio aún en pie que perteneció a empresas dedicadas a ambos cultivos. Esta hacienda está inmortalizada en la literatura puertorriqueña como la Hacienda Palmeras, residencia de la familia Moreau en la novela La Llamarada (1935) de Enrique Laguerre.

Casa Paoli - 09000769

Casa Paoli - 09000769



Vista de la fachada principal de la Casa Paoli, en Ponce. Se observa un edificio de un solo nivel, con una combinación de estilos arquitectónicos neoclásicos y elementos del siglo XX. Las paredes exteriores de mampostería de ladrillo están cubiertas con estuco pintado de color amarillo, resaltadas con molduras de color blanco. El frente está dividido en dos secciones por pilastras que sobresalen ligeramente de la pared y están rematadas por una cornisa prominente. La entrada principal tiene un arco, un pequeño portón de metal y, a su derecha, una placa con la leyenda “Casa Paoli”. Sobre el arco hay un óculo con marco blanco y una reja decorativa. La sección principal de la fachada está simétricamente organizada con dos puertas dobles de madera con persianas y travesaños ornamentales. En el centro se observa una ventana circular de vidrio, con moldura decorativa, que aporta luz natural al interior. El balcón, añadido en la remodelación de 1914, presenta pisos de losas hidráulicas nativas, una barandilla metálica ornamental y un arco rebajado que enmarca el espacio, coronado por una escultura en alto relieve de un rostro femenino rodeado de motivos marinos. El entorno inmediato combina aceras peatonales y edificaciones contemporáneas que contrastan con el carácter histórico de la casa. Del lado derecho de la casa sobresale un muro con un contador de electricidad, un aviso de seguridad y, al frente, un cesto de basura. La Casa Paoli fue construida originalmente en madera antes de ser adquirida por la familia Paoli en 1864 y, en 1870, remodelada e inscrita como vivienda de dos plantas, de mampostería de ladrillo y madera. A principios del siglo XX, el gobierno se apropió de la vivienda y no fue hasta 1914 cuando el nuevo propietario, Julio Salicrup y Armstrong, contrató al ingeniero Manuel V. Domenech para renovarla. En ese año se realizaron cambios en la fachada, incluidos el balcón y los detalles neoclásicos que aún conserva. En 1984 se realizaron reparaciones menores y actualizaciones técnicas adicionales. A pesar de todas esas modificaciones, la casa aún conserva su integridad histórica en su diseño y en sus materiales. La propiedad fue el lugar de nacimiento y residencia principal de Antonio Emilio Paoli y Marcano (1871-1946), reconocido tenor puertorriqueño y uno de los cantantes de ópera más destacados de todos los tiempos.

Condado Vanderbilt - San Juan (Condado) - 2013 00112

Condado Vanderbilt - San Juan (Condado) - 2013 00112



Vista del patio trasero del Hotel Condado Vanderbilt ubicado en la avenida Ashford del pueblo costero de San Juan. El hotel es de varios niveles con techo a cuatro aguas revestido por tejas, sostenido por vigas de madera y características del estilo resurgimiento español. La fachada trasera del hotel tiene ventanas dobles de madera y cristal y una extensión moderna con amplios ventanales de cristal interrumpidos por columnas cuadradas. La extensión está rodeada por una balaustrada de cristal modulada por pilares cuadrados. Además, hay un gazebo con aleros saledizos de vigas de madera. El patio tiene el piso revestido por baldosas y plantas en macetas decorativas. Por otra parte, al extremo derecho se distingue una de las torres laterales del hotel con techo a cuatro aguas, ventanas dobles enmarcadas con molduras y balcones con balaustradas de cristal dentro de los cuales hay puertas enmarcadas. El Hotel Condado Vanderbilt fue comisionado en 1917 por Frederick William Vanderbilt. Finalmente el 16 de octubre de 1919 fue inaugurado el primer gran hotel de lujo del Caribe. En el año 1930 fue vendido y pasó a llamarse Hotel Condado, posteriormente en 1940 se convirtió en el primer hotel en la isla en tener un casino. Además, en 1950 volvieron a cambiar su nombre a Condado Beach Hotel y se añadieron habitaciones, salones de actividades y un restaurante. Luego de considerar su demolición fue incluido en el Registro Nacional de Lugares Históricos en el año 1988. Más recientemente fue remodelado entre los años 2008 a 2014 por los arquitectos Thomas S. Marvel y José Marchand Sifre añadiendo dos torres de suites modernas. Además, la planificación y restauración de los espacios estuvo a cargo del Arquitecto Jonathan Parks y la firma SOLSTICE Planning and Architecture. Los diseños interiores estuvieron a cargo del diseñador Jorge Roselló.

Casilla de Camineros - Bayamón - 2011 00008

Casilla de Camineros - Bayamón - 2011 00008



Casilla de Camineros en la Carretera 2, km. 12.7 en Bayamón. Vista lateral del edificio construido en mampostería y ladrillos, de estilo neoclásico colonial. Se observan paredes de roca caliza expuestas, cuatro huecos rectangulares adintelados con molduras rústicas que funcionan como ventanas y una puerta con un entablamento en el tope con letras color oro que leen: "Baya_ó_". Se puede notar humedad en la pared de la izquierda y abandono en toda la casa. El techo de hormigón muestra una cornisa con dentículos y un parapeto también en estado de deterioro y algunas plantas creciendo en el borde. El piso del patio es de cemento y en algunas partes se nota agrietado. Las Casillas de Camineros fueron construidas durante la última parte del siglo XIX a lo largo de las carreteras principales en Puerto Rico. Estas fueron las residencias de los camineros, trabajadores gubernamentales encargados de brindar mantenimiento a la superficie de la carretera. La mayoría de las casillas fueron abandonadas a finales del siglo XX y las que aún permanecen han enfrentado diferentes destinos. Muchas de ellas se han deteriorado o han sido demolidas y otras han sido destinadas a otros usos. Esta casilla es una de tres construidas en 1882 a lo largo de un tramo de la Carretera número 2 entre Bayamón y Mayagüez. Perteneció originalmente al Departamento de Transportación y Obras Públicas, quien luego la cedió al Instituto de Cultura para ser usada como museo y oficinas de la Cámara de Comercio de Bayamón.

Hacienda Santa Ana - Bayamón - 2011 00028

Hacienda Santa Ana - Bayamón - 2011 00028



Hacienda Santa Ana en Bayamón. Vista de la fachada principal de la casona de la Hacienda. Se observa un edificio de dos niveles construido en mampostería de ladrillos con un estilo arquitectónico ecléctico. En el frente tiene una gran escalera color terracota de escalones curvos, más ancha abajo que arriba, lo que la hace lucir como un abanico invertido. La escalera conduce al pórtico del segundo piso mediante una entrada con arco, dos columnas redondas a los lados y un portón ornamental de hierro. El pórtico exhibe columnas redondas gruesas con capiteles cuadrangulares y arcadas que se extienden a lo ancho de toda la fachada. Los arcos del primer piso tienen pilares lisos. La arcada del segundo piso tiene barandas ornamentales de hierro y sobre esta hay una cornisa. Se puede apreciar un techo de láminas de metal a cuatro aguas. El techo del salón principal es mucho más elevado que el resto, técnica de la época para mantener la casa más fresca. En la parte posterior de la casa hay un garaje abierto con varios automóviles en el interior. A un lado se distinguen unos cobertizos. El patio está cubierto de grama y se observa una camioneta estacionada junto a la escalera. La Casona de la Hacienda Santa Ana reside en terrenos conferidos en 1787 por el rey Carlos III al capitán Fernando Fernández, corsario español que rendía servicios a la corona. A partir de 1804, el capitán comenzó a sembrar caña de azúcar y a destilar ron en la propiedad para su uso personal, pero no fue hasta 1880 cuando su bisnieto Pedro Fernández y su hijo Edmundo desarrollaron la fórmula y el proceso de destilación del conocido Ron del Barrilito. Además de la casona, la Hacienda abarca la tonelería, el trapiche, el área de añejamiento y el área de embotellamiento y empaque. Estas instalaciones, que también sirven como museo, continúan produciendo el popular ron, así como el alcoholado medicinal Santa Ana.

Antiguo Acueducto de Río Piedras - Documentación Aérea - San Juan (Río Piedras) - 2013 00036

Antiguo Acueducto de Río Piedras - Documentación Aérea - San Juan (Río Piedras) - 2013 00036



Vista aérea del área del Jardín Botánico y el puente sobre el río Piedras, en Río Piedras, San Juan. Desde esta perspectiva, es visible un edificio y un estacionamiento en los terrenos del Jardín Botánico. También es visible el puente de río Piedras, el cual es el más antiguo construido de la Carretera Central o Carretera Estatal PR-1. Este puente tiene un estilo colonial y una composición simétrica en la que el arco central es más grande que los laterales. También tiene dos pilares que dividen y articulan los tres arcos. En su parte superior tiene una cornisa sencilla que se extiende debajo del parapeto. Después del 9 de enero de 1999, una inundación de Río Piedras causó daños al puente y en 2001 se hicieron trabajos para estabilizar y reconstruir uno de los arcos con ladrillos nuevos traídos de República Dominicana. Este puente además, está cerca del sitio del antiguo acueducto de Río Piedras. La planificación del histórico Acueducto de Río Piedras inició en 1846 mediante una serie de propuestas y su construcción inició a partir de 1892 con periodos de construcción adicionales que continuaron hacia el temprano siglo XX. La planta operó desde el tardío siglo XIX hasta la década de 1980. El sitio ha estado vacante desde 1980 y es propiedad del Fideicomiso de Conservación de Puerto Rico y está dirigido por la organización local sin fines de lucro "Para La Naturaleza" que utiliza el sitio para actividades de educación ambiental.

Hacienda Irurena o Labadie - Palacete Los Moreau - Mansion Labadie (1905) - Moca - 2013 00032

Hacienda Irurena o Labadie - Palacete Los Moreau - Mansion Labadie (1905) - Moca - 2013 00032



Hacienda Irurena en Moca, también conocida como Hacienda Labadie, Palacete Los Moreau y Mansión Labadie. Fachada principal del edificio de dos pisos construido en hormigón armado. Este tiene diseño ecléctico con influencias del estilo château. Es una fachada simétrica con un pórtico de cinco módulos en el primer nivel, una escalera da acceso al módulo central. El pórtico tiene columnas de orden jónico y barandas con balaustres de hierro muy ornamentados. Sobre el pórtico hay un balcón que comparte elementos con el primer nivel. Las puertas y ventanas son de doble hoja y tienen molduras. En el primer piso hay cinco puertas con molduras lineales, mientras que en el segundo piso se alternan tres ventanas y dos puertas con molduras ornamentadas y en forma de frontones. La ventana central es una ventana fija con vitrales. Cabe señalar que todos los arcos de la fachada son adintelados con la excepción del que se encuentra en la puerta principal, que es de medio punto. Dos torres cuadradas idénticas de dos niveles, flanquean la porción central de la fachada. Sus cubiertas son dos cúpulas de cebolla con evidente influencia francesa. Hay dos cornisas que bordean cada piso. En el techo se pueden ver las cubiertas a dos aguas de dos buhardillas. Frente al edificio hay un jardín con césped y arbustos. La Hacienda Irurena o Labadie fue hacienda cafetalera en el siglo XIX y a una central azucarera en el siglo XX, este es el único edificio aún en pie que perteneció a empresas dedicadas a ambos cultivos. Esta hacienda está inmortalizada en la literatura puertorriqueña como la Hacienda Palmeras, residencia de la familia Moreau en la novela La llamarada (1935) de Enrique Laguerre.

Antiguo Acueducto de Río Piedras - Documentación Aérea - San Juan (Río Piedras) - 2013 00014

Antiguo Acueducto de Río Piedras - Documentación Aérea - San Juan (Río Piedras) - 2013 00014



Vista aérea de la casa del superintendente, la casa de bombeo, la casa de filtros y bombas y la residencia de ingenieros y cuidadores que forman parte del sitio del antiguo acueducto de Río Piedras, en San Juan. Este conjunto de edificios refleja los estilos arquitectónicos de la historia del sitio, entre estos el colonial español, renacimiento clásico, el neoclásico y el estilo bungaló. La casa del superintendente es un edificio de hormigón pintado de azul con cubierta plana con elementos característicos del estilo bungaló. La casa de bombeo es un edificio de mampostería de piedra caliza y ladrillo enyesado, de un piso y con cubierta a dos aguas con paneles de metal corrugado o cinc, diseñado en 1892 por Henry Thomas Granger. Una chimenea de ladrillo con forma cónica octogonal de una altura de 80 pies con elementos neoclásicos se encuentra en la elevación este de la casa de bombeo. La casa de filtros y bombas es un edificio de hormigón armado, de un nivel con forma de "L" y cubierta plana. Este edificio fue diseñado por Carlos del Valle Zeno y construido en 1923 en sustitución de un edificio de madera previo. Al lado, se ubica la residencia de ingenieros y cuidadores diseñada por Fernando Alameda en 1887. Su construcción tuvo lugar entre 1892 y 1894 y se emplearon materiales como la piedra caliza y mampostería. Este edificio, de estilo colonial español, es de una planta rectangular, de un solo piso y una cubierta plana. Además, exhibe vanos arqueados y una cornisa coronada con un parapeto. Después de 1923 el edificio fue alterado para acomodar nuevos usos, entre estos, funcionó como almacén y posteriormente como laboratorio de calidad del agua desde 1923-1980. Al fondo es visible parcialmente la casa de llaves y esclusas de una planta rectangular, constituido de mampostería de piedra y ladrillos y de estilo colonial español. En un tramo de su fachada exhibe tres aberturas arqueadas. Este edificio de 1894-1896, fue diseñado por Arturo Guerra, basado en el esquema original de Fernando Alameda en 1887 y funcionó como punto de distribución del agua cruda de la presa hasta los estanques de sedimentación. La planificación del histórico Acueducto de Río Piedras inició en 1846 mediante una serie de propuestas y su construcción inició a partir de 1892 con periodos de construcción adicionales que continuaron hacia el temprano siglo XX. La planta operó desde el tardío siglo XIX hasta la década de 1980. El sitio ha estado vacante desde 1980 y es propiedad del Fideicomiso de Conservación de Puerto Rico y está dirigido por la organización local sin fines de lucro "Para La Naturaleza" que utiliza el sitio para actividades de educación ambiental.

Ateneo Puertorriqueño - San Juan (Viejo San Juan) - 2011 00042

Ateneo Puertorriqueño - San Juan (Viejo San Juan) - 2011 00042



El Ateneo Puertorriqueño localizado en el barrio Puerta de Tierra en el Viejo San Juan. Fue fundado en 1876 y construido por el ingeniero Ramón Carbia Burt en 1923. Es la institución cultural más antigua de Puerto Rico, también se le conoce como "la Docta Casa". Su estilo arquitectónico es representativo del neoárabe. Fue nominado para el Registro Nacional de Lugares Históricos en 1984. Está pintado de color blanco y terracota. Se aprecia la fachada lateral del edificio. Se observa un techo plano con parapetos, tiene molduras en la parte superior y una extensión de construcción con aleros cubiertos de tejas, seis ventanas de cristal con marcos de madera abisagradas y un azulejo rectangular. También tiene otra extensión de construcción con ornamentaciones blancas en la parte superior. En el lado izquierdo de la imagen se ve un estacionamiento con varios automóviles, postes de servicio y árboles. Posteriormente el Ateneo Puertorriqueño se dedicó a fomentar el teatro, música, cine, literatura, historia, ciencias, ciencias morales y políticas y las artes plásticas puertorriqueñas. Adyacente al Ateneo se ve el techo a cuatro aguas y cubierto de tejas de la Biblioteca Carnegie. Este edificio pertenece al estilo arquitectónico neoclásico y fue diseñado también por Ramón Carbia Burt en 1915. Continuo a la biblioteca se divisa la parte superior del edificio Casa de España. Este fue diseñado por el arquitecto Pedro De Castro y Besosa en 1932. Tiene varias torres con techo a cuatro aguas y está cubierto por tejas de color azul y blanco. Su arquitectura es estilo morisco y resurgimientos español. A distancia se encuentra el Capitolio de Puerto Rico. Este edificio es representativo del estilo neoclásico, es de hormigón y mármol blanco. Fue diseñado por Rafael Carmoega en 1929. En la parte superior tiene una cúpula semiesférica con ventanas de cristal en el tambor y está coronada con una linterna. A distancia se pueden ver varios edificios altos, árboles y el Océano Atlántico.

Iglesia de San Jorge - San Juan (Condado) - 2014 00114

Iglesia de San Jorge - San Juan (Condado) - 2014 00114



Vista desde el interior de la Parroquia San Jorge ubicada en la comunidad de Condado del pueblo costero de San Juan. La iglesia es de dos niveles en hormigón con características del estilo neogótico pintada de color gris y color blanco. Los espacios interiores tienen el piso revestido por terrazo y se encuentran divididos por arcos ojivales enmarcados con molduras. Una de las naves laterales tiene una capilla con un altar. En los alrededores de este hay equipo de sonido, un reclinatorio y una estación del vía crucis. Por otra parte, el altar tiene un retablo con base de mármol en varios colores un poco elevado. Entre la pared y la base hay un letrero que dice: “el pan de los pobres” junto a una vela. En medio hay una estatua de San Antonio sobre una ménsula ornamentada y acompañada por columnas a cada lado que a su vez sostienen molduras ornamentales pintadas de color dorado. Además, el retablo tiene mosaicos con detalles florales y representaciones de santos. Está enmarcado con molduras y en los lados sostenido por pilastras finas. La iglesia San Jorge fue inaugurada en el año 1920 siendo oficialmente fundada canónicamente en 1924 tras ser desmembrada de las Parroquias San Mateo y Sagrado Corazón. Su diseño inicial estuvo a cargo de la firma Martínez y Lázaro siendo finalizado en dos años. Seis años después se comienza la construcción de los edificios aledaños a la academia San Jorge. Posteriormente en 1940 la fachada fue remodelada por el arquitecto Rafael Carmoega. Más recientemente en el año 2017 fue restaurada en fases por la firma Astrid Díaz: ADV Architects.

Condado Vanderbilt - San Juan (Condado) - 2013 00161

Condado Vanderbilt - San Juan (Condado) - 2013 00161



Vista de los espacios interiores del Hotel Condado Vanderbilt ubicado en la avenida Ashford del pueblo costero de San Juan. El hotel es de varios niveles con características del estilo resurgimiento español. En el interior se distingue un salón de actividades con el piso parcialmente revestido por una alfombra con motivos ornamentales en varios tonos de color rojo y morado. Las paredes están revestidas de mármol en dos colores y tienen amplios espejos de pared. Además, se distinguen puertas de madera, consolas de pared en madera y lámparas de pared en vidrio pintado de dos colores. La pared del extremo izquierdo tiene ventanas y una puerta doble de cristal cubiertas por cortinas de tela frente a las cuales se distinguen sillas apiladas. La pared del extremo derecho tiene dos puertas dobles de madera y cristal bajo arcos semicirculares flanqueadas por columnas cilíndricas. Por otra parte, el techo es artesonado y está dividido en espacios cúbicos con profundidad decorados con lámparas colgantes de vidrio pintado en dos colores a juego con las de las paredes y pequeños focos de luz individual. El Hotel Condado Vanderbilt fue comisionado en 1917 por Frederick William Vanderbilt. Finalmente el 16 de octubre de 1919 fue inaugurado el primer gran hotel de lujo del Caribe. En el año 1930 fue vendido y pasó a llamarse Hotel Condado, posteriormente en 1940 se convirtió en el primer hotel en la isla en tener un casino. Además, en 1950 volvieron a cambiar su nombre a Condado Beach Hotel y se añadieron habitaciones, salones de actividades y un restaurante. Luego de considerar su demolición fue incluido en el Registro Nacional de Lugares Históricos en el año 1988. Más recientemente fue remodelado entre los años 2008 a 2014 por los arquitectos Thomas S. Marvel y José Marchand Sifre añadiendo dos torres de suites modernas. Además, la planificación y restauración de los espacios estuvo a cargo del Arquitecto Jonathan Parks y la firma SOLSTICE Planning and Architecture. Los diseños interiores estuvieron a cargo del diseñador Jorge Roselló.

Alcaldía de San Germán - 2010

Alcaldía de San Germán - 2010



Vista frontal y lateral de la Casa Alcaldía en el pueblo de San Germán. El edificio de la Casa Alcaldía es de dos niveles en mampostería con detalles del estilo neoclásico. Está dividido en tramos con pilastras que a su vez sostienen cornisas corridas y se repiten en el segundo nivel. En el primer nivel hay tres arcos semicirculares, coronados con espinazos, flanqueados por pilastras y por dos ventanas dobles a cada extremo. Al extremo derecho, sobre la ventana también hay una inscripción que dice: “Oficina de Turismo”. De la misma manera, en el segundo nivel, un corredor se proyecta detrás de tres arcos de medio punto presididos por balaustradas ornamentales flanqueados por pilastras y enmarcados con molduras. También hay ventanas dobles con celosía y a cada extremo del corredor de madera. Por otra parte, coronando el edificio, sobre el entablamento corrido se alza un nivel adicional un frontón con un reloj decorado con molduras, pilastras y volutas. Además, flanqueando el frontón hay un parapeto que rodea el espacio. De la misma manera, la fachada lateral tiene, vanos cuadrados, semicirculares, molduras y cornisas. Por otra parte, en los alrededores se distingue un extremo de la Plaza Francisco Mariano Quintero, vehículos estacionados edificios con diferentes características y al fondo de la calle se distingue la Iglesia Porta Coeli. La casa Alcaldía del pueblo de San Germán fue construida entre 1839 y 1844, el diseño original incluía una torre octagonal hasta 1918 cuando se derrumbó con un terremoto. A través de los años, este edificio ha sido utilizado originalmente como Parque de Bombas, cárcel, oficinas de gobierno y más recientemente como Oficina de Desarrollo Económico y Turismo de San Germán.

Hacienda Santa Ana - Bayamón - 2011 00003

Hacienda Santa Ana - Bayamón - 2011 00003



Hacienda Santa Ana en Bayamón. Vista parcial de la fachada de la casona de la Hacienda. Se observa un edificio de dos niveles construido en mampostería de ladrillos con un estilo arquitectónico ecléctico. En primer plano hay una gran escalera color terracota de escalones curvos, más ancha abajo que arriba, con barandas de cemento y tubos de hierro. La escalera conduce al pórtico del segundo piso mediante una entrada con arco, dos columnas redondas a los lados y un portón ornamental de hierro. El pórtico exhibe columnas redondas gruesas con capiteles cuadrangulares, arcadas y barandas ornamentales de hierro. Sobre el arco del pórtico hay una lámpara de pared. Además, a un lado de la escalera se pueden ver segmentos de las arcadas que se encuentran en el primer piso. El techo de la casona tiene una cornisa. La pintura luce deteriorada. El patio tiene grama con caminos de ladrillos. La Casona de la Hacienda Santa Ana reside en terrenos conferidos en 1787 por el rey Carlos III al capitán Fernando Fernández, corsario español que rendía servicios a la corona. A partir de 1804, el capitán comenzó a sembrar caña de azúcar y a destilar ron en la propiedad para su uso personal, pero no fue hasta 1880 cuando su bisnieto Pedro Fernández y su hijo Edmundo desarrollaron la fórmula y el proceso de destilación del conocido Ron del Barrilito. Además de la casona, la Hacienda abarca la tonelería, el trapiche, el área de añejamiento y el área de embotellamiento y empaque. Estas instalaciones, que también sirven como museo, continúan produciendo el popular ron, así como el alcoholado medicinal Santa Ana.

Casa Defilló Amiguet - Mayagüez - 2012 00021

Casa Defilló Amiguet - Mayagüez - 2012 00021



Fachada de la casa Defilló Amiguet localizada en la calle Méndez Vigo 21 en Mayagüez. La casa está elevada en un podio y tiene dos niveles. El primer nivel exhibe arcos de medio punto flanqueados por pilastras toscanas emparejadas. Algunos de los arcos integran rejas y otros exhiben murales que simulan puertas de doble hoja. La transición hacia el segundo nivel está acentuada por un friso ornamental y una cornisa. El segundo nivel se distingue por un balcón con baranda de metal, columnas de fuste acanalado, capiteles jónicos y puertas de madera con lumbreras y vidrios. Asimismo, es visible un par de vanos de ventanas y un parapeto. El tramo del segundo nivel es de madera machihembrada. La superficie de la casa es de color amarillo con detalles de blanco. Frente a la casa se ubica un par de automóviles. A un lado de la casa Defilló Amiguet resaltan otros dos edificios de tres y cuatro niveles con superficies de color rojo y azul. La casa Defilló Amiguet fue construida en la década de 1840 en el estilo neoclásico colonial. Esta casa es de gran valor histórico, ya que allí nació Pilar Defilló Amiguet, la madre del ilustre músico Pablo Casals Defilló. Además, desde sus balcones, Casals realizó su primer concierto en el continente americano tras llegar a Puerto Rico el 17 de diciembre de 1955. Esta residencia fue adquirida y restaurada por el municipio de Mayagüez como un homenaje a Pilar Defilló Amiguet y con el fin de difundir el legado musical y cultural del maestro Casals y la familia Defilló. En el 2015 la casona se convirtió en sede del Museo Pablo Casals de Puerto Rico.

Residencia Dr. Eugenio Fernández García - Ponce de León 652 - San Juan (Miramar) - 2012 00057

Residencia Dr. Eugenio Fernández García - Ponce de León 652 - San Juan (Miramar) - 2012 00057



Fachada principal y lateral de la residencia del Dr. Eugenio Fernández García, localizada en la avenida Juan Ponce de León 652, en Miramar, San Juan. La fachada se distingue por las barandillas de hierro forjado a cada lado del porche delantero y un parapeto coronado con piezas de cerámica o azulejos. Los pilares o columnas que interrumpen el parapeto del porche exhiben ornamentos con forma rectangular y otros formados por motivos geométricos con azulejos de color verde y amarillo. En el lateral resalta una escalera flanqueada por el podio o la base desde la que se eleva la residencia. También destaca otro tramo del porche, el cual está delimitado por un parapeto y protegido con una reja. El área del lateral también constituye una entrada para automóviles. El techo es de madera, dispuesto a cuatro aguas y cubierto con tejas de color terracota que contrastan con el blanco de las paredes. La residencia fue comisionada en 1923 y las características de su fachada, acentuada por la horizontalidad y los espacios abiertos amplios, aluden a las formas arquitectónicas del estilo pradera y el bungalow o bungaló. Esta residencia perteneció a la familia del Dr. Eugenio Fernández García y su esposa Ernestina Cerra. También fue la residencia de Carmen Pilar Fernández Cerra, también conocida como Piri Fernández de Lewis, y posteriormente, pasó a ser un restaurante entre el periodo de 2016 y 2020, aproximadamente.

Condado Vanderbilt - San Juan (Condado) - 2013 00002

Condado Vanderbilt - San Juan (Condado) - 2013 00002



Vista del interior del Hotel Condado Vanderbilt ubicado en la avenida Ashford del pueblo costero de San Juan. El hotel es de varios niveles con características del estilo resurgimiento español. En el interior se distingue una sala de conferencias, tiene las paredes revestidas de madera, puertas de madera y el piso cubierto por una alfombra de tela en varios colores difuminados. Por otra parte, el techo tiene una plataforma circular con luces individuales y una lámpara colgante. En medio hay una mesa redonda de madera acompañada por sillas de oficinas. Además, sobre la mesa hay tapetes, copas y cubiertos. El Hotel Condado Vanderbilt fue comisionado en 1917 por Frederick William Vanderbilt. Finalmente el 16 de octubre de 1919 fue inaugurado el primer gran hotel de lujo del Caribe. En el año 1930 fue vendido y pasó a llamarse Hotel Condado, posteriormente en 1940 se convirtió en el primer hotel en la isla en tener un casino. Además, en 1950 volvieron a cambiar su nombre a Condado Beach Hotel y se añadieron habitaciones, salones de actividades y un restaurante. Luego de considerar su demolición fue incluido en el Registro Nacional de Lugares Históricos en el año 1988. Más recientemente fue remodelado entre los años 2008 a 2014 por los arquitectos Thomas S. Marvel y José Marchand Sifre añadiendo dos torres de suites modernas. Además, la planificación y restauración de los espacios estuvo a cargo del Arquitecto Jonathan Parks y la firma SOLSTICE Planning and Architecture. Los diseños interiores estuvieron a cargo del diseñador Jorge Roselló.

Capilla Nuestra Señora de Lourdes - San Juan (Miramar) - 2009 00013

Capilla Nuestra Señora de Lourdes - San Juan (Miramar) - 2009 00013



Detalle de la fachada principal de la Capilla Nuestra Señora de Lourdes, en Miramar, San Juan. La fachada se divide en tres tramos. El primero lo domina la torre del campanario caracterizada por una puerta arqueada que da acceso a la nave principal. Esta puerta está acentuada por una moldura con frondas, contrafuertes, arcos emparejados y levemente apuntados, un parteluz, una cornisa, gárgolas decorativas y almenas como coronamiento. El tramo central se distingue por un ventanal con un vitral y un óculo con la representación del Espíritu Santo. Una cruz céltica corona el pináculo del hastial. El tercer tramo se distingue por un pórtico que da acceso a la nave secundaria. Este pórtico se compone de un arco con reja, contrafuertes y un gablete con tracería y frondas ornamentales. El techo es de madera y está dispuesto a dos aguas. La capilla es de hormigón con un acabado rusticado que imita a la piedra y la sillería. Una verja de hierro rodea el edificio y lo separa del entorno inmediato. La construcción de la Capilla Nuestra Señora de Lourdes se inició en 1907 y su inauguración tuvo lugar en 1908. Este edificio es representativo de las iglesias protestantes que se establecieron en Puerto Rico tras el cambio de régimen en 1898. Fue el primer templo de la Iglesia Metodista Episcopal de Puerto Rico, luego, en 1917, pasó a manos de la Iglesia Unida de Puerto Rico y finalmente, a la Iglesia Católica Romana, adscrita a la arquidiócesis de San Juan en 1959. Su diseño y características corresponden al estilo neogótico o resurgimiento gótico. Este diseño además, imita a un edificio de la Iglesia Episcopal en la calle North Market, en Jacksonville Florida, donde su arquitecto tenía su residencia entonces.

Calle de la Fortaleza 56 - Antigua Real Audiencia - Conservatorio De Artes Del Caribe - San Juan (Viejo San Juan) - 2011

Calle de la Fortaleza 56 - Antigua Real Audiencia - Conservatorio De Artes Del Caribe - San Juan (Viejo San Juan) - 2011



Antigua Real Audiencia, calle de la Fortaleza en el Viejo San Juan. Vista, en plano contrapicado, desde el patio interior de la casa de dos pisos estilo colonial español. Al fondo se observa una pared que tiene dos arcos de medio punto en el primer piso y otros dos en el segundo piso. Entre los arcos hay una pilastra que se extiende hasta la cornisa del segundo piso. Sobre esta cornisa se puede ver un segmento del parapeto y tras el parapeto se ve la Torre Meteorológica y de Observación. Una balaustrada de madera bordea dos corredores del segundo nivel, el corredor de la pared de fondo y un corredor perpendicular. Este último tiene techo de madera y la balaustrada tiene pilares de madera torneada. En las paredes hay lámparas modernas de forma ovalada. En primer plano se observa, a contraluz, el brocal de un pozo que tiene un arcón de metal ornamentado con volutas. A un lado del pozo se pueden ver una palmera en un tiesto y las ramas de un árbol. Originalmente esta casa fue la residencia del Dr. Francisco Oller y Ferrer, abuelo del pintor Francisco Oller y Cestero. En 1831 fue vendida al Estado y el 1832 pasó a ser la primera sede de la Real Audiencia Territorial. Alrededor del 1898 fue arrendada al Departamento de Agricultura de Estados Unidos y en otro momento se usó como Departamento de Estado. En 1992 la edificación fue dedicada a Don Fernando Chardón. Luego de un periodo de abandono fue restaurada en el año 2000 y asignada a las oficinas de Guías Turísticos y de Programas Federales adscritos a la Oficina del Gobernador. La Torre Meteorológica y de Observación fue diseñada por el ingeniero Manuel Maese, la orden para su construcción fue emitida en 1883.

Catedral de Nuestra Señora de la Guadalupe - Ponce - 2014 00036

Catedral de Nuestra Señora de la Guadalupe - Ponce - 2014 00036



Vista lateral de la Catedral de Nuestra Señora de la Guadalupe ubicada en el pueblo costero de Ponce. La catedral es de dos niveles en mampostería y ladrillo con características del estilo Neoclásico. La fachada lateral de la catedral tiene ventanas cubiertas por tormenteras y un entablamento corrido sobre el cual descansa un parapeto bajo. Al extremo derecho se ve un extremo de una cúpula esférica. Por otra parte, flanqueando la catedral hay una torre de campanario dividida en tres tramos por entablamentos. Es de base cuadrada, el segundo nivel tiene vanos cuadrados enmarcados con molduras salientes, coronados con entablamentos semicirculares y presididos por balaustradas. El tercer tramo muestra ventanas dobles de madera bajo arcos semicirculares que a su vez están enmarcados con molduras, coronados con espinazos y entablamentos. Además, está flanqueada por pares de columnas acanaladas. El siguiente tramo de la torre es hexagonal y está decorado con cornisas, molduras, un friso con guirnaldas y ánforas. De la misma manera, la cúpula muestra óculos de vidrio pintado enmarcados con molduras. A su vez, la cúpula está coronada con una linterna de aberturas semicirculares y una cruz. Los inicios de la Catedral de Nuestra Señora de la Guadalupe datan de 1670 cuando apenas era una ermita de yagua y palma, fue clausurada en 1820 por las malas condiciones del edificio. El comienzo de la construcción de la iglesia actual data de 1835 y fue inaugurada en 1839. Sin embargo, el terremoto de 1918 destruyó ambas torres por lo que pasó a ser reconstruida con un diseño nuevo entre 1918 y 1937. Años más tarde, en 1984 fue incluida en el Registro Nacional de Lugares Históricos. Posteriormente fue restaurada nuevamente en 1992.

U.S. Customs House - Mayagüez - 2012 00015

U.S. Customs House - Mayagüez - 2012 00015



Perspectiva desde la calle Comercio y la calle Aduana hacia la fachada principal y lateral del edificio U.S. Custom House, también conocido como la Aduana de Mayagüez. Este edificio es de una planta rectangular y se distingue por un pórtico con columnas toscanas, cornisas de modillones sobre un entablamento coronado con balaustrada y un panel central elevado del que sobresalen las tres astas para banderas. El entablamento tiene una inscripción de hormigón que indica: "United States Custom House". El panel superior también presenta el texto: "By the authority of the Congress of the United States this building was erected AD MCMXXXII for the use of the Custom Service in the island of Porto Rico". El edificio tiene siete vanos, de los cuales, tres son las puertas arqueadas en el centro, flanqueadas por dos pares de ventanas arqueadas. En los arcos y puertas también resaltan las molduras, las claves, las rejas y montantes. La fachada lateral también exhibe ventanas arqueadas con rejas, montantes y molduras flanqueadas por pilastras toscanas. Frente al edificio se extiende una cerca compuesta de un muro bajo coronado con una reja. La superficie del edificio es de color rosado o salmón combinado con detalles ornamentales de color blanco. Este edificio fue diseñado con elementos del estilo Beaux Arts y su construcción tuvo lugar en 1924. Este fue el primer edificio de aduana construido durante el periodo del régimen militar estadounidense en Puerto Rico. Durante la década de 1960 se le realizaron algunos cambios mínimos como parte de una remodelación. El 30 de septiembre de 1981 fue declarado Edificio Histórico y en 1996 fue restaurado totalmente.

Condado Vanderbilt - San Juan (Condado) - 2013 00194

Condado Vanderbilt - San Juan (Condado) - 2013 00194



Vista del interior del Hotel Condado Vanderbilt ubicado en la avenida Ashford del pueblo costero de San Juan. El hotel es de varios niveles con características del estilo resurgimiento español. Los espacios interiores están pintados en diferentes tonos de color rosa. El vestíbulo tiene dos niveles con los pisos de mármol en dos colores, techos abovedados con lámparas colgantes y lámparas de pared a juego. La pared del extremo opuesto tiene puertas dobles de madera con ventanas de cristal bajo arcos semicirculares. Además, los espacios están separados con balaustradas de hierro ornamental y pasamanos de madera. También se pueden ver en primer plano, dos columnas decorativas con detalles ornamentales en relieve. El Hotel Condado Vanderbilt fue comisionado en 1917 por Frederick William Vanderbilt. Finalmente el 16 de octubre de 1919 fue inaugurado el primer gran hotel de lujo del Caribe. En el año 1930 fue vendido y pasó a llamarse Hotel Condado, posteriormente en 1940 se convirtió en el primer hotel en la isla en tener un casino. Además, en 1950 volvieron a cambiar su nombre a Condado Beach Hotel y se añadieron habitaciones, salones de actividades y un restaurante. Luego de considerar su demolición fue incluido en el Registro Nacional de Lugares Históricos en el año 1988. Más recientemente fue remodelado entre los años 2008 a 2014 por los arquitectos Thomas S. Marvel y José Marchand Sifre añadiendo dos torres de suites modernas. Además, la planificación y restauración de los espacios estuvo a cargo del Arquitecto Jonathan Parks y la firma SOLSTICE Planning and Architecture. Los diseños interiores estuvieron a cargo del diseñador Jorge Roselló.

Antiguo Acueducto de Río Piedras - Documentación Aérea - San Juan (Río Piedras) - 2013 00011

Antiguo Acueducto de Río Piedras - Documentación Aérea - San Juan (Río Piedras) - 2013 00011



Vista aérea de la casa de bombeo, la casa de filtros y bombas y la residencia de ingenieros y cuidadores que forman parte del sitio del antiguo acueducto de Río Piedras, en San Juan. Este conjunto de edificios refleja los estilos arquitectónicos de la historia del sitio, entre estos el colonial español, renacimiento clásico y neoclásico. La casa de bombeo es un edificio de mampostería de piedra caliza y ladrillo enyesado, de un piso y con cubierta a dos aguas con paneles de metal corrugado o cinc, diseñado en 1892 por Henry Thomas Granger. En los laterales presenta vanos rectangulares. Una chimenea de ladrillo con forma cónica octogonal de una altura de 80 pies con elementos neoclásicos se encuentra en la elevación este de la casa de bombeo. La casa de filtros y bombas es un edificio de hormigón armado, de un nivel con forma de "L" y cubierta plana. Este edificio fue diseñado por Carlos del Valle Zeno y construido en 1923 en sustitución de un edificio de madera previo. Al lado, se ubica la residencia de ingenieros y cuidadores diseñada por Fernando Alameda en 1887. Su construcción tuvo lugar entre 1892 y 1894 y se emplearon materiales como la piedra caliza y mampostería. Este edificio, de estilo colonial español, es de una planta rectangular, de un solo piso y una cubierta plana. Además, exhibe vanos arqueados y una cornisa coronada con un parapeto. Después de 1923 el edificio fue alterado para acomodar nuevos usos, entre estos, funcionó como almacén y posteriormente como laboratorio de calidad del agua desde 1923-1980. La planificación del histórico Acueducto de Río Piedras inició en 1846 mediante una serie de propuestas y su construcción inició a partir de 1892 con periodos de construcción adicionales que continuaron hacia el temprano siglo XX. La planta operó desde el tardío siglo XIX hasta la década de 1980. El sitio ha estado vacante desde 1980 y es propiedad del Fideicomiso de Conservación de Puerto Rico y está dirigido por la organización local sin fines de lucro "Para La Naturaleza" que utiliza el sitio para actividades de educación ambiental.

Condado Vanderbilt - San Juan (Condado) - 2013 00046

Condado Vanderbilt - San Juan (Condado) - 2013 00046



Vista desde el patio trasero del Hotel Condado Vanderbilt ubicado en la avenida Ashford del pueblo costero de San Juan. El hotel es de varios niveles con características del estilo resurgimiento español. Desde el patio se ve una de las torres laterales del hotel. Tiene ventanas dobles de cristal enmarcadas con molduras y balcones abiertos con balaustradas de cristal dentro de los cuales hay puertas enmarcadas con molduras. Además, al pie del edificio se ve un extremo de un gazebo moderno ubicado en el patio trasero. El Hotel Condado Vanderbilt fue comisionado en 1917 por Frederick William Vanderbilt. Finalmente el 16 de octubre de 1919 fue inaugurado el primer gran hotel de lujo del Caribe. En el año 1930 fue vendido y pasó a llamarse Hotel Condado, posteriormente en 1940 se convirtió en el primer hotel en la isla en tener un casino. Además, en 1950 volvieron a cambiar su nombre a Condado Beach Hotel y se añadieron habitaciones, salones de actividades y un restaurante. Luego de considerar su demolición fue incluido en el Registro Nacional de Lugares Históricos en el año 1988. Más recientemente fue remodelado entre los años 2008 a 2014 por los arquitectos Thomas S. Marvel y José Marchand Sifre añadiendo dos torres de suites modernas. Además, la planificación y restauración de los espacios estuvo a cargo del Arquitecto Jonathan Parks y la firma SOLSTICE Planning and Architecture. Los diseños interiores estuvieron a cargo del diseñador Jorge Roselló.

Condado Vanderbilt - San Juan (Condado) - 2013 00139

Condado Vanderbilt - San Juan (Condado) - 2013 00139



Vista desde el balcón frontal del Hotel Condado Vanderbilt ubicado en la avenida Ashford del pueblo costero de San Juan. El hotel es de varios niveles y características del estilo resurgimiento español. La fachada frontal del hotel tiene un balcón abierto rodeado por balaustradas. El interior de este tiene el piso cubierto por losas de cerámica, decorado con muebles de jardín y plantas en macetas decorativas. Además, desde el balcón se distinguen edificios en los alrededores del hotel en la avenida Ashford tales como el Condominio Bristol. El condominio Bristol fue construido en el año 2006 utilizando el diseño del arquitecto Gonzalo M. Ferrer. El Hotel Condado Vanderbilt fue comisionado en 1917 por Frederick William Vanderbilt. Finalmente el 16 de octubre de 1919 fue inaugurado el primer gran hotel de lujo del Caribe. En el año 1930 fue vendido y pasó a llamarse Hotel Condado, posteriormente en 1940 se convirtió en el primer hotel en la isla en tener un casino. Además, en 1950 volvieron a cambiar su nombre a Condado Beach Hotel y se añadieron habitaciones, salones de actividades y un restaurante. Luego de considerar su demolición fue incluido en el Registro Nacional de Lugares Históricos en el año 1988. Más recientemente fue remodelado entre los años 2008 a 2014 por los arquitectos Thomas S. Marvel y José Marchand Sifre añadiendo dos torres de suites modernas. Además, la planificación y restauración de los espacios estuvo a cargo del Arquitecto Jonathan Parks y la firma SOLSTICE Planning and Architecture. Los diseños interiores estuvieron a cargo del diseñador Jorge Roselló.

Banco Popular de Puerto Rico - San Juan (Viejo San Juan) - 2009

Banco Popular de Puerto Rico - San Juan (Viejo San Juan) - 2009



Banco Popular de Puerto Rico localizado en el Viejo San Juan. Fue inaugurado en 1939 y diseñado por el arquitecto Chauncey W. Riley y construido por los ingenieros José Benítez y Gautier, Manuel Miró y Saudí y Juan M. Beltrán Carrasquillo. El banco fue construido donde originalmente se ubicaba el Banco Territorial y Agrícola de Puerto Rico a finales del siglo XIX. En la imagen se observan unas escalinatas con barandas, varias palmas, arbustos y farolas; en una de ellas hay un letrero que dice: "Tizol". En el lado izquierdo de la imagen se ve el edificio Finlay, que estuvo localizado donde se encontraba el antiguo edificio del banco Citibank y que luego fue sede de la cervecería Old Harbor Brewery. Este edificio está pintado de color crema y blanco. Tiene molduras, una pilastra acanalada, parasoles y ventanas de cristal. En el centro de la imagen se aprecia el Banco Popular de Puerto Rico. Su estilo arquitectónico es representativo del art déco. Está pintado de color crema, blanco y verde. Tiene una fachada curva con ventanas de cristal rectangulares con marcos de metal y voladizos en la parte superior. En la entrada principal se ven ocho relieves escultóricos con representaciones de rostros humanos y entremedio hay un vitral. En el lado izquierdo de la fachada se divisa un alto relieve con la figura de un águila. Adyacente al Banco Popular de Puerto Rico se encuentra el antiguo edificio del American Colonial Bank que luego fue sede del Banco de Crédito y Ahorro Ponceño. Este fue el primer banco estadounidense establecido en Puerto Rico. Fue construido en 1899 por el contratista Frank Bond Hatch. Posteriormente el edificio fue el Restaurante Triana. Está pintado de color rojo, crema y blanco. Su arquitectura tiene influencias del estilo colonial español. La parte inferior del edificio tiene arcadas sostenidas por pilastras, cornisas y ornamentaciones en forma circular. La parte superior tiene un alero cubierto de tejas sostenidas por ménsulas, también posee antepechos con barandas, puertas dobles enmarcadas por pilastras y frontones semicirculares en la parte superior. Al lado de este edificio hay otro pintado de color turquesa y blanco. También tiene rasgos arquitectónicos del estilo colonial español. En la imagen sólo se ve la parte superior del edificio. Este tiene parapetos, cornisas, dentículos y antepechos con balaustradas y puertas dobles con frontones triangulares.

Condado Vanderbilt - San Juan (Condado) - 2013 00017

Condado Vanderbilt - San Juan (Condado) - 2013 00017



Vista del interior del Hotel Condado Vanderbilt ubicado en la avenida Ashford del pueblo costero de San Juan. El hotel es de varios niveles con características del estilo resurgimiento español. El vestíbulo tiene dos niveles, uno de los pasillos laterales tiene los pisos de mármol en dos colores, techos abovedados, lámparas de pared y al extremo izquierdo puertas dobles de cristal bajo arcos semicirculares acompañados por cortinas de tela. Los espacios están divididos por arcos semicirculares y balaustradas de hierro ornamental con pasamanos de madera. Además, hay sillas de madera y al fondo una puerta sencilla de madera y cristal. El Hotel Condado Vanderbilt fue comisionado en 1917 por Frederick William Vanderbilt. Finalmente el 16 de octubre de 1919 fue inaugurado el primer gran hotel de lujo del Caribe. En el año 1930 fue vendido y pasó a llamarse Hotel Condado, posteriormente en 1940 se convirtió en el primer hotel en la isla en tener un casino. Además, en 1950 volvieron a cambiar su nombre a Condado Beach Hotel y se añadieron habitaciones, salones de actividades y un restaurante. Luego de considerar su demolición fue incluido en el Registro Nacional de Lugares Históricos en el año 1988. Más recientemente fue remodelado entre los años 2008 a 2014 por los arquitectos Thomas S. Marvel y José Marchand Sifre añadiendo dos torres de suites modernas. Además, la planificación y restauración de los espacios estuvo a cargo del Arquitecto Jonathan Parks y la firma SOLSTICE Planning and Architecture. Los diseños interiores estuvieron a cargo del diseñador Jorge Roselló.

Catedral de Nuestra Señora de la Guadalupe - Ponce - 2014 00001

Catedral de Nuestra Señora de la Guadalupe - Ponce - 2014 00001



Vista lateral y trasera de la Catedral de Nuestra Señora de la Guadalupe ubicada en el pueblo costero de Ponce. La catedral es de dos niveles en mampostería y ladrillo con características del estilo Neoclásico. Justo detrás de la catedral se ve el antiguo Parque de Bombas de Ponce distinguido por su diseño policromado en madera y techo de láminas de metal corrugado. Ahora bien, la fachada lateral de la catedral tiene contrafuertes, ventanas cubiertas por tormenteras y un entablamento corrido sobre el cual descansa un parapeto bajo. Además, hay dos cúpulas esféricas coronadas con linternas. Por otra parte, flanqueando la catedral hay dos torres de campanario divididas en tres tramos por entablamentos. Son de bases cuadradas, el segundo nivel tiene vanos cuadrados enmarcados con molduras salientes, coronados con entablamentos semicirculares y presididos por balaustradas. El tercer tramo muestra ventanas dobles de madera bajo arcos semicirculares que a su vez están enmarcados con molduras, coronados con espinazos y entablamentos. En adición, están flanqueados por pares de columnas acanaladas que sostienen el entablamento. El siguiente tramo de la torre es hexagonal y está decorado con cornisas, molduras, un friso con guirnaldas y ánforas. De la misma manera, las cúpulas muestran óculos de vidrio pintado enmarcados con molduras. A su vez, las cúpulas están coronadas con linternas de aberturas semicirculares y cruces. En los alrededores también se distinguen vehículos estacionados. Los inicios de la Catedral de Nuestra Señora de la Guadalupe datan de 1670 cuando apenas era una ermita de yagua y palma, fue clausurada en 1820 por las malas condiciones del edificio. El comienzo de la construcción de la iglesia actual data de 1835 y fue inaugurada en 1839. Sin embargo, el terremoto de 1918 destruyó ambas torres por lo que pasó a ser reconstruida con un diseño nuevo entre 1918 y 1937. Años más tarde, en 1984 fue incluida en el Registro Nacional de Lugares Históricos. Posteriormente fue restaurada nuevamente en 1992.

Condado Vanderbilt - San Juan (Condado) - 2013 00113

Condado Vanderbilt - San Juan (Condado) - 2013 00113



Vista del patio trasero del Hotel Condado Vanderbilt ubicado en la avenida Ashford del pueblo costero de San Juan. El hotel es de varios niveles con características del estilo resurgimiento español. El patio trasero tiene el piso cubierto por baldosas de cerámica. Además, está rodeado por una balaustrada de cristal modulada por pilares cuadrados presidiendo la costa del océano atlántico. Está decorado con plantas en macetas decorativas, muebles de jardín, mesas con sombrillas a juego, remates decorativos con formas cónicas y al fondo se distinguen unas escaleras con pasamanos metálicos. La fachada trasera del hotel tiene una extensión moderna con amplios ventanales de cristal. También se puede ver una pérgola con techos de vigas de madera expuestas. El Hotel Condado Vanderbilt fue comisionado en 1917 por Frederick William Vanderbilt. Finalmente el 16 de octubre de 1919 fue inaugurado el primer gran hotel de lujo del Caribe. En el año 1930 fue vendido y pasó a llamarse Hotel Condado, posteriormente en 1940 se convirtió en el primer hotel en la isla en tener un casino. Además, en 1950 volvieron a cambiar su nombre a Condado Beach Hotel y se añadieron habitaciones, salones de actividades y un restaurante. Luego de considerar su demolición fue incluido en el Registro Nacional de Lugares Históricos en el año 1988. Más recientemente fue remodelado entre los años 2008 a 2014 por los arquitectos Thomas S. Marvel y José Marchand Sifre añadiendo dos torres de suites modernas. Además, la planificación y restauración de los espacios estuvo a cargo del Arquitecto Jonathan Parks y la firma SOLSTICE Planning and Architecture. Los diseños interiores estuvieron a cargo del diseñador Jorge Roselló.

Teatro Yagüez - Mayagüez - 2011 00060

Teatro Yagüez - Mayagüez - 2011 00060



Detalle de una escalera en el interior del Teatro Yagüez, localizado entre las calles McKinley y Basora del municipio de Mayagüez. La escalera es curvada de un solo tramo y tiene una baranda de metal ornamentada con volutas doradas. Los escalones están revestidos con alfombrado gris. También resaltan los paneles de mármol que cubren parte de la escalera y la moldura del techo. Estos detalles contrastan con el color rojo que cubre el borde de la escalera y la mitad de la pared. En su origen, en 1909, el teatro fue diseñado y construido de madera, acero y cinc, y se le conoció como la Casa del Arte Sonoro. El dueño original de este teatro fue Francisco Maymón Palmer. En el año 1919 un fuego consumió el edificio. En 1920 se llevó a cabo un nuevo diseño de estilo ecléctico, integrando materiales como el hormigón, la madera, el cristal, el mármol italiano y el yeso para las ornamentaciones. Durante la década de 1950 el teatro mostró signos de deterioro y en el periodo de 1977 a 1984 se llevaron a cabo trabajos de restauración bajo el auspicio del municipio de Mayagüez. Asimismo, durante el periodo de 2002 a 2008 se realizó una tercera restauración al teatro. Este teatro constituye uno de los principales escenarios artísticos y de gran valor histórico en el área oeste de Puerto Rico por acoger a importantes orquestas y compañías de drama y danza. Su arquitectura refleja elementos del neoclásico europeo, el neobarroco y de la arquitectura de principios del siglo XX que se conoció como la Belle Époque.

Ateneo Puertorriqueño - San Juan (Viejo San Juan) - 2011 00045

Ateneo Puertorriqueño - San Juan (Viejo San Juan) - 2011 00045



El Ateneo Puertorriqueño localizado en el barrio Puerta de Tierra en el Viejo San Juan. Fue fundado en 1876 y construido por el ingeniero Ramón Carbia Burt en 1923. Es la institución cultural más antigua de Puerto Rico, también se le conoce como "la Docta Casa". Su estilo arquitectónico es representativo del neoárabe. Fue nominado para el Registro Nacional de Lugares Históricos en 1984. Está pintado de color blanco y terracota. Se aprecia una vista aérea en perspectiva de una de las fachadas laterales y del frente del edificio. Se observa un techo plano con parapetos, molduras en la parte superior y una extensión de construcción con aleros cubiertos de tejas, también posee siete ventanas de cristal con marcos de madera abisagradas y un azulejo rectangular. La entrada principal tiene un alero cubierto de tejas sostenido por ménsulas de madera. También posee arcos polilobulados interrumpidos por pilastras que tienen azulejos en la parte superior. Frente a la fachada hay unas escalinatas, dos farolas, arbustos, una acera, dos vehículos y una calle. Posteriormente el Ateneo Puertorriqueño se dedicó a fomentar el teatro, música, cine, literatura, historia, ciencias, ciencias morales y políticas y las artes plásticas puertorriqueñas. Adyacente al Ateneo se aprecia el techo a cuatro aguas cubierto de tejas y seis columnas dóricas de la Biblioteca Carnegie. Este edificio pertenece al estilo arquitectónico neoclásico y fue diseñado también por Ramón Carbia Burt en 1915.

Hacienda Irurena o Labadie - Palacete Los Moreau - Mansion Labadie (1905) - Moca - 2013 00006

Hacienda Irurena o Labadie - Palacete Los Moreau - Mansion Labadie (1905) - Moca - 2013 00006



Hacienda Irurena en Moca, también conocida como Hacienda Labadie, Palacete Los Moreau y Mansión Labadie. Vista parcial de la fachada principal del edificio de dos pisos construido en hormigón armado. Este tiene diseño ecléctico con influencias del estilo château. Se observa uno de los extremos de la fachada donde se destaca una de las torres laterales idénticas que son distintivas del edificio. La torre cuadrada tiene dos niveles con cornisas al tope de cada nivel. Tiene ventanas de doble hoja con celosías enmarcadas por molduras. Los bordes verticales tienen sillares de esquina y en el segundo nivel, dos pilastras con capiteles de orden jónico. Encima la cornisa del segundo nivel se puede ver el tambor, ornamentado con molduras lineales y circulares sobre el cual se encuentra una cúpula de bulbo con clara influencia francesa. Aparte de la torre son visibles parte del centro de la fachada principal y un segmeto de la fachada lateral. A un lado de la cúpula se puede ver una buhardilla con techo a dos aguas. La Hacienda Irurena o Labadie fue hacienda cafetalera en el siglo XIX y a una central azucarera en el siglo XX, este es el único edificio aún en pie que perteneció a empresas dedicadas a ambos cultivos. Esta hacienda está inmortalizada en la literatura puertorriqueña como la Hacienda Palmeras, residencia de la familia Moreau en la novela La llamarada (1935) de Enrique Laguerre.

Escuela Luchetti - San Juan (Condado) - 2011 00001

Escuela Luchetti - San Juan (Condado) - 2011 00001



Vista frontal de la escuela Luchetti ubicada en la comunidad de Condado del pueblo costero de San Juan. La escuela es de dos niveles construida en hormigón, pintada de color verde y color amarillo. Tiene características de los estilos artesanal y modernista. La fachada frontal tiene ventanas estilo celosía de aluminio enmarcadas con molduras. En medio, se distingue un pórtico de entrada sostenido por columnas de órden dórico. A su vez las columnas sostienen un entablamento con molduras y cornisas. Además, el pórtico tiene una puerta doble de madera, enmarcada con molduras, presidida por escaleras y coronada con un travesaño de reja metálica. Por otra parte, el segundo nivel tiene una balconera abierta rodeada por una balaustrada de hormigón. También tiene dos puertas de madera en medio de la cual hay una columna acanalada. La balconera está enmarcada con molduras sobre la cual hay una inscripción que dice: “Escuela Luchetti”. El borde superior está acompañado por una moldura corrida sobre la cual se proyecta un frontón escalonado coronado con un detalle ornamental. Por otra parte, en los alrededores de la escuela hay balaustradas moduladas por muros, aceras pavimentadas y bancos de hormigón en el patio. La escuela Luchetti data de los años 1908 y 1909 siguiendo el diseño del arquitecto Antonin Nechodoma. Es una de las primeras escuelas edificadas en hormigón en la zona de San Juan antiguamente conocida como: “El Condado School”. Permaneció en uso continuo hasta su cierre por el Departamento de Educación el año 2018. Posteriormente en el año 2021 gracias a una iniciativa comunitaria el edificio fue nominado como edificio histórico ante la junta de planificación y el Instituto de Cultura Puertorriqueña.

Calle de la Tanca 150 - San Juan (Viejo San Juan) - 2012 00001

Calle de la Tanca 150 - San Juan (Viejo San Juan) - 2012 00001



Calle de la Tanca 150 en el Viejo San Juan. Se observa, desde la calle de la Luna, la fachada principal del edificio rosado con molduras blancas cuyo diseño combina elementos de los estilos colonial español, neoclásico y de la arquitectura vernácula. El edificio tiene tres pisos, una de las esquinas es redondeada. Su fachada está compuesta por múltiples aberturas rectangulares, ventanas y puertas. La entrada principal es un arco de medio punto que tiene una reja de hierro. Los pisos dos y tres tienen tres balcones que se extienden frente a dos puertas, los laterales y frente a una puerta y dos ventanas, el central. En el segundo piso los blacones tienen balaustradas y en el tecero tiene barandas de hierro. La esquina redondeada tiene balcones individuales. Las puerta y ventanas sonde madera con celosías. Los vanos de puertas y ventanas en el primer y tercer nivel tienen pequeñas cornisas individuales. Los del segundo nivel están bordeados por molduras delgadas. El coronamiento consiste de un friso ornamental con barras verticales del color del edificio entre dos hiladas blancas y una cornisa prominente. La azotea está cercada con una baranda de tubos con postes cuadrados y parte de ella tiene un techo de madeta con armazón de metal. Es visible la fachada lateral del edificio que da a la calle de la Luna y cuyos dos balcones extendidos frente a tres puertas. Se puede ver un segmento de la Plaza de la barandilla, que conecta con calle de la Luna a través de una escalera. la plaza tiene una baranda de hierro que tiene un segmento que se extiende frente a la fachada lateral del edificio. Es visible parte de la calle de la Luna, en dirección a la Catedral de San Juan.

Casa La Giralda - Avenida Miramar, esquina calle Marti 651 - San Juan (Miramar) - 2011 00002

Casa La Giralda - Avenida Miramar, esquina calle Marti 651 - San Juan (Miramar) - 2011 00002



Vista de la fachada de la casa conocida como La Giralda, localizada en la avenida Miramar, esquina calle Martí 651, en Miramar, San Juan. La casa, de color amarillo y blanco, tiene dos pisos, un sótano y un desván, y está compuesta por hormigón armado y un techo de madera. Su arquitectura combina características del estilo neoclásico, victoriano y segundo imperio. La parte superior corresponde al desván, el cual se caracteriza por un balcón coronado por un frontón de madera perforado con una rejilla tipo ventilador. Este balcón también tiene columnas corintias y una puerta doble de madera con vidrios y lumbreras flanqueada por ventanas de una sola hoja. De la fachada principal también es visible una ventana con lumbreras o celosías, vidrios y arquivoltas. En la fachada lateral es visible una buhardilla con ventanas de lumbreras y vidrios y coronada con un frontón perforado con un ventilador. Otros elementos visibles son la cornisa, la limatesa y una espiga en el punto más alto del techo. La casa está separada de su entorno inmediato por una cerca. Esta casa fue construida en 1910 para el centralista azucarero y licenciado Luis Manuel Cintrón y Sánchez, y su esposa Encarnación Cintrón. Posteriormente fue remodelada y utilizada como oficina. La Giralda es un ejemplo representativo que personifica los estilos arquitectónicos adoptados por la burguesía local para principios del siglo XX.

Condado Vanderbilt - San Juan (Condado) - 2013 00176

Condado Vanderbilt - San Juan (Condado) - 2013 00176



Vista del interior del Hotel Condado Vanderbilt ubicado en la avenida Ashford del pueblo costero de San Juan. El hotel es de varios niveles con características del estilo resurgimiento español. En el interior se distingue un salón de actividades con el piso cubierto por una alfombra de tela. La pared de fondo tiene tres puertas dobles de madera y cristal bajo arcos semicirculares flanqueadas por columnas cilíndricas decoradas con molduras doradas. El techo está decorado con molduras y lámparas colgantes de vidrio pintado. El Hotel Condado Vanderbilt fue comisionado en 1917 por Frederick William Vanderbilt. Finalmente el 16 de octubre de 1919 fue inaugurado el primer gran hotel de lujo del Caribe. En el año 1930 fue vendido y pasó a llamarse Hotel Condado, posteriormente en 1940 se convirtió en el primer hotel en la isla en tener un casino. Además, en 1950 volvieron a cambiar su nombre a Condado Beach Hotel y se añadieron habitaciones, salones de actividades y un restaurante. Luego de considerar su demolición fue incluido en el Registro Nacional de Lugares Históricos en el año 1988. Más recientemente fue remodelado entre los años 2008 a 2014 por los arquitectos Thomas S. Marvel y José Marchand Sifre añadiendo dos torres de suites modernas. Además, la planificación y restauración de los espacios estuvo a cargo del Arquitecto Jonathan Parks y la firma SOLSTICE Planning and Architecture. Los diseños interiores estuvieron a cargo del diseñador Jorge Roselló.

Condado Vanderbilt - San Juan (Condado) - 2013 00098

Condado Vanderbilt - San Juan (Condado) - 2013 00098



Vista del patio trasero del Hotel Condado Vanderbilt ubicado en la avenida Ashford del pueblo costero de San Juan. El hotel es de varios niveles con características del estilo resurgimiento español. El patio trasero tiene el piso cubierto por baldosas de cerámica. Además, hay escaleras con pasamanos metálicos, decorativas y remates decorativos con formas cónicas. La parte trasera del edificio tiene una extensión moderna con amplios ventanales de cristal interrumpidos por columnas cuadradas. También se pueden ver plantas en macetas decorativas, una balaustrada de cristal modulada por pilares cuadrados que presiden la costa del océano atlántico, sombrillas y muebles de patio a juego. El Hotel Condado Vanderbilt fue comisionado en 1917 por Frederick William Vanderbilt. Finalmente el 16 de octubre de 1919 fue inaugurado el primer gran hotel de lujo del Caribe. En el año 1930 fue vendido y pasó a llamarse Hotel Condado, posteriormente en 1940 se convirtió en el primer hotel en la isla en tener un casino. Además, en 1950 volvieron a cambiar su nombre a Condado Beach Hotel y se añadieron habitaciones, salones de actividades y un restaurante. Luego de considerar su demolición fue incluido en el Registro Nacional de Lugares Históricos en el año 1988. Más recientemente fue remodelado entre los años 2008 a 2014 por los arquitectos Thomas S. Marvel y José Marchand Sifre añadiendo dos torres de suites modernas. Además, la planificación y restauración de los espacios estuvo a cargo del Arquitecto Jonathan Parks y la firma SOLSTICE Planning and Architecture. Los diseños interiores estuvieron a cargo del diseñador Jorge Roselló.

Capilla Nuestra Señora de Lourdes - San Juan (Miramar) - 2009 00007

Capilla Nuestra Señora de Lourdes - San Juan (Miramar) - 2009 00007



Vista de una escultura y de las ventanas de un tramo de la Capilla Nuestra Señora de Lourdes, en Miramar, San Juan. La escultura se sitúa en un jardín y se levanta sobre un pedestal y representa la imagen de Nuestra Señora de Lourdes. El tramo visible de la fachada se distingue por un ventanal con tracería y vitrales con representaciones de la iconografía cristiana. Este ventanal está acentuado por una moldura arqueada, un par de ménsulas ornamentales y un umbral. Sobre el ventanal se exhibe un rosetón decorado con un vitral de la representación del Espíritu Santo. El pináculo del hastial está coronado con una cruz céltica. Además, son notables los contrafuertes en el cuerpo de la torre, así como una cornisa y las almenas que la coronan. La capilla es de hormigón con un acabado rusticado que imita la piedra y la sillería. La construcción de la Capilla Nuestra Señora de Lourdes se inició en 1907 y su inauguración tuvo lugar en 1908. Este edificio es representativo de las iglesias protestantes que se establecieron en Puerto Rico tras el cambio de régimen en 1898. Fue el primer templo de la Iglesia Metodista Episcopal de Puerto Rico, luego, en 1917, pasó a manos de la Iglesia Unida de Puerto Rico y finalmente, a la Iglesia Católica Romana, adscrita a la arquidiócesis de San Juan en 1959. Su diseño y características corresponden al estilo neogótico o resurgimiento gótico. Este diseño además, imita a un edificio de la Iglesia Episcopal en la calle North Market, en Jacksonville Florida, donde su arquitecto tenía su residencia entonces.

Iglesia de San Jorge - San Juan (Condado) - 2014 00070

Iglesia de San Jorge - San Juan (Condado) - 2014 00070



Vista del campanario de la Parroquia San Jorge ubicada en la comunidad de Condado del Pueblo costero de San Juan. La iglesia es de dos niveles en hormigón con características del estilo neogótico pintada de color gris y color blanco. La parte superior de la torre tiene forma piramidal y está coronada con una cruz metálica con rayos de gloria. Además, tiene ventanas bajo arcos ojivales decorados con cresterías, vierteaguas y parteluces. Sobre las ventanas se ve decoración en bajorrelieve, gárgolas y a los lados contrafuertes que se extienden y a su vez sostienen pináculos con detalles ornamentales. El siguiente tramo de la torre también tiene decoración en bajo relieve, cornisas corridas, gárgolas y otra ventana bajo un arco ojival coronada con crestería y vierteaguas sostenido por un parteluz. Sobre esta ventana a cada extremo hay emblemas en relieve. Por otra parte, en los alrededores se alcanzan a ver varios edificios con diferentes características. La iglesia San Jorge fue inaugurada en el año 1920 siendo oficialmente fundada canónicamente en 1924 tras ser desmembrada de las Parroquias San Mateo y Sagrado Corazón. Su diseño inicial estuvo a cargo de la firma Martínez y Lázaro siendo finalizado en dos años. Seis años después se comienza la construcción de los edificios aledaños a la academia San Jorge. Posteriormente en 1940 la fachada fue remodelada por el arquitecto Rafael Carmoega. Más recientemente en el año 2017 fue restaurada en fases por la firma Astrid Díaz: ADV Architects.

Calle de la Fortaleza 56 - Antigua Real Audiencia - Conservatorio De Artes Del Caribe - San Juan (Viejo San Juan) - 2012 00004

Calle de la Fortaleza 56 - Antigua Real Audiencia - Conservatorio De Artes Del Caribe - San Juan (Viejo San Juan) - 2012 00004



Antigua Real Audiencia, calle de la Fortaleza en el Viejo San Juan. Vista parcial de la Torre Meteorológica y de Observación ubicada en el techo de la casa de dos pisos estilo colonial español. Se observa un segmento del área de observación de la torre que está compuesta por una puerta y ventanas fijas de madera con celosías sujetas por un armazón de barras de metal y coronada por una cúpula cubierta con láminas de metal. Se puede ver la parte superior de dos de las ventanas y de la puerta que está abierta. También se ve un segmento de la cúpula que sigue la forma octagonal de la torre y donde se puede notar una de las uniones de las láminas de metal. Originalmente esta casa fue la residencia del Dr. Francisco Oller y Ferrer, abuelo del pintor Francisco Oller y Cestero. En 1831 fue vendida al Estado y el 1832 pasó a ser la primera sede de la Real Audiencia Territorial. Alrededor del 1898 fue arrendada al Departamento de Agricultura de Estados Unidos y en otro momento se usó como Departamento de Estado. En 1992 la edificación fue dedicada a Don Fernando Chardón. Luego de un periodo de abandono fue restaurada en el año 2000 y asignada a las oficinas de Guías Turísticos y de Programas Federales adscritos a la Oficina del Gobernador. La Torre Meteorológica y de Observación fue diseñada por el ingeniero Manuel Maese, la orden para su construcción fue emitida en 1883.

Parroquia San Francisco de Asís - Aguada - 2011 00002

Parroquia San Francisco de Asís - Aguada - 2011 00002



Parroquia San Francisco de Asís, Aguada. El diseño de esta iglesia católica presenta influencias de la arquitectura gótica y la neoclásica. Su fachada se compone de un cuerpo central con una cruz en el tope y dos torres laterales. Sobresale el uso de arcos ojivales que se repite tanto en las torres como en el cuerpo central. En el centro hay un pórtico con cuatro columnas delgadas y techo en pendiente. Sobre el techo del pórtico hay un rótulo con las fechas 1924 y 1936. En el segundo nivel de la fachada se observa un arco ojival dentro del cual hay siete arcos ojivales delgados con vitrales, flanqueados por dos pilastras coronadas con pináculos. En las torres cuadrangulares se distinguen distintos niveles y todos presentan arcos ojivales. En el primer nivel cada torre tiene una ventana de madera con un vitral. En el segundo nivel, tres arcos delgados, el del centro más alto que los otros dos. En el tercer nivel hay tres arcos delgados de la misma altura y una de las torres tiene un reloj. El cuarto nivel tiene un arco ojival dentro de una forma triangular. Cada torre termina con una cúpula, linterna con arcos ojivales, aguja y una pequeña cruz. El edificio está rodeado por una cerca de cemento, los pilares de la cerca tienen tiestos con plantas. Tanto la iglesia como la cerca están pintadas de un color verde grisáceo con los bordes y detalles en color blanco. Frente a la iglesia, al cruzar la calle, está la plaza pública en donde se ve una estatua de Cristóbal Colón, un gazebo y un poste de luz. Hay un anciano caminando por la plaza.

Distribución de alimentos por la Federal Emergency Relief Administration

Distribución de alimentos por la Federal Emergency Relief Administration



Grupo de personas haciendo fila y esperando en un evento de distribución de alimentos del programa Federal Emergency Relief Administration (FERA) que utilizaba fondos asignados por la Puerto Rico Reconstruction Administration (PRRA). En la primera imagen, se observan entre la multitud a niños, mujeres y hombres parados, recostados o sentados en un muro esperando a que les entreguen alimentos. Se alcanzan a ver tres edificios grandes que están continuos uno del otro. El edificio a la izquierda está hecho de hormigón y tiene una apertura que parece ser una puerta. El edificio en el medio está hecho también de hormigón y tiene terminaciones en sus paredes con tablas de madera solapadas, tiene ventanas de madera que son de doble hoja con celosías, y las ventanas son con molduras de cornisa. El edificio a mano derecha es una casa y tiene una entrada con balcón, una cerca de madera y alambre, y hay varios arbustos y árboles que rodean la residencia. La segunda imagen muestra un grupo de personas —entre ellos mujeres, hombres, niños y un oficial militar— haciendo fila en la acera al lado de un edificio grande. Esta edificación está hecha de madera y tiene un segundo piso con un balcón que lo rodea completo. Se observa un letrero pegado en la parte de atrás del edificio que dice: "Calle del Patriota Pozo". Las personas están organizadas en una fila larga, hay varias utilizando parasoles y algunas están paradas en una calle que se encuentra de frente al edificio.

Teatro Yagüez - Mayagüez - 2011 00026

Teatro Yagüez - Mayagüez - 2011 00026



Detalle de un corredor y de los palcos en el interior del Teatro Yagüez, localizado entre las calles McKinley y Basora del municipio de Mayagüez. De este tramo del corredor son notables los pilares con paneles de mármol que contrastan con detalles de color rojo. La yesería ornamental se exhibe en los parapetos de los palcos y en el techo. En el centro del techo cuelga una gran lámpara de cristal tipo araña. Además, en el tercer nivel es visible la cabina de control de iluminación del teatro. En su origen, en 1909, el teatro fue diseñado y construido de madera, acero y cinc, y se le conoció como la Casa del Arte Sonoro. El dueño original de este teatro fue Francisco Maymón Palmer. En el año 1919 un fuego consumió el edificio. En 1920 se llevó a cabo un nuevo diseño de estilo ecléctico, integrando materiales como el hormigón, la madera, el cristal, el mármol italiano y el yeso para las ornamentaciones. Durante la década de 1950 el teatro mostró signos de deterioro y en el periodo de 1977 a 1984 se llevaron a cabo trabajos de restauración bajo el auspicio del municipio de Mayagüez. Asimismo, durante el periodo de 2002 a 2008 se realizó una tercera restauración al teatro. Este teatro constituye uno de los principales escenarios artísticos y de gran valor histórico en el área oeste de Puerto Rico por acoger a importantes orquestas y compañías de drama y danza. Su arquitectura refleja elementos del neoclásico europeo, el neobarroco y de la arquitectura de principios del siglo XX que se conoció como la Belle Époque.

Condado Vanderbilt - San Juan (Condado) - 2013 00057

Condado Vanderbilt - San Juan (Condado) - 2013 00057



Vista desde el patio trasero del Hotel Condado Vanderbilt ubicado en la avenida Ashford del pueblo costero de San Juan. El hotel es de varios niveles con características del estilo resurgimiento español. La fachada trasera del hotel tiene ventanas dobles de madera y cristal en diferentes tamaños rectangulares. Además, el patio trasero tiene el piso cubierto por baldosas, está decorado con macetas decorativas y zonas ajardinadas. También tiene un gazebo moderno rodeado con puertas de cristal y aleros saledizos con vigas expuestas. El Hotel Condado Vanderbilt fue comisionado en 1917 por Frederick William Vanderbilt. Finalmente el 16 de octubre de 1919 fue inaugurado el primer gran hotel de lujo del Caribe. En el año 1930 fue vendido y pasó a llamarse Hotel Condado, posteriormente en 1940 se convirtió en el primer hotel en la isla en tener un casino. Además, en 1950 volvieron a cambiar su nombre a Condado Beach Hotel y se añadieron habitaciones, salones de actividades y un restaurante. Luego de considerar su demolición fue incluido en el Registro Nacional de Lugares Históricos en el año 1988. Más recientemente fue remodelado entre los años 2008 a 2014 por los arquitectos Thomas S. Marvel y José Marchand Sifre añadiendo dos torres de suites modernas. Además, la planificación y restauración de los espacios estuvo a cargo del Arquitecto Jonathan Parks y la firma SOLSTICE Planning and Architecture. Los diseños interiores estuvieron a cargo del diseñador Jorge Roselló.

Antigua Residencia Dr. Mario Julián - Residencia Julia y Familia - San Juan (Condado) - 2020 00010

Antigua Residencia Dr. Mario Julián - Residencia Julia y Familia - San Juan (Condado) - 2020 00010



Vista frontal de la antigua residencia de la familia Juliá ubicada en la comunidad de Condado del pueblo costero de San Juan. La casa es de dos niveles con características del estilo resurgimiento Español. La entrada es a través de un zaguán presidido por escaleras con pasamanos metálicos. Las escaleras están revestidas por baldosas de cerámica con motivos florales. El vano está enmarcado con molduras ornamentales y coronado con un emblema y una inscripción que dice: “1006”. A través del vano se ve una puerta doble de madera. Además, en el primer nivel también se ve una ventana clausurada por un panel de madera y en la esquina un nicho sobre una ménsula cónica. En el segundo nivel se ve una ventana doble de arcos semicirculares enmarcadas con molduras sobre un entablamento sostenido por ménsulas. También hay una ventana de herradura enmarcada con molduras, presidida por un antepecho con motivos ornamentales en relieve y en la esquina izquierda un balcón abierto sostenido por ménsulas. Está rodeado por una balaustrada. Por otra parte, en el borde superior se puede ver una cornisa corrida, el techo cubierto por tejas y sostenido por ménsulas. En los alrededores se pueden ver zonas ajardinadas y un edificio continuo. Esta residencia fue diseñada en 1937 y perteneció a la familia del Dr. Mario Juliá fue el primer psiquiatra en establecer el primer sanatorio mental privado en la isla fundado en 1925. La casa fue utilizada como residencia y en 2016 como restaurante conocido como Casa Lola Criollo Kitchen, finalmente fue demolida en el año 2023.

Hacienda Santa Ana - Bayamón - 2011 00001

Hacienda Santa Ana - Bayamón - 2011 00001



Hacienda Santa Ana en Bayamón. Vista de la fachada principal de la casona de la Hacienda. Se observa un edificio de dos niveles construido en mampostería de ladrillos con un estilo arquitectónico ecléctico. En el frente tiene una gran escalera color terracota de escalones curvos, más ancha abajo que arriba, lo que la hace lucir como un abanico invertido. La escalera conduce al pórtico del segundo piso mediante una entrada con arco, dos columnas redondas a los lados y un portón ornamental de hierro. El pórtico exhibe columnas redondas gruesas con capiteles cuadrangulares y arcadas que se extienden a lo ancho de toda la fachada. Los arcos del primer piso tienen pilares lisos. La arcada del segundo piso tiene barandas ornamentales de hierro y sobre esta hay una cornisa. Se puede apreciar un techo de láminas de metal a cuatro aguas. El techo del salón principal es mucho más elevado que el resto, técnica de la época para mantener la casa más fresca. La pintura luce deteriorada. El patio está cubierto de grama con caminos de ladrillos. La Casona de la Hacienda Santa Ana reside en terrenos conferidos en 1787 por el rey Carlos III al capitán Fernando Fernández, corsario español que rendía servicios a la corona. A partir de 1804, el capitán comenzó a sembrar caña de azúcar y a destilar ron en la propiedad para su uso personal, pero no fue hasta 1880 cuando su bisnieto Pedro Fernández y su hijo Edmundo desarrollaron la fórmula y el proceso de destilación del conocido Ron del Barrilito. Además de la casona, la Hacienda abarca la tonelería, el trapiche, el área de añejamiento y el área de embotellamiento y empaque. Estas instalaciones, que también sirven como museo, continúan produciendo el popular ron, así como el alcoholado medicinal Santa Ana.

Condado Vanderbilt - San Juan (Condado) - 2013 00005

Condado Vanderbilt - San Juan (Condado) - 2013 00005



Vista del interior del Hotel Condado Vanderbilt ubicado en la avenida Ashford del pueblo costero de San Juan. El hotel es de varios niveles con características del estilo resurgimiento español. Los espacios interiores tienen el piso cubierto por una alfombra, paredes revestidas de madera con espejos, columnas de mármol, lámparas de pared en cristal, plantas en macetas decorativas y puertas dobles de madera y cristal. Además, el techo es artesonado y está dividido en cuadrados acompañados por lámparas colgantes de cristal a juego con las de la pared. El Hotel Condado Vanderbilt fue comisionado en 1917 por Frederick William Vanderbilt. Finalmente el 16 de octubre de 1919 fue inaugurado el primer gran hotel de lujo del Caribe. En el año 1930 fue vendido y pasó a llamarse Hotel Condado, posteriormente en 1940 se convirtió en el primer hotel en la isla en tener un casino. Además, en 1950 volvieron a cambiar su nombre a Condado Beach Hotel y se añadieron habitaciones, salones de actividades y un restaurante. Luego de considerar su demolición fue incluido en el Registro Nacional de Lugares Históricos en el año 1988. Más recientemente fue remodelado entre los años 2008 a 2014 por los arquitectos Thomas S. Marvel y José Marchand Sifre añadiendo dos torres de suites modernas. Además, la planificación y restauración de los espacios estuvo a cargo del Arquitecto Jonathan Parks y la firma SOLSTICE Planning and Architecture. Los diseños interiores estuvieron a cargo del diseñador Jorge Roselló.

Residencia 1 de Pedro Tomás Vivoni - San Germán - 2012 00026

Residencia 1 de Pedro Tomás Vivoni - San Germán - 2012 00026



Vista de la residencia de Tomás Vivoni ubicada enfrente a la Plaza Santo Domingo del pueblo de San Germán. En primer plano, se distingue la Plaza Santo Domingo decorada con postes de luz y zonas ajardinadas. La casa es de dos niveles en hormigón y yeso con techo a dos aguas de tejas laminadas decorado con remates decorativos, características del estilo vernáculo y alta influencia del estilo gótico victoriano. El primer nivel de la casa está presidido por un balcón enmarcado con una balaustrada de bloques ornamentales que a su vez está modulado por columnas clásicas con detalles florales en relieve. Por otra parte, en el interior del balcón hay ventanas y puertas dobles de madera y cristal, flanqueadas por pilastras acanaladas, algunas coronadas con soles truncos y entablamentos sostenidos por ménsulas. Por otra parte, el segundo nivel muestra un balcón abierto rodeado por una balaustrada de bloques ornamentales acompañada por remates y decoración navideña. También se distinguen ventanas dobles de madera con celosía, algunas bajo arcos semicirculares y otras bajo arcos rectangulares. Están acompañadas con guirnaldas y cornadas con entablamentos sostenidos por ménsulas. Además, la fachada está decorada con pilastras acanaladas, molduras, un friso ornamental y una torre cónica coronada con una aguja. Al extremo izquierdo se distingue otra casa continua y al extremo derecho sobre una escalinata está la Capilla de Santo Domingo de Porta Coeli. Es de mampostería estucada y características del estilo mudéjar. La casa fue diseñada por el arquitecto Pedro Tomás Vivoni como residencia para Tomás Vivoni en el año 1913.

Condado Vanderbilt - San Juan (Condado) - 2013 00102

Condado Vanderbilt - San Juan (Condado) - 2013 00102



Vista del patio trasero del Hotel Condado Vanderbilt ubicado en la avenida Ashford del pueblo costero de San Juan. El hotel es de varios niveles y características del estilo resurgimiento español. La parte trasera del hotel tiene una extensión moderna con amplios ventanales de cristal modulados por columnas. Además, el patio trasero tiene el piso cubierto por baldosas de cerámica, zonas ajardinadas y macetas decorativas. También hay sombrillas de patio y muebles a juego. Por otra parte, al extremo izquierdo se alza la torre lateral con ventanas enmarcadas, balcones con balaustradas de cristal y puertas dobles enmarcadas. El Hotel Condado Vanderbilt fue comisionado en 1917 por Frederick William Vanderbilt. Finalmente el 16 de octubre de 1919 fue inaugurado el primer gran hotel de lujo del Caribe. En el año 1930 fue vendido y pasó a llamarse Hotel Condado, posteriormente en 1940 se convirtió en el primer hotel en la isla en tener un casino. Además, en 1950 volvieron a cambiar su nombre a Condado Beach Hotel y se añadieron habitaciones, salones de actividades y un restaurante. Luego de considerar su demolición fue incluido en el Registro Nacional de Lugares Históricos en el año 1988. Más recientemente fue remodelado entre los años 2008 a 2014 por los arquitectos Thomas S. Marvel y José Marchand Sifre añadiendo dos torres de suites modernas. Además, la planificación y restauración de los espacios estuvo a cargo del Arquitecto Jonathan Parks y la firma SOLSTICE Planning and Architecture. Los diseños interiores estuvieron a cargo del diseñador Jorge Roselló.

Ateneo Puertorriqueño - San Juan (Viejo San Juan) - 2010 00001

Ateneo Puertorriqueño - San Juan (Viejo San Juan) - 2010 00001



El Ateneo Puertorriqueño localizado en el barrio Puerta de Tierra en el Viejo San Juan. Fue fundado en 1876 y construido por el ingeniero Ramón Carbia Burt en 1923. Es la institución cultural más antigua de Puerto Rico, también se le conoce como "la Docta Casa". Su estilo arquitectónico es representativo del neoárabe. Fue nominado para el Registro Nacional de Lugares Históricos en 1984. Está pintado de color blanco y terracota. Se observa que la parte superior de la fachada tiene un alero cubierto con tejas sostenido por ménsulas de madera. También tiene siete arcos polilobulados interrumpidos por ocho pilastras que tienen azulejos en la parte superior. En la parte inferior de la fachada resaltan seis pilastras que sostienen un arco semicircular y entablamento cubierto de azulejos con motivos florales. El vano de la puerta tiene escrito en la parte superior "Ateneo Puertorriqueño". En ambos extremos de las pilastras se aprecian frisos en altos relieves con representaciones de figuras humanas que fueron esculpidos por el artista italiano Arrighini. Frente a la entrada hay unas escalinatas y farolas. El edificio también tiene ventanas de cristal con marcos de madera abisagradas y una ornamentación en forma de antorcha en la esquina superior del lado derecho de la imagen. En los alrededores se ven árboles, arbustos, una palma, una decoración alusiva a los tres Reyes Magos, una asta, grama, un letrero de tránsito y otro sobre la entrada de visitantes al edificio. Posteriormente el Ateneo Puertorriqueño se dedicó a fomentar el teatro, música, cine, literatura, historia, ciencias, ciencias morales y políticas y las artes plásticas puertorriqueñas.

Teatro Yagüez

Teatro Yagüez



Dibujo arquitectónico de la fachada del Teatro Yagüez, localizado en las calles McKinley y Basora del municipio de Mayagüez. El edificio tiene tres niveles de altura. Las puertas son de doble hoja con paneles y montantes con vitrales. Sobre las puertas se exhiben otros vitrales con motivos geométricos. Estas puertas y vitrales están flanqueados por las pilastras toscanas, en cuyos fustes presentan lámparas y ménsulas adosadas. La puerta principal acentúa la esquina achaflanada del edificio, flanqueada por columnas toscanas que se elevan hasta el segundo nivel. El tramo achaflanado de la fachada está coronado con un reloj y remates ornamentales esféricos. Sobre las pilastras y las columnas se extiende un friso, una cornisa y las molduras. Los frontones son triangulares, con óculos en el centro y en uno de estos se exhibe el nombre del edificio: "Teatro Yagüez". Del techo resalta la cúpula con vitrales coronada con un pináculo. En su origen, en 1909, el teatro fue diseñado y construido de madera, acero y cinc, y se le conoció como la Casa del Arte Sonoro. El dueño original de este teatro fue Francisco Maymón Palmer. En el año 1919 un fuego consumió el edificio. En 1920 se llevó a cabo un nuevo diseño de estilo ecléctico, integrando materiales como el hormigón, la madera, el cristal, el mármol italiano y el yeso para las ornamentaciones. Durante la década de 1950 el teatro mostró signos de deterioro y en el periodo de 1977 a 1984 se llevaron a cabo trabajos de restauración bajo el auspicio del municipio de Mayagüez. Asimismo, durante el periodo de 2002 a 2008 se realizó una tercera restauración al teatro. Este teatro constituye uno de los principales escenarios artísticos y de gran valor histórico en el área oeste de Puerto Rico por acoger a importantes orquestas y compañías de drama y danza. Su arquitectura refleja elementos del neoclásico europeo, el neobarroco y de la arquitectura de principios del siglo XX que se conoció como la Belle Époque.

Cabildo - San Juan (Viejo San Juan) - 2012

Cabildo - San Juan (Viejo San Juan) - 2012



Edificio en la calle Caleta de San Juan 72 en el Viejo San Juan. El edificio tiene rasgos característicos del estilo arquitectónico neoclásico y está pintado de color amarillo. Se observa que el techo tiene molduras blancas y está curveado en una de sus esquinas. En la parte superior de la fachada se ve un balcón con balaustradas que tiene una bandera con los colores amarillo en el centro y rojo en los bordes superior e inferior y una representación de un toro. Al lado del balcón se aprecia el vano de una ventana con balaustres de madera. En la parte inferior de la fachada se ve una puerta de cristal que tiene varios letreros y en las esquinas hay otros dos letreros que dicen: "Rosa de Triana" y "Restaurante. Bar. Tapas". Al lado de la puerta hay un vano con rejas y puertas con balaustres. En el lado izquierdo de la imagen se divisa parcialmente el edificio Casa Cabildo. Este edificio fue construido en 1529 y fue sede de la primera alcaldía del municipio de San Juan. Tiene rasgos del estilo arquitectónico neoclásico y está pintado de color anaranjado y marrón. Se notan dos antepechos con balaustrada, puertas dobles y una puerta con balaustres de madera. En la pared tiene un letrero que lee: "For Rent. Cancel Realty. 447-1040". En el lado derecho de la imagen hay otro edificio color anaranjado, amarillo y blanco. Se notan las molduras planas y los vanos rectangulares. Frente a estos edificios se encuentra una acera, la calle adoquinada, arbustos y automóviles.

Residencia Rodríguez Cabrero (Casa Doña Bisa) - San Sebastián - 2011 00019

Residencia Rodríguez Cabrero (Casa Doña Bisa) - San Sebastián - 2011 00019



Residencia Rodríguez Cabrero también conocida como Casa Doña Bisa en San Sebastián. Vista de la fachada principla de la casa construida con hormigón armado en estilo paladiano. La construcción sobre podio tiene un pórtico accesible a través de una escalera central, cada lado de la escalera hay un óculo. El techo del pórtico tiene un friso ornamental. Sobre el pórtico hay un balcón cuyo techo tiene un frontón triangular. Las barandas y columnas del pórtico y del balcón se extienden en toda la fachada frontal y a los lados formando arcadas en ambos pisos. Las barandas son de hierro y las columnas redondas tienen pedestales cuadrangulares. Los capiteles de las columnas del primer piso son de orden toscano y los del segundo piso, de orden jónico. En el segundo piso hay remates en forma de florero sobre seis de los pedestales. En las paredes frontales hay puertas y ventanas de doble hoja con soles truncos y molduras en los arcos superiores. Las molduras de las dos puertas tienen una clave ornamental cada una. La casa tiene una azotea con parapeto, sobre la parte frontal del parapeto hay otros seis remates en forma de florero. En medio de la azotea hay una habitación octagonal, su techo es una cúpula. Tiene ventanas de madera con celosías y soles truncos. Se puede ver parte de una de las fachadas laterales que tiene las mismas características de la fachada principal. Frente a la casa hay tres automóviles estacionados. Junto a la casa hay un edificio de cuatro niveles que tiene una joyería en el primer nivel. La casa fue construida en 1914. En el 2008 fue adquirida por el municipio de San Sebastián, posteriormente fue restaurada y convertida en museo.

Condado Vanderbilt - San Juan (Condado) - 2013 00014

Condado Vanderbilt - San Juan (Condado) - 2013 00014



Vista del interior del Hotel Condado Vanderbilt ubicado en la avenida Ashford del pueblo costero de San Juan. El hotel es de varios niveles con características del estilo resurgimiento español. El vestíbulo tiene dos niveles con los pisos de mármol en dos colores, techos abovedados con lámparas colgantes, lámparas de pared a juego y en el fondo la pared está revestida por espejos. Las bóvedas están interrumpidas por vanos semicirculares coronados con pequeños emblemas. Además, los espacios están divididos por balaustradas de hierro ornamental con pasamanos de madera. También se distinguen sillas en madera y plantas en macetas decorativas. El Hotel Condado Vanderbilt fue comisionado en 1917 por Frederick William Vanderbilt. Finalmente el 16 de octubre de 1919 fue inaugurado el primer gran hotel de lujo del Caribe. En el año 1930 fue vendido y pasó a llamarse Hotel Condado, posteriormente en 1940 se convirtió en el primer hotel en la isla en tener un casino. Además, en 1950 volvieron a cambiar su nombre a Condado Beach Hotel y se añadieron habitaciones, salones de actividades y un restaurante. Luego de considerar su demolición fue incluido en el Registro Nacional de Lugares Históricos en el año 1988. Más recientemente fue remodelado entre los años 2008 a 2014 por los arquitectos Thomas S. Marvel y José Marchand Sifre añadiendo dos torres de suites modernas. Además, la planificación y restauración de los espacios estuvo a cargo del Arquitecto Jonathan Parks y la firma SOLSTICE Planning and Architecture. Los diseños interiores estuvieron a cargo del diseñador Jorge Roselló.

Catedral de Nuestra Señora de la Guadalupe - Ponce - 2014 00005

Catedral de Nuestra Señora de la Guadalupe - Ponce - 2014 00005



Vista lateral y trasera de la Catedral de Nuestra Señora de la Guadalupe ubicada en el pueblo costero de Ponce. La catedral es de dos niveles en mampostería y ladrillo con características del estilo Neoclásico. La fachada lateral de la catedral tiene contrafuertes, ventanas cubiertas por tormenteras y un entablamento corrido sobre el cual descansa un parapeto bajo. Además, hay una cúpula esférica coronada con una linterna. Por otra parte, flanqueando la catedral hay una torre de campanario dividida en tres tramos. Son de base cuadrada, el segundo nivel tiene vanos cuadrados enmarcados con molduras salientes, coronados con entablamentos semicirculares y presididos por balaustradas. El tercer tramo muestra ventanas dobles de madera bajo arcos semicirculares que a su vez están enmarcados con molduras, coronados con espinazos y entablamentos. En adición, está flanqueada por pares de columnas acanaladas que sostienen el entablamento. El siguiente tramo de la torre es hexagonal y está decorado con cornisas, molduras, un friso con guirnaldas y ánforas. De la misma manera, la cúpula muestra óculos de vidrio pintado enmarcados con molduras. A su vez, la cúpula está coronada con una linterna de aberturas semicirculares y una cruz. Los inicios de la Catedral de Nuestra Señora de la Guadalupe datan de 1670 cuando apenas era una ermita de yagua y palma, fue clausurada en 1820 por las malas condiciones del edificio. El comienzo de la construcción de la iglesia actual data de 1835 y fue inaugurada en 1839. Sin embargo, el terremoto de 1918 destruyó ambas torres por lo que pasó a ser reconstruida con un diseño nuevo entre 1918 y 1937. Años más tarde, en 1984 fue incluida en el Registro Nacional de Lugares Históricos. Posteriormente fue restaurada nuevamente en 1992.

Calle de la Fortaleza 61 - Iglesia Presbiteriana Hugh O’Neill Memorial - San Juan (Viejo San Juan) - 2015 00011

Calle de la Fortaleza 61 - Iglesia Presbiteriana Hugh O’Neill Memorial - San Juan (Viejo San Juan) - 2015 00011



Iglesia Presbiteriana Hugh O’Neill Memorial en el Viejo San Juan. Vista, desde el segundo piso del edificio aledaño, del patio interior de la iglesia de un piso estilo colonial español. A un lado se ve parte de la pared de la nave de la iglesia. La pared tiene una arcada, el primer arco tiene ventanas de celosías, los dos arcos subsiguientes tienen puertas de dos paneles en cada lado, las puertas tienen ventanillas y están abiertas. Los tres arcos tienen montantes con paneles de vidrio. A los lados del arco central hay dos lámparas de pared. A través de una de las entradas se ve parte del piso de la nave que tiene losetas con motivo ajedrezado. La otra entrada a la nave tiene una rampa. Se pueden ver las ventanas en la parte superior de la pared, cercanas al techo. Además se ve la cornisa del edificio. Al otro lado se ve parte del lomo del parapeto de la escalera que conduce al segundo piso del edificio aledaño, ocupado por dependencias de la iglesia. El piso del patio tiene losetas color terracota. Al fondo se ve la pared posterior del anexo lateral de la iglesia, ocupado por la oficina. Hay un arco rebajado que tiene una puerta, paneles laterales con ventanas y un montante con paneles de vidrio. Una pequeña rampa que facilita el acceso al patio hundido. La puerta está abierta. En una de las esquinas hay un tiesto con una planta ornamental. El piso tiene losetas color terracota y un desagüe. Este anexo es de menor altura que la nave de la iglesia y en su techo se pueden ver equipos de los acondicionadores de aire. Tras los equipos se divisan partes de las fachadas de la Antigua Real Audiencia y del Palacio Rojo.

Hacienda Iruena o Labadie - Palacete Los Moreau - Mansion Labadie (1905) - Moca - 2008 0001

Hacienda Iruena o Labadie - Palacete Los Moreau - Mansion Labadie (1905) - Moca - 2008 0001



Hacienda Irurena en Moca, también conocida como Hacienda Labadie, Palacete Los Moreau y Mansión Labadie. Se observa una de las fachadas laterales del edificio de dos pisos construido en hormigón armado. Este tiene diseño ecléctico con influencias del estilo château. La fachada comienza con una torre dividida por cornisas, en el primer nivel hay una ventana con moldura y cornisa, en el segundo nivel hay otra ventana con moldura ornamentada. La torre está rematada con una cúpula de bulbo y antecede dos galerías, cada una con cuatro columnas de orden jónico y barandas con balaustres de hierro muy ornamentados. En las galerías hay puertas de doble hoja con celosías y paneles de vidrio enmarcadas con molduras. La sección posterior de la fachada muestra hiladas que dividen los niveles y tiene puertas con celosías y antepechos con barandas de hierro. El segundo nivel también tiene una ventana en el extremo posterior. Los bordes de las paredes tienen sillares de esquina. Sobre la sección de los corredores se puede ver una buhardilla con techo a dos aguas. Frente a la fachada se puede notar parte del patio con arbustos, un tiesto de gran tamaño con flores de colores y dos banquetas de hierro y madera. La Hacienda Irurena o Labadie fue hacienda cafetalera en el siglo XIX y a una central azucarera en el siglo XX, este es el único edificio aún en pie que perteneció a empresas dedicadas a ambos cultivos. Esta hacienda está inmortalizada en la literatura puertorriqueña como la Hacienda Palmeras, residencia de la familia Moreau en la novela La Llamarada (1935) de Enrique Laguerre.

Teatro Yagüez - Mayagüez - 2011 00022

Teatro Yagüez - Mayagüez - 2011 00022



Detalle de las butacas de la sala principal y los palcos del Teatro Yagüez, localizado en las calles McKinley y Basora del municipio de Mayagüez. Las butacas son de color rojo y contrastan con las yeserías ornamentales blancas en el techo y en los parapetos que delimitan los palcos. Bajo uno de los palcos se exhiben paneles con textura de mármol. Entre los pilares de los palcos se ubican cortinas de color rojo y lámparas de pared. También son visibles dos salidas de emergencia. En uno de los balcones se encuentra una persona. En su origen, en 1909, el teatro fue diseñado y construido de madera, acero y cinc, y se le conoció como la Casa del Arte Sonoro. El dueño original de este teatro fue Francisco Maymón Palmer. En el año 1919 un fuego consumió el edificio. En 1920 se llevó a cabo un nuevo diseño de estilo ecléctico, integrando materiales como el hormigón, la madera, el cristal, el mármol italiano y el yeso para las ornamentaciones. Durante la década de 1950 el teatro mostró signos de deterioro y en el periodo de 1977 a 1984 se llevaron a cabo trabajos de restauración bajo el auspicio del municipio de Mayagüez. Asimismo, durante el periodo de 2002 a 2008 se realizó una tercera restauración al teatro. Este teatro constituye uno de los principales escenarios artísticos y de gran valor histórico en el área oeste de Puerto Rico por acoger a importantes orquestas y compañías de drama y danza. Su arquitectura refleja elementos del neoclásico europeo, el neobarroco y de la arquitectura de principios del siglo XX que se conoció como la Belle Époque.

Condado Vanderbilt - San Juan (Condado) - 2013 00130

Condado Vanderbilt - San Juan (Condado) - 2013 00130



Vista desde el balcón frontal del Hotel Condado Vanderbilt ubicado en la avenida Ashford del pueblo costero de San Juan. El hotel es de varios niveles y características del estilo resurgimiento español. La fachada frontal del hotel tiene un balcón abierto rodeado por balaustradas. El interior tiene el piso cubierto por losas de cerámica, está decorado con muebles de jardín y plantas en macetas decorativas. Desde el balcón se distinguen edificios en los alrededores del hotel como el edificio del Condominio Bristol. El edificio tiene ventanales de cristal y aluminio y una azotea con techo voladizo de cristal. El condominio Bristol fue construido en el año 2006 siguiendo el diseño del Arquitecto Gonzalo M. Ferrer. El Hotel Condado Vanderbilt fue comisionado en 1917 por Frederick William Vanderbilt. Finalmente el 16 de octubre de 1919 fue inaugurado el primer gran hotel de lujo del Caribe. En el año 1930 fue vendido y pasó a llamarse Hotel Condado, posteriormente en 1940 se convirtió en el primer hotel en la isla en tener un casino. Además, en 1950 volvieron a cambiar su nombre a Condado Beach Hotel y se añadieron habitaciones, salones de actividades y un restaurante. Luego de considerar su demolición fue incluido en el Registro Nacional de Lugares Históricos en el año 1988. Más recientemente fue remodelado entre los años 2008 a 2014 por los arquitectos Thomas S. Marvel y José Marchand Sifre añadiendo dos torres de suites modernas. Además, la planificación y restauración de los espacios estuvo a cargo del Arquitecto Jonathan Parks y la firma SOLSTICE Planning and Architecture. Los diseños interiores estuvieron a cargo del diseñador Jorge Roselló.

Calle de la Fortaleza 56 - Antigua Real Audiencia - Conservatorio De Artes Del Caribe - San Juan (Viejo San Juan) - 2011 00009

Calle de la Fortaleza 56 - Antigua Real Audiencia - Conservatorio De Artes Del Caribe - San Juan (Viejo San Juan) - 2011 00009



Antigua Real Audiencia, calle de la Fortaleza en el Viejo San Juan. Vista parcial de la fachada de la casa de dos pisos estilo colonial español. Se observa parte del segundo nivel donde se divisan el balcón con balaustrada de madera y dos de los cinco vanos. También se pueden ver segmentos de la cornisa y del parapeto. A un lado del techo se ve la Torre Meteorológica y de Observación. la torre octagonal fue construida en mampostería, acero y madera. La sección de mampostería tiene pequeños óculos en las paredes y una cornisa con ménsulas. Sobre ésta se encuentra el área de observación, que es de madera y consiste de una puerta y ventanas con celosías, está protegida por una baranda y tiene una cúpula de metal con un remate esférico. Se divisa un pequeño segmento de la fachada del edificio contiguo y se puede notar que la edificaciones están adosadas. Originalmente esta casa fue la residencia del Dr. Francisco Oller y Ferrer, abuelo del pintor Francisco Oller y Cestero. En 1831 fue vendida al Estado y el 1832 pasó a ser la primera sede de la Real Audiencia Territorial. Alrededor del 1898 fue arrendado al Departamento de Agricultura de Estados Unidos y en otro momento se usó como Departamento de Estado. En 1992 la edificación fue dedicada a Don Fernando Chardón. Luego de un periodo de abandono fue restaurada en el año 2000 y asignada a las oficinas de Guías Turísticos y de Programas Federales adscritos a la Oficina del Gobernador. La Torre Meteorológica y de Observación fue diseñada por el ingeniero Manuel Maese, la orden para su construcción fue emitida en 1883.

Catedral de Nuestra Señora de la Guadalupe - Ponce - 2014 00007

Catedral de Nuestra Señora de la Guadalupe - Ponce - 2014 00007



Vista frontal de la Catedral de Nuestra Señora de la Guadalupe ubicada en el pueblo costero de Ponce. La catedral es de dos niveles en mampostería y ladrillo con características del estilo Neoclásico. La fachada frontal está dividida en dos tramos. En el primer nivel se ven puertas bajo arcos rectangulares enmarcadas con molduras y coronadas con entablamentos semicirculares. La entrada principal está enmarcada con columnas pares que a su vez sostienen el entablamento corrido rematado con ánforas. El del segundo nivel tiene ventanas enmarcadas con molduras y coronadas con entablamentos, una es semicircular y la otra es triangular. También tiene cornisas corridas donde descansan ánforas y pares de pilastras que a su vez sostienen el entablamento y un frontón triangular coronado con una cruz. Por otra parte, flanqueando la catedral hay dos torres de campanario divididas en tres tramos por entablamentos. Son de bases cuadradas, el segundo nivel tiene vanos cuadrados enmarcados con molduras salientes, coronados con entablamentos semicirculares y presididos por balaustradas. El tercer tramo muestra ventanas dobles de madera bajo arcos semicirculares que a su vez están enmarcados con molduras, coronados con espinazos y entablamentos. Además, están flanqueados por pares de columnas acanaladas que sostienen el entablamento. Los siguientes tramos de las torres son hexagonales y están decorados con cornisas, molduras, frisos con guirnaldas y ánforas. De la misma manera, las cúpulas muestran óculos de vidrio pintados enmarcados con molduras. A su vez, las cúpulas están coronadas con unas linternas de aberturas semicirculares y cruces. Los inicios de la Catedral de Nuestra Señora de la Guadalupe datan de 1670 cuando apenas era una ermita de yagua y palma, fue clausurada en 1820 por las malas condiciones del edificio. El comienzo de la construcción de la iglesia actual data de 1835 y fue inaugurada en 1839. Sin embargo el terremoto de 1918 destruyó ambas torres por lo que pasó a ser reconstruida con un diseño nuevo entre 1918 y 1937. Años más tarde, en 1984 fue incluida en el Registro Nacional de Lugares Históricos. Posteriormente fue restaurada nuevamente en 1992.

Condado Vanderbilt - San Juan (Condado) - 2013 00055

Condado Vanderbilt - San Juan (Condado) - 2013 00055



Vista del patio trasero del Hotel Condado Vanderbilt ubicado en la avenida Ashford del pueblo costero de San Juan. El hotel es de varios niveles y características del estilo resurgimiento español. El patio trasero tiene el piso cubierto por baldosas de cerámica. Además, hay escaleras con pasamanos metálicos, plantas en macetas decorativas y remates decorativos con formas cónicas. La fachada trasera del hotel tiene una extensión moderna con amplios ventanales de cristal interrumpidos por columnas cuadradas. También se pueden ver plantas en macetas decorativas, una balaustrada de cristal modulada por pilares cuadrados que preside la costa del océano atlántico, sombrillas y muebles de patio. El Hotel Condado Vanderbilt fue comisionado en 1917 por Frederick William Vanderbilt. Finalmente el 16 de octubre de 1919 fue inaugurado el primer gran hotel de lujo del Caribe. En el año 1930 fue vendido y pasó a llamarse Hotel Condado, posteriormente en 1940 se convirtió en el primer hotel en la isla en tener un casino. Además, en 1950 volvieron a cambiar su nombre a Condado Beach Hotel y se añadieron habitaciones, salones de actividades y un restaurante. Luego de considerar su demolición fue incluido en el Registro Nacional de Lugares Históricos en el año 1988. Más recientemente fue remodelado entre los años 2008 a 2014 por los arquitectos Thomas S. Marvel y José Marchand Sifre añadiendo dos torres de suites modernas. Además, la planificación y restauración de los espacios estuvo a cargo del Arquitecto Jonathan Parks y la firma SOLSTICE Planning and Architecture. Los diseños interiores estuvieron a cargo del diseñador Jorge Roselló.

Iglesia de San Jorge - San Juan (Condado) - 2014 00007

Iglesia de San Jorge - San Juan (Condado) - 2014 00007



Vista desde el interior de la Parroquia San Jorge ubicada en la comunidad de Condado del pueblo costero de San Juan. La iglesia es de dos niveles en hormigón con características del estilo neogótico pintada de color blanco y color gris. El interior está dividido en tres naves, la nave central se eleva un nivel adicional con techos abovedados. La nave central también tiene arcadas de arcos ojivales enmarcadas con molduras y flanqueadas por pilastras pares. También tienen varias filas de bancos de madera con reclinatorios. Al fondo, bajo un ábside semicircular se encuentra el altar presidido por una balaustrada y escaleras. Está decorado con un retablo al pie del cual está el sagrario y la mesa de altar cubierta por un mantel de tela. A ambos lados del retablo hay estatuas de representaciones religiosas sobre ménsulas semicirculares, sillas, jarrones decorativos y ambones metálicos. La iglesia San Jorge fue inaugurada en el año 1920 siendo oficialmente fundada canónicamente en 1924 tras ser desmembrada de las Parroquias San Mateo y Sagrado Corazón. Su diseño inicial estuvo a cargo de la firma Martínez y Lázaro siendo finalizado en dos años. Seis años después se comienza la construcción de los edificios aledaños a la academia San Jorge. Posteriormente en 1940 la fachada fue remodelada por el arquitecto Rafael Carmoega. Más recientemente en el año 2017 fue restaurada en fases por la firma Astrid Díaz: ADV Architects.

Teatro Yagüez - Mayagüez - 2011 00035

Teatro Yagüez - Mayagüez - 2011 00035



Detalle del escenario del Teatro Yagüez, localizado en las calles McKinley y Basora del municipio de Mayagüez. Sobre el escenario se ubican varios objetos como tablas, mesas, sillas y paneles. A un lado del escenario son notables las butacas rojas que contrastan con el color blanco del parapeto que delimita el palco lateral. Además, resaltan los paneles de mármol, las yeserías ornamentales del parapeto y una escalera. En su origen, en 1909, el teatro fue diseñado y construido de madera, acero y cinc, y se le conoció como la Casa del Arte Sonoro. El dueño original de este teatro fue Francisco Maymón Palmer. En el año 1919 un fuego consumió el edificio. En 1920 se llevó a cabo un nuevo diseño de estilo ecléctico, integrando materiales como el hormigón, la madera, el cristal, el mármol italiano y el yeso para las ornamentaciones. Durante la década de 1950 el teatro mostró signos de deterioro y en el periodo de 1977 a 1984 se llevaron a cabo trabajos de restauración bajo el auspicio del municipio de Mayagüez. Asimismo, durante el periodo de 2002 a 2008 se realizó una tercera restauración al teatro. Este teatro constituye uno de los principales escenarios artísticos y de gran valor histórico en el área oeste de Puerto Rico por acoger a importantes orquestas y compañías de drama y danza. Su arquitectura refleja elementos del neoclásico europeo, el neobarroco y de la arquitectura de principios del siglo XX que se conoció como la Belle Époque.

Casilla de Camineros - Bayamón - 2011 00034

Casilla de Camineros - Bayamón - 2011 00034



Casilla de Camineros en la Carretera 2, km. 12.7 en Bayamón. Vista lateral del edificio construido en mampostería y ladrillos, de estilo neoclásico colonial. Se observan paredes de roca caliza expuestas con cinco huecos rectangulares adintelados con molduras rústicas que funcionan como ventanas y una puerta. El enlucido de las molduras y partes de la cornisa se ha desprendido, exponiendo los ladrillos. El techo de hormigón muestra una cornisa con dentículos y un parapeto en estado de deterioro y algunas plantas creciendo en el borde. El patio está cubierto de cemento y en algunas partes se nota agrietado. Al fondo se ven árboles y postes de tendido eléctrico. Las Casillas de Camineros fueron construidas durante la última parte del siglo XIX a lo largo de las carreteras principales en Puerto Rico. Estas fueron las residencias de los camineros, trabajadores gubernamentales encargados de brindar mantenimiento a la superficie de la carretera. La mayoría de las casillas fueron abandonadas a finales del siglo XX y las que aún permanecen han enfrentado diferentes destinos. Muchas de ellas se han deteriorado o han sido demolidas y otras han sido destinadas a otros usos. Esta casilla es una de tres construidas en 1882 a lo largo de un tramo de la Carretera número 2 entre Bayamón y Mayagüez. Perteneció originalmente al Departamento de Transportación y Obras Públicas, quien luego la cedió al Instituto de Cultura para ser usada como museo y oficinas de la Cámara de Comercio de Bayamón.

El Cortijo - Barranquitas - 2012 00110

El Cortijo - Barranquitas - 2012 00110



Vista desde el jardín de la residencia conocida como El Cortijo en el pueblo de Barranquitas. La residencia es de dos niveles más una torre que se eleva un nivel adicional cimentada en concreto armado con techos cubierto por tejas. Además, su diseño está inspirado en el estilo del resurgimiento colonial español. La casa tiene ventanas dobles de madera y cristal algunas coronadas con aleros y otras cubiertas por rejas metálicas ornamentales. También se pueden ver balcones voladizos con puertas dobles de cristal sostenidos por ménsulas. Uno de los balcones tiene balaustrada de madera modulada por pilares y el otro es abierto y tiene baranda de hierro. Decorando la fachada se aprecia una balconera en el descanso de la escalera con puerta doble de madera y cristal enmarcada y coronada con un entablamento. Por otra parte, la entrada es a través de un pórtico presidido por escalones cubiertos por losas de cerámica con motivos ornamentales y una arcada modulada por una columna compuesta sobre la cual se distingue un emblema en relieve. Al extremo izquierdo en el primer nivel se divisa un balcón con plantas en macetas decorativas, techos con vigas de madera expuestas y lámparas colgantes. El Cortijo fue construido en 1939 como residencia de verano para la familia Lozana Fabián, relacionados a la administración de centrales azucareras en Puerto Rico. A lo largo de los años ha cambiado de dueños, pero su diseño original no ha sido alterado.

Hacienda Iruena o Labadie - Palacete Los Moreau - Mansion Labadie (1905) - Moca - 2008 00002

Hacienda Iruena o Labadie - Palacete Los Moreau - Mansion Labadie (1905) - Moca - 2008 00002



Hacienda Irurena en Moca, también conocida como Hacienda Labadie, Palacete Los Moreau y Mansión Labadie. Fachada principal del edificio de dos pisos construido en hormigón armado. Este tiene diseño ecléctico con influencias del estilo château. Es una fachada simétrica con galerías de cinco módulos en el primer nivel y segundo nivel, una escalera da acceso al módulo central. Tiene columnas de orden jónico y barandas con balaustres de hierro muy ornamentados. Las puertas y ventanas son de doble hoja y tienen molduras. En el primer piso hay cinco puertas con molduras lineales, mientras que en el segundo piso se alternan tres ventanas y dos puertas con molduras ornamentadas y en forma de frontones. La ventana central es una ventana fija con vitrales. Hay dos torres cuadradas idénticas de dos niveles, flanquean la porción central de la fachada. Sus cubiertas son dos cúpulas de bulbo con evidente influencia francesa. Hay dos cornisas que bordean cada piso. Sobre la cornisa del segundo piso hay un friso con ornamentación de círculos y rectángulos, sobre el friso hay tres remates de jarrón. En el techo se pueden ver las cubiertas a dos aguas de tres buhardillas. Frente al edificio hay un jardín con palmas, arbustos y flores. En el centro se observa un área verde circular con un tiesto de gran tamaño con flores. La Hacienda Irurena o Labadie fue hacienda cafetalera en el siglo XIX y a una central azucarera en el siglo XX, este es el único edificio aún en pie que perteneció a empresas dedicadas a ambos cultivos. Esta hacienda está inmortalizada en la literatura puertorriqueña como la Hacienda Palmeras, residencia de la familia Moreau en la novela La Llamarada (1935) de Enrique Laguerre.

Iglesia de San Jorge - San Juan (Condado) - 2014 00001

Iglesia de San Jorge - San Juan (Condado) - 2014 00001



Vista desde el interior de la Parroquia San Jorge ubicada en la comunidad de Condado del pueblo costero de San Juan. La iglesia es de dos niveles en hormigón con características del estilo neogótico pintada de color blanco y color gris. El interior está dividido en tres naves, la nave central se eleva un nivel adicional con techos abovedados. Las bóvedas son cuatripartitas unidas por espinazos pintados de color dorado, algunos de estos sirven como la base para las lámparas colgantes. Además, el claristorio tiene ventanas de cristal bajo arcos ojivales coronadas con vierteaguas y tracerías lobuladas. La nave central también tiene escudos en bajorrelieve y arcadas de arcos ojivales enmarcadas con molduras y flanqueadas por pilastras pares que a su vez conectan con las separaciones de las bóvedas. Los espacios interiores también tienen varias filas de bancos de madera y pequeñas mesas también de madera. Las naves laterales también tienen bancos de madera y puertas dobles de madera coronadas con vidrieras de colores. Al fondo, bajo un ábside semicircular se encuentra el altar presidido por una balaustrada y escaleras. Está decorado con un retablo al pie del cual está el sagrario y la mesa de altar cubierta por un mantel de tela. A ambos lados del retablo hay estatuas de representaciones religiosas sobre ménsulas semicirculares, sillas y jarrones decorativos. La iglesia San Jorge fue inaugurada en el año 1920 siendo oficialmente fundada canónicamente en 1924 tras ser desmembrada de las Parroquias San Mateo y Sagrado Corazón. Su diseño inicial estuvo a cargo de la firma Martínez y Lázaro siendo finalizado en dos años. Seis años después se comienza la construcción de los edificios aledaños a la academia San Jorge. Posteriormente en 1940 la fachada fue remodelada por el arquitecto Rafael Carmoega. Más recientemente en el año 2017 fue restaurada en fases por la firma Astrid Díaz: ADV Architects.

Residencia Rodríguez Cabrero (Casa Doña Bisa) - San Sebastián - 2011 00026

Residencia Rodríguez Cabrero (Casa Doña Bisa) - San Sebastián - 2011 00026



Residencia Rodríguez Cabrero también conocida como Casa Doña Bisa en San Sebastián. Vista de la fachada principla de la casa construida con hormigón armado en estilo paladiano. La construcción sobre podio tiene un pórtico accesible a través de una escalera central, cada lado de la escalera hay un óculo. El techo del pórtico tiene un friso ornamental. Sobre el pórtico hay un balcón cuyo techo tiene un frontón triangular. Las barandas y columnas del pórtico y del balcón se extienden en toda la fachada frontal y a los lados formando arcadas en ambos pisos. Las barandas son de hierro y las columnas redondas tienen pedestales cuadrangulares. Los capiteles de las columnas del primer piso son de orden toscano y los del segundo piso, de orden jónico. En el segundo piso hay remates en forma de florero sobre seis de los pedestales. En las paredes frontales hay puertas y ventanas de doble hoja con soles truncos y molduras en los arcos superiores. Las molduras de las dos puertas tienen una clave ornamental cada una. La casa tiene una azotea con parapeto, sobre la parte frontal del parapeto hay otros seis remates en forma de florero. En medio de la azotea hay una habitación octagonal, su techo es una cúpula. Tiene ventanas de madera con celosías y soles truncos. Se puede ver parte de una de las fachadas laterales que tiene las mismas características de la fachada principal. La casa fue construida en 1914. En el 2008 fue adquirida por el municipio de San Sebastián, posteriormente fue restaurada y convertida en museo.

Iglesia de San Jorge - San Juan (Condado) - 2014 00038

Iglesia de San Jorge - San Juan (Condado) - 2014 00038



Vista lateral y trasera de la Parroquia San Jorge ubicada en la comunidad de Condado del pueblo costero de San Juan. La iglesia es de dos niveles en hormigón con características del estilo neogótico pintada de color gris y color blanco con techo a dos aguas revestido por tejas. El primer nivel tiene ventanas de cristal, contrafuertes y cornisas corridas. También se pueden ver en la parte lateral ventanas revestidas por rejas metálicas y puertas dobles coronadas con travesaños también revestidos por rejas bajo arcos ojivales. La nave central se eleva un nivel adicional y son visibles dos ventanas de cristal coronadas con arcos ojivales decorados con tracerías y vierteaguas. Junto a las ventanas también hay contrafuertes. Además, la fachada trasera de la nave central tiene un ábside sobre el cual se eleva una escalera metálica. Por otra parte, en la fachada frontal adosada al edificio está la torre del campanario que se eleva sobre esta. La torre tiene forma piramidal y está coronada con una cruz metálica. Además, tiene ventanas bajo arcos ojivales decorados con cresterías, vierteaguas y parteluces. Sobre las ventanas se ven ornamentación en bajorrelieve, gárgolas y a los lados contrafuertes que se extienden y a su vez sostienen pináculos con detalles ornamentales. En los alrededores de la iglesia hay carteles de tránsito y una reja metálica. La iglesia San Jorge fue inaugurada en el año 1920 siendo oficialmente fundada canónicamente en 1924 tras ser desmembrada de las Parroquias San Mateo y Sagrado Corazón. Su diseño inicial estuvo a cargo de la firma Martínez y Lázaro siendo finalizado en dos años. Seis años después se comienza la construcción de los edificios aledaños a la academia San Jorge. Posteriormente en 1940 la fachada fue remodelada por el arquitecto Rafael Carmoega. Más recientemente en el año 2017 fue restaurada en fases por la firma Astrid Díaz: ADV Architects.

Teatro La Perla - Ponce - Foto Histórica

Teatro La Perla - Ponce - Foto Histórica



Vista frontal y lateral del Teatro La Perla ubicado entre las calles Mayor Cantera y Cristina del pueblo costero de Ponce. El edificio es de dos niveles en mampostería encalada con características del estilo neoclásico italiano. En el primer nivel, la fachada tiene ventanas dobles enmarcadas con molduras planas. Dividiendo los niveles hay una moldura y una cornisa corrida. Por su parte, el segundo nivel tiene puertas dobles de madera enmarcadas con molduras, presididas por antepechos y coronadas con entablamentos que a su vez están sostenidos por ménsulas. En medio se proyecta un pórtico presidido por escaleras y sostenido por seis columnas de orden corintio. En el interior de este se pueden ver puertas y ventanas dobles de madera y cristal enmarcadas con molduras. Además, el borde superior del edificio está acompañado por un entablamento corrido con molduras, cornisas, dentículos o mútulos. Sobre este se alza un parapeto bajo en donde hay un frontón con inscripción. En los alrededores del edificio se distinguen personas. El Teatro La Perla data de 1864 convirtiéndose en el segundo teatro más antiguo de Puerto Rico. Tras el terremoto de 1918 y posteriormente un incendio en 1924 el edificio tuvo que ser restaurado con el diseño de Francisco Porrata Doria y Francisco Gardón. A pesar de que el diseño de la fachada exterior permaneció igual, el interior fue modificado y mejorado. Años más tarde, en 1990 volvió a ser restaurado. De igual forma, tras el paso del huracán María en el año 2017 y los terremotos ocurridos en el año 2020 el edificio se vio afectado.

Archivo General - Antiguo Hospital Civil - San Juan (Puerta de Tierra) - 2011 00010

Archivo General - Antiguo Hospital Civil - San Juan (Puerta de Tierra) - 2011 00010



Vista frontal del Archivo General y Biblioteca Nacional de Puerto Rico ubicado en la comunidad de Puerta de Tierra del pueblo costero de San Juan. El edificio es de tres niveles en mampostería y ladrillo con características del estilo neoclásico. Está pintado en tonos de amarillo y color blanco. El primer nivel tiene zonas estriadas además, tiene ventanas de madera y cristal con persianas y soles truncos bajo arcos de medio punto enmarcados con molduras planas y pintadas de color azul. Las del segundo nivel están coronadas con espinazos y al pie tienen molduras salientes a modo de bases. Modulando las ventanas hay pilastras en pares de dos que sostienen una cornisa corrida y a su vez se alzan y sostienen el entablamento del segundo nivel sobre el cual se proyecta un parapeto bajo. La fachada frontal es oblicua y en medio se alcanza a ver un extremo de la entrada a través de una puerta bajo un arco de medio punto enmarcado con molduras planas. Sobre esta hay una ventana como las demás flanqueada por columnas pares que a su vez sostienen un frontón triangular. El antiguo Hospital Civil fue el último edificio erigido por el gobierno Español en la Isla entre los años 1877-1887. A pesar de que fue construido como hospital fue utilizado como Cárcel provincial y posteriormente como destilería. Años más tarde, ante una amenaza de demolición el Instituto de Cultura Puertorriqueña lo adquirió y lo restauró para albergar documentos históricos. A partir del año 1973 trasladaron el Archivo General y la Biblioteca Nacional de Puerto Rico a este espacio. Además, el edificio fue incluido en el Registro Nacional de Lugares Históricos en el año 1976.

Asilo de Beneficencia - San Juan (Viejo San Juan) - 2011 00042

Asilo de Beneficencia - San Juan (Viejo San Juan) - 2011 00042



Antiguo Asilo de Beneficencia localizado en el barrio Ballajá en el Viejo San Juan. Fue inaugurado en 1844 y diseñado por el arquitecto Pedro García y el ingeniero Santiago Cortijo. Su estilo arquitectónico es representativo del neoclásico. Está pintado de color amarillo, blanco, verde y marrón. La fachada del edificio tiene dos frontones rectilíneos, en uno de ellos se aprecia un alto relieve en el tímpano. La entrada principal tiene en la parte superior cuatro pares de columnas jónicas, balconeras y puertas dobles de madera color verde con arcos de medio punto. En la parte inferior se aprecian cuatro pares de columnas dóricas blancas con puertas dobles pintadas de verde y arcos de medio punto. Estas columnas sostienen un entablamento que tiene una inscripción en las metopas. La fachada también tiene cornisas corridas y ventanas dobles de celosía de madera color verde enmarcadas por arcos de medio punto y molduras planas blancas. Frente a la entrada hay un muro escalonado con barandas. El edificio está cercado por unas rejas metálicas sostenidas por varios pilares cuadrados. Posteriormente el antiguo Asilo de Beneficencia fue sede del Instituto de Cultura Puertorriqueña. En el lado derecho de la imagen se divisa parcialmente una de las fachadas laterales del antiguo Manicomio Insular. Este edificio está pintado de color amarillo, mostaza, blanco y verde. Tiene parapetos, cornisas y ventanas de madera color verde enmarcadas con molduras rectangulares blancas. Posteriormente el edificio fue conocido como la Escuela de Artes Plásticas y Diseño. En la imagen también se ve la calle del Morro y parte del Jardín Paseo de Ballajá, personas, automóviles, palmas, árboles, farolas y balizas.

Iglesia de San Jorge - San Juan (Condado) - 2014 00120

Iglesia de San Jorge - San Juan (Condado) - 2014 00120



Vista desde el interior de la Parroquia San Jorge ubicada en la comunidad de Condado del pueblo costero de San Juan. La iglesia es de dos niveles en hormigón con características del estilo neogótico pintada de color blanco y color gris. El interior está dividido en tres naves, al fondo de la nave central, bajo un ábside semicircular se encuentra el altar presidido por unas escaleras de mármol. Las paredes tienen pilastras y el altar está decorado con una mesa de mármol ornamentada con columnas pares y en medio sobre un rectángulo pintado de dorado con ornamentación en relieve está el escudo de armas de Puerto Rico. La mesa está revestida por un mantel de tela color blanco sobre el cual se pueden ver candelabros y un crucifijo. Por otra parte, la pared tiene un retablo, la parte del banco tiene en medio el sagrario, a ambos lados de este pequeñas representaciones de santos tallados dentro de nichos y candelabros con velas. El cuerpo del retablo tiene mosaicos y está enmarcado con molduras. La iglesia San Jorge fue inaugurada en el año 1920 siendo oficialmente fundada canónicamente en 1924 tras ser desmembrada de las Parroquias San Mateo y Sagrado Corazón. Su diseño inicial estuvo a cargo de la firma Martínez y Lázaro siendo finalizado en dos años. Seis años después se comienza la construcción de los edificios aledaños a la academia San Jorge. Posteriormente en 1940 la fachada fue remodelada por el arquitecto Rafael Carmoega. Más recientemente en el año 2017 fue restaurada en fases por la firma Astrid Díaz: ADV Architects.

Teatro Yagüez - Mayagüez - 2011 00057

Teatro Yagüez - Mayagüez - 2011 00057



Detalle de una escalera en el interior del Teatro Yagüez, localizado entre las calles McKinley y Basora del municipio de Mayagüez. La escalera es curvada de un solo tramo y tiene una baranda de metal ornamentada con volutas doradas. Los escalones están revestidos con alfombrado gris. También resaltan los paneles de mármol que cubren parte de la escalera y la pared. Estos detalles contrastan con el color rojo que cubre el borde de la escalera y la mitad de la pared. En su origen, en 1909, el teatro fue diseñado y construido de madera, acero y cinc, y se le conoció como la Casa del Arte Sonoro. El dueño original de este teatro fue Francisco Maymón Palmer. En el año 1919 un fuego consumió el edificio. En 1920 se llevó a cabo un nuevo diseño de estilo ecléctico, integrando materiales como el hormigón, la madera, el cristal, el mármol italiano y el yeso para las ornamentaciones. Durante la década de 1950 el teatro mostró signos de deterioro y en el periodo de 1977 a 1984 se llevaron a cabo trabajos de restauración bajo el auspicio del municipio de Mayagüez. Asimismo, durante el periodo de 2002 a 2008 se realizó una tercera restauración al teatro. Este teatro constituye uno de los principales escenarios artísticos y de gran valor histórico en el área oeste de Puerto Rico por acoger a importantes orquestas y compañías de drama y danza. Su arquitectura refleja elementos del neoclásico europeo, el neobarroco y de la arquitectura de principios del siglo XX que se conoció como la Belle Époque.

Condado Vanderbilt - San Juan (Condado) - 2013 00115

Condado Vanderbilt - San Juan (Condado) - 2013 00115



Vista del patio trasero del Hotel Condado Vanderbilt ubicado en la avenida Ashford del pueblo costero de San Juan. El hotel es de varios niveles con características del estilo resurgimiento español con techo a cuatro aguas revestido por tejas y sostenible por vigas de madera. La fachada trasera del hotel tiene ventanas dobles de cristal y una extensión moderna. Al extremo izquierdo se distingue una de las torres laterales del hotel. La torre se eleva once niveles, tiene balcones con balaustradas de cristal y ventanas dobles de cristal enmarcadas con molduras. También se distingue un corredor que conecta ambos edificios en el primer nivel. Además, en la parte trasera se distingue el edificio Bristol Condominium con ventanales de aluminio y cristal. El condominio Bristol fue construido en el año 2006 siguiendo el diseño del Arquitecto Gonzalo M. Ferrer. El Hotel Condado Vanderbilt fue comisionado en 1917 por Frederick William Vanderbilt. Finalmente el 16 de octubre de 1919 fue inaugurado el primer gran hotel de lujo del Caribe. En el año 1930 fue vendido y pasó a llamarse Hotel Condado, posteriormente en 1940 se convirtió en el primer hotel en la isla en tener un casino. Además, en 1950 volvieron a cambiar su nombre a Condado Beach Hotel y se añadieron habitaciones, salones de actividades y un restaurante. Luego de considerar su demolición fue incluido en el Registro Nacional de Lugares Históricos en el año 1988. Más recientemente fue remodelado entre los años 2008 a 2014 por los arquitectos Thomas S. Marvel y José Marchand Sifre añadiendo dos torres de suites modernas. Además, la planificación y restauración de los espacios estuvo a cargo del Arquitecto Jonathan Parks y la firma SOLSTICE Planning and Architecture. Los diseños interiores estuvieron a cargo del diseñador Jorge Roselló.

Condado Vanderbilt - San Juan (Condado) - 2013 00132

Condado Vanderbilt - San Juan (Condado) - 2013 00132



Vista desde el balcón frontal del Hotel Condado Vanderbilt ubicado en la avenida Ashford del pueblo costero de San Juan. El hotel es de varios niveles y características del estilo resurgimiento español. La fachada frontal del hotel tiene ventanas rectangulares de cristal, puertas dobles de cristal bajo arcos semicirculares moduladas por lámparas de pared, el techo sostenido por vigas de madera y cubierto por tejas. Además, sobre las puertas se distingue un entablamento corrido con molduras y detalles en bajorelieve. La fachada frontal también tiene un balcón abierto rodeado por balaustradas. El interior de este tiene el piso cubierto por losas de cerámica, está decorado con muebles de jardín y plantas en macetas decorativas. También se distingue una de las torres laterales del hotel con ventanas dobles de cristal enmarcadas con molduras, balcones con balaustradas de cristal dentro de los cuales hay más ventanas y puertas enmarcadas con molduras. El Hotel Condado Vanderbilt fue comisionado en 1917 por Frederick William Vanderbilt. Finalmente el 16 de octubre de 1919 fue inaugurado el primer gran hotel de lujo del Caribe. En el año 1930 fue vendido y pasó a llamarse Hotel Condado, posteriormente en 1940 se convirtió en el primer hotel en la isla en tener un casino. Además, en 1950 volvieron a cambiar su nombre a Condado Beach Hotel y se añadieron habitaciones, salones de actividades y un restaurante. Luego de considerar su demolición fue incluido en el Registro Nacional de Lugares Históricos en el año 1988. Más recientemente fue remodelado entre los años 2008 a 2014 por los arquitectos Thomas S. Marvel y José Marchand Sifre añadiendo dos torres de suites modernas. Además, la planificación y restauración de los espacios estuvo a cargo del Arquitecto Jonathan Parks y la firma SOLSTICE Planning and Architecture. Los diseños interiores estuvieron a cargo del diseñador Jorge Roselló.

Casa en la Calle Cuevillas 607 - San Juan (Miramar) - 2014 00043

Casa en la Calle Cuevillas 607 - San Juan (Miramar) - 2014 00043



Edificio que forma parte de la casa en la calle Cuevillas 607, en Miramar, San Juan. Este edificio es de una planta y presenta una puerta y una ventana tipo persiana, ambas protegidas con rejas ornamentales. Además, se proyecta un alero y un parapeto en la parte superior. Al lado se encuentra un edificio más pequeño con una sola puerta y techo plano. Ambos son de color rosado con detalles de blanco. En la parte del frente se ubica una camioneta color rojo. Esta camioneta Studebaker, perteneció a Eduardo Méndez Bagur y sirvió como inspiración para el artista Miguel Luciano quien creó una obra que se alberga en el Museo de Arte y Diseño de Miramar. La casa en la calle Cuevillas 607 se construyó en 1913 siguiendo influencias del estilo resurgimiento del renacimiento francés o resurgimiento neoclásico francés. Sus dueños originales fueron el juez Luis Méndez Baz y su esposa, María Bagur. Tras visitar Francia, la pareja hizo construir su residencia siguiendo el diseño de un prototipo publicado en Nouvelles Maisons de Campagne, Paris et ses Environs, que mostraba fachadas y planos de casas de campo populares en París. Posteriormente la casa funcionó como residencia y taller para artistas como Lorenzo Homar, Juan Ramón Velázquez, Ada Bobonis y Aaron Salabarrías. Además, los herederos de los dueños originales establecieron una fundación para desarrollar un museo en esta residencia. Entre el 2018 y 2019 se llevó a cabo la restauración del edificio que dio lugar al establecimiento del Museo de Arte y Diseño de Miramar, también conocido como la Casa Rosada.

Antigua Iglesia El Nazareno - Catedral de la Música - San Juan (Miramar) - 2016 00030

Antigua Iglesia El Nazareno - Catedral de la Música - San Juan (Miramar) - 2016 00030



Detalle del mural en el interior del edificio de la antigua Iglesia El Nazareno, también conocido como la Catedral de la Música Latina y la Casa Viera. Este edificio está localizado en el 909 de la avenida Fernández Juncos, esquina calle Hoare en la zona de Miramar, Santurce, en el municipio de San Juan. Este mural presenta un homenaje a Rafael y Richie Viera, los dueños de la tienda de discos conocida como la Casa Viera. El mural representa los retratos de los Viera junto con la bandera puertorriqueña, enmarcados por la representación de la Capilla del Cristo con palomas posadas en su borde superior, así como la representación de edificios característicos del Viejo San Juan. La pared del fondo está pintada con un motivo que simula el cielo con nubes. La pintura mural se ubica dentro de un espacio abovedado, acentuado por un arco de medio punto y flanqueado por dos letreros que indican: "Calle Richie Viera" y "Calle Rafael Viera". Además, es visible una lámpara que cuelga del techo. Frente a la pintura mural se ubica la nave en la que se extienden las estanterías y las cajas con discos de vinilo y discos compactos de diversos cantantes. El piso de la nave está cubierto con un mosaico de motivo geométrico de color blanco y negro. En las paredes también se encuentran varias fotografías de artistas del campo musical. Este edificio de hormigón, construido en 1947 en el estilo resurgimiento español, originalmente albergó una iglesia episcopal, conocida como El Nazareno en Santurce. Posteriormente, acogió la Casa Viera, la cual constituyó una de las más grandes tiendas de música del Caribe. A partir del año 2015 el edificio fue adquirido por la compañía Puerto Rico Island Holdings mediante una subasta realizada por el banco Scotiabank.

Escuela Luchetti - San Juan (Condado) - 2011 00002

Escuela Luchetti - San Juan (Condado) - 2011 00002



Vista frontal de la escuela Luchetti ubicada en la comunidad de Condado del pueblo costero de San Juan. La escuela es de dos niveles construida en hormigón, pintada de color verde y color amarillo. Tiene características de los estilos artesanal y modernista. La fachada frontal tiene un pórtico de entrada sostenido por columnas de órden dórico. A su vez, las columnas sostienen un entablamento con molduras y cornisas. Además, el pórtico tiene una puerta doble de madera, enmarcada con molduras, presidida por escaleras y coronada con un travesaño de reja metálica. Por otra parte, el segundo nivel tiene una balconera abierta rodeada por una balaustrada de hormigón. También tiene dos puertas de madera en medio de la cual hay una columna acanalada. La balconera está enmarcada con molduras y decorada con remates decorativos. Por otra parte, en los alrededores de la escuela hay aceras pavimentadas y bancos de hormigón en el patio. La escuela Luchetti data de los años 1908 y 1909 siguiendo el diseño del arquitecto Antonin Nechodoma. Es una de las primeras escuelas edificadas y edificación de hormigón en la zona de San Juan antiguamente conocida como: “El Condado Schools”. Permaneció en uso continuo hasta su cierre por el Departamento de Educación el año 2018. Posteriormente en el año 2021 gracias a una iniciativa comunitaria el edificio fue nominado como edificio histórico ante la junta de planificación y el Instituto de Cultura Puertorriqueña.

Arsenal de La Marina en La Puntilla - San Juan (Viejo San Juan) - 2012 00002

Arsenal de La Marina en La Puntilla - San Juan (Viejo San Juan) - 2012 00002



Fachada ubicada adyacente a la entrada principal del antiguo Arsenal de La Marina Española en el barrio La Puntilla en el Viejo San Juan. El edificio es representativo del estilo neoclásico y fue construido en 1800. Se aprecia un edificio de dos plantas pintado de color salmón y blanco. Tiene parapetos, cornisas, dos pilastras y puertas dobles de madera enmarcadas por molduras blancas. También tiene un balcón sin barandas con un faldón sostenido por pilastras y vigas de madera. Frente a la fachada hay varios automóviles, al lado se ven árboles, un portón con reja metálica estilo abanico y parte de la bahía de San Juan. Posteriormente el Arsenal de la Marina Española se utilizó para exhibiciones y oficinas administrativas del Instituto de Cultura Puertorriqueña. En la imagen también se puede ver parte del techo de tejas del edificio United States Customs House, también conocido como la Aduana de San Juan. Su estilo arquitectónico es representativo del resurgimiento español y su construcción es obra del arquitecto Albert B. Nichols. La Aduana de San Juan fue incluida en el Registro Nacional de Lugares Históricos en 1988. A distancia se divisa la parte superior del Banco Popular de Puerto Rico. El edificio está pintado de color crema y es representativo del estilo art déco. Fue diseñado por el arquitecto Chauncey W. Riley y construido por los ingenieros Juan M. Beltrán Carrasquillo, Manuel Miró y Saurí y José Benítez Gautier. También, se aprecia la corte y correo federal José V. Toledo, el cual tiene una combinación de estilos arquitectónicos, como el beaux arts, federal y renacimiento español. Fue diseñado por Oscar Wenderoth y está pintado de color crema y terracota. Tiene dos torres coronadas con linternas, tejas árabes y cornisas. El edificio fue incluido en el Registro Nacional de Lugares Históricos en 1986. En el lado derecho se localiza el edificio Ochoa, diseñado por el arquitecto Pedro Adolfo de Castro y Besosa. Está pintado de color gris y blanco, tiene una torre coronada con un diseño escalonado, también tiene ventanas rectangulares y cuadradas.

Teatro Yagüez - Mayagüez - 2011 00013

Teatro Yagüez - Mayagüez - 2011 00013



Detalle del telón, la bambalina y los palcos del Teatro Yagüez, localizado entre las calles McKinley y Basora del municipio de Mayagüez. En este tramo del teatro resaltan las paredes de mármol y la yesería ornamental en el parapeto del palco y en el techo. Estos detalles ornamentales son del color blanco y contrastan con el rojo de la cortina del escenario y las paredes que dividen el área de los palcos. En su origen, en 1909, el teatro fue diseñado y construido de madera, acero y cinc, y se le conoció como la Casa del Arte Sonoro. El dueño original de este teatro fue Francisco Maymón Palmer. En el año 1919 un fuego consumió el edificio. En 1920 se llevó a cabo un nuevo diseño de estilo ecléctico, integrando materiales como el hormigón, la madera, el cristal, el mármol italiano y el yeso para las ornamentaciones. Durante la década de 1950 el teatro mostró signos de deterioro y en el periodo de 1977 a 1984 se llevaron a cabo trabajos de restauración bajo el auspicio del municipio de Mayagüez. Asimismo, durante el periodo de 2002 a 2008 se realizó una tercera restauración al teatro. Este teatro constituye uno de los principales escenarios artísticos y de gran valor histórico en el área oeste de Puerto Rico por acoger a importantes orquestas y compañías de drama y danza. Su arquitectura refleja elementos del neoclásico europeo, el neobarroco y de la arquitectura de principios del siglo XX que se conoció como la Belle Époque.

Calle de la Fortaleza 56 - Antigua Real Audiencia - Conservatorio De Artes Del Caribe - San Juan (Viejo San Juan) - 2011 00084

Calle de la Fortaleza 56 - Antigua Real Audiencia - Conservatorio De Artes Del Caribe - San Juan (Viejo San Juan) - 2011 00084



Antigua Real Audiencia, calle de la Fortaleza en el Viejo San Juan. Vista parcial, a través de una tela metálica, de la Torre Meteorológica y de Observación ubicada en el techo de la casa de dos pisos estilo colonial español. La torre octagonal fue construida en mampostería, acero y madera. La sección de mampostería tiene pequeños óculos en las paredes, de los cuales solo uno es visible, y una cornisa con ménsulas. Sobre ésta se encuentra el área de observación, que es de madera y consiste de una puerta y ventanas con celosías, está protegida por una baranda y tiene una cúpula de metal con un remate esférico. La torre tiene paredes amarillas, la cornisa es blanca, el área de observación es verde al igual que la baranda, y la cúpula tiene color marrón. Originalmente esta casa fue la residencia del Dr. Francisco Oller y Ferrer, abuelo del pintor Francisco Oller y Cestero. En 1831 fue vendida al Estado y el 1832 pasó a ser la primera sede de la Real Audiencia Territorial. Alrededor del 1898 fue arrendado al Departamento de Agricultura de Estados Unidos y en otro momento se usó como Departamento de Estado. En 1992 la edificación fue dedicada a Don Fernando Chardón. Luego de un periodo de abandono fue restaurada en el año 2000 y asignada a las oficinas de Guías Turísticos y de Programas Federales adscritos a la Oficina del Gobernador. La Torre Meteorológica y de Observación fue diseñada por el ingeniero Manuel Maese, la orden para su construcción fue emitida en 1883.

Calle de la Luna 101 - San Juan (Viejo San Juan) - 2012 00001

Calle de la Luna 101 - San Juan (Viejo San Juan) - 2012 00001



Calle de la Luna Número 101, en el Viejo San Juan. Fachada principal del edificio de dos pisos color verde claro cuyo diseño combina elementos de los estilos colonial español y neoclásico, vista desde el estacionamiento de la Catedral de San Juan. La fachada tiene siete arcos adintelados en cada piso. Los arcos están bordeados por molduras. Las molduras en el primer piso son simples, los vanos tiene rejas. Las molduras del segundo piso son más ornamentadas y tienen cornisas individuales. El centro de la fachada está compuesto por la entrada principal y sobre esta, una ventana fija con bloques de vidrio. La moldura que rodea este elemento tiene, a los lados, detalles en forma de abanico y de campanas. También tiene, sobre su cornisa individual un ornamento en forma de frontón con un abanico rodeado por volutas. Sobre el nivel de los arcos del segundo piso hay un friso ornamental, una cornisa, un parapeto con ornamentos cuadrados equidistantes y un frontón que tiene una pequeña ventana fija y moldura en forma de guirnalda. En el segundo piso hay dos balcones descubiertos que tienen barandas de hierro, cada uno se extiende frente a dos de los tres arcos que hay a cada lado. En una de las barandas hay un letrero de "Se Vende". Los dos arcos restantes, uno en cada extremos tienen antepechos, también con barandas de hierro. En primer plano se puede ver parte de la cerca con balaustrada del estacionamiento de la iglesia. Junto a la cerca hay un cobertizo de concreto con el frente abierto. En el estacionamiento hay dos automóviles. Al lado del edificio se ve parte de una de las paredes laterales el Hotel El Convento.

Casa en la Calle Cuevillas 607 - San Juan (Miramar) - 2014 00045

Casa en la Calle Cuevillas 607 - San Juan (Miramar) - 2014 00045



Edificio que forma parte de la casa en la calle Cuevillas 607, en Miramar, San Juan. Este edificio es de una planta y presenta una puerta y ventanas tipo persianas protegidas con rejas ornamentales. Al lado se encuentra un edificio más pequeño con una sola puerta y techo plano. Ambos son de color rosado con detalles de blanco. En la parte del frente se ubica una camioneta color rojo. Esta camioneta Studebaker, perteneció a Eduardo Méndez Bagur y sirvió como inspiración para el artista Miguel Luciano quien creó una obra que se alberga en el Museo de Arte y Diseño de Miramar. La casa en la calle Cuevillas 607 se construyó en 1913 siguiendo influencias del estilo resurgimiento del renacimiento francés o resurgimiento neoclásico francés. Sus dueños originales fueron el juez Luis Méndez Baz y su esposa, María Bagur. Tras visitar Francia, la pareja hizo construir su residencia siguiendo el diseño de un prototipo publicado en Nouvelles Maisons de Campagne, Paris et ses Environs, que mostraba fachadas y planos de casas de campo populares en París. Posteriormente la casa funcionó como residencia y taller para artistas como Lorenzo Homar, Juan Ramón Velázquez, Ada Bobonis y Aaron Salabarrías. Además, los herederos de los dueños originales establecieron una fundación para desarrollar un museo en esta residencia. Entre el 2018 y 2019 se llevó a cabo la restauración del edificio que dio lugar al establecimiento del Museo de Arte y Diseño de Miramar, también conocido como la Casa Rosada.

Edificio en la calle Méndez Vigo esquina calle Peral - La Bolsa - Mayagüez - 2011 00001

Edificio en la calle Méndez Vigo esquina calle Peral - La Bolsa - Mayagüez - 2011 00001



Fachada del edificio conocido como La Bolsa ubicado en la calle Méndez Vigo, esquina calle Peral del municipio de Mayagüez. Este edificio es de tres niveles de altura y su esquina tiene forma curvada o achaflanada. Además, combina elementos arquitectónicos de los estilos neoclásico, art déco y también integra ornamentos moriscos. La puerta principal es de doble hoja con paneles ornamentales y vidrio sobre el travesaño, al mismo tiempo está flanqueada por pilastras con acanaladuras verticales. En la parte superior de las pilastras se proyectan ménsulas con motivos de volutas que sirven como soporte y ornamento de los balcones voladizos con balaustradas que distinguen el segundo nivel. Este nivel también exhibe puertas y ventanas dobles, pilastras clásicas, ménsulas, cornisas y ornamentos de volutas. La transición del segundo al tercer nivel está acentuada por una serie de dentículos y una moldura. Las ventanas del tercer nivel también son de doble hoja con forma de arco y rectángulo, además, tienen molduras blancas. El borde superior del edificio se compone de ménsulas emparejadas que sostienen un alero. La superficie del edificio es de color azul claro con detalles de blanco. También es visible otro edificio de color rojo y rosado con balconeras y barandas de metal paralelo a la calle Peral. Asimismo, son notables varios automóviles y una persona a través de la calle Méndez Vigo. El edificio La Bolsa, testigo del auge comercial de Mayagüez en el siglo XX, también albergó el Casino Español de este municipio en sus dos plantas más altas.

Casilla de Camineros - Bayamón - 2011 00011

Casilla de Camineros - Bayamón - 2011 00011



Casilla de Camineros en la Carretera 2, km. 12.7 en Bayamón. Se observa la fachada principal de un edificio construido en mampostería y ladrillos y de estilo neoclásico colonial. Tiene paredes de roca caliza expuestas, cuatro huecos rectangulares adintelados con molduras rústicas que funcionan como ventanas y una puerta con un entablamento en el tope con letras color oro que leen: "Baya_ó_". El techo de hormigón muestra una cornisa con dentículos y un parapeto en estado de deterioro y plantas que sobresalen del borde. Se puede apreciar parte del patio donde hay varios árboles. Hay un muro de contención y una cerca de metal que bordean la propiedad. La casa está abandonada. Las Casillas de Camineros fueron construidas durante la última parte del siglo XIX a lo largo de las carreteras principales en Puerto Rico. Estas fueron las residencias de los camineros, trabajadores gubernamentales encargados de brindar mantenimiento a la superficie de la carretera. La mayoría de las casillas fueron abandonadas a finales del siglo XX y las que aún permanecen han enfrentado diferentes destinos. Muchas de ellas se han deteriorado o han sido demolidas y otras han sido destinadas a otros usos. Esta casilla es una de tres construidas en 1882 a lo largo de un tramo de la Carretera número 2 entre Bayamón y Mayagüez. Perteneció originalmente al Departamento de Transportación y Obras Públicas, quien luego la cedió al Instituto de Cultura para ser usada como museo y oficinas de la Cámara de Comercio de Bayamón.

Primera Iglesia Metodista Unida de Ponce - 2014 00006

Primera Iglesia Metodista Unida de Ponce - 2014 00006



Vista frontal y lateral de la primera iglesia metodista de Ponce ubicada en la calle Villa 135 del pueblo costero de Ponce. La iglesia es de un nivel en hormigón armado con características de varios estilos por lo que se considera ecléctica. El techo es a dos aguas de láminas de metal corrugado. La fachada tiene un aspecto rústico simulando bloques de mampostería y ventanas bajo arcos apuntados de madera con vidrieras de colores enmarcados con molduras salientes, varias puertas dobles de madera presididas por escalones y coronadas con travesaños de cristal. Ambas fachadas están coronadas con frontones curvos y decoradas con un rosetón, sostenidas por contrafuertes y acompañadas por zonas ajardinadas. Adosada a esta se alza la torre del campanario de base cuadrada dividida en dos tramos. La base tiene un aspecto rústico simulando bloques con vanos de entrada y vanos verticales enmarcados con molduras planas. El segundo tramo está sobre una cornisa saliente, es de menor tamaño y está construida con bloques de concreto. También tiene varios vanos verticales, rectangulares cornisas salientes y columnas decorativas. Además, tiene vanos semicirculares flanqueados por columnas compuestas que a su vez sostienen un entablamento corrido. Los vanos están cubiertos por rejillas y la torre está coronada con una cúpula en forma de bulbo y un remate esférico. La Iglesia Metodista de la Resurrección de Ponce fue construida en 1907 convirtiéndose en una de las primeras iglesias no católica romana construida después del cambio de soberanía en 1898 siendo un ejemplo de la libertad de culto. Tras el terremoto de 1918 la torre del campanario se tuvo que reconstruir utilizando el diseño de Francisco Porrata Doria, por lo que su diseño y materiales son diferentes al original. Años más tarde, en 1987 fue incluida en el Registro Nacional de Lugares Históricos.

Arsenal de La Marina en La Puntilla - San Juan (Viejo San Juan) - 2012 00004

Arsenal de La Marina en La Puntilla - San Juan (Viejo San Juan) - 2012 00004



Vista lateral de la capilla de las Madres Carmelitas en el antiguo Arsenal de La Marina Española en el barrio La Puntilla en el Viejo San Juan. El edificio es representativo del estilo neoclásico y fue construido en 1854. Está pintada de color rosado, gris, blanco y marrón. La entrada de la capilla tiene un pórtico formado por cuatro columnas toscanas con fuste no estriado que sostienen un entablamento y frontón triangular. En la parte inferior de las columnas se aprecian las basas, toros y plintos. En la esquina derecha del edificio se ven los vanos semicirculares y rectangulares de las ventanas y una ménsula ornamentada que sostiene un farol. En la parte superior se aprecian las cornisas y una cúpula semiesférica con linterna de color terracota. Adyacente a la capilla hay otro edificio de color gris, blanco y crema. La fachada tiene parapetos, cornisas, molduras semicirculares, pilastras y vanos de puertas. Frente a los edificios se observan árboles, arbustos, tres banquetas y parte de la fuente de agua. A distancia se encuentra el condominio La Puntilla. Este edificio está pintado de color crema y anaranjado, tiene los vanos de las ventanas en forma cuadrada y rectangular. En la imagen también se ve el cableado eléctrico de los postes de servicios. Posteriormente el Arsenal de la Marina Española se utilizó para exhibiciones y oficinas administrativas del Instituto de Cultura Puertorriqueña.

Edificio Moscoso Hermanos & Co - Edificio Municipal - Ponce - 2013 00003

Edificio Moscoso Hermanos & Co - Edificio Municipal - Ponce - 2013 00003



Vista lateral del edificio Moscoso Hermano & Co., está ubicado en el pueblo costero de Ponce. Es de dos niveles con un diseño achaflanado y características de los estilos neoclásico y de la arquitectura colonial española. Desde la plaza se ve que en el primer nivel hay puertas dobles de madera bajo arcos semicirculares enmarcados con molduras, flanqueados con pilastras y coronados con travesaños de vidrio pintado y espinazos. Además, hay ventanas dobles de madera bajo arcos rectangulares enmarcadas con molduras. El segundo nivel tiene puertas dobles de madera coronadas con travesaños de madera presididas por balconeras y balcones saledizos sostenidos por ménsulas decorativas. Tanto los balcones como las balconeras tienen barandas de hierro ornamental y están coronadas con un entablamento corrido sostenido por ménsulas decorativas. En adición, modulando la fachada hay pilastras acanaladas que se alzan hasta el segundo nivel y sostienen un entablamento corrido con molduras, cornisas, un friso decorativo y una inscripción que dice: “Moscoso Hermano & Co. Inc.”, “Edificio…”. Sobre el entablamento descansa una balaustrada que rodea el techo a modo de balcón abierto. Por otra parte, al extremo izquierdo hay un edificio adosado. El edificio Moscoso Hermano & Co. fue construido a principios del siglo XX. Originalmente fue utilizado como establecimiento comercial hasta hace unos años cuando fue restaurado y habilitado para albergar oficinas municipales del pueblo de Ponce.

Casa en la Calle Cuevillas 607 - San Juan (Miramar) - 2014 00001

Casa en la Calle Cuevillas 607 - San Juan (Miramar) - 2014 00001



Tramo central de la fachada principal de la casa en la calle Cuevillas 607, en Miramar, San Juan. El primer nivel exhibe puertas de doble hoja con lumbreras y vidrios, flanqueadas por pilastras. Una de las puertas está protegida con un panel de madera. Sobre la puerta del centro se proyecta un ornamento tipo "cartouche" y el número del edificio, 607. El segundo nivel se distingue por arcos tapiados acentuados con molduras, claves y pilastras. En los tramos laterales se presentan ventanas dobles con barandillas compuestas por rejas ornamentales. La fachada está ornamentada con detalles como rosetas, molduras, guirnaldas y motivos de conchas. El borde superior está acentuado por dentículos y una cornisa. El tramo central también se caracteriza por un tipo de frontón triangular. La casa está compuesta de mampostería, hormigón armado y madera. El color de la casa es rosado con los detalles ornamentales de blanco. Esta casa se construyó en 1913 siguiendo influencias del estilo resurgimiento del renacimiento francés o resurgimiento neoclásico francés. Sus dueños originales fueron el juez Luis Méndez Baz y su esposa, María Bagur. Tras visitar Francia, la pareja hizo construir su residencia siguiendo el diseño de un prototipo publicado en Nouvelles Maisons de Campagne, Paris et ses Environs, que mostraba fachadas y planos de casas de campo populares en París. Posteriormente la casa funcionó como residencia y taller para artistas como Lorenzo Homar, Juan Ramón Velázquez, Ada Bobonis y Aaron Salabarrías. Además, los herederos de los dueños originales establecieron una fundación para desarrollar un museo en esta residencia. Entre el 2018 y 2019 se llevó a cabo la restauración del edificio que dio lugar al establecimiento del Museo de Arte y Diseño de Miramar, también conocido como la Casa Rosada.

Arsenal de La Marina en La Puntilla - San Juan (Viejo San Juan) - 2012 00017

Arsenal de La Marina en La Puntilla - San Juan (Viejo San Juan) - 2012 00017



Vista parcial de una esquina de la fachada del antiguo Arsenal de La Marina Española, el edificio del United States Customs House, también conocido como la Aduana de San Juan y el Banco Popular de Puerto Rico en el Viejo San Juan. En el lado derecho de la imagen se aprecia el antiguo Arsenal de La Marina Española, su estilo arquitectónico es representativo del neoclásico, fue construido en 1800 y está pintado de color gris y blanco. Tiene un pórtico sostenido por columnas y un entablamento que contiene triglifos, frisos, metopas, cornisas y dentículos. Posteriormente el Arsenal de la Marina Española se utilizó para exhibiciones y oficinas administrativas del Instituto de Cultura Puertorriqueña. En el lado izquierdo de la imagen se localiza el edificio del United States Customs House, también conocido como la Aduana de San Juan. Su estilo arquitectónico es representativo del resurgimiento español y su construcción es obra del arquitecto Albert B. Nichols. Fue construido en 1924 y está pintado de color rosado, blanco y terracota. En la parte superior posee techo con tejas, un balcón sostenido por pilares y vanos de ventanas. En la parte inferior tiene dos vanos semicirculares con puertas a modo enrollable, cámaras de seguridad, lámparas de pared y un zafacón. La Aduana de San Juan fue incluida en el Registro Nacional de Lugares Históricos en 1988. A distancia se divisa la parte superior del Banco Popular de Puerto Rico. El edificio está pintado de color crema y es representativo del estilo art déco. Tiene ventanas con vanos rectangulares y cuadrados y una torre con un letrero que dice "Banco Popular". Fue diseñado por el arquitecto Chauncey W. Riley y construido por los ingenieros Juan M. Beltrán Carrasquillo, Manuel Miró y Saurí y José Benítez Gautier. En la imagen también se pueden ver una acera, calles, árboles y el cableado eléctrico de los postes de servicios.

Iglesia de San Jorge - San Juan (Condado) - 2014 00003

Iglesia de San Jorge - San Juan (Condado) - 2014 00003



Vista desde el interior de la Parroquia San Jorge ubicada en la comunidad de Condado del pueblo costero de San Juan. La iglesia es de dos niveles en hormigón con características del estilo neogótico pintada de color blanco y color gris. El interior está dividido en tres naves, la nave central se eleva un nivel adicional con techos abovedados. Las bóvedas son cuatripartitas unidas por espinazos pintados de color dorado, algunos de estos sirven como la base para las lámparas colgantes. Además, el claristorio tiene ventanas de cristal bajo arcos ojivales coronadas con vierteaguas y tracerías lobuladas. La nave central también tiene escudos en bajorrelieve y arcadas de arcos ojivales enmarcadas con molduras y flanqueadas por pilastras en pares que a su vez conectan con las separaciones de las bóvedas. Los espacios interiores también tienen varias filas de bancos de madera al igual que las naves laterales y puertas dobles de madera coronadas con vidrieras de colores. Al fondo, bajo un ábside semicircular se encuentra el altar presidido por una balaustrada y escaleras. Está decorado con ambones, un retablo al pie del cual está el sagrario y la mesa de altar cubierta por un mantel de tela. A ambos lados del retablo hay estatuas de representaciones religiosas sobre ménsulas semicirculares, sillas y jarrones decorativos. La iglesia San Jorge fue inaugurada en el año 1920 siendo oficialmente fundada canónicamente en 1924 tras ser desmembrada de las Parroquias San Mateo y Sagrado Corazón. Su diseño inicial estuvo a cargo de la firma Martínez y Lázaro siendo finalizado en dos años. Seis años después se comienza la construcción de los edificios aledaños a la academia San Jorge. Posteriormente en 1940 la fachada fue remodelada por el arquitecto Rafael Carmoega. Más recientemente en el año 2017 fue restaurada en fases por la firma Astrid Díaz: ADV Architects.

Casilla de Camineros - Bayamón - 2011 00025

Casilla de Camineros - Bayamón - 2011 00025



Casilla de Camineros en la Carretera 2, km. 12.7 en Bayamón. Detalle de la fachada principal de un edificio construido en mampostería y ladrillos y de estilo neoclásico colonial. Se observan paredes de roca caliza expuestas y parte de una puerta de entrada con entablamento y con dos letras color oro en el tope que leen: "BA_". La pared está dividida por una columna de ladrillos y enlucido de yeso. El techo tiene una cornisa con dentículos y un parapeto en estado de deterioro, así como plantas que sobresalen del borde y las paredes. El enlucido de la cornisa se ha desprendido, exponiendo los ladrillos. Se observa también una caja de instalación eléctrica conectada a un tubo sobre la columna. Las Casillas de Camineros fueron construidas durante la última parte del siglo XIX a lo largo de las carreteras principales en Puerto Rico. Estas fueron las residencias de los camineros, trabajadores gubernamentales encargados de brindar mantenimiento a la superficie de la carretera. La mayoría de las casillas fueron abandonadas a finales del siglo XX y las que aún permanecen han enfrentado diferentes destinos. Muchas de ellas se han deteriorado o han sido demolidas y otras han sido destinadas a otros usos. Esta casilla es una de tres construidas en 1882 a lo largo de un tramo de la Carretera número 2 entre Bayamón y Mayagüez. Perteneció originalmente al Departamento de Transportación y Obras Públicas, quien luego la cedió al Instituto de Cultura para ser usada como museo y oficinas de la Cámara de Comercio de Bayamón.

Casilla de Camineros - Bayamón - 2011 00037

Casilla de Camineros - Bayamón - 2011 00037



Casilla de Camineros en la Carretera 2, km. 12.7 en Bayamón. Vista lateral del edificio construido en mampostería y ladrillos, de estilo neoclásico colonial. Se observan paredes de roca caliza expuestas, cinco huecos rectangulares adintelados con molduras rústicas que funcionan como ventanas y una puerta. La puerta principal tiene un entablamento en el tope con letras color oro que leen: "Baya_ó_". Se puede notar humedad en las paredes y abandono en toda la casa. La pared termina en una base de piedra caliza y hormigón. El techo muestra una cornisa con dentículos y un parapeto, también en estado de deterioro, y algunas plantas creciendo en el borde. El piso del patio es de cemento y en algunas partes se nota agrietado. En primer plano se observan una caja plástica azul, alguna vegetación y árboles caídos. Las Casillas de Camineros fueron construidas durante la última parte del siglo XIX a lo largo de las carreteras principales en Puerto Rico. Estas fueron las residencias de los camineros, trabajadores gubernamentales encargados de brindar mantenimiento a la superficie de la carretera. La mayoría de las casillas fueron abandonadas a finales del siglo XX y las que aún permanecen han enfrentado diferentes destinos. Muchas de ellas se han deteriorado o han sido demolidas y otras han sido destinadas a otros usos. Esta casilla es una de tres construidas en 1882 a lo largo de un tramo de la Carretera número 2 entre Bayamón y Mayagüez. Perteneció originalmente al Departamento de Transportación y Obras Públicas, quien luego la cedió al Instituto de Cultura para ser usada como museo y oficinas de la Cámara de Comercio de Bayamón.

Condado Vanderbilt - San Juan (Condado) - 2013 00186

Condado Vanderbilt - San Juan (Condado) - 2013 00186



Vista del interior del Hotel Condado Vanderbilt ubicado en la avenida Ashford del pueblo costero de San Juan. El hotel es de varios niveles con características del estilo resurgimiento español. El vestíbulo tiene dos niveles con pisos de mármol en dos colores con motivo ajedrezado. Además, se puede ver una puerta doble de cristal y en medio unas escaleras en espiral. Las escaleras son de mármol negro con balaustradas de hierro oramental y pasamanos de madera. Al pie de esta hay una esfinge dorada sobre una base negra y una alfombra. El Hotel Condado Vanderbilt fue comisionado en 1917 por Frederick William Vanderbilt. Finalmente el 16 de octubre de 1919 fue inaugurado el primer gran hotel de lujo del Caribe. En el año 1930 fue vendido y pasó a llamarse Hotel Condado, posteriormente en 1940 se convirtió en el primer hotel en la isla en tener un casino. Además, en 1950 volvieron a cambiar su nombre a Condado Beach Hotel y se añadieron habitaciones, salones de actividades y un restaurante. Luego de considerar su demolición fue incluido en el Registro Nacional de Lugares Históricos en el año 1988. Más recientemente fue remodelado entre los años 2008 a 2014 por los arquitectos Thomas S. Marvel y José Marchand Sifre añadiendo dos torres de suites modernas. Además, la planificación y restauración de los espacios estuvo a cargo del Arquitecto Jonathan Parks y la firma SOLSTICE Planning and Architecture. Los diseños interiores estuvieron a cargo del diseñador Jorge Roselló.

Casa Dr. Bailey K. Ashford - San Juan (Condado) - 2011 00001

Casa Dr. Bailey K. Ashford - San Juan (Condado) - 2011 00001



Vista de la antigua residencia del Dr. Bailey K. Ashford ubicada en el sector de Condado del pueblo costero de San Juan. La casa es de un nivel en madera y concreto con características de los estilos victoriano y renacimiento neoclásico. La fachada frontal está presidida por un balcón rodeado por una balaustrada de madera modulada por columnas acanaladas de orden corintio. La entrada al balcón es a través de unas escaleras. Por otra parte, en el interior del balcón se puede ver el piso cubierto por losas criollas, tres puertas dobles de madera y paneles de vidrio pintado enmarcadas con molduras planas. Además, la fachada lateral tiene ventanas de madera con vidrio pintado y modillones de madera expuestos. El techo está revestido por tejas y en la fachada frontal tiene una buhardilla con ventana doble de madera presidida por un antepecho. Por otra parte, los alrededores de la casa tienen zonas ajardinadas y aceras de mampostería. La antigua residencia del Dr. Bailey K. Ashford quien dejó un legado significativo por su contribución a la salud pública por medio de sus innovadoras investigaciones, protocolos y políticas de salud pública fue construida en el año 1914. Fue utilizada como residencia hasta 1934, en el año 1996 el Fideicomiso de Conservación se planteó la restauración y ampliación de la casa manteniendo su diseño original. A partir del año 2015 es un museo llamado “Casa Cultural Dr. Bailey K. Ashford. Además, fue incluida en el Registro Nacional de Lugares Históricos en el año 2022.

Hacienda Santa Ana - Bayamón - 2011 00017

Hacienda Santa Ana - Bayamón - 2011 00017



Hacienda Santa Ana en Bayamón. Vista de la fachada posterior de la casona de la Hacienda. El edificio es de dos niveles construido en mampostería de ladrillos con un estilo arquitectónico ecléctico. Se observa un volumen rectangular con techo a cuatro aguas de láminas de zinc frente a la pared lateral de la casona. El techo sobresale formando un alero que sostiene tubería para el desagüe. También tiene tres ventanas de doble hoja con celosías en el segundo piso y dos huecos rectangulares para la ventilación en el primero. A la izquierda se puede ver una escalera y una terraza techada y rejas de hierro. En la parte derecha se observan dos ventanas más de madera, un tejadillo sobre ellas y parte de un balcón. Hay otra puerta de madera y las paredes muestran manchas de humedad, así como una banda roja en todo alrededor. El patio está cubierto de grama. La Casona de la Hacienda Santa Ana reside en terrenos conferidos en 1787 por el rey Carlos III al capitán Fernando Fernández, corsario español que rendía servicios a la corona. A partir de 1804, el capitán comenzó a sembrar caña de azúcar y a destilar ron en la propiedad para su uso personal, pero no fue hasta 1880 cuando su bisnieto Pedro Fernández y su hijo Edmundo desarrollaron la fórmula y el proceso de destilación del conocido Ron del Barrilito. Además de la casona, la Hacienda abarca la tonelería, el trapiche, el área de añejamiento y el área de embotellamiento y empaque. Estas instalaciones, que también sirven como museo, continúan produciendo el popular ron, así como el alcoholado medicinal Santa Ana.

Capilla Nuestra Señora de Lourdes - San Juan (Miramar) - 2011 00115

Capilla Nuestra Señora de Lourdes - San Juan (Miramar) - 2011 00115



Perspectiva de la nave principal y el altar de la Capilla Nuestra Señora de Lourdes, en Miramar, San Juan. La nave principal se caracteriza por tener el piso cubierto con losas nativas o isleñas que forman un motivo geométrico en tonalidades de rojo y blanco. Además, en esta nave se encuentran las sillerías de madera y los reclinatorios. Las ventanas consisten de tres paneles con vitrales y tracerías. La plataforma del altar está articulada por piezas de madera tipo parqué. En el altar también se encuentra una mesa y un ambón, mientras que en las paredes son visibles representaciones de la iconografía cristiana católica como lo son las estaciones del Vía Crucis. El techo es de madera, dispuesto a dos aguas y con cerchas desde las que cuelgan lámparas tipo arañas. La construcción de la Capilla Nuestra Señora de Lourdes se inició en 1907 y su inauguración tuvo lugar en 1908. Este edificio es representativo de las iglesias protestantes que se establecieron en Puerto Rico tras el cambio de régimen en 1898. Fue el primer templo de la Iglesia Metodista Episcopal de Puerto Rico, luego, en 1917, pasó a manos de la Iglesia Unida de Puerto Rico y finalmente, a la Iglesia Católica Romana, adscrita a la arquidiócesis de San Juan en 1959. Su diseño y características corresponden al estilo neogótico o resurgimiento gótico. Este diseño, además, imita a un edificio de la Iglesia Episcopal en la calle North Market, en Jacksonville Florida, donde su arquitecto tenía su residencia entonces.

Molino de viento (1827) - Hacienda Santa Ana - 2011 00009

Molino de viento (1827) - Hacienda Santa Ana - 2011 00009



Hacienda Santa Ana en Bayamón. Vista frontal del antiguo molino de viento de la Hacienda. Este molino construido con ladrillos, y mejor conocido como trapiche, data de 1827 y es uno de los más antiguos en la isla. Se observa una escalera de piedra a la que le han instalado pasamanos de tubo de metal. La escalera conduce a la estrada principal que consiste en un arco de medio punto con puerta de madera de doble hoja y un montante de sol trunco con las iniciales "EBF". Sobre el arco hay un óculo que tiene una placa y una inscripción. En el tope de la torre hay un parapeto con diseño almenado desde donde bajan manchas de humedad u hollín. Al fondo se pueden ver una caseta, un automóvil y un poste de tendido eléctrico con transformador. Esta torre fue acondicionada para utilizarse como oficina. La Casona de la Hacienda Santa Ana reside en terrenos conferidos en 1787 por el rey Carlos III al capitán Fernando Fernández, corsario español que rendía servicios a la corona. A partir de 1804, el capitán comenzó a sembrar caña de azúcar y a destilar ron en la propiedad para su uso personal, pero no fue hasta 1880 cuando su bisnieto Pedro Fernández y su hijo Edmundo desarrollaron la fórmula y el proceso de destilación del conocido Ron del Barrilito. Además de la casona, la Hacienda abarca la tonelería, el trapiche, el área de añejamiento y el área de embotellamiento y empaque. Estas instalaciones, que también sirven como museo, continúan produciendo el popular ron, así como el alcoholado medicinal Santa Ana.

Calle de la Fortaleza 56 - Antigua Real Audiencia - Conservatorio De Artes Del Caribe - San Juan (Viejo San Juan) - 2011 00056

Calle de la Fortaleza 56 - Antigua Real Audiencia - Conservatorio De Artes Del Caribe - San Juan (Viejo San Juan) - 2011 00056



Antigua Real Audiencia, calle de la Fortaleza en el Viejo San Juan. Vista parcial de la fachada de la casa de dos pisos estilo colonial español. Se observa, en detalle la placa conmemorativa ubicada junto a la entrada principal. La placa tiene la imagen en relieve de Don Fernando Chardón y la siguiente inscripción: "ESTADO LIBRE ASOCIADO DE PUERTO RICO OFICINA ESTATAL DE PRESERVACION HISTORICA OFICINA DEL GOBERNADOR EDIFICIO DE LA ANTIGUA REAL AUDIENCIA Y DEPARTAMENTO DE ESTADO DEDICADO A DON FERNANDO CHARDON Don Ferando Chardón Palacios nace el 5 de septiembre de 1907 en Ponce, Puerto Rico, hijo de Don Carlos Félix Chardón y Doña Isabel Palacios Pellecier. Cursa sus estudios primarios y secundarios en Ponce, trasladándonse luego a la Universidad de Cornell en Ithaca, Nueva York, donde obtiene 1928 un bachillerato en Ciencias Agrícolas. En ese mismo año ingresa como Teniente de Infantería de la Reserva del Estado Mayor, llegando a alcanzar los rangos de Jefe de Batallón y Segundo Jefe del Regimiento 296 de Infantería. Se retira del Servicio Militar con el rango de Coronel en 1967 siendo llamado nuevamente al servicio en 1973 por el Gobernador, Hon. Rafael Hernández Colón con el rango de Ayudante General de la Guardia Nacional de Puerto Rico. Su vida civil se caracterizó por una participación activa como deportista y servidor público. Trabajó en la Estación Experimental Agrícola de la Universidad de Puerto Rico y en la industria azucarera, siendo por muchos años secretario de la Asociación de Productores de Azúcar. Aceptó el cargo de Secretario de Estado bajo la gobernación de Don Luis A. Ferré dese 1962 a 1972. Como deportista, fue campeón de esgrima de Puerto Rico en 1934. También en el tiro con fusil, ganando el campeonato en 1936. En su tiempo libre se dedicaba a la investigación histórica, especialmente sobre asuntos militares. Fallece el 9 de diciembre de 1981. Durante su trayectoria profesional fue considerado siempre como un hombre de firmes valores morales y de gran hidalguía y nobleza de comportamiento. HON. RAFAEL HERNANDEZ COLON GOBERNADOR 1992". Originalmente esta casa fue la residencia del Dr. Francisco Oller y Ferrer, abuelo del pintor Francisco Oller y Cestero. En 1831 fue vendida al Estado y el 1832 pasó a ser la primera sede de la Real Audiencia Territorial. Alrededor del 1898 fue arrendada al Departamento de Agricultura de Estados Unidos y en otro momento se usó como Departamento de Estado. En 1992 la edificación fue dedicada a Don Fernando Chardón. Luego de un periodo de abandono fue restaurada en el año 2000 y asignada a las oficinas de Guías Turísticos y de Programas Federales adscritos a la Oficina del Gobernador. La Torre Meteorológica y de Observación fue diseñada por el ingeniero Manuel Maese, la orden para su construcción fue emitida en 1883.

Condado Vanderbilt - San Juan (Condado) - 2013 00065

Condado Vanderbilt - San Juan (Condado) - 2013 00065



Vista del patio trasero del Hotel Condado Vanderbilt ubicado en la avenida Ashford del pueblo costero de San Juan. El hotel es de varios niveles con techo a cuatro aguas revestido por tejas y características del estilo resurgimiento español. El patio trasero tiene el piso cubierto por baldosas de cerámica. Además, está rodeado por una balaustrada de cristal modulada por pilares cuadrados que a su vez presiden la costa del océano atlántico. En el patio hay plantas en macetas decorativas, muebles de jardín, mesas con sombrillas a juego y remates decorativos con formas cónicas. Por otra parte, la parte trasera del edificio tiene una extensión moderna con amplios ventanales de cristal interrumpidos por columnas cuadradas. También se pueden ver un extremo de una de las torres laterales del hotel con ventanas dobles enmarcadas con molduras y balcones con balaustradas de cristal dentro de los cuales hay puertas enmarcadas con molduras. El Hotel Condado Vanderbilt fue comisionado en 1917 por Frederick William Vanderbilt. Finalmente el 16 de octubre de 1919 fue inaugurado el primer gran hotel de lujo del Caribe. En el año 1930 fue vendido y pasó a llamarse Hotel Condado, posteriormente en 1940 se convirtió en el primer hotel en la isla en tener un casino. Además, en 1950 volvieron a cambiar su nombre a Condado Beach Hotel y se añadieron habitaciones, salones de actividades y un restaurante. Luego de considerar su demolición fue incluido en el Registro Nacional de Lugares Históricos en el año 1988. Más recientemente fue remodelado entre los años 2008 a 2014 por los arquitectos Thomas S. Marvel y José Marchand Sifre añadiendo dos torres de suites modernas. Además, la planificación y restauración de los espacios estuvo a cargo del Arquitecto Jonathan Parks y la firma SOLSTICE Planning and Architecture. Los diseños interiores estuvieron a cargo del diseñador Jorge Roselló.

Condado Vanderbilt - San Juan (Condado) - 2013 00033

Condado Vanderbilt - San Juan (Condado) - 2013 00033



Vista del interior del Hotel Condado Vanderbilt ubicado en la avenida Ashford del pueblo costero de San Juan. El hotel es de varios niveles con características del estilo resurgimiento español. El salón de actividades tiene el piso cubierto por una alfombra con patrones florales en colores difusos. El techo está dividido por vigas y decorado con lámparas colgantes de vidrio. Por otra parte, la pared de fondo tiene un espejo semicircular enmarcado. La nave lateral está separada a través de vanos semicirculares coronados con entablamentos y flanqueados por lámparas de pared a ajuego con las del techo. Además, se pueden ver dos puertas dobles de cristal cubiertas por cortinas de tela bajo arcos semicirculares. El Hotel Condado Vanderbilt fue comisionado en 1917 por Frederick William Vanderbilt. Finalmente el 16 de octubre de 1919 fue inaugurado el primer gran hotel de lujo del Caribe. En el año 1930 fue vendido y pasó a llamarse Hotel Condado, posteriormente en 1940 se convirtió en el primer hotel en la isla en tener un casino. Además, en 1950 volvieron a cambiar su nombre a Condado Beach Hotel y se añadieron habitaciones, salones de actividades y un restaurante. Luego de considerar su demolición fue incluido en el Registro Nacional de Lugares Históricos en el año 1988. Más recientemente fue remodelado entre los años 2008 a 2014 por los arquitectos Thomas S. Marvel y José Marchand Sifre añadiendo dos torres de suites modernas. Además, la planificación y restauración de los espacios estuvo a cargo del Arquitecto Jonathan Parks y la firma SOLSTICE Planning and Architecture. Los diseños interiores estuvieron a cargo del diseñador Jorge Roselló.

Edificio Oliver - Arecibo - 2012 00010

Edificio Oliver - Arecibo - 2012 00010



Vista de cerca del edificio Oliver en el pueblo costero de Arecibo. El edificio es de tres niveles con características del estilo neoclásico en concreto armado. La fachada lateral se divide en varios tramos horizontalmente, la planta base y dos plantas superiores. La planta base tiene entradas bajo arcos semicirculares enmarcados con molduras. Además, los arcos están cubiertos por rejas metálicas. El segundo nivel tiene puertas dobles de madera con persianas rectangulares y marcos planos. Las puertas conducen a balcones con balaustres sostenidos por ménsulas decorativas. Flanqueando los balcones hay pilastras acanaladas sostenidas por una cornisa corrida y bajo las cuales hay una serie de cabezas de leones en relieve. El edificio Oliver fue construido en 1914 con fines comerciales y residenciales. Está cimentado en el mismo lugar que en 1765 el gobierno español construyó la Casa del Rey hasta 1913 cuando fue demolida. Este innovador edificio fue el primero en incorporar espacios de vivienda y establecimiento comercial. También fue el primer edificio construido en el pueblo con una entrada achaflanada. Además, su diseño ricamente ornamentado adopta características de la Escuela de Bellas Artes y el estilo tradicional español. A través de los años ha sido utilizado cómo espacio residencial, comercial y sede de varios consulados extranjeros que ocupaban el primer nivel. Fue restaurado en la década de 1980 y todos los espacios asignados para vivienda se convirtieron en espacios comerciales.

Calle de la Fortaleza 56 - Antigua Real Audiencia - Conservatorio De Artes Del Caribe - San Juan (Viejo San Juan) - 2011 00035

Calle de la Fortaleza 56 - Antigua Real Audiencia - Conservatorio De Artes Del Caribe - San Juan (Viejo San Juan) - 2011 00035



Antigua Real Audiencia, calle de la Fortaleza en el Viejo San Juan. Vista parcial de la fachada de la casa de dos pisos estilo colonial español. Se observa, la entrada principal, ubicada en el centro. Tiene una puerta de doble hoja de madera ranurada que tiene seis hileras de clavos de hierro, Dos aldabas y cerradura de doble palanca. Una moldura continua en la base de la pared se extiende alrededor de la puerta. La entrada tiene tres escalones. Se puede ver la parte inferior del balcón del segundo piso. También es visible parte de un placa conmemorativa a un lado de la entrada. La acera tiene losetas con textura de piedra y la calle está pavimentada con adoquines. Originalmente esta casa fue la residencia del Dr. Francisco Oller y Ferrer, abuelo del pintor Francisco Oller y Cestero. En 1831 fue vendida al Estado y en 1832 pasó a ser la primera sede de la Real Audiencia Territorial. Alrededor del 1898 fue arrendado al Departamento de Agricultura de Estados Unidos y en otro momento se usó como Departamento de Estado. En 1992 la edificación fue dedicada a Don Fernando Chacón. Luego de un periodo de abandono fue restaurada en el año 2000 y asignada a las oficinas de Guías Turísticos y de Programas Federales adscritos a la Oficina del Gobernador. La Torre Meteorológica y de Observación fue diseñada por el ingeniero Manuel Maese, la orden para su construcción fue emitida en 1883.

Calle de la Fortaleza 56 - Antigua Real Audiencia - Conservatorio De Artes Del Caribe - San Juan (Viejo San Juan) - 2011 00053

Calle de la Fortaleza 56 - Antigua Real Audiencia - Conservatorio De Artes Del Caribe - San Juan (Viejo San Juan) - 2011 00053



Antigua Real Audiencia, calle de la Fortaleza en el Viejo San Juan. Vista parcial de la fachada de la casa de dos pisos estilo colonial español. En el primer nivel se observan cuatro arcos adintelados: la entrada principal en el centro, dos ventanas a un lado y una ventana al otro lado. La entrada tiene tres escalones. Las ventanas tienen antepechos de balaustres de madera y sobre cada una hay un óculo ovalado. Una moldura continua se extiende sobre la base del edificio y alrededor de la entrada. A los lados de la entrada hay dos lámparas de techo tipo farol y bajo una de la lámparas hay una placa conmemorativa. Un extenso balcón abierto con balaustrada de madera une los cinco vanos del segundo nivel, de los cuales solo cuatro son visibles. Cada vano tiene una puerta de doble hoja con celosías y paneles de vidrio en la parte superior. La casa tiene una hilada seguida por una cornisa delgada y un parapeto liso con moldura en el borde. Se puede ver uno de los extremos de la fachada del Palacio Rojo. Originalmente esta casa fue la residencia del Dr. Francisco Oller y Ferrer, abuelo del pintor Francisco Oller y Cestero. En 1831 fue vendida al Estado y el 1832 pasó a ser la primera sede de la Real Audiencia Territorial. Alrededor del 1898 fue arrendado al Departamento de Agricultura de Estados Unidos y en otro momento se usó como Departamento de Estado. En 1992 la edificación fue dedicada a Don Fernando Chardón. Luego de un periodo de abandono fue restaurada en el año 2000 y asignada a las oficinas de Guías Turísticos y de Programas Federales adscritos a la Oficina del Gobernador. La Torre Meteorológica y de Observación fue diseñada por el ingeniero Manuel Maese, la orden para su construcción fue emitida en 1883.

Casilla de Camineros - Bayamón - 2011 00031

Casilla de Camineros - Bayamón - 2011 00031



Casilla de Camineros en la Carretera 2, km. 12.7 en Bayamón. Vista lateral del edificio construido en mampostería y ladrillos, de estilo neoclásico colonial. Se observan paredes de roca caliza expuestas y cuatro huecos rectangulares adintelados con molduras rústicas que funcionan como ventanas. El techo de hormigón muestra una cornisa con dentículos y un parapeto en estado de deterioro y algunas plantas creciendo en el borde. Algunas partes del enlucido en la cornisa y la columna al borde del edificio se han desprendido exponiendo los ladrillos. El piso del patio exterior está cubierto de cemento. Al fondo se pueden ver algunos árboles. Las Casillas de Camineros fueron construidas durante la última parte del siglo XIX a lo largo de las carreteras principales en Puerto Rico. Estas fueron las residencias de los camineros, trabajadores gubernamentales encargados de brindar mantenimiento a la superficie de la carretera. La mayoría de las casillas fueron abandonadas a finales del siglo XX y las que aún permanecen han enfrentado diferentes destinos. Muchas de ellas se han deteriorado o han sido demolidas y otras han sido destinadas a otros usos. Esta casilla es una de tres construidas en 1882 a lo largo de un tramo de la Carretera número 2 entre Bayamón y Mayagüez. Perteneció originalmente al Departamento de Transportación y Obras Públicas, quien luego la cedió al Instituto de Cultura para ser usada como museo y oficinas de la Cámara de Comercio de Bayamón.

Bastión de las Palmas de San José - San Juan (Viejo San Juan) - 2013 00010

Bastión de las Palmas de San José - San Juan (Viejo San Juan) - 2013 00010



Bastión de las Palmas de San José, localizado en la esquina de las calles Tetuán y San José en el Viejo San Juan. Fue construido en el siglo XVII, en 1625 luego del ataque holandés al Viejo San Juan. La imagen fue tomada en la noche y en ella se aprecia una muralla de mampostería de piedra y ladrillo. Se observa la parte superior de una garita que tiene una cúpula semiesférica, cornisas y clave. Se aprecia una baranda, escalones con ladrillos, árboles, un pasamanos, tres banquetas, farolas y dos sillas esculpidas con la figura de un gato. Posteriormente el Bastión de las Palmas de San José se convirtió en un parque. En el lado derecho hay un edificio alto pintado de una tonalidad marrón y blanco. La parte superior tiene cornisas, ventanas con arcadas y molduras blancas. De igual forma se divisa la fachada lateral del antiguo Hospital de la Concepción, que posteriormente pasó a ser el Convento y Casa de Salud Siervas de María. El edificio está pintado de color crema y blanco. Tiene parapetos, cornisas y vanos de ventanas. En el lado izquierdo se encuentra la torre con cúpula ubicada en la parte superior de la antigua cárcel La Princesa. Este edificio fue construido en 1837 y fue utilizado como cárcel hasta 1976 cuando fue cerrada por problemas estructurales. En 1992 el gobierno de Puerto Rico la restauró para ser la sede de la Compañía de Turismo de Puerto Rico. Esta restauración estuvo a cargo del arquitecto Miguel Carlo. A distancia se encuentra la bahía de San Juan y la costa de los municipios de Toa Baja y Cataño.

Calle de la Fortaleza 56 - Antigua Real Audiencia - Conservatorio De Artes Del Caribe - San Juan (Viejo San Juan) - 2011 00

Calle de la Fortaleza 56 - Antigua Real Audiencia - Conservatorio De Artes Del Caribe - San Juan (Viejo San Juan) - 2011 00



Antigua Real Audiencia, calle de la Fortaleza en el Viejo San Juan. Vista parcial del techo de la casa de dos pisos estilo colonial español. Se observa la parte superior de la Torre Meteorológica y de Observación, la torre octagonal fue construida en mampostería, acero y madera. La sección de mampostería tiene pequeños óculos en las paredes y una cornisa con ménsulas. Sobre ésta se encuentra el área de observación, que es de madera y consiste de una puerta y ventanas con celosías, está protegida por una baranda y tiene una cúpula de metal con un remate esférico. La torre tiene paredes amarillas, la cornisa es blanca, el área de observación es verde al igual que la baranda y la cúpula tiene color marrón. Originalmente esta casa fue la residencia del Dr. Francisco Oller y Ferrer, abuelo del pintor Francisco Oller y Cestero. En 1831 fue vendida al Estado y el 1832 pasó a ser la primera sede de la Real Audiencia Territorial. Alrededor del 1898 fue arrendado al Departamento de Agricultura de Estados Unidos y en otro momento se usó como Departamento de Estado. En 1992 la edificación fue dedicada a Don Fernando Chardón. Luego de un periodo de abandono fue restaurada en el año 2000 y asignada a las oficinas de Guías Turísticos y de Programas Federales adscritos a la Oficina del Gobernador. La Torre Meteorológica y de Observación fue diseñada por el ingeniero Manuel Maese, la orden para su construcción fue emitida en 1883.

Hacienda Santa Ana - Bayamón - 2011 00016

Hacienda Santa Ana - Bayamón - 2011 00016



Hacienda Santa Ana en Bayamón. Perspectiva de la fachada lateral de la casona de la Hacienda. El edificio es de dos niveles construido en mampostería de ladrillos con un estilo arquitectónico ecléctico. Se observa un volumen rectangular con techo a cuatro aguas de láminas de zinc frente a la pared lateral de la casona. El techo sobresale formando un alero que sostiene tubería para el desagüe. También tiene una puerta de entrada de madera en el primer nivel y ventanas de doble hoja con celosías en el segundo. En la pared lateral de la casona se observan dos ventanas más de madera y un tejadillo sobre ellas. Hay otra puerta de madera y las paredes muestran manchas de humedad. El patio está cubierto de grama. La Casona de la Hacienda Santa Ana reside en terrenos conferidos en 1787 por el rey Carlos III al capitán Fernando Fernández, corsario español que rendía servicios a la corona. A partir de 1804, el capitán comenzó a sembrar caña de azúcar y a destilar ron en la propiedad para su uso personal, pero no fue hasta 1880 cuando su bisnieto Pedro Fernández y su hijo Edmundo desarrollaron la fórmula y el proceso de destilación del conocido Ron del Barrilito. Además de la casona, la Hacienda abarca la tonelería, el trapiche, el área de añejamiento y el área de embotellamiento y empaque. Estas instalaciones, que también sirven como museo, continúan produciendo el popular ron, así como el alcoholado medicinal Santa Ana.

Iglesia de San Jorge - San Juan (Condado) - 2014 00063

Iglesia de San Jorge - San Juan (Condado) - 2014 00063



Vista lateral y trasera de la Parroquia San Jorge ubicada en la comunidad de Condado del pueblo costero de San Juan. La iglesia es de dos niveles en hormigón con características del estilo neogótico pintada de color gris y color blanco con techo a dos aguas revestido por tejas. Desde la fachada lateral se pueden ver varias ventanas de claristorios bajo arcos ojivales coronadas con vierteaguas y tracerías. En la parte de abajo de las ventanas hay conductos de aire acondicionados. También se puede ver un extremo de unas escaleras metálicas. En la parte frontal adosada al edificio está la torre del campanario la cual se eleva varios niveles adicionales y tiene una forma piramidal. Desde el segundo nivel se ve que tiene una moldura plana con forma de diamante que enmarca una ventana de cristal pintado y flanqueada por contrafuertes. La parte de arriba de la torre del campanario tiene ventanas bajo arcos ojivales decorados con cresterías, vierteaguas y parteluces. Sobre las ventanas se ven dos emblemas a cada lado, gárgolas y ornamentación en bajorrelieve. Además, de que la parte superior está acompañada por varios contrafuertes que se alzan y a su vez sostienen pináculos ornamentados. Por otra parte, en los alrededores a la iglesia se pueden ver edificios con diferentes características. La iglesia San Jorge fue inaugurada en el año 1920 siendo oficialmente fundada canónicamente en 1924 tras ser desmembrada de las Parroquias San Mateo y Sagrado Corazón. Su diseño inicial estuvo a cargo de la firma Martínez y Lázaro siendo finalizado en dos años. Seis años después se comienza la construcción de los edificios aledaños a la academia San Jorge. Posteriormente en 1940 la fachada fue remodelada por el arquitecto Rafael Carmoega. Más recientemente en el año 2017 fue restaurada en fases por la firma Astrid Díaz: ADV Architects.

Antiguo Acueducto de Río Piedras - Documentación Aérea - San Juan (Río Piedras) - 2013 00015

Antiguo Acueducto de Río Piedras - Documentación Aérea - San Juan (Río Piedras) - 2013 00015



Vista aérea de la casa de bombeo, la casa de filtros y bombas, la residencia de ingenieros y cuidadores y la casa de llaves y esclusas que forman parte del sitio del antiguo acueducto de Río Piedras, en San Juan. Estos edificios reflejan los estilos arquitectónicos de la historia del sitio, entre estos el colonial español, renacimiento clásico y neoclásico. La casa de bombeo es un edificio de mampostería de piedra caliza y ladrillo enyesado, de un piso y con cubierta a dos aguas con paneles de metal corrugado o cinc, diseñado en 1892 por Henry Thomas Granger. Una chimenea de ladrillo con forma cónica octogonal de una altura de 80 pies con elementos neoclásicos se encuentra en la elevación este de la casa de bombeo. La casa de filtros y bombas es un edificio de hormigón armado, de un nivel con forma de "L" y cubierta plana. Este edificio fue diseñado por Carlos del Valle Zeno y construido en 1923 en sustitución de un edificio de madera previo. Al lado, se ubica la residencia de ingenieros y cuidadores diseñada por Fernando Alameda en 1887. Su construcción tuvo lugar entre 1892 y 1894 y se emplearon materiales como la piedra caliza y mampostería. Este edificio, de estilo colonial español, es de una planta rectangular, de un solo piso y una cubierta plana. Después de 1923 el edificio fue alterado para acomodar nuevos usos, entre estos, funcionó como almacén y posteriormente como laboratorio de calidad del agua desde 1923-1980. Al fondo es visible parcialmente la casa de llaves y esclusas de una planta rectangular, constituido de mampostería de piedra y ladrillos y de estilo colonial español. En un tramo de su fachada exhibe tres aberturas arqueadas. Este edificio de 1894-1896, fue diseñado por Arturo Guerra, basado en el esquema original de Fernando Alameda en 1887 y funcionó como punto de distribución del agua cruda de la presa hasta los estanques de sedimentación. La planificación del histórico Acueducto de Río Piedras inició en 1846 mediante una serie de propuestas y su construcción inició a partir de 1892 con periodos de construcción adicionales que continuaron hacia el temprano siglo XX. La planta operó desde el tardío siglo XIX hasta la década de 1980. El sitio ha estado vacante desde 1980 y es propiedad del Fideicomiso de Conservación de Puerto Rico y está dirigido por la organización local sin fines de lucro "Para La Naturaleza" que utiliza el sitio para actividades de educación ambiental.

Catedral de Nuestra Señora de la Guadalupe - Ponce - 2014 00022

Catedral de Nuestra Señora de la Guadalupe - Ponce - 2014 00022



Vista de una de las torres de la Catedral de Nuestra Señora de la Guadalupe ubicada en el pueblo costero de Ponce. La catedral es de dos niveles en mampostería y ladrillo con características del estilo Neoclásico. La torre del campanario es de base cuadrada y muestra ventanas dobles de madera bajo arcos semicirculares que a su vez están enmarcados con molduras, coronados con espinazos y entablamentos. Además, están flanqueados por pares de columnas acanaladas que sostienen el entablamento. El siguiente tramo de la torre es hexagonal y está decorado con cornisas, molduras, un friso con guirnaldas y ánforas. Por último, la cúpula muestra óculos de vidrio pintado enmarcados con molduras. A su vez, la cúpula está coronada con una linterna de aberturas semicirculares y una cruz. Desde el techo también se distingue una estatua junto a la torre y edificios en los alrededores. Los inicios de la Catedral de Nuestra Señora de la Guadalupe datan de 1670 cuando apenas era una ermita de yagua y palma, fue clausurada en 1820 por las malas condiciones del edificio. El comienzo de la construcción de la iglesia actual data de 1835 y fue inaugurada en 1839. Sin embargo, el terremoto de 1918 destruyó ambas torres por lo que pasó a ser reconstruida con un diseño nuevo entre 1918 y 1937. Años más tarde, en 1984 fue incluida en el Registro Nacional de Lugares Históricos. Posteriormente fue restaurada nuevamente en 1992.

Casa en la calle Villa - Residencia Toro-Cortada - Antiguo Centro Español - Ponce - 2014 00002

Casa en la calle Villa - Residencia Toro-Cortada - Antiguo Centro Español - Ponce - 2014 00002



Vista frontal de casa en la calle Villa del pueblo costero de Ponce. La casa es de dos niveles en mampostería de ladrillo con características del estilo neoclásico. En primer plano hay vehículos estacionados en la calle. La fachada frontal tiene un pórtico presidido por escaleras con entrada bajo un arco semicircular enmarcado con molduras planas y flanqueado por columnas que a su vez sostienen un entablamento. Además, a ambos lados del pórtico hay balcones con vanos rectangulares coronados con entablamentos, balaustradas sostenidas por columnas cuadradas acanaladas que a su vez sostienen una cornisa corrida y el balcón abierto del segundo nivel. También tiene una balaustrada modulada por pilares cuadrados con remates esféricos. En adición, el segundo nivel tiene ventanas rectangulares coronadas con entablamentos acompañados por molduras ornamentales, dentículos y acróteras. Entre las ventanas hay pilastras de almohadillado que a su vez sostienen un entablamento corrido acompañado por dentículos, friso ornamental y una cornisa corrida sobre la cual descansa una balaustrada modulada por pilares cuadrados con remates esféricos. El friso está interrumpido en medio por un frontón semicircular. La residencia conocida como Casa Toro Cortada y Antiguo Centro Español fue construida en 1911. Posteriormente en 1961 fue vendida y convertida en centro social permaneciendo en uso continuo hasta 1970 cuando pasó a manos de la Oficina del Fondo de Seguro del Estado hasta 1989.

Hacienda Santa Ana - Bayamón - 2022

Hacienda Santa Ana - Bayamón - 2022



Hacienda Santa Ana en Bayamón. Perspectiva de la casona de la Hacienda. El edificio es de dos niveles construido en mampostería de ladrillos con un estilo arquitectónico ecléctico. En el frente tiene una gran escalera color terracota de escalones curvos, más ancha abajo que arriba, lo que la hace lucir como un abanico invertido. La escalera conduce al pórtico del segundo piso mediante una entrada con arco, dos columnas redondas a los lados y un portón ornamental de hierro. El pórtico exhibe columnas redondas gruesas con capiteles cuadrangulares y arcadas que se extienden a lo ancho de toda la fachada. Los arcos del primer piso tienen pilares lisos. La arcada del segundo piso tiene barandas ornamentales de hierro y sobre estas hay una cornisa. Se puede apreciar un techo de láminas de metal a cuatro aguas. El techo del salón principal es mucho más elevado que el resto, técnica de la época para mantener la casa más fresca. La pintura luce deteriorada. La casona está rodeada de grama y árboles frondosos. La Casona de la Hacienda Santa Ana reside en terrenos conferidos en 1787 por el rey Carlos III al capitán Fernando Fernández, corsario español que rendía servicios a la corona. A partir de 1804, el capitán comenzó a sembrar caña de azúcar y a destilar ron en la propiedad para su uso personal, pero no fue hasta 1880 cuando su bisnieto Pedro Fernández y su hijo Edmundo desarrollaron la fórmula y el proceso de destilación del conocido Ron del Barrilito. Además de la casona, la Hacienda abarca la tonelería, el trapiche, el área de añejamiento y el área de embotellamiento y empaque. Estas instalaciones, que también sirven como museo, continúan produciendo el popular ron, así como el alcoholado medicinal Santa Ana.

Condado Vanderbilt - San Juan (Condado) - 2013 00011

Condado Vanderbilt - San Juan (Condado) - 2013 00011



Vista del interior del Hotel Condado Vanderbilt ubicado en la avenida Ashford del pueblo costero de San Juan. El hotel es de varios niveles con características del estilo resurgimiento español. En el interior se distingue una sala de conferencias, la habitación tiene el piso revestido por una alfombra de color claro. Las paredes están revestidas de madera, la del extremo derecho tiene una consola suspendida sobre la cual hay un cuadro decorativo y una lámpara de pared. La pared de fondo tiene un televisor flanqueado por lámparas de pared. Además, el techo es artesonado y tiene una plataforma superpuesta con pequeños focos individuales y una lámpara colgante. En medio hay una mesa de madera rectangular acompañada por sillas de oficina. El Hotel Condado Vanderbilt fue comisionado en 1917 por Frederick William Vanderbilt. Finalmente el 16 de octubre de 1919 fue inaugurado el primer gran hotel de lujo del Caribe. En el año 1930 fue vendido y pasó a llamarse Hotel Condado, posteriormente en 1940 se convirtió en el primer hotel en la isla en tener un casino. Además, en 1950 volvieron a cambiar su nombre a Condado Beach Hotel y se añadieron habitaciones, salones de actividades y un restaurante. Luego de considerar su demolición fue incluido en el Registro Nacional de Lugares Históricos en el año 1988. Más recientemente fue remodelado entre los años 2008 a 2014 por los arquitectos Thomas S. Marvel y José Marchand Sifre añadiendo dos torres de suites modernas. Además, la planificación y restauración de los espacios estuvo a cargo del Arquitecto Jonathan Parks y la firma SOLSTICE Planning and Architecture. Los diseños interiores estuvieron a cargo del diseñador Jorge Roselló.

Exploring the Condado Lagoon Site - San Juan (Condado) - 2011 00005

Exploring the Condado Lagoon Site - San Juan (Condado) - 2011 00005



Vista de la laguna del Condado y sus alrededores ubicado entre los barrios de Condado y Miramar del pueblo de San Juan. En primer plano se puede ver la Laguna del Condado en donde hay personas practicando deportes acuáticos. La rodean espacios de vegetación y a la distancia se pueden ver varios edificios. Entre estos hay edificios residenciales, comerciales, educativos y hoteles. Además, al fondo se distingue el Puente Dos Hermanos, también conocido como el puente número 1750. Gracias a la intención de los hermanos Behn de conectar la isleta de San Juan con la comunidad del Condado este fue construido por primera vez en el año 1908. Años más tarde, fue reconstruido e inaugurado en el año 2011. También se distingue el puente número 86 Guillermo Estéves que conecta la comunidad de Santurce con la isleta de San Juan. Este fue construido por primer a vez entre 1918 y 1919. Posteriormente fue remodelado entre los años 2002 y 2005. La laguna de la bahía del Condado es un Parque Nacional con una Reserva Natural Estuarina desde su designación en el año 1992 por el Programa Nacional de Estuarios (NEP) administrada por la Agencia de Protección Ambiental de Estados Unidos (USEPA). Convirtiéndose así en el único estuario tropical y el único fuera de Estados Unidos en recibir esta designación. A partir del año 2005 se estableció lo que hoy se conoce como la Corporación para la Conservación del Estuario de la bahía de San Juan como una entidad sin fines de lucro.

Antigua Iglesia El Nazareno - Catedral de la Música - San Juan (Miramar) - 2016 00058

Antigua Iglesia El Nazareno - Catedral de la Música - San Juan (Miramar) - 2016 00058



Fachada del edificio de la antigua Iglesia El Nazareno, también conocido como la Catedral de la Música Latina y la Casa Viera. Este edificio está localizado en el 909 de la avenida Fernández Juncos, esquina calle Hoare en la zona de Miramar, Santurce, en el municipio de San Juan. La fachada consiste de dos torres coronadas con tejas de barro. Las ventanas son arqueadas e integran rejas, vidrios y persianas. También se proyectan varios óculos acentuados por molduras blancas. La entrada principal consiste de puertas de aluminio con hojas de vidrio y un tejadillo con tejas de barro. Sobre la entrada resalta un tipo de frontón, una representación caricaturesca de una vitrola y un perro aullando, así como el nombre del edificio: "Viera Discos", "La Casa del Coleccionista" y "...L de la Música Latina". En un extremo sobresale la representación de la carátula del disco de Ismael Rivera con sus Cachimbos, titulado "Esto fue lo que trajo el barco". Frente al edificio se extiende una cerca articulada por un muro interrumpido por pilares con remates. Sobre un tramo del muro de la cerca cuelga un cartel que anuncia el ofrecimiento de Viera Discos y las alternativas de contacto. También resalta el cartel promocional de: "Carlos D'Castro y su orquesta, Deja Vu". Asimismo, se ubica un letrero que indica: "Prohibido tránsito pesado". La superficie del edificio es de color amarillo con detalles anaranjados.

Condado Vanderbilt - San Juan (Condado) - 2013 00090

Condado Vanderbilt - San Juan (Condado) - 2013 00090



Vista desde el patio trasero del Hotel Condado Vanderbilt ubicado en la avenida Ashford del pueblo costero de San Juan. El hotel es de varios niveles con características del estilo resurgimiento español. En el patio trasero del hotel hay una pérgola con techo de vigas de madera con formas curvas, el piso de madera, puertas dobles y ventanas de cristal. El extremo de la pérgola que tiene las puertas le sigue una balaustrada metálica que anticipa la costa del océano atlántico. El Hotel Condado Vanderbilt fue comisionado en 1917 por Frederick William Vanderbilt. Finalmente el 16 de octubre de 1919 fue inaugurado el primer gran hotel de lujo del Caribe. En el año 1930 fue vendido y pasó a llamarse Hotel Condado, posteriormente en 1940 se convirtió en el primer hotel en la isla en tener un casino. Además, en 1950 volvieron a cambiar su nombre a Condado Beach Hotel y se añadieron habitaciones, salones de actividades y un restaurante. Luego de considerar su demolición fue incluido en el Registro Nacional de Lugares Históricos en el año 1988. Más recientemente fue remodelado entre los años 2008 a 2014 por los arquitectos Thomas S. Marvel y José Marchand Sifre añadiendo dos torres de suites modernas. Además, la planificación y restauración de los espacios estuvo a cargo del Arquitecto Jonathan Parks y la firma SOLSTICE Planning and Architecture. Los diseños interiores estuvieron a cargo del diseñador Jorge Roselló.

Residencia Rodríguez Cabrero (Casa Doña Bisa) - San Sebastián

Residencia Rodríguez Cabrero (Casa Doña Bisa) - San Sebastián



Residencia Rodríguez Cabrero también conocida como Casa Doña Bisa en San Sebastián. Dibujo arquitectónico de la fachada principal de la casa construida con hormigón armado en estilo paladiano. La construcción sobre podio tiene un pórtico accesible a través de una escalera central, cada lado de la escalera hay un óculo. El techo del pórtico tiene un friso ornamental. Sobre el pórtico hay un balcón cuyo techo tiene un frontón triangular. Las barandas y columnas del pórtico y del balcón se extienden en toda la fachada frontal y a los lados formando arcadas en ambos pisos. Las barandas son de hierro y las columnas redondas tienen pedestales cuadrangulares. Los capiteles de las columnas del primer piso son de orden toscano y los del segundo piso, de orden jónico. En el segundo piso hay remates en forma de florero sobre cuatro de los pedestales. En las paredes frontales hay puertas y ventanas de doble hoja con soles truncos y molduras en los arcos superiores. Las molduras de las dos puertas tienen una clave ornamental cada una. La casa tiene una azotea con parapeto, sobre la parte frontal del parapeto hay otros seis remates en forma de florero. En medio de la azotea hay una habitación octagonal rodeada por una baranda de hierro. Tiene ventanas de doble hoja con celosías y soles truncos. El techo de la habitación es una cúpula. La casa fue construida en 1914. En el 2008 fue adquirida por el municipio de San Sebastián, posteriormente fue restaurada y convertida en museo.

Condado Vanderbilt - San Juan (Condado) - 2013 00142

Condado Vanderbilt - San Juan (Condado) - 2013 00142



Vista de los detalles del Hotel Condado Vanderbilt ubicado en la avenida Ashford del pueblo costero de San Juan. El hotel es de varios niveles y características del estilo resurgimiento español. La fachada frontal del hotel tiene un emblema decorativo en bajorrelieve. El medallón tiene elementos ornamentales, florales y representaciones de cuerpos humanos. Además, en medio hay una letra V superpuesta sobre una letra C. También se distinguen ventanas de cristal bajo arcos rectangulares. El Hotel Condado Vanderbilt fue comisionado en 1917 por Frederick William Vanderbilt. Finalmente el 16 de octubre de 1919 fue inaugurado el primer gran hotel de lujo del Caribe. En el año 1930 fue vendido y pasó a llamarse Hotel Condado, posteriormente en 1940 se convirtió en el primer hotel en la isla en tener un casino. Además, en 1950 volvieron a cambiar su nombre a Condado Beach Hotel y se añadieron habitaciones, salones de actividades y un restaurante. Luego de considerar su demolición fue incluido en el Registro Nacional de Lugares Históricos en el año 1988. Más recientemente fue remodelado entre los años 2008 a 2014 por los arquitectos Thomas S. Marvel y José Marchand Sifre añadiendo dos torres de suites modernas. Además, la planificación y restauración de los espacios estuvo a cargo del Arquitecto Jonathan Parks y la firma SOLSTICE Planning and Architecture. Los diseños interiores estuvieron a cargo del diseñador Jorge Roselló.

Molino de viento (1827) - Hacienda Santa Ana - 2011 00001

Molino de viento (1827) - Hacienda Santa Ana - 2011 00001



Hacienda Santa Ana en Bayamón. Plano contrapicado de la torre del antiguo molino de viento de la Hacienda. Este molino construido con ladrillos, y mejor conocido como trapiche, data de 1827 y es uno de los más antiguos en la isla. La escalera central tiene pasamanos de tubos y conduce a la entrada principal en forma de arco. Sobre el arco hay un óculo. La entrada cuenta con dos puertas de doble hoja: una de cristal en el interior y otra de madera con montante de sol trunco que da al exterior. En el tope de la torre hay un parapeto con diseño almenado desde donde bajan manchas de humedad u hollín. Esta torre fue acondicionada para utilizarse como oficina. En el entorno se observan árboles. La Casona de la Hacienda Santa Ana reside en terrenos conferidos en 1787 por el rey Carlos III al capitán Fernando Fernández, corsario español que rendía servicios a la corona. A partir de 1804, el capitán comenzó a sembrar caña de azúcar y a destilar ron en la propiedad para su uso personal, pero no fue hasta 1880 cuando su bisnieto Pedro Fernández y su hijo Edmundo desarrollaron la fórmula y el proceso de destilación del conocido Ron del Barrilito. Además de la casona, la Hacienda abarca la tonelería, el trapiche, el área de añejamiento y el área de embotellamiento y empaque. Estas instalaciones, que también sirven como museo, continúan produciendo el popular ron, así como el alcoholado medicinal Santa Ana.

Calle de la Fortaleza 56 - Antigua Real Audiencia - Conservatorio De Artes Del Caribe - San Juan (Viejo San Juan) - 2011 00026

Calle de la Fortaleza 56 - Antigua Real Audiencia - Conservatorio De Artes Del Caribe - San Juan (Viejo San Juan) - 2011 00026



Antigua Real Audiencia, calle de la Fortaleza en el Viejo San Juan. Vista del interior de la casa de dos pisos estilo colonial español. Se observa un tramo de un corredor que tiene una puerta de doble hoja de madera con dos paneles con celosías. Los paneles con celosías están cubiertos con paneles de vidrio. La puerta tiene una cerradura de palanca. En la pared hay una lámpara moderna con forma ovalada. También se puede ver un pequeño segmento de otra pared, perpendicular a la primera. Se puede notar que tiene una puerta en forma de arco de medio punto. El piso del corredor tiene losetas color terracota. En la esquina hay dos cajas vacías y dos botellones de agua. Originalmente esta casa fue la residencia del Dr. Francisco Oller y Ferrer, abuelo del pintor Francisco Oller y Cestero. En 1831 fue vendida al Estado y el 1832 pasó a ser la primera sede de la Real Audiencia Territorial. Alrededor del 1898 fue arrendada al Departamento de Agricultura de Estados Unidos y en otro momento se usó como Departamento de Estado. En 1992 la edificación fue dedicada a Don Fernando Chardón. Luego de un periodo de abandono fue restaurada en el año 2000 y asignada a las oficinas de Guías Turísticos y de Programas Federales adscritos a la Oficina del Gobernador. La Torre Meteorológica y de Observación fue diseñada por el ingeniero Manuel Maese, la orden para su construcción fue emitida en 1883.

Logia Adelphia - Mayagüez - 2012 00008

Logia Adelphia - Mayagüez - 2012 00008



Fachada de la Logia Adelphia, localizada en el municipio de Mayagüez. El edificio es de hormigón y se compone de dos niveles. El tramo central se caracteriza por una puerta de entrada arqueada y ornamentada con una moldura denticulada. La puerta, además, exhibe el símbolo masónico compuesto por la letra G, una escuadra y un compás. Sobre la puerta principal se proyecta un antepecho o barandilla de metal y tres ventanas arqueadas de madera con lumbreras y ornamentadas con molduras blancas. La puerta, la barandilla y las tres ventanas arqueadas están flanqueadas por dos columnas corintias y estriadas que descansan sobre pedestales. Sobre las columnas se proyecta un friso con el nombre de la logia, seguido por una moldura, dentículos y un frontón triangular que también exhibe un símbolo masónico en bajo relieve. Las ventanas del primer nivel son de madera con lumbreras y están enmarcadas en arcos adintelados y decoradas con molduras, paneles y medallones. Las ventanas del segundo nivel también son de madera con lumbreras y, exhiben antepechos o barandillas de metal y molduras blancas. La transición del primer al segundo nivel está acentuada por una moldura denticulada. La parte superior del edificio se distingue por un parapeto con balaustrada. En la primera planta también es visible una balaustrada interrumpida por un portón que da acceso al edificio. La superficie de la logia es de color amarillo y gris con detalles de blanco. La Logia Adelphia fue la primera logia masónica que existió en Puerto Rico y se fundó en 1871. En el 1912 se diseñó y construyó el edificio que alberga la Logia Adelphia en Mayagüez. El edificio combina elementos arquitectónicos de diferentes periodos de tiempo y culturas, creando un diseño con influencias del vocabulario clásico español y morisco. La Logia Adelphia constituye un importante ejemplo de la arquitectura de principios de siglo XX en Puerto Rico.

Condado Vanderbilt - San Juan (Condado) - 2013 00021

Condado Vanderbilt - San Juan (Condado) - 2013 00021



Vista del interior del Hotel Condado Vanderbilt ubicado en la avenida Ashford del pueblo costero de San Juan. El hotel es de varios niveles con características del estilo resurgimiento español. El vestíbulo tiene dos niveles con los pisos de mármol en dos colores, techos abovedados decorados con lámparas colgantes, lámparas de pared a juego y en el fondo la pared está revestida por espejos. Las naves laterales tienen vanos semicirculares coronados con pequeños emblemas. Además, tienen balaustradas de hierro ornamental con pasamanos de madera. También se distinguen sillas en madera y plantas en macetas decorativas. El Hotel Condado Vanderbilt fue comisionado en 1917 por Frederick William Vanderbilt. Finalmente el 16 de octubre de 1919 fue inaugurado el primer gran hotel de lujo del Caribe. En el año 1930 fue vendido y pasó a llamarse Hotel Condado, posteriormente en 1940 se convirtió en el primer hotel en la isla en tener un casino. Además, en 1950 volvieron a cambiar su nombre a Condado Beach Hotel y se añadieron habitaciones, salones de actividades y un restaurante. Luego de considerar su demolición fue incluido en el Registro Nacional de Lugares Históricos en el año 1988. Más recientemente fue remodelado entre los años 2008 a 2014 por los arquitectos Thomas S. Marvel y José Marchand Sifre añadiendo dos torres de suites modernas. Además, la planificación y restauración de los espacios estuvo a cargo del Arquitecto Jonathan Parks y la firma SOLSTICE Planning and Architecture. Los diseños interiores estuvieron a cargo del diseñador Jorge Roselló.

Teatro Yagüez - Mayagüez - 2011 00003

Teatro Yagüez - Mayagüez - 2011 00003



Detalle de las butacas y la cabina de control de iluminación del Teatro Yagüez, localizado entre las calles McKinley y Basora del municipio de Mayagüez. Las butacas son de color rojo y están dispuestas de modo curvado. En el centro del tramo se ubica la cabina de control de iluminación en la que es visible el equipo electrónico, los focos de luz y una silla. El techo está ornamentado con yesería y molduras de color blanco. En su origen, en 1909, el teatro fue diseñado y construido de madera, acero y cinc, y se le conoció como la Casa del Arte Sonoro. El dueño original de este teatro fue Francisco Maymón Palmer. En el año 1919 un fuego consumió el edificio. En 1920 se llevó a cabo un nuevo diseño de estilo ecléctico, integrando materiales como el hormigón, la madera, el cristal, el mármol italiano y el yeso para las ornamentaciones. Durante la década de 1950 el teatro mostró signos de deterioro y en el periodo de 1977 a 1984 se llevaron a cabo trabajos de restauración bajo el auspicio del municipio de Mayagüez. Asimismo, durante el periodo de 2002 a 2008 se realizó una tercera restauración al teatro. Este teatro constituye uno de los principales escenarios artísticos y de gran valor histórico en el área oeste de Puerto Rico por acoger a importantes orquestas y compañías de drama y danza. Su arquitectura refleja elementos del neoclásico europeo, el neobarroco y de la arquitectura de principios del siglo XX que se conoció como la Belle Époque.

Iglesia de San Jorge - San Juan (Condado) - 2014 00144

Iglesia de San Jorge - San Juan (Condado) - 2014 00144



Vista de la fachada frontal de la Parroquia San Jorge ubicada en la comunidad de Condado del pueblo costero de San Juan. La iglesia es de dos niveles en hormigón con características del estilo neogótico pintada de color gris y color blanco. La entrada está bajo un arco ojival en derrmae enmarcado con un tímpano esculpido con esculturas figurativas. El arco ojival tiene pequeños esculturas santos tallados. Además, sobre el arco también se pueden ver más estatuas talladas de mayor tamaño dentro de nichos ornamentados, cada esquina está acompañada por pináculos. Sobre la entrada hay un rosetón enmarcado y un nicho sobre una ménsula ornamentada coronado con pináculos. Al extremo derecho se alza la torre del campanario, tiene forma piramidal y está coronada con una cruz metálica. Además, tiene ventanas bajo arcos ojivales decorados con cresterías, vierteaguas y parteluces. Sobre las ventanas se ven ornamentación en bajorrelieve, gárgolas y a los lados contrafuertes que se extienden y a su vez sostienen pináculos con detalles ornamentales. En los alrededores se distinguen edificios, calles y espacios de estacionamiento. La iglesia San Jorge fue inaugurada en el año 1920 siendo oficialmente fundada canónicamente en 1924 tras ser desmembrada de las Parroquias San Mateo y Sagrado Corazón. Su diseño inicial estuvo a cargo de la firma Martínez y Lázaro siendo finalizado en dos años. Seis años después se comienza la construcción de los edificios aledaños a la academia San Jorge. Posteriormente en 1940 la fachada fue remodelada por el arquitecto Rafael Carmoega. Más recientemente en el año 2017 fue restaurada en fases por la firma Astrid Díaz: ADV Architects.

Arecibo Trip - 2014 00013

Arecibo Trip - 2014 00013



Vista del edificio Suliveres desde la catedral San Felipe Apóstol (católica) en el pueblo costero de Arecibo. En primer plano, se puede ver el techo de la catedral y pilastras. Cruzando la calle está el edificio Suliveres, tiene forma de U, es de dos niveles de madera y hormigón con techo plano. Su diseño está inspirado en la arquitectura clásica con influencia del novecentismo español. Está presidido por un patio frontal rodeado por una balaustrada de hormigón y zonas ajardinadas. La fachada está decorada con sillares de esquinas, un friso ornamental y una cornisa corrida que a su vez sostiene un parapeto superior que rodea la azotea a modo de balcón abierto. Las puertas son dobles de madera y cristal con persianas. Algunas puertas están bajo arco semicirculares enmarcadas y coronadas con soles truncos. Las del segundo nivel dan paso a balcones de doble tramo con balaustradas y otras están bajo arcos rectangulares presididos por antepechos. Por otra parte, la parte central del edificio tiene galerías que dan paso al interior con balaustradas de hormigón moduladas por columnas cuadradas. Sobre la balaustrada del segundo nivel se pueden ver plantas en macetas. A ambos lados de este se divisan edificios adosados entre los que se destacan techos planos, balcones, puertas dobles, ventanas enmarcadas, molduras y parapetos. También se puede ver un multipiso, postes de tendido eléctrico y edificios abandonados. El edificio Suliveres fue construido entre 1895 y 1910, ha servido como espacio residencial y comercial.

Archivo General - Antiguo Hospital Civil - San Juan (Puerta de Tierra) - 2010 00007

Archivo General - Antiguo Hospital Civil - San Juan (Puerta de Tierra) - 2010 00007



Vista frontal y lateral del Archivo General y Biblioteca Nacional de Puerto Rico ubicado en la comunidad de Puerta de Tierra del pueblo costero de San Juan. El edificio es de tres niveles en mampostería y ladrillo con características del estilo neoclásico. Está pintado en tonos de amarillo y color blanco. El primer nivel tiene zonas estriadas además, tiene ventanas de madera y cristal con persianas y soles truncos bajo arcos de medio punto enmarcados con molduras planas. Las del segundo nivel están coronadas con espinazos y al pie tienen molduras salientes a modo de soporte. Modulando las ventanas hay pilastras en pares de dos que sostienen un entablamento corrido y a su vez se alzan y sostienen el entablamento del segundo nivel sobre el cual se proyecta un parapeto bajo. También se puede ver un vehículo estacionado en la calle lateral. El antiguo Hospital Civil fue el último edificio erigido por el gobierno Español en la Isla entre los años 1877-1887. A pesar de que fue construido como hospital fue utilizado como Cárcel provincial y posteriormente como destilería. Años más tarde, ante una amenaza de demolición el Instituto de Cultura Puertorriqueña lo adquirió y lo restauró para albergar documentos históricos. A partir del año 1973 trasladaron el Archivo General y la Biblioteca Nacional de Puerto Rico a este espacio. Además, el edificio fue incluido en el Registro Nacional de Lugares Históricos en el año 1976.

Casa de Ramón Emeterio Betances - Mayagüez - 2011 00007

Casa de Ramón Emeterio Betances - Mayagüez - 2011 00007



Tarja ubicada en un pilar de la casa de Ramón Emeterio Betances en Mayagüez, también conocida como la casa de los cinco arcos. La tarja es de color negro y dorado, exhibe una representación de un retrato de Ramón Emeterio Betances con un borde de motivos de hojas que acompaña el texto: "Casa de los 5 arcos. Residencia Dr. Ramón Emeterio Betances. En el año 1865 Betances elevó una instancia a este ayuntamiento solicitando permiso para fabricar una casa amplia con fachada de 5 arcos. Esta residencia es un monumento al altruismo, a la abnegación y al amor fraterno, por tanto, se distingue como un lugar emblemático de esta "La sultana del oeste". Este insigne caborrojeño nacido el 8 de abril de 1827, en el lugar donde está ubicada la logia masónica, "Cuna de Betances", en la calle que lleva su nombre. Es conocido como "el Padre de la patria" y "el Padre de los pobres". Se distinguió como médico, literato y político de ideas radicalmente separatistas, quien rindió servicios inestimables a esta "La sultana del oeste". Aunque Betances no necesita homenaje o reconocimiento, precisamos nutrirnos de la herencia y generosidad de nuestros hijos más ilustres para encarar retos y alcanzar la cima del civismo cada vez más elevados. Se devela esta tarja para dar a conocer la gesta histórica de este insigne puertorriqueño para la posteridad, por iniciativa de: el Lcdo. Roberto Cardona Ubiñas, el pueblo y el gobierno municipal de Mayagüez. Hon. José Guillermo Rodríguez, alcalde, 8 de abril de 2005".

Antiguo Acueducto de Río Piedras - Documentación Aérea - San Juan (Río Piedras) - 2013 00032

Antiguo Acueducto de Río Piedras - Documentación Aérea - San Juan (Río Piedras) - 2013 00032



Vista aérea del río Piedras y el sitio del antiguo acueducto de Río Piedras en San Juan. Desde esta perspectiva es visible un muro en el río que conforma un tipo de represa. Además, es notable la casa de llaves y esclusas cuyo edificio es de una planta rectangular, constituido de mampostería de piedra y ladrillos y de estilo colonial español. Este edificio de 1894-1896, fue diseñado por Arturo Guerra, basado en el esquema original de Fernando Alameda en 1887 y funcionó como punto de distribución del agua cruda de la presa hasta los estanques de sedimentación. De manera parcial, también es visible el techo plano de la residencia de ingenieros y cuidadores diseñada por Fernando Alameda en 1887. Su construcción tuvo lugar entre 1892 y 1894 y se emplearon materiales como la piedra caliza y mampostería. Este edificio, de estilo colonial español, es de una planta rectangular, de un solo piso y una cubierta plana. Después de 1923 el edificio fue alterado para acomodar nuevos usos, entre estos, funcionó como almacén y posteriormente como laboratorio de calidad del agua desde 1923-1980. Al lado, se encuentra la casa de filtros y bombas y se distingue por ser un edificio de hormigón armado, de un nivel con forma de "L" y cubierta plana. Este edificio fue diseñado por Carlos del Valle Zeno y construido en 1923 en sustitución de un edificio de madera previo. Al fondo, al lado del río Piedras se encuentra un estacionamiento con varios automóviles. La planificación del histórico Acueducto de Río Piedras inició en 1846 mediante una serie de propuestas y su construcción inició a partir de 1892 con periodos de construcción adicionales que continuaron hacia el temprano siglo XX. La planta operó desde el tardío siglo XIX hasta la década de 1980. El sitio ha estado vacante desde 1980 y es propiedad del Fideicomiso de Conservación de Puerto Rico y está dirigido por la organización local sin fines de lucro "Para La Naturaleza" que utiliza el sitio para actividades de educación ambiental.

Condado Vanderbilt - San Juan (Condado) - 2013 00123

Condado Vanderbilt - San Juan (Condado) - 2013 00123



Vista del patio trasero del Hotel Condado Vanderbilt ubicado en la avenida Ashford del pueblo costero de San Juan. El hotel es de varios niveles con características del estilo resurgimiento español. Desde el patio trasero se distingue una pérgola con paredes laterales de cristal y puertas dobles también de cristal. Además, tiene el techo con vigas de madera expuestas. El extremo izquierdo de la pérgola está acompañado por una balaustrada metálica que da paso a la costa del océano atlántico. El Hotel Condado Vanderbilt fue comisionado en 1917 por Frederick William Vanderbilt. Finalmente el 16 de octubre de 1919 fue inaugurado el primer gran hotel de lujo del Caribe. En el año 1930 fue vendido y pasó a llamarse Hotel Condado, posteriormente en 1940 se convirtió en el primer hotel en la isla en tener un casino. Además, en 1950 volvieron a cambiar su nombre a Condado Beach Hotel y se añadieron habitaciones, salones de actividades y un restaurante. Luego de considerar su demolición fue incluido en el Registro Nacional de Lugares Históricos en el año 1988. Más recientemente fue remodelado entre los años 2008 a 2014 por los arquitectos Thomas S. Marvel y José Marchand Sifre añadiendo dos torres de suites modernas. Además, la planificación y restauración de los espacios estuvo a cargo del Arquitecto Jonathan Parks y la firma SOLSTICE Planning and Architecture. Los diseños interiores estuvieron a cargo del diseñador Jorge Roselló.

Arsenal de La Marina en La Puntilla - San Juan (Viejo San Juan) - 2012 00040

Arsenal de La Marina en La Puntilla - San Juan (Viejo San Juan) - 2012 00040



Antiguo Arsenal de La Marina Española en el barrio La Puntilla en el Viejo San Juan. El edificio es representativo del estilo neoclásico y fue construido en 1800. En el lado derecho de la imagen se observa un pasillo al aire libre y una fachada pintada de color gris y blanco. Tiene molduras blancas semicirculares, cornisas, pilastras, puertas dobles de madera y piso de ladrillos. Adyacente se encuentra la capilla de las Madres Carmelitas. Este edificio también es representativo del estilo neoclásico y está pintado de color rosado, crema y blanco. En la parte superior tiene una cúpula semiesférica coronada con una linterna de color terracota. Posee cornisas, arcos semicirculares y dos faroles de pared sostenidos por ménsulas. También se ve parcialmente el pórtico, las columnas y el frontón triangular de la entrada principal de la capilla. En el lado izquierdo de la imagen se ve un techo con sistema de aire acondicionado y ventiladores. Al fondo hay un vano de ventana con molduras blancas. Posteriormente el Arsenal de la Marina Española se utilizó para exhibiciones y oficinas administrativas del Instituto de Cultura Puertorriqueña. En el lado izquierdo de la imagen se localiza el condominio La Puntilla, pintado de color anaranjado y crema. A distancia se encuentra el edificio art déco del Banco Popular de Puerto Rico. Tiene ventanas con vanos rectangulares y cuadrados y una torre con un letrero que dice "Banco Popular". Fue diseñado por el arquitecto Chauncey W. Riley y construido por los ingenieros Juan M. Beltrán Carrasquillo, Manuel Miró y Saurí y José Benítez Gautier. De igual modo se divisan las dos torres con linternas de la corte y correo federal José V. Toledo, el cual tiene una combinación de estilos arquitectónicos, como el beaux arts, federal y renacimiento español. Fue diseñado por Oscar Wenderoth y está pintado de color crema y terracota. También se notan otros edificios altos, postes de luz y árboles.

Condado Vanderbilt - San Juan (Condado) - 2013 00047

Condado Vanderbilt - San Juan (Condado) - 2013 00047



Vista desde el patio trasero del Hotel Condado Vanderbilt ubicado en la avenida Ashford del pueblo costero de San Juan. El hotel es de varios niveles con techos a cuatro aguas y características del estilo resurgimiento español. Desde el patio se ve el techo saledizo del edificio principal sostenido por vigas de madera y revestido por tejas. Además, al extremo derecho se ve una de las torres laterales distinguida por sus ventanas dobles de cristal enmarcadas con molduras. El Hotel Condado Vanderbilt fue comisionado en 1917 por Frederick William Vanderbilt. Finalmente el 16 de octubre de 1919 fue inaugurado el primer gran hotel de lujo del Caribe. En el año 1930 fue vendido y pasó a llamarse Hotel Condado, posteriormente en 1940 se convirtió en el primer hotel en la isla en tener un casino. Además, en 1950 volvieron a cambiar su nombre a Condado Beach Hotel y se añadieron habitaciones, salones de actividades y un restaurante. Luego de considerar su demolición fue incluido en el Registro Nacional de Lugares Históricos en el año 1988. Más recientemente fue remodelado entre los años 2008 a 2014 por los arquitectos Thomas S. Marvel y José Marchand Sifre añadiendo dos torres de suites modernas. Además, la planificación y restauración de los espacios estuvo a cargo del Arquitecto Jonathan Parks y la firma SOLSTICE Planning and Architecture. Los diseños interiores estuvieron a cargo del diseñador Jorge Roselló.

Condado Vanderbilt - San Juan (Condado) - 2013 00129

Condado Vanderbilt - San Juan (Condado) - 2013 00129



Vista del patio trasero del Hotel Condado Vanderbilt ubicado en la avenida Ashford del pueblo costero de San Juan. El hotel es de varios niveles y características del estilo resurgimiento español. El patio trasero tiene el piso cubierto por baldosas de cerámica. Además, tiene escaleras con pasamanos metálicos, plantas en macetas decorativas y remates decorativos con formas cónicas. También se distingue la parte trasera del hotel, es una extensión moderna del edificio con amplios ventanales de madera moduladas por columnas cuadradas. Por otra parte, al extremo derecho se ve una de las torres laterales del hotel, se eleva once niveles, tiene ventanas de cristal enmarcadas con molduras y balcones con balaustradas de cristal dentro de los cuales también hay puertas enmarcadas. El Hotel Condado Vanderbilt fue comisionado en 1917 por Frederick William Vanderbilt. Finalmente el 16 de octubre de 1919 fue inaugurado el primer gran hotel de lujo del Caribe. En el año 1930 fue vendido y pasó a llamarse Hotel Condado, posteriormente en 1940 se convirtió en el primer hotel en la isla en tener un casino. Además, en 1950 volvieron a cambiar su nombre a Condado Beach Hotel y se añadieron habitaciones, salones de actividades y un restaurante. Luego de considerar su demolición fue incluido en el Registro Nacional de Lugares Históricos en el año 1988. Más recientemente fue remodelado entre los años 2008 a 2014 por los arquitectos Thomas S. Marvel y José Marchand Sifre añadiendo dos torres de suites modernas. Además, la planificación y restauración de los espacios estuvo a cargo del Arquitecto Jonathan Parks y la firma SOLSTICE Planning and Architecture. Los diseños interiores estuvieron a cargo del diseñador Jorge Roselló.

Calle de la Fortaleza 56 - Antigua Real Audiencia - Conservatorio De Artes Del Caribe - San Juan (Viejo San Juan) - 2011 00060

Calle de la Fortaleza 56 - Antigua Real Audiencia - Conservatorio De Artes Del Caribe - San Juan (Viejo San Juan) - 2011 00060



Antigua Real Audiencia, calle de la Fortaleza en el Viejo San Juan. Vista del interior de la casa de dos pisos estilo colonial español. A un lado se observa un tramo del corredor alrededor del patio interior, en el segundo piso. Este tramo tiene techo de madera y balaustrada con pilares de madera torneada. En la pared se ve un arco adintelado con puerta de doble hoja y sobre este, una lámpara de emergencias con un letrero de salida . La pared de fondo tiene una arcada de dos arcos rebajados. El arco que conecta con el corredor tiene una puerta y ventanas de madera con celosías. El otro arco está completamente cubierto por ventanas con celosías. Estos dos arcos tienen balaustradas bajo las ventanas, a modo de antepecho. Entre los dos arcos hay una pilastra que se extiende desde el primer piso hasta una moldura horizontal que marca el inicio del parapeto. El piso del corredor tiene losetas color terracota. En el primer piso también hay dos arcos con montantes de celosías de los que solo la parte superior es visible. Originalmente esta casa fue la residencia del Dr. Francisco Oller y Ferrer, abuelo del pintor Francisco Oller y Cestero. En 1831 fue vendida al Estado y el 1832 pasó a ser la primera sede de la Real Audiencia Territorial. Alrededor del 1898 fue arrendada al Departamento de Agricultura de Estados Unidos y en otro momento se usó como Departamento de Estado. En 1992 la edificación fue dedicada a Don Fernando Chardón. Luego de un periodo de abandono fue restaurada en el año 2000 y asignada a las oficinas de Guías Turísticos y de Programas Federales adscritos a la Oficina del Gobernador. La Torre Meteorológica y de Observación fue diseñada por el ingeniero Manuel Maese, la orden para su construcción fue emitida en 1883.

Residencia Rodríguez Cabrero (Casa Doña Bisa) - San Sebastián - 2011 00010

Residencia Rodríguez Cabrero (Casa Doña Bisa) - San Sebastián - 2011 00010



Residencia Rodríguez Cabrero también conocida como Casa Doña Bisa en San Sebastián. Vista parcial de la fachada principal de la casa construida con hormigón armado en estilo paladiano. Vista parcial, en plano contrapicado de la fachada principal de la casa construida con hormigón armado en estilo paladiano. Se observa la escalera que da acceso al pórtico que tiene columnas sobre pedestales y barandas de hierro con pasamanos de madera. A los lados de la escalera se ven partes del podio y de dos jardineras con plantas ornamentales. En la pared se pueden ver tres puertas de madera. La puerta principal es de dos hojas con paneles de vidrio oscuro y un sol trunco de hierro con panel también de vidrio oscuro. La moldura que rodea el sol trunco tiene una clave ornamental. Las otras dos puertas también son de doble hoja, tienen celosías y soles truncos de madera con paneles de vidrio oscuro rodeados por molduras acanaladas. Se puede ver dos lámparas colgantes de metal color negro. Sobre las columnas del pórtico hay un friso ornamental. Se puede ver parte del balcón del segundo piso. Tiene columnas sobre pedestales y baranda de hierro con pasamanos de madera, similares a las del primer piso. Se puede notar que el techo del balcón es a dos aguas y tiene una lámpara colgante igual a las del primer piso. La casa fue construida en 1914. En el 2008 fue adquirida por el municipio de San Sebastián, posteriormente fue restaurada y convertida en museo.

Iglesia de San Jorge - San Juan (Condado) - 2014 00138

Iglesia de San Jorge - San Juan (Condado) - 2014 00138



Vista desde el interior de la Parroquia San Jorge ubicada en la comunidad de Condado del pueblo costero de San Juan. La iglesia es de dos niveles en hormigón con características del estilo neogótico pintada de color blanco y color gris. El interior está dividido en tres naves, la nave central se eleva un nivel adicional con techos abovedados. Las bóvedas son cuatripartitas conectadas por espinazos pintados de color dorado, de alguno de estos cuelgan lámparas de vidrio. Además, las ventanas del clerestorio son de cristal bajo un arcos ojivales coronadas con vierteaguas y tracerías lobuladas. Dividiendo la nave central de las naves laterales hay arcadas de arcos ojivales enmarcadas con molduras y flanqueadas por pilastras pares que a su vez conectan con las vigas en el techo. A diferencia de la nave central, las naves laterales son de un nivel. Hay filas de bancos de madera y lámparas colgantes de cristal, algunas de las cuales cuelgan de la pared. También se puede ver en el borde superior un friso ornamental, emblemas, estaciones de via crucis, puertas dobles de madera coronadas con travesaños de vidrio pintado y enmarcado con un vierteaguas pintado de color dorado. Por otra parte, al fondo en el primer nivel se encuentra una cancela de madera presidiendo la entrada y sobre esta está ubicado el espacio del coro. El coro está rodeado por una balaustrada de hormigón y decorado con un órgano sobre el cual se proyecta un rosetón. La iglesia San Jorge fue inaugurada en el año 1920 siendo oficialmente fundada canónicamente en 1924 tras ser desmembrada de las Parroquias San Mateo y Sagrado Corazón. Su diseño inicial estuvo a cargo de la firma Martínez y Lázaro siendo finalizado en dos años. Seis años después se comienza la construcción de los edificios aledaños a la academia San Jorge. Posteriormente en 1940 la fachada fue remodelada por el arquitecto Rafael Carmoega. Más recientemente en el año 2017 fue restaurada en fases por la firma Astrid Díaz: ADV Architects.

Ateneo Puertorriqueño - San Juan (Viejo San Juan) - 2011 00043

Ateneo Puertorriqueño - San Juan (Viejo San Juan) - 2011 00043



El Ateneo Puertorriqueño localizado en el barrio Puerta de Tierra en el Viejo San Juan. Fue fundado en 1876 y construido por el ingeniero Ramón Carbia Burt en 1923. Es la institución cultural más antigua de Puerto Rico, también se le conoce como "la Docta Casa". Su estilo arquitectónico es representativo del neoárabe. Fue nominado para el Registro Nacional de Lugares Históricos en 1984. Está pintado de color blanco y terracota. Se aprecia una vista de la fachada lateral del edificio. Se observa un techo plano con parapetos, tiene molduras en la parte superior y una extensión de construcción con aleros cubiertos de tejas y cinco ventanas de cristal con marcos de madera abisagradas. En el lado izquierdo de la imagen se ve otra extensión de construcción que tiene escrito en la parte superior de la fachada "Ateneo Puertorriqueño", también posee ocho pilastras con azulejos cuadrados y un balcón con ornamentaciones. De igual forma se ve un estacionamiento con tres automóviles y postes de servicio. Posteriormente el Ateneo Puertorriqueño se dedicó a fomentar el teatro, música, cine, literatura, historia, ciencias, ciencias morales y políticas y las artes plásticas puertorriqueñas. Adyacente al Ateneo se aprecia el techo a cuatro aguas y cubierto de tejas de la Biblioteca Carnegie. Este edificio pertenece al estilo arquitectónico neoclásico y fue diseñado también por Ramón Carbia Burt en 1915. En el lado derecho de la imagen se divisa el estacionamiento multipisos del Departamento de Hacienda de Puerto Rico.

Hacienda Santa Ana - Bayamón - 2011 00024

Hacienda Santa Ana - Bayamón - 2011 00024



Hacienda Santa Ana en Bayamón. Vista de la fachada principal de la casona de la Hacienda. Se observa un edificio de dos niveles construido en mampostería de ladrillos con un estilo arquitectónico ecléctico. En el frente tiene una gran escalera color terracota de escalones curvos, más ancha abajo que arriba, lo que la hace lucir como un abanico invertido. La escalera conduce al pórtico del segundo piso mediante una entrada con arco y una lámpara de pared, dos columnas redondas a los lados y un portón ornamental de hierro. El pórtico exhibe columnas redondas gruesas con capiteles cuadrangulares y arcadas que se extienden a lo ancho de toda la fachada. Los arcos del primer piso tienen pilares lisos. La arcada del segundo piso tiene barandas ornamentales de hierro y sobre ésta hay una cornisa. La pintura luce deteriorada y el patio está cubierto de grama con caminos de ladrillos. La Casona de la Hacienda Santa Ana reside en terrenos conferidos en 1787 por el rey Carlos III al capitán Fernando Fernández, corsario español que rendía servicios a la corona. A partir de 1804, el capitán comenzó a sembrar caña de azúcar y a destilar ron en la propiedad para su uso personal, pero no fue hasta 1880 cuando su bisnieto Pedro Fernández y su hijo Edmundo desarrollaron la fórmula y el proceso de destilación del conocido Ron del Barrilito. Además de la casona, la Hacienda abarca la tonelería, el trapiche, el área de añejamiento y el área de embotellamiento y empaque. Estas instalaciones, que también sirven como museo, continúan produciendo el popular ron, así como el alcoholado medicinal Santa Ana.

Banco Crédito y Ahorro Ponceño - 2014 00005

Banco Crédito y Ahorro Ponceño - 2014 00005



Vista del Banco de Crédito y Ahorro Ponceño ubicado frente a la plaza pública en el pueblo costero de Ponce. Desde la alcaldía municipal se divisa un extremo del Antiguo Banco de Ponce de dos niveles y características del estilo Beaux Arts. Al extremo izquierdo se distingue el edificio del Banco de Ahorro Ponceño, el cual es achaflanado, de dos niveles en mampostería y concreto con características del estilo Beaux Arts. Sin embargo, la fachada exterior está dividida en tres niveles. Está articulada por pilastras acanaladas de orden corintio que se extienden hasta el nivel adicional sosteniendo un entablamento corrido decorado con una inscripción que dice: “Crédito y Ahorro Ponceño”, guirnaldas, dentículos y una cornisa superior saliente con ménsulas. El tercer nivel tiene una barandilla con balaustres entre frontones con medallones con vidrieras y el de en medio con un reloj. Todos tienen molduras ornamentales y detalles en relieve. A su vez, el techo es en forma de mansarda. El Banco de Crédito y Ahorro Ponceño se fundó en 1895, sin embargo no es hasta 1924 y 1925 cuando se construye este emblemático edificio. Permaneció en uso continuo hasta 1978 cuando el Banco Popular de Puerto Rico y el Banco Santander compraron las acciones de este. A pesar de eso en 1987 el edificio fue incluido en el Registro Nacional de Lugares Históricos. En adición, desde el 2022 es la sede del medio noticioso La Perla del Sur.

Catedral de Nuestra Señora de la Guadalupe

Catedral de Nuestra Señora de la Guadalupe



Dibujo arquitectónico de la Catedral de Nuestra Señora de la Guadalupe ubicada en el pueblo costero de Ponce. La catedral es de dos niveles en mampostería y ladrillo con características del estilo Neoclásico. La fachada frontal está dividida en dos tramos. En el primer nivel se ven ventanas y una puerta bajo arcos rectangulares enmarcadas con molduras y coronadas con entablamentos semicirculares. También está articulada con columnas que a su vez sostienen el entablamento corrido rematado con ánforas. El segundo nivel tiene ventanas enmarcadas con molduras y coronadas con entablamentos, unas son semicirculares están presididas por balaustradas y otras son triangulares. También tiene cornisas corridas donde descansan ánforas y pares de pilastras que a su vez sostienen el entablamento. En medio sobresale un frontón triangular coronado con una cruz. Por otra parte, flanqueando la catedral hay dos torres de campanario divididas en tres tramos por entablamentos. Son de bases cuadradas, el segundo nivel tiene vanos cuadrados enmarcados con molduras salientes, coronados con entablamentos semicirculares y presididos por balaustradas. El tercer tramo muestran ventanas dobles de madera bajo arcos semicirculares que a su vez están enmarcados con molduras, coronados con espinazos y entablamentos. Además, están flanqueados por pares de columnas acanaladas. El siguiente tramo de las torres es hexagonal y están decoradas con cornisas, molduras, un friso con guirnaldas y ánforas. De la misma manera, las cúpulas muestran óculos enmarcados con molduras. A su vez, las cúpulas están coronadas con linternas de aberturas semicirculares y cruces. En el extremo superior derecho hay un logo con una inscripción que dice: “PRHBDS”. Los inicios de la Catedral de Nuestra Señora de la Guadalupe datan de 1670 cuando apenas era una ermita de yagua y palma, fue clausurada en 1820 por las malas condiciones del edificio. El comienzo de la construcción de la iglesia actual data de 1835 y fue inaugurada en 1839. Sin embargo, el terremoto de 1918 destruyó ambas torres por lo que pasó a ser reconstruida con un diseño nuevo entre 1918 y 1937. Años más tarde, en 1984 fue incluida en el Registro Nacional de Lugares Históricos. Posteriormente fue restaurada nuevamente en 1992.

Condado Vanderbilt - San Juan (Condado) - 2013 00125

Condado Vanderbilt - San Juan (Condado) - 2013 00125



Vista del patio trasero del Hotel Condado Vanderbilt ubicado en la avenida Ashford del pueblo costero de San Juan. El hotel es de varios niveles con características del estilo resurgimiento español. Desde el patio trasero se distinguen amplios ventanales de cristal, sobre este una balaustrada de cristal modulada por pilares cuadrados y al fondo una pérgola con paredes laterales de cristal y puertas dobles también de cristal. Además, tiene el techo con vigas de madera expuestas. El extremo derecho de la pérgola está acompañado por una balaustrada metálica que da paso a la costa del océano atlántico. El Hotel Condado Vanderbilt fue comisionado en 1917 por Frederick William Vanderbilt. Finalmente el 16 de octubre de 1919 fue inaugurado el primer gran hotel de lujo del Caribe. En el año 1930 fue vendido y pasó a llamarse Hotel Condado, posteriormente en 1940 se convirtió en el primer hotel en la isla en tener un casino. Además, en 1950 volvieron a cambiar su nombre a Condado Beach Hotel y se añadieron habitaciones, salones de actividades y un restaurante. Luego de considerar su demolición fue incluido en el Registro Nacional de Lugares Históricos en el año 1988. Más recientemente fue remodelado entre los años 2008 a 2014 por los arquitectos Thomas S. Marvel y José Marchand Sifre añadiendo dos torres de suites modernas. Además, la planificación y restauración de los espacios estuvo a cargo del Arquitecto Jonathan Parks y la firma SOLSTICE Planning and Architecture. Los diseños interiores estuvieron a cargo del diseñador Jorge Roselló.

Antiguo Banco de Ponce - 2014 00007

Antiguo Banco de Ponce - 2014 00007



Vista lateral del edificio del Antiguo Banco de Ponce ubicado en el pueblo costero de Ponce. En primer plano, a ambos lados de la calle pavimentada se pueden ver un extremo del edificio de la alcaldía, otro edificio con diferentes características y vehículos estacionados. Por otra parte, al extremo derecho se alza el edificio del Banco de Ponce. El edificio es de tres niveles construido en hormigón con características de los estilos Beaux-Art y neoclásico. La fachada tiene ventanas cubiertas por rejas metálicas y ventanas francesas bajo arcos semicirculares presididos por balaustradas. Además, los arcos están enmarcados con molduras ornamentales, coronadas con espinazos y flanqueadas por pares de columnas acanaladas de orden corintio. Las columnas se extienden hasta el tercer nivel y sostienen un entablamento corrido con cornisas, molduras, rosetones, dentículos y más ventanas francesas. En la parte frontal también se distingue una entrada a través de una puerta rectangular enmarcada, coronada con un entablamento y una inscripción que dice: “Banco Popular”. También se distingue un extremo del edificio del Banco de Crédito y Ahorro Ponceño con sus características del estilo Beaux-Arts. El Banco de Ponce fue fundado en 1912 pero no fue hasta 1924 y 1925 cuando fue construido e inaugurado el edificio. Posteriormente en la década de 1940 su interior fue remodelado para ampliarlo de acuerdo con las necesidades del establecimiento. Para 1983 el banco contaba con cincuenta sucursales y en 1990 se fusionó con el Banco Popular de Puerto Rico. En adición, en 1987 el edificio fue incluido en el Registro Nacional de Lugares Históricos.

Condado Vanderbilt - San Juan (Condado) - 2013 00197

Condado Vanderbilt - San Juan (Condado) - 2013 00197



Vista desde el interior del Hotel Condado Vanderbilt ubicado en la avenida Ashford del pueblo costero de San Juan. El hotel es de varios niveles con características del estilo resurgimiento español. Los espacios interiores están pintados en varios tonos de color rosa. El vestíbulo tiene dos niveles con pisos de mármol, techos abovedados y lámparas de pared metálicas. La nave lateral derecha tiene varias puertas dobles de madera con ventanas de cristal bajo arcos semicirculares. Los espacios están separados con vanos semicirculares coronados con pequeños emblemas y balaustradas de hierro ornamental con pasamanos de madera. También se pueden ver unas escaleras es espiral de mármol negro y un banco redondo en el piso inferior. El Hotel Condado Vanderbilt fue comisionado en 1917 por Frederick William Vanderbilt. Finalmente el 16 de octubre de 1919 fue inaugurado el primer gran hotel de lujo del Caribe. En el año 1930 fue vendido y pasó a llamarse Hotel Condado, posteriormente en 1940 se convirtió en el primer hotel en la isla en tener un casino. Además, en 1950 volvieron a cambiar su nombre a Condado Beach Hotel y se añadieron habitaciones, salones de actividades y un restaurante. Luego de considerar su demolición fue incluido en el Registro Nacional de Lugares Históricos en el año 1988. Más recientemente fue remodelado entre los años 2008 a 2014 por los arquitectos Thomas S. Marvel y José Marchand Sifre añadiendo dos torres de suites modernas. Además, la planificación y restauración de los espacios estuvo a cargo del Arquitecto Jonathan Parks y la firma SOLSTICE Planning and Architecture. Los diseños interiores estuvieron a cargo del diseñador Jorge Roselló.

Molino de viento (1827) - Hacienda Santa Ana - 2011 00017

Molino de viento (1827) - Hacienda Santa Ana - 2011 00017



Hacienda Santa Ana en Bayamón. Vista de la torre del antiguo molino de viento de la Hacienda. Este molino construido con ladrillos, y mejor conocido como trapiche, data de 1827 y es uno de los más antiguos en la isla. Se observa una torre redonda de ladrillos con una escalera de ladrillos y piedras. La escalera tiene dos pasamanos de tubos que conducen a la entrada principal en forma de arco de medio punto en el segundo nivel. Sobre el arco hay un óculo de cemento color blanco incrustado en la pared. La entrada cuenta con una puerta de madera de doble hoja con montante de sol trunco. Además, se puede ver otra escalera de piedras y una segunda puerta de madera en la pared lateral. En el tope de la torre hay un parapeto con diseño almenado desde donde bajan manchas de humedad u hollín, una pequeña antena, un cable eléctrico y una lámpara. Detrás de la torre hay un área con árboles. La Casona de la Hacienda Santa Ana reside en terrenos conferidos en 1787 por el rey Carlos III al capitán Fernando Fernández, corsario español que rendía servicios a la corona. A partir de 1804, el capitán comenzó a sembrar caña de azúcar y a destilar ron en la propiedad para su uso personal, pero no fue hasta 1880 cuando su bisnieto Pedro Fernández y su hijo Edmundo desarrollaron la fórmula y el proceso de destilación del conocido Ron del Barrilito. Además de la casona, la Hacienda abarca la tonelería, el trapiche, el área de añejamiento y el área de embotellamiento y empaque. Estas instalaciones, que también sirven como museo, continúan produciendo el popular ron, así como el alcoholado medicinal Santa Ana.

Casa en la Calle Cuevillas 607 - San Juan (Miramar) - 2014 00016

Casa en la Calle Cuevillas 607 - San Juan (Miramar) - 2014 00016



Perspectiva de la escalera lateral de la casa en la calle Cuevillas 607, en Miramar, San Juan. La escalera está acompañada de dos muros que funcionan como pasamanos. En la fachada lateral resaltan dos ventanas tipo persianas, de las cuales una está protegida con rejas. Estas ventanas están acentuadas con molduras blancas que contrastan con el rosado de la pared. El perímetro de la residencia está delimitado por una cerca coronada con una reja y un portón. Al fondo se encuentra una calle con edificios y automóviles. Esta casa se construyó en 1913 siguiendo influencias del estilo resurgimiento del renacimiento francés o resurgimiento neoclásico francés. Sus dueños originales fueron el juez Luis Méndez Baz y su esposa, María Bagur. Tras visitar Francia, la pareja hizo construir su residencia siguiendo el diseño de un prototipo publicado en Nouvelles Maisons de Campagne, Paris et ses Environs, que mostraba fachadas y planos de casas de campo populares en París. Posteriormente la casa funcionó como residencia y taller para artistas como Lorenzo Homar, Juan Ramón Velázquez, Ada Bobonis y Aaron Salabarrías. Además, los herederos de los dueños originales establecieron una fundación para desarrollar un museo en esta residencia. Entre el 2018 y 2019 se llevó a cabo la restauración del edificio que dio lugar al establecimiento del Museo de Arte y Diseño de Miramar, también conocido como la Casa Rosada.

Faro Punta Mulas - Vieques - 2011 00002

Faro Punta Mulas - Vieques - 2011 00002



Detalle de la fachada del Faro Punta Mulas, localizado al oeste del puerto de Isabel II, en la isla municipio de Vieques. El faro es de una planta con forma rectangular. Su fachada presenta una puerta con paneles flanqueada por ventanas de doble hoja con lumbreras y enmarcadas con molduras. Entre la puerta y las ventanas resaltan pequeños óculos acentuados por molduras. La parte superior del edificio se distingue por una moldura ornamental con motivos de rectángulos y círculos y una cornisa coronada con un parapeto. Desde el centro sobresale la torre octogonal con una galería que está delimitada por una baranda de hierro forjado y coronada con una linterna de forma cilíndrica hecha de hierro forjado, cobre y cristal. La superficie del edificio es de color amarillo y blanco. El Faro de Punta Mulas fue construido en 1895, como un faro de sexto orden, para guiar la navegación a través del Pasaje de Vieques. Este faro comenzó a operar el 1 de junio de 1896. Sus características arquitectónicas corresponden al estilo neoclásico y colonial español. Durante la década de 1940, la planta física fue modificada y se llevaron a cabo algunos cambios como el reemplazo del techo original de ladrillo por uno de hormigón. En 1949, se instaló un sistema automático de iluminación. Entre el año 1961 a 1981 sirvió de residencia a la señora Gilda Romero. En 1992, el municipio de Vieques compró el edificio y lo restauró. Otra restauración ocurrió en 1998, tras el paso del huracán Georges, y finalmente, fue inaugurado en 2015.

Casa en la Calle Cuevillas 607 - San Juan (Miramar) - 2014 00047

Casa en la Calle Cuevillas 607 - San Juan (Miramar) - 2014 00047



Edificio que forma parte de la casa en la calle Cuevillas 607, en Miramar, San Juan. Este edificio es de una planta y presenta una puerta y una ventana tipo persiana, ambas protegidas con rejas ornamentales. Además, se proyecta un alero y un parapeto en la parte superior. Al lado se encuentra un edificio más pequeño con una sola puerta y techo plano. Ambos son de color rosado con detalles de blanco. En la parte del frente se ubica una camioneta color rojo. Esta camioneta Studebaker, perteneció a Eduardo Méndez Bagur y sirvió como inspiración para el artista Miguel Luciano quien creó una obra que se alberga en el Museo de Arte y Diseño de Miramar. La casa en la calle Cuevillas 607 se construyó en 1913 siguiendo influencias del estilo resurgimiento del renacimiento francés o resurgimiento neoclásico francés. Sus dueños originales fueron el juez Luis Méndez Baz y su esposa, María Bagur. Tras visitar Francia, la pareja hizo construir su residencia siguiendo el diseño de un prototipo publicado en Nouvelles Maisons de Campagne, Paris et ses Environs, que mostraba fachadas y planos de casas de campo populares en París. Posteriormente la casa funcionó como residencia y taller para artistas como Lorenzo Homar, Juan Ramón Velázquez, Ada Bobonis y Aaron Salabarrías. Además, los herederos de los dueños originales establecieron una fundación para desarrollar un museo en esta residencia. Entre el 2018 y 2019 se llevó a cabo la restauración del edificio que dio lugar al establecimiento del Museo de Arte y Diseño de Miramar, también conocido como la Casa Rosada.

Faro de Punta Mulas - Vieques

Faro de Punta Mulas - Vieques



Dibujo arquitectónico de la fachada del Faro de Punta Mulas, localizado al oeste del puerto de Isabel II, en la isla municipio de Vieques. El dibujo fue realizado por el proyecto Puerto Rico Historic Building Drawing Society. El faro es de una planta con forma rectangular. Su fachada presenta una puerta con paneles flanqueada por ventanas de doble hoja con lumbreras y enmarcadas con molduras. La parte superior del edificio se distingue por una moldura ornamental con motivos de rectángulos y círculos y una cornisa coronada con un parapeto. La parte inferior de la fachada está realzada por un zócalo. Desde el centro sobresale la torre octogonal con una galería que está delimitada por una baranda de hierro forjado y coronada con una linterna de forma cilíndrica hecha de hierro forjado, cobre y cristal. El Faro de Punta Mulas fue construido en 1895, como un faro de sexto orden, para guiar la navegación a través del Pasaje de Vieques. Este faro comenzó a operar el 1 de junio de 1896. Sus características arquitectónicas corresponden al estilo neoclásico y colonial español. Durante la década de 1940, la planta física fue modificada y se llevaron a cabo algunos cambios como el reemplazo del techo original de ladrillo por uno de hormigón. En 1949, se instaló un sistema automático de iluminación. Entre el año 1961 y 1981 sirvió de residencia a la señora Gilda Romero. En 1992, el municipio de Vieques compró el edificio y lo restauró. Otra restauración ocurrió en 1998, tras el paso del huracán Georges, y finalmente, fue inaugurado en 2015.

Exploring the Condado Lagoon Site - San Juan (Condado) - 2011 00015

Exploring the Condado Lagoon Site - San Juan (Condado) - 2011 00015



Vista de la laguna del Condado y sus alrededores ubicado entre los barrios de Condado y Miramar del pueblo de San Juan. En primer plano se puede ver una de las partes laterales del puente Dos Hermanos que conecta la comunidad de Condado con la isleta de San Juan. El puente es de vigas continuas en hormigón, el diseño de la base es de arcos semicirculares interrumpidos por pilares sobresalientes. Además, los pilares se extienden y se unen con los pilares que interrumpen la baranda lateral, estos a su vez sirven como la base de los postes de luz y de elementos decorativos en metal con forma piramidal. En los alrededores se pueden ver diferentes tipos de materiales de construcción y la Laguna del Condado. El puente Dos Hermanos, también conocido como el puente número 1750. Gracias a la intención de los hermanos Behn de conectar la isleta de San Juan con la comunidad del Condado este fue construido por primera vez en 1908. Años más tarde, fue reconstruido e inaugurado nuevamente en el año 2011. En el 2013 la Autoridad de Carreteras recibió un reconocimiento por la construcción de este puente por la Federal Highway Administration (FHWA) siento este es el primer reconocimiento recibido de esta índole. La laguna de la bahía del Condado es un Parque Nacional con una Reserva Natural Estuarina desde su designación en el año 1992 por el Programa Nacional de Estuarios (NEP) administrada por la Agencia de Protección Ambiental de Estados Unidos (USEPA). Convirtiéndose así en el único estuario tropical y el único fuera de Estados Unidos en recibir esta designación. A partir del año 2005 se estableció lo que hoy se conoce como la Corporación para la Conservación del Estuario de la bahía de San Juan como una entidad sin fines de lucro.

Condado Vanderbilt - San Juan (Condado) - 2013 00003

Condado Vanderbilt - San Juan (Condado) - 2013 00003



Vista del interior del Hotel Condado Vanderbilt ubicado en la avenida Ashford del pueblo costero de San Juan. El hotel es de varios niveles con características del estilo resurgimiento español. En el interior se distingue una sala de conferencias, tiene las paredes revestidas de madera, puertas de madera y el piso cubierto por una alfombra en colores difusos. Por otra parte, el techo tiene una plataforma circular con luces individuales y una lámpara colgante. En medio hay una mesa redonda de madera acompañada por sillas de oficinas. Además, sobre la mesa hay tapetes, copas y cubiertos. El Hotel Condado Vanderbilt fue comisionado en 1917 por Frederick William Vanderbilt. Finalmente el 16 de octubre de 1919 fue inaugurado el primer gran hotel de lujo del Caribe. En el año 1930 fue vendido y pasó a llamarse Hotel Condado, posteriormente en 1940 se convirtió en el primer hotel en la isla en tener un casino. Además, en 1950 volvieron a cambiar su nombre a Condado Beach Hotel y se añadieron habitaciones, salones de actividades y un restaurante. Luego de considerar su demolición fue incluido en el Registro Nacional de Lugares Históricos en el año 1988. Más recientemente fue remodelado entre los años 2008 a 2014 por los arquitectos Thomas S. Marvel y José Marchand Sifre añadiendo dos torres de suites modernas. Además, la planificación y restauración de los espacios estuvo a cargo del Arquitecto Jonathan Parks y la firma SOLSTICE Planning and Architecture. Los diseños interiores estuvieron a cargo del diseñador Jorge Roselló.

Vista desde el interior de la primera iglesia metodista de Ponce ubicada en la calle Villa 135 del pueblo costero de Ponce. La iglesia es de un nivel de hormigón armado con características de varios estilos por lo que se considera ecléctica. En los espacios interiores se pueden ver vigas de madera expuestas, algunas tienen un patrón en forma de equis y lámparas colgantes. También se pueden ver ventanas con vidrieras de colores. La Iglesia Metodista de la resurrección de Ponce fue construida en 1907 convirtiéndose en una de las primeras iglesias no católica romana construida después del cambio de soberanía en 1898 siendo un ejemplo de la libertad de culto. Tras el terremoto de 1918 la torre del campanario se tuvo que reconstruir utilizando el diseño de Francisco Porrata Doria, por lo que su diseño y materiales son diferentes al original. Años más tarde, en 1987 fue incluida en el Registro Nacional de Lugares Históricos.

Vista desde el interior de la primera iglesia metodista de Ponce ubicada en la calle Villa 135 del pueblo costero de Ponce. La iglesia es de un nivel de hormigón armado con características de varios estilos por lo que se considera ecléctica. En los espacios interiores se pueden ver vigas de madera expuestas, algunas tienen un patrón en forma de equis y lámparas colgantes. También se pueden ver ventanas con vidrieras de colores. La Iglesia Metodista de la resurrección de Ponce fue construida en 1907 convirtiéndose en una de las primeras iglesias no católica romana construida después del cambio de soberanía en 1898 siendo un ejemplo de la libertad de culto. Tras el terremoto de 1918 la torre del campanario se tuvo que reconstruir utilizando el diseño de Francisco Porrata Doria, por lo que su diseño y materiales son diferentes al original. Años más tarde, en 1987 fue incluida en el Registro Nacional de Lugares Históricos.



Vista desde el interior de la primera iglesia metodista de Ponce ubicada en la calle Villa 135 del pueblo costero de Ponce. La iglesia es de un nivel de hormigón armado con características de varios estilos por lo que se considera ecléctica. En los espacios interiores se pueden ver vigas de madera expuestas, algunas tienen un patrón en forma de equis y lámparas colgantes. También se pueden ver ventanas con vidrieras de colores. La Iglesia Metodista de la Resurrección de Ponce fue construida en 1907 convirtiéndose en una de las primeras iglesias no católica romana construida después del cambio de soberanía en 1898 siendo un ejemplo de la libertad de culto. Tras el terremoto de 1918 la torre del campanario se tuvo que reconstruir utilizando el diseño de Francisco Porrata Doria, por lo que su diseño y materiales son diferentes al original. Años más tarde, en 1987 fue incluida en el Registro Nacional de Lugares Históricos.

U.S. Customs House - Mayagüez - 2012 00013

U.S. Customs House - Mayagüez - 2012 00013



Perspectiva desde la calle Manuel Pirallo y la calle Aduana hacia la fachada posterior y lateral del edificio U.S. Custom House, también conocido como la Aduana de Mayagüez. Este edificio es de una planta rectangular y se distingue por un pórtico con columnas toscanas, cornisas de modillones sobre un entablamento coronado con balaustrada y un panel central elevado. El entablamento tiene una inscripción de hormigón que indica: "United States Custom House". El panel superior también presenta el texto: "By the authority of the Congress of the United States this building was erected AD MCMXXXII for the use of the Custom Service in the island of Porto Rico". La fachada posterior tiene siete vanos, de los cuales, tres son las puertas arqueadas en el centro, flanqueadas por dos pares de ventanas arqueadas. La fachada lateral también presenta cinco vanos arqueados con rejas flanqueados por pilastras toscanas. Frente al edificio se extiende una cerca compuesta por un muro bajo coronado con rejas. La superficie del edificio es de color rosado o salmón combinado con detalles ornamentales de blanco. Este edificio fue diseñado con elementos del estilo Beaux Arts y su construcción tuvo lugar en 1924. Este fue el primer edificio de aduana construido durante el periodo del régimen militar estadounidense en Puerto Rico. Durante la década de 1960 se le realizaron algunos cambios mínimos como parte de una remodelación. El 30 de septiembre de 1981 fue declarado Edificio Histórico y en 1996 fue restaurado totalmente.

Calle de la Fortaleza 56 - Antigua Real Audiencia - Conservatorio De Artes Del Caribe - San Juan (Viejo San Juan) - 2011 00001

Calle de la Fortaleza 56 - Antigua Real Audiencia - Conservatorio De Artes Del Caribe - San Juan (Viejo San Juan) - 2011 00001



Antigua Real Audiencia, calle de la Fortaleza en el Viejo San Juan. Vista parcial de la fachada de la casa de dos pisos estilo colonial español. Se pueden ver tres de los cinco vanos del segundo nivel. Los vanos tienen puertas de doble hoja con celosías y molduras simples. El edificio tiene una cornisa delgada y parapeto liso con moldura simple. En el techo hay una torre de vigilancia octagonal construida en mampostería, acero y madera. La parte de mampostería tiene pequeños óculos en las paredes y una cornisa con ménsulas. Sobre ésta se encuentra el área de observación, que es de madera y consiste de una puerta y ventanas con celosías, está protegida por una baranda y tiene una cúpula de metal con un remate esférico. La casa está pintada de amarillo con las molduras blancas. La torre también tiene paredes amarillas, la cornisa es blanca y el área de observación es verde al igual que la baranda. La vista es desde la Iglesia Presbiteriana Hugh O'Neill Memorial de la que se pueden ver, en primer plano, parte del interior del parapeto y un arco que sostiene una cruz. Originalmente esta casa fue la residencia del Dr. Francisco Oller y Ferrer, abuelo del pintor Francisco Oller y Cestero. En 1831 fue vendida al Estado y el 1832 pasó a ser la primera sede de la Real Audiencia Territorial. Alrededor del 1898 fue arrendada al Departamento de Agricultura de Estados Unidos y en otro momento se usó como Departamento de Estado. En 1992 la edificación fue dedicada a Don Fernando Chardón. Luego de un periodo de abandono fue restaurada en el año 2000 y asignada a las oficinas de Guías Turísticos y de Programas Federales adscritos a la Oficina del Gobernador. La Torre Meteorológica y de Observación fue diseñada por el ingeniero Manuel Maese, la orden para su construcción fue emitida en 1883.

Teatro Yagüez - Mayagüez - 2011 00055

Teatro Yagüez - Mayagüez - 2011 00055



Vitrales y ornamentos de la fachada del Teatro Yagüez, localizado entre las calles McKinley y Basora del municipio de Mayagüez. El vitral está articulado por un motivo geométrico con vidrios de tonalidades de rojo, amarillo, verde y azul. Bajo el vitral se exhiben las molduras con formas de flecha. Además, el vitral está flanqueado por pilastras, de las cuales, una tiene una ménsula con volutas. En la parte superior se extiende un friso, una moldura de ovas y dardos y una cornisa. La superficie de este tramo del edificio es de color amarillo con los detalles ornamentales de blanco. En su origen, en 1909, el teatro fue diseñado y construido de madera, acero y cinc, y se le conoció como la Casa del Arte Sonoro. El dueño original de este teatro fue Francisco Maymón Palmer. En el año 1919 un fuego consumió el edificio. En 1920 se llevó a cabo un nuevo diseño de estilo ecléctico, integrando materiales como el hormigón, la madera, el cristal, el mármol italiano y el yeso para las ornamentaciones. Durante la década de 1950 el teatro mostró signos de deterioro y en el periodo de 1977 a 1984 se llevaron a cabo trabajos de restauración bajo el auspicio del municipio de Mayagüez. Asimismo, durante el periodo de 2002 a 2008 se realizó una tercera restauración al teatro. Este teatro constituye uno de los principales escenarios artísticos y de gran valor histórico en el área oeste de Puerto Rico por acoger a importantes orquestas y compañías de drama y danza. Su arquitectura refleja elementos del neoclásico europeo, el neobarroco y de la arquitectura de principios del siglo XX que se conoció como la Belle Époque.

Calle de la Fortaleza 56 - Antigua Real Audiencia - Conservatorio De Artes Del Caribe - San Juan (Viejo San Juan) - 2012 00013

Calle de la Fortaleza 56 - Antigua Real Audiencia - Conservatorio De Artes Del Caribe - San Juan (Viejo San Juan) - 2012 00013



Antigua Real Audiencia, calle de la Fortaleza en el Viejo San Juan. Vista, al atardecer, de la Torre Meteorológica y de Observación ubicada en el techo de la casa de dos pisos estilo colonial español. Se observa la base de la torre octagonal, esta sección fue construida en mampostería y tiene pequeños óculos en las paredes de los cuales solo uno es visible. Tras la torre se puede ver parte del techo de la casa, ocupado por los conductos del sistema de acondicionamiento de aire. Además se puede ver parte de la fachada de uno de los edificios aledaños, Que tiene vanos con antepechos de barandas de hiero y molduras con frontones triangulares. Originalmente esta casa fue la residencia del Dr. Francisco Oller y Ferrer, abuelo del pintor Francisco Oller y Cestero. En 1831 fue vendida al Estado y el 1832 pasó a ser la primera sede de la Real Audiencia Territorial. Alrededor del 1898 fue arrendado al Departamento de Agricultura de Estados Unidos y en otro momento se usó como Departamento de Estado. En 1992 la edificación fue dedicada a Don Fernando Chardón. Luego de un periodo de abandono fue restaurada en el año 2000 y asignada a las oficinas de Guías Turísticos y de Programas Federales adscritos a la Oficina del Gobernador. La Torre Meteorológica y de Observación fue diseñada por el ingeniero Manuel Maese, la orden para su construcción fue emitida en 1883.

Condado Vanderbilt - San Juan (Condado) - 2013 00177

Condado Vanderbilt - San Juan (Condado) - 2013 00177



Vista desde un salón de actividades del Hotel Condado Vanderbilt ubicado en la avenida Ashford del pueblo costero de San Juan. El hotel es de varios niveles con características del estilo resurgimiento español. El salón tiene el piso revestido por una alfombra con motivos ornamentales en varios tonos de color rojo y morado. Las paredes laterales están revestidas de mármol en dos colores y tienen amplios espejos acompañados con consolas de madera enfrente. Además, se distinguen puertas de madera y lámparas de vidrio pintado. Por otra parte, la pared del extremo derecho tiene una puerta doble de madera y cristal bajo un arco semicircular junto a una columna cilíndrica. El techo es artesonado y está dividido en espacios cúbicos con profundidad. Además, están decorados con lámparas colgantes de vidrio pintado a juego con las de las paredes y pequeños focos de luz individual. El Hotel Condado Vanderbilt fue comisionado en 1917 por Frederick William Vanderbilt. Finalmente el 16 de octubre de 1919 fue inaugurado el primer gran hotel de lujo del Caribe. En el año 1930 fue vendido y pasó a llamarse Hotel Condado, posteriormente en 1940 se convirtió en el primer hotel en la isla en tener un casino. Además, en 1950 volvieron a cambiar su nombre a Condado Beach Hotel y se añadieron habitaciones, salones de actividades y un restaurante. Luego de considerar su demolición fue incluido en el Registro Nacional de Lugares Históricos en el año 1988. Más recientemente fue remodelado entre los años 2008 a 2014 por los arquitectos Thomas S. Marvel y José Marchand Sifre añadiendo dos torres de suites modernas. Además, la planificación y restauración de los espacios estuvo a cargo del Arquitecto Jonathan Parks y la firma SOLSTICE Planning and Architecture. Los diseños interiores estuvieron a cargo del diseñador Jorge Roselló.

Ateneo Puertorriqueño - San Juan (Viejo San Juan) - 2010 00003

Ateneo Puertorriqueño - San Juan (Viejo San Juan) - 2010 00003



El Ateneo Puertorriqueño localizado en el barrio Puerta de Tierra en el Viejo San Juan. Fue fundado en 1876 y construido por el ingeniero Ramón Carbia Burt en 1923. Es la institución cultural más antigua de Puerto Rico, también se le conoce como "la Docta Casa". Su estilo arquitectónico es representativo del neoárabe. Fue nominado para el Registro Nacional de Lugares Históricos en 1984. Está pintado de color blanco y terracota. Se observa que la parte superior de la fachada tiene un alero cubierto con tejas sostenido por ménsulas de madera. También tiene siete arcos polilobulados interrumpidos por ocho pilastras que tienen azulejos en la parte superior. En la parte inferior de la fachada resaltan seis pilastras que sostienen un arco semicircular y entablamento cubierto de azulejos con motivos florales. El vano de la puerta tiene escrito en la parte superior "Ateneo Puertorriqueño". En ambos extremos de las pilastras se aprecian frisos en altos relieves con representaciones de figuras humanas que fueron esculpidos por el artista italiano Arrighini. Frente a la entrada hay unas escalinatas y farolas. El edificio también tiene ventanas de cristal con marcos de madera abisagradas y una ornamentación en forma de antorcha en la esquina superior del lado derecho de la imagen. En los alrededores se ven árboles, arbustos, una palma, una decoración alusiva a los tres Reyes Magos, una asta y grama. Posteriormente el Ateneo Puertorriqueño se dedicó a fomentar el teatro, música, cine, literatura, historia, ciencias, ciencias morales y políticas y las artes plásticas puertorriqueñas.

Condado Vanderbilt - San Juan (Condado) - 2013 00171

Condado Vanderbilt - San Juan (Condado) - 2013 00171



Vista del interior del Hotel Condado Vanderbilt ubicado en la avenida Ashford del pueblo costero de San Juan. El hotel es de varios niveles con características del estilo resurgimiento español. En el interior se distingue un salón de actividades con el techo decorado con una gran lámpara colgante de vidrio pintado en varios colores y pequeños focos de luz individual. La lámpara tiene una forma esférica, está rodeada por brazos de color salmón y detalles color negro. Además, de la parte de abajo cuelgan pequeñas piedras de color dorado ubicadas de forma escalonada. El Hotel Condado Vanderbilt fue comisionado en 1917 por Frederick William Vanderbilt. Finalmente el 16 de octubre de 1919 fue inaugurado el primer gran hotel de lujo del Caribe. En el año 1930 fue vendido y pasó a llamarse Hotel Condado, posteriormente en 1940 se convirtió en el primer hotel en la isla en tener un casino. Además, en 1950 volvieron a cambiar su nombre a Condado Beach Hotel y se añadieron habitaciones, salones de actividades y un restaurante. Luego de considerar su demolición fue incluido en el Registro Nacional de Lugares Históricos en el año 1988. Más recientemente fue remodelado entre los años 2008 a 2014 por los arquitectos Thomas S. Marvel y José Marchand Sifre añadiendo dos torres de suites modernas. Además, la planificación y restauración de los espacios estuvo a cargo del Arquitecto Jonathan Parks y la firma SOLSTICE Planning and Architecture. Los diseños interiores estuvieron a cargo del diseñador Jorge Roselló.

Iglesia de San Jorge - San Juan (Condado) - 2014 00146

Iglesia de San Jorge - San Juan (Condado) - 2014 00146



Vista de la fachada frontal de la Parroquia San Jorge ubicada en la comunidad de Condado del pueblo costero de San Juan. La iglesia es de dos niveles en hormigón con características del estilo neogótico, techo a dos aguas revestido por tejas, pintada de color gris y color blanco. La entrada es a través de una puerta doble de cristal bajo un arco ojival en derrame enmarcado y con un tímpano esculpido con esculturas figurativas. El arco ojival tiene de pequeñas figuras de santos tallados. Además, sobre el arco también se pueden ver más estatuas talladas de mayor tamaño dentro de nichos ornamentados, cada esquina está acompañada por pináculos. Sobre la entrada hay un rosetón enmarcado y un nicho sobre una ménsula ornamentada coronado con pináculos. Al extremo derecho se alza la torre del campanario, tiene forma piramidal y está coronada con una cruz metálica. Además, tiene ventanas bajo arcos ojivales decorados con cresterías, vierteaguas y parteluces. Sobre las ventanas se ven ornamentación en bajorrelieve, gárgolas y a los lados contrafuertes que se extienden y a su vez sostienen pináculos con detalles ornamentales. En los alrededores se distinguen edificios, calles y espacios de estacionamiento. La iglesia San Jorge fue inaugurada en el año 1920 siendo oficialmente fundada canónicamente en 1924 tras ser desmembrada de las Parroquias San Mateo y Sagrado Corazón. Su diseño inicial estuvo a cargo de la firma Martínez y Lázaro siendo finalizado en dos años. Seis años después se comienza la construcción de los edificios aledaños a la academia San Jorge. Posteriormente en 1940 la fachada fue remodelada por el arquitecto Rafael Carmoega. Más recientemente en el año 2017 fue restaurada en fases por la firma Astrid Díaz: ADV Architects.

Teatro Yagüez - Mayagüez - 2011 00027

Teatro Yagüez - Mayagüez - 2011 00027



Perspectiva de la sala principal del Teatro Yagüez, localizado entre las calles McKinley y Basora del municipio de Mayagüez. Esta sala tiene forma de herradura o forma de "U". Las butacas son de color rojo, al igual que la mitad de los muros al fondo. Los paneles de mármol y los parapetos de los palcos laterales son de color blanco y contrastan con el resto de los detalles de rojo. También son visibles las puertas de salida. En su origen, en 1909, el teatro fue diseñado y construido de madera, acero y cinc, y se le conoció como la Casa del Arte Sonoro. El dueño original de este teatro fue Francisco Maymón Palmer. En el año 1919 un fuego consumió el edificio. En 1920 se llevó a cabo un nuevo diseño de estilo ecléctico, integrando materiales como el hormigón, la madera, el cristal, el mármol italiano y el yeso para las ornamentaciones. Durante la década de 1950 el teatro mostró signos de deterioro y en el periodo de 1977 a 1984 se llevaron a cabo trabajos de restauración bajo el auspicio del municipio de Mayagüez. Asimismo, durante el periodo de 2002 a 2008 se realizó una tercera restauración al teatro. Este teatro constituye uno de los principales escenarios artísticos y de gran valor histórico en el área oeste de Puerto Rico por acoger a importantes orquestas y compañías de drama y danza. Su arquitectura refleja elementos del neoclásico europeo, el neobarroco y de la arquitectura de principios del siglo XX que se conoció como la Belle Époque.

ArquiTour 2015 - San Juan (Viejo San Juan) - 2015 00010

ArquiTour 2015 - San Juan (Viejo San Juan) - 2015 00010



En el centro de la imagen se aprecia el edificio Casa de España en el Viejo San Juan. Su arquitectura es estilo morisco y resurgimiento español. La fachada es de color blanco y azul, el techo tiene tejas y azulejos, varias torres con parteluces, muros con remates ornamentados y aleros con ménsulas. También posee ventanas en saledizo, ventanas dobles de cristal con montantes y suspendidas. En la parte inferior del edificio se ven unos escalones, vanos de ventanas, postes de luz, un muro con remates y palmas. En el lado derecho del edificio hay una pérgola sostenida por columnas y un balcón con farolas y en el lado izquierdo tiene puertas dobles, farolas y un arco almohadillado en la parte inferior. Casa de España fue incluida en el Registro Nacional de Lugares Históricos de Estados Unidos en 1983. Al lado de la Casa de España se localiza la Biblioteca Carnegie. Se puede ver el techo cubierto de tejas y parte de la fachada color rosado y blanco. Este edificio corresponde al estilo arquitectónico neoclásico y fue incluido en el Registro Nacional de Lugares Históricos de Estados Unidos en 1983. También se ve parcialmente el techo y las paredes color azul celeste del Ateneo Puertorriqueño. Este edificio es representativo del estilo arquitectónico neoárabe. Al lado de este edificio se ubica la Casa Olímpica, actual sede del Comité Olímpico de Puerto Rico. Su estilo arquitectónico es neoclásico y está pintado de color crema y blanco. Se pueden ver las cornisas, ventanas dobles de celosía de madera con montantes y una construcción en la parte superior del edificio que tiene techo a cuatro aguas, una puerta a bisagra y ventanas con cuadrados de cristal. Al lado de este edificio se encuentra el antiguo Casino de Puerto Rico, el cual posteriormente se convirtió en sede del Centro de Recepciones Oficiales del Gobierno de Puerto Rico. Su estilo arquitectónico es Beaux Arts, está pintado de color gris y blanco. Se nota el techo mansarda, las cornisas, balaustres, molduras rectangulares y ventanas dobles de cristal. Fue incluido en el Registro de Lugares Históricos de Estados Unidos en 1977. En el lado derecho de la imagen se aprecian unos trabajadores con máquinas de construcción asfaltando la calle de la Avenida Muñoz Rivera. También se nota parcialmente las murallas en mampostería y las troneras del Castillo San Cristóbal. Mientras que en el lado izquierdo se puede ver el edificio Ramón Mellado Parsons pintado de color azul. Es de tres plantas, tiene ventanas de cristal, un balcón con barandas y un techo inclinado que sobresale del edificio. Posee una escalera que conduce a una azotea rodeada por barandas metálicas. Continuo a este edificio se localiza la Administración para el Cuidado y Desarrollo Integral de la Niñez que está pintado de color rojo con blanco, tiene ventanas con vidrios reflectivos, parapetos y una construcción a modo de torre con techo a cuatro aguas en la parte superior. Adyacente a este edificio se encuentra la escuela José Julián Acosta pintada de color azul turquesa oscuro. Es representativo de la arquitectura estilo misión. Se ven las cornisas, un frontón, molduras y ventanas rectangulares blancas. A distancia se observa la parte superior del Teatro Alejandro Tapia y Rivera. Se notan las cornisas y el frontón triangular. También se ve una cúpula semicircular con linterna de color blanco. En la imagen se aprecian varios edificios de varias plantas, balcones, cornisas, vanos de las ventanas y postes de servicios.

Catedral de Nuestra Señora de la Guadalupe - Ponce - 2014 00028

Catedral de Nuestra Señora de la Guadalupe - Ponce - 2014 00028



Vista desde el techo de la Catedral de Nuestra Señora de la Guadalupe ubicada en el pueblo costero de Ponce. La catedral es de dos niveles en mampostería y ladrillo con características del estilo Neoclásico. Desde el techo se pueden ver dos torres de campanario que flanquean la parte frontal de la catedral divididas en tramos. Son de bases cuadradas y en el tercer tramo muestran ventanas dobles de madera bajo arcos semicirculares que a su vez están enmarcados con molduras, coronados con espinazos y entablamentos. Además, están flanqueados por pares de columnas acanaladas que sostienen el entablamento. Los siguientes tramos de las torres son hexagonales y están decorados con cornisas, molduras, un friso con guirnaldas y ánforas. Por otra parte, las cúpulas muestran óculos de vidrios pintados enmarcados con molduras. A su vez, las cúpulas están coronadas con unas linternas de aberturas semicirculares y cruces. En medio del techo también sobresale un frontón triangular coronado con una cruz y flanqueado por estatuas. Los inicios de la Catedral de Nuestra Señora de la Guadalupe datan de 1670 cuando apenas era una ermita de yagua y palma, fue clausurada en 1820 por las malas condiciones del edificio. El comienzo de la construcción de la iglesia actual data de 1835 y fue inaugurada en 1839. Sin embargo, el terremoto de 1918 destruyó ambas torres por lo que pasó a ser reconstruida con un diseño nuevo entre 1918 y 1937. Años más tarde, en 1984 fue incluida en el Registro Nacional de Lugares Históricos. Posteriormente fue restaurada nuevamente en 1992.

Capilla Nuestra Señora de Lourdes - San Juan (Miramar) - 2011 00038

Capilla Nuestra Señora de Lourdes - San Juan (Miramar) - 2011 00038



Perspectiva de la fachada principal y lateral de la Capilla Nuestra Señora de Lourdes, en Miramar, San Juan. La fachada exhibe una torre de campanario que tiene una entrada porticada, contrafuertes, aberturas arqueadas levemente apuntadas, cornisas, almenas y gárgolas que decoran las esquinas y funcionan como desagües. El tramo central se distingue por una ventanal y un rosetón con vitrales y tracerías. Una cruz céltica corona el pináculo del hastial. En la fachada lateral también resalta una abertura con lumbreras, ventanas con rejas, contrafuertes y una entrada porticada. En el exterior se encuentra un jardín con una escultura de Nuestra Señora de Lourdes. Una verja de hierro delimita el área de la capilla y la separa de su entorno inmediato. La capilla es de hormigón con un acabado rusticado que imita la piedra y la sillería, mientras que el techo es de madera y está dispuesto a dos aguas. La construcción de la Capilla Nuestra Señora de Lourdes se inició en 1907 y su inauguración tuvo lugar en 1908. Este edificio es representativo de las iglesias protestantes que se establecieron en Puerto Rico tras el cambio de régimen en 1898. Fue el primer templo de la Iglesia Metodista Episcopal de Puerto Rico, luego, en 1917, pasó a manos de la Iglesia Unida de Puerto Rico y finalmente, a la Iglesia Católica Romana, adscrita a la arquidiócesis de San Juan en 1959. Su diseño y características corresponden al estilo neogótico o resurgimiento gótico. Este diseño, además, imita a un edificio de la Iglesia Episcopal en la calle North Market, en Jacksonville Florida, donde su arquitecto tenía su residencia entonces.

Calle de la Fortaleza 61 - Iglesia Presbiteriana Hugh O’Neill Memorial - San Juan (Viejo San Juan) - 2015 00001

Calle de la Fortaleza 61 - Iglesia Presbiteriana Hugh O’Neill Memorial - San Juan (Viejo San Juan) - 2015 00001



Iglesia Presbiteriana Hugh O’Neill Memorial en el Viejo San Juan. Se observa la fachada del edificio de un piso construido sobre pedestal, estilo colonial español. Tres escalones del ancho de la fachada y con losetas color terracota dan acceso a la entrada principal. Los escalones tienen dos barandas de metal con pasamanos. La entrada es un arco de medio punto con borde de moldura acanalada, puerta de madera con doble hoja y dos escalones. A los lados de la entrada hay dos lámparas tipo farol. Sobre el arco hay un rosetón con vitrales y moldura simple. Los extremos de la pared tienen pilastras desnudas que llegan hasta la cornisa del edificio. Ambas esquinas tienen remates en forma de copa con florones, sobre bases cuadrangulares. En el centro del parapeto hay un arco coronado con una cruz. Se puede ver una entrada lateral, también en forma de arco de medio punto que tiene portón de rejas. La sección que contiene la nave de la iglesia tiene un anexo de menor altura cuya pared frontal se encuentra retranqueada con relación a la fachada principal del edificio. Hay una entrada de arco y una cornisa con el mismo diseño de las que se encuentran en la fachada principal. Sobre este arco hay una placa de metal con el nombre de la iglesia, "Hugh O'neil Memorial Presbyterian Church". A un lado del arco se pueden ver una lámpara tipo farol y un contador eléctrico. La base del edificio tiene una moldura horizontal que se extiende hasta el anexo. Una reja separa los primeros escalones de la entrada hacia el anexo, de esta reja cuelga una cadena que delimita la entrada. En la acera y frente a la entrada pricipal se ven tres balizas de hierro y un tiesto con una planta ornamental. La iglesia está pintada de verde con las molduras y cornisas blancas.

Capilla Nuestra Señora de Lourdes - San Juan (Miramar) - 2011 00121

Capilla Nuestra Señora de Lourdes - San Juan (Miramar) - 2011 00121



Vista de la parte posterior de la Capilla Nuestra Señora de Lourdes, en Miramar, San Juan. Desde este ángulo sobresale el muro semicircular que alberga el altar, los contrafuertes y un rosetón de tres puntas. Las ventanas del lateral están formadas por tres paneles con vitrales y tracerías. La torre del campanario tiene una entrada porticada, contrafuertes, arcos emparejados levemente apuntados y con parteluz, una moldura, una cornisa, gárgolas que decoran las esquinas superiores y almenas como coronamiento. El edificio es de hormigón con un acabado rusticado que imita la piedra y la sillería, mientras que el techo es de madera y está dispuesto a dos aguas. Una verja de hierro rodea la capilla y la separa de su entorno inmediato. La construcción de la Capilla Nuestra Señora de Lourdes se inició en 1907 y su inauguración tuvo lugar en 1908. Este edificio es representativo de las iglesias protestantes que se establecieron en Puerto Rico tras el cambio de régimen en 1898. Fue el primer templo de la Iglesia Metodista Episcopal de Puerto Rico, luego, en 1917, pasó a manos de la Iglesia Unida de Puerto Rico y finalmente, a la Iglesia Católica Romana, adscrita a la arquidiócesis de San Juan en 1959. Su diseño y características corresponden al estilo neogótico o resurgimiento gótico. Este diseño además, imita a un edificio de la Iglesia Episcopal en la calle North Market, en Jacksonville Florida, donde su arquitecto tenía su residencia entonces.

Arsenal de La Marina en La Puntilla - San Juan (Viejo San Juan) - 2011 00038

Arsenal de La Marina en La Puntilla - San Juan (Viejo San Juan) - 2011 00038



Vista aérea de varios edificios del barrio La Puntilla en el Viejo San Juan. En el lado izquierdo de la imagen se localiza el edificio del United States Custom House, también conocido como la Aduana de San Juan. Su estilo arquitectónico es representativo del resurgimiento español y su construcción es obra del arquitecto Albert B. Nichols. Fue construido en 1924 y está pintado de color rosado, blanco y terracota. El edificio es de dos plantas y tiene forma de rectángulo irregular con una de sus esquinas proyectada en ángulo. La parte superior del edificio tiene techo de tejas, seis buhardillas, cornisas y cinco arcos semicirculares con puertas a modo enrollable. En la parte inferior del edificio se ve una fachada en ángulo con una puerta, antenas, sistema de aire acondicionado y ventiladores. La Aduana de San Juan fue incluida en el Registro Nacional de Lugares Históricos en 1988. Al lado de este edificio se encuentra el antiguo Arsenal de La Marina Española. Su estilo arquitectónico es representativo del neoclásico y fue construido en 1800. Está pintado de color amarillo, crema, blanco y marrón. La entrada principal tiene un pórtico sostenido por cuatro columnas que a su vez sostienen un entablamento con frisos. El edificio tiene una acrótera, cornisas, parapetos, arcos semicirculares, pilastras, faroles y vanos de ventanas. También se puede ver en la parte superior del edificio la cúpula semiesférica coronada con una linterna de la capilla de las Madres Carmelitas. Este edificio está pintado de color salmón, blanco y terracota. Posteriormente el Arsenal de la Marina Española se utilizó para exhibiciones y oficinas administrativas del Instituto de Cultura Puertorriqueña. Adyacente a este edificio se localiza el United States Coast Guard, el cual está pintado de color blanco, marrón y terracota. En la parte superior del edificio se ve una construcción con techo en forma de arco, vanos de ventanas enmarcadas con molduras blancas y ventanas abatibles hacia afuera. En la parte inferior se ve una entrada con una cortina de lona, ventanas con molduras blancas y árboles. A distancia se divisa la bahía de San Juan, palmas y árboles. En la imagen también se puede ver una carretera, aceras, automóviles, personas y se nota parcialmente parte del edificio del condominio La Puntilla.

Condado Vanderbilt - San Juan (Condado) - 2013 00199

Condado Vanderbilt - San Juan (Condado) - 2013 00199



Vista del interior del Hotel Condado Vanderbilt ubicado en la avenida Ashford del pueblo costero de San Juan. El hotel es de varios niveles con características del estilo resurgimiento español. El vestíbulo tiene dos niveles con pisos de mármol en dos colores con motivo ajedrezado. El primer nivel tiene unas escaleras en espiral de mármol negro con balaustradas de hierro oramental y pasamanos de madera. La pared también tiene un pasamanos metálico que se alinea con el de la escalera. El Hotel Condado Vanderbilt fue comisionado en 1917 por Frederick William Vanderbilt. Finalmente el 16 de octubre de 1919 fue inaugurado el primer gran hotel de lujo del Caribe. En el año 1930 fue vendido y pasó a llamarse Hotel Condado, posteriormente en 1940 se convirtió en el primer hotel en la isla en tener un casino. Además, en 1950 volvieron a cambiar su nombre a Condado Beach Hotel y se añadieron habitaciones, salones de actividades y un restaurante. Luego de considerar su demolición fue incluido en el Registro Nacional de Lugares Históricos en el año 1988. Más recientemente fue remodelado entre los años 2008 a 2014 por los arquitectos Thomas S. Marvel y José Marchand Sifre añadiendo dos torres de suites modernas. Además, la planificación y restauración de los espacios estuvo a cargo del Arquitecto Jonathan Parks y la firma SOLSTICE Planning and Architecture. Los diseños interiores estuvieron a cargo del diseñador Jorge Roselló.

Condado Vanderbilt - San Juan (Condado) - 2013 00066

Condado Vanderbilt - San Juan (Condado) - 2013 00066



Vista del patio trasero del Hotel Condado Vanderbilt ubicado en la avenida Ashford del pueblo costero de San Juan. El hotel es de varios niveles con techo a cuatro aguas revestido por tejas y características del estilo resurgimiento español. El patio trasero tiene el piso cubierto por baldosas de cerámica. Además, está rodeado por una balaustrada de cristal modulada por pilares cuadrados que a su vez presiden la costa del océano atlántico. Hay plantas en macetas decorativas, muebles de jardín, mesas con sombrillas a juego y remates decorativos con formas cónicas. La fachada trasera del edificio tiene una extensión moderna con amplios ventanales de cristal interrumpidos por columnas cuadradas. También se pueden ver un extremo de una de las torres laterales del hotel con ventanas dobles de cristal enmarcadas con molduras y balcones con balaustradas de cristal. El Hotel Condado Vanderbilt fue comisionado en 1917 por Frederick William Vanderbilt. Finalmente el 16 de octubre de 1919 fue inaugurado el primer gran hotel de lujo del Caribe. En el año 1930 fue vendido y pasó a llamarse Hotel Condado, posteriormente en 1940 se convirtió en el primer hotel en la isla en tener un casino. Además, en 1950 volvieron a cambiar su nombre a Condado Beach Hotel y se añadieron habitaciones, salones de actividades y un restaurante. Luego de considerar su demolición fue incluido en el Registro Nacional de Lugares Históricos en el año 1988. Más recientemente fue remodelado entre los años 2008 a 2014 por los arquitectos Thomas S. Marvel y José Marchand Sifre añadiendo dos torres de suites modernas. Además, la planificación y restauración de los espacios estuvo a cargo del Arquitecto Jonathan Parks y la firma SOLSTICE Planning and Architecture. Los diseños interiores estuvieron a cargo del diseñador Jorge Roselló.

Condado Vanderbilt - San Juan (Condado) - 2013 00175

Condado Vanderbilt - San Juan (Condado) - 2013 00175



Vista del interior del Hotel Condado Vanderbilt ubicado en la avenida Ashford del pueblo costero de San Juan. El hotel es de varios niveles con características del estilo resurgimiento español. En el interior se distingue un salón de actividades con el techo artesonado dividido en espacios cúbicos decorado con una lámpara colgante de vidrio pintado en varios colores y pequeños focos de luz individual en los alrededores. La lámpara es esférica y está rodeada por brazos de color salmón con detalles de color negro. Además, de la parte de abajo de esta cuelgan pequeñas piedras de color dorado ubicadas de forma escalonada. El Hotel Condado Vanderbilt fue comisionado en 1917 por Frederick William Vanderbilt. Finalmente el 16 de octubre de 1919 fue inaugurado el primer gran hotel de lujo del Caribe. En el año 1930 fue vendido y pasó a llamarse Hotel Condado, posteriormente en 1940 se convirtió en el primer hotel en la isla en tener un casino. Además, en 1950 volvieron a cambiar su nombre a Condado Beach Hotel y se añadieron habitaciones, salones de actividades y un restaurante. Luego de considerar su demolición fue incluido en el Registro Nacional de Lugares Históricos en el año 1988. Más recientemente fue remodelado entre los años 2008 a 2014 por los arquitectos Thomas S. Marvel y José Marchand Sifre añadiendo dos torres de suites modernas. Además, la planificación y restauración de los espacios estuvo a cargo del Arquitecto Jonathan Parks y la firma SOLSTICE Planning and Architecture. Los diseños interiores estuvieron a cargo del diseñador Jorge Roselló.

Teatro Yagüez - Mayagüez - 2011 00051

Teatro Yagüez - Mayagüez - 2011 00051



Perspectiva de las butacas de la sala principal y los palcos del Teatro Yagüez, localizado en las calles McKinley y Basora del municipio de Mayagüez. Las butacas son de color rojo y contrastan con las yeserías ornamentales blancas en los parapetos que delimitan los palcos. Las paredes laterales exhiben textura de mármol. También son notables las cortinas rojas entre los pilares del palco del primer nivel. En el área del escenario se ubica un cúmulo de tablas de madera. Desde esta perspectiva, la planta del teatro exhibe una forma curvada o forma de "U". En su origen, en 1909, el teatro fue diseñado y construido de madera, acero y cinc, y se le conoció como la Casa del Arte Sonoro. El dueño original de este teatro fue Francisco Maymón Palmer. En el año 1919 un fuego consumió el edificio. En 1920 se llevó a cabo un nuevo diseño de estilo ecléctico, integrando materiales como el hormigón, la madera, el cristal, el mármol italiano y el yeso para las ornamentaciones. Durante la década de 1950 el teatro mostró signos de deterioro y en el periodo de 1977 a 1984 se llevaron a cabo trabajos de restauración bajo el auspicio del municipio de Mayagüez. Asimismo, durante el periodo de 2002 a 2008 se realizó una tercera restauración al teatro. Este teatro constituye uno de los principales escenarios artísticos y de gran valor histórico en el área oeste de Puerto Rico por acoger a importantes orquestas y compañías de drama y danza. Su arquitectura refleja elementos del neoclásico europeo, el neobarroco y de la arquitectura de principios del siglo XX que se conoció como la Belle Époque.

Condado Vanderbilt - San Juan (Condado) - 2013 00160

Condado Vanderbilt - San Juan (Condado) - 2013 00160



Vista de los espacios interiores del Hotel Condado Vanderbilt ubicado en la avenida Ashford del pueblo costero de San Juan. El hotel es de varios niveles con características del estilo resurgimiento español. En el interior se distingue un salón de actividades con el piso parcialmente revestido por una alfombra con motivos ornamentales en varios tonos de rojo y morado. Las paredes están revestidas de mármol en dos colores y en algunos espacios tienen amplios espejos. Además, se distinguen puertas de madera, consolas de pared en madera y lámparas de pared en vidrio pintado de dos colores. También hay una pared con ventanas y una puerta doble de cristal cubiertas por cortinas de tela. Por otra parte, el techo es artesonado y está dividido en espacios cúbicos con profundidad decorados con lámparas colgantes de vidrio pintado en dos colores a juego con las de las paredes y pequeños focos de luz individual. El Hotel Condado Vanderbilt fue comisionado en 1917 por Frederick William Vanderbilt. Finalmente el 16 de octubre de 1919 fue inaugurado el primer gran hotel de lujo del Caribe. En el año 1930 fue vendido y pasó a llamarse Hotel Condado, posteriormente en 1940 se convirtió en el primer hotel en la isla en tener un casino. Además, en 1950 volvieron a cambiar su nombre a Condado Beach Hotel y se añadieron habitaciones, salones de actividades y un restaurante. Luego de considerar su demolición fue incluido en el Registro Nacional de Lugares Históricos en el año 1988. Más recientemente fue remodelado entre los años 2008 a 2014 por los arquitectos Thomas S. Marvel y José Marchand Sifre añadiendo dos torres de suites modernas. Además, la planificación y restauración de los espacios estuvo a cargo del Arquitecto Jonathan Parks y la firma SOLSTICE Planning and Architecture. Los diseños interiores estuvieron a cargo del diseñador Jorge Roselló.

Ateneo Puertorriqueño - San Juan (Viejo San Juan) - 2010 00009

Ateneo Puertorriqueño - San Juan (Viejo San Juan) - 2010 00009



El Ateneo Puertorriqueño localizado en el barrio Puerta de Tierra en el Viejo San Juan. Fue fundado en 1876 y construido por el ingeniero Ramón Carbia Burt en 1923. Es la institución cultural más antigua de Puerto Rico, también se le conoce como "la Docta Casa". Su estilo arquitectónico es representativo del neoárabe. Fue nominado para el Registro Nacional de Lugares Históricos en 1984. Está pintado de color blanco y terracota. Se observa que la parte superior de la fachada tiene un alero cubierto con tejas sostenido por ménsulas de madera. También tiene siete arcos polilobulados interrumpidos por ocho pilastras que tienen azulejos en la parte superior. En la parte inferior de la fachada resaltan seis pilastras que sostienen un arco semicircular y entablamento cubierto de azulejos con motivos florales. El vano de la puerta tiene escrito en la parte superior "Ateneo Puertorriqueño" y también se puede ver a una persona entrando al edificio. En ambos extremos de las pilastras se aprecian frisos en altos relieves con representaciones de figuras humanas que fueron esculpidos por el artista italiano Arrighini. El edificio también tiene ventanas de cristal con marcos de madera abisagradas. Frente a la entrada hay unas escalinatas y dos farolas. En los alrededores se ven árboles, palmas, una decoración alusiva a los tres Reyes Magos, grama y una acera. Posteriormente el Ateneo Puertorriqueño se dedicó a fomentar el teatro, música, cine, literatura, historia, ciencias, ciencias morales y políticas y las artes plásticas puertorriqueñas.

Condado Vanderbilt - San Juan (Condado) - 2013 00023

Condado Vanderbilt - San Juan (Condado) - 2013 00023



Vista del interior del Hotel Condado Vanderbilt ubicado en la avenida Ashford del pueblo costero de San Juan. El hotel es de varios niveles con características del estilo resurgimiento español. El vestíbulo tiene dos niveles con techos abovedados, lámparas colgantes, lámparas de pared a juego y en el fondo la pared está revestida por espejos. La nave lateral tiene vanos semicirculares coronados con pequeños emblemas. Además, hay balaustradas de hierro ornamental con pasamanos de madera dividiendo los espacios. También se distinguen sillas en madera y puertas dobles de cristal bajo arco semicirculares. El Hotel Condado Vanderbilt fue comisionado en 1917 por Frederick William Vanderbilt. Finalmente el 16 de octubre de 1919 fue inaugurado el primer gran hotel de lujo del Caribe. En el año 1930 fue vendido y pasó a llamarse Hotel Condado, posteriormente en 1940 se convirtió en el primer hotel en la isla en tener un casino. Además, en 1950 volvieron a cambiar su nombre a Condado Beach Hotel y se añadieron habitaciones, salones de actividades y un restaurante. Luego de considerar su demolición fue incluido en el Registro Nacional de Lugares Históricos en el año 1988. Más recientemente fue remodelado entre los años 2008 a 2014 por los arquitectos Thomas S. Marvel y José Marchand Sifre añadiendo dos torres de suites modernas. Además, la planificación y restauración de los espacios estuvo a cargo del Arquitecto Jonathan Parks y la firma SOLSTICE Planning and Architecture. Los diseños interiores estuvieron a cargo del diseñador Jorge Roselló.

Hacienda Irurena o Labadie - Palacete Los Moreau - Mansion Labadie (1905) - Moca - 2013 00033

Hacienda Irurena o Labadie - Palacete Los Moreau - Mansion Labadie (1905) - Moca - 2013 00033



Hacienda Irurena en Moca, también conocida como Hacienda Labadie, Palacete Los Moreau y Mansión Labadie. Se observa una de las fachadas laterales del edificio de dos pisos construido en hormigón armado. Este tiene diseño ecléctico con influencias del estilo château. La fachada comienza con una torre dividida por cornisas, en el primer nivel hay una ventana con moldura y cornisa, en el segundo nivel otra ventana con moldura ornamentada. La torre está rematada con una cúpula de bulbo y antecede dos balcones, cada uno con cuatro columnas de orden jónico y barandas con balaustres de hierro muy ornamentados. En los balcones hay puertas de doble hoja con celosías y paneles de vidrio enmarcadas con molduras. La sección posterior de la fachada muestra hiladas que dividen los niveles y tiene puertas con celosías y antepechos con barandas de hierro. El segundo nivel también tiene una ventana en el extremo posterior. Los bordes de las paredes tienen sillares de esquina. Sobre la sección de los corredores se puede ver una buhardilla con techo a dos aguas. Frente a la fachada se puede notar parte del patio con arbustos, un tiesto de gran tamaño con flores de colores y dos banquetas de hierro y madera. La Hacienda Irurena o Labadie fue hacienda cafetalera en el siglo XIX y a una central azucarera en el siglo XX, este es el único edificio aún en pie que perteneció a empresas dedicadas a ambos cultivos. Esta hacienda está inmortalizada en la literatura puertorriqueña como la Hacienda Palmeras, residencia de la familia Moreau en la novela La llamarada (1935) de Enrique Laguerre.

Parroquia San Antonio de Padua - Barranquitas - 2012 00009

Parroquia San Antonio de Padua - Barranquitas - 2012 00009



Vista de la Parroquia San Antonio de Padua en el pueblo de Barranquitas. En primer plano se divisa la plaza pública Bicentenaria Monseñor Miguel Ángel Mendoza decorada con un gazebo de hierro ornamental, zonas ajardinadas, bancos de hierro ornamental, postes de luz, fuentes decorativas y carpas de plástico. Frente a la plaza está la Parroquia San Antonio de Padua. La parroquia es de dos niveles con techo a dos aguas y un diseño ecléctico inspirado en los estilos resurgimiento español, art deco y neoclásico. La fachada frontal está decorada con una entrada enmarcada y flanqueada por pilastras sobre la cual hay un nicho sostenido por una ménsula en donde además hay una baranda y una estatua de San Antonio de Padua. Se encuentra frente a una ventana de cristal con un arco semicircular enmarcado y flanqueado por pilastras. La fachada también tiene ventanas de cristal, un óculo y un frontón curvilíneo coronado con una cruz. Además, del edifico sobresale un campanario decorado con remates, cornisas, molduras coronado con tejas y una cruz. La Parroquia San Antonio de Padua fue construida por primera vez en 1792, sin embargo, tuvo que ser reconstruida en cuatro ocasiones tras ser destruida por varios huracanes. En la década de 1930 el edificio también era utilizado como academia, además, contaba con un cine para los estudiantes y posteriormente fue abierto al público en general; permaneciendo en uso hasta la década de 1970. Finalmente, en 1933 fue reconstruida con el diseño actual y restaurado en la década de 1980.

Condado Vanderbilt - San Juan (Condado) - 2013 00001

Condado Vanderbilt - San Juan (Condado) - 2013 00001



Vista del interior del Hotel Condado Vanderbilt ubicado en la avenida Ashford del pueblo costero de San Juan. El hotel es de varios niveles con características del estilo resurgimiento español. En el interior se distingue una sala de conferencias, tiene las paredes revestidas de madera, puertas de madera y el piso cubierto por una alfombra de varios colores. Por otra parte, el techo tiene una plataforma circular con pequeños focos de luz individual y una lámpara colgante. En medio hay una mesa redonda de madera acompañada por sillas de oficinas. Sobre la mesa hay tapetes, copas y cubiertos. El Hotel Condado Vanderbilt fue comisionado en 1917 por Frederick William Vanderbilt. Finalmente el 16 de octubre de 1919 fue inaugurado el primer gran hotel de lujo del Caribe. En el año 1930 fue vendido y pasó a llamarse Hotel Condado, posteriormente en 1940 se convirtió en el primer hotel en la isla en tener un casino. Además, en 1950 volvieron a cambiar su nombre a Condado Beach Hotel y se añadieron habitaciones, salones de actividades y un restaurante. Luego de considerar su demolición fue incluido en el Registro Nacional de Lugares Históricos en el año 1988. Más recientemente fue remodelado entre los años 2008 a 2014 por los arquitectos Thomas S. Marvel y José Marchand Sifre añadiendo dos torres de suites modernas. Además, la planificación y restauración de los espacios estuvo a cargo del Arquitecto Jonathan Parks y la firma SOLSTICE Planning and Architecture. Los diseños interiores estuvieron a cargo del diseñador Jorge Rosello.

Bastión de las Palmas de San José - San Juan (Viejo San Juan) - 2012 00025

Bastión de las Palmas de San José - San Juan (Viejo San Juan) - 2012 00025



Bastión de las Palmas de San José, localizado en la esquina de las calles Tetuán y San José en el Viejo San Juan. Fue construido en el siglo XVII, en 1625 luego del ataque holandés al Viejo San Juan. Se observan dos banquetas entres dos árboles, una baranda y una pared amurallada de ladrillo y mampostería en piedra. Posteriormente el Bastión de las Palmas de San José se convirtió en un parque. En el lado derecho de la imagen se ve parcialmente un edificio pintado de color azul y blanco que tiene balconeras sostenidas por ménsulas, barandas y molduras blancas. También se aprecia un arco semicircular de la Capilla del Santo Cristo de Salud, también conocida como la Capilla del Cristo. Fue construida en 1753 por el arquitecto e ingeniero militar Juan Francisco Mestre. La capilla tiene rasgos característicos del estilo arquitectónico mudéjar. Está construida en ladrillo y mampostería. De igual forma se aprecia la fachada lateral del antiguo Hospital de la Concepción, que posteriormente pasó a ser el Convento y Casa de Salud Siervas de María. El edificio está pintado de color crema y blanco. Tiene parapetos, cornisas, y ventanas de celosía con montantes. En el lado izquierdo de la imagen se divisa la torre con cúpula ubicada en la parte superior de la antigua cárcel La Princesa. Está pintado de color gris y blanco. Este edificio fue construido en 1837 y fue utilizado como cárcel hasta 1976 cuando fue cerrada por problemas estructurales. En 1992 el gobierno de Puerto Rico la restauró para ser la sede de la Compañía de Turismo de Puerto Rico. Esta restauración estuvo a cargo del arquitecto Miguel Carlo. En la imagen también se divisan palmas, árboles, la bahía de San Juan y las chimeneas de la Central Palo Seco en el municipio de Toa Baja.

ArquiTour 2015 - San Juan (Viejo San Juan) - 2015 00016

ArquiTour 2015 - San Juan (Viejo San Juan) - 2015 00016



Escuela José Julián Acosta y Calbo en el Viejo San Juan, originalmente conocida como San Juan School Numer One. El edificio es representativo de la arquitectura estilo misión, está pintada de color turquesa y blanco. La entrada principal tiene un pórtico con columnas y arcos semicirculares. En la parte superior hay un balcón abierto con balaustradas y puertas flanqueadas por dos ventanas dobles de madera con un techo sostenido por ménsulas. En la parte de arriba hay un frontón con óculo y una inscripción que dice "José Julián Acosta School" que está decorado con guirnaldas. También en la parte superior posee cornisas con un parapeto. La fachada tiene bajos relieves y está dividida por ventanas dobles de madera enmarcadas en rectángulos con molduras blancas. Frente a la fachada hay arbustos y tres astas con banderas. Frente a la escuela se encuentra la Avenida de La Constitución con varios automóviles, palmas, postes de luz, acera y unos reflectores de tránsito anaranjados. En la parte posterior de la escuela, se localiza la torre con reloj y el estacionamiento multipiso Convadonga. A distancia se ve parcialmente el muelle #4 del terminal de cruceros. Esta construcción es color anaranjado y crema, tiene un techo inclinado sostenido por pilares y en la entrada principal se divisan dos astas con la bandera de Puerto Rico y Estados Unidos. También se observa la Bahía de San Juan, unos vagones y hangares del Aeropuerto Fernando Luis Ribas Dominicci, conocido comúnmente como el Aeropuerto de Isla Grande.

Antigua Iglesia El Nazareno - Catedral de la Música - San Juan (Miramar) - 2016 00004

Antigua Iglesia El Nazareno - Catedral de la Música - San Juan (Miramar) - 2016 00004



Perspectiva desde la galería del edificio de la antigua Iglesia El Nazareno, también conocido como la Catedral de la Música Latina y la Casa Viera. Este edificio está localizado en el 909 de la avenida Fernández Juncos, esquina calle Hoare en la zona de Miramar, Santurce, en el municipio de San Juan. El interior consta de una nave con el piso cubierto con un mosaico geométrico. El segundo nivel se distingue por una galería delimitada por una balaustrada de madera. Bajo esta balaustrada se extiende una serie de discos de vinilo que se han colocado de manera ornamental. En el segundo nivel se ubica un sofá, una mesa y varios objetos como cajas y recipientes. A través de la nave principal se encuentran las estanterías y cajas que exhiben los discos. En el primer nivel también se encuentran el mostrador y la caja registradora, ubicados entre la puerta principal de doble hoja y una puerta interior con un montante de abanico. En las paredes de ambos niveles resaltan varios carteles y retratos de artistas del campo musical. Este edificio de hormigón, construido en 1947 en el estilo resurgimiento español, originalmente albergó una iglesia episcopal, conocida como El Nazareno en Santurce. Posteriormente, acogió la Casa Viera, la cual constituyó una de las más grandes tiendas de música del Caribe. A partir del año 2015 el edificio fue adquirido por la compañía Puerto Rico Island Holdings mediante una subasta realizada por el banco Scotiabank.

Bastión de las Palmas de San José - San Juan (Viejo San Juan) - 2012 00006

Bastión de las Palmas de San José - San Juan (Viejo San Juan) - 2012 00006



Bastión de las Palmas de San José, localizado en la esquina de las calles Tetuán y San José en el Viejo San Juan. Fue construido en el siglo XVII, en 1625, luego del ataque holandés al Viejo San Juan. Se observa la parte superior de una garita que tiene una cúpula semiesférica, cornisas y clave. Hay una muralla de mampostería de piedra y ladrillos y una baranda color negra. Se aprecian unos escalones con ladrillos, árboles, varias personas sentadas en banquetas y dos sillas esculpidas con la figura de un gato. Posteriormente el Bastión de las Palmas de San José se convirtió en un parque. En el lado derecho de la imagen hay un edificio de color anaranjado y blanco. Tiene un pórtico sostenido por columnas cuadradas y un vano semicircular con rejas blancas. Al lado del parque se observa la parte posterior de la Capilla del Santo Cristo de Salud, también conocida como la Capilla del Cristo. Fue construida en 1753 por el arquitecto e ingeniero militar Juan Francisco Mestre. La capilla tiene rasgos característicos del estilo arquitectónico mudéjar. Está construida en ladrillo y mampostería. De igual forma se ve la fachada lateral del antiguo Hospital de la Concepción, hoy es el Convento y Casa de Salud Siervas de María. El edificio está pintado de color crema y blanco. Tiene parapetos, cornisas, ventanas de celosía color marrón y montantes. También se aprecia la bahía de San Juan.

Capilla Nuestra Señora de Lourdes - San Juan (Miramar) - 2011 00010

Capilla Nuestra Señora de Lourdes - San Juan (Miramar) - 2011 00010



Detalle de un pórtico de la Capilla Nuestra Señora de Lourdes, en Miramar, San Juan. Un conjunto de escalones flanqueados por zancas conducen al pórtico con la entrada hacia la nave secundaria. Esta entrada está formada por un arco levemente apuntado con rejas. El arco, además, está acentuado por una moldura que se alza sobre una ménsula ornamental. A un extremo es visible un contrafuerte. Sobre la puerta se alza un gablete con tracería y con ornamentos foliados tipo croché o frondas. A un lado del pórtico se ubica una ventana con tracería, vitrales y enmarcada por una moldura y un umbral. El techo es de madera y está dispuesto a dos aguas. El edificio es de hormigón con un acabado rusticado que imita la piedra y la sillería. La construcción de la Capilla Nuestra Señora de Lourdes se inició en 1907 y su inauguración tuvo lugar en 1908. Este edificio es representativo de las iglesias protestantes que se establecieron en Puerto Rico tras el cambio de régimen en 1898. Fue el primer templo de la Iglesia Metodista Episcopal de Puerto Rico, luego, en 1917, pasó a manos de la Iglesia Unida de Puerto Rico y finalmente, a la Iglesia Católica Romana, adscrita a la arquidiócesis de San Juan en 1959. Su diseño y características corresponden al estilo neogótico o resurgimiento gótico. Este diseño además, imita a un edificio de la Iglesia Episcopal en la calle North Market, en Jacksonville Florida, donde su arquitecto tenía su residencia entonces.

Casa Dr. Agustín Stahl Stamm - Bayamón - 2011 00040

Casa Dr. Agustín Stahl Stamm - Bayamón - 2011 00040



Casa Dr. Agustín Stahl Stamm en Bayamón. Vista del patio interior donde se observa el aljibe con un cuerpo cilíndrico de cemento y ladrillo, una tapa de madera y un gancho con marco ornamental de hierro. Al lado izquierdo de la pared de mampostería con enlucido se puede ver una puerta de madera de doble hoja cerrada y a la derecha, una entrada con un arco en ladrillos en la parte superior que lleva a otra habitación. En el área del corredor se observan molduras de cuadros y una persona frente a otra puerta con un montante de sol trunco. La pared del patio exhibe también una placa de bronce con información sobre el aljibe, una lámpara tipo candelabro y una moldura de madera en el techo. El piso es de losas de terracota. La casa, construida en la década de 1840, exhibe características arquitectónicas neoclásicas y no solo fue la residencia del internacionalmente reconocido científico puertorriqueño Agustín Stahl (1842-1917), sino que también sirvió de consultorio médico, laboratorio y almacén para sus colecciones de historia natural y antropología. Fue adquirida y parcialmente restaurada por la Alcaldía de Bayamón en el año 2000, quien posteriormente la convirtió en museo. Aunque no existen planos históricos de la planta de la casa, durante el proceso de restauración no se realizó ninguna modificación y se conservó así su integridad en los materiales, la distribución espacial, ubicación y su ambiente.

Condado Vanderbilt - San Juan (Condado) - 2013 00167

Condado Vanderbilt - San Juan (Condado) - 2013 00167



Vista de los espacios interiores del Hotel Condado Vanderbilt ubicado en la avenida Ashford del pueblo costero de San Juan. El hotel es de varios niveles con características del estilo resurgimiento español. En el interior se distingue un salón de actividades con el techo decorado con una gran lámpara colgante de vidrio pintado en varios colores y pequeños focos de luz individuales rodeándola. La lampara tiene una forma esférica y está rodeada por brazos de color salmón con detalles negros. En la parte de abajo tiene pequeñas piedras ubicadas de manera escalonada de color dorado. El Hotel Condado Vanderbilt fue comisionado en 1917 por Frederick William Vanderbilt. Finalmente el 16 de octubre de 1919 fue inaugurado el primer gran hotel de lujo del Caribe. En el año 1930 fue vendido y pasó a llamarse Hotel Condado, posteriormente en 1940 se convirtió en el primer hotel en la isla en tener un casino. Además, en 1950 volvieron a cambiar su nombre a Condado Beach Hotel y se añadieron habitaciones, salones de actividades y un restaurante. Luego de considerar su demolición fue incluido en el Registro Nacional de Lugares Históricos en el año 1988. Más recientemente fue remodelado entre los años 2008 a 2014 por los arquitectos Thomas S. Marvel y José Marchand Sifre añadiendo dos torres de suites modernas. Además, la planificación y restauración de los espacios estuvo a cargo del Arquitecto Jonathan Parks y la firma SOLSTICE Planning and Architecture. Los diseños interiores estuvieron a cargo del diseñador Jorge Roselló.

Archivo General - Antiguo Hospital Civil - San Juan (Puerta de Tierra) - 2011 00017

Archivo General - Antiguo Hospital Civil - San Juan (Puerta de Tierra) - 2011 00017



Vista frontal del Archivo General y Biblioteca Nacional de Puerto Rico ubicado en la comunidad de Puerta de Tierra del pueblo costero de San Juan. El edificio es de tres niveles en mampostería y ladrillo con características del estilo neoclásico. Está pintado en tonos de amarillo y color blanco. La fachada frontal tiene zonas estriadas además, la fachada frontal es oblicua y en medio tiene la entrada a través de una puerta doble de cristal bajo un arco de medio punto enmarcado con molduras planas y coronada con un espinazo. Además, flanqueando la entrada hay pilastras pares, faroles metálicos, carteles, cámaras de seguridad y placas conmemorativas. Sobre la entrada se proyecta una cornisa corrida sobre la cual se ve una ventana doble de madera color azul y cristal enmarcada con molduras sobre una base de molduras salientes. Flanqueando hay columnas pares de órden dórico. El antiguo Hospital Civil fue el último edificio erigido por el gobierno Español en la Isla entre los años 1877-1887. A pesar de que fue construido como hospital fue utilizado como Cárcel provincial y posteriormente como destilería. Años más tarde, ante una amenaza de demolición el Instituto de Cultura Puertorriqueña lo adquirió y lo restauró para albergar documentos históricos. A partir del año 1973 trasladaron el Archivo General y la Biblioteca Nacional de Puerto Rico a este espacio. Además, el edificio fue incluido en el Registro Nacional de Lugares Históricos en el año 1976.

Condado Vanderbilt - San Juan (Condado) - 2013 00016

Condado Vanderbilt - San Juan (Condado) - 2013 00016



Vista del interior del Hotel Condado Vanderbilt ubicado en la avenida Ashford del pueblo costero de San Juan. El hotel es de varios niveles con características del estilo resurgimiento español. El vestíbulo tiene dos niveles con los pisos de mármol en dos colores, techos abovedados, lámparas de pared y puertas dobles de cristal bajo arcos semicirculares acompañados por cortinas de tela. Los espacios están divididos por arcos semicirculares con balaustradas de hierro ornamental y pasamanos de madera. Hay sillas de madera y al fondo una puerta sencilla de madera y cristal. El Hotel Condado Vanderbilt fue comisionado en 1917 por Frederick William Vanderbilt. Finalmente el 16 de octubre de 1919 fue inaugurado el primer gran hotel de lujo del Caribe. En el año 1930 fue vendido y pasó a llamarse Hotel Condado, posteriormente en 1940 se convirtió en el primer hotel en la isla en tener un casino. Además, en 1950 volvieron a cambiar su nombre a Condado Beach Hotel y se añadieron habitaciones, salones de actividades y un restaurante. Luego de considerar su demolición fue incluido en el Registro Nacional de Lugares Históricos en el año 1988. Más recientemente fue remodelado entre los años 2008 a 2014 por los arquitectos Thomas S. Marvel y José Marchand Sifre añadiendo dos torres de suites modernas. Además, la planificación y restauración de los espacios estuvo a cargo del Arquitecto Jonathan Parks y la firma SOLSTICE Planning and Architecture. Los diseños interiores estuvieron a cargo del diseñador Jorge Roselló.

Residencia 1 de Pedro Tomás Vivoni - San Germán - 2012 00024

Residencia 1 de Pedro Tomás Vivoni - San Germán - 2012 00024



Vista frontal de la residencia de Tomás Vivoni ubicada enfrente a la Plaza Santo Domingo del pueblo de San Germán. La casa es de dos niveles en hormigón y yeso con techo a dos aguas revestido por tejas laminadas y acompañado por remates decorativos, tiene características del estilo vernáculo y alta influencia del estilo gótico victoriano. El primer nivel de la casa está presidido por un balcón enmarcado con una balaustrada de bloques ornamentales que a su vez está modulado por columnas clásicas con detalles florales en relieve. La entrada al balcón es a través de un escalón y un pequeño portón de reja metálico. Por otra parte, en el interior del balcón hay ventanas y puertas dobles de madera y cristal, flanqueadas por pilastras acanaladas, algunas coronadas con soles truncos y entablamentos sostenidos por ménsulas. Por otra parte, el segundo nivel muestra un balcón abierto rodeado por una balaustrada de bloques ornamentales acompañada por remates y decoración navideña. También se distinguen ventanas dobles de madera con celosía, algunas bajo arcos semicirculares y otras bajo arcos rectangulares. Están acompañadas con guirnaldas y cornadas con entablamentos sostenidos por ménsulas. Además, la fachada está decorada con pilastras acanaladas, molduras, un friso ornamental y una torre cónica coronada con una aguja. La casa fue diseñada por el arquitecto Pedro Tomás Vivoni como residencia para Tomás Vivoni en el año 1913.

Escuela Luchetti

Escuela Luchetti



Dibujo arquitectónico de la escuela Luchetti ubicada en la comunidad de Condado del pueblo costero de San Juan. La escuela es de dos niveles construida en hormigón con características de los estilos artesanal y modernista. La fachada frontal tiene ventanas que combinan persianas con cristal enmarcadas con molduras. En medio, se distingue un pórtico de entrada sostenido por columnas de órden dórico. A su vez las columnas sostienen un entablamento con molduras y cornisas. Además, el pórtico tiene una puerta doble, enmarcada con molduras, presidida por escaleras y coronada con un travesaño. Por otra parte, el segundo nivel tiene una balconera abierta rodeada por una balaustrada. También tiene dos puertas dobles a juego con las ventanas en medio de la cual hay una columna acanalada. La balconera está enmarcada con molduras sobre la cual hay una inscripción que dice: “Escuela Luchetti”. El borde superior tiene una moldura corrida sobre la que se alza un frontón escalonado coronado con un detalle ornamental. Por otra parte, el borde superior derecho tiene un logo que dice: "PRHBDS”. La escuela Luchetti data de los años 1908 y 1909 siguiendo el diseño del arquitecto Antonin Nechodoma. Es una de las primeras escuelas edificadas y edificación de hormigón en la zona de San Juan antiguamente conocida como: “El Condado Schools”. Permaneció en uso continuo hasta su cierre por el Departamento de Educación el año 2018. Posteriormente en el año 2021 gracias a una iniciativa comunitaria el edificio fue nominado como edificio histórico ante la junta de planificación y el Instituto de Cultura Puertorriqueña.

Condado Vanderbilt - San Juan (Condado) - 2013 00149

Condado Vanderbilt - San Juan (Condado) - 2013 00149



Vista de los espacios interiores del Hotel Condado Vanderbilt ubicado en la avenida Ashford del pueblo costero de San Juan. El hotel es de varios niveles con características del estilo resurgimiento español. El baño tiene una ventana revestida por una cortina de tela y el piso revestido por mármol en varios colores. Además, en medio se distingue un mueble de mármol con varios lavamanos, lámparas decorativas y espejos. También se ve un extremo de una lámpara colgante y un cuadro decorativo en la pared. El Hotel Condado Vanderbilt fue comisionado en 1917 por Frederick William Vanderbilt. Finalmente el 16 de octubre de 1919 fue inaugurado el primer gran hotel de lujo del Caribe. En el año 1930 fue vendido y pasó a llamarse Hotel Condado, posteriormente en 1940 se convirtió en el primer hotel en la isla en tener un casino. Además, en 1950 volvieron a cambiar su nombre a Condado Beach Hotel y se añadieron habitaciones, salones de actividades y un restaurante. Luego de considerar su demolición fue incluido en el Registro Nacional de Lugares Históricos en el año 1988. Más recientemente fue remodelado entre los años 2008 a 2014 por los arquitectos Thomas S. Marvel y José Marchand Sifre añadiendo dos torres de suites modernas. Además, la planificación y restauración de los espacios estuvo a cargo del Arquitecto Jonathan Parks y la firma SOLSTICE Planning and Architecture. Los diseños interiores estuvieron a cargo del diseñador Jorge Roselló.

Ateneo Puertorriqueño - San Juan (Viejo San Juan) - 2011 00023

Ateneo Puertorriqueño - San Juan (Viejo San Juan) - 2011 00023



El Ateneo Puertorriqueño localizado en el barrio Puerta de Tierra en el Viejo San Juan. Fue fundado en 1876 y construido por el ingeniero Ramón Carbia Burt en 1923. Es la institución cultural más antigua de Puerto Rico, también se le conoce como "la Docta Casa". Su estilo arquitectónico es representativo del neoárabe. Fue nominado para el Registro Nacional de Lugares Históricos en 1984. Está pintado de color blanco y terracota. Se observa una fracción de la fachada. La parte superior de la fachada tiene un alero cubierto con tejas sostenido por ménsulas de madera. También posee dos arcos polilobulados interrumpidos por dos pilastras que tienen azulejos en la parte superior. En el lado derecho de la imagen se ve una pared con molduras de tres líneas, una ornamentación de una antorcha sostenida por una ménsula recta y dos ventanas de cristal con marcos de madera abisagradas. En la parte inferior de la fachada se aprecian frisos en altos relieves con representaciones de nueve figuras masculinas, cada uno tiene un atributo en sus manos. Se le conoce como el "Friso de la cultura" y fueron esculpidos por el artista italiano Arrighini. También se puede ver parcialmente parte del entablamento y una pilastra que tienen azulejos con motivos florales. Frente a la fachada hay una farola y arbustos. Posteriormente el Ateneo Puertorriqueño se dedicó a fomentar el teatro, música, cine, literatura, historia, ciencias, ciencias morales y políticas y las artes plásticas puertorriqueñas.

Edificio Oliver - Arecibo - 2012 00017

Edificio Oliver - Arecibo - 2012 00017



Vista de cerca de los balcones del edificio Oliver en el pueblo costero de Arecibo. El edificio es de tres niveles con características del estilo neoclásico de concreto armado. La fachada lateral se divide en varios tramos horizontalmente, la planta base y dos plantas superiores. La planta base tiene entradas bajo arcos semicirculares enmarcados con molduras. Además, los arcos están cubiertos por rejas metálicas. El segundo nivel tiene aberturas rectangulares y marcos planos. Las aberturas conducen a balcones con balaustres sostenidos por ménsulas decorativas. Flanqueando los balcones se encuentran pilastras acanaladas sostenidas por una cornisa corrida bajo las cuales hay una serie de cabezas de leones en relieve. El edificio Oliver fue construido en 1914 con fines comerciales y residenciales. Está cimentado en el mismo lugar que en 1765 el gobierno español construyó la Casa del Rey hasta 1913 cuando fue demolida. Este innovador edificio fue el primero en incorporar espacios de vivienda y establecimiento comercial. También fue el primer edificio construido en el pueblo con una entrada achaflanada. Además, su diseño ricamente ornamentado adopta características de la Escuela de Bellas Artes y el estilo tradicional español. A través de los años ha sido utilizado cómo espacio residencial, comercial y sede de varios consulados extranjeros que ocupaban el primer nivel. Fue restaurado en la década de 1980 y todos los espacios asignados para vivienda se convirtieron en espacios comerciales.

Calle de la Fortaleza 56 - Antigua Real Audiencia - Conservatorio De Artes Del Caribe - San Juan (Viejo San Juan) - 2011 00043

Calle de la Fortaleza 56 - Antigua Real Audiencia - Conservatorio De Artes Del Caribe - San Juan (Viejo San Juan) - 2011 00043



Antigua Real Audiencia, calle de la Fortaleza en el Viejo San Juan. Vista del interior de la casa de dos pisos estilo colonial español. Se observa parte de una pared con una arco de medio punto, las columnas tienen capiteles en forma de cornisa y sobre los capiteles una moldura acanalada bordea el arco. El arco es el acceso a una escalera de hacia el segundo piso, los escalones tienen losetas marmoleadas y bordes de madera. Ambas paredes tiene pasamanos de madera. Se puede ver un segmento del piso que también tiene losetas marmoleadas. Junto a la escalera hay un arco con una pared de vidrio de la que se puede ver solo el borde. Originalmente esta casa fue la residencia del Dr. Francisco Oller y Ferrer, abuelo del pintor Francisco Oller y Cestero. En 1831 fue vendida al Estado y el 1832 pasó a ser la primera sede de la Real Audiencia Territorial. Alrededor del 1898 fue arrendado al Departamento de Agricultura de Estados Unidos y en otro momento se usó como Departamento de Estado. En 1992 la edificación fue dedicada a Don Fernando Chardón. Luego de un periodo de abandono fue restaurada en el año 2000 y asignada a las oficinas de Guías Turísticos y de Programas Federales adscritos a la Oficina del Gobernador. La Torre Meteorológica y de Observación fue diseñada por el ingeniero Manuel Maese, la orden para su construcción fue emitida en 1883.